Иван Иванов Опубліковано: 29 липня 2011 Поділитись Опубліковано: 29 липня 2011 Ничего не видно. Очень маленькое изображение. На счет санузла согласен, я бы тоже со спальни в общий коридор перенес + второй маленький с/у тоже верно, слив одну трубу. Навес получился под одну машинку? Как по сторонам света? Посилання на коментар Поділитися на інших сайтах More sharing options...
Татьяна5 Опубліковано: 29 липня 2011 Поділитись Опубліковано: 29 липня 2011 буду ОЧЕНЬ внимательно следить за темкой, Вы строите "мой" дом, очень нравится этот проект, площади, размещение и тп. Только важно по стороная света правильно разместить Посилання на коментар Поділитися на інших сайтах More sharing options...
Иван Иванов Опубліковано: 29 липня 2011 Поділитись Опубліковано: 29 липня 2011 Танюш, я тоже в восторге от этого проекта. С интересом буду принимать участие в дискуссиях по стройке. Получается что сейчас лестница с подвала съела часть гаражного пространства, колоны необходимо перенести на юг, что в свою очередь увеличит площадь кровли, и стоимость.. Ох уж этот цоколь!! Посилання на коментар Поділитися на інших сайтах More sharing options...
azeff Опубліковано: 2 серпня 2011 Поділитись Опубліковано: 2 серпня 2011 www.gservis.cz/projekty-rodinnych-domu/vegas.html нашел, тот же по сути проект, только с другой крышей! 1 Посилання на коментар Поділитися на інших сайтах More sharing options...
Иван Иванов Опубліковано: 2 серпня 2011 Поділитись Опубліковано: 2 серпня 2011 www.gservis.cz/projekty-rodinnych-domu/vegas.html нашел, тот же по сути проект, только с другой крышей! К стати, и по строительству на много дешевле. Но "микро" спальни отпугивают Посилання на коментар Поділитися на інших сайтах More sharing options...
azeff Опубліковано: 4 серпня 2011 Поділитись Опубліковано: 4 серпня 2011 К стати, и по строительству на много дешевле. Но "микро" спальни отпугивают Почему намного? Плоская крыша дешевле, вроде как. + как обыграть плоский навес которого тут нет, и террасу. Посилання на коментар Поділитися на інших сайтах More sharing options...
Татьяна5 Опубліковано: 4 серпня 2011 Поділитись Опубліковано: 4 серпня 2011 Плоская крыша дешевле, гы, дешевле, ага Посилання на коментар Поділитися на інших сайтах More sharing options...
azeff Опубліковано: 4 серпня 2011 Поділитись Опубліковано: 4 серпня 2011 гы, дешевле, ага Херню всякую пишите. Давайте по факту, примеры, я люблю на практике. Посилання на коментар Поділитися на інших сайтах More sharing options...
Татьяна5 Опубліковано: 4 серпня 2011 Поділитись Опубліковано: 4 серпня 2011 Херню всякую пишите. Давайте по факту, примеры, я люблю на практике. Вперед, считайте на практике, доказывайте сами себе все, что хотите, - потом обсудим Посилання на коментар Поділитися на інших сайтах More sharing options...
shuravi Опубліковано: 4 серпня 2011 Поділитись Опубліковано: 4 серпня 2011 Аргументы в студию!!! Почему плоская крыша дороже чем скатная? Посилання на коментар Поділитися на інших сайтах More sharing options...
azeff Опубліковано: 4 серпня 2011 Поділитись Опубліковано: 4 серпня 2011 Аргументы в студию!!! Почему плоская крыша дороже чем скатная? www.muratordom.com.ua/stroitelstvo-i-remont/kryshi-i-perekrytiya/ploskaya-krysha-i-ee-vidy,6329_21096.htm не считал подробно, но после того как сделал металочерепицу - скорее всего дешевле! Посилання на коментар Поділитися на інших сайтах More sharing options...
Татьяна5 Опубліковано: 4 серпня 2011 Поділитись Опубліковано: 4 серпня 2011 Аргументы в студию!!! Почему плоская крыша дороже чем скатная? Сколько стоит 1м2 гипердесмо и сколько стоит 1м2 работ по нему? какие перекрытия нужны для устройства плоской крыши? не ленитесь, посчитайте ;) Посилання на коментар Поділитися на інших сайтах More sharing options...
shuravi Опубліковано: 5 серпня 2011 Поділитись Опубліковано: 5 серпня 2011 Сколько стоит 1м2 гипердесмо и сколько стоит 1м2 работ по нему? какие перекрытия нужны для устройства плоской крыши? не ленитесь, посчитайте ;) А что на гипердесмо свет клином сошелся, других материалов в природе не существует или как?8-) Вы же гидроизоляцию фундамента гипердесмо не делаете и ничего не затекает. Кто то шифером крышу кроет, кто то медью, просто цена вопроса разная. У меня у родителей дом построился в начале 83 года, стропильная система, доски, рубероид, шифер, это по верху, а перекрытие от низу вверх по порядку: штукатурка, дранка, стекловата между балками, ОСБ прессованная 20 мм и все чудесно и тепло, и нет ни пароизоляции, ни гидроизоляции, ни паробарьера и всех тех новшеств что сейчас, и повторюсь что все гуд. Просто сильно грамотные все стали, Интернет штука сильная. А раньше машины без кондиционеров и гидроусилителей ездили, и в царских домах тоже перекрытие делали. ИМХО 1 Посилання на коментар Поділитися на інших сайтах More sharing options...
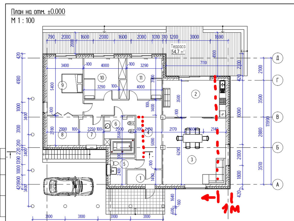
buffalolion Опубліковано: 8 серпня 2011 Автор Поділитись Опубліковано: 8 серпня 2011 отвечаю по вопросам. 1. стороны света. окна с трёх спален и терраса выходит на восток. зал выходит окнами на юг и запад. 2. по поводу сметы на крышу скажу чуть позже т.к. только сегодня буду полностью забирать проэкт и отдавать строителям на смету. начинать строиться буду скорее всего уже с весны. 3. картинки не могу загрузить больше почему-то, не могу разобраться как их загружать. Посилання на коментар Поділитися на інших сайтах More sharing options...
buffalolion Опубліковано: 8 серпня 2011 Автор Поділитись Опубліковано: 8 серпня 2011 Вышгородский р-н, смету по крыше еще не знаю, все думаю, а что по поводу колон? мы строимся даже не в Киевской обл. что по поводу колон - то вопрос еще пока остается открытым, может вообще будем делать металлические, потом красить, штукатурить или еще что-то. просто пока дело и близко к ним не подходит, поэтому вопросом этим не занимались. если будут какие-то идеи - пишите 1 Посилання на коментар Поділитися на інших сайтах More sharing options...
buffalolion Опубліковано: 8 серпня 2011 Автор Поділитись Опубліковано: 8 серпня 2011 К стати, и по строительству на много дешевле. Но "микро" спальни отпугивают Вы знаете, много раздумывали по поводу маленьких спален. да, это минус, но просто в общем проэкт понравился. а еще, по-моему для ребенка, подростка главное иметь свой собственный "угол", а его размеры это уже вопрос второстепенный Посилання на коментар Поділитися на інших сайтах More sharing options...
buffalolion Опубліковано: 8 серпня 2011 Автор Поділитись Опубліковано: 8 серпня 2011 План 1-го этажа (5_07_11).pdfПлан 1-го этажа (5_07_11).pdf 1 Посилання на коментар Поділитися на інших сайтах More sharing options...
Иван Иванов Опубліковано: 8 серпня 2011 Поділитись Опубліковано: 8 серпня 2011 (змінено) Мне нравится, единственное это большая площадь общей комнаты и кухни (59 м), может правую стену на метр/два влево? Тогда -10/-20 метров. С нижней стеной тоже можно поиграть, на метр вверх. С/у большой можно чуть в право, в сторону коридора увеличить, два метра для коридора достаточно. Змінено 8 серпня 2011 користувачем Иван Иванов Посилання на коментар Поділитися на інших сайтах More sharing options...
Иван Иванов Опубліковано: 8 серпня 2011 Поділитись Опубліковано: 8 серпня 2011 (змінено) отвечаю по вопросам. 1. стороны света. окна с трёх спален и терраса выходит на восток. зал выходит окнами на юг и запад. 2. по поводу сметы на крышу скажу чуть позже т.к. только сегодня буду полностью забирать проект и отдавать строителям на смету. начинать строиться буду скорее всего уже с весны. 3. картинки не могу загрузить больше почему-то, не могу разобраться как их загружать. А вот это интересный момент. Расположение по сторонам света не очень удачное, повернуть проект возможно на 90 градусов по часовой? У вас тепло потери большие будут при вашем варианте. Змінено 8 серпня 2011 користувачем Иван Иванов Посилання на коментар Поділитися на інших сайтах More sharing options...
azeff Опубліковано: 9 серпня 2011 Поділитись Опубліковано: 9 серпня 2011 59 метров многовато, потолки в таком случае должны быть минимум 3,2, а лучше 3,5. Делал бы 40-45 м2. По каридору, очень было бы хорошо что бы при входе вы попадали в расширение, как бы визуальный эффект хороший, а на месте где вы хотите ванну сделать проситься шкаф купе в который войдут вещи гостей, если их много, собственно в проекте так и есть, подумайте его вернуть Посилання на коментар Поділитися на інших сайтах More sharing options...
Татьяна5 Опубліковано: 9 серпня 2011 Поділитись Опубліковано: 9 серпня 2011 59 метров многовато, потолки в таком случае должны быть минимум 3,2, а лучше 3,5. Делал бы 40-45 м2. многовато тем, кто не жил в таких помещениях у меня 65 м2 зал-студио, в доме буду делать 70-80 м2 1 Посилання на коментар Поділитися на інших сайтах More sharing options...
buffalolion Опубліковано: 11 серпня 2011 Автор Поділитись Опубліковано: 11 серпня 2011 59 метров многовато, потолки в таком случае должны быть минимум 3,2, а лучше 3,5. Делал бы 40-45 м2. По каридору, очень было бы хорошо что бы при входе вы попадали в расширение, как бы визуальный эффект хороший, а на месте где вы хотите ванну сделать проситься шкаф купе в который войдут вещи гостей, если их много, собственно в проекте так и есть, подумайте его вернуть потолки и так будут 3,5 метров. это было одно из условий при проэктировании - высокие потолки. и потом, откуда взяласт цифра 59 метров, не пойму... зал 38 метров Посилання на коментар Поділитися на інших сайтах More sharing options...
buffalolion Опубліковано: 11 серпня 2011 Автор Поділитись Опубліковано: 11 серпня 2011 А вот это интересный момент. Расположение по сторонам света не очень удачное, повернуть проект возможно на 90 градусов по часовой? У вас тепло потери большие будут при вашем варианте. обоснуйте Посилання на коментар Поділитися на інших сайтах More sharing options...
buffalolion Опубліковано: 11 серпня 2011 Автор Поділитись Опубліковано: 11 серпня 2011 Мне нравится, единственное это большая площадь общей комнаты и кухни (59 м), может правую стену на метр/два влево? Тогда -10/-20 метров. С нижней стеной тоже можно поиграть, на метр вверх. С/у большой можно чуть в право, в сторону коридора увеличить, два метра для коридора достаточно. зал выходит по проэкту 38 метров, я считаю, что для дома это нормально при том, что в зале буду ставить еще и красивый итальянский стол. кухню опять же уменьшать не хочу т.к. буду ставить вдоль стенки (та, кот 3,5м) кухню, напротив нее остров длиной примерно 1,5 метра и мягкий диванчик под второй стенкой (кот. 3,5м). между кухней и залом буду ставить раздвижные стеклянные двери - не хочу, чтобы запахи с кухни при готовке шли в зал. а так основную часть времени двери будут открыты. что касается коридора, то шкаф там ставить не буду. тамбур у меня шириной 1,4 и длиной 2,5м, я думаю там найдется место уже, где гостям раздеться. а ту стенку, где вы предлагаете разместить шкаф, я буду скорее всего декорировать ламинатом или кирпичем и поставлю какой-то красивый комод. опять же уже занимаюсь подборкой интересных работ фотографов, кот повешу на стенку Посилання на коментар Поділитися на інших сайтах More sharing options...
buffalolion Опубліковано: 11 серпня 2011 Автор Поділитись Опубліковано: 11 серпня 2011 многовато тем, кто не жил в таких помещениях у меня 65 м2 зал-студио, в доме буду делать 70-80 м2 видела зал 55 м.кв. смотрится шикарно. могу только представить 70 квадратов Посилання на коментар Поділитися на інших сайтах More sharing options...
Рекомендовані повідомлення
Створіть акаунт або увійдіть у нього для коментування
Ви маєте бути користувачем, щоб залишити коментар
Створити акаунт
Зареєструйтеся для отримання акаунта. Це просто!
Зареєструвати акаунтУвійти
Вже зареєстровані? Увійдіть тут.
Увійти зараз