ХХХХ Опубліковано: 3 серпня 2011 Поділитись Опубліковано: 3 серпня 2011 Вот собственно мои долгие и вдумчивые старания в Арконе. Придумывал всё сам. 1-эт. кирп. дом с гаражом на 2 авто 17м*10м с холодным чердаком, на монолитной ленте, 3-ёх слойная кирпичная стена (25 см. несущая стена кирпич, утеплитель - минвата, воздух 3см., отделка - облиц. кирпич СБК), перекрытия - дерево, крыша двускатная - Еко-дах. Внутри периметра гаража планирую подвал 2м*4м. Из гаража -ход на чердак. Участок 22м*30м. Фасад -30м. Семья - мама, папа, мелкое дитя. Жду критики по планировке, расстановке мебели, ну и всему что считаете нужным заранее всем спасибо! Посилання на коментар Поділитися на інших сайтах More sharing options...
prophet_in_blue Опубліковано: 4 серпня 2011 Поділитись Опубліковано: 4 серпня 2011 Я зовсім не спец, але: Чи передбачена тераса? Якщо ні - імхо, бракуватиме. Але вихід із вітальні натякає, що передбачена. Не бачу сенсу робити два санвузли впритул, та й столи якось близько один від одного. Якийсь зовсім зайвий просторопожиральний "тамбур" перед входом до спалень. Це між кухнею та вітальнею (на диван) - прохід без дверей? Тоді другі двері теж зайві. Який у них сенс, якщо запахи і все таке валитимуть просто у вітальню. Хоча на мій смак - може, взагалі прибрала би шмат стіни між цими двома проходами (якщо друге таки двері). Або/і перенесла би кухонні меблі на протилежну стінку, щоб зробити вхід у кухню ближче до входу в дім (хоч розумію, що ви відштовхуєтесь від комунікацій). Диван лишає замало місця для проходу, і дитині зовсім не побігати. Імхо, дуже мало місця для одягу та іншого барахла. Суб'єктивно не подобається таке скупчення технічних приміщень біля входу. Перенесла би санвузли й технічні приміщення вглиб дому, на північний бік. Загалом є сумніви щодо розміщення за сторонами світу. 1 Посилання на коментар Поділитися на інших сайтах More sharing options...
Specu Опубліковано: 4 серпня 2011 Поділитись Опубліковано: 4 серпня 2011 Вы хотите критики? Их есть у меня! 1) зачем столько кирпича в стенах - тяжело и холодно. 30-40 см газобетона + полкирпича - и будет стоять как бубен. Всё сложные пироги не так эффективны, как кажется по расчетам. Прослойка воздуха вообще убивает всю теплоизоляцию, т.к. из-за одной щели внутри прослойки будет конвекция со сквозняком. 2) У вас широкий участок. Не делайте гараж с последовательным въездом - это крайне неудобно. Лучше сделайте дом ГЛУБЖЕ, но гараж на 2 въезда. 3) поднимите стены (и соответственно, крышу) на 1 метр. И предусмотрите место под лестницу - даже если пока на этом месте будет кладовка. СтОить это не будет ничего, а возможность для расширения оставите.Так, на будущее. А пока будет большой холодный чердак. Или гостевое летнее помещение. 1 Посилання на коментар Поділитися на інших сайтах More sharing options...
electra Опубліковано: 4 серпня 2011 Поділитись Опубліковано: 4 серпня 2011 Вот собственно мои долгие и вдумчивые старания в Арконе. Придумывал всё сам. 1-эт. кирп. дом с гаражом на 2 авто 17м*10м с холодным чердаком, на монолитной ленте, 3-ёх слойная кирпичная стена (25 см. несущая стена кирпич, утеплитель - минвата, воздух 3см., отделка - облиц. кирпич СБК), перекрытия - дерево, крыша двускатная - Еко-дах. Внутри периметра гаража планирую подвал 2м*4м. Из гаража -ход на чердак. Участок 22м*30м. Фасад -30м. Семья - мама, папа, мелкое дитя. Жду критики по планировке, расстановке мебели, ну и всему что считаете нужным заранее всем спасибо! совет: уберите стены кухни вааще и разделите гостевую с кухней визуально, получите пространство для трех помещений сразу, а разделять лучше большим столом у окна, в летнее время с др. стороны окна можно сделать терраску и поставить там тож стол. и абсолютно согласна насчет гаража, не удобно, если машины стоят последовательно. и еще погреб со входом из гаража - не лучшее решение, будьте внимательны в этом случае с вентиляцией и температурным режимом, у нас не получилось( помещение есть, а толку нет 1 Посилання на коментар Поділитися на інших сайтах More sharing options...
Rudirena Опубліковано: 4 серпня 2011 Поділитись Опубліковано: 4 серпня 2011 Поддерживаю, касательно стены между кухней и комнатой, лучше ее вообще убрать. 1 Посилання на коментар Поділитися на інших сайтах More sharing options...
ХХХХ Опубліковано: 4 серпня 2011 Автор Поділитись Опубліковано: 4 серпня 2011 Чи передбачена тераса? Якщо ні - імхо, бракуватиме. Але вихід із вітальні натякає, що передбачена. тераса пока не предусмотрена - места мало, возможно будет беседка. выход из гостиной - скорее для того, чтобы удобнее выходить во двор было - далековато от основного входа выходил. Не бачу сенсу робити два санвузли впритул, та й столи якось близько один від одного. для с/у больше нет места, а 2 шт. их обязательны в семье, где больше 2 людей. столы - ну на кухне - для ежедневного пользования, в гостиной - для гостей Якийсь зовсім зайвий просторопожиральний "тамбур" перед входом до спалень. тамбур перед спальней дл ятого, что бы не мостить в широкой несущей стене 25см. дверные коробки - доборы дорого стоят Це між кухнею та вітальнею (на диван) - прохід без дверей? Тоді другі двері теж зайві. Який у них сенс, якщо запахи і все таке валитимуть просто у вітальню. Хоча на мій смак - може, взагалі прибрала би шмат стіни між цими двома проходами (якщо друге таки двері). Або/і перенесла би кухонні меблі на протилежну стінку, щоб зробити вхід у кухню ближче до входу в дім (хоч розумію, що ви відштовхуєтесь від комунікацій). Диван лишає замало місця для проходу, і дитині зовсім не побігати. Імхо, дуже мало місця для одягу та іншого барахла. согласен. но планирую вначале между кухней и гостиной поставть коробку без полотна двери. если очень будет плохо - полотно навешу. хотя при наличии вытяжки - запахи не проблема - в квартире дверь на кухню за 4 года ниразу наверно не закрывал. Суб'єктивно не подобається таке скупчення технічних приміщень біля входу. Перенесла би санвузли й технічні приміщення вглиб дому, на північний бік. Загалом є сумніви щодо розміщення за сторонами світу. спасибо! буду думать. Посилання на коментар Поділитися на інших сайтах More sharing options...
ХХХХ Опубліковано: 4 серпня 2011 Автор Поділитись Опубліковано: 4 серпня 2011 погреб со входом из гаража - не лучшее решение, будьте внимательны в этом случае с вентиляцией и температурным режимом, у нас не получилось( помещение есть, а толку нет а что не получилось? гараж неотапливаемый - по идее погреб получится холодным. вентиляция будет принудительная - выхлопы изгоним! Посилання на коментар Поділитися на інших сайтах More sharing options...
electra Опубліковано: 4 серпня 2011 Поділитись Опубліковано: 4 серпня 2011 а что не получилось? гараж неотапливаемый - по идее погреб получится холодным. вентиляция будет принудительная - выхлопы изгоним! когда заезжаешь машиной зимой, то как снег не струшивай (а машина не собака - отряхнуться сама не может) все равно избыточная влажность сущесвует. пошел грибок...=> сделали отапливаемый...=> в подвале все как в оранжерее прорастает, даже без солнца, а облицовочный камень на небольшом участке снаружи там, где начинается лестница в подвал внутри малеха подтреснул, но не сильно то и видно, зато обидно (знал бы прикуп - жил бы в Сочи;)) 1 Посилання на коментар Поділитися на інших сайтах More sharing options...
seyvalter Опубліковано: 4 серпня 2011 Поділитись Опубліковано: 4 серпня 2011 Дурницю говорите. У мене особисто підвал під кладовою (а опалення було так зроблено що кладова була найтеплішим приміщенням у домі) - і підвал чудовий! тепле повітря рухається знизу вверх а не навпаки - а значить обігрівати підвал не може в принципі! Я б скоріше турбувався щоб з підвалу холодом по підлозі не тягнло - але якщо добре зробити перекриття це теж не проблема. 1 Посилання на коментар Поділитися на інших сайтах More sharing options...
ХХХХ Опубліковано: 4 серпня 2011 Автор Поділитись Опубліковано: 4 серпня 2011 когда заезжаешь машиной зимой, то как снег не струшивай (а машина не собака - отряхнуться сама не может) все равно избыточная влажность сущесвует. пошел грибок...=> сделали отапливаемый...=> в подвале все как в оранжерее прорастает, даже без солнца, а облицовочный камень на небольшом участке снаружи там, где начинается лестница в подвал внутри малеха подтреснул, но не сильно то и видно, зато обидно (знал бы прикуп - жил бы в Сочи;)) ух ты! спасибо! а ведь точно. не подумал про зимние условия и тающий снег! видимо строить подвал придётся более глубокий, вход в подвал герметизировать, делать серьёзный уклон пола гража в сторону выхода и от входа в гараж. Посилання на коментар Поділитися на інших сайтах More sharing options...
electra Опубліковано: 4 серпня 2011 Поділитись Опубліковано: 4 серпня 2011 ух ты! спасибо! а ведь точно. не подумал про зимние условия и тающий снег! видимо строить подвал придётся более глубокий, вход в подвал герметизировать, делать серьёзный уклон пола гража в сторону выхода и от входа в гараж. и про дренажик у въезда в гараж не забудьте Посилання на коментар Поділитися на інших сайтах More sharing options...
ХХХХ Опубліковано: 5 серпня 2011 Автор Поділитись Опубліковано: 5 серпня 2011 а если так? Посилання на коментар Поділитися на інших сайтах More sharing options...
Алик Опубліковано: 5 серпня 2011 Поділитись Опубліковано: 5 серпня 2011 а если так? как по мне, то не очень((( очень длинный коридор 1 Посилання на коментар Поділитися на інших сайтах More sharing options...
electra Опубліковано: 5 серпня 2011 Поділитись Опубліковано: 5 серпня 2011 а если так? попробуйте слева от входа убрать все стены и сделать там кухню, столовую и рекриэйшн-эриа! т.е. 3 в 1. имхо, получите большое пространство, разделенное визуально: кухню от комнаты отдыха отделите большим обеденным столом, а столовую от кухни отделите барной стойкой 1 Посилання на коментар Поділитися на інших сайтах More sharing options...
Gonchik Опубліковано: 8 серпня 2011 Поділитись Опубліковано: 8 серпня 2011 Якщо підходить з точки зору орієнтації відносно сторін світу, то ось мій улюблений по заявлених Вами параметрах. (ссылка устарела) Збираюсь такий будувати. В Польші дуже популярний. Ізюм проекту - дахові вікна в вітальні. Там є візуалізація+фотки вже реалізованих будов, подивіться. 1 Посилання на коментар Поділитися на інших сайтах More sharing options...
vlam Опубліковано: 8 серпня 2011 Поділитись Опубліковано: 8 серпня 2011 Не делайте угол посредине ванны, в ней можно поскользнуться и не дай бог упасть головой на этот угол. 1 Посилання на коментар Поділитися на інших сайтах More sharing options...
ХХХХ Опубліковано: 6 вересня 2011 Автор Поділитись Опубліковано: 6 вересня 2011 а если так???? Посилання на коментар Поділитися на інших сайтах More sharing options...
Artyomovets Опубліковано: 6 вересня 2011 Поділитись Опубліковано: 6 вересня 2011 мне не нравится тамбур на 2 спальни. есть риск биться лбами... 1 Посилання на коментар Поділитися на інших сайтах More sharing options...
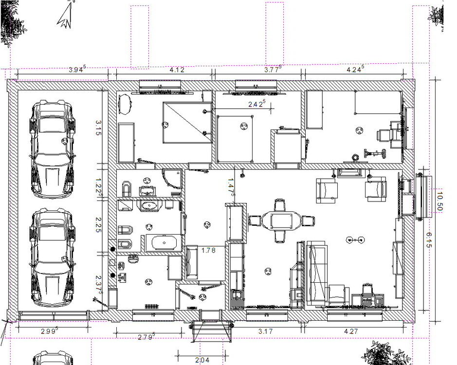
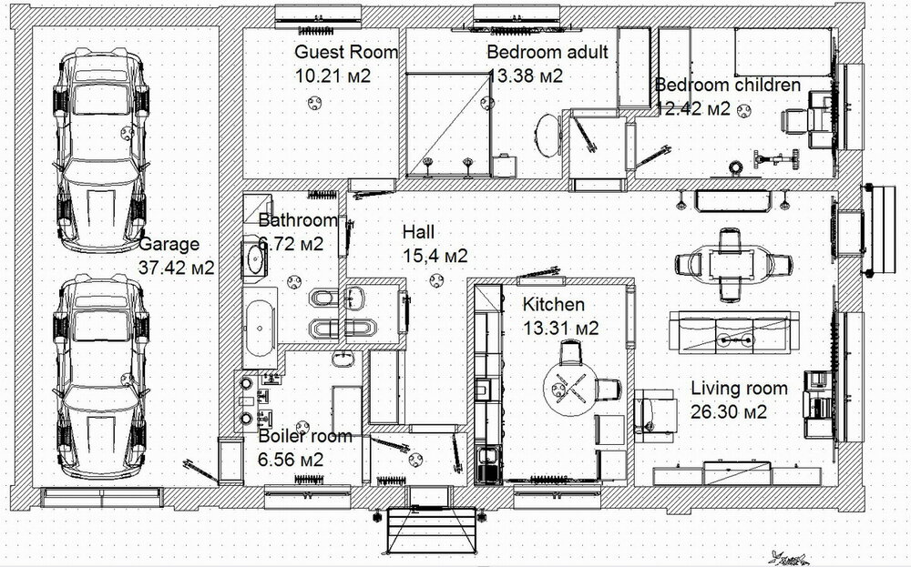
ХХХХ Опубліковано: 7 вересня 2011 Автор Поділитись Опубліковано: 7 вересня 2011 одна из спален гостевая, так что там 99% времени никого не будет вот подробнее: Посилання на коментар Поділитися на інших сайтах More sharing options...
Надежда Опубліковано: 7 вересня 2011 Поділитись Опубліковано: 7 вересня 2011 Если Вы до сих пор уверены в том, что доборы в два дверных проема дороже, чем тамбур с тремя проемами, то дом строить Вам рановато. 1 Посилання на коментар Поділитися на інших сайтах More sharing options...
Телесистемы Опубліковано: 7 вересня 2011 Поділитись Опубліковано: 7 вересня 2011 Такой простой вопрос: если это позиционируется как дом для постоянного проживания, где вы видите в нем "рабочее место"? - место где будет стол с компьютером, секретер с бумагами, место где можно было бы поработать с документами зы: размещение одного из су я бы позиционировал как-то ближе к спальням, возможно между ними. ззы: внешний дизайн если его так и оставить в итоге будет напоминать конюшню, не помешает поработать в этот направлении - какие-нибудь декоративные элементы, может ,терасса итп.. 1 Посилання на коментар Поділитися на інших сайтах More sharing options...
ХХХХ Опубліковано: 7 вересня 2011 Автор Поділитись Опубліковано: 7 вересня 2011 а вот и фасад. зы. рабочее место в гостиной под окном - стол с ноутом Посилання на коментар Поділитися на інших сайтах More sharing options...
EgoRk@ Опубліковано: 7 вересня 2011 Поділитись Опубліковано: 7 вересня 2011 не влезет у вас нормально 2 машины на 10 метров вычтите толщину стен, по хотя бы 80 см между каждым бампером (стена-бампер, бампер-бампер, бампер-ворота) получите 7 метров общая длина двух авто 1 Посилання на коментар Поділитися на інших сайтах More sharing options...
ХХХХ Опубліковано: 7 вересня 2011 Автор Поділитись Опубліковано: 7 вересня 2011 знаю, что гараж маловат... но ставить планирую 1 авто внутри, одно снаружи. свободное место гаража - мастерская наверное будет и склад хлама. Посилання на коментар Поділитися на інших сайтах More sharing options...
wironna Опубліковано: 8 вересня 2011 Поділитись Опубліковано: 8 вересня 2011 Первый вариант проекта пока был лучшим. Посилання на коментар Поділитися на інших сайтах More sharing options...
Рекомендовані повідомлення
Створіть акаунт або увійдіть у нього для коментування
Ви маєте бути користувачем, щоб залишити коментар
Створити акаунт
Зареєструйтеся для отримання акаунта. Це просто!
Зареєструвати акаунтУвійти
Вже зареєстровані? Увійдіть тут.
Увійти зараз