Телесистемы Опубліковано: 5 жовтня 2011 Поділитись Опубліковано: 5 жовтня 2011 т.е. просто на люк сверху наклеили вату? ок, спс. люк в виде короба. в него уложена вата и поверх набит гидробарьер, который эту вату в нем и удерживает А половину в мусор. кстати, да. я когда то тоже планировал машинку с сушкой, но на всех вещах есть значок "сушка в машине запрещена" Посилання на коментар Поділитися на інших сайтах More sharing options...
vickov Опубліковано: 5 жовтня 2011 Поділитись Опубліковано: 5 жовтня 2011 Мой вам совет, попросите seyvalter`a чтобы ознакомил со своим симпатичным проектом. Уверен, понравится. Посилання на коментар Поділитися на інших сайтах More sharing options...
Ivirina Опубліковано: 6 жовтня 2011 Поділитись Опубліковано: 6 жовтня 2011 значит стиралку и отдельно сушку) у них 11 программ сушки белья, вплоть до выбора процента влажности. Мне по крайней мере нравится. про встроенные сушки в стиралку не буду говорить не знаю какое оно от туда достается, а вот отделья сушка (кондестационная) супер пупер. но это уже отступление от темы хотя если вы думали сушить белье на чердаке от куда там свежесть?? щас еще раз темку перечитаю Посилання на коментар Поділитися на інших сайтах More sharing options...
Ivirina Опубліковано: 6 жовтня 2011 Поділитись Опубліковано: 6 жовтня 2011 перечитала пересмотрела, и не поняла одного у вас три больших санузла, неужели ни в одном из них не поместиться маленькая вертикальная сушка????? не знаю какой будет окончательный вариант с санузлами на втором этаже, но то что я видела площадью в 10м2 это же блин целая комната. В Эпицентре видела вертикальныю сушку, которая занимает совсем мало места, и есть возможность распахнуть ее для сушки большого количества белья, а так же трасформировать для маленького. тем более все грязные вещи будут находиться на втром этаже потмоу что жилые комнаты именно там. 1 Посилання на коментар Поділитися на інших сайтах More sharing options...
Cvetikraa Опубліковано: 6 жовтня 2011 Автор Поділитись Опубліковано: 6 жовтня 2011 перечитала пересмотрела, и не поняла одного у вас три больших санузла, неужели ни в одном из них не поместиться маленькая вертикальная сушка????? не знаю какой будет окончательный вариант с санузлами на втором этаже, но то что я видела площадью в 10м2 это же блин целая комната. В Эпицентре видела вертикальныю сушку, которая занимает совсем мало места, и есть возможность распахнуть ее для сушки большого количества белья, а так же трасформировать для маленького. тем более все грязные вещи будут находиться на втром этаже потмоу что жилые комнаты именно там. Я с Вами согласна, и с сушкой я уже даже не заморачиваюсь, но вот кладовку и топочную попробую все-таки разнести, продукты и пыль от того же угля как-то не вяжутся. Посилання на коментар Поділитися на інших сайтах More sharing options...
Cvetikraa Опубліковано: 6 жовтня 2011 Автор Поділитись Опубліковано: 6 жовтня 2011 значит стиралку и отдельно сушку) у них 11 программ сушки белья, вплоть до выбора процента влажности. Мне по крайней мере нравится. про встроенные сушки в стиралку не буду говорить не знаю какое оно от туда достается, а вот отделья сушка (кондестационная) супер пупер. но это уже отступление от темы хотя если вы думали сушить белье на чердаке от куда там свежесть?? щас еще раз темку перечитаю А на счет чердака и сушки белья - то это я у соседа увидела, решила уточнить мнение других, поняла, что мне такое не подходит. Всем спасибо за разъяснение. Посилання на коментар Поділитися на інших сайтах More sharing options...
Телесистемы Опубліковано: 6 жовтня 2011 Поділитись Опубліковано: 6 жовтня 2011 Я с Вами согласна, и с сушкой я уже даже не заморачиваюсь, но вот кладовку и топочную попробую все-таки разнести, продукты и пыль от того же угля как-то не вяжутся. очень сомневаюсь,что вы когда либо будете топить углем, хотя консервация нормально уживается и с углем, и с дровами , и с брикетами. Правда какая разница, в котельной всеравно нет места для их хранения. Посилання на коментар Поділитися на інших сайтах More sharing options...
Artyomovets Опубліковано: 6 жовтня 2011 Поділитись Опубліковано: 6 жовтня 2011 консервация нормально уживается и с углем, и с дровами , и с брикетами. Правда какая разница, в котельной всеравно нет места для их хранения. но не с температурой помещения. хотя, основной аргумент - место, согласен Посилання на коментар Поділитися на інших сайтах More sharing options...
Телесистемы Опубліковано: 6 жовтня 2011 Поділитись Опубліковано: 6 жовтня 2011 но не с температурой помещения. хотя, основной аргумент - место, согласен У меня рядом с кухней кладовая 7м2. Специально для консервации,овощей и прочих продуктов. кладовая заведомо неотапливаемая. Тем не менее в ней держится +15, а этого для овощей и солений оказалось многовато. Нужен погреб. А для крупы, макарон, сушек всяких - нормально. Посилання на коментар Поділитися на інших сайтах More sharing options...
aleks.recluse Опубліковано: 6 жовтня 2011 Поділитись Опубліковано: 6 жовтня 2011 очень сомневаюсь,что вы когда либо будете топить углем, хотя консервация нормально уживается и с углем, и с дровами , и с брикетами. Правда какая разница, в котельной всеравно нет места для их хранения. а не сильно жарко в топочной для консервации?? про уголь согласен, скорее дрова...ну это под Киевом))) Посилання на коментар Поділитися на інших сайтах More sharing options...
Телесистемы Опубліковано: 6 жовтня 2011 Поділитись Опубліковано: 6 жовтня 2011 а не сильно жарко в топочной для консервации?? про уголь согласен, скорее дрова...ну это под Киевом))) уже выше ответил.. во всяком случае температуру в котельной легко опустить поставив окно на проветривание/микропроветривание Посилання на коментар Поділитися на інших сайтах More sharing options...
Cvetikraa Опубліковано: 10 жовтня 2011 Автор Поділитись Опубліковано: 10 жовтня 2011 Всем большое спасибо за замечания и советы. После непродолжительных раздумий первый этаж немного приобразился. Топочная стала отдельно, кладовая - отдельно, как раз для хранения круп, посуды и прочей кухонной утвари, а гостинную не портит вход в гостевой санузел. Посилання на коментар Поділитися на інших сайтах More sharing options...
achorniy Опубліковано: 14 жовтня 2011 Поділитись Опубліковано: 14 жовтня 2011 Всем большое спасибо за замечания и советы. После непродолжительных раздумий первый этаж немного приобразился. Топочная стала отдельно, кладовая - отдельно, как раз для хранения круп, посуды и прочей кухонной утвари, а гостинную не портит вход в гостевой санузел. Слежу за вашей темой, хочу себе чтото похожее (разве что сделал бы площадь дома чуть поменьше - наверно за счет уменьшения гостинной) положение санузла стало действительно лучше. по моему проблема топочной - она получилась довольно узкой, и если ставить там ТТ (а он немелкий и займет всю ширину топочной практически) то как пройти мимо котла ? - с одной стороны вход из дома, с другой - выход на улицу, соотв. ТТ гдето посредине. + топливо нужно гдето-хранить. Наверно для топочной нужно чтото более близкое к квадрату. с кладовкой на кухне тоже - она длинная и узкая, хотя для нее терпимо. дверь в кабинет я бы перенес под лестницу и открывал бы его не в кабинет, а наружу. Посилання на коментар Поділитися на інших сайтах More sharing options...
NYUTA Опубліковано: 15 жовтня 2011 Поділитись Опубліковано: 15 жовтня 2011 Топочная стала отдельно, кладовая - отдельно, как раз для хранения круп, посуды и прочей кухонной утвари, а гостинную не портит вход в гостевой санузел. Мне кажется, топочная с кладовой - это мелочи, в сравнении с гостиной. Посмотрите внимательно - корридор-то Вы убрали, но транзит остался - и гостиная у Вас с вычетом транзита выходит 3,6 м* 5 с чем-то - длинная и узкая. И кухня как-то некрасиво воткнулась в гостиную. И еще нужно разобраться с конструктивной схемой - многовато внутренних несущих стен. Но, честно говоря, я не понимаю зачем Вы усложняете себе жизнь - идете к архитектору и по Вашим пожеланиям можно выкрутить 3-4...n-вариантов. И фасады прикинуть... А Вам останется лишь выбрать ;) 2 Посилання на коментар Поділитися на інших сайтах More sharing options...
Cvetikraa Опубліковано: 17 жовтня 2011 Автор Поділитись Опубліковано: 17 жовтня 2011 Мне кажется, топочная с кладовой - это мелочи, в сравнении с гостиной. Посмотрите внимательно - корридор-то Вы убрали, но транзит остался - и гостиная у Вас с вычетом транзита выходит 3,6 м* 5 с чем-то - длинная и узкая. И кухня как-то некрасиво воткнулась в гостиную. И еще нужно разобраться с конструктивной схемой - многовато внутренних несущих стен. Но, честно говоря, я не понимаю зачем Вы усложняете себе жизнь - идете к архитектору и по Вашим пожеланиям можно выкрутить 3-4...n-вариантов. И фасады прикинуть... А Вам останется лишь выбрать ;) На самом деле я себе не усложняю жизнь Рисовать планы будущего дома для меня - это удовольствие, которое нельзя стравнить с общением с архитектором, которое все равно будет неизбежно даже с придуманным планом. А попробовать реализовать хотя бы на бумаге свой полет мысли - куда интереснее. Хотя у кого полет мысли отсутсвует - этого не понять. Посилання на коментар Поділитися на інших сайтах More sharing options...
Cvetikraa Опубліковано: 17 жовтня 2011 Автор Поділитись Опубліковано: 17 жовтня 2011 Слежу за вашей темой, хочу себе чтото похожее (разве что сделал бы площадь дома чуть поменьше - наверно за счет уменьшения гостинной) положение санузла стало действительно лучше. по моему проблема топочной - она получилась довольно узкой, и если ставить там ТТ (а он немелкий и займет всю ширину топочной практически) то как пройти мимо котла ? - с одной стороны вход из дома, с другой - выход на улицу, соотв. ТТ гдето посредине. + топливо нужно гдето-хранить. Наверно для топочной нужно чтото более близкое к квадрату. с кладовкой на кухне тоже - она длинная и узкая, хотя для нее терпимо. дверь в кабинет я бы перенес под лестницу и открывал бы его не в кабинет, а наружу. На счет двери в топочной на улице у нас под вопросом, нужна ли она там вообще, так как ТТ предполагается делать как запасной, а основным - использовать газ. Хранить топливо в доме вообще не предполагается, для этого будут на улице другие помещения, разве что вязанку дров. А вот если дверь на улицу убрать, то в конце топочной котел как раз и становиться. А вот на счет кладовки на кухне - то она меня больше чем удовлетворяет: по одну сторону делается большой стелаж на всю стену, по другу - проход. Учитывая, что ширина стелажа обычно не превышает 50-60 см, то остального расстояния - достаточно для комфортного прохода. У меня сейчас в квартире коридор - 140 см шириной и 4 метра длиной, и в нем шкаф на все стену - 50 см шириной, как для коридора - то конечно тесновато (1 комнатная квартира все-таки), но вот если бы это была кладовка - то очень удобно! Посилання на коментар Поділитися на інших сайтах More sharing options...
Маниша Опубліковано: 17 жовтня 2011 Поділитись Опубліковано: 17 жовтня 2011 Как не банально звучит: попробуйте расставить мебель - диван, кресла, телевизор, стол... Мне такое дело помогло при проектировании, сразу стены стали на свои места. А архитектор может быть со своими мыслями или без таковых, а жить в доме Вам. Посилання на коментар Поділитися на інших сайтах More sharing options...
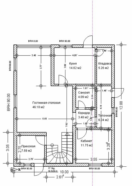
Cvetikraa Опубліковано: 18 жовтня 2011 Автор Поділитись Опубліковано: 18 жовтня 2011 Поскольку в разработанном плане больше двигатся вобщем то некуда, решили его оставить как рабочую версию, но при этом порисовать что-то еще, совсем новое без привязки к старому проекту, но с учетами всех нюансов нашего участка. Новый проект получился совершенно другим, и мне кажется даже лучше предыдущего. Сразу замечу, что учтены все замечания, которые давались в этой ветке и на счет узких и маленьких кладовок-топочных, и на счет узкой гостинной, нет сложных конструкций из внутренних стен, да и с внешним видом получилось гараздо интереснее. Кто что может сказать по поводу такой планировки дома: Посилання на коментар Поділитися на інших сайтах More sharing options...
ionico Опубліковано: 18 жовтня 2011 Поділитись Опубліковано: 18 жовтня 2011 Поскольку в разработанном плане больше двигатся вобщем то некуда, решили его оставить как рабочую версию, но при этом порисовать что-то еще, совсем новое без привязки к старому проекту, но с учетами всех нюансов нашего участка. Новый проект получился совершенно другим, и мне кажется даже лучше предыдущего. Сразу замечу, что учтены все замечания, которые давались в этой ветке и на счет узких и маленьких кладовок-топочных, и на счет узкой гостинной, нет сложных конструкций из внутренних стен, да и с внешним видом получилось гараздо интереснее. Кто что может сказать по поводу такой планировки дома: Я считаю, что в целом всё в порядке с этой планировкой. Имею пару замечаний. В холле на 1 этаже нет удобного места для тумбочки и зеркала. Можно поставить её в промежутке между дверьми в кабинет и топочную. Но в этом случае, она будет заграждать путь к лестнице - будет стоять на пути движения к подъёму/спуску. Исправить это элементарно: лестницу просто отзеркаливаем. Подъем будет начинаться возле двери в с/у. Дверь в топочную можно сделать под лестницей. В этом случае, будет удобное место для тумбочки с зеркалом. И ещё на 1 этаже нет гардеробной. Где будете шубы хранить? 1 Посилання на коментар Поділитися на інших сайтах More sharing options...
Cvetikraa Опубліковано: 18 жовтня 2011 Автор Поділитись Опубліковано: 18 жовтня 2011 Я считаю, что в целом всё в порядке с этой планировкой. Имею пару замечаний. В холле на 1 этаже нет удобного места для тумбочки и зеркала. Можно поставить её в промежутке между дверьми в кабинет и топочную. Но в этом случае, она будет заграждать путь к лестнице - будет стоять на пути движения к подъёму/спуску. Исправить это элементарно: лестницу просто отзеркаливаем. Подъем будет начинаться возле двери в с/у. Дверь в топочную можно сделать под лестницей. В этом случае, будет удобное место для тумбочки с зеркалом. И ещё на 1 этаже нет гардеробной. Где будете шубы хранить? А можно для организации шкафа-прихожей использовать место под лестницей, по крайней мере во втором пролете, где она уже достаточно высоко над полом? Посилання на коментар Поділитися на інших сайтах More sharing options...
ionico Опубліковано: 18 жовтня 2011 Поділитись Опубліковано: 18 жовтня 2011 А можно для организации шкафа-прихожей использовать место под лестницей, по крайней мере во втором пролете, где она уже достаточно высоко над полом? Даже нужно - не пропадать же месту зря. Но обратил внимание на следующее. Я думаю, что лестницу вы изобразили не правильно. Скорее всего, ступеней будет больше. Я насчитал 14 подъёмов с учетом подъема с последней ступеньки на пол 2 этажа. Какая высота этажа от пола до пола? Обычно или 3300 мм. или 3000 мм. Считаем лестницу. Если высота 3300 мм., а высота подступёнка стандартная - 150 мм., то: 3300/150=22 подъема должно быть, а не 14. Если высота подступёнка максимально допустимая в жилом доме - 180 мм., то 3300/150=18,3. Если высота этажа 3000 и высота подступёнка 180, то 3000/180=16,6 подъёмов, но никак не 14. 1 Посилання на коментар Поділитися на інших сайтах More sharing options...
Cvetikraa Опубліковано: 18 жовтня 2011 Автор Поділитись Опубліковано: 18 жовтня 2011 Даже нужно - не пропадать же месту зря. Но обратил внимание на следующее. Я думаю, что лестницу вы изобразили не правильно. Скорее всего, ступеней будет больше. Я насчитал 14 подъёмов с учетом подъема с последней ступеньки на пол 2 этажа. Какая высота этажа от пола до пола? Обычно или 3300 мм. или 3000 мм. Считаем лестницу. Если высота 3300 мм., а высота подступёнка стандартная - 150 мм., то: 3300/150=22 подъема должно быть, а не 14. Если высота подступёнка максимально допустимая в жилом доме - 180 мм., то 3300/150=18,3. Если высота этажа 3000 и высота подступёнка 180, то 3000/180=16,6 подъёмов, но никак не 14. Лестницу мне в автоматическом режиме нарисова ArCon, более детально над количеством ступенек я не задумывалась, просто указала расположение, направление и размеры. Более детально уже рассчитаем при подготовке документации. Главное, что места в помещении, отведенного под лестницу, более чем достаточно, что бы она получилась удобной и комфортной. А тумбоку и зеркало я думаю можно поставить между двумя пролетами лестницы. Ширина хола - 3 метра, ширина пролета - 1-1,1, т.е. около 80 см точно останется для того, чтобы между ними что-то поместилось. И рядом как раз гардероб под лестницей получается. А на счет направления, то, действительно, лестницу лучше зеркально перевернуть - длина свободной стены с дверями в кабинет и топочную больше, чем там где арка в гостинную и вход в санузел. Посилання на коментар Поділитися на інших сайтах More sharing options...
Cvetikraa Опубліковано: 21 жовтня 2011 Автор Поділитись Опубліковано: 21 жовтня 2011 А я снова с обновленным планом, все хочеться сделать как лучше На этот раз изменения связаны с пожеланиями сделать одну трубу-дымоход как для ТТ-котла, так и для камина в гостинной, да еще и так, чтобы теплая труба-дымоход из кирпича отдавала макимум тепла в дом. Может кто-то уже думал над данной задачей, какие у нее могут быть плюсы и минусы при реализации? Ну и собственно изменный план, который учитывает данное пожелание, может кто увидит в нем какие-то минусы, на которые надо обратить внимание: Посилання на коментар Поділитися на інших сайтах More sharing options...
Artyomovets Опубліковано: 21 жовтня 2011 Поділитись Опубліковано: 21 жовтня 2011 разнос санузлов, топочной и кухни по разным углам дома мне не нравится категорически. кроме того, санузел над кабинетом - говорят нельзя у нас. Посилання на коментар Поділитися на інших сайтах More sharing options...
Cvetikraa Опубліковано: 21 жовтня 2011 Автор Поділитись Опубліковано: 21 жовтня 2011 разнос санузлов, топочной и кухни по разным углам дома мне не нравится категорически. Кухня и санузлы располагаются по одной северной стенке здания, расположив стояк по центру этой стенки, я не думаю, что могут быть какие-то проблемы со стоками. А если могут, то какие? А зачем топочную привязывать к санузлам и кухне? P.S. На этой неделе была в гостях в одном доме, где топочная вынесена из дома в подсобное помещение, которое располагалось где-то в 8-10 метров от дома. Все трубы были проложены под землей под фундаментом, в том числе и гарячая вода с бойлера, который находился там же в топочной. Хозяин был очень доволен таким расположением. Посилання на коментар Поділитися на інших сайтах More sharing options...
Рекомендовані повідомлення
Створіть акаунт або увійдіть у нього для коментування
Ви маєте бути користувачем, щоб залишити коментар
Створити акаунт
Зареєструйтеся для отримання акаунта. Це просто!
Зареєструвати акаунтУвійти
Вже зареєстровані? Увійдіть тут.
Увійти зараз