zzr400 Опубліковано: 30 вересня 2011 Автор Поділитись Опубліковано: 30 вересня 2011 Так и не понял где котёл? Дорисовал котел. Под котлом будет медь? Тогда сразу медью разделите первый и второй этаж... Т.е. со стены (или потолка и пола) выводить две подачи и две обратки с краниками. Далее к этим краникам будет подсоеденена медь от котла? По размерам радиаторов и трубам нормально? Посилання на коментар Поділитися на інших сайтах More sharing options...
B.S.V. Опубліковано: 30 вересня 2011 Поділитись Опубліковано: 30 вересня 2011 По размерам радиаторов и трубам нормально? По размерам радиаторов нужно смотреть по теплопотерям. По трубам- с запасом. 1 Посилання на коментар Поділитися на інших сайтах More sharing options...
Игорь&Ира Опубліковано: 30 вересня 2011 Поділитись Опубліковано: 30 вересня 2011 По трубам- с запасом. А хорошо ли с запасом? Или можно/лучше все трубы на размер меньше? Посилання на коментар Поділитися на інших сайтах More sharing options...
Игорь&Ира Опубліковано: 30 вересня 2011 Поділитись Опубліковано: 30 вересня 2011 Дорисовал котел. Схема второго этажа будет? Посилання на коментар Поділитися на інших сайтах More sharing options...
B.S.V. Опубліковано: 30 вересня 2011 Поділитись Опубліковано: 30 вересня 2011 А хорошо ли с запасом? Или можно/лучше все трубы на размер меньше? Как по мне, то первые две, направо, налево запитал бы 25, а на остальные и 20 с головой. Посилання на коментар Поділитися на інших сайтах More sharing options...
Игорь&Ира Опубліковано: 30 вересня 2011 Поділитись Опубліковано: 30 вересня 2011 Как по мне, то первые две, направо, налево запитал бы 25, а на остальные и 20 с головой. А есть какие-то правила подбора труб или всё по наитию? Посилання на коментар Поділитися на інших сайтах More sharing options...
B.S.V. Опубліковано: 30 вересня 2011 Поділитись Опубліковано: 30 вересня 2011 А есть какие-то правила подбора труб или всё по наитию? Если точно, то гидравлическое сопротивление труб и радиаторов правой ветки, должно быть приблизительно такое же, как и левой. Иначе придется балансировать систему с помощью преднастроек радиаторов, или кранов обратки. В данной ситуации-"на глаз", опираясь на опыт. 2 Посилання на коментар Поділитися на інших сайтах More sharing options...
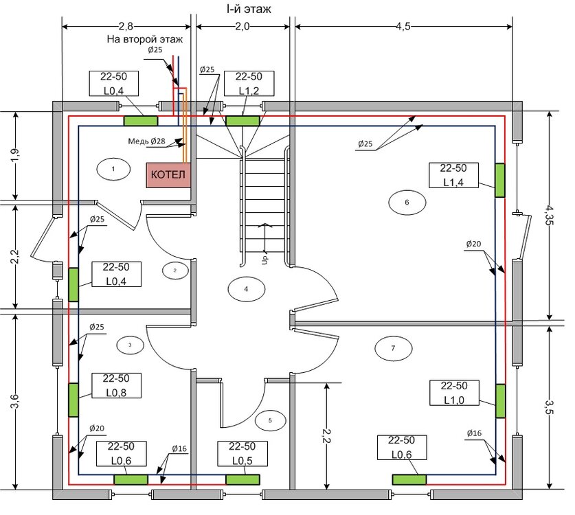
zzr400 Опубліковано: 30 вересня 2011 Автор Поділитись Опубліковано: 30 вересня 2011 Схема второго этажа будет? Так вот же она: По второму- Наверх 25, тройник 20х25х20 ну и т.д. Будет, но позже, второй этаж не так актуален на данный момент, да и там проще. Рисовать некогда - на работе... много работы По размерам радиаторов нужно смотреть по теплопотерям. Смотрел на пример присланный Вами. Себе выбирал пропорционально площадям помещений. Сергей, в начале ветки Вы привели два примера реализации межэтажных стояков. А можно первую фотку (бюджетный вариант) но без изоляции? Или скажите что под изоляцией ТЕСЕ 25 или медь? Посилання на коментар Поділитися на інших сайтах More sharing options...
B.S.V. Опубліковано: 30 вересня 2011 Поділитись Опубліковано: 30 вересня 2011 [quote=zzr400;1196049 Сергей, в начале ветки Вы привели два примера реализации межэтажных стояков. А можно первую фотку (бюджетный вариант) но без изоляции? Или скажите что под изоляцией ТЕСЕ 25 или медь? Тесе 25. Без изоляции, увы нельзя, она одевается до того, как производиться запрессовка фитинга. 1 Посилання на коментар Поділитися на інших сайтах More sharing options...
zzr400 Опубліковано: 5 жовтня 2011 Автор Поділитись Опубліковано: 5 жовтня 2011 Хотелось бы открыть для себя еще две "тайны золотого ключика":) 1. По периметру дома от котла будут идти трубы 25->20->16. По последнему радиатору все понятно на вход подача на выход обратка 16 трубой. А вот как по остальным радиаторам, какой трубой делается параллельное подключение радиаторов? 2. Никак не могу придумать, как монтируется радиатор в ваннойи остальных помещения, где на стенах будет плитка... пересмотрел множество фотографий в альбомах - везде радиаторы крепятся на оштукатуренную стену. А как потом? Плитка клеится на крепление? Или заранее под крепление что-то подкладывается на толщину плитки и перед облицовкой крепления демонтируются? Или все намного проще? Посилання на коментар Поділитися на інших сайтах More sharing options...
troll_9000 Опубліковано: 5 жовтня 2011 Поділитись Опубліковано: 5 жовтня 2011 2. Никак не могу придумать, как монтируется радиатор в ванной[/font][/color]и остальных помещения, где на стенах будет плитка... пересмотрел множество фотографий в альбомах - везде радиаторы крепятся на оштукатуренную стену. А как потом? Штукатурится, вешаетс крепеж с радиатором, вешается радиатор, под него подводятся водорозетки, алебастрятся, радиатор и крепежи снимаются, при укладке плитки плиточник сверлит отверстия там, где дюбеля. После плитки в отверстия закручиваются предварительно снятые гвоздики, т.о. ставится крепеж, а на него радиатор. З.ы. Сорри за очептки, коньяк, видите ли Посилання на коментар Поділитися на інших сайтах More sharing options...
zzr400 Опубліковано: 5 жовтня 2011 Автор Поділитись Опубліковано: 5 жовтня 2011 Штукатурится, вешаетс крепеж с радиатором, вешается радиатор, под него подводятся водорозетки, алебастрятся, В этот момент времени трубы подсоединены к радиатору? радиатор и крепежи снимаются, при укладке плитки плиточник сверлит отверстия там, где дюбеля. После плитки в отверстия закручиваются предварительно снятые гвоздики, т.о. ставится крепеж, а на него радиатор. При такой последовательности не получится что радиатор не достает до труб на толщину плитки и клея? Посилання на коментар Поділитися на інших сайтах More sharing options...
B.S.V. Опубліковано: 6 жовтня 2011 Поділитись Опубліковано: 6 жовтня 2011 При такой последовательности не получится что радиатор не достает до труб на толщину плитки и клея? 1.Получиться 2. К более раннему вопросу:"на первом фото пример, на втором она же. 1 Посилання на коментар Поділитися на інших сайтах More sharing options...
zzr400 Опубліковано: 6 жовтня 2011 Автор Поділитись Опубліковано: 6 жовтня 2011 2. К более раннему вопросу:"на первом фото пример, на втором она же. Спасибо, Сергей! Значит таки правильно думал, что должна быть подложка на толщину плитки и клея А как быть с диаметрами труб для подключения радиаторов, достаточно 16 или лучше подключать 20-й трубой? И как бороться с контрастом краника и фитинга Тесе? Посилання на коментар Поділитися на інших сайтах More sharing options...
B.S.V. Опубліковано: 6 жовтня 2011 Поділитись Опубліковано: 6 жовтня 2011 Спасибо, Сергей! Значит таки правильно думал, что должна быть подложка на толщину плитки и клея А как быть с диаметрами труб для подключения радиаторов, достаточно 16 или лучше подключать 20-й трубой? И как бороться с контрастом краника и фитинга Тесе? Я использую уголок 16х1/2* ВР и нипель нержавейка 1/2*х1/2* 80 мм (если плитка, то 100 мм). Более качественные фото найдете в "Работе". Конечно дороже, но лучше сделать один раз, чем оно будет резать глаз. 1 Посилання на коментар Поділитися на інших сайтах More sharing options...
naupv Опубліковано: 6 жовтня 2011 Поділитись Опубліковано: 6 жовтня 2011 Я использую уголок 16х1/2* ВР и нипель нержавейка 1/2*х1/2* 80 мм (если плитка, то 100 мм). Более качественные фото найдете в "Работе". Конечно дороже, но лучше сделать один раз, чем оно будет резать глаз. Но к сожалению у Вас резьба на уголке прячется под штукатурку. Наверное проблем еще не было ? Посилання на коментар Поділитися на інших сайтах More sharing options...
B.S.V. Опубліковано: 6 жовтня 2011 Поділитись Опубліковано: 6 жовтня 2011 Но к сожалению у Вас резьба на уголке прячется под штукатурку. Наверное проблем еще не было ? Нужно просто ответственно относиться к своей работе, чего и Вам желаю. Посилання на коментар Поділитися на інших сайтах More sharing options...
murava Опубліковано: 6 жовтня 2011 Поділитись Опубліковано: 6 жовтня 2011 Но к сожалению у Вас резьба на уголке прячется под штукатурку. Наверное проблем еще не было ? У меня вобщем-то та же картина - резьбы уходят в штукатурку. Собственно, проблем не вижу - латунь в фитиингах, латунь в удлинителях + хороший анаэроб - и я думаю. что рецидивов не должно быть. Смесители-унибоксы скрытого монтажа для душевых монтируются по такому же принципу - напаклевал, закрутил, заштукатурил - и это не вызывает опасений, даже с оглядки на то, что вода там куда как агрессивней : горячая, кислорода побольше, протоки повыше. 1 Посилання на коментар Поділитися на інших сайтах More sharing options...
zzr400 Опубліковано: 9 жовтня 2011 Автор Поділитись Опубліковано: 9 жовтня 2011 Позади трудовая суббота... Ну что сказать... Не Боги горшки лепят. При наличии времени и желания все реализуемо. Радиаторы повесились как родные Монтировали вдвоем с женой. Я размечал линии и крестики под отверстия, бурил перфоратором отверстия, закручивал винты, навешивал радиаторы. Жена забивала анкера, наживляла винты в анкера и нацепляла пластиковые звукоизоляционные скобы. В процессе монтажа возникла парочка вопросов: 1. Крепление радиатора Kermi (фото 2) дает возможность установить радиатор на 30 или 50 мм от стены. Посмотрел по альбомам Гуру - вроде как везде выбран отступ 30, да и жена со своим "и так торчат" настояла на 30. А как все-таки правильно и почему? 2. А что если в помещениях, где будет плитка, устанавливать радиатор на расстоянии 50 мм и клеить плитку поверху крепления? Если единственным правильным способ установки является способ описанный B.S.V. то, как на этапе монтажа знать какой толщины будет клей и плитка? Дальше по плану штробление стен, окончательная подготовка пола.... Посилання на коментар Поділитися на інших сайтах More sharing options...
naupv Опубліковано: 9 жовтня 2011 Поділитись Опубліковано: 9 жовтня 2011 Нужно просто ответственно относиться к своей работе, чего и Вам желаю. Большое человеческое спасибо за пожелание! Посилання на коментар Поділитися на інших сайтах More sharing options...
B.S.V. Опубліковано: 9 жовтня 2011 Поділитись Опубліковано: 9 жовтня 2011 2. А что если в помещениях, где будет плитка, устанавливать радиатор на расстоянии 50 мм и клеить плитку поверху крепления? Если единственным правильным способ установки является способ описанный B.S.V. то, как на этапе монтажа знать какой толщины будет клей и плитка? Дальше по плану штробление стен, окончательная подготовка пола.... Такой вариант, как показывал ранее, возможен только с проверенными отделочниками. Там, если обратили внимание, даже выводы радиаторов не заделаны. В основном, вешаем прямо на стену на дальний крепеж, заделываем выводы и запрещаем снимать крепежи. Плиточники делают разрезы в плитке, и укладывают ее прямо на крепеж. 1 Посилання на коментар Поділитися на інших сайтах More sharing options...
zzr400 Опубліковано: 10 жовтня 2011 Автор Поділитись Опубліковано: 10 жовтня 2011 Такой вариант, как показывал ранее, возможен только с проверенными отделочниками.... Очередное спасибо! Значит нужно будет "повернуть" крепления 2-х радиторов. Посилання на коментар Поділитися на інших сайтах More sharing options...
zzr400 Опубліковано: 5 листопада 2011 Автор Поділитись Опубліковано: 5 листопада 2011 А возможно ли за немного "Русcкого стандарта" или денег взять у кого-то инструменты ТЕСЕ на выходные? Естественно с залогом Посилання на коментар Поділитися на інших сайтах More sharing options...
Рекомендовані повідомлення
Створіть акаунт або увійдіть у нього для коментування
Ви маєте бути користувачем, щоб залишити коментар
Створити акаунт
Зареєструйтеся для отримання акаунта. Це просто!
Зареєструвати акаунтУвійти
Вже зареєстровані? Увійдіть тут.
Увійти зараз