ребята Опубліковано: 6 листопада 2011 Поділитись Опубліковано: 6 листопада 2011 Предфинальный вариант! Что скажете? супер! как живой! думаю, вы столько энергии вложили в свои мечты о доме, что реализовать их (построить дом) будет намного проще! удачной Вам стройки! ПыСы второй этаж очень логичен и функционален, но немного неуютен (глубокое ИМХО). тут уже писали о том, что комнаты напротив лестницы маловаты, вытянуты и темноваты (одно окно на узкой стороне). это будут детские, как я понимаю. вы варианты расстановки мебели делали? просто если четко понимать какая мебель будет в комнатах, легче играться с их формой. например. в детских должны быть рабочая и спальная зоны (в идеале еще игровая и зона хранения). в вашем варианте стол будет возле окна, кровать - возле двери или посередине стены (неуютно, как по мне), шкаф возле двери, сужая и без того вытянутое пространство. плюс у детей же есть увлечения, под которые нужно выделить дополнительное место в комнатах. оффтоп: у меня дочке 3 года, так она уже выбрала себе мебель в детскую (такой немаленький комплектик, в вашем варианте вряд ли поместится). уже полгода она регулярно достает каталог и спрашивает: папа, а когда ты мне это подаришь? можешь подарить вот это - но только малиновое? 1 Посилання на коментар Поділитися на інших сайтах More sharing options...
Мечты сбываются Опубліковано: 6 листопада 2011 Автор Поділитись Опубліковано: 6 листопада 2011 супер! как живой! думаю, вы столько энергии вложили в свои мечты о доме, что реализовать их (построить дом) будет намного проще! удачной Вам стройки! ПыСы второй этаж очень логичен и функционален, но немного неуютен (глубокое ИМХО). тут уже писали о том, что комнаты напротив лестницы маловаты, вытянуты и темноваты (одно окно на узкой стороне). это будут детские, как я понимаю. вы варианты расстановки мебели делали? просто если четко понимать какая мебель будет в комнатах, легче играться с их формой. например. в детских должны быть рабочая и спальная зоны (в идеале еще игровая и зона хранения). в вашем варианте стол будет возле окна, кровать - возле двери или посередине стены (неуютно, как по мне), шкаф возле двери, сужая и без того вытянутое пространство. плюс у детей же есть увлечения, под которые нужно выделить дополнительное место в комнатах. оффтоп: у меня дочке 3 года, так она уже выбрала себе мебель в детскую (такой немаленький комплектик, в вашем варианте вряд ли поместится). уже полгода она регулярно достает каталог и спрашивает: папа, а когда ты мне это подаришь? можешь подарить вот это - но только малиновое? Спасибо. Вложено в этот проект действительно очень много... Да, это детские...стол под окном, кровать посредине стены, а шкаф у стенки возле двери и стелажик за дверью...а комната справа будет полностью превращена в игровую со шведской стенкой, игрушками и т.д... 1 Посилання на коментар Поділитися на інших сайтах More sharing options...
achorniy Опубліковано: 7 листопада 2011 Поділитись Опубліковано: 7 листопада 2011 Да, это детские...стол под окном, кровать посредине стены, а шкаф у стенки возле двери и стелажик за дверью...а комната справа будет полностью превращена в игровую со шведской стенкой, игрушками и т.д... Игорь, а насчет варианта детской "без столов" не думали - ну например чтоб уроки учить в отдельной комнате, а спальня была просто спальней, тогда там проще будет с мебелью и местом будет (как вариант - в той-же игровой). (тут конечно может быть конфликт когда один ребенок хочет играть, а другому учить уроки надо) Посилання на коментар Поділитися на інших сайтах More sharing options...
Мечты сбываются Опубліковано: 7 листопада 2011 Автор Поділитись Опубліковано: 7 листопада 2011 Игорь, а насчет варианта детской "без столов" не думали - ну например чтоб уроки учить в отдельной комнате, а спальня была просто спальней, тогда там проще будет с мебелью и местом будет (как вариант - в той-же игровой). (тут конечно может быть конфликт когда один ребенок хочет играть, а другому учить уроки надо) Не думал ))) так как уроки должны делаться в тишине...)) да и под окном будет даже не стол...а столешница шириной 40-45 см заподлицо с подоконником на всю длину стены...так что много места она не займет...а функционала будет нормально... Посилання на коментар Поділитися на інших сайтах More sharing options...
Мечты сбываются Опубліковано: 23 листопада 2011 Автор Поділитись Опубліковано: 23 листопада 2011 А вот и финальный вариант, который уже проходит согласование в Архитектуре Спасибо всем за критику и дельные советы...многие из них принял к сведению Посилання на коментар Поділитися на інших сайтах More sharing options...
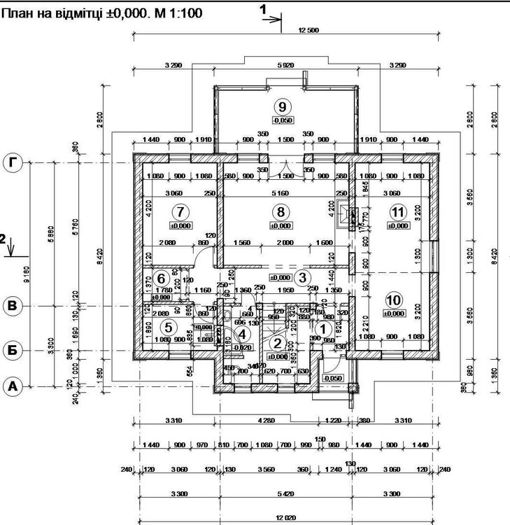
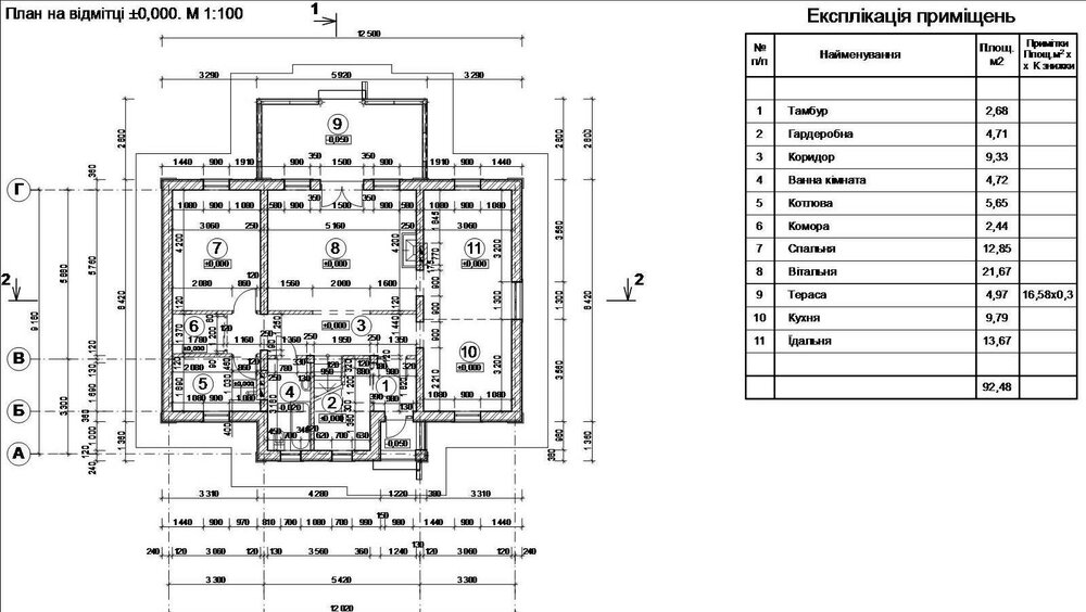
Shroud Опубліковано: 26 листопада 2011 Поділитись Опубліковано: 26 листопада 2011 А критика еще принимается? Нет? - и суда нет. :D Да? - советую переделать проект. ;) Причина? Большинство помещений как кельи узкие и длинные. Соотношение сторон 3:5 или почти 1:2 - не есть гуд - проживание в них покажет, что они не удобные. Санузлы 4 и 9 совсем не удобны. Кухня-столовая - уж ооочень длинная. Имхо: я считаю, что помещениям желательно стремиться к квадратам в плане. Ваши размеры уменшаться еще на 4-5 см за счет штукатурки и плитки на стенах. Есть ли у вас возможность сделать дом более широким и меньшим в глубину? Участок позволяет? Все-таки строить с нуля и делать ошибки советских проектировщиков квартир... ... и коридор без освещения (думаю, что внутренние двери со стекляными вставками спасут ситуацию, но не при узких комнатах). Планировка сама по себе очень хороша, только комнаты... (см.выше) Все вышенаписанное - мое личное мнение. Красивые слова не верны - верные слова не красивы. (с) Дао Де Дзин. 1 Посилання на коментар Поділитися на інших сайтах More sharing options...
Мечты сбываются Опубліковано: 26 листопада 2011 Автор Поділитись Опубліковано: 26 листопада 2011 Красивые слова не верны - верные слова не красивы. (с) Дао Де Дзин. Спасибо за критику... )) Комнаты просчитывал из потребностей...крутилось-вертелось всё...так что тут нам всего будет вполне достаточно - ориентировались на конкретные помещения, предварительно расставив мебель... Кухна-столовая...также планировалась как совмещённое помещение: кухня буквой П и большой обеденный стол на 6 персон, трансформирующийся на 10 )) всё также становится оч. Хорошо )) Освещение будет в коридоре и на 1-м и на 2-м - большое витражное окно на лестнице... А большего нам и не надо! Главное комнаты сделать светлыми внутри сами по себе... Посилання на коментар Поділитися на інших сайтах More sharing options...
Батяня Опубліковано: 26 листопада 2011 Поділитись Опубліковано: 26 листопада 2011 Ваш проект похож на тот,что мы приобрели для себя. Но в нашем варианте как-то больше пространства, хотя каждому своё. Но если интересно, посмотрите на www.alfaplan.com.ua проект 78-А называется Петровское барокко. Посилання на коментар Поділитися на інших сайтах More sharing options...
Мечты сбываются Опубліковано: 27 листопада 2011 Автор Поділитись Опубліковано: 27 листопада 2011 Ваш проект похож на тот,что мы приобрели для себя. Но в нашем варианте как-то больше пространства, хотя каждому своё. Но если интересно, посмотрите на www.alfaplan.com.ua проект 78-А называется Петровское барокко. Еле нашёл )) Неплохо...что очень не понравилось, так это размещение лестницы... и много эркеров, что только удорожает строительство... на 2-м этаже спальни хороши )) возможно и я немного переделаю... Посилання на коментар Поділитися на інших сайтах More sharing options...
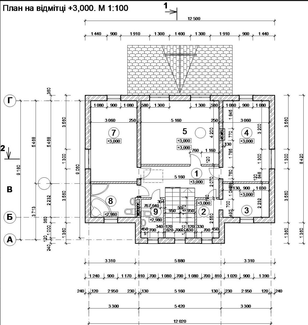
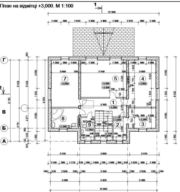
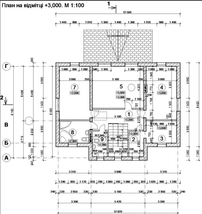
Мечты сбываются Опубліковано: 27 листопада 2011 Автор Поділитись Опубліковано: 27 листопада 2011 Ребята, Немного переделал 2-й этаж...что скажете? Родительскую перенёс в центр, объеденив 2 детских, а детские теперь по бокам (площадь их по 16,5 квадратов). Расширил коридор-хол и сделал вход в увеличенный с/у с коридора. 2-й с/у будет местить унитаз, умывальник и стиралку. Также увеличил немного гардероб (3) 1-й этаж остался без изменений...только дымоход немного передвинулся в котельной... Надеюсь ещё успею внести изменения...проект-то уже в архитектуре Посилання на коментар Поділитися на інших сайтах More sharing options...
MAG-I-YA Опубліковано: 27 листопада 2011 Поділитись Опубліковано: 27 листопада 2011 Ребята, Немного переделал 2-й этаж...что скажете? 2-й с/у будет местить унитаз, умывальник и стиралку. Также увеличил немного гардероб (3) Игорь, вы планируете стирать на 2-м этаже и там же сушить? Если да, то в какой комнате? Если нет, то чистое мокрое белье тяжелее, чем сухое грязное ;). 1 Посилання на коментар Поділитися на інших сайтах More sharing options...
Мечты сбываются Опубліковано: 27 листопада 2011 Автор Поділитись Опубліковано: 27 листопада 2011 Игорь, вы планируете стирать на 2-м этаже и там же сушить? Если да, то в какой комнате? Если нет, то чистое мокрое белье тяжелее, чем сухое грязное ;). Пока планирую там же на 2-м )) в гладильной сделать сушку...а также как вариант рассматриваю поставить 2 стиралки: +1 в котельной и сушить на улице большие вещи, а вторая там, где и планирую сейчас...для более мелких вещей...но это думаю не самый принципиальный вопрос... что скажешь о перепланировке? Посилання на коментар Поділитися на інших сайтах More sharing options...
MAG-I-YA Опубліковано: 27 листопада 2011 Поділитись Опубліковано: 27 листопада 2011 Пока планирую там же на 2-м )) в гладильной сделать сушку...а также как вариант рассматриваю поставить 2 стиралки: +1 в котельной и сушить на улице большие вещи, а вторая там, где и планирую сейчас...для более мелких вещей...но это думаю не самый принципиальный вопрос... что скажешь о перепланировке? Намного вкуснее, чем было . Терпеть не могу узкие комнаты (грустные воспоминания детства ). Но намекала еще, что 1 ванна на 4 взрослых человека (лет через ..дцать) - ИМХО, маловато. Вот вместо стиралки и лепила бы туда душ . 1 Посилання на коментар Поділитися на інших сайтах More sharing options...
Мечты сбываются Опубліковано: 27 листопада 2011 Автор Поділитись Опубліковано: 27 листопада 2011 Намного вкуснее, чем было . Терпеть не могу узкие комнаты (грустные воспоминания детства ). Но намекала еще, что 1 ванна на 4 взрослых человека (лет через ..дцать) - ИМХО, маловато. Вот вместо стиралки и лепила бы туда душ . Душ будет на первом этаже вместо ванной )) Посилання на коментар Поділитися на інших сайтах More sharing options...
Музей Опубліковано: 27 листопада 2011 Поділитись Опубліковано: 27 листопада 2011 Про стирки. :D Самые большие и тяжелые вещи - это постельное бельё. Спальни находятся на 2-м этаже. Поэтому и стиралку лучше разместить на 2-м этаже. Не пожалейте денег и купите стиралку с сушкой. Во первых практично. Надо только немного досушить на "веревочке". Конечно, это будет немного портить фэншуй в ванной, но это меньшее из зол. В Ванной есть окно, вполне достаточо для высушивания тех вещей, которые нельзя сушить в машине. Проверено. Кроме того махровые полотенца после сушки пушистые и мягкие. Ну, а пальто и костюмы никто не стирает, их отправляют в химчистку. 1 Посилання на коментар Поділитися на інших сайтах More sharing options...
Мечты сбываются Опубліковано: 27 листопада 2011 Автор Поділитись Опубліковано: 27 листопада 2011 (змінено) Про стирки. :D Самые большие и тяжелые вещи - это постельное бельё. Спальни находятся на 2-м этаже. Поэтому и стиралку лучше разместить на 2-м этаже. Не пожалейте денег и купите стиралку с сушкой. Во первых практично. Надо только немного досушить на "веревочке". Конечно, это будет немного портить фэншуй в ванной, но это меньшее из зол. В Ванной есть окно, вполне достаточо для высушивания тех вещей, которые нельзя сушить в машине. Проверено. Кроме того махровые полотенца после сушки пушистые и мягкие. Ну, а пальто и костюмы никто не стирает, их отправляют в химчистку. Что есть то есть как оцените изменения... уже в архитектуре договорился, что подвезу несколько перепечатанных листиков...осталось ещё только с архитектором завтра согласовать и распечатать )) На первом этаже изменения каснулись только наполнения с/у...а на втором - Родительскую перенёс в центр, объеденив 2 детских, а детские теперь по бокам (площадь их по 16,5 квадратов). Расширил коридор-хол и сделал вход в увеличенный с/у с коридора. 2-й с/у будет местить унитаз, умывальник и стиралку. Также увеличил немного гардероб (3) Как по мне....теперь это самое ОНО и сомнения уже не терзают ... Змінено 27 листопада 2011 користувачем Мечты сбываются Посилання на коментар Поділитися на інших сайтах More sharing options...
Музей Опубліковано: 27 листопада 2011 Поділитись Опубліковано: 27 листопада 2011 Что есть то есть как оцените изменения... уже в архитектуре договорился, что подвезу несколько перепечатанных листиков...осталось ещё только с архитектором завтра согласовать и распечатать )) Вам очень правильно посоветовали по узким комнатам. Я сама хотела об этом Вам писать, но был Ваш пост, в котором Вы твёрдо заявили, что всё уже решено и отправлено в Архитектуру. Но теперь намного лучше. Я только не вижу смысла ставить двери между помещениями 2 и 3. Уж лучше делить это просто конструкциями шкафов. И дешевле и можно менять, как угодно. В неосвещаемом коридоре можно установить датчик движения. Как только входят в коридор включается свет, а затем сам и выключается. 1 Посилання на коментар Поділитися на інших сайтах More sharing options...
Мечты сбываются Опубліковано: 27 листопада 2011 Автор Поділитись Опубліковано: 27 листопада 2011 Вам очень правильно посоветовали по узким комнатам. Я сама хотела об этом Вам писать, но был Ваш пост, в котором Вы твёрдо заявили, что всё уже решено и отправлено в Архитектуру. Но теперь намного лучше. Я только не вижу смысла ставить двери между помещениями 2 и 3. Уж лучше делить это просто конструкциями шкафов. И дешевле и можно менять, как угодно. В неосвещаемом коридоре можно установить датчик движения. Как только входят в коридор включается свет, а затем сам и выключается. Ну, с архитектурой получилось - невозможно возможно (с) Всё учтено...дверей между 2 и 3 нет...там просто проём... полностью убрать стенку нет возможности - она несущая... А в коридоре будет достаточно дневного света через витражное лестничное окно, которое тянется с 1 на 2-й Посилання на коментар Поділитися на інших сайтах More sharing options...
Елена А. Опубліковано: 27 листопада 2011 Поділитись Опубліковано: 27 листопада 2011 Ну и опять мои 5 копеек. В эти выходные уже были с семьей в своем доме, дверь в гостиную нужна обязательно, потому как лестничная клетка дает такую акустику, что даже тихий разговор слышно на втором этаже. А на кухне за закрытыми дверями не слышно даже музыку (достаточно громкую). Так что , двери хоть и дорого , но дорогого стоят. 1 Посилання на коментар Поділитися на інших сайтах More sharing options...
Мечты сбываются Опубліковано: 27 листопада 2011 Автор Поділитись Опубліковано: 27 листопада 2011 Ну и опять мои 5 копеек. В эти выходные уже были с семьей в своем доме, дверь в гостиную нужна обязательно, потому как лестничная клетка дает такую акустику, что даже тихий разговор слышно на втором этаже. А на кухне за закрытыми дверями не слышно даже музыку (достаточно громкую). Так что , двери хоть и дорого , но дорогого стоят. Поздравляем с этим событием )) Как-то не оч хочется закрывать это пространство...я б вообще, как бы не бредово это звучало, сделал бы гостинную-кухню-столовую одним целым...но есть ряд технических моментов, да и здравый смысл преобладает всё-таки А так, надеюсь, учёл все ньюансы... Посилання на коментар Поділитися на інших сайтах More sharing options...
Елена А. Опубліковано: 27 листопада 2011 Поділитись Опубліковано: 27 листопада 2011 Поздравляем с этим событием )) Как-то не оч хочется закрывать это пространство...я б вообще, как бы не бредово это звучало, сделал бы гостинную-кухню-столовую одним целым...но есть ряд технических моментов, да и здравый смысл преобладает всё-таки А так, надеюсь, учёл все ньюансы... Ну по нюансам, я решила во все комнаты наверху по комплекту беруш купить (шутка), просто после отбоя взрослое население переместилось на кухню и террасу . Главное что-бы были пути отступления. 1 Посилання на коментар Поділитися на інших сайтах More sharing options...
Shroud Опубліковано: 27 листопада 2011 Поділитись Опубліковано: 27 листопада 2011 Согласен с MAG-I-YA по поводу дополнительного душа на втором этаже. А в общем все стало лучше! По опыту знаю, что идеального проекта не бывает, все-равно хочется переделывать переделанное. :D Может только небольшое предложение... В родительской спальне входную дверь переместить по серёдке стены (и проем для нее предусмотреть 1.5м?) + сместить окна к стенам (по ходу окна на 1 этаже можна двигать, а можна и не... - зависит от вкуса, там все-таки тераса крытая), чтобы простенок увеличить до 2 метров, тогда можна примостить двуспальную кровать (смотреть приложение)... Посилання на коментар Поділитися на інших сайтах More sharing options...
ребята Опубліковано: 4 грудня 2011 Поділитись Опубліковано: 4 грудня 2011 А в общем все стало лучше! По опыту знаю, что идеального проекта не бывает, все-равно хочется переделывать переделанное. :D Может только небольшое предложение... В родительской спальне входную дверь переместить по серёдке стены ... чтобы простенок увеличить до 2 метров, тогда можна примостить двуспальную кровать (смотреть приложение)... я долго думала 8-) наконец решила-таки вставить и своих пять копеек мне чего-то родительская спальня больше на детскую похожа. не могу представить там комфортного места для двуспальной кровати. а вот учебная или игровая - класс. светлая, просторная. дверь туда часто будет открыта и солнечный свет будет освещать коридор. спальней родителей может стать комната справа. в ней будет зона гардеробной, в которой расположится также гладильная доска. рядом - комнатка со стиралкой/сушилкой. в санузле вместо стиралки расположится душевой отсек. и всем будет удобно. у мамы под рукой будет хозяйственный уголок. папа с кровати сможет следить одновременно за телевизором и за мамой. дети проникнутся духом коллективизма ПыСы хочу сказать спасибо участникам обсуждения за детализацию процесса стирки-сушки-глажки белья. теперь я могу аргументировать мужу свое нежелание ставить стиралку в подвале 1 Посилання на коментар Поділитися на інших сайтах More sharing options...
Музей Опубліковано: 5 грудня 2011 Поділитись Опубліковано: 5 грудня 2011 Может только небольшое предложение... В родительской спальне входную дверь переместить по серёдке стены (и проем для нее предусмотреть 1.5м?) + сместить окна к стенам (по ходу окна на 1 этаже можна двигать, а можна и не... - зависит от вкуса, там все-таки тераса крытая), чтобы простенок увеличить до 2 метров, тогда можна примостить двуспальную кровать (смотреть приложение)... Не стоит ставить кровать изголовьем к окнам. На картинках выглядит красиво, а на деле это очень неуютно. Самый приятный вариант, как это ни странно, когда перед глазами большое окно с видом на запад, сбоку тоже хорошо. Поэтому дверь лучше справа. вот, пару фоток для вдохновения хозяевам. 7 Посилання на коментар Поділитися на інших сайтах More sharing options...
Мечты сбываются Опубліковано: 5 грудня 2011 Автор Поділитись Опубліковано: 5 грудня 2011 я долго думала 8-) наконец решила-таки вставить и своих пять копеек мне чего-то родительская спальня больше на детскую похожа. не могу представить там комфортного места для двуспальной кровати. а вот учебная или игровая - класс. светлая, просторная. дверь туда часто будет открыта и солнечный свет будет освещать коридор. спальней родителей может стать комната справа. в ней будет зона гардеробной, в которой расположится также гладильная доска. рядом - комнатка со стиралкой/сушилкой. в санузле вместо стиралки расположится душевой отсек. и всем будет удобно. у мамы под рукой будет хозяйственный уголок. папа с кровати сможет следить одновременно за телевизором и за мамой. дети проникнутся духом коллективизма ПыСы хочу сказать спасибо участникам обсуждения за детализацию процесса стирки-сушки-глажки белья. теперь я могу аргументировать мужу свое нежелание ставить стиралку в подвале Спасибо за интерес и 5 копеек...они в своё время помогли переосмыслить немного проект... Вы последний вариант проекта посмотрели? там просто отдельной игровой в плане нет (( Если нашу спальную делать справа, то у детей тогда будут неодиаковые спальни )) подерутся! А так у нас с женой спальня посредине - выходящая в сад и на ЮГ...размер спальни, как по мне - огромные...кровать будет посредине правой стены...а напротив конструкция на всю стену (полочно-шкафного типа с небольшой глубиной)...посредине будет телевизор...по бокам кровати тумбочки и вот и вся мебель!!! Хочу простора... Одна детская будет выходить на Юг и Восток, а вторая на Юг и Запад 2 Посилання на коментар Поділитися на інших сайтах More sharing options...
Рекомендовані повідомлення
Створіть акаунт або увійдіть у нього для коментування
Ви маєте бути користувачем, щоб залишити коментар
Створити акаунт
Зареєструйтеся для отримання акаунта. Це просто!
Зареєструвати акаунтУвійти
Вже зареєстровані? Увійдіть тут.
Увійти зараз