zhupanenko Опубліковано: 5 травня 2013 Автор Поділитись Опубліковано: 5 травня 2013 вместо плит 6,6,5 тоже будет монолит Zhupan-plity_last.pdf 1 Посилання на коментар Поділитися на інших сайтах More sharing options...
blacktigra Опубліковано: 5 травня 2013 Поділитись Опубліковано: 5 травня 2013 zhupanenko, спасибо. У меня дилемма по поводу лестницы, было интересно как у вас обыграно это место. Посилання на коментар Поділитися на інших сайтах More sharing options...
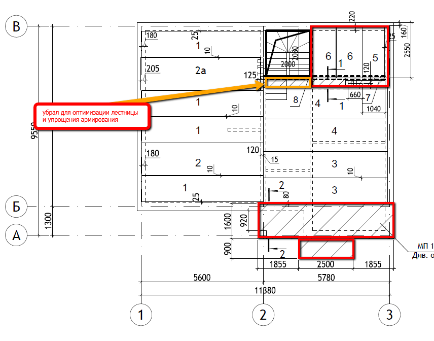
zhupanenko Опубліковано: 5 травня 2013 Автор Поділитись Опубліковано: 5 травня 2013 zhupanenko, спасибо. У меня дилемма по поводу лестницы, было интересно как у вас обыграно это место. мне пришлось убрать кусок монолита и на втором этаже сделать дверь под углом (планировку кто-то бросал выше) 1 Посилання на коментар Поділитися на інших сайтах More sharing options...
EnRent Опубліковано: 6 травня 2013 Поділитись Опубліковано: 6 травня 2013 на втором этаже сделать дверь под углом (планировку кто-то бросал выше) Очень рад, что Вам пригодилось моё решение по лестнице;) Посилання на коментар Поділитися на інших сайтах More sharing options...
blacktigra Опубліковано: 6 травня 2013 Поділитись Опубліковано: 6 травня 2013 мне пришлось убрать кусок монолита и на втором этаже сделать дверь под углом (планировку кто-то бросал выше) Лестница получилась без забежных ступеней? Посилання на коментар Поділитися на інших сайтах More sharing options...
zhupanenko Опубліковано: 6 травня 2013 Автор Поділитись Опубліковано: 6 травня 2013 Лестница получилась без забежных ступеней? по предварительным подсчетам - да. еще думаю делать ли ступеньку между платформами, ну и окончательная ширина-высота каждой Посилання на коментар Поділитися на інших сайтах More sharing options...
RAY9919 Опубліковано: 6 травня 2013 Поділитись Опубліковано: 6 травня 2013 Добрый вечер.Подскажите у вас дом на сколько я понял утоплен в самый конец участка,у меня тоже такая же ситуация и с 12-00 постоянно светит солнце, скажите у вас уже есть какие-нибудь идеии обустройства участка перед домом,может быть видели похожую ситуацию подскажите Посилання на коментар Поділитися на інших сайтах More sharing options...
zhupanenko Опубліковано: 6 травня 2013 Автор Поділитись Опубліковано: 6 травня 2013 Добрый вечер.Подскажите у вас дом на сколько я понял утоплен в самый конец участка,у меня тоже такая же ситуация и с 12-00 постоянно светит солнце, скажите у вас уже есть какие-нибудь идеии обустройства участка перед домом,может быть видели похожую ситуацию подскажите не совсем понял, какая связь между размещением дома по осям участка и солнцем? важно ведь на какую сторону света ориентирован тот или иной фасад. по обустройству участка пока вообще не думали. но я уже предвижу эти тяжелые переговоры с женой - она хочет хотя бы минимальную грядку, а мне не очень хочется ходить через нее каждый день. в решении очень надеюсь на западные журналы (у них нет грядок) Посилання на коментар Поділитися на інших сайтах More sharing options...
RAY9919 Опубліковано: 6 травня 2013 Поділитись Опубліковано: 6 травня 2013 Я имел ввиду,что у меня как и у вас дом в самом конце участка,за домом практически нет места и получается,что перед домом негде укрыться от солнца,нет тени Посилання на коментар Поділитися на інших сайтах More sharing options...
YaOlejka Опубліковано: 6 травня 2013 Поділитись Опубліковано: 6 травня 2013 Я имел ввиду,что у меня как и у вас дом в самом конце участка,за домом практически нет места и получается,что перед домом негде укрыться от солнца,нет тениС чего Вы решили что Ваш участок и дом ориентирован точно также как у ТС? Посилання на коментар Поділитися на інших сайтах More sharing options...
zhupanenko Опубліковано: 6 травня 2013 Автор Поділитись Опубліковано: 6 травня 2013 Я имел ввиду,что у меня как и у вас дом в самом конце участка,за домом практически нет места и получается,что перед домом негде укрыться от солнца,нет тени (ссылка на изображение устарела) у меня так - вход в дом с юга, серверная стена глухая, на восточной маленькие окна в санузлах и одно небольшое в спальне. на западе - крытая терраса и много окон/дверей Посилання на коментар Поділитися на інших сайтах More sharing options...
RAY9919 Опубліковано: 6 травня 2013 Поділитись Опубліковано: 6 травня 2013 Но на сколько я понял у вас тоже основная часть участка перед домом пустая,вот я и хотел узнать как вы ее будете обустраивать,ту же зону отдыха,сад,может быть бассейн и т.д. Посилання на коментар Поділитися на інших сайтах More sharing options...
zhupanenko Опубліковано: 6 травня 2013 Автор Поділитись Опубліковано: 6 травня 2013 Но на сколько я понял у вас тоже основная часть участка перед домом пустая,вот я и хотел узнать как вы ее будете обустраивать,ту же зону отдыха,сад,может быть бассейн и т.д. хочу красивый газон и много скульптур Посилання на коментар Поділитися на інших сайтах More sharing options...
RAY9919 Опубліковано: 6 травня 2013 Поділитись Опубліковано: 6 травня 2013 Я понял спасибо Посилання на коментар Поділитися на інших сайтах More sharing options...
ZIZU Опубліковано: 7 травня 2013 Поділитись Опубліковано: 7 травня 2013 по обустройству участка пока вообще не думали. но я уже предвижу эти тяжелые переговоры с женой - она хочет хотя бы минимальную грядку, а мне не очень хочется ходить через нее каждый день. у них нет грядок) грядку в резервацию, за высокий паркан... я уже со своей воюю... Посилання на коментар Поділитися на інших сайтах More sharing options...
zhupanenko Опубліковано: 7 травня 2013 Автор Поділитись Опубліковано: 7 травня 2013 отрекомендую еще один онлайн-сервис, полезный для частных застройщиков. della.ua/ - поиск транспорта для перевозок по Украине для сравнения прошлой осенью мне кирпич доставляли по 1800грн за фуру от завода (судя по всему переплатил куче посредников). сейчас по поиску нахожу варианты по 1500-1600грн. и да, начал пользоваться "услугами" окружной дороги сегодня поездил в поисках крана, хотя бы чтоб сравнить цены. маленькие краны берут за смену 1400-1600, большие - по 2000. в Шпитьках я не смог найти ничего дешевле 300грн в час. еще парочка контактов кранов оттуда (098) 611 68 22 (050) 334 38 62 (067) 298 25 22 80% увиденных машин стоят тут - maps.yandex.ua/-/CVVV6F0i. яндекс видимо делал свои панорамы в несезон, сегодня увидел там порядка 20-30 единиц техники 3 Посилання на коментар Поділитися на інших сайтах More sharing options...
zhupanenko Опубліковано: 7 травня 2013 Автор Поділитись Опубліковано: 7 травня 2013 отчет за майские разбиваю на несколько частей, так как в пост не дает вставить больше 10ти фотографий. в стройку вовлечен уже не первый год и однозначно определил для себя следующее - скорость и качество работы во многом зависят не только от кривизны рук мастера, но и от удобного рабочего места. уже не раз собирал что-то быстро, на коленках - потом оно ломалось, приходилось делать наново. первым делом сбил хорошую лестницу, чтоб удобно и быстро можно было подниматься на второй этаж. опять же, чтоб лестница получилась ровной - полностью расчистил площадку, сделал нормальные подставки, не спешил, потратил часа 3. результатом в принципе доволен - достойно как для первой лестницы было стало далее в качестве эксперимента начал собирать подпорки и опалубку для монолитных участков перекрытия. пришлось немного докупить дерева, повезло что пилорама под боком, да еще и с хорошим запасом нарезанного леса. от момента появления заявки до доставки на участок проходит 15-20минут. продолжаем испытывать корейский автопром на вместительность, предварительно услышав традиционное "не влізе" от работяг с пилорамы изначально была идея взять в аренду железные стойки и уложить на них деревянные балки с досками. в общей сложности прозвонил контор 20, самые нормальные по условиям оказались эти: (ссылка устарела) pioner.ua но даже в самых демократических компаниях минимальный заказ составлял 500-700грн. в итоге докупил бруса всего на 300, он еще и на будущее останется. получается приблизительно так. тем временем у нас поселился вот такой домовой 2 Посилання на коментар Поділитися на інших сайтах More sharing options...
zhupanenko Опубліковано: 7 травня 2013 Автор Поділитись Опубліковано: 7 травня 2013 2го мая вернулись рабочие на кладку перегородок и монтаж плит (ссылка на изображение устарела) стены такой толщины растут заметно быстрее, заполняя собой уже полюбившийся опенспейс (ссылка на изображение устарела) финальная стадия перед укладкой плит. в местах возможного наложения плит на кирпич недоложили один ряд по продольной оси плиты. (ссылка на изображение устарела) долго думал какими делать перемычки. однозначно отказался от варианта привозных после того, как обнаружились 2 трещины в прошлой партии. в итоге решили делать простым армированием + 5см раствора + 3 армированных ряда сверху. (ссылка на изображение устарела) новинка сезона - Г-образная дверь. удобна и большим и маленьким людям. (ссылка на изображение устарела) связал арматуру и подготовил для подачи на второй этаж краном (ссылка на изображение устарела) 7 Посилання на коментар Поділитися на інших сайтах More sharing options...
AndyAntonov Опубліковано: 8 травня 2013 Поділитись Опубліковано: 8 травня 2013 в итоге решили делать простым армированием + 5см раствора + 3 армированных ряда сверху. А вариант самоварной ж/б перемычки не рассматривали? ИМХО, кирпичная «перемычка» — профанация. Посилання на коментар Поділитися на інших сайтах More sharing options...
zhupanenko Опубліковано: 8 травня 2013 Автор Поділитись Опубліковано: 8 травня 2013 А вариант самоварной ж/б перемычки не рассматривали? ИМХО, кирпичная «перемычка» — профанация. ссылку уже не найду, но там был расчет именно на такую реализацию - 8я арматура с нахлестом 1м по бокам 4-5 рядов на самоварную ЖБ перемычку нужен щебень которого у меня нет. тянуть машину щебня ради перемычек дорого, зачем он мне нужен в будущем я пока не знаю Посилання на коментар Поділитися на інших сайтах More sharing options...
cisa Опубліковано: 8 травня 2013 Поділитись Опубліковано: 8 травня 2013 тянуть машину щебня ради перемычек его можно мешками покупать и возить своей машиной, главное не увлекаться - тяжёлый он 1 Посилання на коментар Поділитися на інших сайтах More sharing options...
zhupanenko Опубліковано: 8 травня 2013 Автор Поділитись Опубліковано: 8 травня 2013 в пятницу пришло время монтажа плит, которые пылились у меня с февраля. как оказалось, я разгрузил их крайне неудобно для монтажа - пришлось перекладывать на другое место. вспоминая условия зимней разгрузки, наверное это был единственно возможный вариант. (ссылка на изображение устарела) с учетом перекладывания, общее время укладки - 3 часа. в процессе обнаружили два небольших "пропеллера", в итоге есть пару мест, где высота потолка гуляет +-1см. крановщик выполнил свою работу на отлично, в очередной раз срубив в меня кучу бабла... (ссылка на изображение устарела) (ссылка на изображение устарела) (ссылка на изображение устарела) (ссылка на изображение устарела) плиты таки полностью лежали на пузе, бруски ушли в землю. на самих плитах вродебы не сказалось (ссылка на изображение устарела) забрасываем на 2й этаж остатки кирпича (ссылка на изображение устарела) (ссылка на изображение устарела) и результат (ссылка на изображение устарела) (ссылка на изображение устарела) 3 Посилання на коментар Поділитися на інших сайтах More sharing options...
Игореха Опубліковано: 8 травня 2013 Поділитись Опубліковано: 8 травня 2013 в пятницу пришло время монтажа плит, которые пылились у меня с февраля. Читайте - набирались прочности ;) Посилання на коментар Поділитися на інших сайтах More sharing options...
zhupanenko Опубліковано: 8 травня 2013 Автор Поділитись Опубліковано: 8 травня 2013 продолжаю монтировать опалубку. одному это делать непросто - постоянная беготня вверх-вниз по лестнице. (ссылка на изображение устарела) (ссылка на изображение устарела) опалубку вентканалов обернул в клеенку, чтоб удобнее было вынимать (ссылка на изображение устарела) получается относительно ровно. основная проблема для меня сейчас - как делать борты. нашел пару фотографий на форуме но по ним вообще не понятен способ крепления. все что придумал пока - взять брус толщиной 5 см (такой точно не выгнет), опереть его на 1см на кирпич. после демонтажа этот 1см забить ЭППС (ссылка на изображение устарела) Добавлено через 3 минуты Читайте - набирались прочности ;) про ваши плиты наслышан от Саши. видимо в несезон у Ковальской все-таки на порядок меньше брака 1 Посилання на коментар Поділитися на інших сайтах More sharing options...
Игореха Опубліковано: 8 травня 2013 Поділитись Опубліковано: 8 травня 2013 про ваши плиты наслышан от Саши. видимо в несезон у Ковальской все-таки на порядок меньше брака Дело даже не в моих плитах в данном случае Очень редко, когда на заводе плиты лежат месяцами и набираются, даже не в сезон Заказали, изготовили, они через неделю у вас. Уже можно транспортировать и монтировать. Но прочность они еще будут добирать месяцами и годами. Они же с завода практически горячие выходят Добавлено через 2 минуты основная проблема для меня сейчас - как делать борты. нашел пару фотографий на форуме но по ним вообще не понятен способ крепления. все что придумал пока - взять брус толщиной 5 см (такой точно не выгнет), опереть его на 1см на кирпич. после демонтажа этот 1см забить ЭППС Это вы про торец монолитного участка сейчас? А выше у вас кладки разве не будет? Может опалубку из кирпича и сделать, или яне понял чего-то? Посилання на коментар Поділитися на інших сайтах More sharing options...
Рекомендовані повідомлення