zhupanenko Опубліковано: 28 травня 2013 Автор Поділитись Опубліковано: 28 травня 2013 можно и даже нужно да я вот тоже смотрю, что тот же Гидропояс под мауэрлат отличается от фундаментного только шириной Посилання на коментар Поділитися на інших сайтах More sharing options...
AndyAntonov Опубліковано: 29 травня 2013 Поділитись Опубліковано: 29 травня 2013 каждый метр по высоте вставляли прокладку 10см из какого-то спецкартона Базальтовый картон. Посилання на коментар Поділитися на інших сайтах More sharing options...
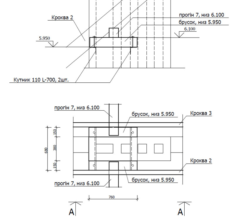
zhupanenko Опубліковано: 29 травня 2013 Автор Поділитись Опубліковано: 29 травня 2013 новини з шпітьківщини. выходим на финишную прямую. по словам бригадира остался один день и еще чуть-чуть вот такая красота - парадный выход на балкон (ссылка на изображение устарела) полет конструкторской мысли (ссылка на изображение устарела) потерял счет треснувшим, кривым и косым перемычкам. в итоге частично пришлось заливать. изготавливали на ТОВ Акадис если что. (ссылка на изображение устарела) казалось бы, счастье почти рядом... (ссылка на изображение устарела) но тут вот такое вылезло. труба дымохода по проекту стоит четко посредине прогона. получается, что дерево будет довольно близко к теплой трубе (ссылка на изображение устарела) в проекте этот узел не детализирован, но там предусмотрены какие-то выступы. кто подскажет, как правильно сделать этот узел? (ссылка на изображение устарела) 2 Посилання на коментар Поділитися на інших сайтах More sharing options...
Ceazar Опубліковано: 30 травня 2013 Поділитись Опубліковано: 30 травня 2013 Добрый день. Я бы немного сместил балку в сторону мауэрлата. для крыши не критично - для души спокойнее. Да и намного меньше проблем в исполнении, а значит - надежнее 1 Посилання на коментар Поділитися на інших сайтах More sharing options...
zhupanenko Опубліковано: 30 травня 2013 Автор Поділитись Опубліковано: 30 травня 2013 Добрый день. Я бы немного сместил балку в сторону мауэрлата. для крыши не критично - для души спокойнее. Да и намного меньше проблем в исполнении, а значит - надежнее это предполагает пересчет всей стропильной системы насколько я понимаю Посилання на коментар Поділитися на інших сайтах More sharing options...
Ceazar Опубліковано: 30 травня 2013 Поділитись Опубліковано: 30 травня 2013 это предполагает пересчет всей стропильной системы насколько я понимаю А зачем? разве стропила у вас порезаны? я только что вспомнил один момент. Ведь эти балки могут быть углом потолка в мансардной крыше. если высота позволяет - смещаемся в сторону мауэрлата, если нет - в сторону конька. Ну а если оба варианта не устраивают то тогда надо практиковать сварочное мастерство, с варить мощное крепление на обе стороны, и стянуть шпильками (Ф16, например). Посилання на коментар Поділитися на інших сайтах More sharing options...
zhupanenko Опубліковано: 30 травня 2013 Автор Поділитись Опубліковано: 30 травня 2013 А зачем? разве стропила у вас порезаны? я только что вспомнил один момент. Ведь эти балки могут быть углом потолка в мансардной крыше. если высота позволяет - смещаемся в сторону мауэрлата, если нет - в сторону конька. Ну а если оба варианта не устраивают то тогда надо практиковать сварочное мастерство, с варить мощное крепление на обе стороны, и стянуть шпильками (Ф16, например). в случае, если двигать - получается меняется угол фронтонов? или просто прогон будет ниже по высоте? Посилання на коментар Поділитися на інших сайтах More sharing options...
Ceazar Опубліковано: 30 травня 2013 Поділитись Опубліковано: 30 травня 2013 в случае, если двигать - получается меняется угол фронтонов? или просто прогон будет ниже по высоте? угол фронтонов менять не стоит, дом может получится не очень. Прогоны ерзаем по склону фронтонов. 1 Посилання на коментар Поділитися на інших сайтах More sharing options...
blacktigra Опубліковано: 30 травня 2013 Поділитись Опубліковано: 30 травня 2013 в проекте этот узел не детализирован, но там предусмотрены какие-то выступы. кто подскажет, как правильно сделать этот узел? В моем проекте есть деталировка такого узла в месте примыкания к дымоходу балок перекрытия первого этажа. Думаю, можно использовать как основу. Вечером покажу, нет с собой чертежа. Посилання на коментар Поділитися на інших сайтах More sharing options...
zhupanenko Опубліковано: 30 травня 2013 Автор Поділитись Опубліковано: 30 травня 2013 В моем проекте есть деталировка такого узла в месте примыкания к дымоходу балок перекрытия первого этажа. Думаю, можно использовать как основу. Вечером покажу, нет с собой чертежа. буду благодарен, но боюсь что нагрузка на балку и прогон несопоставимы Посилання на коментар Поділитися на інших сайтах More sharing options...
blacktigra Опубліковано: 30 травня 2013 Поділитись Опубліковано: 30 травня 2013 буду благодарен, но боюсь что нагрузка на балку и прогон несопоставимы В любом случае, обратитесь к Антону. Он вроде адекватно реагирует на подобные обращения. Посилання на коментар Поділитися на інших сайтах More sharing options...
blacktigra Опубліковано: 30 травня 2013 Поділитись Опубліковано: 30 травня 2013 Вот, нашел. 1 Посилання на коментар Поділитися на інших сайтах More sharing options...
zhupanenko Опубліковано: 30 травня 2013 Автор Поділитись Опубліковано: 30 травня 2013 Вот, нашел. насколько я понял решение - 2 уголка. маловато будет по крайней мере в моем случае Посилання на коментар Поділитися на інших сайтах More sharing options...
blacktigra Опубліковано: 30 травня 2013 Поділитись Опубліковано: 30 травня 2013 насколько я понял решение - 2 уголка. маловато будет по крайней мере в моем случае Согласен, особенно хлипким выглядит коротыш 80-го уголка. Отчасти из-за этого я перекроил проект под перекрытие бетонными плитами. Посилання на коментар Поділитися на інших сайтах More sharing options...
zhupanenko Опубліковано: 30 травня 2013 Автор Поділитись Опубліковано: 30 травня 2013 как-то так Посилання на коментар Поділитися на інших сайтах More sharing options...
_LE_ Опубліковано: 30 травня 2013 Поділитись Опубліковано: 30 травня 2013 zhupanenko,может проще обложить дымоход суперизолом??? Будет однозначно дешевле чем возится со стропилкой... Посилання на коментар Поділитися на інших сайтах More sharing options...
zhupanenko Опубліковано: 30 травня 2013 Автор Поділитись Опубліковано: 30 травня 2013 zhupanenko,может проще обложить дымоход суперизолом??? Будет однозначно дешевле чем возится со стропилкой... минимум 3см - не влезет Посилання на коментар Поділитися на інших сайтах More sharing options...
Ceazar Опубліковано: 30 травня 2013 Поділитись Опубліковано: 30 травня 2013 как-то так [ATTACH]280530[/ATTACH] мдаааа. а теперь забегите немного вперед. это же не чердак, а жилая мансарда. задайте себе вопрос: а как будет выглядеть этот узел после отделки? Посилання на коментар Поділитися на інших сайтах More sharing options...
blacktigra Опубліковано: 30 травня 2013 Поділитись Опубліковано: 30 травня 2013 мдаааа. а теперь забегите немного вперед. это же не чердак, а жилая мансарда. задайте себе вопрос: а как будет выглядеть этот узел после отделки? Закрыть фальшбалкой вдоль бруска на который балка опирается. Меня смущает долговечность конструкции - уголок одной полкой будет внутри дымохода, а черная сталь при частом нагреве/охлаждении быстрее корродирует. Хотя, может есть какие-то сверхстойкие к высоким температурам краски. Посилання на коментар Поділитися на інших сайтах More sharing options...
zhupanenko Опубліковано: 30 травня 2013 Автор Поділитись Опубліковано: 30 травня 2013 мдаааа. а теперь забегите немного вперед. это же не чердак, а жилая мансарда. задайте себе вопрос: а как будет выглядеть этот узел после отделки? я сразу об этом подумал, и теперь стараюсь не думать, чтоб не расстраиваться надо было камин в другом месте делать. но если бы все знать заранее... в любом случае подвинуть прогон сильно я не могу - он перестанет выполнять свою функцию. Добавлено через 5 минут Хотя, может есть какие-то сверхстойкие к высоким температурам краски. базальтовый картон ведь туда бросить можно, чтоб хоть как-то уменьшить нагревание? Посилання на коментар Поділитися на інших сайтах More sharing options...
VasylOk Опубліковано: 30 травня 2013 Поділитись Опубліковано: 30 травня 2013 Привіт, молодим забудовникам! У своєму досвіді мав схожу ситуацію, тільки у мене за рахунок зміни кута даху комин вийшов прямісінько у єндову і автоматично підпорна балка "проштригувала" комин, на фото видно, як було: Вихід був такийне впевнений, що він супер правильний). Комин трохи розібрали і вимурували з поступовим зміщенням. Але у вас так не пройде. А вот балку прийшлось позділяти на дві частини і класти на край кирпічної кладки, а азбестом прийшлось ізолювати дерево і головне добре з середини заштукатурити цю ділянку. Плюс знизу підперли балками з двох сторін. Дах краш-тест цієї зими пройшов. Нехай щастить! 1 Посилання на коментар Поділитися на інших сайтах More sharing options...
zhupanenko Опубліковано: 30 травня 2013 Автор Поділитись Опубліковано: 30 травня 2013 Дах краш-тест цієї зими пройшов. Нехай щастить! в итоге какое расстояние от дерева до гильзы дымохода? Посилання на коментар Поділитися на інших сайтах More sharing options...
VasylOk Опубліковано: 30 травня 2013 Поділитись Опубліковано: 30 травня 2013 в итоге какое расстояние от дерева до гильзы дымохода? Вийшло так: цегла 120мм, десь на 50-60мм опирається балка, 5-10мм азбест, цегла на ребро 65мм плюс 5-7мм штукатурка. 1 Посилання на коментар Поділитися на інших сайтах More sharing options...
Ceazar Опубліковано: 30 травня 2013 Поділитись Опубліковано: 30 травня 2013 я сразу об этом подумал, и теперь стараюсь не думать, чтоб не расстраиваться надо было камин в другом месте делать. но если бы все знать заранее... в любом случае подвинуть прогон сильно я не могу - он перестанет выполнять свою функцию. Незначительный сдвиг прогонов в сторону мауэрлатов никак не повлияет на функции, возложенные на стропилку. А чтоб потолок остался высоким - балки перекрытия мансарды укладывает поверх прогонов, или же потолком могут быть затяжки (бантины), на любой угодной высоте. Посилання на коментар Поділитися на інших сайтах More sharing options...
zhupanenko Опубліковано: 30 травня 2013 Автор Поділитись Опубліковано: 30 травня 2013 сегодня подбил окончательную смету по второму этажу. так вот, если кто-то (как и я месяц назад) думает, что мансарда дешевле первого этажа - вы глубоко ошибаетесь. изначально откуда-то взял себе эмпирическое число "2/3" и решил, что мансарда мне будет стоить 66% первого этажа. фиг там - сметы на этажи сошлись практически 1 в 1. злой на себя ужасно. ну и главный фейл второго этажа - непродуманное наложение прогона на дымоход. можно было ведь камин просто подвинуть ближе к стене. хотя если все знать заранее, то и строить не интересно. 4 Посилання на коментар Поділитися на інших сайтах More sharing options...
Рекомендовані повідомлення