anatoliys Опубліковано: 20 листопада 2011 Автор Поділитись Опубліковано: 20 листопада 2011 правильно сказали... И каков выход из такой ситуации? Так за гардиной и радиатор будет некорректно работать Не, ну перед гардиной радиатор точно ставить не буду, подрезать гардину до подоконника тоже не буду. Посилання на коментар Поділитися на інших сайтах More sharing options...
Vodoprovodchik Опубліковано: 20 листопада 2011 Поділитись Опубліковано: 20 листопада 2011 Вариант 2-х контурного котла не рассматривали? Посилання на коментар Поділитися на інших сайтах More sharing options...
anatoliys Опубліковано: 20 листопада 2011 Автор Поділитись Опубліковано: 20 листопада 2011 Вариант 2-х контурного котла не рассматривали? Рассматривал, и даже проект сделал на двухконтурник+ колонка в кухне. Отдал переделывать на одноконтурный + коссвенник+ рециркуляция ГВС. Посилання на коментар Поділитися на інших сайтах More sharing options...
naupv Опубліковано: 20 листопада 2011 Поділитись Опубліковано: 20 листопада 2011 И каков выход из такой ситуации? Не, ну перед гардиной радиатор точно ставить не буду, подрезать гардину до подоконника тоже не буду. Есть термоголовки с выносными датчиками. 1 Посилання на коментар Поділитися на інших сайтах More sharing options...
anatoliys Опубліковано: 20 листопада 2011 Автор Поділитись Опубліковано: 20 листопада 2011 Есть термоголовки с выносными датчиками. А есть фото как выглядит уже вынесенный датчик на стене? Вид у него, ну не очень. ИМХО Посилання на коментар Поділитися на інших сайтах More sharing options...
Сергей_84 Опубліковано: 20 листопада 2011 Поділитись Опубліковано: 20 листопада 2011 Есть термоголовки с выносными датчиками. чето вы не то показали вот вариант когда термоголовка на стене или когда культурный датчик выводится подальше радиатора 1 Посилання на коментар Поділитися на інших сайтах More sharing options...
Korni Опубліковано: 20 листопада 2011 Поділитись Опубліковано: 20 листопада 2011 ..... Вид у него, ну не очень. ИМХО А Вас опять ввели в заблуждение - это совсем другой датчик...... Привыкайте к определённому стилю некоторых монтажников... Таких везде полно... Установка термоголовок не является обязательной процедурой... Некоторые даже считают это разводом на деньги. При установке "за гардиной" и радиатор, и термоголовка будут работать некорректно. Может-поможет: СОВЕТЫ ПО ЭКОНОМИИ ЭНЕРГИИ ПРИ ЭКСПЛУАТАЦИИ СИСТЕМ ОТОПЛЕНИЯ ЧТО ТАКОЕ ПОГОДОЗАВИСИМАЯ АВТОМАТИКА? 1 Посилання на коментар Поділитися на інших сайтах More sharing options...
anatoliys Опубліковано: 20 листопада 2011 Автор Поділитись Опубліковано: 20 листопада 2011 вот вариант когда термоголовка на стене или когда культурный датчик выводится подальше радиатора Вроде как Герц эстетичнее будет. Провод можно в штукатурку? Посилання на коментар Поділитися на інших сайтах More sharing options...
левша Опубліковано: 20 листопада 2011 Поділитись Опубліковано: 20 листопада 2011 Даже я знаю, что это не провод. Посилання на коментар Поділитися на інших сайтах More sharing options...
anatoliys Опубліковано: 20 листопада 2011 Автор Поділитись Опубліковано: 20 листопада 2011 При установке "за гардиной" и радиатор, и термоголовка будут работать некорректно. Что то я не пойму. Гардины уже не вешают что ли? Я один такой остался? За ссылки спасибо, почитаю. Насчет погодозависимой автоматики в фирме инсталляторе сказали, что для моего небольшого дома она малоэффективна. Посилання на коментар Поділитися на інших сайтах More sharing options...
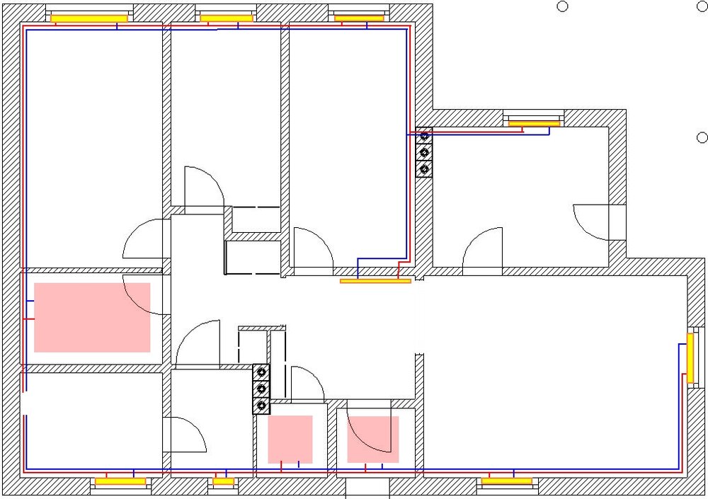
anatoliys Опубліковано: 20 листопада 2011 Автор Поділитись Опубліковано: 20 листопада 2011 Набросал два варианта тройниковой разводки. Подскажите какой из них правильнее, или без разницы? Посилання на коментар Поділитися на інших сайтах More sharing options...
Сергей_84 Опубліковано: 20 листопада 2011 Поділитись Опубліковано: 20 листопада 2011 Что то я не пойму. Гардины уже не вешают что ли? Я один такой остался? За ссылки спасибо, почитаю. Насчет погодозависимой автоматики в фирме инсталляторе сказали, что для моего небольшого дома она малоэффективна. опять ввели в заблуждение...она эффективна для любого дома, потому что она в перую очередь сосздает комфорт пользователю.. ну и чаво-то сэеономит конечно же Посилання на коментар Поділитися на інших сайтах More sharing options...
Сергей_84 Опубліковано: 20 листопада 2011 Поділитись Опубліковано: 20 листопада 2011 Набросал два варианта тройниковой разводки. Подскажите какой из них правильнее, или без разницы? первый более правильный, еще более выгодный 1 Посилання на коментар Поділитися на інших сайтах More sharing options...
vodynoj Опубліковано: 20 листопада 2011 Поділитись Опубліковано: 20 листопада 2011 Вроде как Герц эстетичнее будет. Провод можно в штукатурку? Лучше в кабель канал.Кто знает когдаему бошку скрутят. 1 Посилання на коментар Поділитися на інших сайтах More sharing options...
anatoliys Опубліковано: 20 листопада 2011 Автор Поділитись Опубліковано: 20 листопада 2011 первый более правильный, еще более выгодный А я почему то решил что первый неправильный и накидал второй. Поторопился. А выгодный, это в смысле экономия около 12 м трубы? или...? Посилання на коментар Поділитися на інших сайтах More sharing options...
naupv Опубліковано: 20 листопада 2011 Поділитись Опубліковано: 20 листопада 2011 А есть фото как выглядит уже вынесенный датчик на стене? Вид у него, ну не очень. ИМХО Это просто пример того(это с погружным датчиком), какую он имеет конструкцию, а настоящие имеют довольно привлекательный вид. Посилання на коментар Поділитися на інших сайтах More sharing options...
Сергей_84 Опубліковано: 20 листопада 2011 Поділитись Опубліковано: 20 листопада 2011 А я почему то решил что первый неправильный и накидал второй. Поторопился. А выгодный, это в смысле экономия около 12 м трубы? или...? именно....это лишеее 1 Посилання на коментар Поділитися на інших сайтах More sharing options...
anatoliys Опубліковано: 21 листопада 2011 Автор Поділитись Опубліковано: 21 листопада 2011 В связи с тем, что выставленная мной смета содержала стоимость монтажных работ, было принято решение удалить ее. Выкладываю ее снова но без стоимости работ. Только перечень материалов и их стоимость. Жду замечаний и предложений (что добавить, что лишнее, что заменить на более понадежнее, что неоправданно дорого). Спасибо всем, кто уже высказался ранее. P.S. В приведенной смете дан расчет на лучевую разводку. Сейчас же принято решение делать монтаж классической тройниковой двумя ветками.Смета.xls Посилання на коментар Поділитися на інших сайтах More sharing options...
Korni Опубліковано: 21 листопада 2011 Поділитись Опубліковано: 21 листопада 2011 ......P.S. В приведенной смете дан расчет на лучевую разводку. Сейчас же принято решение делать монтаж классической тройниковой двумя ветками. А зачем тогда выкладываете неактуальную спецификацию?! Да и, в принципе, спецификация мало что значит без проекта.... Нечего особо комментировать, кроме уже сказанного про качественные материалы... Стоимость ОВК состоит из стоимости материалов, основных и дополнительных работ. Пропорции их соотношений могут быть разные. Посилання на коментар Поділитися на інших сайтах More sharing options...
murava Опубліковано: 21 листопада 2011 Поділитись Опубліковано: 21 листопада 2011 .... Жду замечаний и предложений ..... Странно, что Вы хотите услышать? Все равно это субъективно, ведь этой сметой можно крутить как жид солнцем, все равно это будет работать ... Что вообще надобно услышать - лучше материалы - запросто, дешевле указанного - тоже запросто, обхаять решение - легко, восхвалить - тоже проще простого Посилання на коментар Поділитися на інших сайтах More sharing options...
anatoliys Опубліковано: 21 листопада 2011 Автор Поділитись Опубліковано: 21 листопада 2011 А зачем тогда выкладываете неактуальную спецификацию?! Неактульной она стала вчера, когда по советам данным в этой теме, принято решение изменить способ разводки. Новую смету мне еще не просчитывали. Изменится в смете не так уж и много, ИМХО. Уберутся коллекторы, добавятся тройники, изменится диаметр и количество трубы. Вроде как все. Посилання на коментар Поділитися на інших сайтах More sharing options...
anatoliys Опубліковано: 21 листопада 2011 Автор Поділитись Опубліковано: 21 листопада 2011 все равно это будет работать ... Главное что бы правильно работало Посилання на коментар Поділитися на інших сайтах More sharing options...
anatoliys Опубліковано: 21 листопада 2011 Автор Поділитись Опубліковано: 21 листопада 2011 Что вообще надобно услышать - лучше материалы - запросто, дешевле указанного - тоже запросто, обхаять решение - легко, восхвалить - тоже проще простого Только правду компетентных людей, например Вас Посилання на коментар Поділитися на інших сайтах More sharing options...
Сергей_84 Опубліковано: 21 листопада 2011 Поділитись Опубліковано: 21 листопада 2011 Главное что бы правильно работало прикол в том, что смета ужь никак не отображает правильности работы системы Посилання на коментар Поділитися на інших сайтах More sharing options...
Сергей_84 Опубліковано: 21 листопада 2011 Поділитись Опубліковано: 21 листопада 2011 Странно, что Вы хотите услышать? Все равно это субъективно, ведь этой сметой можно крутить как жид солнцем, все равно это будет работать ... Что вообще надобно услышать - лучше материалы - запросто, дешевле указанного - тоже запросто, обхаять решение - легко, восхвалить - тоже проще простого правильно Андрей пишет, в этой смете можно найти как негатив, так и позиитив, как при желании найти неудачный материал так и хороший..Все будет зависеть от человека, который смотрит смету..у каждого свой подход Но вцелом она годная и может быть принята за ориентир для работы...Откровенных ляпов нет... Вы можете задать вопрос: ее можно сделать меньше?..Я отвечу : любую смету можно сделать меньше и даже без потери качества работы, если захотеть 1 Посилання на коментар Поділитися на інших сайтах More sharing options...
Рекомендовані повідомлення
Створіть акаунт або увійдіть у нього для коментування
Ви маєте бути користувачем, щоб залишити коментар
Створити акаунт
Зареєструйтеся для отримання акаунта. Це просто!
Зареєструвати акаунтУвійти
Вже зареєстровані? Увійдіть тут.
Увійти зараз