Alisa3 Опубліковано: 17 березня 2012 Поділитись Опубліковано: 17 березня 2012 Таки да, работает и подобрался совсем близко... Archist только что вернулся из города-героя Киева (любовался, кстати, живописными окрестностями с. Петрушки ). Уж не красавчика ли владения рассматривали? Я вас ему расхваливала))) ;) По-моему тоже архитектор-грек немного перестарался с домом. Я тоже думаю, что засилье эркеров однозначно удорожит строительство. Но это же его первый эскиз, думаю второй будет гораздо удачнее. Посилання на коментар Поділитися на інших сайтах More sharing options...
Archist Опубліковано: 17 березня 2012 Поділитись Опубліковано: 17 березня 2012 Уж не красавчика ли владения рассматривали? Я вас ему расхваливала))) ;) Информация пока конфиденциальная, но то что я уже должен - не отрицаю! Посилання на коментар Поділитися на інших сайтах More sharing options...
Alisa3 Опубліковано: 17 березня 2012 Поділитись Опубліковано: 17 березня 2012 Информация пока конфиденциальная, но то что я уже должен - не отрицаю! Мы же договаривались с Вами работать за 0%, так что никто ничего не должен))) Посилання на коментар Поділитися на інших сайтах More sharing options...
vopros'nik Опубліковано: 17 березня 2012 Автор Поділитись Опубліковано: 17 березня 2012 Таки да, работает и подобрался совсем близко... Archist только что вернулся из города-героя Киева (любовался, кстати, живописными окрестностями с. Петрушки ). По выложенным эскизам могу сделать вывод, что благосостояние ТС со времени последних вариантов значительно выросло, что не может не радовать! Если серьезно, советую на этом этапе сделать предварительный расчет стоимости строительства, т. к. дом на мой взгляд получается небюджетным (сложные конфигурации стен, монолитные перекрытия, сложная кровля, увеличенная общая площадь, подвал под всем домом). Если в бюджет вписываетесь, тогда можно пристально обсуждать планировки. К которым у меня особых претензий нет, видно что занимались специалисты, надеюсь, что в соответствии с заданиями ТС (а мы коллег публично хаять не привыкли). Это хорошо когда у человека есть работа, да еще его удовлетворяющая и морально и материально, побольше вам такой. Насчет проекта: дом великоват, о чем и было послано письмо "вашему колеге". В бюджет не впишемся, хочется стройку начать и закончить не затягивая, поэтому отказались от эркеров и скошенных углов. Хаять вас не прошу, но конструктивной критики ждала, если честно. Лично мне не понравилась удаленность гостинной от кухни, с/у пристроенный к гостинной и столовая проходящая через кухню. По мелочам могу еще прикопаться, но в основном резкое отличие от первых эскизов присутствует и это радует. Посилання на коментар Поділитися на інших сайтах More sharing options...
Елочка Опубліковано: 20 березня 2012 Поділитись Опубліковано: 20 березня 2012 Лично мне не понравилась удаленность гостинной от кухни' date='[/quote'] Вот, мне тоже это сразу в глаза бросилось. Ну, как то будешь на кухне чем-либо заниматься, а в это время в гостиннной апперетив пьют...Все, пропустил. Потом надо стол праздничный накрыть, явно придется самому, потому что не уследил за принимающими, а - далековато будет... Ну, это шутка, но доля истины, не люблю, когда кухня далеко от тусовки домашних. А второй этаж, даже очень. И эркеры люблю, но вот углы скошенные не очень, как бы никакого украшения, да в добавок нагрузка при строительстве+подборка мебели. Это не критика, я не спец, просто сама вся в проектных мыслях. Жду проект. 1 Посилання на коментар Поділитися на інших сайтах More sharing options...
Alisa3 Опубліковано: 20 березня 2012 Поділитись Опубліковано: 20 березня 2012 А как такой вариант: 1 Посилання на коментар Поділитися на інших сайтах More sharing options...
Елочка Опубліковано: 21 березня 2012 Поділитись Опубліковано: 21 березня 2012 А как такой вариант: Лучше, во много раз лучше. Посилання на коментар Поділитися на інших сайтах More sharing options...
vopros'nik Опубліковано: 21 березня 2012 Автор Поділитись Опубліковано: 21 березня 2012 А как такой вариант: Алиса, спасибо что сама выложила, а то я заработалась.:rolleyes: Добавлено через 1 минуту Лучше, во много раз лучше. Елочка, разве лучше, ведь опять гостинная у черта на куличках. Опять все можно пропустить, или гости забудут как хозяйка выглядит. Посилання на коментар Поділитися на інших сайтах More sharing options...
Alisa3 Опубліковано: 22 березня 2012 Поділитись Опубліковано: 22 березня 2012 Елочка, разве лучше, ведь опять гостинная у черта на куличках. Опять все можно пропустить, или гости забудут как хозяйка выглядит. Так а в чём проблема? Гостиную переименовываем в "домашнюю", гостей туда не пускаем, а кормим их в столовой. Или на террасе. Или вообще, зачем эти гости кому нужны? Пусть у себя дома сидят!!! :D Посилання на коментар Поділитися на інших сайтах More sharing options...
Елочка Опубліковано: 23 березня 2012 Поділитись Опубліковано: 23 березня 2012 Елочка' date=' разве лучше, ведь опять гостинная у черта на куличках[/quote'] Не, уже ближе... Я правда попросила архитектора, что бы у меня кухня, столовая и гостиная плавно перетекали из друг друга, т.е. в одном как бы крыле, а в другом кабинет и технические помещения. Вот сама уже жду с нетерпением. 1 Посилання на коментар Поділитися на інших сайтах More sharing options...
vopros'nik Опубліковано: 23 березня 2012 Автор Поділитись Опубліковано: 23 березня 2012 Не, уже ближе... Я правда попросила архитектора, что бы у меня кухня, столовая и гостиная плавно перетекали из друг друга, т.е. в одном как бы крыле, а в другом кабинет и технические помещения. Вот сама уже жду с нетерпением. Я вчера тоже при встрече с архитеком так же попросила, сказал будет переделывать. Свой проект покажете потом нам? можно в л Посилання на коментар Поділитися на інших сайтах More sharing options...
Елочка Опубліковано: 23 березня 2012 Поділитись Опубліковано: 23 березня 2012 Свой проект покажете потом нам? можно в л Покажу обязательно, тем более делает мне его наш строимдомовский архитектор.;) И веточку потом строительную заведу, в планах построить быстро, ну а там как бог даст. 1 Посилання на коментар Поділитися на інших сайтах More sharing options...
vopros'nik Опубліковано: 24 березня 2012 Автор Поділитись Опубліковано: 24 березня 2012 Покажу обязательно, тем более делает мне его наш строимдомовский архитектор.;) И веточку потом строительную заведу, в планах построить быстро, ну а там как бог даст. Исполнения вам всех желаний ( и нам тоже)! 1 Посилання на коментар Поділитися на інших сайтах More sharing options...
Елочка Опубліковано: 28 березня 2012 Поділитись Опубліковано: 28 березня 2012 Исполнения вам всех желаний ( и нам тоже)! Спасибо большое! Черновик должен быть к пятнице-субботе. Посилання на коментар Поділитися на інших сайтах More sharing options...
Alisa3 Опубліковано: 23 квітня 2012 Поділитись Опубліковано: 23 квітня 2012 Вот здесь и обсудим, а то с этой весной и работой совсем любимый форум забросили) Посилання на коментар Поділитися на інших сайтах More sharing options...
Alisa3 Опубліковано: 24 квітня 2012 Поділитись Опубліковано: 24 квітня 2012 В целом - нормально. Все на месте. По длине я бы укоротил где-то на метр (за счет средней транзитной зоны). Ну и по мелочам: для спальни одного окна достаточно, ну и ТВ напротив окна :sad: Ну первоисточник был практически такой: Посилання на коментар Поділитися на інших сайтах More sharing options...
Archist Опубліковано: 24 квітня 2012 Поділитись Опубліковано: 24 квітня 2012 Ну первоисточник был практически такой: Ну вот, самое оно! 1 Посилання на коментар Поділитися на інших сайтах More sharing options...
Alisa3 Опубліковано: 24 квітня 2012 Поділитись Опубліковано: 24 квітня 2012 Не узнаёте первоисточник? Посилання на коментар Поділитися на інших сайтах More sharing options...
Archist Опубліковано: 25 квітня 2012 Поділитись Опубліковано: 25 квітня 2012 Не узнаёте первоисточник? Лучшее - враг хорошего! (с) Посилання на коментар Поділитися на інших сайтах More sharing options...
вторик Опубліковано: 25 квітня 2012 Поділитись Опубліковано: 25 квітня 2012 уж очень на мой похоже, смотрите пост №17, может найдете себе чего интересного www.stroimdom.com.ua/forum/showthread.php?t=66543 1 Посилання на коментар Поділитися на інших сайтах More sharing options...
vopros'nik Опубліковано: 25 квітня 2012 Автор Поділитись Опубліковано: 25 квітня 2012 уж очень на мой похоже, смотрите пост №17, может найдете себе чего интересного www.stroimdom.com.ua/forum/showthread.php?t=66543 Зашла в вашу темку, спасибо. Планировка действительно похожа, только у нас наверно не совпадают стороны света. А домик чудный. За это время ничего не продвинулось у вас, очень интересно посмотреть. И еще, после возведения стен, как считаете, по площадям все хорошо, кв.м. хватает, или можно было где то сделать побольше. У нас как то тяжело идет представление - хватит или нет, сделать побольше или по меньше, тем более дети взрослые, пространства надо больше, но вдруг не захотят с нами жить, зачем нам тогда так много. Посилання на коментар Поділитися на інших сайтах More sharing options...
вторик Опубліковано: 26 квітня 2012 Поділитись Опубліковано: 26 квітня 2012 Спасибо. после праздников обновлю. не меблированный дом однозначно оценить невозможно, потом, на ощущение пространства сильно влияет дизайн, цвет, мебель итд. гостинно столово кухня однозначно шикарна для этого домика. заедьте да посмотрите хмельницкая обл Для переспать + некоторые вещи + рабочий уголок 14 м2 для спальни минимум. Деити имеют особенность разбегатся в определенном возрасте (у каждого свой) но в нормальных семьях очень любят гостить у родителей, поэтому необходимо иметь возможность организовать их быт и общение, в гостях у бабушки наш подход минимальные спальни и максимальное общее пространство, должен это обеспечить, там посмотрим, детишкам пока год и три. рекомендую Вам очень, уперется больше не в дом, а в окружение дома, дорожки скамейки качельки мангалки... бассейн. По опыту даже статусных вил в тышшу-полторы квадратов могу утверждать, что любимое место детей и внуков: беседка с мангалом с видом на бассейн или пруд, у кого как. удачи. надеюсь был полезен. 1 Посилання на коментар Поділитися на інших сайтах More sharing options...
vopros'nik Опубліковано: 26 квітня 2012 Автор Поділитись Опубліковано: 26 квітня 2012 Спасибо. после праздников обновлю. не меблированный дом однозначно оценить невозможно, потом, на ощущение пространства сильно влияет дизайн, цвет, мебель итд. гостинно столово кухня однозначно шикарна для этого домика. заедьте да посмотрите хмельницкая обл Для переспать + некоторые вещи + рабочий уголок 14 м2 для спальни минимум. Деити имеют особенность разбегатся в определенном возрасте (у каждого свой) но в нормальных семьях очень любят гостить у родителей, поэтому необходимо иметь возможность организовать их быт и общение, в гостях у бабушки наш подход минимальные спальни и максимальное общее пространство, должен это обеспечить, там посмотрим, детишкам пока год и три. рекомендую Вам очень, уперется больше не в дом, а в окружение дома, дорожки скамейки качельки мангалки... бассейн. По опыту даже статусных вил в тышшу-полторы квадратов могу утверждать, что любимое место детей и внуков: беседка с мангалом с видом на бассейн или пруд, у кого как. удачи. надеюсь был полезен. Спасибо за приглашение, с удовольствием бы воспользовлась, но увы, ооочень большое растояние. Спальня для нас с мужем 14м как раз самое то, у нас сейчас имено такой размерчик спальни в квартире. А вот у детей побольше. Им сейчас 20 и 17, до внуков еще далеко (я так надеюсь) поэтому, хочется все таки в площядях разобраться сейчас, чтоб потом локти не кусать. А земли вокруг дома у нас хватит и на будующих..... - 30 соток. Спасибо за советы. Будем ждать фото. Посилання на коментар Поділитися на інших сайтах More sharing options...
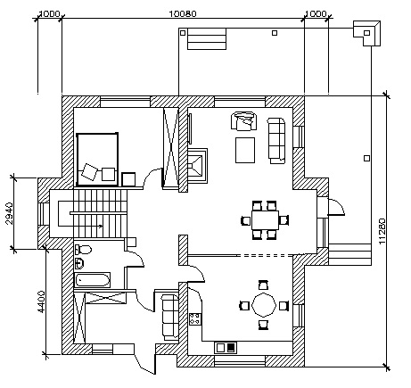
vopros'nik Опубліковано: 9 червня 2012 Автор Поділитись Опубліковано: 9 червня 2012 Время летит, не успели оглянуться - как лето наступило. А проект до сих пор в разработке. Посмотрите на новый план, кто увидит какие недочеты. Сразу скажу что все подсобные помещения в цоколе, просто его не выкладываю. С/у гостевой хочу увеличить на 10 см (1300 сделать) и еще парочка мест где сделать мелкие изменения в пределах 10-20см.Ирина дом 7 вариант lдубль-Model.pdf:( Посилання на коментар Поділитися на інших сайтах More sharing options...
Елочка Опубліковано: 11 червня 2012 Поділитись Опубліковано: 11 червня 2012 Время летит' date=' не успели оглянуться - как лето наступило.[/quote'] Уже скоро закончится.:D Я вот смотрю Вы на два эркера решились...А что на втором этаже на эркере, который с гардеробной соседствует? 1 Посилання на коментар Поділитися на інших сайтах More sharing options...
Рекомендовані повідомлення
Створіть акаунт або увійдіть у нього для коментування
Ви маєте бути користувачем, щоб залишити коментар
Створити акаунт
Зареєструйтеся для отримання акаунта. Це просто!
Зареєструвати акаунтУвійти
Вже зареєстровані? Увійдіть тут.
Увійти зараз