Перейти до публікації
Пошук в
  • Додатково...
Шукати результати, які містять...
Шукати результати в...

Отопление, водоснабжение, канализация, котельные. Расчёт и монтаж от Korni

Korni

Была ли Вам полезна информация в этой теме?  

449 користувачів проголосувало

У вас немає прав на голосування в цьому опитуванні, або на перегляд результатів опитування. Будь ласка, войдите или зареєструйтеся для голосування в опитуванні.

Рекомендовані повідомлення

Прежде, чем комментировать, прочтите.

 

Комменты не заканчиваются вопросительным знаком.

Посилання на коментар
Поділитися на інших сайтах

Комменты не заканчиваются вопросительным знаком.

Надеюсь, мой ответ вас, Игорь и Ира, удовлетворил.

  • Лайк 1
Посилання на коментар
Поділитися на інших сайтах

Полезное - програмне забезпечення Будерус та файли для розрахунків

 

 

В калькуляторе "Розрахунок теплового насоса" для дома 135 м.кв:

 

attachment.php?attachmentid=529159&stc=1&d=1474742909

848486002_V0ZndPiB1.png.9973390e8b7e0760613ce0900cabd3a2.png

1597954711_Wo0ETe3p1.thumb.png.7769b390b5a6ecf114106dc4090ae560.png

  • Лайк 2
Посилання на коментар
Поділитися на інших сайтах

Меня, как технаря, смутили нестыковки в цифрах.

Наверное непонятно написал, хотя старался. Имел ввиду что при отоплении электричеством и использовании двухзонного счётчика за счёт естественного понижения температуры наружного воздуха в ночной период (совпадает с периодом половинного тарифа) приблизительно половина израсходованной на отопление эл.энергии придётся на низкий тариф. Но даже если не брать в расчёт это наблюдение реальных пользователей, то всё равно со следующего (2017г) отопительного сезона стоимость 1кВт эл.энергии в пределах вышеобозначенного лимита в 3000кВт будет 0,9грн днём и в два раза ниже ночью (треть суток.) Неужели это не позволяет утверждать что отопление эл-вом будет вполне конкурентно газовому в том числе и в 2017г?

  • Лайк 1
Посилання на коментар
Поділитися на інших сайтах

...Неужели это не позволяет утверждать что отопление эл-вом будет вполне конкурентно газовому в том числе и в 2017г?.....

Теперь понятней, спасибо.

 

Смотрите, что получается:

  • стоимость газа (конденсационный котел) и стоимость "льготного" электротарифа - одинакова.

    0,9 грв.


Правильно?
Посилання на коментар
Поділитися на інших сайтах

Правильно?

Да. Но с газом нет лазеек, а с электричеством есть ещё двух и трёхзонный учёты.

Посилання на коментар
Поділитися на інших сайтах

Да. Но с газом нет лазеек, а с электричеством есть ещё двух и трёхзонный учёты.

Ок.

То, что нет "лазеек" - это хорошо. Бери, сколько хочешь, плати. Честно.

И домик в селе, и люксовый коттедж платят одну цену.

 

Трехзонный, думаю, не стоит обсуждать.

 

2хзонный.

  • 8 часов в сутки с коэффициентом 0,5, т.е. 30% времени

    чтобы эффективно использовать это время, тепло по "дешёвому тарифу" желательно где-то аккумулировать.

    Не буду говорить, что система с "аккумулятором" любого типа
    будет отличаться от обычной
    и она будет иметь определённые недостатки:

    - будет дороже в инсталляции (или допоборудование/усложнение схемы, или больше "бетона")

    - в теплобаке (водяном) аккумуляция
    , к сожалению - хватает на 3-4 утренних часа.

    - объема строительных конструкций (бетонного пола, каменных стен) будет мало, скорее всего.

  • И, если Вы не будете включать электрокотел днем, то разница температур будет дискомфортная - ночью "перетоп", днем-вечером - холодноватенько

  • "льготный" тариф - с октября по май. А желание включить отопление возникает и в другое время. Но Вы будете мерзнуть.

  • расход на ГВС - довольно значительный круглый год. Летом даже больше.


Не надо проводить сложных дифферницированых вычислений, чтобы понять, что "одинаковая стоимость" энергии совсем не одинаковая.

Газ - всегда, целый год 90 коп. за 1 кВт обеспечивает необходимый комфорт.

Электричество - суммарно, на протяжении года - будет дороже.

И комфортность хуже.

 

В принципе, я согласен (и рекомендую) вариант газ + ночной электротариф. Но если есть газ, могут не дать "тариф на отопление".

Ещё лучше - преобразованное электричество (тепловой насос).

Но тут другие стоимости по инсталляции.

  • Лайк 3
Посилання на коментар
Поділитися на інших сайтах

Побалуйтесь с табличкой-калькулятором. Тепловой насос можете выставить "0"

 

Для современного дома в 135 м.кв годовой расход энергии составляет около 18-19 тыс. кВт.

 

Если в электрике
примем условность "всегда 0,9"
(зимой и летом), то это 16,2-17,1 т.грв.

Если газ, то это - 14-15,6 т.грв.

  • Лайк 1
Посилання на коментар
Поділитися на інших сайтах

Если в электрике примем условность "всегда 0,9" (зимой и летом), то это 16,2-17,1 т.грв.

Если газ, то это - 14-15,6 т.грв.

Извиняюсь за позднюю реакцию -днём строю, вечером пишу. Исходя из указанных Вами сумм, годовая разница в стоимости электро и газового отопления составит порядка $100. Значит при существующем положении вещей подключение газа будет отбиваться лет 15-20. Это я считаю только стоимость подключения газа по стандартной процедуре и не считаю стоимость приличного котла (ещё лет 10-15). А общение с газовым хозяйством кроме денег требует времени и по опыту форумчан ещё и нервов. А электричество уже как бы есть и его подведение в дом не уродует фасад и двор, не предполагает периодического посещения контролёров из газового хозяйства с гениальными предписаниями установить например дверь, где она совершенно не нужна домовладельцам.

чтобы эффективно использовать это время, тепло по "дешёвому тарифу" желательно где-то аккумулировать.

В идеале да, но после того как отменили льготные 1200м3 газа в отопительный сезон - электроотопление и днём стало вполне себе сопоставимо по стоимости с газовым.

если Вы не будете включать электрокотел днем, то разница температур будет дискомфортная - ночью "перетоп", днем-вечером - холодноватенько

Безусловно, но некоторые застройщики пробуют так делать. Кто из любопытства, кто с целью экономии. жаль в той ссылке наглядная таблица исчезла - администратор форума посносил весной массу полезных ссылок. И в этой ветке кстати тоже. Так вот колебания суточной температуры в конкретном примере доходили до 2 градусов. Разумеется так было до наступления стабильных минусовых температур ниже -5-8 градусов. Но так у нас почти всегда. Меня пожалуй такие колебания не сильно напрягли бы. Но повторюсь сейчас уже нет в этом особой необходимости.

"льготный" тариф - с октября по май. А желание включить отопление возникает и в другое время. Но Вы будете мерзнуть.

У меня сейчас в доме +16, но нет никаких электроприборов. Думаю пару недель в сентябре и мае смогу камин поюзать - и удовольствие и доп. тепло.

расход на ГВС - довольно значительный круглый год. Летом даже больше.

Тут вероятно от привычек семьи зависит. У нас летом горячей воды гораздо меньше расходуется. мне например летом приятно в холодной воде купаться. И я практически уверен, что 200л бака, нагретого ночью, летом нам будет хватать на весь день на все потребности.

Ещё лучше - преобразованное электричество (тепловой насос).

Вот потому и жалею, что не предусмотрел закладные для теплового насоса на этапе фундамента...

Посилання на коментар
Поділитися на інших сайтах

Одно плохо - после приобретения конкретного опыта, мало кто из форумчан им делится публично.

Мне, в общем-то, все равно, какой вид топлива выберет мой Заказчик.

Я постоянно сталкиваюсь с такой разнообразной мотивацией решений, что перестал их оценивать.

Но истории собираю.

Раньше были сказки про "альтернативное и экономичное" отопление твердотопливными котлами. Но в этом году попустило :)

Сейчас идут сказки про соларную энергию... Бгг...В нашей-то зоне...

Только глупый человек не меняет своего мнения. Я, например, раньше скептически относился к конденсационной технике в небольших домах (меньше 250кв). Потом установил себе - сразу минус 25% по газу.

Теперь рекомендую по умолчанию.

  • Лайк 5
Посилання на коментар
Поділитися на інших сайтах

Я тоже был скептичен к солнцу, не в смысле отопления или ГВС, а в смысле выработки электричества.....

Соларка.

И вольтаика.

Сленг :)

  • Лайк 1
Посилання на коментар
Поділитися на інших сайтах

  • 2 тижні потому...

Отличная интерактивная карта солнечной инсоляции и других географических данных: solargis.info/imaps/

 

мапа по вітру!

 

Теж інтерактивна: GLobal Wind Atlas (irena.masdar.ac.ae/?map=103) та інструменти до неї (irena.masdar.ac.ae/?&tool=dtu:gwa&map=103)

 

Уровни солнечной инсоляции в Украине:

 

attachment.php?attachmentid=530806&stc=1&d=1475701811

1547402995_oN9JlsgQ1.jpg.89122fc34cf7350d3918903245306e5e.jpg

1052199644_karta-solnechnoy-aktivnosti-ukraine1.thumb.jpg.4cdab5a8e8edbfa8264cceca45b5178e.jpg

602288530_4OTzYvoM1.jpg.cde63730311248caf7c88693c8d919c6.jpg

  • Лайк 5
Посилання на коментар
Поділитися на інших сайтах

Отличная интерактивная карта солнечной инсоляции и других географических данных: solargis.info/imaps/

 

мапа по вітру!

 

Теж інтерактивна: GLobal Wind Atlas (irena.masdar.ac.ae/?map=103) та інструменти до неї (irena.masdar.ac.ae/?&tool=dtu:gwa&map=103)

 

 

1239 кВт с 1 м² звучит очень заманчиво

Посилання на коментар
Поділитися на інших сайтах

1239 кВт с 1 м² звучит очень заманчиво

Так там же написано "на протяжении года попадет", то есть всего за год 1239 кВт с м.кв.

Посилання на коментар
Поділитися на інших сайтах

Так там же написано "на протяжении года попадет", то есть всего за год 1239 кВт с м.кв.

 

среденне значение получается 103 кВт/мес с 1 м²

Избыток чисто теоретически можно продать по зеленому тарифу.

Посилання на коментар
Поділитися на інших сайтах

....то есть всего за год 1239 кВт с м.кв.

Именно так.

Лично я не вижу никакой заманчивости, честно говоря.

 

Такое количество энергии можно получить, если использовать конденсационный котел и сжечь газа на сумму где-то 1000-1100 грв.

40-45 $

 

А для фотовольтаики (низкий, до 20%, КПД панелей) дела ещё хуже.

  • Лайк 1
Посилання на коментар
Поділитися на інших сайтах

  • 1 місяць потому...

Александр подскажите , возникла дискуссия

 

Необходим ваш совет. Какая схема из двух лучше работает на практике и более легка в настройке/балансировке?

 

Ну вопрос был о возможности одновременной работе нескольких котлов(надо ли это вообще - это отдельный вопрос, скорее нет),

а также о возможности независимой работы котлов. При наличии нескольких контуров с разной температурой.

 

Схема 1 - Без ГС

www.stroimdom.com.ua/forum/attachment.php?attachmentid=536548&d=1479125687

Схема 2 - с ГС

www.stroimdom.com.ua/forum/attachment.php?attachmentid=536549&d=1479125691

  • Лайк 1
Посилання на коментар
Поділитися на інших сайтах

Александр подскажите , возникла дискуссия

 

Необходим ваш совет. Какая схема из двух лучше работает на практике и более легка в настройке/балансировке?

 

При правильном подборе первичного кольца - работоспособны обе.

Да и по настройкам одинаковы.

 

До 50 кВт не вижу смысла ставить гидрострелку (если нет требования производителя по кондесационному котлу).

 

Я бы делал на "кольце". Или гидровыравнивателе (совмещает функцию гидрострелки и коллектора, располагается вертикально).

541606884_4VQEbmlD1.thumb.jpg.41f0c4256faabcdfe97d6b4868e765d0.jpg

1189453497_shema91.jpg.b732b5cff033305b58c603a3bdb2964e.jpg

Змінено користувачем Korni
  • Лайк 1
Посилання на коментар
Поділитися на інших сайтах

  • 2 тижні потому...

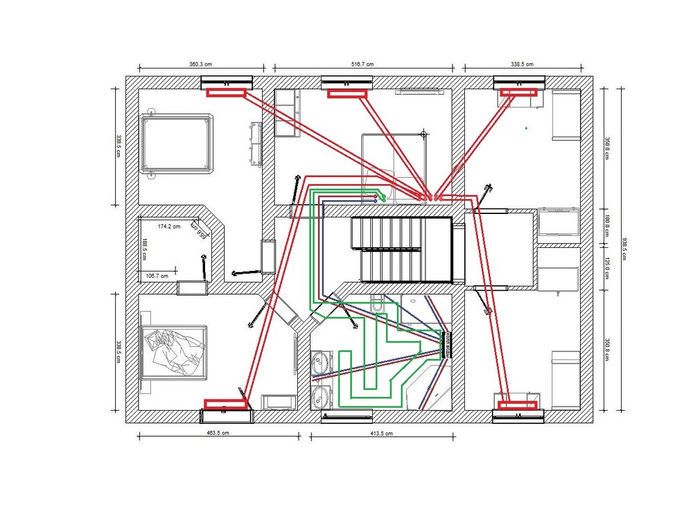
Здравствуйте Александр! Как и говорили с Вами выкладываю исходные данные: 3 этажа + неотапливаемый чердак + гараж, цоколь состоит из фбс 500 мм, утоплен в землю примерна на 1,8 м., без внешнего утепления, основная стена - газоблок 300 мм (Купянский) + утеплитель 50 мм (80 пл. Технониколь) + 20-30 мм воздушная прослойка + 120 мм клинкерный кирпич (Керамейя, 48% пустотность) , черноя высота потолков: цоколь - 2,6 м, 1 эт. - 2,8 м., 2 эт. - 2,7 м. Перекрытие: цоколь/1эт./2эт. - плиты 220 мм., 2эт./чердак - балки с 200 мм. утеплением (30 пл., Изоват).

И ГВС и СО будем делать коллекторной:

- по ГВС : к коллекторам подходим 25 мм трубой, дальше 16 мм к точке; бак косвенного нагрева на 150 л.

- по СО : цоколь, 1 эт. хотелось бы ТП (возле наружных стен метр с шагом 10 см, потом 15 см, с/у,коридор,кухня - 15 см), 2 эт., гараж, детские - стальные радиаторы + 1 внутрипольный.

Но вот тут меня терзают сомнения, если в цоколе мы везде положим плитку то сможем снять необходимую мощность, тогда как на 1 эт. в большой комнате хотелось бы ламинат. Посчитав в программе тепло потери дома, получается цифра чуть более 60 Вт, а вот эта большая комната на первом этажа (если ее считать отдельно) - около 200 Вт.

Планируем отапливаться газ (конденсационник) + электро.

Может моя идея и не нова: но не хочу всяких там гидрострелок и прочего, хочу (планирую) радиаторы (возьму 33 тип) подобрать так что бы было можно не подавать на них высокую температуру, ну так скажем что бы котел работал на низких темперартурах. Длину контуров ТП я еще подсчитаю (фото для понятия общей картины :wink:).

Спасибо

2092202779_.thumb.jpg.6caca0f58de68c8c4f666204b483d75a.jpg

755152231_1.thumb.jpg.fdda735a83f6944d3bd1820f74bdba33.jpg

1298725337_2.thumb.jpg.3286008be889e8bd59d8754cfff43abc.jpg

Photo-0178.thumb.jpg.80db6a43c837d9ff3c65638dd9bc6e4b.jpg

2006510848_.jpg.693a9d82341c5c6467aa54987af15cbe.jpg

Змінено користувачем Juvchik
Посилання на коментар
Поділитися на інших сайтах

....- по ГВС : к коллекторам подходим 25 мм трубой, дальше 16 мм к точке; бак косвенного нагрева на 150 л.

- по СО : цоколь, 1 эт. хотелось бы ТП (возле наружных стен метр с шагом 10 см, потом 15 см, с/у,коридор,кухня - 15 см), 2 эт., гараж, детские - стальные радиаторы + 1 внутрипольный....

Цоколь крайне рекомендую утеплить.

Коллекторная - гуд.

 

При такой конструкции стены можно обойтись без радиаторов.

Теплотдача внутрипольного конвектора - такая же, как ТП. Если конвектор с вентиллятором, то его обычно выключают - слишком шумно.

 

....- хотелось бы ламинат. ..

ТП будет работать без проблем, справится без радиаторов.

Ламинат покупайте обычный, специализированный не надо. Всё равно лет через 10 менять.

 

....- Планируем отапливаться газ (конденсационник) + электро.

Может моя идея и не нова: но не хочу всяких там гидрострелок и прочего, хочу (планирую) радиаторы (возьму 33 тип) подобрать так что бы было можно не подавать на них высокую температуру, ну так скажем что бы котел работал на низких темперартурах. ..

Гидрострелка и не нужна. Не вижу смысла и в электрокотле. Врезать его в существующую системы - полдня работы.

Радиаторы имеет смысл ставить только там, где нет ТП.

Большие радиаторы покупать не стоит. Обычного размера вполне справятся с теплопотерями. Только в "холодную пятидневку" их может чуть не хватать - для режима "кондесации" котла. И тогда он будет работать, как обычный котел.

  • Лайк 1
Посилання на коментар
Поділитися на інших сайтах

ТП будет работать без проблем, справится без радиаторов.

Смущает только зал/большая комната на 1 эт., не будет ли температурного дискомфорта ??? Я не говорю там про самые холодные пятидневки, ну скажем в районе -15 - -23 С

 

Большие радиаторы покупать не стоит. Обычного размера вполне справятся с теплопотерями.

Вы имеете ввиду 22 тип ?

 

Еще планируемый шаг укладки пойдет ??? А забыл на ТП 16 мм трубу планируем!

Спасибо

Посилання на коментар
Поділитися на інших сайтах

Смущает только зал/большая комната на 1 эт., не будет ли температурного дискомфорта ??? ....

Не будет - ведь там не один контур надо делать.

....Вы имеете ввиду 22 тип ?..

Да, обычного размера.

 

Шаг, в большинстве случаев, 15 см.

  • Лайк 1
Посилання на коментар
Поділитися на інших сайтах

Если не затруднит, то нужна Ваша короткая консультация по выбору конденсационного котла и бойлера косвенного нагрева.

Что Вы бы выбрали для себя?

У Вас вроде бы есть опыт в использовании конденсационника.

 

Пакетное предложение от Будеруса:

tetan.ua/Buderus/p1105-paketn...-Logapak-GB042

КОМПЛЕКТАЦИЯ ПАКЕТНОЕ ПРЕДОЖЕНИЕ BUDERUS LOGAPAK GB042

Котел

Дымовая труба.

Бак-водонагреватель - 160л

Комнатный программатор. Стоимость 52000грн.

 

Котёл http: BAXI LUNA Platinum //www.baxi.ua/ru/page/baxi-products/baxi-condensing-boilers/baxi-condensing-wall-boilers/luna-platinum-ht.html

Бойлер Дражице на 150л или комбинированный Атлантик 150л (есть по хорошей цене акционный)

Труба

Цена предложения 43 000грн.

 

Будерус не чистый немец, а сделан в Румынии.

В Бакси модуляция 1:10 против 1:7 у Будеруса.

Но так ли это важно?

По функциям мне больше нравится Бакси. По бренду - Будерус.

Но так ли он хорош?

 

Вопрос в том чтобы выбрать хорошую и качественную технику.

Разницу в 10 000грн переживу спокойно.

Стоит ли менять 150л электробойлер, который устраивает на 100% на косвенник? От косвенника магистраль вырастет на 5м.

Спасибо.

Змінено користувачем AlexRS4
Посилання на коментар
Поділитися на інших сайтах

Одно плохо - после приобретения конкретного опыта, мало кто из форумчан им делится публично.

Мне, в общем-то, все равно, какой вид топлива выберет мой Заказчик.

Я постоянно сталкиваюсь с такой разнообразной мотивацией решений, что перестал их оценивать.

Но истории собираю.

Раньше были сказки про "альтернативное и экономичное" отопление твердотопливными котлами. Но в этом году попустило :)

Сейчас идут сказки про соларную энергию... Бгг...В нашей-то зоне...

Только глупый человек не меняет своего мнения. Я, например, раньше скептически относился к конденсационной технике в небольших домах (меньше 250кв). Потом установил себе - сразу минус 25% по газу.

Теперь рекомендую по умолчанию.

Обещаю поделиться тут в ветке по замене древнего Атона 30кВт на конденсационный в существующем доме.

Котёл давно требует замены, но пока всё только утеплял и менял систему. На этом котле с 4500куб путём оптимизации и утепления вышел на 2000куб в сезон.

Теперь поменяю котёл для чистоты эксперимента.

  • Лайк 3
Посилання на коментар
Поділитися на інших сайтах

...Что Вы бы выбрали для себя? ....

GB042 - это Турция (сертификат).

 

Я бы выбрал Buderus Logamax plus GB172i (тот же завод в Турции). Или Logamax plus GB172-24 T50 (со встроенным баком 48л)

Это более современный котел, скоро будут в наличии одноконтурные модели не только на 30 кВТ, но и меньшие (что удобно).

 

Apple тоже "не чистый американец" :)

 

..Стоит ли менять 150л электробойлер, который устраивает на 100% на косвенник?..

Стоимость тепла от газового котла:

на нагрев ГВС - около 1 грв/кВт

на отопление - 0,8-0,9 грв/кВт.

Сравните с тарифом на электрику.

 

  • Мощность теплообменника в бойлере косвенного нагрева на 150 л - 20-22кВт. В час такой бойлер может приготовить 400-500л горячей воды.
  • Электротен в электробойлере - скорее всего, 2-3 кВт.

Скорость нагрева в первом случае можете оценить сами и нужно ли это Вам. :)

...Вопрос в том чтобы выбрать хорошую и качественную технику. ...

Не так уж важна техника, как сервис и его частота :)

  • Лайк 3
Посилання на коментар
Поділитися на інших сайтах

Створіть акаунт або увійдіть у нього для коментування

Ви маєте бути користувачем, щоб залишити коментар

Створити акаунт

Зареєструйтеся для отримання акаунта. Це просто!

Зареєструвати акаунт

Увійти

Вже зареєстровані? Увійдіть тут.

Увійти зараз
×
×
  • Створити...