Скрипка Александр Опубліковано: 19 січня 2012 Поділитись Опубліковано: 19 січня 2012 господа , подскажите ... в доме запланировано 2 детских комнаты размер 3,010х5.4 метра (ширина -длинна),вход в ширины ,дверь смещена к краю комнаты . С женой спорим третий месяц , ей кажется что коната слишком длинная и узкая , сегодня уже веревки натягивали , и простынки на них вешали .. так не хочется переделывать весь проект. БУдь у меня в детстве своя комната почти в 17 квадратов ........ Посилання на коментар Поділитися на інших сайтах More sharing options...
vopros'nik Опубліковано: 20 січня 2012 Поділитись Опубліковано: 20 січня 2012 В идеале желательно приблизиться к квадрату. Поставите по стенкам мебель, в середине останеться узкий проход, детям будет не развернуться, даже конструктор толком не рассыпеш. Сужу по личному опыту. В доме собираюсь себе с мужем делать спальню 13-14 м.кв., а детям по 20м. Посилання на коментар Поділитися на інших сайтах More sharing options...
Copycat Опубліковано: 20 січня 2012 Поділитись Опубліковано: 20 січня 2012 Сужу по личному опыту. В доме собираюсь себе с мужем делать спальню 13-14 м.кв.' date=' а детям по 20м.[/quote'] Разумно, ведь детям в своих комнатах не только спать. Посилання на коментар Поділитися на інших сайтах More sharing options...
Alisa3 Опубліковано: 20 січня 2012 Поділитись Опубліковано: 20 січня 2012 Покажите проект. Может что и посоветуем. Посилання на коментар Поділитися на інших сайтах More sharing options...
ionico Опубліковано: 20 січня 2012 Поділитись Опубліковано: 20 січня 2012 vopros'nik правильно говорит. Идеальная комната - квадратная в плане. Но так как в процессе проектирования этого можно добиться не всегда и не во всех случаях, принято считать, что допустимое соотношение длины к ширине равно 1:2. То есть, если ширина 3 м., то длина - 6 м. Это максимум. Промежуточные значения между 1:1 и 1:2 - дело вкуса. Лично я считаю, что ваша комната действительно слишком вытянута. Если вы видите, что это не "чистое" решение, то, конечно же, лучше попробовать перепланировать. Посилання на коментар Поділитися на інших сайтах More sharing options...
apxitektop Опубліковано: 20 січня 2012 Поділитись Опубліковано: 20 січня 2012 господа , подскажите ... в доме запланировано 2 детских комнаты размер 3,010х5.4 метра (ширина -длинна),вход в ширины ,дверь смещена к краю комнаты . С женой спорим третий месяц , ей кажется что коната слишком длинная и узкая , сегодня уже веревки натягивали , и простынки на них вешали .. так не хочется переделывать весь проект. БУдь у меня в детстве своя комната почти в 17 квадратов ........ Дело не в ширине/площади, а в том, ИМХО, получится ли там расставить комфортно мебель. Т.е. надо нарисовать в масштабе всю мебель и понять - подходит или нет. 2 Посилання на коментар Поділитися на інших сайтах More sharing options...
Archist Опубліковано: 20 січня 2012 Поділитись Опубліковано: 20 січня 2012 Самое смешное, что в квадратной комнате расставлять мебель сложнее. Проверено уже не раз. 4 Посилання на коментар Поділитися на інших сайтах More sharing options...
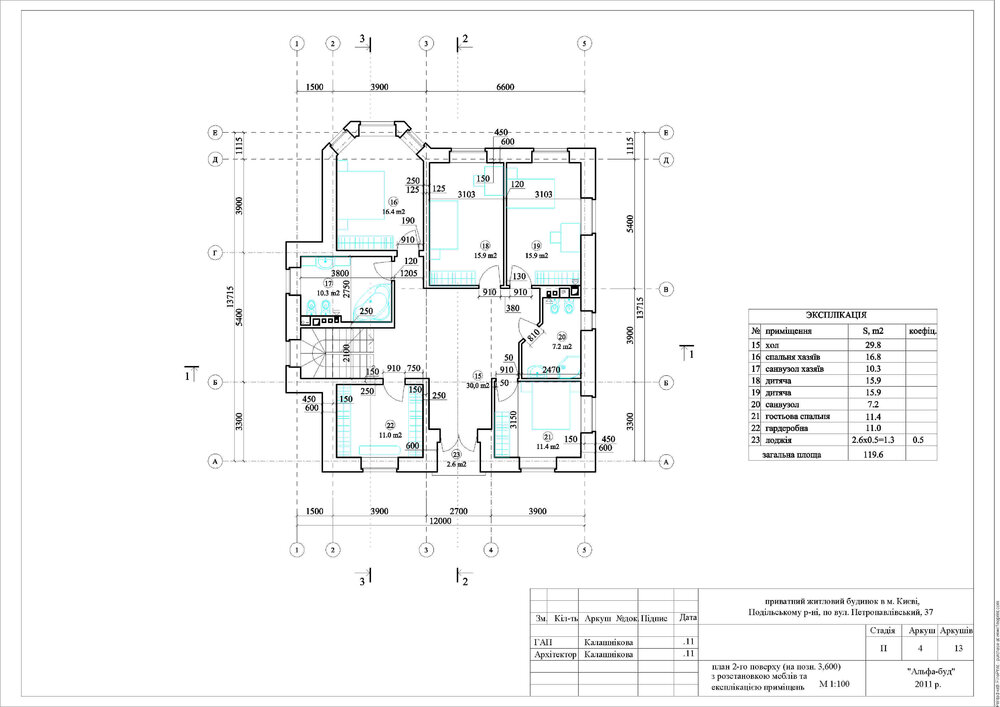
Скрипка Александр Опубліковано: 20 січня 2012 Автор Поділитись Опубліковано: 20 січня 2012 второго этажа, вот там две комнатки одинаковые -две детские Посилання на коментар Поділитися на інших сайтах More sharing options...
aleks_a77 Опубліковано: 20 січня 2012 Поділитись Опубліковано: 20 січня 2012 Сам вырос в такой комнате, удовольствия мало. Предположим, по одной длинной стороне комнаты будет стоять раскладной диван, в сложенном состоянии он уже занимает метр, в разложенном 1,8-2м, стоит поставить напротив стенку или тумбу 50-60см и останется очень узенький проходик. В такой комнате как правило вся мебель ютится по одной из длинных стен. Я к тому веду, что ширина комнаты маловата. Посилання на коментар Поділитися на інших сайтах More sharing options...
Archist Опубліковано: 20 січня 2012 Поділитись Опубліковано: 20 січня 2012 второго этажа, вот там две комнатки одинаковые -две детские Нормальные комнаты. Уберите второе окно и будет вам счастье. (Это я к тому веду, то нефик раскладывать двухметровые диваны в детской на одного ребенка...) Посилання на коментар Поділитися на інших сайтах More sharing options...
Darkdwarf Опубліковано: 20 січня 2012 Поділитись Опубліковано: 20 січня 2012 (змінено) Да да, именно... я так при смене офиса свою мебель вырезал из бумажек и прикидывал и так и эдак... )))) Apxitektop истину глаголит))))) а вообще то, не гоже детям на диване спать... им кровать нужна, качественная... а для сидения можно и бескарканую мебель - пару мешков закинуть и легкая и не травмоопасная (мягкая)... Змінено 20 січня 2012 користувачем apxitektop Архитектор => Apxitektop :) 1 Посилання на коментар Поділитися на інших сайтах More sharing options...
vadims Опубліковано: 20 січня 2012 Поділитись Опубліковано: 20 січня 2012 второго этажа, вот там две комнатки одинаковые -две детские Для второго этажа очень даже нормальные! Не думаю, что дети большинство времени будут проводить на втором этаже, вторые этажи в основном спальные! … я бы тоже несколько окон на втором этаже убрал.. Посилання на коментар Поділитися на інших сайтах More sharing options...
Copycat Опубліковано: 20 січня 2012 Поділитись Опубліковано: 20 січня 2012 А какое расположение по сторонам света? Окна на севере - не ок. Посилання на коментар Поділитися на інших сайтах More sharing options...
руки_из_попы Опубліковано: 20 січня 2012 Поділитись Опубліковано: 20 січня 2012 мое мнение....судя по тому что это второй этаж ..что слишком большой коридор..... я бы переделал ,убрал от него кусок и от туалета и добавил бы в комнаты .... а то проходные места больше чем жилые.. 1 Посилання на коментар Поділитися на інших сайтах More sharing options...
Скрипка Александр Опубліковано: 20 січня 2012 Автор Поділитись Опубліковано: 20 січня 2012 диванов не планируется вообще , стандартная односпальная кровать 0,9х2 ,рядом с входной дверью планируется шкаф (он вроде должен "заквадратить" немного комнату. окна в детских на юг . Санузел уменьшать не хочется , мне аргументов бы что б жену успокоить )) Посилання на коментар Поділитися на інших сайтах More sharing options...
Музей Опубліковано: 20 січня 2012 Поділитись Опубліковано: 20 січня 2012 Получились типичные советские комнатушки 3 на 5м с входом с торца и окном на другом торце. Хуже не придумаешь. Посилання на коментар Поділитися на інших сайтах More sharing options...
Музей Опубліковано: 20 січня 2012 Поділитись Опубліковано: 20 січня 2012 Санузел уменьшать не хочется , мне аргументов бы что б жену успокоить )) Т.е. надо доказать, что именно такие комнаты самое ОНО?:D Посилання на коментар Поділитися на інших сайтах More sharing options...
ssspit Опубліковано: 20 січня 2012 Поділитись Опубліковано: 20 січня 2012 (змінено) SweetHome3D - очень простая, удобная и бесплатная програмка, рисуем стены, ставим окна, двери, мебель и прямо в 3D смотрим куда что передвинуть-переставить. В фон можно поставить существующий план (BMP, JPEG, GIF, PNG) и рисовать прямо по нему. Толщина стен выставляется в файл - настройки, остальное прямо на плане. Мебель, окна, двери перетаскивается со списка. Рекомендую, себе в ней рисовал и от туда прямо можно напечатать. Из минусов, не супер графика в 3D и я не нашел как сделать наклонную плоскость, наверно её там нет. Я за два часа нашел эту прогу, установил, разобрался с ней, нарисовал весь первый этаж, выбрал и расставил мебель. Все на русском языке. Змінено 20 січня 2012 користувачем ssspit Посилання на коментар Поділитися на інших сайтах More sharing options...
Скрипка Александр Опубліковано: 20 січня 2012 Автор Поділитись Опубліковано: 20 січня 2012 Т.е. надо доказать, что именно такие комнаты самое ОНО?:D именно!!!, именно это и нужно,еще пара месяцев перепланировок и рисовалок меня убьют , на саму стройку не останется ни сил ни желания . На мой взгляд комнаты в 16 кв.м. более чем достаточно для проживания ОДНОГО ребенка ,а порезвится можно и на первом этаже , там места достаточно...хотя послушав отзывы я в этом уже сомневаюсь :-x Посилання на коментар Поділитися на інших сайтах More sharing options...
vopros'nik Опубліковано: 20 січня 2012 Поділитись Опубліковано: 20 січня 2012 именно!!!, именно это и нужно,еще пара месяцев перепланировок и рисовалок меня убьют , на саму стройку не останется ни сил ни желания . На мой взгляд комнаты в 16 кв.м. более чем достаточно для проживания ОДНОГО ребенка ,а порезвится можно и на первом этаже , там места достаточно...хотя послушав отзывы я в этом уже сомневаюсь :-x Это Вам так кажется, а мои дети сидят каждый у себя в комнате - то уроки, то комп, то телевизор, да и книжку почитать идут не в библиотеку(кабинет), а у себя на кровате или диване. И еще когда делали ремонт, одному ребенку купили кровать, второму раскладной диван, вроде маленькие были, а прошло четыре года, повырастали, вытянулись, дочка (рост176) спит в своей кровати (200х80) наискосок, а сын (184) расправляет диван. Вот так. Хотя может вы каждые два три года будете мебель покупать, но как говорят "Вам жить" Посилання на коментар Поділитися на інших сайтах More sharing options...
Alisa3 Опубліковано: 20 січня 2012 Поділитись Опубліковано: 20 січня 2012 По-моему, вполне адекватные комнатки для деток. Стройте и не заморачивайтесь))) Посилання на коментар Поділитися на інших сайтах More sharing options...
Andrey Melnick Опубліковано: 20 січня 2012 Поділитись Опубліковано: 20 січня 2012 Да нормальные комнаты, 16кв - достаточно, главное - что СВОЯ комната у ребенка. Ну, еще окном может поиграться(чем отапливать приоконное пространство), это повлияет на то, получится ли стол ставить у окна, или придется отступать. Посилання на коментар Поділитися на інших сайтах More sharing options...
aleks_a77 Опубліковано: 21 січня 2012 Поділитись Опубліковано: 21 січня 2012 Обсуждение немного напоминает ситуацию с посадкой деревьев в саду, понатыкают их через два метра одно от другого, конечно они же щупленькие, маленькие, потом приходишь через пять лет кроны посплетались нафиг, кто ж думал, что они так вырастут :D Подозреваю что выссказывания типа: главное что своя комната есть у ребёнка и то что она в форме кишки не важно принадлежат людям у которых своей комнаты никогда не было, но они о ней очень мечтали и не задумывались о степени комфорта в ней, так как сами подобного комфорта были лишены, к сожалению... Так что сорри, у меня аргументов в пользу 3! х 5 метров нет Посилання на коментар Поділитися на інших сайтах More sharing options...
1tsov77 Опубліковано: 21 січня 2012 Поділитись Опубліковано: 21 січня 2012 Дело не в ширине/площади, а в том, ИМХО, получится ли там расставить комфортно мебель. Т.е. надо нарисовать в масштабе всю мебель и понять - подходит или нет. Это, че мне сначала мебель в дом купить. а потом проект для стройки выбирать. Посилання на коментар Поділитися на інших сайтах More sharing options...
apxitektop Опубліковано: 21 січня 2012 Поділитись Опубліковано: 21 січня 2012 Это, че мне сначала мебель в дом купить. а потом проект для стройки выбирать. Если Вы так поняли мое сообщение, то можете попробовать вначале купить мебель Посилання на коментар Поділитися на інших сайтах More sharing options...
Рекомендовані повідомлення
Створіть акаунт або увійдіть у нього для коментування
Ви маєте бути користувачем, щоб залишити коментар
Створити акаунт
Зареєструйтеся для отримання акаунта. Це просто!
Зареєструвати акаунтУвійти
Вже зареєстровані? Увійдіть тут.
Увійти зараз