vlad-Новоселки Опубліковано: 24 березня 2015 Поділитись Опубліковано: 24 березня 2015 Очередной возврат на доработку. Замечаний 2. 1).В п.1 не совпадает наименование законченного строительством объекта (в декларации "будівництво індивідуального житлового будинку", а в уведомлении "будівництво житлового будинку". 2). В п.7 "...вказана площа господарських споруд, але згідно повідомленню про початок виконання будівельних робіт, зазначені споруди відсутні" Вот фото пункта 7. Где там у меня в декларации сказано о "господарських спорудах"??? И еще вопрос: как думаете? Пора жаловаться или исправить им 2 этих пункта и, если уж опять вернут, то писать во все инстанции??? Написала таки только что письмо в ДАБИ Украины. Наверное, неправильно в п.7 там, где после таблицы, я указала 44,6 м, да? Возвращали мне по тем же причинам: 1.).В п.1 не совпадает наименование законченного строительством объекта (в декларации "будівництво індивідуального житлового будинку", а в уведомлении "будівництво житлового будинку". указывал наименование в декларации точно так же как и в уведомлении про начало строительных работ 2.В п.7 "...вказана площа господарських споруд, але згідно повідомленню про початок виконання будівельних робіт, зазначені споруди відсутні" Ставил прочерк поскольку господарські споруди пока відсутні. После таких изменений зарегистрировали... 1 Посилання на коментар Поділитися на інших сайтах More sharing options...
apxitektop Опубліковано: 24 березня 2015 Поділитись Опубліковано: 24 березня 2015 Очередной возврат на доработку. Замечаний 2. 1).В п.1 не совпадает наименование законченного строительством объекта (в декларации "будівництво індивідуального житлового будинку", а в уведомлении "будівництво житлового будинку". 2). В п.7 "...вказана площа господарських споруд, але згідно повідомленню про початок виконання будівельних робіт, зазначені споруди відсутні" Вот фото пункта 7. Где там у меня в декларации сказано о "господарських спорудах"??? И еще вопрос: как думаете? Пора жаловаться или исправить им 2 этих пункта и, если уж опять вернут, то писать во все инстанции??? Написала таки только что письмо в ДАБИ Украины. Наверное, неправильно в п.7 там, где после таблицы, я указала 44,6 м, да? 1. Везде должно быть, как в стройпаспорте. 2. Да, у Вас заявлено строительстов только дома, значит хозпостроек в декларации быть не может. 3. Я вижу, что у Вас 44,6 кв.м - это хозпостройки. ИМХО, это Ваши ошибки, поэтому особого смысла в жалобах не вижу. 1 Посилання на коментар Поділитися на інших сайтах More sharing options...
apxitektop Опубліковано: 24 березня 2015 Поділитись Опубліковано: 24 березня 2015 Добрый день! Прошу помощи знающих форумчан, пришел и мне отказ в регистрации декларации (Отказ 1-2). Подскажите какую дату мне указать - дату входящего письма и соответственно номер входящего или дату отправки (13.03.2014, тогда какой регистрационный номер указать). И по второму пункту "Інформація про документ, що посвідчує право власності чи користування земельною ділянкою" указал точно так же как и в уведомлении, тогда в чем ошибка. Я еще посмотрел на строй паспорт, там под фразой документ указано: "Державний акт на право власності на земельну ділянку серія ЯМ № ______виданий управлінням Держкомзему у Васильківському районі 22.10.2012 р". Подскажите что указать, а то не хочется по сто раз отправлять... 1. Дату подачи (если подавали почтой, то согласно чека и описи) + номер КС... 2. Пишите идентично в Декларацию (если, конечно, документ не изменился). 1 Посилання на коментар Поділитися на інших сайтах More sharing options...
svetlan-ka Опубліковано: 24 березня 2015 Поділитись Опубліковано: 24 березня 2015 Спасибо за ответы. Исправила. Завтра мама поедет подавать. Посилання на коментар Поділитися на інших сайтах More sharing options...
SashHen Опубліковано: 24 березня 2015 Поділитись Опубліковано: 24 березня 2015 1. Дату подачи (если подавали почтой, то согласно чека и описи) + номер КС... 2. Пишите идентично в Декларацию (если, конечно, документ не изменился). 1. Спасибо, здесь разобрались. А по поводу второго, точно также было указано и в уведомлении... Что здесь им не понравилось я не пойму. Посилання на коментар Поділитися на інших сайтах More sharing options...
apxitektop Опубліковано: 24 березня 2015 Поділитись Опубліковано: 24 березня 2015 1. Спасибо, здесь разобрались. А по поводу второго, точно также было указано и в уведомлении... Что здесь им не понравилось я не пойму. Если у Вас все точно, то я в такой ситуации всегда подаю жалобу) Посилання на коментар Поділитися на інших сайтах More sharing options...
SashHen Опубліковано: 25 березня 2015 Поділитись Опубліковано: 25 березня 2015 Если у Вас все точно, то я в такой ситуации всегда подаю жалобу) Все-таки допустил ошибку я, в номере поставил лишний нолик И еще хотел спросить.. у меня на участке есть старый дом, который я решил переоформить под летнюю кухню... мне в графе "загальна площа нежитлових будівель об’єкта" указывать площадь летней кухни? Посилання на коментар Поділитися на інших сайтах More sharing options...
apxitektop Опубліковано: 25 березня 2015 Поділитись Опубліковано: 25 березня 2015 Все-таки допустил ошибку я, в номере поставил лишний нолик И еще хотел спросить.. у меня на участке есть старый дом, который я решил переоформить под летнюю кухню... мне в графе "загальна площа нежитлових будівель об’єкта" указывать площадь летней кухни? А как у Вас в стройпаспорте и в Уведомлении указано? Посилання на коментар Поділитися на інших сайтах More sharing options...
SashHen Опубліковано: 25 березня 2015 Поділитись Опубліковано: 25 березня 2015 А как у Вас в стройпаспорте и в Уведомлении указано? Не помню, вечером буду дома, посмотрю. Посилання на коментар Поділитися на інших сайтах More sharing options...
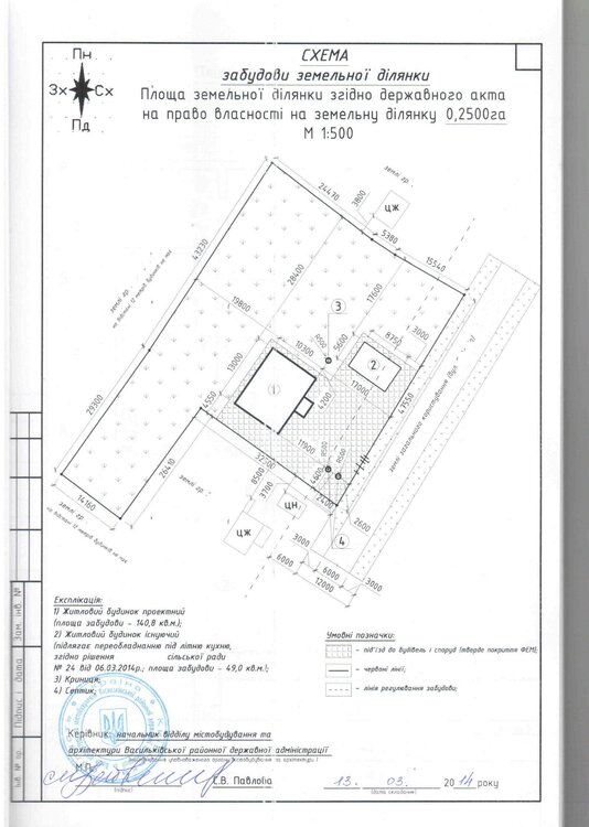
SashHen Опубліковано: 25 березня 2015 Поділитись Опубліковано: 25 березня 2015 Смотрю, смотрю... А на что смотреть? В уведомлении указано «нове будивныцтво». В стройпаспорте на «схеме» под №2 существующий дом (підлягає переобладнанню під літню кухню згідно рішення СР №...). На что еще смотреть, что делать? Посилання на коментар Поділитися на інших сайтах More sharing options...
apxitektop Опубліковано: 25 березня 2015 Поділитись Опубліковано: 25 березня 2015 Смотрю, смотрю... А на что смотреть? В уведомлении указано «нове будивныцтво». В стройпаспорте на «схеме» под №2 существующий дом (підлягає переобладнанню під літню кухню згідно рішення СР №...). На что еще смотреть, что делать? А название объекта как звучит (согласно СП)? Посилання на коментар Поділитися на інших сайтах More sharing options...
SashHen Опубліковано: 25 березня 2015 Поділитись Опубліковано: 25 березня 2015 Індивідуальний житловий будинок Посилання на коментар Поділитися на інших сайтах More sharing options...
apxitektop Опубліковано: 25 березня 2015 Поділитись Опубліковано: 25 березня 2015 Індивідуальний житловий будинок ИМХО, не очень хорошо... Хотя может в регистрационной не будут цепляться к тому, что в декларации будет только дом, а второй объект указан только в СП. Я в такой ситуации страхуюсь - все в название СП прошу записать. Посилання на коментар Поділитися на інших сайтах More sharing options...
SashHen Опубліковано: 25 березня 2015 Поділитись Опубліковано: 25 березня 2015 ИМХО, не очень хорошо... Хотя может в регистрационной не будут цепляться к тому, что в декларации будет только дом, а второй объект указан только в СП. Я в такой ситуации страхуюсь - все в название СП прошу записать. Так мне в декларации что нибудь дописывать или исправить ошибки присланнын из ГАСИ? Посилання на коментар Поділитися на інших сайтах More sharing options...
apxitektop Опубліковано: 25 березня 2015 Поділитись Опубліковано: 25 березня 2015 Так мне в декларации что нибудь дописывать или исправить ошибки присланнын из ГАСИ? Для ГАСКа у Вас "есть" только дом, и если Вы внесете что-то в площадь хозпостроек, то получите отказ... ИМХО, сейчас проще всего исправить название объекта в СП - внести изменения в Уведомление - подать декларацию на дом и хозпостройку. 1 Посилання на коментар Поділитися на інших сайтах More sharing options...
SashHen Опубліковано: 26 березня 2015 Поділитись Опубліковано: 26 березня 2015 а если сейчас просто оформить новый дом, а потом через пару лет когда я буду строить сарай зарегистрировать и летнюю кухню. Чем чревато? Посилання на коментар Поділитися на інших сайтах More sharing options...
apxitektop Опубліковано: 26 березня 2015 Поділитись Опубліковано: 26 березня 2015 а если сейчас просто оформить новый дом, а потом через пару лет когда я буду строить сарай зарегистрировать и летнюю кухню. Чем чревато? Вариант. А вдруг кто-то из гаска заедет?.. Будут потом голову морочить. Посилання на коментар Поділитися на інших сайтах More sharing options...
SashHen Опубліковано: 26 березня 2015 Поділитись Опубліковано: 26 березня 2015 Вариант. А вдруг кто-то из гаска заедет?.. Будут потом голову морочить. Даже не знаю что делать... Если вносить изменения в СП и уведомлении, это получается нужно переделывать полностью стройпаспорт? Посилання на коментар Поділитися на інших сайтах More sharing options...
apxitektop Опубліковано: 26 березня 2015 Поділитись Опубліковано: 26 березня 2015 Даже не знаю что делать... Если вносить изменения в СП и уведомлении, это получается нужно переделывать полностью стройпаспорт? Нет, это именно внесение изменений. Обычно, переделывает схему застройки + титулку (из-за названия; если б не название, то только схему застройки (в Вашем случае)). Посилання на коментар Поділитися на інших сайтах More sharing options...
SashHen Опубліковано: 26 березня 2015 Поділитись Опубліковано: 26 березня 2015 Нет, это именно внесение изменений. Обычно, переделывает схему застройки + титулку (из-за названия; если б не название, то только схему застройки (в Вашем случае)). Мне нужно поменять титулку и все, та как на схеме у меня указано, верно? Посилання на коментар Поділитися на інших сайтах More sharing options...
apxitektop Опубліковано: 26 березня 2015 Поділитись Опубліковано: 26 березня 2015 Мне нужно поменять титулку и все, та как на схеме у меня указано, верно? Либо менять название на титулке, либо идти так, и потом это в регистрационной показывать. Не могу сказать, что будет проще и быстрее. Посилання на коментар Поділитися на інших сайтах More sharing options...
SashHen Опубліковано: 26 березня 2015 Поділитись Опубліковано: 26 березня 2015 Большое спасибо! Буду подавать декларацию как есть, а потом решать проблемы по мере возникновения... По результат буду отписываться.:beer: Посилання на коментар Поділитися на інших сайтах More sharing options...
apxitektop Опубліковано: 26 березня 2015 Поділитись Опубліковано: 26 березня 2015 Большое спасибо! Буду подавать декларацию как есть, а потом решать проблемы по мере возникновения... По результат буду отписываться.:beer: Думаю, так будет быстрее, а там... посмотрим) Удачи! 1 Посилання на коментар Поділитися на інших сайтах More sharing options...
vp69 Опубліковано: 26 березня 2015 Поділитись Опубліковано: 26 березня 2015 Добрый день. Может кто подскажет ? Есть два акта на участок 1/2 и 1/2, надо ли в декларацию о готовности вписывать обоих собственников или одного ? В декларации вроде как и в тех. паспорте вписывается только заказчик. Посилання на коментар Поділитися на інших сайтах More sharing options...
apxitektop Опубліковано: 26 березня 2015 Поділитись Опубліковано: 26 березня 2015 Добрый день. Может кто подскажет ? Есть два акта на участок 1/2 и 1/2, надо ли в декларацию о готовности вписывать обоих собственников или одного ? В декларации вроде как и в тех. паспорте вписывается только заказчик. А в уведомлении сколько? Надо двоих. Посилання на коментар Поділитися на інших сайтах More sharing options...
Рекомендовані повідомлення
Створіть акаунт або увійдіть у нього для коментування
Ви маєте бути користувачем, щоб залишити коментар
Створити акаунт
Зареєструйтеся для отримання акаунта. Це просто!
Зареєструвати акаунтУвійти
Вже зареєстровані? Увійдіть тут.
Увійти зараз