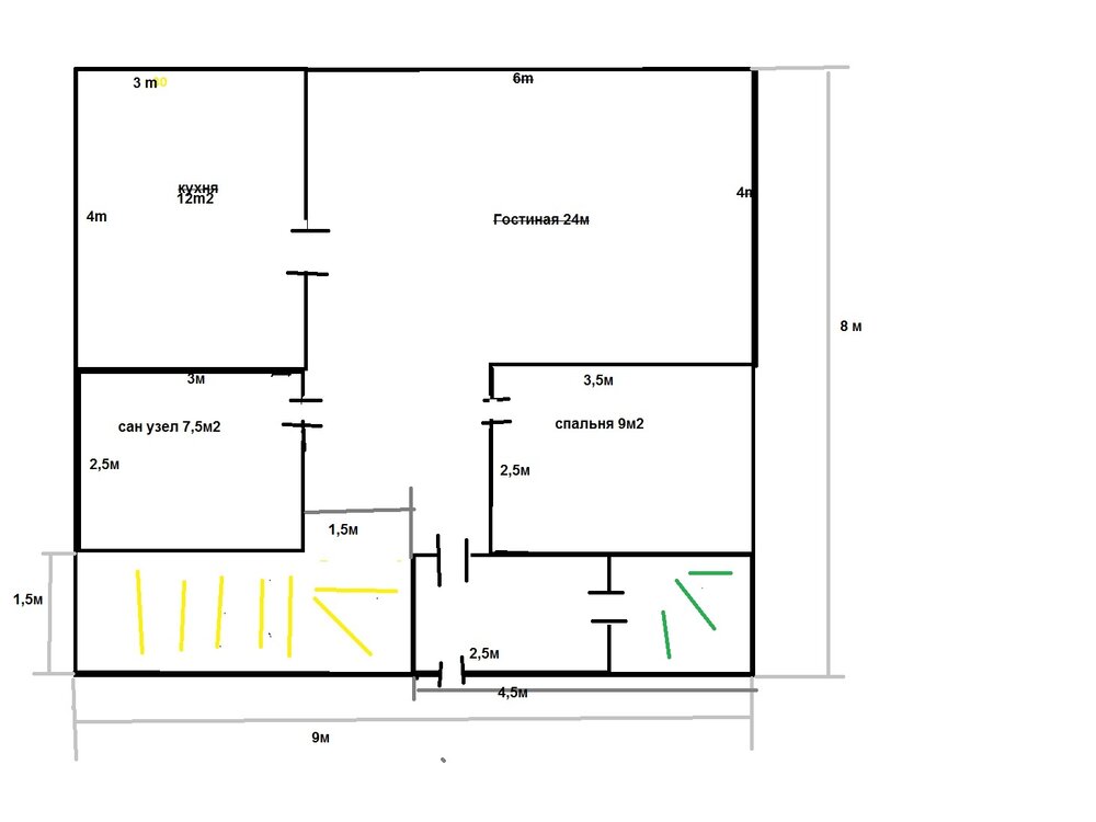
лысый25 Опубліковано: 15 лютого 2012 Поділитись Опубліковано: 15 лютого 2012 не пинайте сильно... И так не то чтоб ето готовый план так сидел на роботе нарисовал план надеюсь будущего дома, покретикуйте выскажите за и против. Желтые линии лестница на мансарду,( к мансарде руки ищо не дошли). Зеленое линии лестница в цокольный етаж( там же будут установлены все коммуникации типа бойлер, котел.) В сан узле будут расположены прачечная. Теперь готов принимать камни... Посилання на коментар Поділитися на інших сайтах More sharing options...
Музей Опубліковано: 15 лютого 2012 Поділитись Опубліковано: 15 лютого 2012 Напрасно Вы камней боитесь. Это не план дома. Это спички, небрежно разбросанные на столе. Работайте дальше. 1 Посилання на коментар Поділитися на інших сайтах More sharing options...
apxitektop.s Опубліковано: 15 лютого 2012 Поділитись Опубліковано: 15 лютого 2012 не пинайте сильно... И так не то чтоб ето готовый план так сидел на роботе нарисовал план надеюсь будущего дома, покретикуйте выскажите за и против. Желтые линии лестница на мансарду,( к мансарде руки ищо не дошли). Зеленое линии лестница в цокольный етаж( там же будут установлены все коммуникации типа бойлер, котел.) В сан узле будут расположены прачечная. Теперь готов принимать камни... Самое главное, что вы определились с набором помещений, правильным будет следующий этап действий - отдайте в работу архитектору Посилання на коментар Поділитися на інших сайтах More sharing options...
Alisa3 Опубліковано: 15 лютого 2012 Поділитись Опубліковано: 15 лютого 2012 Прежде чем отдать наброски архитектору поменяйте кухню со спальной местами 1 Посилання на коментар Поділитися на інших сайтах More sharing options...
apxitektop.s Опубліковано: 15 лютого 2012 Поділитись Опубліковано: 15 лютого 2012 Прежде чем отдать наброски архитектору поменяйте кухню со спальной местами Уверен, архитектор посмотрит топосъемку ) и предложит самый оптимальный вариант Посилання на коментар Поділитися на інших сайтах More sharing options...
Alisa3 Опубліковано: 15 лютого 2012 Поділитись Опубліковано: 15 лютого 2012 Уверен, архитектор посмотрит топосъемку ) и предложит самый оптимальный вариант Без Архитектора никуда, но к нему тоже надо идти не с пустыми руками. Надо донести до него все свои "хотелки" пусть и при помощи спичек))) 1 Посилання на коментар Поділитися на інших сайтах More sharing options...
seyvalter Опубліковано: 16 лютого 2012 Поділитись Опубліковано: 16 лютого 2012 2 лысый25 Покладіть перед собою чистий план і умовно поділіть його пополам, перша зона - при вході, обслуговуюча - там розміщуйте сан.вузол, кухню, тамбур і сходи. Кухню і сан.вузол старайтесь помістити поряд - це сильно спростить вам життя при прокладці комунікацій. В другій зоні - житловій - садіть спальню ( робіть 12 кв. МІНІМУМ) і вітальню. Ще - при розташувані приміщень думайте одразу як і чим будете перекривати - це теж внесе свою поправку в розташуванні стін.А краще - дайте це в руки спеціаліста, таких будиночків море розроблених, в мене самого різних варіацій на цю тему мінімум два-три десятки. Посилання на коментар Поділитися на інших сайтах More sharing options...
Archist Опубліковано: 16 лютого 2012 Поділитись Опубліковано: 16 лютого 2012 2 лысый25 Покладіть перед собою чистий план і умовно поділіть його пополам, перша зона - при вході, обслуговуюча - там розміщуйте сан.вузол, кухню, тамбур і сходи. Кухню і сан.вузол старайтесь помістити поряд - це сильно спростить вам життя при прокладці комунікацій. В другій зоні - житловій - садіть спальню ( робіть 12 кв. МІНІМУМ) і вітальню. Ще - при розташувані приміщень думайте одразу як і чим будете перекривати - це теж внесе свою поправку в розташуванні стін.А краще - дайте це в руки спеціаліста, таких будиночків море розроблених, в мене самого різних варіацій на цю тему мінімум два-три десятки. Ну нельзя же все секреты раскрывать посторонним! Так скоро по миру пойдем! ;) 1 Посилання на коментар Поділитися на інших сайтах More sharing options...
vopros'nik Опубліковано: 16 лютого 2012 Поділитись Опубліковано: 16 лютого 2012 Ну нельзя же все секреты раскрывать посторонним! Так скоро по миру пойдем! ;) А я думала наоборот, мы к вам с готовыми почти эсскизами придем: и работа будет и работать меньше. Разве не об этом сейчас все мечтают Посилання на коментар Поділитися на інших сайтах More sharing options...
лысый25 Опубліковано: 16 лютого 2012 Автор Поділитись Опубліковано: 16 лютого 2012 Прежде чем отдать наброски архитектору поменяйте кухню со спальной местами Спальня ето будет не совсем спальня, когда молоды планируется использовать как кабинет, но если станет сложно ходить на второй етаж то станет спальной. А кухню то не хотелось переносить от сан узла далеко, чтоб с коммуникациям не мучатся. А что скажет "Шановна Громада " по поводу лестницы на второй етаж не много ли 1.5 метра???? Да и ищо сколько нужно места чтоб лестница не была крутая, и удобна для пользования высота потолка планируется 2.7м. Спасибо всем хто откликнулся. Раньше мысли о стройке не было, а сейчас только про ето думаю надеюсь етот сайт и его пользователи мне в помощь... Посилання на коментар Поділитися на інших сайтах More sharing options...
Рекомендовані повідомлення
Створіть акаунт або увійдіть у нього для коментування
Ви маєте бути користувачем, щоб залишити коментар
Створити акаунт
Зареєструйтеся для отримання акаунта. Це просто!
Зареєструвати акаунтУвійти
Вже зареєстровані? Увійдіть тут.
Увійти зараз