S_Lava Опубліковано: 7 березня 2012 Поділитись Опубліковано: 7 березня 2012 Только что позвонили из архитектуры, сказали приехать забрать документы, стройпаспорт готов Поздравляю. Выложите по получению тут, пожалуйста, если можно. Я тоже был сегодня в нашей архитектуре (Вышгород). Топосъемку надо и в электронном виде и только так как они хотят. Сделать может человек (и визитки прям тут, стоит это 1200 грн, но цену не озвучивают, чтоб не травмировать психику клиента следующей цифрой). А вот и следующее число + 2500 грн. архитектуре за услуги. На мой вопрос: - "а как же приказ 103 вашего министерства, и --на безоплатной основе" были сделаны БОООЛЬШИЕ удивленные глаза и дан потрясающий ответ: - "НУ главный архитектор не может всем делать паспорта бесплатно!!!" :D . Действительно... надо же его пожалеть. - "но если вы хотите, можете делать паспорт САМИ" тогда будет безплатно..." (тоном типа - хрен у тя че выйдет. а если выйдет, то не подпишут). Пока они не узнали, что я собираюсь делать сам - то лучший друг, приходи, поможем подскажем. Как только "сам" - то только в приемные дни... :D ---- сейчас делаю Топосъемку, на ее основе в след Среду мне выдадут вымоги до будивныцтва. потом буду Ескиз уже делать. П.С. благодарю всех участников темы. Посилання на коментар Поділитися на інших сайтах More sharing options...
ХХХХ Опубліковано: 7 березня 2012 Поділитись Опубліковано: 7 березня 2012 а топографию дали случайно не Вадим? 066-611-08-18 и 067-736-41-11 если он - то летом цена была 1000, сторговался за 900. Торгуйтесь. Посилання на коментар Поділитися на інших сайтах More sharing options...
ZaMiS Опубліковано: 7 березня 2012 Поділитись Опубліковано: 7 березня 2012 S_Lava, Доброго дня. А разве топосъемка не входит в эти 2500? Посилання на коментар Поділитися на інших сайтах More sharing options...
S_Lava Опубліковано: 7 березня 2012 Поділитись Опубліковано: 7 березня 2012 а топографию дали случайно не Вадим? 066-611-08-18 и 067-736-41-11 если он - то летом цена была 1000, сторговался за 900. Торгуйтесь. Вадим Олексеевич . он. ну я не торговался - раз делать буду сам - два (перелопатил тут много инфы, пока свято верю, что это мне под силу). Добавлено через 1 минуту S_Lava, Доброго дня. А разве топосъемка не входит в эти 2500? Ха.... не-а! У кого есть бабки - башляют и туда и туда. :D 2 Посилання на коментар Поділитися на інших сайтах More sharing options...
dklimock Опубліковано: 7 березня 2012 Автор Поділитись Опубліковано: 7 березня 2012 сейчас делаю Топосъемку, на ее основе в след Среду мне выдадут вымоги до будивныцтва. потом буду Ескиз уже делать. получил вымоги до забудовы. Топосьемку для получения вимог до забудови не сдавал. в первый визит приносил - схему размещения (очень простую) = эскиз намирив забудови - фасады с высотами - план этажей - др. документы по списку. на месте писал заявление. т.е. несите эскиз и получайте намири забудови. Топосьемка теоретически нужна уже на этапе строй паспорта 1 Посилання на коментар Поділитися на інших сайтах More sharing options...
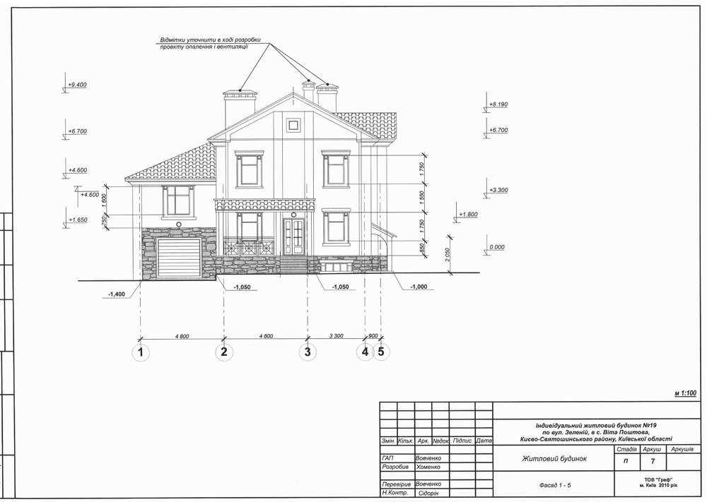
valent75 Опубліковано: 7 березня 2012 Поділитись Опубліковано: 7 березня 2012 - фасады с высотами может кто-нибудь поделиться примером, как это должно выглядеть? Посилання на коментар Поділитися на інших сайтах More sharing options...
dklimock Опубліковано: 7 березня 2012 Автор Поділитись Опубліковано: 7 березня 2012 сдал второй раз строй паспорт. Пока ответа не получил. Морально готовлюсь к осаде. Познавательна такая ссылка правила жалоб виды жалоб Жалоба— обращение с требованием о возобновлении прав и защите законных интересов граждан, нарушенных в результате принятых решений, действий или бездействия публичных и государственных органов власти, их должностных лиц, предприятий, учреждений, организаций, объединений граждан. В данном случае к решениям, действиям или бездействию, которые могут быть обжалованы, относим: - те решения, действия, бездействие, которыми нарушаются права, законные интересы и свободы гражданина (группы граждан); - те решения, действия, бездействие, которыми создаются препятствия для осуществления гражданином его законных интересов, прав и свобод; - те решения, действия, бездействие, которыми незаконно возложены на гражданина какие-либо обязанности или он незаконно привлечен к ответственности. вырисовывается две жалобы 1 . "- те решения, действия, бездействие, которыми создаются препятствия для осуществления гражданином его законных интересов, прав и свобод;" " архтектор ххх в нарушение статьи 27 и наказа 103 не выдает строй паспорт. Чем нарушает право на бесплатное получение строй паспорта. При этом строй паспорт оформлен в соответствии с наказом, вимогами, зауваженнями" 2. - те решения, действия, бездействие, которыми незаконно возложены на гражданина какие-либо обязанности " архтектор ххх в нарушение статьи 27 и наказа 103 не выдает строй паспорт бесплатно а навязывает не указанные в законе услуги негосударственного ТОВ УУУ в сумме 2500 " тут не хватает статей, которые нарушает чиновник навязывая услуги стороннего ТОВ если есть удачные примеры жалоб буду благодарен. далее по иерархии если правильно понимаю то по жалобе на то что паспорт не дает - архитектор - глава ВРА - Киев обл архитектура - Министерство, изадвше 103 наказ - КМУ + фейсбук Азарова - администрация президента по жалобе на навязывание услуг - теже, что и по паспорту плюс - антимонопольный комитет - глава ВРА - прокуратура (навязування обовязкив) - СБУ (лобирование госслужащим интересов сторониих предприятий) ... а всего-то хотел стройпаспорт как все за 800 грн. 3 Посилання на коментар Поділитися на інших сайтах More sharing options...
dklimock Опубліковано: 7 березня 2012 Автор Поділитись Опубліковано: 7 березня 2012 может кто-нибудь поделиться примером, как это должно выглядеть? только можно без деталей. главное высота здания. 2 Посилання на коментар Поділитися на інших сайтах More sharing options...
~UXO~ Опубліковано: 8 березня 2012 Поділитись Опубліковано: 8 березня 2012 Ну и слава богу. Меньше ДБНов - меньше проблем. Согласен с Bами по поводу ДБНов. Но Украина страна ещё та, засады здесь ждут пересичного на каждом углу. Так Bы остаётесь с тем как запланировали, 3.9 м или что? (Должно быть 6м минимум от дома до гаража, архитектура может потребовать 8м. пост #93, от SanderEA ) Я думаю покуда вы не покажите им свой план мы не узнаем как правильно. Ну Bы хоть сообщите потом чем закончилось, приняли или нет ? Для меня лично этот вопрос архиважный, мало места просто. Я пытаюсь всё спланировать максимально компактно, и каких-то 0.5-1м меняют планировку застройки участка существенно. Посилання на коментар Поділитися на інших сайтах More sharing options...
tomtit Опубліковано: 8 березня 2012 Поділитись Опубліковано: 8 березня 2012 Согласен с Bами по поводу ДБНов. Так Bы остаётесь с тем как запланировали, 3.9 м или что? Я думаю покуда вы не покажите им свой план мы не узнаем как правильно. Ну Bы хоть сообщите потом чем закончилось, приняли или нет ? Вы знаете, у меня сейчас проблема посерьёзнее нарисовалась... Нашего участка нет в старом генплане, а новый будет ещё ох как нескоро. А без этого стройпаспорт не дают... Так что я в расстроенных чувствах, и где делать хозпостройку/гараж - это уже вопрос не первой важности. Эскиз этот показывали, насчёт расстояния 3,9 ничего не сказали, но сказали, что надо гараж подвинуть или вперёд, или назад, чтобы не на одной линии с домом. Посилання на коментар Поділитися на інших сайтах More sharing options...
dramaturg Опубліковано: 12 березня 2012 Поділитись Опубліковано: 12 березня 2012 А я уже перешел на уровень ожидающих стройпаспорт/готовящихся к подаче уведомления В К-С районе за стройпаспорт потребовали 600 грн, плюс 600 грн за выезд архитектора на участок. Я поинтересовался, почему, ведь согласно закону это должно быть бесплатно. На что мне ответили, что в архитектуре нет ни мощностей, ни кадров для изготовления стройпаспортов, поэтому они заказывают их у подряднической организации, в которой сами архитекторы и работают, и начальник этой организации находится в том же здании, где и сама архитектура :D Т.е. по закону все чисто, квитанция платится на хозрасчетное предприятие вообще зарегестрированное в Василькове. Сама архитектура выдает все бесплатно (по бумагам) 8-) Вот как наши архитекторы придумали обойти закон. Ну да ладно, времени у меня нет вести войны и самому рисовать стройпаспорт. Я лучше свою работу делать буду, а они уж пусть свою. Посилання на коментар Поділитися на інших сайтах More sharing options...
otark Опубліковано: 12 березня 2012 Поділитись Опубліковано: 12 березня 2012 А я уже перешел на уровень ожидающих стройпаспорт/готовящихся к подаче уведомления В К-С районе за стройпаспорт потребовали 600 грн, плюс 600 грн за выезд архитектора на участок. Блин проспал,еще месяц назад было 850 за все. Посилання на коментар Поділитися на інших сайтах More sharing options...
S_Lava Опубліковано: 12 березня 2012 Поділитись Опубліковано: 12 березня 2012 Я лучше свою работу делать буду, а они уж пусть свою. В том-то и дело. что свою работу они делать не хотят (за зарплату). А занимаются вымагательством. не говоря уже про моральный аспект, подрыв авторитета, затягивание сроков... при прочих режимах страшно-тоталитарных, за такое могли и на соловки. 8-) Посилання на коментар Поділитися на інших сайтах More sharing options...
adrenal1n Опубліковано: 13 березня 2012 Поділитись Опубліковано: 13 березня 2012 А я уже перешел на уровень ожидающих стройпаспорт/готовящихся к подаче уведомления В К-С районе за стройпаспорт потребовали 600 грн, плюс 600 грн за выезд архитектора на участок. Я поинтересовался, почему, ведь согласно закону это должно быть бесплатно. На что мне ответили, что в архитектуре нет ни мощностей, ни кадров для изготовления стройпаспортов, поэтому они заказывают их у подряднической организации, в которой сами архитекторы и работают, и начальник этой организации находится в том же здании, где и сама архитектура :D Т.е. по закону все чисто, квитанция платится на хозрасчетное предприятие вообще зарегестрированное в Василькове. Сама архитектура выдает все бесплатно (по бумагам) 8-) Вот как наши архитекторы придумали обойти закон. Ну да ладно, времени у меня нет вести войны и самому рисовать стройпаспорт. Я лучше свою работу делать буду, а они уж пусть свою. Стоп! Какая-то нестыковка получается Вчера сдал доки на изготовление стройпаспорта в К-Свят.архитектуре (на Янтарной) и заплатил по договору 853,09 гр. 8-) Посилання на коментар Поділитися на інших сайтах More sharing options...
S_Lava Опубліковано: 14 березня 2012 Поділитись Опубліковано: 14 березня 2012 Был сегодня в нашей Архитектуре (Вышгород р-н). 1. к девочкам в кабинет. Грю мол, хочу написать заяву на Строй Паспорт. Они меня отправили к Гл. Архитектору. 2. Гл. Арх. - на удивление - молодой парень. Удивился, что девочки отправили к нему "наверное бумали у них нет", грит. Понял, что хочу сам делать. Не показал и капли недовольства. + ему за это. Продиктовал мне текст заявы. Заява на получение ВЫМОГ до буд паспорту (но не на получение самого паспорта). Я спорить не стал. Додатки мои он не смотрел. (Копии паспорта, ИНН, акта (нот. завер.), ескиз забудовы, выкопировка из генплана (сел. рада дала), проэкт строительства). Сказал. если раньше не позвонят, то через 10 дней прийти за Вымогами. Я Зарегил эту заяву у девочек в кабинете напротив. Попросил сделать ксеру. Ждем 10 дней. 4 Посилання на коментар Поділитися на інших сайтах More sharing options...
dklimock Опубліковано: 14 березня 2012 Автор Поділитись Опубліковано: 14 березня 2012 2. Гл. Арх. - на удивление - молодой парень. Удивился, что девочки отправили к нему "наверное бумали у них нет", грит. Понял, что хочу сам делать. Не показал и капли недовольства. + ему за это. Продиктовал мне текст заявы. Заява на получение ВЫМОГ до буд паспорту аналогично - сначала заява на вимоги к заяве прилагал и взяли эскиз, планы, фасады, копию акта. и по отношению "Не показал и капли недовольства. + ему за это" на этом этапе аналогично. Посилання на коментар Поділитися на інших сайтах More sharing options...
ХХХХ Опубліковано: 14 березня 2012 Поділитись Опубліковано: 14 березня 2012 вымоги будут готовы даже через неделю - нужно звонить, спрашивать.... я тоже сегодня пообщался с Лыковым. основное резюме - заплати и ты упростишь себе жизнь. но я, наверно, упрощать жизнь ни себе ни ему не буду. ещё одну бумажку раздобуду - и буду подавать свой СП на рассмотрение... а там посмотрим... Посилання на коментар Поділитися на інших сайтах More sharing options...
dklimock Опубліковано: 14 березня 2012 Автор Поділитись Опубліковано: 14 березня 2012 вымоги будут готовы даже через неделю - нужно звонить, спрашивать.... я тоже сегодня пообщался с Лыковым. основное резюме - заплати и ты упростишь себе жизнь. но я, наверно, упрощать жизнь ни себе ни ему не буду. ещё одну бумажку раздобуду - и буду подавать свой СП на рассмотрение... а там посмотрим... подробности давай к чему придерался? за какой бумажкой послал? по "ты упростишь себе жизнь" как именно это было? тут есть ньюансы от "только если залатишь, только тогда это станет ВОЗМОЖНО" до "если заплатишь, то придется меньше бегать и делать самому" торговаться пробовали? Добавлено через 1 минуту учитывая название ветки прошу строй паспорт в своей редакции в студию Посилання на коментар Поділитися на інших сайтах More sharing options...
Вячеслав2008 Опубліковано: 14 березня 2012 Поділитись Опубліковано: 14 березня 2012 у меня акт на руках в 2500 грн входит 1 Ситуаційна схема-700 Схема обмежень забудови 1770 Друк та брошування матеріалів 30 :D+300 грн за то что заполнят письмо для отправки Вот такая грустная картина Посилання на коментар Поділитися на інших сайтах More sharing options...
dklimock Опубліковано: 14 березня 2012 Автор Поділитись Опубліковано: 14 березня 2012 Вот такая грустная картина а чего грустная картина? паспорт на руках. с архитектором не посорились и если что он поможет. Можете начинать стройку. У самоделкиных сроки не определены. Результат не гарантирован. Последствия неясны. если правильно понимаю, у Вас строй паспорт состоит из 3-х странц: 1. Титулка 2. Вимоги 3. Схема. Можете выложить схему ? Посилання на коментар Поділитися на інших сайтах More sharing options...
otark Опубліковано: 14 березня 2012 Поділитись Опубліковано: 14 березня 2012 подробности давай торговаться пробовали? У меня появилась мысль,а не попробовать ли Вам приватно побеседовать с девочкой,может она грн так за 500-600 нарисует "как надо" и потом сдадите. Она же наверняка знает все подводные камни. Посилання на коментар Поділитися на інших сайтах More sharing options...
ХХХХ Опубліковано: 14 березня 2012 Поділитись Опубліковано: 14 березня 2012 (змінено) ну у меня специфическая ситуация - закрытое кладбище в 200м. по Санитарным Нормам отступ 100м, но там иногда дозахороняют. Лыков настаивает, что нужен высновок института им.Марзеева. я не согласен, но высновок буду делать. на вопрос - "А если заплатить 2500, то будет всё проще?" ответ - "Попробуйте!" но зачем вам как и что он сказал. сегодня - так, завтра - сяк. идите на приём и общайтесь. мозольте глаза, задавайте впоросы. никто вас откровенно не пошлёт. а вам будет информация. рисуйте разные варианты Ескиза. Откажут - перерисовуйте. свой эскиз пока не буду выкладывать - вдруг что не так. сдам - получу СП - выложу. Змінено 14 березня 2012 користувачем ХХХХ Посилання на коментар Поділитися на інших сайтах More sharing options...
vova49805kk Опубліковано: 14 березня 2012 Поділитись Опубліковано: 14 березня 2012 ну у меня специфическая ситуация - закрытое кладбище в 200м. по Санитарным Нормам отступ 100м, но там иногда дозахороняют. Лыков настаивает, что нужен высновок института им.Марзеева. я не согласен, но высновок буду делать. . Кладбище решением сильрады может быть закрыто только вот районная СЕС в Дымере по Вышгородскому району санитарную зону не уменьшала и она ещё стех времён когда кладбище было открыто могла оставить зону 300 метров.И у Лыкова 100 процент основания Вам отказать.Узнать о размере зоны можно в Вашей сельраде.Я просто через эту ситуацию проходил и не всё так просто если зона 300 метров окажеться. 1 Посилання на коментар Поділитися на інших сайтах More sharing options...
S_Lava Опубліковано: 28 березня 2012 Поділитись Опубліковано: 28 березня 2012 Среда. я в коммандировке, а так бы уже надо біло идти за вsымогами. У кого какие новости, ребята. пишите не ленитесь. Посилання на коментар Поділитися на інших сайтах More sharing options...
S_Lava Опубліковано: 3 квітня 2012 Поділитись Опубліковано: 3 квітня 2012 Все уже сделали Паспорта? какие планы/успехи? Я получил Вымогы. Осканить нет возможности. завтра постараюсь. ну там необычного ничего нет. 2) До красных линий и лини регулировки застройки - 6 м 3) до меж земельної ділянки - 3 м 4) до існуючих споруд - 10 м 6) до вулиць 7м (9м) завтра понесу задавать заяву и паспорт. Посилання на коментар Поділитися на інших сайтах More sharing options...
Рекомендовані повідомлення
Створіть акаунт або увійдіть у нього для коментування
Ви маєте бути користувачем, щоб залишити коментар
Створити акаунт
Зареєструйтеся для отримання акаунта. Це просто!
Зареєструвати акаунтУвійти
Вже зареєстровані? Увійдіть тут.
Увійти зараз