mebli-land Опубліковано: 9 квітня 2012 Поділитись Опубліковано: 9 квітня 2012 (змінено) Добрый день. Недавно приобрел участок 20х30м ( 6 соток). Вот решил занятся строительством домика. В етом деле я полный ноль. Но изучая темы в етом форуме, понял что всему можно научится. Поетому имея большое желание начинаю ето не легкое дело. Если есть желание, прошу вас помощи в критике и предложениях для реализации етого проекта. Змінено 9 квітня 2012 користувачем mebli-land Плохое качество вложений 1 Посилання на коментар Поділитися на інших сайтах More sharing options...
mebli-land Опубліковано: 9 квітня 2012 Автор Поділитись Опубліковано: 9 квітня 2012 После того как снег сошел и я перый раз приехал на участок с огромным желанием уже что то делать, оказалось очень много помех встретилось на моем пути. Тот лес в конце участка казался гораздо менше чем когда мы взялись все ето резать. Но ето так лрика. Короче фундамент я собрался делать ленточный. Ширина траншеи 40см, глубина 1,3м и высота цоколя 40см. В первый же день занялся разметкой. Благодаря елементарной математике с 4-го раза выставил диагонали и мы приступили к рытью траншеи ( Я и Брат моей жены) Посилання на коментар Поділитися на інших сайтах More sharing options...
mebli-land Опубліковано: 9 квітня 2012 Автор Поділитись Опубліковано: 9 квітня 2012 Вот и лес. После погружения в него мы даже обнаружили сортир с обьозначение "М" и "Жо". Правда он в состоянии не стояния. Поетому прийдется его уничтожить. Посилання на коментар Поділитися на інших сайтах More sharing options...
mebli-land Опубліковано: 9 квітня 2012 Автор Поділитись Опубліковано: 9 квітня 2012 На участке имеется скважина ( соседи говорят что 32м глубиной) . Но вода не питьевая. Ну да ничего. Все лучше, чем если бы вовсе небыло воды. А так же есть маленький деревянный домик 2х2м. Тоже радость. Хоть есть где от дождя спрятатся и инструменты поскладывать. Правда в домик поначалу зайти было не возможно (хлама куча). Пришлось пол дня выносить все и палить не нужное. Посилання на коментар Поділитися на інших сайтах More sharing options...
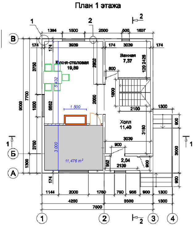
mebli-land Опубліковано: 9 квітня 2012 Автор Поділитись Опубліковано: 9 квітня 2012 По образованию инженер механик ( а вообще занимаюсь изготовлением мебели на заказ). Знаю не плохо Автокад. Поетому решил Спроектировать свой дом в Етой программе. Вот что получилось с проектом первого етажа и лестницы. Посилання на коментар Поділитися на інших сайтах More sharing options...
mebli-land Опубліковано: 9 квітня 2012 Автор Поділитись Опубліковано: 9 квітня 2012 Кто что скажет по поводу планировки? Посилання на коментар Поділитися на інших сайтах More sharing options...
whisker Опубліковано: 9 квітня 2012 Поділитись Опубліковано: 9 квітня 2012 Кто что скажет по поводу планировки? Для начала обозначьте положение дома на участке, поставьте стороны света. Из чего хотите строиться? Судя по всему проект заточен под кирпич. Так как деление длины стены на длину кирпича плюс шов дает целое число. Если будет выбран другой материал, прикиньте целочисленное количество элементов конструкции (чтобы не резать). Возможно, немного поплывут размеры. Расставьте мебель на плане, станет легче ориентироваться, куда чего двигать. Тогда будет более предметный разговор. Посилання на коментар Поділитися на інших сайтах More sharing options...
mebli-land Опубліковано: 9 квітня 2012 Автор Поділитись Опубліковано: 9 квітня 2012 План на участке уже разметил . План прилагается. Строить буду з пеноблоков 600х200х300. Ширина фундамента 40см. Блоки планирую ставить за подлицо с фундаментом по наружной стороне. Участок :Размеры 20м на 30м. Расстояние от левого забора 3метра и от лицегого забора 4,2м. По центру участка скважина и справа от дома септик.( 3 кольца по 1.5м диаметр). Посилання на коментар Поділитися на інших сайтах More sharing options...
mebli-land Опубліковано: 9 квітня 2012 Автор Поділитись Опубліковано: 9 квітня 2012 (змінено) Вот визуализация проекта Змінено 9 квітня 2012 користувачем mebli-land Плохое качество Посилання на коментар Поділитися на інших сайтах More sharing options...
mebli-land Опубліковано: 9 квітня 2012 Автор Поділитись Опубліковано: 9 квітня 2012 Не могу выставить проект в хорошем качестве. Вот ссылка на проект.www.forumhouse.ru/threads/149111/#post-3882954 Посилання на коментар Поділитися на інших сайтах More sharing options...
April Опубліковано: 9 квітня 2012 Поділитись Опубліковано: 9 квітня 2012 В етом деле я полный ноль. Но изучая темы в етом форуме, понял что всему можно научится. Поетому имея большое желание начинаю ето не легкое дело. Стесняюсь спросить.....а Вы букву "Э" специально не используете в лексиконе? 4 Посилання на коментар Поділитися на інших сайтах More sharing options...
mebli-land Опубліковано: 9 квітня 2012 Автор Поділитись Опубліковано: 9 квітня 2012 C расстоновкой мебели. Тут все просто. Ведь сам мебельщик. Ну вот к примеру будет кухня. Посилання на коментар Поділитися на інших сайтах More sharing options...
mebli-land Опубліковано: 9 квітня 2012 Автор Поділитись Опубліковано: 9 квітня 2012 )))) С буквой "Э". Да просто не обращаю не ето внимание. Ну если вас ето смущает будем и Эту букву использовать.)) 4 Посилання на коментар Поділитися на інших сайтах More sharing options...
mebli-land Опубліковано: 14 квітня 2012 Автор Поділитись Опубліковано: 14 квітня 2012 Еще раз всем привет. За эти пару будних дней смог вырватся на участок и попалить все деревья которые там подсохли. А так же прокопали траншею в 1,5 стены глубиной 125см. Такой вопрос. Грунт в сечении получился такой: чернозем 40см, глина 15см и остальные 70см песок. Вопрос: может ли являться этот песок подложкой под фундамент и надо ли его разравнивать в уровень? Добавлено через 6 минут И еще вопрос по арматуре: Изначально планировал укладку арматуры таким образом. 2 прута диаметром 12 с верху и снизу. плюс вертикальные поперечки через 0,5м. То есть в виде с боку получается прямоугольник. А вот тесть предложил 1 арматуру сверху и 2 с низу. То есть в сечении треугольник. Но я такого еще не встречал по форуму. Возможен ли такой вариант. Заранее спасибо за ответ. Посилання на коментар Поділитися на інших сайтах More sharing options...
Koskos Опубліковано: 14 квітня 2012 Поділитись Опубліковано: 14 квітня 2012 А где вы строитесь? и зачем вам нужен этот дом? Посилання на коментар Поділитися на інших сайтах More sharing options...
mebli-land Опубліковано: 17 квітня 2012 Автор Поділитись Опубліковано: 17 квітня 2012 А где вы строитесь? и зачем вам нужен этот дом? Строюсь в кооперативе Займище. Бориспольский район. А зачем? Потому что хочу перевезти мать поближе, да и на будущее свой дом не помешает. Посилання на коментар Поділитися на інших сайтах More sharing options...
brw Опубліковано: 17 квітня 2012 Поділитись Опубліковано: 17 квітня 2012 Во сколько Вам обошелся Етот участок? Когда покупали? Добавлено через 2 минуты ...Строить буду з пеноблоков 600х200х300. .... А чего из пеноблоков? Почему не хотите газоблоки? Березань вроде не так далеко.. Посилання на коментар Поділитися на інших сайтах More sharing options...
сергійВ Опубліковано: 17 квітня 2012 Поділитись Опубліковано: 17 квітня 2012 Во сколько Вам обошелся Етот участок? Когда покупали? Добавлено через 2 минуты А чего из пеноблоков? Почему не хотите газоблоки? Березань вроде не так далеко.. Я теж не радивби піноблоки їх зазвичай роблять в кустарних умовах і відповідно якість і міцність і розміри 1 Посилання на коментар Поділитися на інших сайтах More sharing options...
1phantom Опубліковано: 18 квітня 2012 Поділитись Опубліковано: 18 квітня 2012 А где вы строитесь? и зачем вам нужен этот дом? Строюсь в кооперативе Займище. Бориспольский район. А зачем? Потому что хочу перевезти мать поближе, да и на будущее свой дом не помешает. Молодец. Решил строится - отлично,респект. Только большая просьба поменьше грамматических ошибок прочитал 17 постов и уже не интересно. Удачи и натхнення. Посилання на коментар Поділитися на інших сайтах More sharing options...
mebli-land Опубліковано: 18 квітня 2012 Автор Поділитись Опубліковано: 18 квітня 2012 Вчера долго думал над вопросом: пеноблок или газаблок....И решил брать газоблоки "Стоунлайт". И проще в кладке (гребень-паз). Да и видео много просмотрел о качестве пеноблоков....(качества нет). Поэтому соглашусь с вами...ГАЗОБЕТОН! Добавлено через 3 минуты Во сколько Вам обошелся Етот участок? Когда покупали? Участок обошелся в 6000 у.е. А покупали совсем недавно, февраль 2012года. Искал принципиально в этом кооперативе так как там родственники уже построились. И переночевать есть где, если что...и помощь может какая будет. Добавлено через 8 минут Вот стены второго этажа. Подскажите, правильно ли я спроектировал фронтоны? Посилання на коментар Поділитися на інших сайтах More sharing options...
mebli-land Опубліковано: 18 квітня 2012 Автор Поділитись Опубліковано: 18 квітня 2012 Вот вложение.... Посилання на коментар Поділитися на інших сайтах More sharing options...
brw Опубліковано: 18 квітня 2012 Поділитись Опубліковано: 18 квітня 2012 ...ГАЗОБЕТОН!... Правильное решение. Только при кладке обязательно используйте клей, а не цементный раствор. С клеем намного приятнее работать и толщина шва получается небольшой. Также, обязательно обратите внимание как устраиваются армопояса, перемычки над окнами и дверьми. Посилання на коментар Поділитися на інших сайтах More sharing options...
Artyomovets Опубліковано: 18 квітня 2012 Поділитись Опубліковано: 18 квітня 2012 удачи в строительстве. по поводу газоблока - правильное решение. скажите, а почему вы не выкладываете картинки с превью? Посилання на коментар Поділитися на інших сайтах More sharing options...
mebli-land Опубліковано: 18 квітня 2012 Автор Поділитись Опубліковано: 18 квітня 2012 А обязательно ли через каждые 4 ряда, делать армопояс? И "превью" как делать? Я просто загружаю файл и все. Посилання на коментар Поділитися на інших сайтах More sharing options...
Artyomovets Опубліковано: 18 квітня 2012 Поділитись Опубліковано: 18 квітня 2012 И "превью" как делать? Я просто загружаю файл и все. как в первых 4-х сообщениях Посилання на коментар Поділитися на інших сайтах More sharing options...
Рекомендовані повідомлення
Створіть акаунт або увійдіть у нього для коментування
Ви маєте бути користувачем, щоб залишити коментар
Створити акаунт
Зареєструйтеся для отримання акаунта. Це просто!
Зареєструвати акаунтУвійти
Вже зареєстровані? Увійдіть тут.
Увійти зараз