Gopchik Опубліковано: 13 липня 2012 Поділитись Опубліковано: 13 липня 2012 Всем доброго дня и удачных строек! Ну вот и дошла очередь до моего строительства, когда могу рассказывать о своей стройке и выкладывать фото. Так что смотрите, критикуйте, давайте советы. По порядку: Территориально нахожусь в Днепропетровской обл. г. Новомосковск. район под Орловщиной. Участок 6 соток. Достался от дедушки. Ну о том что там было изначально, вспоминать не хочеться. Бурьяны выше головы, старые сарайчики, курятники. и был дом размером 6х8.постройки наверно 60-70 годов. Дом из шлакоблока, обложенный силикатным кирпичем. Дача досталась мне в 2005 году. Поэтому решил основательно взяться, и навести порядок. Ну я не буду рассказывать что изначально старый дом я привел в порядок (м/п окна, камин, комната отдыха, кухня, парилка, душ.). И после того как решился на основательный и большой дом, пришлось это все завалить, разобрать. На участке у меня полный порядок, газоны, цветы, автоматические поливы, беседка 2011 года постойки. И вот этот день настал. Начало возведения стен было начато 12.06. На день Петра и Павла. Решил в праздник т.к. сам Павел Петрович. Итак по порядку: Фундамент - ленточный, заливался в два этапа. Размер дома 7,5 х 11,5. Размер фундамента 45 ширина х110 глубина. По периметру фундамента армопояс, 20х30 с арматурой. Вот примерный проект дома. см фото. Завтра выложу фото непосредственно кладки газобетона. Дом строиться из Гб 200х300х600 производство UDK. Плотнось 400. По наруже ппс + короед. Дом в 1,5 этажа, мансардный. 1 Посилання на коментар Поділитися на інших сайтах More sharing options...
Gopchik Опубліковано: 13 липня 2012 Автор Поділитись Опубліковано: 13 липня 2012 собственно еще фото как на участке. 3 Посилання на коментар Поділитися на інших сайтах More sharing options...
Gopchik Опубліковано: 13 липня 2012 Автор Поділитись Опубліковано: 13 липня 2012 а это то что было раньше. Посилання на коментар Поділитися на інших сайтах More sharing options...
wipe Опубліковано: 13 липня 2012 Поділитись Опубліковано: 13 липня 2012 Ох какое ошибочное решение утеплять газобетон пенопластом, вы даже ничего не экономите на этом, 400 ГБ не требует утепления, и стена намного надежнее получается, но то такое, даже говорить про это не хочется, может вы нам раскажете, чем обусловлен такой ваш выбор ? 2 Посилання на коментар Поділитися на інших сайтах More sharing options...
Gopchik Опубліковано: 13 липня 2012 Автор Поділитись Опубліковано: 13 липня 2012 (змінено) Ох какое ошибочное решение утеплять газобетон пенопластом, вы даже ничего не экономите на этом, 400 ГБ не требует утепления, и стена намного надежнее получается, но то такое, даже говорить про это не хочется, может вы нам раскажете, чем обусловлен такой ваш выбор ? Не в обиду, но я не хочу обсуждать тему насчет обклейки пенопластом. Скажу так: 1. Он у меня есть. 2. Будет теплее. Надеюсь разговоры о гб и ппс возникать не будут. Добавлено через 37 секунд 400 гб 40 см не требует утепления, а 400 гб и 30 см требует. Хотя я тоже против ппс в качестве утеплителя Ничего плохого в этом не вижу. спасибо. Змінено 13 липня 2012 користувачем Валерий Валентинович п 4 Посилання на коментар Поділитися на інших сайтах More sharing options...
Gopchik Опубліковано: 14 липня 2012 Автор Поділитись Опубліковано: 14 липня 2012 фото возведения стен Посилання на коментар Поділитися на інших сайтах More sharing options...
kasean Опубліковано: 14 липня 2012 Поділитись Опубліковано: 14 липня 2012 Уважаемый Gopchik, а я же поддерживаю Вашу идею утеплять газобетон ППС_ом. Теплопотери будут ниже, соответственно - экономия на отоплении и кондиционировании. "Советчиков" нужно слушать, а своего сердца - слушаться. Удачной стройки! 2 Посилання на коментар Поділитися на інших сайтах More sharing options...
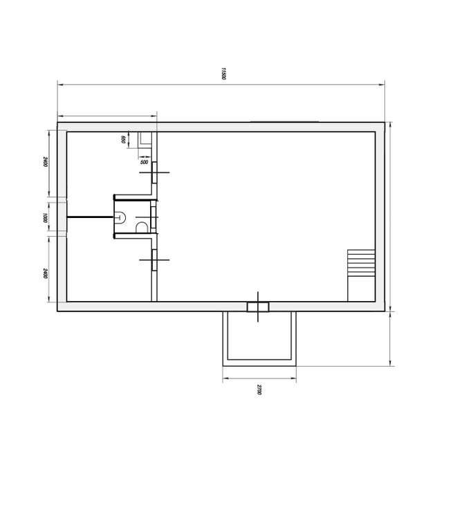
alkul Опубліковано: 14 липня 2012 Поділитись Опубліковано: 14 липня 2012 Для чего нужен замысловатый Г-образный коридор в хоз части на первом этаже? Как-то неарционально. Перенесите, к примеру, кладовку в тупик - сэкономите место. Посилання на коментар Поділитися на інших сайтах More sharing options...
scrambler Опубліковано: 14 липня 2012 Поділитись Опубліковано: 14 липня 2012 Каждый решает для себя насчет утепления ппс. У нас дом 9х12, два этажа. 400гб 40см, без утепления. Фасад еще не сделан вообще. Эту зиму топили каминопечью в гостинной первого этажа плюс 2 конвектора в гардеробных спален на втором. полуторакиловатные конвекторы работали на 30% мощности. При температуре на улице в 32 мороза, в доме было - гостинная: +27, первый этаж: +22 +23, второй этаж: +20 Но то, как говориться, такое - каждый решает утепляться как хочет Удачной вам стройки. 7 Посилання на коментар Поділитися на інших сайтах More sharing options...
SergeUA Опубліковано: 14 липня 2012 Поділитись Опубліковано: 14 липня 2012 .. Эту зиму топили каминопечью в гостинной первого этажа .... Уточните, пжл, какой именно печью... ссылку Спасибо Посилання на коментар Поділитися на інших сайтах More sharing options...
Gopchik Опубліковано: 14 липня 2012 Автор Поділитись Опубліковано: 14 липня 2012 всем спасибо за коментарии, завтра поотвечаю, сегодня некогда - зовут в гости. Выставлю только несколько фоток.Результат за 3 дня. дошли до уровня перемычек. может быть завтра буду заливать их. строители взяли на 1 день выходной.кстати работают вдвоем.еще раз, всем спасибо 1 Посилання на коментар Поділитися на інших сайтах More sharing options...
Gopchik Опубліковано: 15 липня 2012 Автор Поділитись Опубліковано: 15 липня 2012 Для чего нужен замысловатый Г-образный коридор в хоз части на первом этаже? Как-то неарционально. Перенесите, к примеру, кладовку в тупик - сэкономите место. на фото поподписывал что где будет. а вот это будет в Г образной комнате. (ссылка устарела) Посилання на коментар Поділитися на інших сайтах More sharing options...
vadimv Опубліковано: 15 липня 2012 Поділитись Опубліковано: 15 липня 2012 Поражаюсь чистоте и порядку у вас на участке. Цветочки рядом с кладкой блока. У нас слоны строители вытоптали все на расстоянии полтора-два метра от стены... 5 Посилання на коментар Поділитися на інших сайтах More sharing options...
Gopchik Опубліковано: 15 липня 2012 Автор Поділитись Опубліковано: 15 липня 2012 Поражаюсь чистоте и порядку у вас на участке. Цветочки рядом с кладкой блока. У нас слоны строители вытоптали все на расстоянии полтора-два метра от стены... что правда, то правда. Но вы бы видели что тут было раньше.....постараюсь найти фото.....выложу... Посилання на коментар Поділитися на інших сайтах More sharing options...
alkul Опубліковано: 15 липня 2012 Поділитись Опубліковано: 15 липня 2012 на фото поподписывал что где будет. Теперь все понятно, спасибо! Неплохой домик отдыха получается Посилання на коментар Поділитися на інших сайтах More sharing options...
Gopchik Опубліковано: 15 липня 2012 Автор Поділитись Опубліковано: 15 липня 2012 Теперь все понятно, спасибо! Неплохой домик отдыха получается я думаю тоже. впринципе 170 м кв для жилья с головой хватит для дачи. Добавлено через 3 минуты сегодня залил одну перемычку над окном, фото выложу завтра. думаю если по работе не будут напрягать, то залью завтра еще одну самую длинную. Посилання на коментар Поділитися на інших сайтах More sharing options...
cheser1 Опубліковано: 15 липня 2012 Поділитись Опубліковано: 15 липня 2012 Поздравляю с началом стройки! Буду следить за Вашей темой.Хорошие рабочие-это 50% успеха и наслаждения стройкой ( и такое бывает:D). Действительно работают ювелирно, цветочки не помяты.. Но Вы должны быть готовы и к критике Вот график высыхания ГБ www.stroimdom.com.ua/forum/showpost.php?p=1550773&postcount=110 Это относится и к вашему случаю по утеплению пенопластом.. Добавлено через 6 минут Ох какое ошибочное решение утеплять газобетон пенопластом, вы даже ничего не экономите на этом, 400 ГБ не требует утепления, и стена намного надежнее получается, но то такое, даже говорить про это не хочется, может вы нам раскажете, чем обусловлен такой ваш выбор ? Это бесполезно... Если его не убедили до начала стройки не клеить пенопласт и не класть блоки на цемент... То что можно говорить сейчас, когда уже пол дома готово..:D www.stroimdom.com.ua/forum/showthread.php?t=88183 А особенно порадовало вот это.... вот мне только что отписались с завода ЮДК: Вопрос: Добрый день! Осенью покупал у Вас газобетон Д400 200х300х600. Хочу начинать строиться, но мучает один вопрос- можно ли ГБ утеплять ппс (ппс мне достался абсолютно бесплатно). т.е. пирог стены будет таков - ГБ+ппс (50 мм 25 плотности) + облицовочный кирпич. спасибо! Ответ: Здравствуйте, Вашим стенам и Вам будет гораздо комфортнее без слоя ППС. ГБ + воздушный зазор 40мм + облицовка кирпичом. Тем более, при Д400, 300мм толщины достаточно для требуемого теплосопротивления стен в нашей климатической зоне. А этот ППС передарите кому-нибудь еще С ув. Владислав Ястребцов · инженер по технической поддержке ООО "ЮДК" Добавлено через 21 минуту а это то что было раньше. А домик то вроде ничего.. Не жалко было валить? 2 Посилання на коментар Поділитися на інших сайтах More sharing options...
Gopchik Опубліковано: 16 липня 2012 Автор Поділитись Опубліковано: 16 липня 2012 Но Вы должны быть готовы и к критике Вот график высыхания ГБ www.stroimdom.com.ua/forum/showpost.php?p=1550773&postcount=110 Это относится и к вашему случаю по утеплению пенопластом.. А я все равно обшиваться планирую наверно в след году. Это бесполезно... Если его не убедили до начала стройки не клеить пенопласт и не класть блоки на цемент... То что можно говорить сейчас, когда уже пол дома готово..:D www.stroimdom.com.ua/forum/showthread.php?t=88183 Насчет ппс и не убедите. а вот насчет блоки на цемент, это вы зря! на клей! А домик то вроде ничего.. Не жалко было валить? Не жалко. хотел оставлять некоторые стены, и пристраивать к нему. Но когда стала нееобходимость убрать одну стену, и когда я глянул на чем она стоит, то немного был в шоке - стена из полнотелого шлакоблока стоит на бое красного кирпича! т.е. фундамент такой. То после этого мне перехотелось устраивать лепку, и залил новый фундамент. собственно это и стало причиной заливки фундамента в два этапа. Посилання на коментар Поділитися на інших сайтах More sharing options...
Gopchik Опубліковано: 16 липня 2012 Автор Поділитись Опубліковано: 16 липня 2012 и обещанные фото заливки перемычки. Помогал папа, на последней подаче ведра отличился.!!! 4 Посилання на коментар Поділитися на інших сайтах More sharing options...
2pizza Опубліковано: 16 липня 2012 Поділитись Опубліковано: 16 липня 2012 молодцы что начали стройку заново)думаю я бы тоже так делал на Вашем месте, а то потом сиди и думай: "Вот не сделал тогда, а сейчас трещины по всех углах") Посилання на коментар Поділитися на інших сайтах More sharing options...
Gopchik Опубліковано: 16 липня 2012 Автор Поділитись Опубліковано: 16 липня 2012 молодцы что начали стройку заново)думаю я бы тоже так делал на Вашем месте, а то потом сиди и думай: "Вот не сделал тогда, а сейчас трещины по всех углах") абсолютно с Вами согласен!спасибо 1 Посилання на коментар Поділитися на інших сайтах More sharing options...
Gopchik Опубліковано: 16 липня 2012 Автор Поділитись Опубліковано: 16 липня 2012 кстати насчет аккуратности строителей - вот клубма прямо возле стены, НЕ БЫЛО СЛОМАНО НИ ЕДИНОГО ЦВЕТОЧКА. 2 Посилання на коментар Поділитися на інших сайтах More sharing options...
2pizza Опубліковано: 16 липня 2012 Поділитись Опубліковано: 16 липня 2012 кстати насчет аккуратности строителей - вот клубма прямо возле стены, НЕ БЫЛО СЛОМАНО НИ ЕДИНОГО ЦВЕТОЧКА. видимо у строителей дома тоже много цветов)) Посилання на коментар Поділитися на інших сайтах More sharing options...
Gopchik Опубліковано: 16 липня 2012 Автор Поділитись Опубліковано: 16 липня 2012 видимо у строителей дома тоже много цветов)) не думаю....живут в квартирах Добавлено через 1 час 45 минут Что то как то скучно.толи стройка не интересная,то ли не в этом разделе разместил?никто ниче не пишет,не спрашивает.............странно.......... 1 Посилання на коментар Поділитися на інших сайтах More sharing options...
cheser1 Опубліковано: 16 липня 2012 Поділитись Опубліковано: 16 липня 2012 Добавлено через 1 час 45 минут Что то как то скучно.толи стройка не интересная,то ли не в этом разделе разместил?никто ниче не пишет,не спрашивает.............странно.......... Да все стандартно пока..Уделяйте больше внимания мелочам... Что бы мы могли вас хорошенько покритиковать:D Схему армировки, фото армировки углов, окон и тд... Могу и комментировать вашу перемычку над окном :D.. Нет, все правильно и надежно, но пошли по самому сложному пути.. Добавлено через 51 минуту Да, и еще.. Вы по проекту строитесь или самострой??? На мой взгляд не мешало бы поставить жб колонны( сердечники) хотя бы по углам.. Хотя уже поздно, они должны были выходить с фундамента. И интересно, какое будет перекрытие? Как будете перекрывать 7,5 метровый пролет ? Смотрю вроде есть какая то одиноко стоящая колонна посреди комнаты. Ригеля будете лить или как?? Добавлено через 5 минут И еще, была одна хорошая тема, выясняли для чего балкон в частном доме?? Как выяснилось, абсолютно бесполезная вещь.. Только снег выгребать и окна с него удобно мыть.:D у вас красивая беседка и ухоженная территория, для чего он вам? Посилання на коментар Поділитися на інших сайтах More sharing options...
Рекомендовані повідомлення
Створіть акаунт або увійдіть у нього для коментування
Ви маєте бути користувачем, щоб залишити коментар
Створити акаунт
Зареєструйтеся для отримання акаунта. Це просто!
Зареєструвати акаунтУвійти
Вже зареєстровані? Увійдіть тут.
Увійти зараз