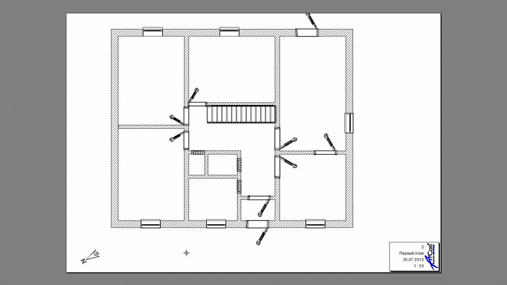
Lapata Опубліковано: 28 липня 2012 Поділитись Опубліковано: 28 липня 2012 Здравствуйте, уважаемые форумчане. Давно читаю этот форум, но все никак не решусь написать. Решили мы с супругой построить дом. Долго думали каким он должен быть и сошлись на том, что одноэтажный - это именно то, что нам нужно. Определились с планировкой, заказали стройпаспорт. Ждем. И тут ко мне в голову начали закрадываться сомнения: а все ли мы учли... В доме будем жить мы с женой и двое маленьких детей. Картинку прикрепил. Гараж делать не планируем пока. Чердак холодный. В случае, если потребуется расширить площадь в будущем планируем оборудовать 1-2 комнаты под крышей. Планируем стены из газобетонас деревянным перекрытием. Вот только как сделать крышу, чтоб дом не был похож на коробку придумать не можем. Буду очень рад Вашим советам. Посилання на коментар Поділитися на інших сайтах More sharing options...
vadimv Опубліковано: 29 липня 2012 Поділитись Опубліковано: 29 липня 2012 а все ли мы учли... в будущем планируем оборудовать 1-2 комнаты под крышей. Планируем стены из газобетонас деревянным перекрытием. 1) Как именно будет делаться перекрытие? В смысле, на что оно будет опираться в центре дома? 2) Где у вас запланировано место под лестницу на чердак? ЗЫ: картинка очень похода на мои художества в АрКоне :D Посилання на коментар Поділитися на інших сайтах More sharing options...
Lapata Опубліковано: 29 липня 2012 Автор Поділитись Опубліковано: 29 липня 2012 1) Как именно будет делаться перекрытие? В смысле, на что оно будет опираться в центре дома? 2) Где у вас запланировано место под лестницу на чердак? ЗЫ: картинка очень похода на мои художества в АрКоне :D 1) внутри 2 несущие стены, параллельные кортокой сороне дома. На них и думаю ложить балки. 2) А вот выход на чердак почему-то никуда не становится Посилання на коментар Поділитися на інших сайтах More sharing options...
vadimv Опубліковано: 29 липня 2012 Поділитись Опубліковано: 29 липня 2012 1) внутри 2 несущие стены, параллельные кортокой сороне дома. На них и думаю ложить балки.Так в них 2 разрыва по 1,90. На чем балки в этих местах лежать будут? Посилання на коментар Поділитися на інших сайтах More sharing options...
Lapata Опубліковано: 29 липня 2012 Автор Поділитись Опубліковано: 29 липня 2012 Так в них 2 разрыва по 1,90. На чем балки в этих местах лежать будут? Может я не правильно отобразил на своем рисунке детали, но над этими разрывами будет проходить армпояс. Посилання на коментар Поділитися на інших сайтах More sharing options...
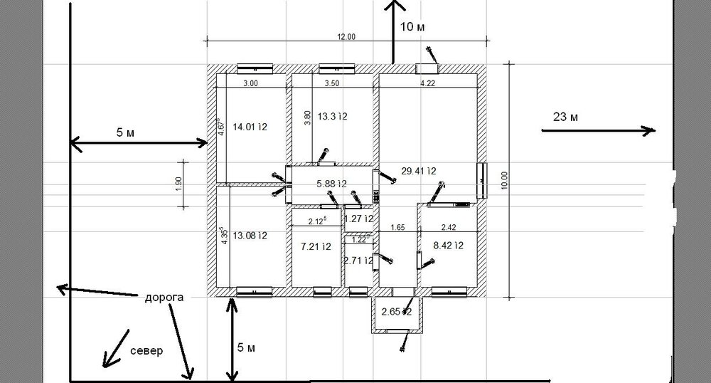
DVIJOK Опубліковано: 29 липня 2012 Поділитись Опубліковано: 29 липня 2012 Планировка очень не чистая, дом вроде большой, а все скукожено. Зачем смещена стена между кладовкой и ванной относительно стены между туалетом и ванной? Нелогично. Если хотите расширить пространство, то смысл сдвигать стенку на десяток сантиметров? комфорта они особого не принесут, а неудобства да. Сузьте входной коридор, это будет лучше, а тамбур выкиньте из пространства дома, наружу. Кухня узкая и с двумя окнами, конфигурация не ахти, это неудобно, тем более на 4 человек 7 квадратов маловато. Должна быть шире и расставьте оборудование и мебель, без них планировать пространство неправильно. Перекройте пространство между залом и буфером со входами в комнаты, это не тот случай когда нужен опенспейс, а вот спать когда работает телек в зале и гуливанят гости, нужно. Короче, причешите планировку, работы там немеряно. По опираниям все нормально, только балки штрихпунктиром нужно показывать. И какой-то косяк с толщиной несущих внутренних стен, по вашим размерам они получаются по 60 см. Посилання на коментар Поділитися на інших сайтах More sharing options...
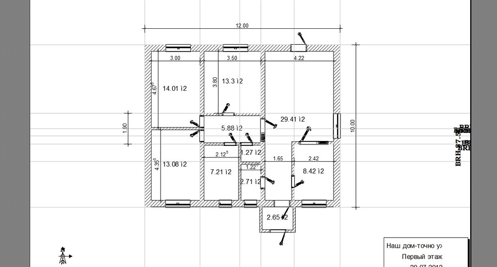
Lapata Опубліковано: 29 липня 2012 Автор Поділитись Опубліковано: 29 липня 2012 Короче, причешите планировку, работы там немеряно. DVIJOK, Ваша критика заставила меня задуматься. Вот результат. Посилання на коментар Поділитися на інших сайтах More sharing options...
loader Опубліковано: 29 липня 2012 Поділитись Опубліковано: 29 липня 2012 DVIJOK, Ваша критика заставила меня задуматься. Вот результат. зашли в дом, и куда пальто вешать? ;) Посилання на коментар Поділитися на інших сайтах More sharing options...
Музей Опубліковано: 29 липня 2012 Поділитись Опубліковано: 29 липня 2012 ФФФтопку такой проект. Не удобно, не современно ( в смысле размещения помещений в доме и 3м ширины комнат), думаю, что и фасады будут "мутные" поскольку окна и двери размещены хаотично. Входная часть для частного дома совсем не годится. Нет информации об участке. Куда будут выходить окна, где стороны света? Обратитесь к архитекторам на форуме. Пусть хоть эскизную часть сделают достойной. Полученный СП - не помеха. Придерживайтесь заданных габаритов и все. Посилання на коментар Поділитися на інших сайтах More sharing options...
DVIJOK Опубліковано: 29 липня 2012 Поділитись Опубліковано: 29 липня 2012 DVIJOK, Ваша критика заставила меня задуматься. Вот результат. Это не критика, а лишь советы. Критикую только профи Вы поняли буквально, а основной посыл это подумать над планировкой не только в кругу моих советов, а гораздо ширше. Да, вы выровняли планчик, но в целом все очень сыро. Тамбур вы вынесли, но он как бельмо, ни туда ни сюда, значит стоит поработать над конфигурацией, сказали уже, что нет прихожей и т.д. Для кухни из 4 человек нужно хотя бы, минимально метров 10... У меня в доме кухня в 15 кв метров, и нам ее порой не хватает. Не бойтесь вынести какие-то обьемы за пределы 4 стен, и дом будет интересней и крыша сама найдется. Варианты, варианты... Ну и как всегда в общем-то, обратитесь к специалисту, который вам накидает пару вариантов или (ссылка устарела). Посилання на коментар Поділитися на інших сайтах More sharing options...
vadimv Опубліковано: 30 липня 2012 Поділитись Опубліковано: 30 липня 2012 Не бойтесь вынести какие-то обьемы за пределы 4 стени 1 этажа Мне кажется, если нужные помещения не помещаются на 100 м.кв, стоит рассмотреть вариант второго, мансардного или цокольного этажа. Кухня действительно маловата. На ней же негде сделать рабочую стенку. Посилання на коментар Поділитися на інших сайтах More sharing options...
Lapata Опубліковано: 30 липня 2012 Автор Поділитись Опубліковано: 30 липня 2012 Все высказавшиеся правы посвоему. Но теперь все упирается в то, что есть стройпаспорт на постройку жилго здания 10Х12 с двумя "ганками 3Х2". На всякий случай с мансардой. А еще очень хочется жить именно в одноэтажном доме. Возникает вопрос: как "вынести какие-то обьемы за пределы 4 стен"? Мансарда - это на крайний случай, если будет не хватать места на первом этаже. Семья у нас: я, жена, сын 2 года и... планируем еще одного ребенка. Не удобно, не современно ( в смысле размещения помещений в доме и 3м ширины комнат) Не думаю, что спальни нужны для чего-то еще, кроме их прямого назначения. Поэтому такие и размеры. Нет информации об участке. Куда будут выходить окна, где стороны света? Участок 25Х40 м 10 соток. практически ровный. Перепад между самой высокой и самой низкой точками примерно 0,5 метра по диагонали. остальное схематично указал на картинке. До воды метров 18. Грунт -чернозем. Остальное указал на картинке. Еще интересно кто и за сколько возьмется за проект этого безобразия. Посилання на коментар Поділитися на інших сайтах More sharing options...
vadimv Опубліковано: 30 липня 2012 Поділитись Опубліковано: 30 липня 2012 есть стройпаспорт на постройку жилго здания 10Х12Ориентация только так, как показано? Повернуть на 90 градусов нельзя?Участок 25Х40 мА почему у вас в сторону участка (на юго-запад) выходит только одно окно? А на север (северо-запад) - 4 окна и входная дверь... Посилання на коментар Поділитися на інших сайтах More sharing options...
Lapata Опубліковано: 30 липня 2012 Автор Поділитись Опубліковано: 30 липня 2012 А почему у вас в сторону участка (на юго-запад) выходит только одно окно? В кухне будет жарко. Остается одно помещение с одним окном. Добавлено через 16 минут Ориентация только так, как показано? Повернуть на 90 градусов нельзя? Заезд неудобный. По поводу "повернуть" уточню в архитектуре Посилання на коментар Поділитися на інших сайтах More sharing options...
Aleks_inc Опубліковано: 30 липня 2012 Поділитись Опубліковано: 30 липня 2012 А как же лестница, для возможного мансардного? Посилання на коментар Поділитися на інших сайтах More sharing options...
Lapata Опубліковано: 30 липня 2012 Автор Поділитись Опубліковано: 30 липня 2012 Но тогда больше помещений останется вобще без солнечного света. Добавлено через 1 минуту А как же лестница, для возможного мансардного? Лестницы нет т. к. мансардного нет. Другое дело место предусмотреть... Посилання на коментар Поділитися на інших сайтах More sharing options...
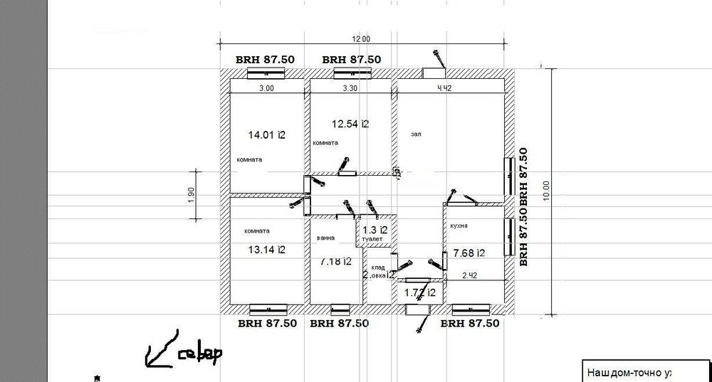
vadimv Опубліковано: 30 липня 2012 Поділитись Опубліковано: 30 липня 2012 Вот практически ваш набросок, но с местом под лестницу (которое можно занять шкафом-купе, например). При этом кухня будет нормального размера, а ванная уменьшится. Ширину гостиной можно подрегулировать, двигая стену. И еще я бы попробовал разные варианты зеркального отражения и поворота (например, развернул бы все кухней и гостиной к дороге) и расположения окон. 1 Посилання на коментар Поділитися на інших сайтах More sharing options...
@Кирилл@ Опубліковано: 31 липня 2012 Поділитись Опубліковано: 31 липня 2012 Добрый день. Посмотрите мою ветку, я строю что-то очень похожее. www.stroimdom.com.ua/forum/showthread.php?t=95064 Сейчас крою крышу (четырехскатная). Если вы планируете в перспективе организовать комнатку на чердаке, то конструктив крыши продумайте заранее. Я тоже думал что в будущем там можно будет обжить небольшую площадь (правда сомневался в данной перспективе, но все же..). Но после того как крышники соорудили стропилку и в центре дома сконструировали опорную кассету, я понял, что там будет только небольшой лаз и место для всякого хлама. 1 Посилання на коментар Поділитися на інших сайтах More sharing options...
wipe Опубліковано: 31 липня 2012 Поділитись Опубліковано: 31 липня 2012 Хммм, вы пишете, что длина учстка 45 м, в то время как на рисунке указываете, от границы 5 м, сам дом 10 м и до второй границы 23 м, 5+10+23=38 м а где остальные метры ? или я чего то не понял ? Посилання на коментар Поділитися на інших сайтах More sharing options...
Lapata Опубліковано: 31 липня 2012 Автор Поділитись Опубліковано: 31 липня 2012 Правильно. Вы не так поняли. Смотрите внимательнее. дом не 10 метров, а 12 а длинна участка не 45 м, а 40м. Добавлено через 6 минут Добрый день. Посмотрите мою ветку, я строю что-то очень похожее. www.stroimdom.com.ua/forum/showthread.php?t=95064 Сейчас крою крышу (четырехскатная). Если вы планируете в перспективе организовать комнатку на чердаке, то конструктив крыши продумайте заранее. Я тоже думал что в будущем там можно будет обжить небольшую площадь (правда сомневался в данной перспективе, но все же..). Но после того как крышники соорудили стропилку и в центре дома сконструировали опорную кассету, я понял, что там будет только небольшой лаз и место для всякого хлама. Спасибо за совет. Я в этом году строить начать видимо не успею. Ну или на фундамент время останется только. Сейчас нахожусь на стадии подготовки документов ну и подготовки проекта. Мне советуют газоблок 400 толщины использовать без утепления. Начитался споров на тему утеплять-не утеплять и не знаю как поступить. Кому верить? Было бы хорошо зимой в неутепленный дом вгости к кому-то зайти и на себе ощутить все "прелести" даного материала. Посилання на коментар Поділитися на інших сайтах More sharing options...
Aleks_inc Опубліковано: 1 серпня 2012 Поділитись Опубліковано: 1 серпня 2012 Правильно. Вы не так поняли. Смотрите внимательнее. дом не 10 метров, а 12 а длинна участка не 45 м, а 40м. Добавлено через 6 минут Спасибо за совет. Я в этом году строить начать видимо не успею. Ну или на фундамент время останется только. Сейчас нахожусь на стадии подготовки документов ну и подготовки проекта. Мне советуют газоблок 400 толщины использовать без утепления. Начитался споров на тему утеплять-не утеплять и не знаю как поступить. Кому верить? Было бы хорошо зимой в неутепленный дом вгости к кому-то зайти и на себе ощутить все "прелести" даного материала. По этому поводу мнений много, все зависит от того как обогревать домик будете))), ну и погода зимой играет большую роль. Посилання на коментар Поділитися на інших сайтах More sharing options...
DALI Опубліковано: 2 серпня 2012 Поділитись Опубліковано: 2 серпня 2012 Вот только как сделать крышу, чтоб дом не был похож на коробку придумать не можем. Есть у нас такой сервис: Проектирование кровель и стропильных систем Посилання на коментар Поділитися на інших сайтах More sharing options...
Lapata Опубліковано: 8 серпня 2012 Автор Поділитись Опубліковано: 8 серпня 2012 Начитался я много положительных отзывов о Галпроекте и решил с ними сотрудничать. Пока все очень позитивно. Предложили оперативно несколько интересных вариантов. Учтя советы форумчан, выбрали с женой из всего предложенного лучшее на наш взгляд. Ждем продолжения. Посилання на коментар Поділитися на інших сайтах More sharing options...
Рекомендовані повідомлення
Створіть акаунт або увійдіть у нього для коментування
Ви маєте бути користувачем, щоб залишити коментар
Створити акаунт
Зареєструйтеся для отримання акаунта. Це просто!
Зареєструвати акаунтУвійти
Вже зареєстровані? Увійдіть тут.
Увійти зараз