Катерина Ш Опубліковано: 3 квітня 2014 Поділитись Опубліковано: 3 квітня 2014 Вроде общую. Да, по новым правилам уже ОБЩУЮ! 1 Посилання на коментар Поділитися на інших сайтах More sharing options...
kruchenik Опубліковано: 4 квітня 2014 Автор Поділитись Опубліковано: 4 квітня 2014 вчера залили ступеньку из коридора в гостинную под лестницей сделали черновой пол в комнате над гаражом закрывают последний слой утеплителя паробарьером 2 Посилання на коментар Поділитися на інших сайтах More sharing options...
kruchenik Опубліковано: 6 квітня 2014 Автор Поділитись Опубліковано: 6 квітня 2014 сегодня оказалось, что на скатах мансарды (потолок под углом) строители заложили только три слоя (30см) утеплителя. Мол и так много и уже над головой будет реально мешать (это преувеличение). Не то завтыкали не то действительно перебор. Что делать? Расшивать паробарьер и закладывать еще один слой? А то как-то по центру выходит 4, а по бокам 3... неравномерно как-то. Начал думать над полами. Подскажите как выглядит "классика" чистового пола с теплыми полами и без оных, чтобы понимать суть процесса. Класть будем либо керамплитку (над теплыми полами) либо ламинат (есть в наявности). Насколько я представляю нужно уложить утеплитель (пенопласт или стиродур), потом теплый пол (если нужно), потом бетон, потом пленка под ламинат или раствор (клей) под плитку. А металл нужно? Посилання на коментар Поділитися на інших сайтах More sharing options...
kruchenik Опубліковано: 7 квітня 2014 Автор Поділитись Опубліковано: 7 квітня 2014 По утеплителю вроде разобрались, я не так понял. Как объяснил прораб на ОСБ плиты будет крепиться каркас для гипсокартона, а уже тогда закладывается 4й слой, прямо под гипсокартоновые плиты. Кстати имеет ли смысл в жилых комнатах использовать влагостойкий гипсокартон? Или подойдет и обычный? Посилання на коментар Поділитися на інших сайтах More sharing options...
addinol Опубліковано: 8 квітня 2014 Поділитись Опубліковано: 8 квітня 2014 сегодня оказалось, что на скатах мансарды (потолок под углом) строители заложили только три слоя (30см) утеплителя. Мол и так много и уже над головой будет реально мешать (это преувеличение). Не то завтыкали не то действительно перебор. Что делать? Расшивать паробарьер и закладывать еще один слой? А то как-то по центру выходит 4, а по бокам 3... неравномерно как-то. Начал думать над полами. Подскажите как выглядит "классика" чистового пола с теплыми полами и без оных, чтобы понимать суть процесса. Класть будем либо керамплитку (над теплыми полами) либо ламинат (есть в наявности). Насколько я представляю нужно уложить утеплитель (пенопласт или стиродур), потом теплый пол (если нужно), потом бетон, потом пленка под ламинат или раствор (клей) под плитку. А металл нужно? У меня сейчас делают теплый пол :черновая стяжка +2см эппс+5мм фольга спецовая в новой линии 11гр м2+сетка очко 100*100-3мм(карты)+труба рехау разводка улиткой+закрепить ее к сетке+стяжка 5-6см чистовая+керамплитка.Ламинат разойдется по швам не вздумайте проверено видел сам,примените в другом месте. Добавлено через 1 минуту По утеплителю вроде разобрались, я не так понял. Как объяснил прораб на ОСБ плиты будет крепиться каркас для гипсокартона, а уже тогда закладывается 4й слой, прямо под гипсокартоновые плиты. Кстати имеет ли смысл в жилых комнатах использовать влагостойкий гипсокартон? Или подойдет и обычный? Я бы кинул влагостойкий 12мм.Где то уже об этом писали не экономте на этом. 1 Посилання на коментар Поділитися на інших сайтах More sharing options...
kruchenik Опубліковано: 8 квітня 2014 Автор Поділитись Опубліковано: 8 квітня 2014 У меня сейчас делают теплый пол :черновая стяжка +2см эппс+5мм фольга спецовая в новой линии 11гр м2+сетка очко 100*100-3мм(карты)+труба рехау разводка улиткой+закрепить ее к сетке+стяжка 5-6см чистовая+керамплитка.Ламинат разойдется по швам не вздумайте проверено видел сам,примените в другом месте. Не понял про ламинат - имеется в виду теплый пол под ламинат? Конечно не буду так делать. В комнате над гаражом не будет теплого пола, туда ламинат (он лежит уже лет 8, но вроде в порядке). 1 Посилання на коментар Поділитися на інших сайтах More sharing options...
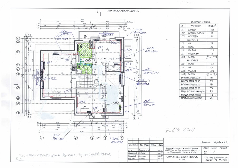
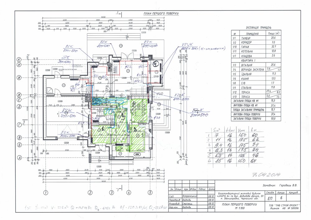
kruchenik Опубліковано: 8 квітня 2014 Автор Поділитись Опубліковано: 8 квітня 2014 рабочая (но еще черновая) версия схем отопления и сметы (топочная отдельно, дом отдельно). буду рад коментариямСО7042014.xlsТМ7042014.xls 2 Посилання на коментар Поділитися на інших сайтах More sharing options...
kruchenik Опубліковано: 8 квітня 2014 Автор Поділитись Опубліковано: 8 квітня 2014 -тук тук, кто в теремочке живет? 4 Посилання на коментар Поділитися на інших сайтах More sharing options...
kruchenik Опубліковано: 8 квітня 2014 Автор Поділитись Опубліковано: 8 квітня 2014 медленно но уверенно продолжается бетонирование выгребной ямы. Не понимаю зачем такие толстые стенки, но знающие люди говорят надо. 2 Посилання на коментар Поділитися на інших сайтах More sharing options...
Linelka Опубліковано: 8 квітня 2014 Поділитись Опубліковано: 8 квітня 2014 -тук тук, кто в теремочке живет? Класс!!! Вот у детей радости. Посилання на коментар Поділитися на інших сайтах More sharing options...
loader Опубліковано: 8 квітня 2014 Поділитись Опубліковано: 8 квітня 2014 рабочая (но еще черновая) версия схем отопления и сметы (топочная отдельно, дом отдельно). буду рад коментариям коментировать конечно могут професионалы или кто уже прошел этап, единственное что могу сказать - планирую рассмотреть установку внутрипольных конвекторов под окнами до пола - гостинная, кухня-столовая, спальня + возможно кабинет. стоят они конечно прилично, но м.б. на первом этаже можно как-то схитрить сделав самопальные ниши и установив радиаторы попроще (не вентилировал еще или есть смысл заморачиваться). говорят все остальные обходные варианты - типа вертикальных сбоку и теплого пола это полумеры. но до отопления пока не дошел, так что это не более чем личные мысли пока. 1 Посилання на коментар Поділитися на інших сайтах More sharing options...
kruchenik Опубліковано: 9 квітня 2014 Автор Поділитись Опубліковано: 9 квітня 2014 В связи с необходимостью сделать ремонт в магазине, который протаранил пьяный парень, предлагаю вашему вниманию распродажу товаров по дореволюционным ценам. Распродажа товаров для сада/огорода Распродажа товаров для животных Распродажа семян овощей и цветов На данный момент перспектива законного получения возмещения убытка близка к нулю. Потому и решено устроить тотальную распродажу отдела флоры и фауны.Каждая вырученная гривня пойдет на восстановительный ремонт магазина (стеклопакет, металлокаркас, отопительная система, металлопрофиль, утеплитель, плитка итд) пострадавшего от наезда внедорожника. Очень нужно восстановить все как можно быстрее, поскольку существует опасность частичного разрушения здания, а также вероятность кражи товара через разрушенный проем. Для желающих помочь советом (строительного или юридического характера) просьба писать в личку. Посилання на коментар Поділитися на інших сайтах More sharing options...
addinol Опубліковано: 10 квітня 2014 Поділитись Опубліковано: 10 квітня 2014 Смету смотрел то что понял цена нормальная но лучше показать спецу (альтернативному),бо мне мои мастера такого насчитали на некоторые позиции +50% к ценам новой линии,думают шо я лох я за работу еще не давал дал только по смете потом начал вникать е ма е,завтра заканчивают то будут разборки.Хотя не любитель я этого дела но придется. Посилання на коментар Поділитися на інших сайтах More sharing options...
kruchenik Опубліковано: 11 квітня 2014 Автор Поділитись Опубліковано: 11 квітня 2014 Смету смотрел то что понял цена нормальная но лучше показать спецу (альтернативному),бо мне мои мастера такого насчитали на некоторые позиции +50% к ценам новой линии,думают шо я лох я за работу еще не давал дал только по смете потом начал вникать е ма е,завтра заканчивают то будут разборки.Хотя не любитель я этого дела но придется. я изначально просил смету для ориентира, цены плавают, буду в любом случае все сам искать/закупать, потом спокойнее будет. Ищу кабель 5 * 4 медный монолит. Цена 27 грн. за метр, я в шоке. Мне надо 40 м (подвести к электроплите), может есть у кого дешевле (не Китай)? Посилання на коментар Поділитися на інших сайтах More sharing options...
kruchenik Опубліковано: 11 квітня 2014 Автор Поділитись Опубліковано: 11 квітня 2014 еще раз: смета сделана проэктантом, его контора точно не будет исполнителем (они в 500 км от моей стройки), исполнять будут местные. Про перчатки и ленту я понял, про "под ключ" тоже принял к сведению. по кабелю - уже купил ЗЗЦМ. чем дальше тем всё дороже и шокирующе... Добавлено через 1 час 1 минуту Народ, помогите советом. Есть б/у газовый котел, в рабочем состоянии, Гелиос 100Е (100 кВт), может отопить до 1000 кв.м. Использовался для отопления площади 600 кв.м. (без проблем, было тепло). Но помещение продали, котел забрали. Застройщикам такой мощный не нужен, да и он габаритный и тяжелый (наверное надо микроавтобус или большой прицеп). Кому его можно продать (по любой цене, очень нужны деньги)? Местные продаваны газ.котлов посоветовали на металолом. Но как на металолом, если он рабочий и в свое время стоил сколько то десятков тыс. грн.? Просто они (продаваны) опять таки ставят маломощные котлы, и им такой не надо. А кому надо? Готов даже бартером поменять на что угодно. 1 Посилання на коментар Поділитися на інших сайтах More sharing options...
addinol Опубліковано: 11 квітня 2014 Поділитись Опубліковано: 11 квітня 2014 Мне отопление стало 22500гр,трубы экопластик ,батареи фондитал ,теплый пол 15м2 рехау,две спальни по 10м2,холл-23м2,предбанник 5м2.Хрен его знает мно чи мало.Одних батерей на 380 евро.Но все завтра на стяжку нажимать будем по 40 гр за м2 договорился. 2 Посилання на коментар Поділитися на інших сайтах More sharing options...
kruchenik Опубліковано: 12 квітня 2014 Автор Поділитись Опубліковано: 12 квітня 2014 поступила идея-предложение накрыть выгребную яму плитами перекрытия, а не монолитом, чтобы легче было вскрывать через сколько то лет для ремонта, есть ли в этом смысл? Посилання на коментар Поділитися на інших сайтах More sharing options...
kruchenik Опубліковано: 12 квітня 2014 Автор Поділитись Опубліковано: 12 квітня 2014 Что дешевле то и делать. Плиты= доставка+манипулятор. Ямы никто не ремонтирует, засыпают и рядом новую, но когда это будет и будет ли вообще. ИМХО торопятся сдать работу работники. идея не от строителей, а от родственника. подозреваю, что дороже будет найти плиты и привезти их/выгрузить чем лить монолит. Нужно ли ремонтировать ямы не знаю, может лет 10 и нет, а потом ? Выкопать рядом еще одну? ... Ого, это ж капец будет полный (учитывая объем существующей ямы и ландшафт который будет уже через 10 лет возле дома). Посилання на коментар Поділитися на інших сайтах More sharing options...
addinol Опубліковано: 12 квітня 2014 Поділитись Опубліковано: 12 квітня 2014 Монолит однозначно.Солярка уже по 14. Посилання на коментар Поділитися на інших сайтах More sharing options...
kruchenik Опубліковано: 14 квітня 2014 Автор Поділитись Опубліковано: 14 квітня 2014 за забором (длина по 100 м с каждой стороны) - насыпь, строители рекомендуют засадить чем-то для укрепления корнями (чтобы не размывало). Чем засадить? 200 метров не шутка, сажать что-то ценное (типа туи) или с сильной корневой (чтобы фундамент забора разрушало) - не имеет смысла, что посоветуете? какие-то бурьяно подобные цветочки или может деревья какие неприхотливые? Посилання на коментар Поділитися на інших сайтах More sharing options...
addinol Опубліковано: 15 квітня 2014 Поділитись Опубліковано: 15 квітня 2014 Сади газонную траву и все буде ок.На второй год дерн такой шо мама не горюй. 1 Посилання на коментар Поділитися на інших сайтах More sharing options...
Nadya2010 Опубліковано: 15 квітня 2014 Поділитись Опубліковано: 15 квітня 2014 за забором (длина по 100 м с каждой стороны) - насыпь, строители рекомендуют засадить чем-то для укрепления корнями (чтобы не размывало). Чем засадить? 200 метров не шутка, сажать что-то ценное (типа туи) или с сильной корневой (чтобы фундамент забора разрушало) - не имеет смысла, что посоветуете? какие-то бурьяно подобные цветочки или может деревья какие неприхотливые? Можно посадить бирючину (куст быстрорастущий средних размеров), она от 17 грн за 30-50 см растение, поддается стрижке и хорошо ветвится, ею обычно наши парки засаживают, так как она не прихотлива. 1 Посилання на коментар Поділитися на інших сайтах More sharing options...
kruchenik Опубліковано: 15 квітня 2014 Автор Поділитись Опубліковано: 15 квітня 2014 уточняю - посадить что-то такое требующее минимум внимания. Ну там покосить один раз за лето покошу (есть мотокоса), но на большее времени точно не хватит.. Посилання на коментар Поділитися на інших сайтах More sharing options...
kruchenik Опубліковано: 17 квітня 2014 Автор Поділитись Опубліковано: 17 квітня 2014 выбираем обычные и диф.автоматы - кто что посоветует? Посилання на коментар Поділитися на інших сайтах More sharing options...
Natalita Опубліковано: 17 квітня 2014 Поділитись Опубліковано: 17 квітня 2014 выбираем обычные и диф.автоматы - кто что посоветует? __________________ мы остановили свой выбор на Hager ПЗВ нужны были 16А у Hager только с 25А идут купили Moeller 16А Посилання на коментар Поділитися на інших сайтах More sharing options...
Рекомендовані повідомлення
Створіть акаунт або увійдіть у нього для коментування
Ви маєте бути користувачем, щоб залишити коментар
Створити акаунт
Зареєструйтеся для отримання акаунта. Це просто!
Зареєструвати акаунтУвійти
Вже зареєстровані? Увійдіть тут.
Увійти зараз