Dimaoksana Опубліковано: 8 листопада 2012 Поділитись Опубліковано: 8 листопада 2012 Купили ділянку 8 соток. Орієнтовна схема на рисунку 1. З дружиною переглянули величезну кількість проектів будинків, але не змогли знайти такого, який би задовольнив нас. Тому вирішили намалювати свій. Будинок планується один поверх з мансардою, фундамент лєнточний, перекриття по деревяних балках з опорою на внутрішні несучі стіни з цегли, зовнішні стіни з газобетону. Вдвох накреслили план будинку своєї мрії. Будинок розмірами 9*11 (рис.2). Знайомий, котрий зараз будується подивився на наш план і сказав, що будинок дуже великий (як на нашу кишеню) і ми довго його будемо будувати. Запропонував поглянути на проект Медісон. Ми з дружиною його трохи переробили на свій лад і отримали такий план будинку 8,5*10 (рис. 3). На зовнішніх стінах першого поверху получилась економія газобетону 1,2 м3. Економії цегли ніякої. Тепер не знаємо, який план будинку кращий. Розстановку меблів на обох планах виконували, обидва плани нас задовільняють Підкажіть, будь-ласка,що вибрали б Ви. Які недоліки в цих планів, що дуже кидається в очі... Дуже вдячні за підказку!!! Посилання на коментар Поділитися на інших сайтах More sharing options...
loader Опубліковано: 8 листопада 2012 Поділитись Опубліковано: 8 листопада 2012 Будинок розмірами 9*11 (рис.2). Знайомий, котрий зараз будується подивився на наш план і сказав, що будинок дуже великий (як на нашу кишеню) і ми довго його будемо будувати. Запропонував поглянути на проект Медісон. Ми з дружиною його трохи переробили на свій лад і отримали такий план будинку 8,5*10 (рис. 3). На зовнішніх стінах першого поверху получилась економія газобетону 1,2 м3. Економії цегли ніякої. Как по мне разница в обьемах - несущественная, экономия будет минимальна при прочих равных - кол-ве помещений, типе фундамента и кровли. Добавлено через 3 минуты По планам - не нравятся (Ваш в большей мере не нравится). 1. Где планировка мансарды? 2. Есть необходимость в 2 спальнях и кабинете на первом этаже при отсутствии гостинной? 3. Хол 19 квадратов, при крохотных остальных комнатах. В медисоне как по мне +: - минимальная площадь хола, существенно просторнее комнаты и кухня - топочная из тамбура Посилання на коментар Поділитися на інших сайтах More sharing options...
Dimaoksana Опубліковано: 8 листопада 2012 Автор Поділитись Опубліковано: 8 листопада 2012 В моем проекте хол частично будет выполнять функцию гостинной (площадь 19 кв.м. это с учетом лестницы - без лестницы там остается около 12 кв.м.) В Медисоне гостинная была совмещена с кухней, но жена захотела чтобы детская спальня и наша были на первом этаже, поэтому пришлось гостинную заменить на спальню. Вот такие приблизительно мансардные этажи 1- наш, 2 - Медисон Посилання на коментар Поділитися на інших сайтах More sharing options...
vadimv Опубліковано: 9 листопада 2012 Поділитись Опубліковано: 9 листопада 2012 (змінено) 1. Дом великоват (аж 5 комнат на 3 человека). 2. Не делайте вход с севера (будут большие теплопотери). 3. Не делайте балкон над комнатой (заманаетесь гидро- и теплоизолировать). Змінено 9 листопада 2012 користувачем vadimv Посилання на коментар Поділитися на інших сайтах More sharing options...
wipe Опубліковано: 9 листопада 2012 Поділитись Опубліковано: 9 листопада 2012 З дружиною переглянули величезну кількість проектів будинків, але не змогли знайти такого, який би задовольнив нас. Не верю, ну хоть обижайтесь, хоть нет, в интернете куча проектов, НЕ ВЕРЮ, что бы нельзя было найти базу от которой можно оттолкнуться и переделать под себя. В вашем проекте куча неиспользованных мест, огромные холы, корридоры, поподая в дом, увас ванная в одном совмещении с тамбуром ? проект медисон так же не нравится, все как то нуууу, блин, да даже слова придумать немогу, уж извените. Посилання на коментар Поділитися на інших сайтах More sharing options...
seyvalter Опубліковано: 9 листопада 2012 Поділитись Опубліковано: 9 листопада 2012 Не подобається. в першу чергу - тим що немає нормальної вітальні. Якщо у вас спальні на 1-му поверсі - то навіщо надбудовувати 2-й? Якщо бажаєте - можу помогти - скинути кілька ходових хороших планів - але вони будуть сутьево відрізнятись від ваших - на першому поверсі буде максимум одна житлова кімната - інакше втрачається вся логіка будівництва 2-х поверхового будинку. Або - можу скинути 1-поверховий на 3 спальні + віталья. Посилання на коментар Поділитися на інших сайтах More sharing options...
FashionFace Опубліковано: 9 листопада 2012 Поділитись Опубліковано: 9 листопада 2012 Присоединюсь к вышесказанному и подчеркну, что в доме не хватает гостиной. Эта планировка похожа на двухэтажную квартиру но не дом. Dimaoksana задумайтесь где в доме Вы проводите наибольшее количество времени, не поверю что в спальне. Не понятна тенденция дробить дом на комнаты. Если вы строете дом то наверное хотите уйти от квартиры? - делайте максимально большим и комфортным основное помещение дома где Вы будете проводить все свое время с семьей, что бы не получилось так что Вы в одном углу жена в другом, а дети по спальням сидят. Посилання на коментар Поділитися на інших сайтах More sharing options...
Большой Котяра Опубліковано: 9 листопада 2012 Поділитись Опубліковано: 9 листопада 2012 Не верю, ну хоть обижайтесь, хоть нет, в интернете куча проектов, НЕ ВЕРЮ, . а зря!я пересмотрел очень много проектов, в результате начертил сам поскольку не нашел ни одного который бы отвечал моим запросам Посилання на коментар Поділитися на інших сайтах More sharing options...
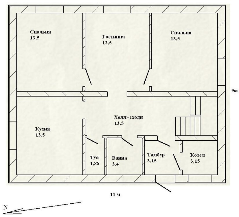
Dimaoksana Опубліковано: 22 листопада 2012 Автор Поділитись Опубліковано: 22 листопада 2012 Дякую всім хто висловився з приводу наведених планів будинку. Ще раз проаналізувавши їх,зрозумів що вони мають багато недоліків. Тому обдумуючи недоліки,накреслив два плани будинку. Скажіть будь ласка, які в них можуть бути недоліки. Перший будинок розмірами 9*11м, а другий 8,6*10,2м. Мансардні поверхи, поки що в розробці, але основна концепція стін буде побудована по стінах першого поверху Посилання на коментар Поділитися на інших сайтах More sharing options...
loader Опубліковано: 22 листопада 2012 Поділитись Опубліковано: 22 листопада 2012 а посмотрите сюда, параметры вроди как ваши, там есть и вариации планировок от форумчан: www.stroimdom.com.ua/forum/showthread.php?t=114474 Посилання на коментар Поділитися на інших сайтах More sharing options...
Dimaoksana Опубліковано: 22 листопада 2012 Автор Поділитись Опубліковано: 22 листопада 2012 а посмотрите сюда, параметры вроди как ваши, там есть и вариации планировок от форумчан: www.stroimdom.com.ua/forum/showthread.php?t=114474 Дякую, але в мене будинок шириною 10м на ділянку не вписується. Да й там квадратура будинку велика. Максимум, що ми можемо собі дозволити - 100 кв.м. по фундаменту. Будівництво буде бюджетне, навіть дуже бюджетне!! Посилання на коментар Поділитися на інших сайтах More sharing options...
loader Опубліковано: 22 листопада 2012 Поділитись Опубліковано: 22 листопада 2012 Дякую, але в мене будинок шириною 10м на ділянку не вписується. Да й там квадратура будинку велика. Максимум, що ми можемо собі дозволити - 100 кв.м. по фундаменту. Будівництво буде бюджетне, навіть дуже бюджетне!! Так там 10х10 вроди, может чуть подрезать, не? В любом случае +- пол метра бюджет не изменят никак. Мы тоже планируем бюджетное, будем "со всей этой дурой взлетать"... Посилання на коментар Поділитися на інших сайтах More sharing options...
-=Белка=- Опубліковано: 22 листопада 2012 Поділитись Опубліковано: 22 листопада 2012 В Медисоне гостинная была совмещена с кухней, но жена захотела чтобы детская спальня и наша были на первом этаже, поэтому пришлось гостинную заменить на спальню. Вот тут стало совсем непонятно - зачем Вам второй этаж?????? Стройте одноэтажный дом. (ссылка на изображение устарела) z500.com.ua/ Вам в помощь. Посилання на коментар Поділитися на інших сайтах More sharing options...
Dimaoksana Опубліковано: 22 листопада 2012 Автор Поділитись Опубліковано: 22 листопада 2012 Я дивися цей план. Але: 1. Одноповерховий будинок займає більшу площу на ділянці 2.Одноповерховий будинок буде дорожчим порівняно з мансардним при рівних корисних площах 3. Планується зробити перший поверх, вселитися в будинок і по мірі поступання грошей робити мансардний поверх 4. От хочеться мансардний будинок... Крім того вимога - будинок повинен бути шириною не більше 9м Може я мінімаліст, але в селі у батьків хата в якій кухня 10 кв.м., дві спальні по 12,5 кв.м., гостьова-зал - 15 кв.м.. Ну звичайно ще є коридорчик, кладовка. Тому я просто не уявляю і не знаю, для чого і що можна робити в гостинній 20-25 кв.м. Та й зараз живемо сім"єю з 3 чоловік у комунальній однокімнатці 18 кв.м., в якій і столова, і спальня, і дитяча, і кабінет в одній кімнаті. Посилання на коментар Поділитися на інших сайтах More sharing options...
-=Белка=- Опубліковано: 22 листопада 2012 Поділитись Опубліковано: 22 листопада 2012 Dimaoksana, так ужмите. Или гляньте на сайте одноэтажные дома нужного размера. Если вы делаете свои спальни на первом этаже - на второй 100% даже подниматься не будете. Непонятна функция тех комнат. Посилання на коментар Поділитися на інших сайтах More sharing options...
loader Опубліковано: 22 листопада 2012 Поділитись Опубліковано: 22 листопада 2012 1. Одноповерховий будинок займає більшу площу на ділянці 2.Одноповерховий будинок буде дорожчим порівняно з мансардним при рівних корисних площах 3. Планується зробити перший поверх, вселитися в будинок і по мірі поступання грошей робити мансардний поверх 4. От хочеться мансардний будинок... 1. Но вы реально делаете планировку одноэтажного... Все компактно и на первом этаже много помещений... Нужно очень хорошо понимать для чего мансарда в таком случае - все таки спальни или бильярд/спортзал/кинозал... Если не продумаете может оказаться как в большинстве случаев - второй этаж не используется... 2. Ну при ваших компактных запросах выгодней одноэтажник - экономия на леснице + ее площади, перекрытия жб не нужны, меньше окон на чердаке (вот тут нужно учитывать п.1 - функционал), проще утепление, не нужно доп занузла, отопления, отделки - это очень существенно меняет бюджет.... 4. Против хочется конечно не пойдеш Это понятно. Главное продумайте функционально... Может стоит где-то пожертвовать кол-вом помещений, сделать где-то побольше... Мы тоже жили когда-то 5м в комнате 12кв.... Но жили и в комнате 40... Вторая поприятней, воздуха больше. Гостей принимать удобно. Посилання на коментар Поділитися на інших сайтах More sharing options...
vovarpd Опубліковано: 22 листопада 2012 Поділитись Опубліковано: 22 листопада 2012 Тому я просто не уявляю і не знаю, для чого і що можна робити в гостинній 20-25 кв.м. в мене в квартирі вітальня 26кв.м. (+4 п подібно після мінімального рестайлінгу) і я не сказав би що це багато! диван.. стінка .. ТВ.. трохи площі по центру щоби почуватися вільно, а не скомкано як в гуртожитку.. От план моєї квартири, може вам згодиться, якраз до 100кв.м. чуть чуть не дотягує. хотя от взяв довжину порахував то 9х12 получається.. а в квартирі і не відчувається що аж 12 метрів в ширину.. що я би тут поміняв, якби будував особняк. ще збільшив би кухню. ще збільшив би ванну кімнати би не міняв. кабінет на 14 квадратів imho нормально. спальня на 17 теж. але додав би ще 1 спальню обовязково. IMHO на першому поверсі полюбому має бути кабінет, нормальні санвузли по площі, нормальна велика вітальня, велика кухня. помоєму це дуже зручно. нерозумію чому в вас обмеження по розмірах будинку в 10 метрів, при ділянці 26х31. Посилання на коментар Поділитися на інших сайтах More sharing options...
wipe Опубліковано: 23 листопада 2012 Поділитись Опубліковано: 23 листопада 2012 Планується зробити перший поверх, вселитися в будинок і по мірі поступання грошей робити мансардний поверх Вым понакладывают штрафов, за проживание в доме не введенным в эксплуатацию. Посилання на коментар Поділитися на інших сайтах More sharing options...
-=Белка=- Опубліковано: 23 листопада 2012 Поділитись Опубліковано: 23 листопада 2012 Dimaoksana, я думаю, что дом - не квартира. Стройте одноэтажный и живите счастливо. Появятся деньги и необходимость - поднимете крышу и сделаете мансарду. А может посчитаете, что проще пристроить помещение. Посилання на коментар Поділитися на інших сайтах More sharing options...
Dimaoksana Опубліковано: 23 листопада 2012 Автор Поділитись Опубліковано: 23 листопада 2012 А може хтось вказати на якісь недоліки саме викладених планів? Посилання на коментар Поділитися на інших сайтах More sharing options...
loader Опубліковано: 23 листопада 2012 Поділитись Опубліковано: 23 листопада 2012 А може хтось вказати на якісь недоліки саме викладених планів? Легко. 1й: 1. Огромный коридор при скромной площади 2. Вход в спальни с гостинной, часть гостинной - опять = коридор, размер гостинной сверхкомпакт, вы гостей не ожидаете в принципе? 3. Сверхкмопактная ванная 4. На плане нет дымохода, вентканалов - могут быть нюансы 5. Нет мансарды, вы говорите что хотите ее, но видимо не совсем понимаете в каком виде. Могут быть нюансы по планировке, комуникациям 6. Нет фасадов 2й: 1.Гостинная соеденена с спальней, почему не с кухней? 2.Апендикс из спальни/кухни на первом этаже какую роль играет? Для терассы - мало, площадь сьедает. 3. Сверхкмопактная ванная 4,5,6 - аналогично Посилання на коментар Поділитися на інших сайтах More sharing options...
nik_deko Опубліковано: 30 листопада 2012 Поділитись Опубліковано: 30 листопада 2012 Над планом нужно ещё поработать, многое я бы переделала. Посилання на коментар Поділитися на інших сайтах More sharing options...
Dimaoksana Опубліковано: 1 грудня 2012 Автор Поділитись Опубліковано: 1 грудня 2012 Над планом нужно ещё поработать, многое я бы переделала. А що Ви підкажете? Посилання на коментар Поділитися на інших сайтах More sharing options...
Рекомендовані повідомлення
Створіть акаунт або увійдіть у нього для коментування
Ви маєте бути користувачем, щоб залишити коментар
Створити акаунт
Зареєструйтеся для отримання акаунта. Це просто!
Зареєструвати акаунтУвійти
Вже зареєстровані? Увійдіть тут.
Увійти зараз