Natali1962 Опубліковано: 11 лютого 2020 Поділитись Опубліковано: 11 лютого 2020 Кухня-студія, їсти та відпочивати, 2є дорослих та 2є дітей + кіт, спати ніхто не буде, там де розташований стіл має бути барна стійка (нема в безкоштовній версії її тому прикріпив стіл), стіл потрібний нормальний або розкладний(трансформер) щоб не багато займав місця але був функціональним, по кухні меблі мають бути так розташовані (верхні ряд на вішав), по залу також можливо щось добавити но не значне, яке не вплине на загальне розташування меблів. Перегородка вже є, виводи під ТВ також є тому їх теж не можна вже пересувати. Та і питаю я більш про стелю між цими кімнатами. Чи потрібно їх розділяти, якщо так то як це ліпше зробити. Я не дизайнер , но , а зачем разделять зоны ? Одно пространство . Потолок сделать общим . А акцент сделать освещением . Сейчас много разных современных светильников , ими очень удобно что -то отделить . А вместо стеночки -арочки , опять же , куча современных полочек выполняющих роль ширмочки. Надоела -убрал , поставил вдоль стены . Диванами зонирование выполняют . 1 Посилання на коментар Поділитися на інших сайтах More sharing options...
Roma_Z Опубліковано: 14 лютого 2020 Поділитись Опубліковано: 14 лютого 2020 Я теж не дизайнер, тому і питаю як і що зараз в моді, поки відповідей мало. А вместо стеночки -арочки , опять же , куча современных полочек выполняющих роль ширмочки. можливо, но стіна вже є , і за нею робити полочки точно не красиво, бо вони будуть 90% часу прикриті дверьми в зал. Потолок сделать общим тут ще не визначився. Зараз взагалі як сучасно, робити одно, двох чи трьох ярусні стелі?? Все з гк, чи яруса з гк а середина натяжний, чи все з натяжного?? Посилання на коментар Поділитися на інших сайтах More sharing options...
hirus Опубліковано: 14 лютого 2020 Поділитись Опубліковано: 14 лютого 2020 Зараз взагалі як сучасно, робити одно, двох чи трьох ярусні стелі?? Все з гк, чи яруса з гк а середина натяжний, чи все з натяжного??Рівна стеля, без жодних ярусив! Пошпаклювати і ніяких натяжних сопель! Або голий бетон, якщо до вподоби лофт, якщо бетон, якщо він красивий, якщо... 1 Посилання на коментар Поділитися на інших сайтах More sharing options...
Roma_Z Опубліковано: 15 лютого 2020 Поділитись Опубліковано: 15 лютого 2020 Рівна стеля, без жодних ярусив! є бажання нішу для карнизів зробити, тому рівна вже ніяк. Або голий бетон, якщо до вподоби лофт перекриття дерево. Посилання на коментар Поділитися на інших сайтах More sharing options...
k.alena Опубліковано: 15 лютого 2020 Поділитись Опубліковано: 15 лютого 2020 є бажання нішу для карнизів зробити, тому рівна вже ніяк. Робіть з ГК в одному рівні, а ніші під вікнами на початковому рівні стелі. У вас зовсім невелика площа, щоб зонувати на стелі. Хіба що кухні зараз здебільшого роблять під саму стелю, або опускають стелю до верхнього рівня шафок. Особисто я завжди роблю лінію точкових світильників вздовж кухні окрім підсвітки під верхніми шафками. В цій зоні світла багато не буває Барна стіка - на любителя... мені видається незручно сидіти на високих стільцях. У Вас немає в ній необхідності, краще звичайний стіл. 2 Посилання на коментар Поділитися на інших сайтах More sharing options...
Roma_Z Опубліковано: 15 лютого 2020 Поділитись Опубліковано: 15 лютого 2020 Хіба що кухні зараз здебільшого роблять під саму стелю, так і хотілося, під саму стелю. Робіть з ГК в одному рівні, а ніші під вікнами на початковому рівні стелі. дякую. Посилання на коментар Поділитися на інших сайтах More sharing options...
Waliko74 Опубліковано: 21 лютого 2020 Поділитись Опубліковано: 21 лютого 2020 Кухня-студія, їсти та відпочивати, 2є дорослих та 2є дітей + кіт, спати ніхто не буде, там де розташований стіл має бути барна стійка (нема в безкоштовній версії її тому прикріпив стіл), стіл потрібний нормальний або розкладний(трансформер) щоб не багато займав місця але був функціональним, по кухні меблі мають бути так розташовані (верхні ряд на вішав), по залу також можливо щось добавити но не значне, яке не вплине на загальне розташування меблів. Перегородка вже є, виводи під ТВ також є тому їх теж не можна вже пересувати. Та і питаю я більш про стелю між цими кімнатами. Чи потрібно їх розділяти, якщо так то як це ліпше зробити. я в себе коли робив студію зонально стелю розділив коробом який продовжується на стіні тим же кольором 3 Посилання на коментар Поділитися на інших сайтах More sharing options...
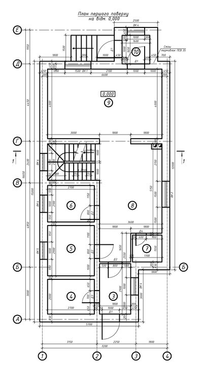
Ihor Chumak Опубліковано: 21 лютого 2020 Поділитись Опубліковано: 21 лютого 2020 Всім привіт! Порадьте по плануванню. Маю проект будинку. На 1-му поверсі: 3 - тамбур, 4 - гардеробна, 5 - санвузол. На 2-му поверсі: 15 та 17 - спальні, 14 та 18 - санвузли, 16 - гардеробна. Проблема в тому, що санвузол 18 розміщений над тамбуром. Труби водопостачання та каналізації з цього санвузла доведеться прокладати під стелею 1-го поверху до санвузла 5. І це мені не подобається. Чи можна якось перепланувати нижню частину 2-го поверху? Щоб санвузол 18 поставити над санвузлом 5 (хоча б частково), або поруч з 14 та зберегти гардеробну і нормальні розміри спалень? Посилання на коментар Поділитися на інших сайтах More sharing options...
Waliko74 Опубліковано: 24 лютого 2020 Поділитись Опубліковано: 24 лютого 2020 Всім привіт! Порадьте по плануванню. Маю проект будинку. На 1-му поверсі: 3 - тамбур, 4 - гардеробна, 5 - санвузол. На 2-му поверсі: 15 та 17 - спальні, 14 та 18 - санвузли, 16 - гардеробна. Проблема в тому, що санвузол 18 розміщений над тамбуром. Труби водопостачання та каналізації з цього санвузла доведеться прокладати під стелею 1-го поверху до санвузла 5. І це мені не подобається. Чи можна якось перепланувати нижню частину 2-го поверху? Щоб санвузол 18 поставити над санвузлом 5 (хоча б частково), або поруч з 14 та зберегти гардеробну і нормальні розміри спалень? Чому вас не бентежить те, що 14 санвузол на 2 поверху знаходиться над холом (наскільки я зрозумів), і має ту ж саму проблему? Яке призначення приміщення 7 на 1 поверсі? навіщо на 1 поверсі такий великий санвузол (5)? Посилання на коментар Поділитися на інших сайтах More sharing options...
Ihor Chumak Опубліковано: 24 лютого 2020 Поділитись Опубліковано: 24 лютого 2020 Чому вас не бентежить те, що 14 санвузол на 2 поверху знаходиться над холом (наскільки я зрозумів), і має ту ж саму проблему? Яке призначення приміщення 7 на 1 поверсі? Там немає проблеми. Труба каналізації спускається вертикально вниз і під підлогою виходить з дому. Приміщення 7 - комора. Її може і не бути. навіщо на 1 поверсі такий великий санвузол (5)? Це умовно санвузол. Він суміщений з пральнею. І це чорнове планування. Я ще можу зменшити його розмір, як і розділити на два - санвузол і окрему пральню. Посилання на коментар Поділитися на інших сайтах More sharing options...
светлана 33 Опубліковано: 18 березня 2020 Поділитись Опубліковано: 18 березня 2020 Добрый вечер Столкнулись с вопросом о кухне-гостинной Перечитала много за и против На кухне будет 3-4 человека По праздникам побольше Готовят часто Стоит ли разделять стеной, чтобы было два помещения? Если стоит, то как удачнее там где кухня поменьше, или по красной линии ( так больше нравится.И кухня больше, и скошенный вход кажется удачнее:) Посилання на коментар Поділитися на інших сайтах More sharing options...
Spring1305 Опубліковано: 19 березня 2020 Поділитись Опубліковано: 19 березня 2020 (змінено) Не советую делать скошенные углы. В реальности выглядят убого, простят интерьер. На мой взгляд лучше сделать ровные комнаты, заложив ниши для встроенных шкафов. Будут комнаты правильной формы без громоздкой мебели, места хранения сольются с интерьером. Угловая кухня хорошо тоже тогда станет Змінено 19 березня 2020 користувачем Spring1305 Ошибка 1 Посилання на коментар Поділитися на інших сайтах More sharing options...
Spring1305 Опубліковано: 19 березня 2020 Поділитись Опубліковано: 19 березня 2020 Вариант кухни 1 Посилання на коментар Поділитися на інших сайтах More sharing options...
светлана 33 Опубліковано: 19 березня 2020 Поділитись Опубліковано: 19 березня 2020 (змінено) благодарю за ответ но кухня планируется в меньшей (пока) комнате Встроенных шкафов, не будет Вот такое расположение мебели Змінено 19 березня 2020 користувачем светлана 33 Посилання на коментар Поділитися на інших сайтах More sharing options...
Світлана Т Опубліковано: 21 березня 2020 Поділитись Опубліковано: 21 березня 2020 Доброго дня! Допоможіть,будь ласка, з дизайном кімнати для підлітка хлопця.На даний момент вже є меблі,якими користувалися раніше і змінювати їх поки що не плануємо. Найголовніша проблема-підібрати колір стін.Меблі коричневі з жовтими фасадами.Як оформити так, щоб було не по дитячому та сучасно? Ще один нюанс-кімната мансардна(18 м.кв.),тому меблі вздовж високої стіни.Можливо на нижчу стіну, біля якої розташовано ліжко, наклеїти фотошпалери? Фото додається. Посилання на коментар Поділитися на інших сайтах More sharing options...
Waliko74 Опубліковано: 23 березня 2020 Поділитись Опубліковано: 23 березня 2020 Добрый вечер Столкнулись с вопросом о кухне-гостинной Перечитала много за и против Стоит ли разделять стеной, чтобы было два помещения? не стоит 2 Посилання на коментар Поділитися на інших сайтах More sharing options...
Metallica2020 Опубліковано: 23 травня 2020 Поділитись Опубліковано: 23 травня 2020 Добрый день. Прошу помочь советом по перепланировке и дизайну 2к квартиры 63м. На мой взгляд 16 метров коридора это очень много. Как вариант можно увеличить кухню за счет объединения ванны и туалета и уменьшения их общей площади. Все тонкие красные стены можно рушить. На фото стандартная планировка и дизайн от застройщика. Ищу идеальный вариант перепланировки) Посилання на коментар Поділитися на інших сайтах More sharing options...
Строй Сергей Опубліковано: 23 травня 2020 Поділитись Опубліковано: 23 травня 2020 Добрый день. Прошу помочь советом по перепланировке и дизайну 2к квартиры 63м. На мой взгляд 16 метров коридора это очень много. Как вариант можно увеличить кухню за счет объединения ванны и туалета и уменьшения их общей площади. Все тонкие красные стены можно рушить. На фото стандартная планировка и дизайн от застройщика. Ищу идеальный вариант перепланировки) Напрашивается объединение спальни с кухней и коридором. Получается большая гостиная - студия и перенос спальни в помещение 17.88 с возможностью организации гардеробной, при этом немного смещается дверной проем. Посилання на коментар Поділитися на інших сайтах More sharing options...
Metallica2020 Опубліковано: 23 травня 2020 Поділитись Опубліковано: 23 травня 2020 Напрашивается объединение спальни с кухней и коридором. Получается большая гостиная - студия и перенос спальни в помещение 17.88 с возможностью организации гардеробной, при этом немного смещается дверной проем. Тоже думал о таком варианте, но это же неправильно, что из туалета выходишь в гостинную... 1 Посилання на коментар Поділитися на інших сайтах More sharing options...
Тюня Опубліковано: 23 травня 2020 Поділитись Опубліковано: 23 травня 2020 Я бы думала в следующем направлении 1) убрать угол в 45 градусов 2) поменять местами спальню и гостинную 3) сделать вход в спальню из гостинной, а в углу правом нижнем разместить большой гардероб со входом из спальни, при этом кусок коридора тоже прирезать этому гардеробу) Добавлено через 1 минуту 4) санузлы объединить, если это приемлемо, вход сделать правее, чтобы часть бывшего коридора стала частью кухни 5) и конечно объединить кухню и гостинную, потому как площадь 20 м2 это хоть что-то, а 8 и 11 - это ни о чем 1 Посилання на коментар Поділитися на інших сайтах More sharing options...
светлана 33 Опубліковано: 23 травня 2020 Поділитись Опубліковано: 23 травня 2020 доброй ночи Подскажите пожалуйста, какой фасад красивее Однотонный , но в середине горизонтальная белая линия( цвет фасада кофе с молоком) Или добавить к белой линии белые колонны и самую верхнюю секцию белую? сорри за художества Посилання на коментар Поділитися на інших сайтах More sharing options...
Тюня Опубліковано: 24 травня 2020 Поділитись Опубліковано: 24 травня 2020 Ненадо крестики-нолики рисовать Я бы попробовала в 2 оттенках - низ светлее, верх темнее (значительно) и может быть белым поясок между этажами 1 Посилання на коментар Поділитися на інших сайтах More sharing options...
Metallica2020 Опубліковано: 24 травня 2020 Поділитись Опубліковано: 24 травня 2020 Я бы думала в следующем направлении 1) убрать угол в 45 градусов 2) поменять местами спальню и гостинную 3) сделать вход в спальню из гостинной, а в углу правом нижнем разместить большой гардероб со входом из спальни, при этом кусок коридора тоже прирезать этому гардеробу) Добавлено через 1 минуту 4) санузлы объединить, если это приемлемо, вход сделать правее, чтобы часть бывшего коридора стала частью кухни 5) и конечно объединить кухню и гостинную, потому как площадь 20 м2 это хоть что-то, а 8 и 11 - это ни о чем Добрый вечер. Дорисуйте пожалуйста планировку, я не совсем понял идею...Грубо,быстро, но чтоб было понятно и не заняло много времени)) Спасибо) Посилання на коментар Поділитися на інших сайтах More sharing options...
Spiraea Опубліковано: 24 травня 2020 Поділитись Опубліковано: 24 травня 2020 Тоже думал о таком варианте, но это же неправильно, что из туалета выходишь в гостинную... Если есть (будет) ребёнок, то и ему нужно своё место, и родителям где то спрятаться. Лучше сохранить маленькую комнату. Если вас двое и кухня для готовки не особо важна, можно объединять, будет модная большая "евродвушка". 1 Посилання на коментар Поділитися на інших сайтах More sharing options...
Тюня Опубліковано: 25 травня 2020 Поділитись Опубліковано: 25 травня 2020 Добрый вечер. Дорисуйте пожалуйста планировку, я не совсем понял идею... Не могу рисовать, только на словах Рисунок должен сделать профессиональный дизайнер, тогда с этого будет толк, план в см вымерять и все точно расположить, Вам зелененьким уже показали, сколько места будет, надо доработать, построить фальш-стену перед ванной, на нее ТВ, она же прикроет с/узлы от гостинной, спальню вниз Посилання на коментар Поділитися на інших сайтах More sharing options...
Рекомендовані повідомлення
Створіть акаунт або увійдіть у нього для коментування
Ви маєте бути користувачем, щоб залишити коментар
Створити акаунт
Зареєструйтеся для отримання акаунта. Це просто!
Зареєструвати акаунтУвійти
Вже зареєстровані? Увійдіть тут.
Увійти зараз