Tom Anderson Опубліковано: 25 березня 2013 Автор Поділитись Опубліковано: 25 березня 2013 Tom Anderson, а вам дают добро в архитектуре на такую посадку дома на участок? Там от дома до границы участка с каждой стороны 1 метр остается. Или на чертеже неверные размеры? В архитектуре не уточнял пока, но на соседних участках никаких строений нет, т.е. отсупать вроде как не от чего. Посилання на коментар Поділитися на інших сайтах More sharing options...
blacktigra Опубліковано: 25 березня 2013 Поділитись Опубліковано: 25 березня 2013 В архитектуре не уточнял пока, но на соседних участках никаких строений нет, т.е. отсупать вроде как не от чего. Советую уточнить пока не поздно. Можно погуглить по форуму, но правильнее всего узнать в архитектуре. Сосед по улице (КС район) отступил от границы 2 метра, соседний участок тоже был пустым. Пришлось ему потом решать эту проблему "неконституционными" методами как при оформлении стройпаспорта так и после визита инспектора ГАСК. Посилання на коментар Поділитися на інших сайтах More sharing options...
Tom Anderson Опубліковано: 26 березня 2013 Автор Поділитись Опубліковано: 26 березня 2013 Советую уточнить пока не поздно. Можно погуглить по форуму, но правильнее всего узнать в архитектуре. Нашел только ограничения на расстояния между зданиями. К тому же у нас дачный участок, там вроде попроще с этим, но, вы правы нужно будет уточнить от греха подальше... Посилання на коментар Поділитися на інших сайтах More sharing options...
Tom Anderson Опубліковано: 3 квітня 2013 Автор Поділитись Опубліковано: 3 квітня 2013 Что-то, то ли планировка плохая/скучная, то ли бюджетное строительство народ не интересует, но никто не комментит (кроме blacktigra, конечно). В общем "добил" таки предыдущий вариант и перенес комнату на место кухни, кухню расположил рядом, а в выступе уместились санузел с прихожей. Увеличил расстояние до забора (до 1.5 метра), совместил вход с мини-террасой и избавился таким образом от дополнительного входа с заднего двора. Детали на рисунках. Покритикуйте же, господа! Посилання на коментар Поділитися на інших сайтах More sharing options...
blacktigra Опубліковано: 3 квітня 2013 Поділитись Опубліковано: 3 квітня 2013 Tom Anderson, я уже начал было править планировки, но меня остановил отступ от границы участка. Будет обидно, если отполируете планировку, а окажется что дом так ставить нельзя. 1-1,5 метра это крайне мало не только с точки зрения нормативных документов, но и вообще. Это довольно узкий проход. И еще, не могу найти как у вас участок сориентирован по сторонам света. Посилання на коментар Поділитися на інших сайтах More sharing options...
Ольга В Опубліковано: 3 квітня 2013 Поділитись Опубліковано: 3 квітня 2013 Что-то, то ли планировка плохая/скучная, Покритикуйте же... Планировка - хорошая. Фасады - ужасные, чистый сарай. И сделайте вместо мансарды 2-ой этаж. Посилання на коментар Поділитися на інших сайтах More sharing options...
Tom Anderson Опубліковано: 3 квітня 2013 Автор Поділитись Опубліковано: 3 квітня 2013 Tom Anderson, я уже начал было править планировки, но меня остановил отступ от границы участка. Будет обидно, если отполируете планировку, а окажется что дом так ставить нельзя. 1-1,5 метра это крайне мало не только с точки зрения нормативных документов, но и вообще. Это довольно узкий проход. И еще, не могу найти как у вас участок сориентирован по сторонам света. Да, узковато, но что поделаешь. В архитектуру фиг дозвонишься, попробую попасть завтра... Ориентировка по сторонам света есть в первом сообщении темы, в последнем варианте вход в дом смотрит на юг, а окна из кухни и комнаты на север. Добавлено через 11 минут Планировка - хорошая. Фасады - ужасные, чистый сарай. Так так, это уже интереснее. А что конкретно вам не понравилось? Какие варианты устранения "сарайности" можете предложить? На крыше, скорее всего добавим кукушки, плюс дымоход же будет, половины дуплекса также как-то визуально разделим. С размерами и положением окон можно поиграться, но особо не переставишь. Также неплохо бы привести все к каким-то общим пропорциям, но размеры участка склоняют к прагматике, но не эстетике. И сделайте вместо мансарды 2-ой этаж. Это скорее вопрос кому что больше нравится. Мне нравятся мансардные этажи, комнаты с косым потолком и открытыми балками, да и пространство эффективней используется - при таком цоколе, такой чердак не нужен. Посилання на коментар Поділитися на інших сайтах More sharing options...
Ольга В Опубліковано: 3 квітня 2013 Поділитись Опубліковано: 3 квітня 2013 ... А что конкретно вам не понравилось? Какие варианты устранения "сарайности" можете предложить? На крыше, скорее всего добавим кукушки, ... 1- весь внешний вид дуплекса 2- нанять архитектора или найти в интернете проект дома и удвоить его превратив в дуплекс 3- что такое "кукушки"? Посилання на коментар Поділитися на інших сайтах More sharing options...
VVViktor Опубліковано: 3 квітня 2013 Поділитись Опубліковано: 3 квітня 2013 По сабжу есть готовое решение - "хрущевка". Ничего другого на 6-и сотках на двоих не получится. ИМХО Посилання на коментар Поділитися на інших сайтах More sharing options...
Tom Anderson Опубліковано: 4 квітня 2013 Автор Поділитись Опубліковано: 4 квітня 2013 что такое "кукушки"? люкарны в простонародье Добавлено через 51 секунду По сабжу есть готовое решение - "хрущевка". Ничего другого на 6-и сотках на двоих не получится. ИМХО Хорошая шутка, но уж больно бородатая Посилання на коментар Поділитися на інших сайтах More sharing options...
VVViktor Опубліковано: 4 квітня 2013 Поділитись Опубліковано: 4 квітня 2013 Посмотрите такое www.domostroy.kiev.ua/c-dnstr2.htm Посилання на коментар Поділитися на інших сайтах More sharing options...
Tom Anderson Опубліковано: 6 квітня 2013 Автор Поділитись Опубліковано: 6 квітня 2013 Фасады - ужасные Так лучше? "Сарайности" поубавилось? Посилання на коментар Поділитися на інших сайтах More sharing options...
blacktigra Опубліковано: 6 квітня 2013 Поділитись Опубліковано: 6 квітня 2013 Tom Anderson, чертишо, если честно. Уменьшить угол наклона кровли, и получите 2-х этажный дом. А если заменить крышу с двухскатной на шатровую, то затраты на стройматериалы будут практически одинаковы. Причем не придется мудрить с люкарнами и ендовыми. Посилання на коментар Поділитися на інших сайтах More sharing options...
Tom Anderson Опубліковано: 7 квітня 2013 Автор Поділитись Опубліковано: 7 квітня 2013 Tom Anderson, чертишо, если честно. Аааааа :D Уменьшить угол наклона кровли, и получите 2-х этажный дом. А если заменить крышу с двухскатной на шатровую, то затраты на стройматериалы будут практически одинаковы. Причем не придется мудрить с люкарнами и ендовыми. Т.е. дело исключительно в крыше? Или в общем херня? "Чертишо", знаете, понятие растяжимое :D. Угол там не большой - 35 градусов, мансарда нравится, а дом с приплюснутой крышей не оч. Люкарны исключительно для красоты, можно и не мудрить с ними, для освещения в комнатах достаточно окон/дверей на фронтонах. Посилання на коментар Поділитися на інших сайтах More sharing options...
blacktigra Опубліковано: 7 квітня 2013 Поділитись Опубліковано: 7 квітня 2013 Угол там не большой - 35 градусов, мансарда нравится, а дом с приплюснутой крышей не оч. Люкарны исключительно для красоты, можно и не мудрить с ними, для освещения в комнатах достаточно окон/дверей на фронтонах. Это только мое мнение, дело в визуальном восприятии. Может это такой скриншот, но выглядит так, вроде аттиковая получилась довольно высокой, а окно в люкарне почему-то низкое, но расположено при этом высоко. Если уже делать полумансардный этаж с аттиковой стеной такой высоты, то оставлять для освещения глухих помещений мансардные окна. (ссылка на изображение устарела) Люкарны просятся для крыш пониже. (ссылка на изображение устарела) А что это за дополнительные скаты кровли возле центрального дымохода? Посилання на коментар Поділитися на інших сайтах More sharing options...
Drosselbeere Опубліковано: 7 квітня 2013 Поділитись Опубліковано: 7 квітня 2013 blacktigra, подскажите плиз, что такое полумансардный этаж и чем он отличается от мансардного? Посилання на коментар Поділитися на інших сайтах More sharing options...
blacktigra Опубліковано: 7 квітня 2013 Поділитись Опубліковано: 7 квітня 2013 blacktigra, подскажите плиз, что такое полумансардный этаж и чем он отличается от мансардного? Для себя я обозначил смысл этих понятий вот так: (ссылка на изображение устарела) (ссылка на изображение устарела) (ссылка на изображение устарела) Наличие или отсутствие аттиковой стены определяет мансарда это или полумансарда. В нормативной документации есть определение только для мансардного этажа. Например, СНиП 2.08.01-89: «Этаж мансардный (мансарда) — этаж в чердачном пространстве, фасад которого полностью или частично образован поверхностью (поверхностями) наклонной или ломаной крыши, при этом линия пересечения плоскости крыши и фасада должна быть на высоте не более 1,5 м от уровня пола мансардного этажа». Посилання на коментар Поділитися на інших сайтах More sharing options...
КОРН Опубліковано: 7 квітня 2013 Поділитись Опубліковано: 7 квітня 2013 Планировка - хорошая. Фасады - ужасные, чистый сарай. И сделайте вместо мансарды 2-ой этаж. Я не соглашусь - резковато... А для ТС - я бы не парился, что кому-то ваш эскиз кажется сараем. Мне понравилась и планировка и внешний вид. "Просто" - не значит уродливо. Главное - детали. Форма дома и планировка достаточно рациональные для бюджетного строительства. Ну и еще раз (я же тоже хочу свои 5 копеек вставить). Было бы не плохо иметь кладовки, гардеробные вместо шкафов. 2 Посилання на коментар Поділитися на інших сайтах More sharing options...
Tom Anderson Опубліковано: 8 квітня 2013 Автор Поділитись Опубліковано: 8 квітня 2013 для ТС - я бы не парился. Да я и не парюсь, просто пытаюсь выудить побольше информации у опытных людей. Но не всегда выходит Главное - детали. Форма дома и планировка достаточно рациональные для бюджетного строительства. Вот как раз рациональность и поставлена во главу угла, затем удобство и уже потом эстетика. Ну и еще раз (я же тоже хочу свои 5 копеек вставить). Было бы не плохо иметь кладовки, гардеробные вместо шкафов. Да кладовка вещь нужная и полезная, но не такая гибкая как шкаф), с легкостью не переставишь, да и места вроде как больше займет. Шкафов в таком количестве и не будет, это так, больше чтоб место прикинуть в комнатах. Но подумаю, может где и можно будет впихнуть вместо шкафа. Добавлено через 12 минут Может это такой скриншот, но выглядит так, вроде аттиковая получилась довольно высокой, а окно в люкарне почему-то низкое, но расположено при этом высоко. Если уже делать полумансардный этаж с аттиковой стеной такой высоты, то оставлять для освещения глухих помещений мансардные окна. Это не визуальный обман, так и есть . Аттиковая стена и правда высоковата была 1.5м, уменьшил до 1.3м. Окна расположены сразу над ней (а не в ней), по этому так и высоко. Т.е. в комнате они будут на уровне груди-лица. Комнаты не глухие, так что они исключительно для красоты Из плюсов такого размещения - меньше разрывов в армопоясе и кладке. Из минусов видимо диспропорция, которую ваш глаз-алмаз сразу заметил . А что это за дополнительные скаты кровли возле центрального дымохода? Это треугольная люкарна в ванной, тоже как опция. Посилання на коментар Поділитися на інших сайтах More sharing options...
blacktigra Опубліковано: 10 квітня 2013 Поділитись Опубліковано: 10 квітня 2013 А для ТС - я бы не парился, что кому-то ваш эскиз кажется сараем. Подпишусь под этой фразой. На языке крутится поговорка по этому поводу, но не могу вспомнить. Посилання на коментар Поділитися на інших сайтах More sharing options...
Катерина Ш Опубліковано: 10 квітня 2013 Поділитись Опубліковано: 10 квітня 2013 Я не соглашусь - резковато... А для ТС - я бы не парился, что кому-то ваш эскиз кажется сараем. Мне понравилась и планировка и внешний вид. "Просто" - не значит уродливо. Главное - детали. Форма дома и планировка достаточно рациональные для бюджетного строительства. Ну и еще раз (я же тоже хочу свои 5 копеек вставить). Было бы не плохо иметь кладовки, гардеробные вместо шкафов. Я бы тоже поддержала совет "не париться". В моем случае на стадии обсуждения нашего проекта, я наслушалась таких отрицательных отзывов, а сейчас уже, когда дом выстроен (ну, без отделки) всем, кто приезжает в гости нравиться, и то, что казалось "простеньким" или "нефункционалом" очень даже хорошо и удобно)))) Посилання на коментар Поділитися на інших сайтах More sharing options...
blacktigra Опубліковано: 10 квітня 2013 Поділитись Опубліковано: 10 квітня 2013 Вспомнил - "Я не сто долларов, чтобы всем нравиться". =) Посилання на коментар Поділитися на інших сайтах More sharing options...
Tom Anderson Опубліковано: 11 квітня 2013 Автор Поділитись Опубліковано: 11 квітня 2013 Дякую за підтримку! Посилання на коментар Поділитися на інших сайтах More sharing options...
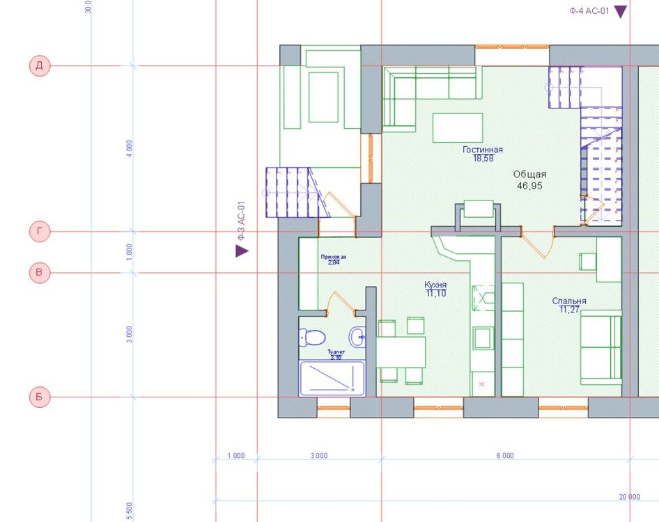
Tom Anderson Опубліковано: 11 квітня 2013 Автор Поділитись Опубліковано: 11 квітня 2013 Немного конструктива 1. Как рациональней расположить проемы между прихожей, кухней и гостинной, с отступом от стены или без? Есть ли какие-то общепринятые рекомендации как с точки зрения конструкции так и с эстетической? Та же ситуация и в подвале. 2. Аналогичный вопрос со входными дверями в подвал с улицы, можно ли размещать их впритык в углу, или не желательно? Какие могут быть предложения по размещению входа? Спуск нужно будет накрывать, не хотелось бы чтобы окно гостинной упиралось в козырек над входом. Посилання на коментар Поділитися на інших сайтах More sharing options...
Luko Опубліковано: 11 квітня 2013 Поділитись Опубліковано: 11 квітня 2013 Немного конструктива 1. Как рациональней расположить проемы между прихожей, кухней и гостинной, с отступом от стены или без? Есть ли какие-то общепринятые рекомендации как с точки зрения конструкции так и с эстетической? Та же ситуация и в подвале. 2. Аналогичный вопрос со входными дверями в подвал с улицы, можно ли размещать их впритык в углу, или не желательно? Какие могут быть предложения по размещению входа? Спуск нужно будет накрывать, не хотелось бы чтобы окно гостинной упиралось в козырек над входом. на входную я бы делала с отступом, т.к. так дверь чуть шире открывается и меньше вероятность удара ручкой об стену в подвале мне вообще такое размещение дверей не понравилось, захотелось сразу поменять направление открывания и сторону... Вы представьте, как Вы будете эти двери открывать... 1 Посилання на коментар Поділитися на інших сайтах More sharing options...
Рекомендовані повідомлення
Створіть акаунт або увійдіть у нього для коментування
Ви маєте бути користувачем, щоб залишити коментар
Створити акаунт
Зареєструйтеся для отримання акаунта. Це просто!
Зареєструвати акаунтУвійти
Вже зареєстровані? Увійдіть тут.
Увійти зараз