serg1059 Опубліковано: 11 січня 2013 Поділитись Опубліковано: 11 січня 2013 Вот, набросал за вечер и очень хочу критики) Интересует мнение именно по планировке, все остальное пока не важно. Посилання на коментар Поділитися на інших сайтах More sharing options...
Татьяна5 Опубліковано: 11 січня 2013 Поділитись Опубліковано: 11 січня 2013 модернизированная хрущевка , но главное - что бы Вам нравилось 1 Посилання на коментар Поділитися на інших сайтах More sharing options...
serg1059 Опубліковано: 11 січня 2013 Автор Поділитись Опубліковано: 11 січня 2013 модернизированная хрущевка , но главное - что бы Вам нравилось Может и хрущевка)) А нравится или нет - я пока не знаю (еще не построил)) Посилання на коментар Поділитися на інших сайтах More sharing options...
Drosselbeere Опубліковано: 11 січня 2013 Поділитись Опубліковано: 11 січня 2013 А нравится или нет - я пока не знаю начните с готовых проектов. проще адаптировать, чем придумывать когда еще не построил например вот такое решение www.extradom.pl/projekt-domu-karina-i-WRP1359 1 Посилання на коментар Поділитися на інших сайтах More sharing options...
serg1059 Опубліковано: 11 січня 2013 Автор Поділитись Опубліковано: 11 січня 2013 начните с готовых проектов. проще адаптировать, чем придумывать Ну уже вроде как придумал, просто хочу услышать недостатки тех или иных решений в данной планировке. И немного уточню тот момент, что фундамент 13,4*9,6 еще летом был залит, теперь буду лить по весне под внутренние перегородки. А так, как делаю все своими руками- то все планирую сделать по принципу необходимой достаточности. Посилання на коментар Поділитися на інших сайтах More sharing options...
Drosselbeere Опубліковано: 11 січня 2013 Поділитись Опубліковано: 11 січня 2013 Ну уже вроде как придумал смотрите сами, если есть фундамент не беда еще можно перепланировать. просто хочу услышать недостатки тех или иных решений на вкус и цвет товарища нет )))) 1 Посилання на коментар Поділитися на інших сайтах More sharing options...
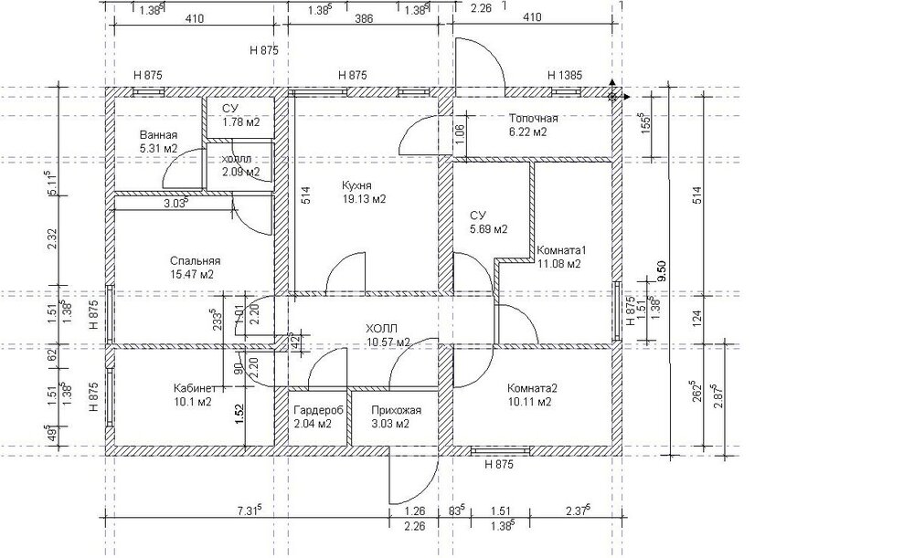
arphey Опубліковано: 12 січня 2013 Поділитись Опубліковано: 12 січня 2013 Вот, набросал за вечер и очень хочу критики) Интересует мнение именно по планировке, все остальное пока не важно. Как-то неуютненько, как по-мне. Подумайте о тамбуре - не на Сицилии строим-то, а способствовать глобальному потеплению грешно ) Кухня вроде бы большая, но коммуникации не совсем понятны, видится много лишних движений и пересекающихся потоков, нет единой рабочей зоны, сплошной "проходняк". Планировку рассматривать стоит также в комплексе с участком: ориентация по сторонам света, соседские строения и т.д. В целом, вы создали техзадание для архитектора, задача которого все это причесать, сделать красивым снаружи, приятным и комфортным внутри. О внешнем виде Вашего дома, я так понимаю, вы не задумывались... Посилання на коментар Поділитися на інших сайтах More sharing options...
AНДРЮША Опубліковано: 12 січня 2013 Поділитись Опубліковано: 12 січня 2013 Какое назначение холла? Если прихожая, то 20 кв.м слишком много, надо бы отделить какое то помещение, где вы будете заходить и раздеваться. С/у посредине стильно (если стены сделать прозрачные), но слишком смело даже для меня. Посилання на коментар Поділитися на інших сайтах More sharing options...
tamart Опубліковано: 12 січня 2013 Поділитись Опубліковано: 12 січня 2013 Я бы из одной комнаты (или части холла) сделала гостинную и подсоединила к кухне (20 м это маловато для кухни и гостинной). Комнаты увеличила в размере за счет удаления одной комнаты. Продумала летний выход в сад (если таковой есть) через кухню-гостинную. Посилання на коментар Поділитися на інших сайтах More sharing options...
serg1059 Опубліковано: 12 січня 2013 Автор Поділитись Опубліковано: 12 січня 2013 Спасибо за критику, что смог- немного учел. Архитектор, это конечно хорошо, и против я ничего не имею, но наверное не просто так я строюсь своими силами (то есть без строителей, архитекторов, прорабов и т.п.) И за площадями комнат я тоже не гонюсь. Посилання на коментар Поділитися на інших сайтах More sharing options...
Телесистемы Опубліковано: 12 січня 2013 Поділитись Опубліковано: 12 січня 2013 топочная - под какой тип отопления? в любом случае вход в нее делайти из кухни, а не из ванной 1 Посилання на коментар Поділитися на інших сайтах More sharing options...
serg1059 Опубліковано: 12 січня 2013 Автор Поділитись Опубліковано: 12 січня 2013 топочная - под какой тип отопления? в любом случае вход в нее делайти из кухни, а не из ванной Пока не известно по газу, поэтому смотрю в сторону твердотопливного... Посилання на коментар Поділитися на інших сайтах More sharing options...
Artyomovets Опубліковано: 12 січня 2013 Поділитись Опубліковано: 12 січня 2013 а внутренние стены из гипсокартона в 1 слой? нарисуйте в реальную толщину стены - удивитесь над изменившимся размером помещений. Посилання на коментар Поділитися на інших сайтах More sharing options...
Телесистемы Опубліковано: 12 січня 2013 Поділитись Опубліковано: 12 січня 2013 Пока не известно по газу, поэтому смотрю в сторону твердотопливного... если в сторону ТТ, то нужен отдельный вход с улицы и правильная система приточной вентиляции отдельный вход вижу (сразу не заметил) Посилання на коментар Поділитися на інших сайтах More sharing options...
serg1059 Опубліковано: 12 січня 2013 Автор Поділитись Опубліковано: 12 січня 2013 если в сторону ТТ, то нужен отдельный вход с улицы и правильная система приточной вентиляции ну это предусмотрено, просто на плане немного верх обрезался. Посилання на коментар Поділитися на інших сайтах More sharing options...
Drosselbeere Опубліковано: 12 січня 2013 Поділитись Опубліковано: 12 січня 2013 если в сторону ТТ, то нужен отдельный вход с улицы это обусловлено условия эксплуатации не более, не будете же вы носить топливный материал через весь дом, как то не практично что же касается газового котла, то там требование жесче, в плане выхода непосредственно наружу или через тамбур, так же четкие требования к объему помещения и площади окна и наличие форточки Посилання на коментар Поділитися на інших сайтах More sharing options...
serg1059 Опубліковано: 12 січня 2013 Автор Поділитись Опубліковано: 12 січня 2013 это обусловлено условия эксплуатации не более, не будете же вы носить топливный материал через весь дом, как то не практично что же касается газового котла, то там требование жесче, в плане выхода непосредственно наружу или через тамбур, так же четкие требования к объему помещения и площади окна и наличие форточки На сколько я знаю- сейчас для газа не нужен отдельный вход, только окно открывающееся. Посилання на коментар Поділитися на інших сайтах More sharing options...
berizka_00 Опубліковано: 14 січня 2013 Поділитись Опубліковано: 14 січня 2013 Если Вы берете за основу свою планировку, то напрашивается сразу несколько вопросов: 1. Зачем вам разделять "спальный" санузел? - Объедените ванную и туалет, чуть уменьшите его общий размер и о чудо! Получается неплохой гардеробчик. (А кому срочно нужно на горшок - пускай бежит в гостевой с/у). 2. Зачем вам проходной гостевой санузел? - Сделайте вход из кухни и о второе чудо! Получается еще и кладовка в топочной со входом из кухни, что более удобно. Топочную сделайте немного шире. К стати, можно сделать тамбурок и второй выход во двор. 3. Зачем вам такой больной хол? По всему периметру одни двери и поставить ничего не получится. Чуда не получается. Просто уменьшите его. 4 Прихожую сделайте немного менше, а гардероб увеличьте. Это общий гардероб и там много одежды будет. Посмотрите мой "велосипед". Может что-то пригодится. Я уже не первый месяц мучаюсь www.stroimdom.com.ua/forum/showthread.php?p=1995413#post1995413 1 Посилання на коментар Поділитися на інших сайтах More sharing options...
Надежда*777 Опубліковано: 15 січня 2013 Поділитись Опубліковано: 15 січня 2013 3,12м.кв. между спальней и входом в санузел - эта площа не используется. не лучше ли сделать сразу вход в санузел со спальни? да и зачем его делать раздельным? 2 Посилання на коментар Поділитися на інших сайтах More sharing options...
serg1059 Опубліковано: 15 січня 2013 Автор Поділитись Опубліковано: 15 січня 2013 Спасибо всем откликнувшимся! Вот очередная версия, уже с учетом толщины стен (внутри дома 2 стенки в кирпич для укладки деревянных балок перекрытия и опирания стропилки кровли) все остальные стены- гипсокартон. Пока не могу придумать как ещё отрезать площади у холла... Посилання на коментар Поділитися на інших сайтах More sharing options...
Телесистемы Опубліковано: 15 січня 2013 Поділитись Опубліковано: 15 січня 2013 а где,собственно главный зал - гостинная? Посилання на коментар Поділитися на інших сайтах More sharing options...
serg1059 Опубліковано: 15 січня 2013 Автор Поділитись Опубліковано: 15 січня 2013 а где,собственно главный зал - гостинная? Не предусмотрено))) Хочу большую кухню, гостинная не нужна, будет беседка))) Посилання на коментар Поділитися на інших сайтах More sharing options...
Artyomovets Опубліковано: 15 січня 2013 Поділитись Опубліковано: 15 січня 2013 гостинная не нужна, будет беседка))) очень актуально с октября по апрель 2 Посилання на коментар Поділитися на інших сайтах More sharing options...
serg1059 Опубліковано: 15 січня 2013 Автор Поділитись Опубліковано: 15 січня 2013 очень актуально с октября по апрель Ну это смотря как гостей принимать ..А вообще зимой и на кухне можно) Посилання на коментар Поділитися на інших сайтах More sharing options...
Artyomovets Опубліковано: 15 січня 2013 Поділитись Опубліковано: 15 січня 2013 Ну это смотря как гостей принимать ..А вообще зимой и на кухне можно) 19 квадратов - маловато для кухни+столовой+гостиной "3 в 1" просто физически не поместится там все. кухня+столовая еще как-то можно, но зону отдыха никак там уже не разместить комнаты по 10-11 метров - крайне мало. скажите, чем обусловлена ваше желание строить в 1 этаж? не правильнее ли уйти в сторону 2 этажа (мансарда/полноценный - без разницы)? тогда и гостиную запросто сделать можно, и спальни пообъемнее 1 Посилання на коментар Поділитися на інших сайтах More sharing options...
Рекомендовані повідомлення
Створіть акаунт або увійдіть у нього для коментування
Ви маєте бути користувачем, щоб залишити коментар
Створити акаунт
Зареєструйтеся для отримання акаунта. Це просто!
Зареєструвати акаунтУвійти
Вже зареєстровані? Увійдіть тут.
Увійти зараз