apricot Опубліковано: 27 червня 2013 Поділитись Опубліковано: 27 червня 2013 у меня вопрос к знающим.можно совместить в одном помещении на втором этаже санузел-ванная+прачечная+сауна(инфракрасная) или надо делить на разные помещения? Посилання на коментар Поділитися на інших сайтах More sharing options...
архітектор Опубліковано: 27 червня 2013 Автор Поділитись Опубліковано: 27 червня 2013 можно совместить в одном помещении на втором этаже санузел-ванная+прачечная+сауна(инфракрасная) или надо делить на разные помещения? Вопрос, конечно, интересный. Но, как всегда, нет контекста и непонятно какие особенности планировки. Поэтому совместить можно. Но нужно понимать каким будет интерьер, его удобство и эстетика. Какая будет планировка всего этажа и расстановка сантехприборов в санузле, где находятся вентканалы, несущие стены, канализационные стояки? 1 Посилання на коментар Поділитися на інших сайтах More sharing options...
apricot Опубліковано: 7 липня 2013 Поділитись Опубліковано: 7 липня 2013 извините не разобралась с чертежами пересылаю новыеScan2.PDFScan20001.PDF Посилання на коментар Поділитися на інших сайтах More sharing options...
архітектор Опубліковано: 7 липня 2013 Автор Поділитись Опубліковано: 7 липня 2013 извините не разобралась с чертежами пересылаю новые Это эскиз планировки, в котором отсутствуют несущие конструкции. Как для дома почти 14х14 метров в два этажа - рискованно. Да и стиль планирования близкий к квартирам в многоэтажных домах. Пока это не похоже на проект дома, который можно строить, не только из-за отдельно взятой ванной. 1 Посилання на коментар Поділитися на інших сайтах More sharing options...
apricot Опубліковано: 15 липня 2013 Поділитись Опубліковано: 15 липня 2013 1.это не рабочий проект,а путь к истине 2.участок узкий ,но длинный 1:2,2 с южным въездом 3.перекрытие-монолитная плита 4.материал стен-кирпич полторашка или двойной(зависит от цена-качество-наличие) Добавлено через 1 час 56 минут і ще міжкімнатні перегородки чоловік планує з гіпсоблоків Питання: наскільки це доцільно? ПиСи:Скупий платить двічі,а лінивий робить двічі Посилання на коментар Поділитися на інших сайтах More sharing options...
архітектор Опубліковано: 15 липня 2013 Автор Поділитись Опубліковано: 15 липня 2013 1.это не рабочий проект,а путь к истине 2.участок узкий ,но длинный 1:2,2 с южным въездом 3.перекрытие-монолитная плита 4.материал стен-кирпич полторашка или двойной(зависит от цена-качество-наличие) Добавлено через 1 час 56 минут і ще міжкімнатні перегородки чоловік планує з гіпсоблоків Питання: наскільки це доцільно? ПиСи:Скупий платить двічі,а лінивий робить двічі Ваші питання стосуються 1:100 частини того об"єму, з якого складається будинок. Тому, можна звичайно по частинці йти до чогось світлого і істинного, але є ризик не побачити все коло питань і правильно оцінити приорітети, відрізнити головне від другорядного. Може й можна наосліп, не знаючи всіх обставин, планувати будинок, безвідносно ділянки, або з абстрактною ділянкою, але практичної користі від цього мало. Можливо можна й будь-яке планування перкрити монолітною плитою, а стіни збудувати виключно з цегли. Але ви вирішите одну проблему сьогодні, та не побачите коло проблем, які виникнуть завтра в зв"язку з тим, що сьогодні про них не говорили. Тому раджу оцінювати наміри з відстані вже збудованого будинку, що експлуатується, а не коробки - де неможна жити. Посилання на коментар Поділитися на інших сайтах More sharing options...
Vitaliy_Goy Опубліковано: 16 липня 2013 Поділитись Опубліковано: 16 липня 2013 Добрый день. Присмотрели www.archeton.com.ua/proekt-doma_1241_obshcheye-opisaniye Будет перепланировка, вместо гаража будет комната, не будет балконов. По материалам хотим: стены 1,5 кирпича + 100 пенопласт, перекрытия ЖБ-плиты. Стоит ли вообще брать проект в Архетоне? Посилання на коментар Поділитися на інших сайтах More sharing options...
архітектор Опубліковано: 16 липня 2013 Автор Поділитись Опубліковано: 16 липня 2013 Добрый день. Присмотрели www.archeton.com.ua/proekt-doma_1241_obshcheye-opisaniye Будет перепланировка, вместо гаража будет комната, не будет балконов. По материалам хотим: стены 1,5 кирпича + 100 пенопласт, перекрытия ЖБ-плиты. Стоит ли вообще брать проект в Архетоне? Вопрос, конечно интересный. Я в Архетоне ничего никогда не брал, поэтому ничего сказать немогу. Но проекты этого польского архитектурного бюро видел. Эти проекты расчитаны на образованных строителей с современным мышлением. В руках обычных, массовых прорабов практически всегда проект упрощается и на выходе ничего общего с польской цивилизованной рациональностью не имеет. Меня, например, это не устраивает, потому что дома строятся, а подходы и качество не меняются. Также я не вижу смысла покупать проект, а делать что-то совсем другое. Хотя так делает большинство застройщиков. С другой стороны где набрать столько специалистов, чтобы все делать грамотно? Даже не знаю, что Вам ответить. Лучший вариант - это найти культурных строителей и образованных проектировщиков, которые построят нормальный дом. Посилання на коментар Поділитися на інших сайтах More sharing options...
Vitaliy_Goy Опубліковано: 17 липня 2013 Поділитись Опубліковано: 17 липня 2013 Вопрос, конечно интересный. Я в Архетоне ничего никогда не брал, поэтому ничего сказать немогу. Но проекты этого польского архитектурного бюро видел. Эти проекты расчитаны на образованных строителей с современным мышлением. В руках обычных, массовых прорабов практически всегда проект упрощается и на выходе ничего общего с польской цивилизованной рациональностью не имеет. Меня, например, это не устраивает, потому что дома строятся, а подходы и качество не меняются. Также я не вижу смысла покупать проект, а делать что-то совсем другое. Хотя так делает большинство застройщиков. С другой стороны где набрать столько специалистов, чтобы все делать грамотно? Даже не знаю, что Вам ответить. Лучший вариант - это найти культурных строителей и образованных проектировщиков, которые построят нормальный дом. Спасибо! Посилання на коментар Поділитися на інших сайтах More sharing options...
Zinder Опубліковано: 18 липня 2013 Поділитись Опубліковано: 18 липня 2013 Добрый день, подскажите можно ли разместить перемычку одна на другой как в прикрепленных файлах? На перемычках будут размещены плиты перекрытия ж/б. Мое опасение, что нагрузка от верхней перемычки приходится на незакреплую часть нижней перемычки. Да и еще будет нагрузка от перекрытия. Спасибо огромное Посилання на коментар Поділитися на інших сайтах More sharing options...
архітектор Опубліковано: 18 липня 2013 Автор Поділитись Опубліковано: 18 липня 2013 подскажите можно ли разместить перемычку одна на другой как в прикрепленных файлах? Я бы так не делал. Посилання на коментар Поділитися на інших сайтах More sharing options...
Max_designer Опубліковано: 18 липня 2013 Поділитись Опубліковано: 18 липня 2013 Простенок для телевизора сделать несущим. Там и балки. Технологично, небольшие пролеты плит.... Посилання на коментар Поділитися на інших сайтах More sharing options...
архітектор Опубліковано: 18 липня 2013 Автор Поділитись Опубліковано: 18 липня 2013 Технологично, небольшие пролеты плит.... Если по цене посмотреть, то на одинаковую площадь перекрытия дешевле использовать мало крупных плит (до 7,2м), чем много мелких, также и стоимость монтажа расчитывается поштучно. Кроме того, неизвестно еще что со вторым этажом, вентканалами и местами прохода канализации, а также с опиранием крыши. С опиранием лестницы. Под простенок, превращенный в несущую стену, нужен полноценный фундамент. Вобщем решать одну маленькую проблему конечно интересно, но за ней не видно что под водой у айсберга. Посилання на коментар Поділитися на інших сайтах More sharing options...
Слава Н. Опубліковано: 18 липня 2013 Поділитись Опубліковано: 18 липня 2013 Добрый вечер! Подскажите пожалуйста оптимальный вариант крыши. Дополнительная информация: 1. www.stroimdom.com.ua/forum/showthread.php?t=133057 2. www.stroimdom.com.ua/forum/showthread.php?t=119365 Посилання на коментар Поділитися на інших сайтах More sharing options...
Alexander Pryakha Опубліковано: 19 липня 2013 Поділитись Опубліковано: 19 липня 2013 Выбрал бы 4-й вариант. и 23-24 градуса угол. свесы по 60-80см. и большой скат цельный, без разрыва. но это мое мнение, на вкус и цвет -все фломастеры разные.. Посилання на коментар Поділитися на інших сайтах More sharing options...
Nikalenka Опубліковано: 25 липня 2013 Поділитись Опубліковано: 25 липня 2013 добрый день. Хочу у вас узнать мнение о данном проекте, меня устраивает все, но самые большие сомнения это - крыша и большие окна, буду признательна за консультацию:z500.com.ua/ru/project/zx63 Посилання на коментар Поділитися на інших сайтах More sharing options...
архітектор Опубліковано: 25 липня 2013 Автор Поділитись Опубліковано: 25 липня 2013 добрый день. Хочу у вас узнать мнение о данном проекте, меня устраивает все, но самые большие сомнения это - крыша и большие окна, буду признательна за консультацию:z500.com.ua/ru/project/zx63 Не понял в чем вопрос? Выберите другой проект с маленькими окнами и скатной крышей, все так делают. Если же Вы, глядя, на этот проект, чувствуете, что такое строительство отличается от того, как у всех, точно также как дороги в Германии от дорог в Украине, то надо искать подрядчиков, которые смогут построить что-то похожее у нас. Но нужно четко понимать, что это другой уровень строительного развития, не может прораб, слушающий шансон, прошедший СССР и 90-е, ментально понять, чем отличается такой проект от тысяч и тысяч обычных строек. Почти тоже самое, только окна большие и крыша плоская. А так - те же строители, те же откаты, тот же пенопласт. Посилання на коментар Поділитися на інших сайтах More sharing options...
Nikalenka Опубліковано: 29 липня 2013 Поділитись Опубліковано: 29 липня 2013 таки да, дело не в крыше и не в окнах......нужны "обновленныЕ" строители, которые поймут и четко реализуют Посилання на коментар Поділитися на інших сайтах More sharing options...
portotwein Опубліковано: 12 січня 2014 Поділитись Опубліковано: 12 січня 2014 Уважаемые заказчики и архитекторы, исходя из своего опыта, посоветуйте стоит ли заказывать проект у местного специалиста или лучше отдать предпочтение архитектору, который разработал не один вариант понравившегося проекта, но находится в другом городе. Единственный плюс первого варианта вижу в том, что архитектор может посещать стройку, контролировать, указывать на ошибки. Второй вариант - экономия времени, средств и опыт разработки данного продукта. Посилання на коментар Поділитися на інших сайтах More sharing options...
архітектор Опубліковано: 12 січня 2014 Автор Поділитись Опубліковано: 12 січня 2014 Единственный плюс первого варианта вижу в том, что архитектор может посещать стройку, контролировать, указывать на ошибки. Второй вариант - экономия времени, средств и опыт разработки данного продукта. Архитектор - не панацея в любом случае. Есть одна большая проблема - перед архитектором стоит задача спроектировать и сконструировать дом, согласно норм. Но никто не ставит задачу - расчитать стоимость строительства, с учетом выполнения всех норм. Из-за того, что по нормам работать сложнее и достаточно дорого - на стройплощадке начинается жестокая экономия, обман, недовес, упрощение. Нормальному архитектору лучше такого не видеть вообще, чем постоянно скандалить со строителями - толку от этого ноль. Суть в том, что созданы такие условия, при которых большинство строителей поступят аналогично, а те, кто посчитает все до винтика и по нормам - остануться без работы. Например, я заведующий рестораном. У нас недешевые блюда, но за это клиентам нужно предоставить безупречное качество. При использовании несвежих, некачественных продуктов, замене на сурроганые, нарушении технологии приготовления - качества готового продукта не будет. Но если собственник ресторана не знает реальной себестоимости приготовления блюд, урезает бюджет, то что остается - либо уйти, либо "химичить" Большинство заказчиков в Украине не знают ни всех специфических требований в строительстве, ни новых материалов и технологий, ни себестоимости этого строительства. А хотят горы свернуть, за два-три года построить замки, не подготовившись и не осознав глубину проблемы. Большинство требует количество и сознательно создает условия для стремительной потери качества. В этой ситуации ни местный ни неместный архитектор не сможет сделать чудо, так как проблема в другом. Посилання на коментар Поділитися на інших сайтах More sharing options...
portotwein Опубліковано: 13 січня 2014 Поділитись Опубліковано: 13 січня 2014 Вот и получается, что заказчик остается один на один со строителями. И все его знания "почерпаные" из журналов и интернета разбиваются о стену непонимания/ нежелания исполнителей, построивших не один десяток домов так как они привыкли это делать. А автор проекта лишь разводит руками и ссылается на глупость заказчика, лень строителей и разруху в стране. 2 Посилання на коментар Поділитися на інших сайтах More sharing options...
valerantys Опубліковано: 13 січня 2014 Поділитись Опубліковано: 13 січня 2014 Добрый день! Подскажите пож. в доме 8 на 11 (фундамент ленточный шир. 40 см, глубина 1.20,цоколь 40 см) ,стены газблок 360 см.,два этажа. Вопрос - нужны ли колонны монолитные 300 на 300 ( 6-9 штук) для усиления стен? Перекрытие 1 этажа монолитное.Если да,то их заливать до потолка 2 этажа или достаточно до 1 этажа ?Стройка на Осокорках. Спасибо Посилання на коментар Поділитися на інших сайтах More sharing options...
архітектор Опубліковано: 13 січня 2014 Автор Поділитись Опубліковано: 13 січня 2014 Вот и получается, что заказчик остается один на один со строителями. И все его знания "почерпаные" из журналов и интернета разбиваются о стену непонимания/ нежелания исполнителей, построивших не один десяток домов так как они привыкли это делать. А автор проекта лишь разводит руками и ссылается на глупость заказчика, лень строителей и разруху в стране. Не знаю, как у других, но в моей практике обычно происходит так - первый вопрос незнакомому архитектору от потенциального заказчика - сколько стоит проект. Проект чего? Это не ясно, обычная ситуация, когда нет четкого задания на проектирование, заказчик не владеет достаточным количеством практических знаний о современном рынке стройматериалов, о жизни в частном доме, о планировании участка и инженерных сетей. Более того, никогда не слышал вопрос - а сколько будет стоить построить столько-то метров квадратных, на достаточном уровне качества, в условиях Украины в таком уровне автономности и комфорта. По-этому чаще всего находится архитектор по цене работы (должна быть низкой, ниже чем у других) и практически никогда не стоит вопрос о совместной выработке задачи, о использовании практических наработок архитектора и его опыте в строительстве. При такой постановке задачи для успешного окончания работы заказчик хочет видеть "сладкую картинку" типа дом в кипарисах-барбарисах, большой, учитывающий все хотелки. После этого, возможно, заказчика будет интересовать список материалов. А дальше ничинается то, о чем Вы пишете - оставили наедине со строителями. Чаще всего хождение с проектом по строителям показывает примерно одинаковый результат. Нихрена себе они хотят заработать! Шоп я так жил, ворюги. Находится самый дешевый или средне дешевый вариант, не сильно отпугивающий перегаром. Дальше внезапно оказывается, что оговоренная работа выполнена (возможно даже качественно и в срок), а до новоселья как до неба на четвереньках. Потому что сделать фундамент, накрыть крышу и тд. это только маленький эпизод. Эпизод чего? Четкого видения общего бюджета и плана действий нет. Подрядчики приходят и уходят, проектные красивости тают на глазах, портятся нервы, что все не идет так, как на картинке, скручиваются в бараний рог, сталкиваются лбами строители, архитектор - что такое? Почему не получается? Потому что мы все не знаем куда идем, есть проект, нет плана с четким пониманием как реализовать и сколько стоит сделать один раз, правильно. Я считаю вот с этого плана и надо начинать, а не играть в прятки и кошки-мышки. Пусть план будет приземленным, не настолько грандиозным и пафосным, а для жизни. Пусть хватит на все денег и еще останется на благоустройство, на кипарисы и барбарисы. Добавлено через 17 минут Добрый день! Подскажите пож. в доме 8 на 11 (фундамент ленточный шир. 40 см, глубина 1.20,цоколь 40 см) ,стены газблок 360 см.,два этажа. Вопрос - нужны ли колонны монолитные 300 на 300 ( 6-9 штук) для усиления стен? Перекрытие 1 этажа монолитное.Если да,то их заливать до потолка 2 этажа или достаточно до 1 этажа ? Живой пример для предыдущего ответа. Ясно, что человек наслушался каких-то ужастиков и чернухи толи из интернета, то ли от дышащих перегаром строителей. Ну вот как можно строить дом на 150 000 - 200 000 у.е. и шарахаться при первой же заминке? О чем это говорит - что нет законов, нет правил и никто ни за что не отвечает. Если конкретно по делу, то нужно понимать качество фундамента, качество бетона, уровень армирования, расчитанности на нагрузку от крыши. Понимать как строился фундамент, убирался ли из-под дома слой чернозема, корни деревьев. Не попал ли низ фундамента в уровень грунтовых вод (максимальный пик - весной). Есть ли кроме наружных стен внутренние несущие стены? Какая форма крыши и куда и как от нее распространяется нагрузка, какой вес конструкций, опирающийся на стены, есть ли монолитный пояс, сколько есть этих монолитных поясов, какая их конфигурация? Это очень важные вопросы, так как пороть гарячку надо при ловле блох, а не строительстве дома (возможно кто-то его строит только раз). Это не насморк, от которого можно купить что-то без рецепта в любой аптеке, или подышать над вареной картошкой. Посилання на коментар Поділитися на інших сайтах More sharing options...
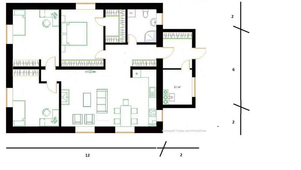
2778 Опубліковано: 14 січня 2014 Поділитись Опубліковано: 14 січня 2014 Добрый вечер! Гляньте мой эскиз: Моя тема www.stroimdom.com.ua/forum/showthread.php?t=139585 Основные данные: стены газобетон 400 перекрытие дерево(холодный чердак) Посилання на коментар Поділитися на інших сайтах More sharing options...
архітектор Опубліковано: 17 січня 2014 Автор Поділитись Опубліковано: 17 січня 2014 Добрый вечер! Гляньте мой эскиз: [ATTACH]333260[/ATTACH] [ATTACH]333261[/ATTACH] Моя тема www.stroimdom.com.ua/forum/showthread.php?t=139585 Основные данные: стены газобетон 400 перекрытие дерево(холодный чердак) Дом и квартира - это разные вещи. Если в квартире из-за общих конструкций дома и экономики строительства могут быть неудобства - проходные комнаты, темные коридоры и т.д., то дом можно и нужно планировать не так, как квартиру. Более того, явное преимущество дома перед квартирой - это участок, на котором он расположен. Именно, исходя из особенностей участка, его окружения, расположения инженерных коммуникаций и можно сделать два варианта - при первом потерять все потенциальные преимущества, не обратить внимание на особенности. При втором учесть все особенности и получить больше, чем просто стены из газобетона 400 мм. Надеюсь я смог объяснить в каком направлении надо двигаться? Посилання на коментар Поділитися на інших сайтах More sharing options...
Рекомендовані повідомлення
Створіть акаунт або увійдіть у нього для коментування
Ви маєте бути користувачем, щоб залишити коментар
Створити акаунт
Зареєструйтеся для отримання акаунта. Це просто!
Зареєструвати акаунтУвійти
Вже зареєстровані? Увійдіть тут.
Увійти зараз