PGS Опубліковано: 7 травня 2014 Автор Поділитись Опубліковано: 7 травня 2014 Прокладка слаботочки - под потолком в гофре. - интернет - ТВ, домашний кинотеатр - охранная сигнализация - видеонаблюдение, домофон - датчики (затопления, наружной температуры) - панели управления (вентиляция, отопление) 2 Посилання на коментар Поділитися на інших сайтах More sharing options...
Татьяна5 Опубліковано: 7 травня 2014 Поділитись Опубліковано: 7 травня 2014 Прокладка слаботочки - под потолком в гофре. зачем в гофре? Посилання на коментар Поділитися на інших сайтах More sharing options...
Allegro Опубліковано: 7 травня 2014 Поділитись Опубліковано: 7 травня 2014 В процессе поиска входной двери нашел "залежавшуюся" на складе дверь с параметрами моего проема (не пришлось резать кирпич). Плюс ко всему получил приличную скидку, т.к. расцветка специфическая. Производитель Haapsalu Uksetehas (Эстония), аналог Фенестры. Хорошо смотрится. Себе такую же хочу. Вышлите, пожалуйста, в личку координаты фирмы (если не секрет конечно), тоже ищу себе теплую дверь Посилання на коментар Поділитися на інших сайтах More sharing options...
PGS Опубліковано: 8 травня 2014 Автор Поділитись Опубліковано: 8 травня 2014 зачем в гофре? более организованный монтаж минимальная, но защита проводов при монтаже ГКЛ Вышлите, пожалуйста, в личку координаты фирмы (если не секрет конечно) не секрет - координаты фирмы Посилання на коментар Поділитися на інших сайтах More sharing options...
PGS Опубліковано: 10 травня 2014 Автор Поділитись Опубліковано: 10 травня 2014 Освещение - кабель ВВГнгд 3х1,5 в металлической трубе. 1 Посилання на коментар Поділитися на інших сайтах More sharing options...
PGS Опубліковано: 16 травня 2014 Автор Поділитись Опубліковано: 16 травня 2014 Сила - кабель ВВГнгд 3х2,5 в пластиковой трубе. 3 Посилання на коментар Поділитися на інших сайтах More sharing options...
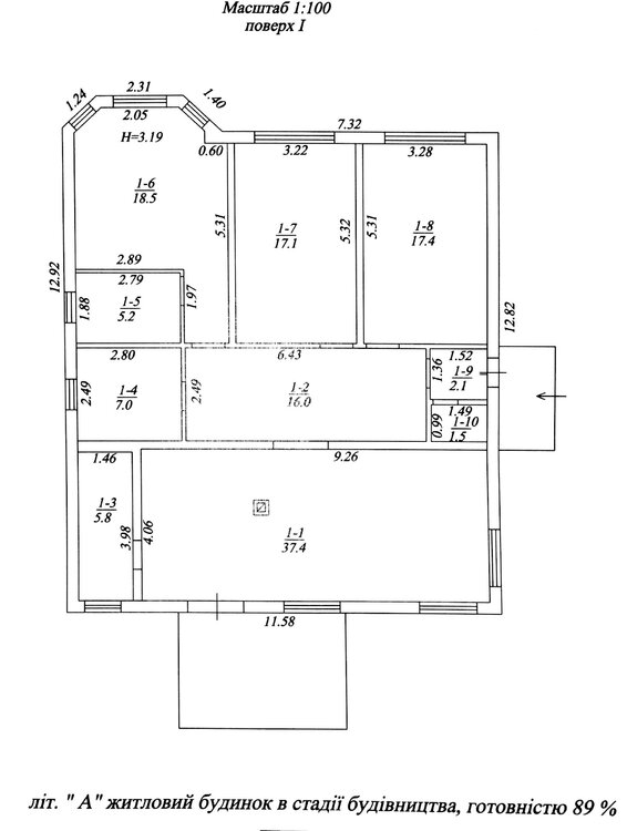
PGS Опубліковано: 20 травня 2014 Автор Поділитись Опубліковано: 20 травня 2014 Вчера получил техпаспорт на дом. Хронология событий: 10 апреля - сдача документов в бти; 11 апреля - оплата 1410грн в банке; 17 апреля - выезд инспектора на стройку; 14 мая - позвонил инспектору на мобильный - он сообщил, что после 17.05 ТП будет готов. 19 мая - получение ТП в бти. Кроме дома в ТП внесены: скважина, выгребная яма, забор, ворота. Площадь получилась 128,0м2. 3 Посилання на коментар Поділитися на інших сайтах More sharing options...
AНДРЮША Опубліковано: 20 травня 2014 Поділитись Опубліковано: 20 травня 2014 А зачем промежуточный ТП (в стадии будiвництва)? Для получения свидетельства на право собственности надо новый делать? 1 Посилання на коментар Поділитися на інших сайтах More sharing options...
PGS Опубліковано: 20 травня 2014 Автор Поділитись Опубліковано: 20 травня 2014 АНДРЮША Даже и не знал, что бывают разные виды ТП. Текущей задачей является получение декларации о готовности дома для оформления документов по вводу газа в эксплуатацию. По ходу дела планировал получить св-во на право собственности. Что посоветуете делать с этим ТП? П.С. декларацию сегодня отправил. Не зря меня беспокоило отсутствие числа в ячейке с жилой площадью... 1 Посилання на коментар Поділитися на інших сайтах More sharing options...
sov1178 Опубліковано: 20 травня 2014 Поділитись Опубліковано: 20 травня 2014 Что посоветуете делать с этим ТП? ИМХО, 99% нормальный у Вас будет ТП и делать с ним ничего не нужно. У Вас вроде практически все работы необходимые для оформления ТП прописанные в законодательстве выполнены. 1 Посилання на коментар Поділитися на інших сайтах More sharing options...
AНДРЮША Опубліковано: 20 травня 2014 Поділитись Опубліковано: 20 травня 2014 Понятно, что дом практически готов. Но эта приписка внизу смущает, каков ее юридический смысл? Посилання на коментар Поділитися на інших сайтах More sharing options...
sov1178 Опубліковано: 20 травня 2014 Поділитись Опубліковано: 20 травня 2014 Но эта приписка внизу смущает, каков ее юридический смысл? Это нужно в юридическом разделе спросить Посилання на коментар Поділитися на інших сайтах More sharing options...
Кременчужанин.UA Опубліковано: 21 травня 2014 Поділитись Опубліковано: 21 травня 2014 Прочитал ветку, очень интересно и познавательно все описываете. У меня возник вопрос по перемычкам из клинкера, над окнами, как кирпич висит в воздухе? Мистика... 1 Посилання на коментар Поділитися на інших сайтах More sharing options...
PGS Опубліковано: 21 травня 2014 Автор Поділитись Опубліковано: 21 травня 2014 Кирпич над окнами висит в воздухе за счет стальных хомутов, которые находятся в вертикальных швах. Хомуты в свою очередь закреплены на горизонтальной арматуре. Т.е. получается армокаменная перемычка. Арматура Murfor. Так что никакой мистики но при демонтаже опалубки немного волновался... 4 Посилання на коментар Поділитися на інших сайтах More sharing options...
Александр ЖК Янтарный Опубліковано: 21 травня 2014 Поділитись Опубліковано: 21 травня 2014 Остались обрезки ваты - штук 15 "упаковок" (см. фото). Если кому-то нужны - можем договориться за Самовывоз - с. Бобрица (2км от Анжио в Белогородке). Уже наверное нету ? Посилання на коментар Поділитися на інших сайтах More sharing options...
PGS Опубліковано: 21 травня 2014 Автор Поділитись Опубліковано: 21 травня 2014 Уже наверное нету ? Сразу разлетелись как горячие пирожки Посилання на коментар Поділитися на інших сайтах More sharing options...
Александр ЖК Янтарный Опубліковано: 21 травня 2014 Поділитись Опубліковано: 21 травня 2014 Сразу разлетелись как горячие пирожки Будем искать ) Посилання на коментар Поділитися на інших сайтах More sharing options...
Кременчужанин.UA Опубліковано: 21 травня 2014 Поділитись Опубліковано: 21 травня 2014 Т.е. получается армокаменная перемычка. Арматура Murfor. Век живи, век учись...Интересная технология. Спасибо. И еще один вопрос меня все мучит. В Каркасных домах, нужно применять особые и или усиленные методы борьбы с грызунами. Может посоветуете, что почитать на эту тему? Посилання на коментар Поділитися на інших сайтах More sharing options...
PGS Опубліковано: 22 травня 2014 Автор Поділитись Опубліковано: 22 травня 2014 В Каркасных домах, нужно применять особые и или усиленные методы борьбы с грызунами. Может посоветуете, что почитать на эту тему? Думаю, этот вопрос лучше задать тем, кто уже живет в доме. Из моих соображений - максимальная герметизация дома снаружи (особенно места проходок инж коммуникаций под землей), не держать открытыми входные двери, завести кота (не ленивого), мышеловки. Недавно выгонял ящерицу из дома (шуршала в ЭППС), так что борьба не только с грызунами :D 1 Посилання на коментар Поділитися на інших сайтах More sharing options...
PGS Опубліковано: 28 травня 2014 Автор Поділитись Опубліковано: 28 травня 2014 Завершен этап внутренних ЭМР. Для этого понадобилось 1800м проводов - 1000м силового, 600м витой пары и 200м антенного. Бюджет 56т. грн., из них 34,5т. - материалы, 21,5т. - работы. Срок выполнения работ - 2 недели (3 чел). 4 Посилання на коментар Поділитися на інших сайтах More sharing options...
Vic-Tor Опубліковано: 3 червня 2014 Поділитись Опубліковано: 3 червня 2014 Завершен этап внутренних ЭМР. Для этого понадобилось 1800м проводов - 1000м силового, 600м витой пары и 200м антенного. Ого-о-о, да у меня в бункере, когда я радистом служил стока проводов не валялось!!! Этож какое должно быть "ПОЛЕ" ????? Посилання на коментар Поділитися на інших сайтах More sharing options...
alexob Опубліковано: 3 червня 2014 Поділитись Опубліковано: 3 червня 2014 Ого-о-о, да у меня в бункере, когда я радистом служил стока проводов не валялось!!! Этож какое должно быть "ПОЛЕ" ????? та ну, для современного дома это в принципе стандартно 1 Посилання на коментар Поділитися на інших сайтах More sharing options...
PGS Опубліковано: 11 червня 2014 Автор Поділитись Опубліковано: 11 червня 2014 10 апреля - сдача документов в бти; 11 апреля - оплата 1410грн в банке; 17 апреля - выезд инспектора на стройку; 14 мая - позвонил инспектору на мобильный - он сообщил, что после 17.05 ТП будет готов. 19 мая - получение ТП в бти. продолжаю: 20 мая - отправка декларации в ГАСК 27 мая - звонок из ГАСКа с просьбой заполнить ячейку с жилой площадью и добавить в наименовании объекта хозблок (т.е написать как в стройпаспорте, хоть хозблок еще не построен). По жилой площади я ответил что в ТП нет таких данных, на что ГАСК сказал просуммировать площади жилых комнат. Исправленную декларацию завез в ГАСК и попросил отправить почтой (второй вариант был забрать самому). 10 июня - получил по почте декларацию. Дата в декларации - 28 мая. 11 июня - уведомил сельраду и МЧС (завез уведомление и копию декларации) Итого получение ТП и декларации заняло ровно 2 месяца. 4 Посилання на коментар Поділитися на інших сайтах More sharing options...
K2 Опубліковано: 11 червня 2014 Поділитись Опубліковано: 11 червня 2014 Завершен этап внутренних ЭМР. Для этого понадобилось 1800м проводов - 1000м силового, 600м витой пары и 200м антенного. а где фото самого-самого важного кабеля в доме? 1 Посилання на коментар Поділитися на інших сайтах More sharing options...
PGS Опубліковано: 12 червня 2014 Автор Поділитись Опубліковано: 12 червня 2014 сделаю фото на выходных.. Посилання на коментар Поділитися на інших сайтах More sharing options...
Рекомендовані повідомлення
Створіть акаунт або увійдіть у нього для коментування
Ви маєте бути користувачем, щоб залишити коментар
Створити акаунт
Зареєструйтеся для отримання акаунта. Це просто!
Зареєструвати акаунтУвійти
Вже зареєстровані? Увійдіть тут.
Увійти зараз