Travel_Alex Опубліковано: 26 лютого 2013 Автор Поділитись Опубліковано: 26 лютого 2013 А почему у Вас дом расположен практически посередине участка? Где у Вас на участке будет зона отдыха? Дом я предполагаю не совсем по средине. Я планирую его разместить отступив 6-7 метров от дороги, что бы предусмотреть заезд машины (длинна машины 5,5 м) , думаю делать навес с левой (западной стороны). Туда же вынести и яму с септиком. Забор воды планирую сделать с "задней" стороны дома, там же разместить и зону отдыха, предварительно думаю ее делать за домом. Участок 20х30 если отступить от дороги 6-7 метров + 11,4 или 14.4 (если с сзади дома будет технические помещения) то во дворе остается от 12 до 9 м немного конечно, но участок небольшой. А как бы Вы предложили бы ? Думаете стоит его сдвинуть немного вперед ? Многое зависит от выбранного варианта проекта, если он зараза на всю ширину участка, то придется отодвигать минимум на длину машины, если получится его в 10 -11 м вместить, то тогда может и поближе в выезду 4-5 м. Посилання на коментар Поділитися на інших сайтах More sharing options...
vadimv Опубліковано: 26 лютого 2013 Поділитись Опубліковано: 26 лютого 2013 (змінено) Забор воды планирую сделать с "задней" стороны дома, там же разместить и зону отдыха, предварительно думаю ее делать за домом.С северной стороны? За глухой стеной? ИМХО, лучше сделать зону отхыха с юга (спереди), чтобы туда выходили окна гостиной или кухни. Например, пристроить террасу. Хотя опять-таки, мы не знаем, где у вас лучше отдыхать - со стороны улицы (если она не сильно шумная и пыльная) или со стороны соседей... Змінено 26 лютого 2013 користувачем vadimv Посилання на коментар Поділитися на інших сайтах More sharing options...
nuht2007 Опубліковано: 26 лютого 2013 Поділитись Опубліковано: 26 лютого 2013 Вот то что у нас с мужем должно получиться, стены уже стоят. Один этаж. Тоже нелюбители двухэтажных малогабариток. Участок изначально большой не рассматривали, т.к. у всех полная занятость, а для хорошего его состояния требуется время и силы. Хотя сейчас, пару соточек все таки добавила бы. Сдвинуть в одну торону дом у нас не получилось, архитектура не пропустила по пожарным разрывам, сказала оставить с каждой стороны не менее 4 метров, от дороги разрешили 3 метра оставить, но у нас там и дорога без особого движения. Вообщем смотрите. P/S Извиняюсь за некорректные линии на чертеже, набросала за 5 минут, специально для ТС. На работе как на зло не оказалось ни одного чертежика по домику.E__Ярлык для Руслан Model (1).pdf 1 Посилання на коментар Поділитися на інших сайтах More sharing options...
Travel_Alex Опубліковано: 26 лютого 2013 Автор Поділитись Опубліковано: 26 лютого 2013 С северной стороны? За глухой стеной? ИМХО, лучше сделать зону отхыха с юга (спереди), чтобы туда выходили окна гостиной или кухни. Например, пристроить террасу. Хотя опять-таки, мы не знаем, где у вас лучше отхыдать - со стороны улицы (если она не сильно шумная и пыльная) или со стороны соседей... Возможно Вы и правы. Улица не шумная, дачно-садовый кооператив. Застройки соседей рядом к заборам нет. Я думал разместить зону отдыха, сзади дома, что бы летом не так было жарко, если честно, я вначале думал "строить" дом в конце участка а всю зону отдыха выносить в перед. Но потом, что то меня остановило, так как септик все равно тянуть придется через весь участок, к выезду. А Вы считает удобно делать зону отдыха перед домом ? На южной стороне, единственное преимущество выход окон и кухни на участок. Добавлено через 13 минут Тоже нелюбители двухэтажных малогабариток. Участок изначально большой не рассматривали, т.к. у всех полная занятость, а для хорошего его состояния требуется время и силы. Хотя сейчас, пару соточек все таки добавила бы. Сдвинуть в одну торону дом у нас не получилось, архитектура не пропустила по пожарным разрывам, сказала оставить с каждой стороны не менее 4 метров, от дороги разрешили 3 метра оставить, но у нас там и дорога без особого движения. Вообщем смотрите. P/S Извиняюсь за некорректные линии на чертеже, набросала за 5 минут, специально для ТС. На работе как на зло не оказалось ни одного чертежика по домику. Спасибо большое Очень приятно было прочитать Ваше сообщение. Я долго говорил, что маленькие многоэтажные дома - "куцие" - скажем не мог точно выразится, что я под этим подразумеваю. А Вы высказали точно то о чем я думаю, Малогабаритные многоэтажки просто супер. У Вас отличный план, я так понимаю у Вас заезд на участок с северной стороны, так как террасу Вы сорентировали на Юг ? Но проект у Вас поворачивается и наоборот ;) Простой удобный и практичный, удачи в стройке. А из чего строите ? и какой делали фундамент, ленточный или утепленный плитный ? Посилання на коментар Поділитися на інших сайтах More sharing options...
Zak Опубліковано: 26 лютого 2013 Поділитись Опубліковано: 26 лютого 2013 А как бы Вы предложили бы ? Думаете стоит его сдвинуть немного вперед ? Многое зависит от выбранного варианта проекта, если он зараза на всю ширину участка, то придется отодвигать минимум на длину машины, если получится его в 10 -11 м вместить, то тогда может и поближе в выезду 4-5 м. Я сперва свой дом расположил идентично Вашему (у меня участок 14х30), но быстро отказался от этой затеи. Место перед входом, практически не используется. У моих соседей отступ от дороги 4 метра, ну разбили они там клумбу, чтоб совсем не было пусто, а сами говорят что лучше-б придвинуть дом ещё метра на полтора. Себе я сделал отступ 2,6 м. от забора. и залил фундамент, но как представлю сколько-б места в зоне отдыха "съел" бы дом, расположи я его как задумал изначально, что аж мурашки по коже. Но у нас заезд с севера. У Вас-же лучше сделать наоборот: расположить дом максимально в конце участка. А зону отдыха сделать между улицей и домом (правда придется раскошелится на высокий глухой забор). Делать зону отдыха с северной стороны не очень комфортно, вечная тень, расти ничего не будет. Добавлено через 5 минут На южной стороне, единственное преимущество выход окон и кухни на участок. Не единственное, а главное Но только не забудьте вместо окна в гостиной (или кухне) сделать выход на террасу. Посилання на коментар Поділитися на інших сайтах More sharing options...
nuht2007 Опубліковано: 26 лютого 2013 Поділитись Опубліковано: 26 лютого 2013 А из чего строите ? и какой делали фундамент, ленточный или утепленный плитный ? Да, для нас это оптимальный вариант, возможно это и похоже на четырехкомнатную квартиру, но мы сами себе его нарисовали, так как мы видим комфортное проживание. В планах есть второй ребенок, поэтому и третью спальню задумали, а если нет то - кабинет. Да вход получается с северной стороны, оставили минимально возможное расстояние от дороги, так, для клумбы-максимум. Гаража не будет, позже организуем навес, заодно остается полноценный проезд во двор (на всякий случай, мало ли что). Строим полностью сами, фундамент ленточный, наружные стены- термоблок, внутрянка-кирпич. Еще хочу сказать, что одноэтажник все таки проще строить своими руками, ИМХО. Посилання на коментар Поділитися на інших сайтах More sharing options...
vadimv Опубліковано: 26 лютого 2013 Поділитись Опубліковано: 26 лютого 2013 (змінено) Возможно Вы и правы. Улица не шумная, дачно-садовый кооператив. Застройки соседей рядом к заборам нет. Я думал разместить зону отдыха, сзади дома, что бы летом не так было жарко, если честно, я вначале думал "строить" дом в конце участка а всю зону отдыха выносить в перед. Но потом, что то меня остановило, так как септик все равно тянуть придется через весь участок, к выезду. А Вы считает удобно делать зону отдыха перед домом ? На южной стороне, единственное преимущество выход окон и кухни на участок.У двоих наших знакомых улица с южной стороны. Оба дома (одноэтажники) расположены на расстоянии примерно 8-10 м от улицы. В обоих случаях зона отдыха между домом и улицей. В одном случае туда выходит открытая терраса, в другом - застекленная столовая. Просто у нас жара длится от силы 1-1,5 месяца в году, а все остальное время наоборот хочется погреться на солнышке. С северной стороны у вас это не получится. А с южной можно посадить быстрорастущее дерево и спрятаться в тени в самый солнцепек. Кстати, мне в свое время nuht2007 такой вариант планировки предлагала, он хорош тем, что его можно поворачивать и зеркально отображать в любую сторону и с любой стороны приделать хозблок: Змінено 26 лютого 2013 користувачем vadimv Посилання на коментар Поділитися на інших сайтах More sharing options...
nuht2007 Опубліковано: 26 лютого 2013 Поділитись Опубліковано: 26 лютого 2013 Кстати, мне в свое время nuht2007 такой вариант планировки предлагала о да вижу-вижу, блин, сколько мы их нарисовали обрисовали . А сколько ушло сил на доказательство мужу о необходимости всяких кладовок-хламовок. Посилання на коментар Поділитися на інших сайтах More sharing options...
Travel_Alex Опубліковано: 26 лютого 2013 Автор Поділитись Опубліковано: 26 лютого 2013 Спасибо большое по планировке дома на участке, я сегодня перерисую и выложу. Посилання на коментар Поділитися на інших сайтах More sharing options...
Travel_Alex Опубліковано: 26 лютого 2013 Автор Поділитись Опубліковано: 26 лютого 2013 (змінено) Я с вами согласен в том, что при много двухэтажке архитектурные формы действительно есть можно получить очень симпатичные, и что место можно экономиться. Но вот во стальном согласится не могу ... удобство жизни лучше на одном этаже, строить проще, и главное я строю для себя, а не для друзей и соседей. И экономия, тут очень субъективная, я уже в форуме участвовал в таком диспуте, она только расчетная - во первых да есть экономия на фундаменте и крыше, но потрачу на увеличенном объеме дома при комфортной жизни лесничный проем должен быть мин 6-10 м2 на каждом этаже т.е. примерно 20% от общей площади дома, это раз а каждый м2 у нас по окончании стройки получится примерно 700-1000$ итого 10-15 тыс $ в плюс при одних и тех же площадях помещений, плюс нужно сделать хорошее перекрытие, и утепление мансардной крыши, так что если все это пересчитать, то получим не совсем уже и дешевле. Но и самое главное, что действительно получаются при таких площадях "малогабаритная многоэтажка" А проработать планировку я за, давайте проработаем ... ;) Если реально проработать, за реальные деньги то я думаю что готов обсудить что мне это проработка может стоить ? Змінено 26 лютого 2013 користувачем Валерий Валентинович офф Посилання на коментар Поділитися на інших сайтах More sharing options...
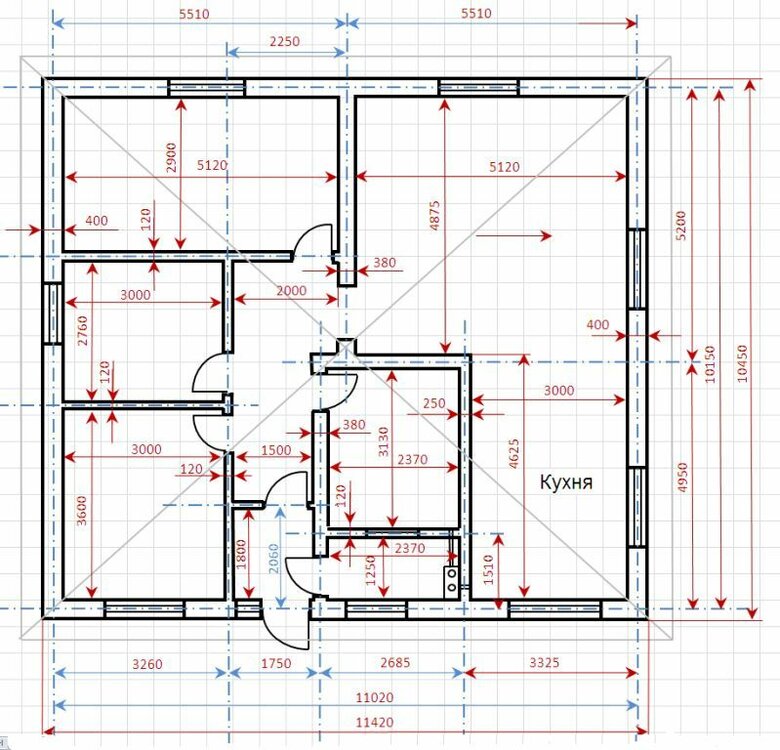
vickov Опубліковано: 26 лютого 2013 Поділитись Опубліковано: 26 лютого 2013 Вот симпатичная планировочка 2 Посилання на коментар Поділитися на інших сайтах More sharing options...
PGS Опубліковано: 26 лютого 2013 Поділитись Опубліковано: 26 лютого 2013 Travel_Alex Посмотрите мой отчет. Вход также с юга. Участок хоть и 15 соток, но учитывая охранные зоны вдоль двух сторон участка (по 10м), площадь для застройки равнялась 7,5 соток. Посилання на коментар Поділитися на інших сайтах More sharing options...
Travel_Alex Опубліковано: 26 лютого 2013 Автор Поділитись Опубліковано: 26 лютого 2013 Вот симпатичная планировочка Да интересная, а зачем там так много несущих стен, очень похож на ,z-24. А Вы считаете, что там нужен тепловой тамбур ? И коридоров там опять 13 м2, хотя это лучше чем 15 ;) Для моего случая его надо сделать зеркальным и окно в северной спальне сделать не на север, а на восток. И в прихожей шкаф - гардеробная - отличный вариант. Спасибо. Вариант неплохой, но если бы из свести коридоры мак. до тамбура в прихожей и 5 метров. И еще котельная не имеет входов в дом, зимой бегать только ч.з. уличу и через весь дом Посилання на коментар Поділитися на інших сайтах More sharing options...
Travel_Alex Опубліковано: 26 лютого 2013 Автор Поділитись Опубліковано: 26 лютого 2013 Посмотрите мой отчет. Вход также с юга. Участок хоть и 15 соток, но учитывая охранные зоны вдоль двух сторон участка (по 10м), площадь для застройки равнялась 7,5 соток. Спасибо, У Вас хороший проект одноэтажного дома у него хорошо продумана разделение день и ночь, не совсем для меня понятно зачем эркер сделан именно в дальней спальне если я правильно понял она самая холодная Для меня он не подойдет , его ширина 13770 т.е. практически 14 м на мои 20 метров шириной он встанет с трудом, окна будут в забор и так жалко 19 м2 отдать на коридор и тамбур Если я правильно понял проект, что бы его осветить, пришлось делать освещение ч.з. крышу, что увеличило ее стоимость. Спасибо за ссылку и отчет с удовольствие прочитал, нашел там интересные момент для себя. Посилання на коментар Поділитися на інших сайтах More sharing options...
PGS Опубліковано: 27 лютого 2013 Поділитись Опубліковано: 27 лютого 2013 не совсем для меня понятно зачем эркер сделан именно в дальней спальне если это было обязательное требование жены Для меня он не подойдет Вы можете "играться" площадью помещений и получить нужный размер. Свою планировку я сбросил для ориентира, т.к. сам долго ломал голову над этим Если я правильно понял проект, что бы его осветить, пришлось делать освещение ч.з. крышу, что увеличило ее стоимость. нет, второго света в доме нет. Треугольные окна предназначены для освещения чердака, т.к. площадь чердака получилась немаленькая. Посилання на коментар Поділитися на інших сайтах More sharing options...
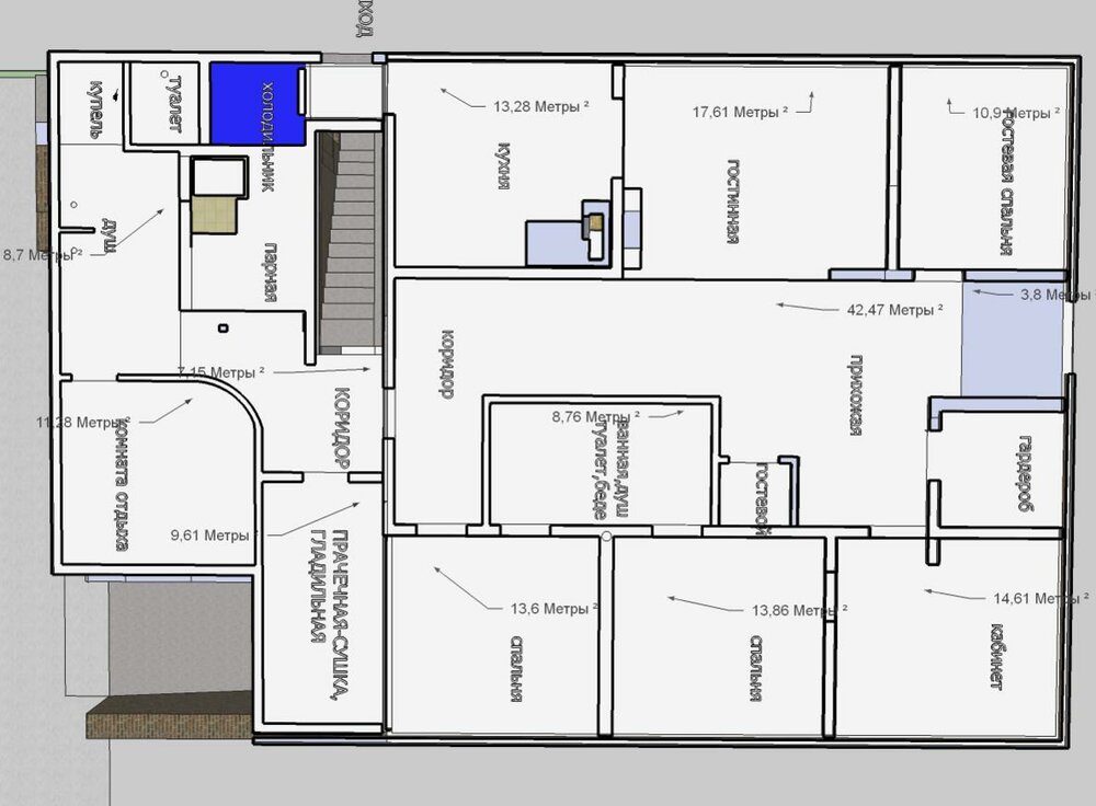
termOS Опубліковано: 2 березня 2013 Поділитись Опубліковано: 2 березня 2013 Вот решил выложить на обсуждение два планировочных решения. Если интересно,отправлю в 3Д +фото по почте Посилання на коментар Поділитися на інших сайтах More sharing options...
Drosselbeere Опубліковано: 2 березня 2013 Поділитись Опубліковано: 2 березня 2013 Если интересно,отправлю в 3Д +фото по почте не дом, а сарай. чем же он интересный??? 1 Посилання на коментар Поділитися на інших сайтах More sharing options...
termOS Опубліковано: 2 березня 2013 Поділитись Опубліковано: 2 березня 2013 доброго времени суток! хотелось бы "покрутить"ваши домики в Sketh-Up Если не трудно, сбросьте в3Д на term.os@mail.ru спасибо! Добавлено через 20 минут не дом, а сарай. чем же он интересный??? хотелось бы услышать аргументы подобного суждения! ...или субъективное мнение-признак гениальности!??.. Посилання на коментар Поділитися на інших сайтах More sharing options...
Drosselbeere Опубліковано: 2 березня 2013 Поділитись Опубліковано: 2 березня 2013 хотелось бы услышать аргументы подобного суждения! описывать мало хочется, скажу одно, зонирование нет ни какого кроме как баня от резаная от жилой части. дом не маленький при этом коридор занимает 40 кв м. вход в спальню через кабинет. гостям что бы принять душ надо бежать неизвестно куда.... вообще больше похоже на сарай, простите за резкую критику. 2 Посилання на коментар Поділитися на інших сайтах More sharing options...
termOS Опубліковано: 2 березня 2013 Поділитись Опубліковано: 2 березня 2013 Вот симпатичная планировочка особо симпатична (как по мне) "собранность"всех основных коммуникаций! При строительстве и в эксплуатации дома-ой как порадует!!! Посилання на коментар Поділитися на інших сайтах More sharing options...
vickov Опубліковано: 3 березня 2013 Поділитись Опубліковано: 3 березня 2013 особо симпатична (как по мне) "собранность"всех основных коммуникаций! При строительстве и в эксплуатации дома-ой как порадует!!! Меня будет радовать моя планировка Посилання на коментар Поділитися на інших сайтах More sharing options...
vickov Опубліковано: 3 березня 2013 Поділитись Опубліковано: 3 березня 2013 Вот решил выложить на обсуждение два планировочных решения. Если интересно,отправлю в 3Д +фото по почте Это, просто, бИда. Коридор 42 метра при махонькой гостинной.... Зато, наверное. детям будет удобно на великах кататься. 1 Посилання на коментар Поділитися на інших сайтах More sharing options...
Travel_Alex Опубліковано: 3 березня 2013 Автор Поділитись Опубліковано: 3 березня 2013 Меня будет радовать моя планировка Планировка очень симпотичная, вот только есть пару вопросов: - можно указать, какие комнаты на плане у вас находятся, с названиями комнат и их площадью (так как не совсем понятно кроме кухни какие для чего Вы планируете, а площадь нужно пересчитывать для каждой комнаты отдельно) - у Вас совмещенный санузел ? - как Вы планируете ориентировать дом на участке и по сторонам света ? 1 Посилання на коментар Поділитися на інших сайтах More sharing options...
Artyomovets Опубліковано: 3 березня 2013 Поділитись Опубліковано: 3 березня 2013 Вот решил выложить на обсуждение два планировочных решения. увидел только одно решение, похожее на ангар переделаный в какое-то общежитие... холодильник-парная без перестенков понравилась. для участка 20*30 такое сооружение явно неуместно... лестница в ад - тоже ничего так... это типа попарился-помылся, тут же в холодильник и под землю? Посилання на коментар Поділитися на інших сайтах More sharing options...
termOS Опубліковано: 3 березня 2013 Поділитись Опубліковано: 3 березня 2013 (змінено) Это, просто, бИда. Коридор 42 метра при махонькой гостинной.... Зато, наверное. детям будет удобно на великах кататься. Возмущения,понятны! Все из-за некорректности линий-границ помещений и проемов.Ранее показанная "картинка" помещений, рисовалась для "тепловиков",и по причине разных высот,условно поделена. А вообще-то коридор с гостиной(каминной) и прихожкой -одна "зона",и позволит не только на великах... Учитывая высоту по прихожке 4.5метра,-меньшая площадь даст ощущение "колодца"!!!..и не спасут окошки под потолком. Прошу прощения и выкладываю корректировку; Змінено 3 березня 2013 користувачем termOS миниатюра Посилання на коментар Поділитися на інших сайтах More sharing options...
Рекомендовані повідомлення
Створіть акаунт або увійдіть у нього для коментування
Ви маєте бути користувачем, щоб залишити коментар
Створити акаунт
Зареєструйтеся для отримання акаунта. Це просто!
Зареєструвати акаунтУвійти
Вже зареєстровані? Увійдіть тут.
Увійти зараз