Перейти до публікації
Пошук в
  • Додатково...
Шукати результати, які містять...
Шукати результати в...

Притяжение матушки земли. Путь к семейной усадьбе с нуля.

VIP13

Рекомендовані повідомлення

Вступление

 

Доброго здравия, уважаемые соратники!

 

Начиная свою тему о строительстве дома, приходит на ум все та же затасканная народная мудрость с «бородой» о том, что должен сделать в своей жизни мужчина.

С четвертой попытки сына родить удалось, видать пришел черед за домом с садом.

Если начинать с предыстории, то детство прошло очень близко к земле в небольшом городке на Полтавщине и став столичным жителем, с годами все больше убеждаешься в том, что большой город для жизни в полном понимании этого слова, абсолютно не предназначен. С годами усиливается тяга к земле и это явление, думаю, уже стоит возводить в ранг законов бытия.

 

Описывая материализацию мечты, постараюсь подробно изложить логику принятия решений. Буду рад, если мой скромный опыт кому-то еще пригодится из форумчан.

Буду стараться ответить на все вопросы, которые будут возникать у честной компании, еще больше буду рад критическим замечаниям и конструктивным советам.

 

Добавлено через 11 минут

Конкретизация цели

 

И так, началом материализации мыслей о своей усадьбе можно считать август 2010 года, когда началось активное изучение вопроса строительства загородного дома.

Первый вопрос, который возник - это целевое назначение загородной семейной резиденции.

После основательных размышлений, определились с двумя возможными вариантами:

– это усадьба с домом для постоянного проживания,

или

- на первом этапе дачный вариант(выходные + лето) с перспективой постоянного проживания в пенсионном возрасте.

 

Понятно, что выбор одного из этих вариантов существенно влияет на все дальнейшие подходы к выбору участка, проекта дома и других сопутствующих вопросов.

Взвесив все доступные аргументы, остановились на втором варианте.

 

Основными аргументами, склоняющими к такому решению, были:

- Не развитость инфраструктуры пригородного жилья возле Киева, т.е. при варианте постоянного проживания вопрос садика, школы, трансфера членов семью на работу/учебу может быть серьезным негативным фактором перевешивающем преимущества загородного проживания.

 

- Стоимость земли и других составляющих строительства возле столицы имеет несколько другие размеры, чем при рассмотрении участков с дачным назначением.

 

- Те географические направления пригородного строительства, которые подходили с точки зрения оптимальности трансферов имели весьма плохие перспективы по садоводству, а одной из задач виделось иметь полноценный сад.

 

Так же на выбор варианта повлияли реалии с перспективами финансирования проекта. С этой точки зрения решение виделось не как блицкриг, а как поэтапное инвестирование, растянутое во времени на 5-6 лет. При этом все, что возможно, буду стараться делать своими руками.

  • Лайк 14
Посилання на коментар
Поділитися на інших сайтах

На этап поиска достойного варианта участка для строительства ушло не много, не мало - более года.

 

Изначальными общими критериями поиска были:

- Экология, красота природных ландшафтов

- Удаленность от Киева – не более 1 часа езды на автомобиле (от киевской квартиры);

- Удобный трафик движения без потенциальных пробок

- Т.к. одним из условий был полноценный сад, то требования к земле – чернозем, пригодный для произростания плодовых деревьев, низкие грунтовые воды.

- Размер участка: не менее 10 соток – не более 25 соток.

 

Далее в процессе созревания решения добавились немаловажные следующие критерии:

- Участок не в поле, осваивать целину никакого желания нет. Подходящим виделся вариант с заброшенным домом в черте села. При этом село должно быть по возможности «живым».

- по возможности участок должен быть правильной формы, ровный.

- Участок должен быть с возможностью подключения коммуникаций, т.е. должны проходить по границе участка газ и электричество;

- хорошие соседи.

- участок «чистый» в вопросе документов, отсутствие различных «стремных» вариантов.

- асфальтное покрытие подъезда, удобное расположение, желательно угловой.

- не на оживленной магистрали (с т.з. экологии – выхлопы авто, шум)

 

Исходя из расположения киевской квартиры и критерия связанного с удобством трафика, были детально исследованы бориспольское, черкасское и обуховское направление.

Поездки были как самостоятельные, так и с брокерами.

На каком то этапе рассмотрения вариантов, пришел к необходимости сравнения местоположения участка с картой грунтов Украины. Можно посмотреть по ссылке. Карта не очень подробная, но из нее видно, что «родючі грунти» возле Киева в рассматриваемых пределах, есть только в Обуховском направлении , точнее за Обуховым.

proxima.net.ua/media/content/karta_klimaticheskih_zon/image009.png

 

В результате усилий по поиску прояснилось, что участков отвечающим изложенным выше критериям не так уж и много. В связи с общим снижением стоимости земли, в основном, не плохие варианты выставлялись по не адекватной цене(т.е.имело место выжидание до лучших времен).

Таким образом, приходилось ориентироваться только на вариант совпадения реального желания продать участок и реального желания с моей стороны его купить.

Практически через три месяца после активных поисков я вышел на участок, который в последствии стал моим. Он изначально соответствовал большинству изложенных выше критериев, но было одно «но», связанное с недооформленостью документов. Ситуация с документами была не простой. К счастью ее удалось успешно разрешить и я, не прекращая мониторить возможные варианты, только в августе 2011 года стал счастливым обладателем 25 соток земли.

 

Добавлено через 17 минут

2011 год. Август. Характеристики участка.

И так, был приобретен участок со следующими параметрами:

Находится в селе Обуховского района киевской области на расстоянии 59 км от киевской квартиры. Село с достаточно развитой инфраструктурой, которая сохранилась со времен бывшего величия времен СССР(Школа десятилетка, детский садик, регулярное движение маршрутных такси и т.п.).

Общая площадь 25 соток (40м на 62 м).

ffb00901220b19ac66dcd5b579de67d450eff3147253954.jpg

 

Визуально практически ровный, как позже оказалось перепад, все таки, есть, и на 60 метрах он составил около 1.5 м.

Находится на сельской улице, на участке имеется наполовину разрушенная постройка старого дома и более 30 деревьев в запущенном состоянии. В основном высокорослые неплодовые - акация, клен, а также несколько груш (2 лимонки и две дички), 5 вишен, 3 абрикосы

По расположению является угловым, т.е подъезд имеется с двух сторон: с фасадной стороны(улица) и с переулка шириной 6-8м(3м асфальтное покрытие).

 

fd0a32424bacda2ccaafad6a87f1b90a50eff3147253951.jpg57e6f5c292ed23b9b7abf0993361601150eff3147253952.jpg1406331d32fa17850eef0dd476eb1ed650eff3147253953.jpg0cbe29962257e4fadf341ae9d4c0bf9950eff3147253955.jpg

 

Местность, в котором располагается село живописная. Через село протекает небольшая речка, с помощью которой создано каскад зарыбленных озер(ставков).

47b05e1b8b52691b46e5e2d1de6f295e50eff3147253956.jpg

 

Добавлено через 4 минуты

2011 год. Сентябрь. План действий

 

Составлен план действий на сентябрь -декабрь 2011 года.

Запланировано:

1. Отметка о переходе права собственности на участок на Гос.Акте в Держземе.

2. Вырезка ненужных деревьев

3. Вывоз остатков разрушенного дома и других полуразрушенных построек

4. Планировка земли на месте бывшего дома и участка

5. Применение мероприятий по корчевке пней.

 

Добавлено через 5 минут

2011 год. Август – Октябрь. Отметка о переходе права собственности на Гос. Акте.

 

Отметку в земельном Акте о праве собственности на земельный участок удалось сделать по стандартной схеме без ускорения(оно было реально не нужно т.к. сроки не поджимали).

Конечно же с полноценным ощущением «дебилизма» существующей системы регистрации, с необходимостью записи в очередь на листике чуть ли не с вечера в определенные установленные дни и часы приема. Очень медленным приемом (от 15 до 30 минут на одного человека) . Требованием обменного файла, реальное предназначение которого ускорение внесение записи в учетную систему (на дискете! со стоимостью услуги у конторок находящихся в зданиях располагающихся поблизости Держзема от 150 до 200 грн!). Короче единственный выход - стараться не принимать все это близко к сердцу с целью экономии нервных клеток, которые в будущем явно будут не лишними.

В результате регистрация закончилась успешно и это главное. Общие затраты с учетом двух поездок из Киева составили 500грн.

  • Лайк 1
Посилання на коментар
Поділитися на інших сайтах

2011 год. Сентябрь-Октябрь. Вырезка деревьев, вывоз старого дома

 

После анализа имеющихся вариантов решения стоящей задачи, было принято решение задействовать семейные резервы.

Была куплена бензиновая пила SADKO GCS-510E - цена вопроса вместе с маслом для смазки цепи и двигателя - 1155 грн. За 4 субботы на протяжении сентября-октября 2011 года все ненужные деревья были спилены, разрезаны на метровки и сложены в удобном месте. Ненужные ветки и деревянные остатки дома были подвержены сожжению.

a5c207a2937bd594618906c8a808cddb5bd133147285448.jpg07cca3d67b810d61cf377835d8779d445bd133147285449.jpgb1a8e007d4be22dbb1fc8641730ed3da5bd133147285450.jpg0f6f31a8c00fbed24f9fdf956321b8545bd133147285452.jpg

 

Для вывоза остатков дома и планировки участка, был нанят трактор и Камаз из местных ресурсов.

a6cf0c87ee0134efaf538402fd8b628c5bd133147285450.jpg2de20330a0c20fc2d35f011d7c8977765bd133147285451.jpg

 

В результате выполнения всех запланированных на 2011 год мероприятий участок приобрел следующий вид. В пнях были насверлены отверстия, засыпаны аммиачной селитрой и закрыты полиэтиленовой пленкой. Этим была подведена черта под работами на участке в 2011 году.

1b9d2e957864bcf9ff70b4e091a06dd55bd133147285453.jpg08321f3689618e1795f92073c4aa37a05bd133147285454.jpg2f46d4e4a0348942b4c0d7f439e4f3b65bd133147285454.jpg695956715536eb6d909831852f7acca15bd133147285455.jpg

 

Добавлено через 4 минуты

2012 год. Январь. Планы.

На 2012 год было запланировано:

- Рассмотрение всех вариантов планов застройки участка. Выбор концепции.

- Решение вопроса с электричеством

- Решение вопроса с водоснабжением

- Покупка прицепа для авто

- Оформление стройпаспорта

- Подача «Повідомлення про початок будівництва»

- Постройка туалета

- Постройка сарайчика для хранения инвентаря, иснтрументов и материалов(хоз.постройки)

- Обустройство ограждения всего участка по периметру (200м забора, часть из него капитального плана, часть временного).

- Подготовка части участка под высадку сада

- Съем плодородного слоя грунта с места . где запланирована постройка дома

- Решение вопроса с окончательным выбором проекта дома и его покупкой(разработкой).

  • Лайк 1
Посилання на коментар
Поділитися на інших сайтах

2012 год. Январь – Май. Определение с планом застройки.

Так мы подошли к очень важному этапу реализации семейного плана – определению концепции размещения объектов на участке. Благо его конфигурация позволяет реализовать, как минимум, несколько вариантов.

Решающим фактором, повлияющим на выбор концепции планировки участка, стали экологические соображения. Т.к. улица, на которой находится участок, является одним из путей выезда из села, то она, как для сельских масштабов, достаточно оживленная. Решено было дом разместить в глубине участка с фасадным въездом из проулка, а вдоль улицы вдоль места бывших старых построек соорудить забор из профнастила и посадить сад из двух рядов деревьев.

На плане застройки:

1. Дом.

2. Хозблок состоящий из подвала, бани, мастерской и террасы с барбекюшной зоной.

3. Хоз.постройка общего назначения. Первая постройка на участке (в начале - как бытовка, склад для материалов и инструментов).

4. Бассейн.

5. Туалет

0ceb5ffda7d0a1501d66d656cedb27f05bd133147287032.jpg

Посилання на коментар
Поділитися на інших сайтах

На каком раст. от забора расположены соседские постройки? Будет ли выдержан противопожарный разрыв в 8 м? Где будет скважина? Где будет выгребной колодец (с возможностью подъезда машины для выкачки)? Для оформления стройпаспорта в архитектуре лучше обозначить все эти сооружения.
  • Лайк 1
Посилання на коментар
Поділитися на інших сайтах

2012 год. Февраль - Май. Решение вопроса с электрификацией участка.

После изучения вариантов решения вопроса с подводкой электричества на участок, благодаря наводке соседа, был найден надежный человек из местных жителей, взявшийся решить вопрос законного, с оформлением всех полагающихся документов, подключения 3 фаз 5кВт. Цена вопроса - 12 000 грн.

Хотя вопрос несколько затянулся с февраля по май, но в результате на участке появился столб со счетчиком, заземлением и протянутым кабелем от линии проходящей по улице, а у меня на руках пакет документов позволяющий законно использовать этот ресурс.

 

Добавлено через 8 минут

На каком раст. от забора расположены соседские постройки? Будет ли выдержан противопожарный разрыв в 8 м? Где будет скважина? Где будет выгребной колодец (с возможностью подъезда машины для выкачки)? Для оформления стройпаспорта в архитектуре лучше обозначить все эти сооружения.

 

Все заданные вопросы на сейчас уже проработаны. По поводу соседских построек, то их на таком расстоянии нет. Расположение уже имеющегося колодца и возможное место бурения скважины определено, и будет освещено в нескольких постах моей истории ниже, как и размещение септика. Стройпаспорт уже оформлен.

 

Добавлено через 10 минут

2012 год. Май. Колодец

 

Подойдя к решению задачи по водоснабжению стройки и самого дома, вырисовалось два варианта не претендующих на оригинальность – это колодец или скважина.

Проведенный опрос среди счастливых обладателей скважины в местности , где находится участок, говорил о том, что попасть на воду с удовлетворительным качеством воды шансов не много. Т.е. практически вся вода из доступных для бурения скважин горизонтов, подлежит очистке от железа с соответствующими затратами на систему.

Опрос местных жителей пользующихся колодцами имел более оптимистические результаты. Так дегустация воды у ближайшего соседа подтвердила его мнение о ее хороших вкусовых качествах, а по отзыву о дебете - его хватает, чтобы осуществлять полив огорода.

Короче говоря, выбор был сделан в сторону колодца.

Поиск исполнителей вывел на обуховских мастеров, которые как оказалось работают с подходом наподобие бригадного подряда. Т.е. есть сайт с рекламой услуг копки колодцев, по которому диспетчер может выводить заказчиков на бригады мастеров, в зависимости от региона. При этом тот мастер на кого вывел меня диспетчер, имеет договоренности еще с одной бригадой, которая реально копает.

В результате принятого решения по исполнителям, за полтора рабочих дня работы, был выкопан колодец:

f626d206b4ea6a7f890337309ccebfd25bd133147287547.jpg

 

Заодно был определен характер грунтов:

Чернозем - 30см

Чернозем с глиной – 50 см

Глина – 7 м

Глина с песком – 2 м

Песок мелкий – 1 м

Песок крупный с камешками - 1,5 м

Итого - около 12,5 метров ( 18 колец).

 

Из особенностей, которые возникли – это то, какой материал прокладывать между несколькими последними кольцами, для того, чтобы просачивалась вода из родников, и в то же время не наносилось песка. Бригада, которая копала стандартно использовала прокладки в виде поролона. Мне этот материал, в связи с его токсичностью, применять абсолютно не хотелось, поэтому из возможных альтернативных вариантов сошлись на мешковине из льна. Цена вопроса 120 грн. Была куплена в Эпицентре.

 

Из уроков:

- Необходимо копать колодец ранней весной, или даже зимой, когда максимально низкий уровень подземных вод. У меня получилось так, что колодец был выкопан 12 мая когда уровни подземных вод максимальны, но осталась надежда на хороший дебет родников, который может компенсировать снижение уровня воды (Пока не удалось проверить т.к. не было реально большого расхода воды).

 

- При договоре с мастерами было оговорено гарантированный уровень воды – 3 кольца. В реалиях получилось около 1,5 м, что несколько меньше(кольцо 70 см). Аргументом у мастеров был большой дебет воды(не удавалось откачивать двумя насосами), что затрудняло копку.

 

- Было установлено дно из дубовых досок, для того чтобы меньше заносило дно колодца песком. Не уверен, что не развод на деньги, но повелся.

 

- Установленный сверху колодца домик не плотно прилегает к шестиграннику, на котором он установлен, из-за этого при дожде вода попадает в колодец и намокают кольца. Попытка загерметизировать щели силиконовым герметиком не увенчалась успехом, отслоилось при воздейстии солнца. Буду рад советам по оптимальному решению этой сложности.

 

Смета:

Кольца 19 шт. по 200 грн. шт. – 3800 грн.

Оголовок(восьмигранник) 1 шт. – 200 грн.

Льняная мешковина - 120 грн.

Дубовое дно – 600 грн.

Домик из окрашенного металла – 1500 грн.

Работа - 4000 грн.

ИТОГО : 10 220 грн.

 

Добавлено через 2 минуты

2012 год. Май-Июнь. Оформление стройпаспорта.

 

Оформление стройпаспорта особых сложностей не вызвало.

Три поездки из Киева в Обухов, при этом одна с выездом техника на участок (каждая поездка 100 грн. на бензин).

В одном здании, на одном этаже по ул. Малышко, 9 в Обухове находится три организации(комнаты), в которых можно решить вопросы изготовления паспорта, его утверждения главным архитектором города и подачи «Повідомлення про початок будівництва» инспектору ГАСК.

Изготовление строй паспорта - стоимость 810 грн, срок 1 месяц. Реально абсолютно не понятно, на что уходит целый месяц и за что берут деньги – шесть листиков бумаги, половина из которых копии моих документов(паспорта, Акта на землю, ИНН) . Из самых существенных – это перечень требований к застройке и план застройки, перерисованный с предоставленного мной варианта, а также распечатка из интернета(типа спутниковой съемки) с отмеченным фломастером моим участком.

Неделя на утверждение у главного архитектора района (регламент). Процедура безоплатна. При этом необходимо было отдельно приезжать из Киева в Обухов, чтобы забрать изготовленный стройпаспорт в одной комнате и передать секретарю находящемуся рядом для подписи в другой. Потом уже подумал, что возможно можно было решить вопрос заранее, оставив каких-то денег(конфет), но спустя время, по телефону вопрос решить не удалось, мол, приезжайте лично получайте свои экземпляры стройпаспорта и подавайте их лично для утверждения главному архитектору.

Главное во всем этом, что в итоге результат был достигнут и это радует.

  • Лайк 2
Посилання на коментар
Поділитися на інших сайтах

2012 год. Июль. Подача «Повідомлення про початок будівництва».

 

Наверное, подаче Повідомлення стоит уделить отдельное внимание, т.к. вопрос прошел не совсем гладко и несколько затянулся во времени.

И так, подачу Повідомлення я решил совместить с получением утвержденного стройпаспорта у Главного архитектора, т.к. приемный день у инспектора ГАСК понедельник.

Взяв шаблон Повідомлення в одной из профильных тем на этом сайте и сверив его с образцом,вывешенным на доске объявлений возле кабинета інспектора, составил текст и явился к инспектору для его подачи. О том что подавать необходимо именно ему, по месту нахождения объекта строительства мне было сообщено во время предварительной консультации. Образец Повідомлення видимо выкладывать никакого смысла нет, т.к. форма подлежит периодическим изменениям.

Далее события развивались таким образом, как описано в моей жалобе, составленной благодаря информации находящейся в профильных разделах этого форума. Размещена в прикреплении.

 

Как вы, наверное, догадались, что с регистрацией в Едином реестре «Повідомлень о начале строительства» произошла осечка и по состоянию на начало 2013 года решения не было.

Прикрепленная жалоба была направлена на e-mail Начальинка ГАСК 11.02.2013 года и через месяц я получил ответ в письменном виде о том, что мое извещение включено в Реестр с указанием регистрационного номера.

Хочется верить, что эпопея с регистрацией «Повідомлення про початок

будівництва» на этом закончилась.

 

Уроки из ситуации следующие:

- Перед подачей Повідомлення, во избежание излишних телодвижений , вопрос стоит детально изучить в первую очередь с помощью профилных тем настоящего форума.

- Подавать Повідомлення необходимо в письменном виде с уведомлением о получении.

- Во время составления извещения при указании кода объекта. варианты были не достаточно детально проработаны, поэтому был указан код 1110.2 - Котеджі та будинки одноквартирні підвищеної комфортності, хотя уже позже понял ,что более подходящим является код 1110.3- Будинки садибного типу . Придется вносить изменения.

- При подаче извещения, упустил вопрос необходимости подачи не только в ГАСК, а и в сельсовет, МЧС и Держтехногенбезпеку. Поэтому отправил уже после получения извещения о регистрации в Реестре, весной 2013 года.

СКАРГА ДАБІ 08.02.13.doc

  • Лайк 2
Посилання на коментар
Поділитися на інших сайтах

2012 год апрель. Покупка прицепа.

 

Хотя покупка транспортного средства напрямую и не относится к наименованию темы. Но т.к. вопрос перемещений материалов, использующихся во время строительства, напрямую влияет на затраты по строительству, считаю будет полезным поделится своим опытом в покупке прицепа.

Принятию решения о покупке любой вещи традиционно предшествует этап изучение потребности и имеющихся вариантов для ее удовлетворения.

В результате было прийнято решение о покупке прицепа производства ЧП Палыч модель ПГМФ 8304.

www.autosite.com.ua/Trailers-Palich-PGMF-8304-Khamer_auto_1240155.html

Этот вариант показался достаточно универсальным для различных вариантов применения во время стройки и вообще в хозяйстве.

 

Критерии выбора:

- Размер и конструкция кузова, позволяющая перевозить стандартные размеры материалов использующихся при строительстве. Т.е. стандартные размеры гипсокартона, ОSB и т.п. Съемный задний борт, для удобства разгрузки и перевозки более длинномерных грузов.

- Полноценный кузов с колесами располженными за его пределами.

- Стандартные колеса, усиленная рама, рессоры и подвеска для перевоза грузов до 1000кг.

- Цена до 10 000 грн.

 

Затраты:

Установка фаркопа на авто: - 1360 грн

Прицеп с тентом – 5 800 грн.

Гос.регистрация – 450 грн

ИТОГО: 7 610 грн.

 

Добавлено через 37 минут

2012 год. Июнь. Сооружение туалета.

 

Так как этот объект неизбежно присуствует в списке первочередных для возведення у каждого застройщика, то я исключением не стал и успешко справился с задачей, путем сооружения временного варианта с ипользованием минималного набора материалов и инструментов. Основне материалы – столбики заготовленные при срезке дерьевьев, рейки, завесы, саморезы и черная п/э пленка достатчной прочности. Итого вложился в бюжет в 200 грн.

Из уроков:

Необходимо достаточно тщательно выбирать место для, даже временного, сооружения туалета. Т.к. в моем варианте его придется переносить в связи с началом строительства банно-хозяйственного блока на этом месте.

 

Добавлено через 50 минут

2012 год. Июль-август. Строительство хоз.постройки

В списке объектов подлежащих первоочередному возведению, как правило, присутствует и сарайчик(хоз.постройка), назначение которой в хранении иструментов и материалов.

После размышлений на предмет того, какого вида сооружение «ваять», решил построить капитальное строение размером 4мХ3м с более расширенным функциональным назначением, расширенным до возможности переночевать и размещения в будущем под крышей емкостей для автоматического полива. Проект был нарисован на 3-х листиках тетрадки в клеточку. Размеры были подогнаны исходя их размеров газоблоков.

 

Характеристики:

- Фундамент - ширина 25 см, глубина 40 см, в уграх углубления на 1 м, арматура по периметру в 2 нити d10.

- Стены – Газобетон (Обухов), 300х200х600, толщина стены 200мм.

- Перекрытие - деревяные балки

- Кровля – двухскатная, профнастил кровельный.

 

Процесс возведения коробки был разбит на два этапа:

1. Фундамент.

2. Стены и кровля.

 

Возведение фундамента.

Для изготовления бетона своими силами была куплена бетономешалка Агримотор 1510 (цена вопроса 2100 грн), выбор сделал благодаря теме на форуме www.stroimdom.com.ua/forum/showthread.php?t=92647

В качестве опалубки на цокольную часть , были предварительно своими руками изготовлены щиты из обрезной доски 25мм, которые планировалось далее использовать при строительстве забора и др.

Итого на заливку ушло 9 часов работы двух работников (один на бетономешалке, второй на заливке бетона), которые сделали 46 замесов бетономешалки.

В качестве пропорций компонентов бетона использовалась формула:

Цемент 400 – 1 ведро

Щебень – 5 ведер

Песок - 3 ведра

Вода – 1 ведро

Итого : 65 литров бетона в одном замесе

При этом 1 ведро = 10 л.

 

Применялась следующая технология:

бетономешалка располагалась в непосредственной близости от цемента, щебня и песка (рабочая область возле бетономешалки застелена п/э пленкой), вода подносилась ведрами от колодца(10м). При осуществлении одного замеса, применялась следующая последовательность закладки компонентов – вода 1 ведро, цемент 1 ведро, щебень 3 ведра, песок 3 ведра, щебень 2 ведра.

Перемещение бетона от бетономешалки к месту заливки фундамента осуществлялось с помощью одноколесной тачки (один замес бетономешалки = две тачки). При этом для удобства заливки бетона в опалубку применялся импровизированный деревянный трапик. С помощью него тачка подвозилась к месту заливки и ее содержимое опрокидывалось прямо в опалубку. Дальше бетон штыковался и выравнивался по необходимому уровню, который был отбит заранее нитью.

4e8e686739014f0958553a42d2f8f8e95bd133147484648.jpg8e1f9ef34213a1dccf7579cef6905b695bd133147484897.jpg

 

Возведение коробки.

При возведении стен и кровли использовалась тактика блицкрига с применением семейных ресурсов.

В общей сложности на выполнение этапа стены+кровля ушло три с половиной дня силами двух работников и одного помощника на замес клея. Кладка осуществлялась на клей, с армированием арматурой d8 каждого третьего ряда ГБ.

73d875871a9a22ada620e1f01843b77f5bd133147486025.jpg 28aef7d912b9b72269018d1845cf13765bd133147486025.jpg 8b78be287b868ed869b60ec06a76e20e5bd133147486025.jpg 86a8b518058cb56e66ad58c404c9dc195bd133147486026.jpg e115d051468c6c487551f1e7c9a6eb485bd133147486026.jpg 395e4cde85a9ae5e010268d7acd6a98c5bd133147486027.jpg b93823abc77ef9c07b540dc8f240d98c5bd133147486028.jpg ef268d8c79ef884d5a53d3755eda8eda5bd133147486029.jpg

 

Следующим этапом мной самостоятельно был подшит потолок листами OSB-6мм, установлена простая китайская дверь , установлено окно и залита стяжка на пол. Также была сделана деревянная дверь на чердачное помещение и элементарная электропроводка, в том числе на движение, который предполагалось использовать как датчик элементарной сигнализации с выводом сигнала на лампочку и звонок.

Змінено користувачем VIP13
  • Лайк 1
Посилання на коментар
Поділитися на інших сайтах

Реальные затраты на строительство хоз.постройки представлены в прикрепленном файле.

Смета хозпостройка.xls

  • Лайк 3
Посилання на коментар
Поділитися на інших сайтах

Взвесив существующие варианты, было принято решение забор со стороны улицы соорудить из профнастила. После проработки вопроса конструкции и местных источников материалов, был составлен план действий по решению стоящей задачи.

В соответствии с хронологией выполнения работ:

- Разметка расположения забора и уровней по горизонту.

- Копка углубления под ленточный фундамент. В связи с уклоном, реальное углубление получилось только на части фундамента (около 20м), а в остальной части лента лилась сверху, а после подсыпалась с двух сторон грунтом.

- Копка ям под бетонирование столбиков, глубиной 70 см

- Установка и бетонирование столбиков (труба 40х40 ), расстояние между столбиками 2,7 м, бетон до нижнего края ленты фундамента.

- Приварка двух нитей арматуры 8 мм к столбикам для армирования ленты фундамента, к арматуре прикручены вязальной проволокой поперечные куски арматуры с шагом 65 см.

- Установка опалубки, при этом использовалась опалубка, которая изготавливалась для заливки фундамента под хоз.постройку. Заливка ленты фундамента шириной 15см высотой 35см. Заливка осуществлялась в два этапа с перестановкой опалубки.

- Приварка поперечин к столбикам. Варились в нахлест к столбикам и сваривались между собой в стык.

- Чистка от ржавчины столбиков и поперечин и их покраска.

- Изготовление ворот. Так как в соответствии с принятой концепцией размещения объектов на участке, было принято решение о размещении дома в глубине участка, то сторона, на которой сооружался забор, не является фасадной. На этой стороне было принято решение сделать запасные ворота для удобного заезда к хоз. части и огороду. При этом ворота были сделаны заподлицо с остальной частью забора и при первом взгляде не выдают свое наличие.

- В соседнем селе был закуплен профнастил коричневого цвета с волной 8мм, высотой 1,5 м и с привлечением семейных ресурсов силами двух человек за два рабочих дня он был закреплен на поперечинах.

84cc1f406d2eb4c7729c9ac9266ce97d5bd133147492211.jpg c17a8756d5bc1a6ee601b79994338ae45bd133147492211.jpgc78cf68bdef0f58f9cc8ad530f02f6e45bd133147493058.jpg 2b9ec8091f4a7ad5dfd62997dab072255bd133147493058.jpg 7a3dcc9bae997f375eb98cde14c3ce815bd133147493059.jpg d36aa4afa01fcb45963183597509c18e5bd133147493060.jpg b78727875b6563a275c6bbecadfb39915bd133147493061.jpg 844d432a3dc2be27f48f94dff5272bcd5bd133147493062.jpg 6f97ed92e124660e4d3c6df6bb70dabd5bd133147493063.jpg 3e3be89febde31103d1395d88bc12d875bd133147493064.jpg

 

Добавлено через 5 минут

Использование прицепа и сварки

 

Надо отметить, что при строительстве хоз.постройки и забора начал отрабатывать затраченные деньги приобретенный прицеп. Пока отзывы положительные как по габаритам, так и по конструкции.

 

Также для выполнения сварочных работ был приобретен сварочный аппарат запорожского производства ЭЛСВА ВД-160И . Цена вопроса - 1600 грн.+ 500 грн маска. Осознанный выбор делал благодаря тематическим разделам этого форума, в частности www.stroimdom.com.ua/forum/showthread.php?t=10503

 

С аппаратом получилась небольшая непрятность, как говориться, первый блин комом – первый экземпляр оказался не рабочим, но продавец оперативно сработал и без проблем сделал замену. Использовал аппарат для сварочных работ по строительству забора. Самому сравнивать не с чем, т.к. вперые держал сварку в руках, а вот по отзывам соседа, сварщика со стажем, аппарат работает отлично, ему понравился.

  • Лайк 1
Посилання на коментар
Поділитися на інших сайтах

К осени 2012 года подошел к вопросу более детального планирования участка.

В результате общее распределение зон участка виделось так:

079a790e44f76844651f46e340bbde035bd133147308274.jpg

 

Добавлено через 1 час 4 минуты

2012 год. Ноябрь. Перепланировка грунта на участке.

 

Исследование вопроса уклонов рельефа участка показало то, что имеется перепад уровней в 1,5 м между той частью, которая запланирована под высадку сада из яблонь, груш и абрикос и той, на которой планируется строительство дома(дом ниже). Также исследование почвы на месте планирующегося сада показало ее неудовлетворительное состояние (много кирпичей, имеет рыжий цвет и т.п.).

В результате было принято решение о планировке грунта участка со съемом плодородного слоя почвы с места застройки сооружений(толщиой около 30 см), а также о подсыпке на 50 см места постройки дома. Для подсыпки было решено использовать почву неудовлетворительного состава с места закладки будущего сада.

В результате трех рабочих дней трактора, плодородный слой грунта был сложен в одном месте, а участок приобрел следующий вид:

2c2b77b7e664a6a37935c8d31fa9c7815bd133147310290.jpgd6f0bd4a7fb08b9a458a0ae37f517a915bd133147310291.jpg

 

Добавлено через 4 минуты

2012 год. Ноябрь. Подготовка места под закладку нового сада

 

Территория закладки сада была подсыпана на толщину около 20см плодородным черноземом, снятым с места постройки дома.

f5a67e50d1b4e79de939e6d1ca4b505a5bd133147310292.jpg 3d07dc672786b45dff7f1f45ba8e2e1d5bd133147310293.jpg 86ef5e421e293db2ad781e4e315f0b265bd133147310294.jpg

  • Лайк 2
Посилання на коментар
Поділитися на інших сайтах

Хорошо излагаете.

Чувствуется, прям военная вымуштровка и подход во всём, мне так показалось. Всё чётко и взвешенно. Подписался, буду следить за веткой.

ПС: фотки оч.уж неудобно просматривать. попробуйте загружать через форум. Или это только у меня так?

Змінено користувачем Мечты сбываются
  • Лайк 5
Посилання на коментар
Поділитися на інших сайтах

Хорошо излагаете.

Чувствуется, прям военная вымуштровка и подход во всём, мне так показалось. Всё чётко и взвешенно. Подписался, буду следить за веткой.

ПС: фотки оч.уж неудобно просматривать. попробуйте загружать через форум. Или это только у мены так?

 

Спасибо за отзыв!

Так как пришлось за один день, при выкладке материалов на форум, прожить в описании реализации планов, путь с 2010 года до 2013-го, то, конечно же, может создаться впечатление военного подхода. На самом деле я человек мирный, а за кадром остались сомнения и исследования различных варинатов решений, которые в сочетании с временем принятия решения привели к описанным результатам.

Согласен с вами по поводу некоторого неудобства загрузки фоток, но это связано только с временными затратами на загрузку сообщений на форум(ссылки готовились заранее).

Начиная с текущего сообщения буду старатся загружать изображения только через сайт.

  • Лайк 2
Посилання на коментар
Поділитися на інших сайтах

Затраты, которые получились на сооружение 40м забора из профнастила по описанному выше конструктиву с двухстворчатыми воротами шириной 4 м, приведн в прикрепленном файле.

Итого, стоимость 1 погонного метра забора, при условии выполнения большинства работ самостоятельно, составила 250 грн. Работы выполнялись в основном по субботам, начиная с 28 сентября по 4 ноября(всего 9 рабочих дней)

Смета забор (часть1).xls

  • Лайк 4
Посилання на коментар
Поділитися на інших сайтах

2011 год. Сентябрь-Октябрь. Вырезка деревьев, вывоз старого дома

 

После анализа имеющихся вариантов решения стоящей задачи, было принято решение задействовать семейные резервы.

Была куплена бензиновая пила SADKO GCS-510E - цена вопроса вместе с маслом для смазки цепи и двигателя - 1155 грн. За 4 субботы на протяжении сентября-октября 2011 года все ненужные деревья были спилены, разрезаны на метровки и сложены в удобном месте. Ненужные ветки и деревянные остатки дома были подвержены сожжению.

a5c207a2937bd594618906c8a808cddb5bd133147285448.jpg07cca3d67b810d61cf377835d8779d445bd133147285449.jpgb1a8e007d4be22dbb1fc8641730ed3da5bd133147285450.jpg0f6f31a8c00fbed24f9fdf956321b8545bd133147285452.jpg

 

Для вывоза остатков дома и планировки участка, был нанят трактор и Камаз из местных ресурсов.

a6cf0c87ee0134efaf538402fd8b628c5bd133147285450.jpg2de20330a0c20fc2d35f011d7c8977765bd133147285451.jpg

 

В результате выполнения всех запланированных на 2011 год мероприятий участок приобрел следующий вид. В пнях были насверлены отверстия, засыпаны аммиачной селитрой и закрыты полиэтиленовой пленкой. Этим была подведена черта под работами на участке в 2011 году.

1b9d2e957864bcf9ff70b4e091a06dd55bd133147285453.jpg08321f3689618e1795f92073c4aa37a05bd133147285454.jpg2f46d4e4a0348942b4c0d7f439e4f3b65bd133147285454.jpg695956715536eb6d909831852f7acca15bd133147285455.jpg

 

Добавлено через 4 минуты

2012 год. Январь. Планы.

На 2012 год было запланировано:

- Рассмотрение всех вариантов планов застройки участка. Выбор концепции.

- Решение вопроса с электричеством

- Решение вопроса с водоснабжением

- Покупка прицепа для авто

- Оформление стройпаспорта

- Подача «Повідомлення про початок будівництва»

- Постройка туалета

- Постройка сарайчика для хранения инвентаря, иснтрументов и материалов(хоз.постройки)

- Обустройство ограждения всего участка по периметру (200м забора, часть из него капитального плана, часть временного).

- Подготовка части участка под высадку сада

- Съем плодородного слоя грунта с места . где запланирована постройка дома

- Решение вопроса с окончательным выбором проекта дома и его покупкой(разработкой).

 

.. шикарно пишите. аж зачитываюсь. Вы, наверное, стратег)))))

  • Лайк 1
Посилання на коментар
Поділитися на інших сайтах

.. шикарно пишите. аж зачитываюсь. Вы, наверное, стратег)))))

 

Спасибо за оценку!

Уверен в том, что каждый человек, который однажды принял осознаное решение о начале воплощения в жизнь семейных замыслов о загордной резиденции, в процессе продвижения к цели, неизбежно будет, в большей или меньшей степени, - архитектором, конструктором, сантехником, прорабом, строителем различных специальностей, а в первую очередь просто обязан быть стратегом. Потому что, если не подвергать анализу планируемые действия с точки зрения выбраной стратегии, то излишней потери нервных клеток и средств просто не избежать.

Благо, у нас с вами есть такой неоценимый источник знаний, как настоящий форум, где с помощью изучения опыта коллег можно избежать множества "гарблей" на тернистом пути застройщика.

 

Добавлено через 56 минут

2013 год. Январь. Планы

 

На 2013 год план видился таковым:

- Выбор проектной организации для проектирования дома и банно-хозяйственного блока.

- Разработка проекта дома и банно-хозяйственного блока.

- Разработка проекта ландшафтного дизайна участка.

- Комплекс мероприятий по подготовке места для посадки, подбору саженцев в новый сад. Закладка нового сада.

- Закончить сооружение забора по периметру участка, часть постоянного характера часть временного.

- Окончательно определиться с конструкцией и расположением септика. Сооружение септика.

- Снять, оставшийся не снятым, плодородный слой почвы с места построения банно-хозяйственного блока.

- Комплекс мероприятий по строительству фундамента дома.

- Комплекс мероприятий по строительству подвала и фундамента банно-хозяйственного блока.

- Планировка грунта, который был вынят при строительстве подвала.

- Определиться с планировкой коммуникаций требующих земляных работ (электричество, водоснабжение, канализация, грунтовой теплообменник, бассейн). Выполнение работ по реализации этой планировки.

- В случае если при разработке проекта ландшафтного дизайна, будет подтверждена целесообразность возведения стенки для создания террасы, отделяющей лужайку от зоны бассейна, выполнить работы по ее сооружению.

 

Реальные обстоятельства при воплощении плана в жизнь, думаю, будут вносить коррективы, соответственно будет корректироваться и сам план.

По каждому отдельному пункту буду производить детальное планирование с привязкой ко времени.

 

Добавлено через 1 час 30 минут

2013 год. Январь - Март. Разработка проекта дома

 

«Страдать» вариантами выбора планировки будущего дома начал практически с принятием решения о покупке участка.

Некоторую хронологию этих «страданий» можно, увидеть в моей теме по этому вопросу

www.stroimdom.com.ua/forum/showthread.php?t=68261.

 

По мере того, как видоизменялись мои взгляды на подходы к планировке, понемногу вырисовался костяк принципиальных решений.

 

И так дом виделся:

- Двухэтажный, по возможности уйти от мансардных комнат на втором этаже. Без цокольного этажа и подвального помещения.

- К дому пристроенный гараж, с гаража прямого входа в дом нет.

- Использовать пространство над гаражем для обустройства спортивной (игровой) комнаты .

- Терраса расположена так, чтобы обеспечить кратчайший путь из кухни.

- наличие кроме входа через террасу, входа со стороны двора, с помощью которого можно было бы просто попасть к санузлу и в другие помещения первого этажа.

- Наличие на первом этаже гостевой комнаты(кабинета).

- Наличие на первом этаже душевой комнаты.

- Наличие отдельной топочной для установки отопительного оборудования.

- На втором этаже 4 спальни.

- на втором этаже полноценная ванная компната с постирочной.

- Наличие на втором этаже в одной из комнат балкона (с юго-западной стороны).

 

После того, как более менее, я смог сформулировать, то чего хочу(т.е. определил основные параметры потребности), решил искать готовый проект максимально подходящий под эти параметры.

Посещение проектных организаций и виртуальное общение с некоторыми из них, все больше приближали к созреванию решения о необходимости разработки индивидуального проекта.

 

За период созревания решения были освоены на элементарном уровне две программы по пректированию: Punch! HomeDesiggn-AS4000 и ArchiCad 15. Очень мощным иструментом в этих программах есть возможность визуализации. Реально потрачен не один вечер на создание виртуальной модели своей мечты. Вдохновленный примером не одного форумчанина, изначально даже надеялся на возможный вариант сделать проект самостоятельно.

 

Когда уже подошел к черте принятия решения, то понял, что нарисовать свои «хотелки», это очень приблизительно соответствует значению слова ПРОЕКТ. Для того, чтобы понимать, какие конструктивные решения подходят для каждого конкретного узла, просто интуиции и инженерной смекалки не достаточно, необходим опыт архитектора(конструктора).

Короче говоря, начался этап поиска исполнителя для разработки проекта.

При этом столкнулся с достаточно разными подходами к проектированию, от полета творческой фантазии за мои деньги, до архитекторов-ремеслинников с небольшим опытом проектирования, но приятными расценками на работы.

 

В результате, благодаря этому форуму, вышел на Львовскую проектную организацию НПК ГАЛПРОЕКТ и познакомился с Главным архитектором моего будущего проекта Антоном Тиханским.

После разговора с архитектором и мониторинга отзывов, было решено разработку индивидуального проекта дома поручить ГАЛПРОЕКТу.

По поводу сотрудничества могу дать только положительные отзывы, этапы проектирования выполнялись оперативно, задержки были, в основном, только за мной, в моментах принятия принципиальных решений, которые требовали более детального изучения вопроса с моей стороны.

 

Если вы знаете чего хотите и вам необходим опытный проектант, который за приемлемые деньги разработает проект вашего будущего дома, то, думаю, как и в моем варианте, выбор ГАЛПРОЕКТа будет оптимальным.

  • Лайк 2
Посилання на коментар
Поділитися на інших сайтах

В результате, благодаря этому форуму, вышел на Львовскую проектную организацию НПК ГАЛПРОЕКТ и познакомился с Главным архитектором моего будущего проекта Антоном Тиханским.

После разговора с архитектором и мониторинга отзывов, было решено разработку индивидуального проекта дома поручить ГАЛПРОЕКТу.

По поводу сотрудничества могу дать только положительные отзывы, этапы проектирования выполнялись оперативно, задержки были, в основном, только за мной, в моментах принятия принципиальных решений, которые требовали более детального изучения вопроса с моей стороны.

 

Если вы знаете чего хотите и вам необходим опытный проектант, который за приемлемые деньги разработает проект вашего будущего дома, то, думаю, как и в моем варианте, выбор ГАЛПРОЕКТа будет оптимальным.

 

Поддерживаю. МЫ тоже работалис ГАЛПРОЕТОМ, очень довольны.

  • Лайк 2
Посилання на коментар
Поділитися на інших сайтах

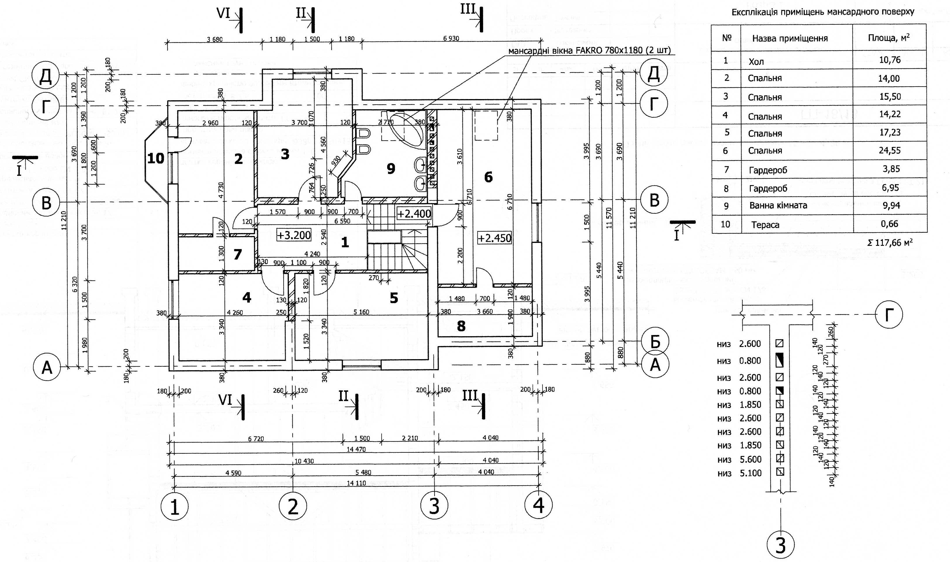
Общие характеристики проекта

 

Общая площадь дома составляет 244,59 м2

 

Конструктивные решения:

Фундамент – ленточный монолитный бетонный по монолитной армированной подушке

Внешние стены – керамический блок Кератерм 38.

Внутренние стены и перегородки – полнотелый кирпич.

Перекрытие первого этажа – по сборным железобетонным плитам.

Перекрытие второго этажа – дерево.

Кроля – металлочерпица.

 

При разработке всех конструктивных решений, одной из важных задач была задача максимально уйти от мостиков холода.

Змінено користувачем VIP13
  • Лайк 2
Посилання на коментар
Поділитися на інших сайтах

Створіть акаунт або увійдіть у нього для коментування

Ви маєте бути користувачем, щоб залишити коментар

Створити акаунт

Зареєструйтеся для отримання акаунта. Це просто!

Зареєструвати акаунт

Увійти

Вже зареєстровані? Увійдіть тут.

Увійти зараз
×
×
  • Створити...