serg_09 Опубліковано: 29 грудня 2016 Поділитись Опубліковано: 29 грудня 2016 Спасибо большое за ответ по трапу.Скажите пож где его можно купить ,что-бы не переплачивать?Скажите еще пож.Размер по высоте для выводов канализации связан с установкой смесителей ,что-бы не использовать гофру,или есть какие-то тонкости.Вопрос в том,что если у меня канализация будет разводиться в подвале.От источников будет уходить вниз через перекрытие,нужно-ли мне соблюдать эту высоту или могу сделать где удобно.Спасибо. Посилання на коментар Поділитися на інших сайтах More sharing options...
naupv Опубліковано: 29 грудня 2016 Поділитись Опубліковано: 29 грудня 2016 Хоть какие бы Расскажите где искать ? www.leon.ua/ua/cat/173.htm 1 Посилання на коментар Поділитися на інших сайтах More sharing options...
B.A.S. Опубліковано: 29 грудня 2016 Поділитись Опубліковано: 29 грудня 2016 Хоть какие бы Расскажите где искать ? Спасибо! Можете заехать. Подарю. Оригинальную Посилання на коментар Поділитися на інших сайтах More sharing options...
DraVVa Опубліковано: 29 грудня 2016 Поділитись Опубліковано: 29 грудня 2016 Скажите какой длины трубка надо, я глянк17-18 см нужно 2 шт Посилання на коментар Поділитися на інших сайтах More sharing options...
Vow Опубліковано: 1 січня 2017 Поділитись Опубліковано: 1 січня 2017 Всех с наступившим и всего самого хорошего. Есть автономное отопление в квартире, схемку вроде нарисовал правильно. К системе отопления подключен полотенчик именно к отоплению, а не к горячей воде. Такой вариант подключения в отопительный сезон думаю будет устраивать, но летом же топить котел для полотенчика как то не пофеншую. Вариант созрел такой- закольцевать систему перед полотенчиком и поставить тен. Зимой система открыта и греет котел, летом отключил полотенчик от общей системы и греет тен. Такой вариант возможен или будут проблемы ? Еще вопрос, специалисты, скажите что должно или рекомендуете ставить в точке подключения к водопроводу в многоетажке.. застройчик поставил счетчик на площадке... я думал ставить кран, редуктор, манометр, две колбы для очистки воды...что еще желательно или обязательно? Посилання на коментар Поділитися на інших сайтах More sharing options...
red baron Опубліковано: 1 січня 2017 Поділитись Опубліковано: 1 січня 2017 Всех с наступившим и всего самого хорошего. Есть автономное отопление в квартире, схемку вроде нарисовал правильно. К системе отопления подключен полотенчик именно к отоплению, а не к горячей воде. Такой вариант подключения в отопительный сезон думаю будет устраивать, но летом же топить котел для полотенчика как то не пофеншую. Вариант созрел такой- закольцевать систему перед полотенчиком и поставить тен. Зимой система открыта и греет котел, летом отключил полотенчик от общей системы и греет тен. Такой вариант возможен или будут проблемы ? Еще вопрос, специалисты, скажите что должно или рекомендуете ставить в точке подключения к водопроводу в многоетажке.. застройчик поставил счетчик на площадке... я думал ставить кран, редуктор, манометр, две колбы для очистки воды...что еще желательно или обязательно? 1) должно работать. благо есть полотенчики с ТЭНами.... 2) в узле подключения все что перечислили, кроме колб с фильтрами... Или в самой квартире нет особо места? Посилання на коментар Поділитися на інших сайтах More sharing options...
Vow Опубліковано: 1 січня 2017 Поділитись Опубліковано: 1 січня 2017 1) должно работать. благо есть полотенчики с ТЭНами.... 2) в узле подключения все что перечислили, кроме колб с фильтрами... Или в самой квартире нет особо места? полотенчик обычный водяной, но в него насколько я понял можно вкрутить через тройник тен santehinstal.prom.ua/p3355886-ten-termoregulyatorom-heatpol.html На площадке стоит фильтр, счетчик и кран. А все остальное - кран, редуктор, манометр, две колбы для очистки воды я планировал ставить у себя. Посилання на коментар Поділитися на інших сайтах More sharing options...
red baron Опубліковано: 1 січня 2017 Поділитись Опубліковано: 1 січня 2017 полотенчик обычный водяной, но в него насколько я понял можно вкрутить через тройник тен или такие mario.ua/catalog/teny/ а если его в крутить в одну из заглушек - сверху? если место хватает - редуктор там и где фильтра.... обычно (у нас по городу в частности) - редуктор Хоневел 04 стоит сразу после счетчика..... Посилання на коментар Поділитися на інших сайтах More sharing options...
Vow Опубліковано: 1 січня 2017 Поділитись Опубліковано: 1 січня 2017 или такие mario.ua/catalog/teny/ а если его в крутить в одну из заглушек - сверху? если место хватает - редуктор там и где фильтра.... обычно (у нас по городу в частности) - редуктор Хоневел 04 стоит сразу после счетчика..... оуу, точно, можно ведь сверху...вопрос только в удобстве эксплуатации и эстетике. спасибо Посилання на коментар Поділитися на інших сайтах More sharing options...
serg_09 Опубліковано: 2 січня 2017 Поділитись Опубліковано: 2 січня 2017 (змінено) Всех с наступившим Новым годом.Помучаю Вас еще вопросами.Помогите все-таки разобраться с трубами для подключения сантехники.Какие трубы использовать?.План первого этажа прилагаю. 1.Вода из колодца рядом с домом в подвал.Насос польский Aqua Craft 750 wt.4500 литров в час(я понимаю, что мощный но уже такой есть)выход 25 мм. 2.Гидроаккумулятор, фильтры в подвале. 3.Бойлер в ванной комнате над унитазом. 4.Точки подключения : Санузел- душ,унитаз,умывальник,стиралка. Кухня-мойка,посудомоечная. Где какой диаметр труб использовать?И с кем и как можно пообщаться что-бы прикинуть схему разводки хотя-бы приблизительно.Спасибо. Змінено 2 січня 2017 користувачем serg_09 Посилання на коментар Поділитися на інших сайтах More sharing options...
finansist9999 Опубліковано: 2 січня 2017 Поділитись Опубліковано: 2 січня 2017 где лучше всего найти человека который сможет установить стеклянные двери в душевую? киев. стекло есть, фурнитура, уплотнители все. Посилання на коментар Поділитися на інших сайтах More sharing options...
KuN Опубліковано: 2 січня 2017 Поділитись Опубліковано: 2 січня 2017 где лучше всего найти человека который сможет установить стеклянные двери в душевую? киев. стекло есть, фурнитура, уплотнители все. [ATTACH]543696[/ATTACH] [ATTACH]543698[/ATTACH] У того же Киевского Завода Стекла есть ребята, контакты которых они дают для замеров и установки изделий. Качество без понятия. По телефону могут дать контакты. Посилання на коментар Поділитися на інших сайтах More sharing options...
finansist9999 Опубліковано: 2 січня 2017 Поділитись Опубліковано: 2 січня 2017 У того же Киевского Завода Стекла есть ребята, контакты которых они дают для замеров и установки изделий. Качество без понятия. По телефону могут дать контакты. в том то и дело что хотелось бы проверенного человека. Я понимаю что по сути ничего сложного там нет... но не хочу что-то упустить из мелочей, поэтому ищу человека с опытом. создал тендер даже www.stroimdom.com.ua/forum/showthread.php?t=208417 Посилання на коментар Поділитися на інших сайтах More sharing options...
Offroad Опубліковано: 3 січня 2017 Поділитись Опубліковано: 3 січня 2017 (змінено) А яка має бути повна висота стандартної чавунної ванни з ніжками (які стандарти екранів під ванну)? На данні 600 мм до верху і мін. 145 мм від зливу до підлоги можна орієнтуватись? Змінено 3 січня 2017 користувачем Offroad Знайшов... Посилання на коментар Поділитися на інших сайтах More sharing options...
serg_09 Опубліковано: 5 січня 2017 Поділитись Опубліковано: 5 січня 2017 Всех с наступившим Новым годом.Помучаю Вас еще вопросами.Помогите все-таки разобраться с трубами для подключения сантехники.Какие трубы использовать?.План первого этажа прилагаю. 1.Вода из колодца рядом с домом в подвал.Насос польский Aqua Craft 750 wt.4500 литров в час(я понимаю, что мощный но уже такой есть)выход 25 мм. 2.Гидроаккумулятор, фильтры в подвале. 3.Бойлер в ванной комнате над унитазом. 4.Точки подключения : Санузел- душ,унитаз,умывальник,стиралка. Кухня-мойка,посудомоечная. Где какой диаметр труб использовать?И с кем и как можно пообщаться что-бы прикинуть схему разводки хотя-бы приблизительно.Спасибо. Добрый день Всем.Ни-кто не откликнется?Нужна ваша помощь.Спасибо. Посилання на коментар Поділитися на інших сайтах More sharing options...
Сергей 31 Опубліковано: 5 січня 2017 Поділитись Опубліковано: 5 січня 2017 Добрый день Всем.Ни-кто не откликнется?Нужна ваша помощь.Спасибо. В дом обычно заводят ПМД трубу (черную такую) 10 барную., 32 мм. Перегибы этой трубы и резьбовые фитинги в не обслуживаемых местах не допустимы. Пообщаться можно со мной, телефон в личке. 1 Посилання на коментар Поділитися на інших сайтах More sharing options...
Vow Опубліковано: 7 січня 2017 Поділитись Опубліковано: 7 січня 2017 с праздником всех. Подскажите в HLV-107009 клапан запорный угловой fiting.kiev.ua/truba/sh-polietilen/107009.html в какую сторону крутить чтобы открыть и сколько оборотов можно сделать? ограничение есть ? Посилання на коментар Поділитися на інших сайтах More sharing options...
Сергей 31 Опубліковано: 7 січня 2017 Поділитись Опубліковано: 7 січня 2017 в какую сторону крутить чтобы открыть и сколько оборотов можно сделать? ограничение есть ? Против часовой, вроде 5 оборотов, ограничитель есть, но так без фанатизма. Посилання на коментар Поділитися на інших сайтах More sharing options...
Vow Опубліковано: 7 січня 2017 Поділитись Опубліковано: 7 січня 2017 Против часовой, вроде 5 оборотов, ограничитель есть, но так без фанатизма. большое спасибо!:beer: Посилання на коментар Поділитися на інших сайтах More sharing options...
Vow Опубліковано: 9 січня 2017 Поділитись Опубліковано: 9 січня 2017 может не в тему, но спрошу, у нас есть поставщики сантехнической утвари -краники, редуктора и т.д. по адекватным ценам ? Посилання на коментар Поділитися на інших сайтах More sharing options...
naupv Опубліковано: 10 січня 2017 Поділитись Опубліковано: 10 січня 2017 может не в тему, но спрошу, у нас есть поставщики сантехнической утвари -краники, редуктора и т.д. по адекватным ценам ? 1.По адекватным ценам, это когда ты берешь часто и много. Для разовой покупки никто вам крупнооптовую цену без знакомства не даст. 2. Если для вас адекватная цена это та, которую вы сами себе представляете, и готовы заплатить, то вы глубоко ошибаетесь. Посилання на коментар Поділитися на інших сайтах More sharing options...
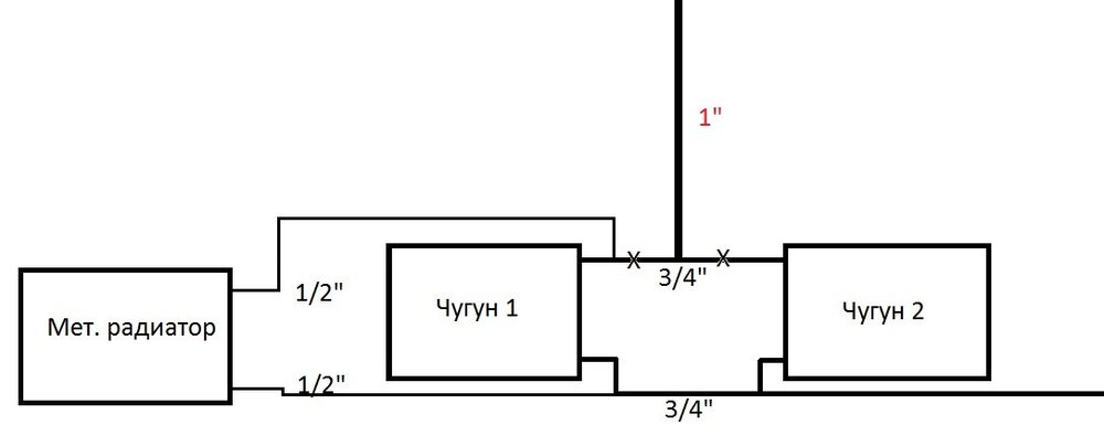
bondur Опубліковано: 10 січня 2017 Поділитись Опубліковано: 10 січня 2017 Не греет батарея/металлический радиатор (слева). Подключено как понимаю по дебильному, но что есть. Кухня достраивалась, поэтому так. При ремонте кинул 20 ПП трубы в стяжке без утеплителя примерно 100см + в через стену 60см + за батареей в стене 50см, всего примерно 2 метра, так же чтоб все спрятать на каждой трубе есть по 3 угла 90 и 1 угловой кран 90. На выходе из батареи Чугун 1 - 44С, а на входе в Мет. радиатор - 28С(замерял когда он еще стоял на месте). 16 градусов теряется на 2х метрах? Снял радиатор подключил без труб в полу, получил верх Мет. радиатора - 39С(как и на выходе с чугнного), а нижняя часть - 21С. Разница 18 градусов! Почему так? Как бороться? Может сделать вывод из Чугун 1 25-й ПП? Или надо ставить перед тройником подачи еще один тройник/ответвление? Может диаметра обратки не хватает? Посилання на коментар Поділитися на інших сайтах More sharing options...
Сергей 31 Опубліковано: 10 січня 2017 Поділитись Опубліковано: 10 січня 2017 ................. 1 Посилання на коментар Поділитися на інших сайтах More sharing options...
bondur Опубліковано: 10 січня 2017 Поділитись Опубліковано: 10 січня 2017 ................. Большое спасибо!! Примерно так и представлял, но сомневался. Подскажите пожалуйста еще: 1. Чтоб батарея была максимально горячей(северная угловая комната, холодная), не лучше ли врезаться в дюймовую трубу или без разницы? 2. Можно ли подключиться при помощи латунных Врезок (вампиры)? Нарезать резьбу на трубах под тройники или варить нет желания. В ближайшие 2-3 года планирую менять систему отопления. Возможен ли такой вариант как временный? 1 Посилання на коментар Поділитися на інших сайтах More sharing options...
Vow Опубліковано: 11 січня 2017 Поділитись Опубліковано: 11 січня 2017 1.По адекватным ценам, это когда ты берешь часто и много. Для разовой покупки никто вам крупнооптовую цену без знакомства не даст. 2. Если для вас адекватная цена это та, которую вы сами себе представляете, и готовы заплатить, то вы глубоко ошибаетесь. Как я понимаю, есть цены в обычных магазинах где накрутка 100%, а иногда и больше. Есть инет магазины где цены как правило более вменяемые, но смотря какой магазин, а есть форумчаны, которые могут помочь или скидкой, или еще какой то плюшкой и покупка у них мне вселяет больше доверия в качестве чем в каком то неизвестном мне маге. Посилання на коментар Поділитися на інших сайтах More sharing options...
Рекомендовані повідомлення
Створіть акаунт або увійдіть у нього для коментування
Ви маєте бути користувачем, щоб залишити коментар
Створити акаунт
Зареєструйтеся для отримання акаунта. Це просто!
Зареєструвати акаунтУвійти
Вже зареєстровані? Увійдіть тут.
Увійти зараз