Тася Опубліковано: 13 лютого 2009 Поділитись Опубліковано: 13 лютого 2009 Здравствуйте, форумчане! Наконец-то понравился проект. Семья состоит из 4-х человек ( двое маленьких детей и мы с мужем), хотим бюджетный вариант дома. В этом проекте хотим изменить- на 1 этаже 1. Сделать 2 полноценных комнаты ( дети маленькие и на 2-й этаж пока не доберутся, а мы должны быть рядом) 2. Камин 3. Постирочная 4. При входе в дом не будет остекленения (страшно хочу хорошую дверь) 5. Камин в гостинной 2 этаж 1. Уровнять квадратуру комнат 2. Сделать еще кабинет 3. Балкон накрыть крышей, застеклить Вопросы: Как лучше все это организовать( из гостинной выход в обе комнаты? нужны варианты) 2. Где постирочная? 3. Мокрые места, знаю, что должны быть на друг другом, где менять- на 1-м или 2-м этаже? Подбросьте идеи и по-критикуйте (мы совсем новички), очень нужна поддержка зала Благодарю;) Посилання на коментар Поділитися на інших сайтах More sharing options...
Olena Опубліковано: 13 лютого 2009 Поділитись Опубліковано: 13 лютого 2009 Поищите другой проект. Представленный ну очень далек от требований. Посилання на коментар Поділитися на інших сайтах More sharing options...
Тася Опубліковано: 14 лютого 2009 Автор Поділитись Опубліковано: 14 лютого 2009 Поищите другой проект. Представленный ну очень далек от требований. Я уже столько их пересмотрела, этот первый похож на дом-мечту Думаете с толковым прорабом-бригидиром не сможем воплотить в него еще эти требования? Посилання на коментар Поділитися на інших сайтах More sharing options...
yri Опубліковано: 14 лютого 2009 Поділитись Опубліковано: 14 лютого 2009 Польские проекти пролистайте они в разы более продуманее у русских только фасади интересные а функционал ужасный. Посилання на коментар Поділитися на інших сайтах More sharing options...
Тася Опубліковано: 14 лютого 2009 Автор Поділитись Опубліковано: 14 лютого 2009 Польские проекти пролистайте они в разы более продуманее у русских только фасади интересные а функционал ужасный. киньте в меня ссылкой польских, если не сложно. Спасибо;) Посилання на коментар Поділитися на інших сайтах More sharing options...
yri Опубліковано: 15 лютого 2009 Поділитись Опубліковано: 15 лютого 2009 на форуме есть все поиск (ссылка устарела) (ссылка устарела) (ссылка устарела) (ссылка устарела) (ссылка устарела) (ссылка устарела) (ссылка устарела) (ссылка устарела) (ссылка устарела) (ссылка устарела) (ссылка устарела) (ссылка устарела) (ссылка устарела) (ссылка устарела) (ссылка устарела) (ссылка устарела) (ссылка устарела) (ссылка устарела) (ссылка устарела) Посилання на коментар Поділитися на інших сайтах More sharing options...
Тася Опубліковано: 15 лютого 2009 Автор Поділитись Опубліковано: 15 лютого 2009 на форуме есть все поиск (ссылка устарела) (ссылка устарела) (ссылка устарела) (ссылка устарела) (ссылка устарела) (ссылка устарела) (ссылка устарела) (ссылка устарела) (ссылка устарела) (ссылка устарела) (ссылка устарела) (ссылка устарела) (ссылка устарела) (ссылка устарела) (ссылка устарела) (ссылка устарела) (ссылка устарела) (ссылка устарела) (ссылка устарела) Спасибо, мда... море проектов, начала просматривать. Правда есть нюанс, почти все дома одноэтажные с мансардой(((( Посилання на коментар Поділитися на інших сайтах More sharing options...
Тася Опубліковано: 15 лютого 2009 Автор Поділитись Опубліковано: 15 лютого 2009 А если внести только такие изменения: 1.На 1 этаже сделать 1 комнату ( за счет гостинной- уменьшим и может быть с этой стороны дом увеличть на мерт- два) 2. Балкон застеклить 3.Мокрые места, поменять- на 1-м или 2-м этаже? Что скажете? Посилання на коментар Поділитися на інших сайтах More sharing options...
lena Опубліковано: 16 лютого 2009 Поділитись Опубліковано: 16 лютого 2009 если Вам не подходит мансардный этаж, то смотрите укр и росс проекты - их тоже оч много Посилання на коментар Поділитися на інших сайтах More sharing options...
Мария Кле Опубліковано: 16 лютого 2009 Поділитись Опубліковано: 16 лютого 2009 сейчас такие цены на создание проектов, что вам лучше сделать инд разработку. нарисовать свою планировку и все.. дешевле выйдет... Посилання на коментар Поділитися на інших сайтах More sharing options...
архітектор Опубліковано: 16 лютого 2009 Поділитись Опубліковано: 16 лютого 2009 Если что - нарисованную Вами планировку могу довести до проекта и рабочих чертежей. Посилання на коментар Поділитися на інших сайтах More sharing options...
Мария Кле Опубліковано: 16 лютого 2009 Поділитись Опубліковано: 16 лютого 2009 Если что - нарисованную Вами планировку могу довести до проекта и рабочих чертежей. я лицо незаинтересованное но я в свое время сделала так потому что типовые мне все по каким то причинам не подходили а строить по бумажке я не могу и не умею.. Посилання на коментар Поділитися на інших сайтах More sharing options...
Тася Опубліковано: 16 лютого 2009 Автор Поділитись Опубліковано: 16 лютого 2009 да, надо подумать. А что скажете вообще про дом? Есть ли еще недочеты? Посилання на коментар Поділитися на інших сайтах More sharing options...
Мария Кле Опубліковано: 16 лютого 2009 Поділитись Опубліковано: 16 лютого 2009 да, надо подумать. А что скажете вообще про дом? Есть ли еще недочеты? я бы сделала гостинную вместе с кухней - там самая тусня, а вот комнату жилую одну сделала отдельной для пожилых родителей и гостей.. а и самим лень становится вверх лазать Посилання на коментар Поділитися на інших сайтах More sharing options...
Olena Опубліковано: 16 лютого 2009 Поділитись Опубліковано: 16 лютого 2009 Обязательно делайте небольшую прихожую, чтобы зимой холодный воздух не проникал в дом. Кстати, а зачем вам застекленный балкон ? Посилання на коментар Поділитися на інших сайтах More sharing options...
Тася Опубліковано: 16 лютого 2009 Автор Поділитись Опубліковано: 16 лютого 2009 Обязательно делайте небольшую прихожую, чтобы зимой холодный воздух не проникал в дом. Кстати, а зачем вам застекленный балкон ? Да, насчет прихожей - это правильно. А про балкон, если он не застеклен, значит только для теплого времени года, в остальное время вся листва, дожди, снег, только грязь создадут. А так зимой вышел, сел на креслице и смотри на вид из окна и зимний сад ( ну не совсем сад, но пару красивых напольных растений) можно создать перед балконом и в нем Красота;) Посилання на коментар Поділитися на інших сайтах More sharing options...
Olena Опубліковано: 16 лютого 2009 Поділитись Опубліковано: 16 лютого 2009 Чтобы зимой сидеть на балконе, балкон должен отапливаться . Иначе сидеть будет холодно. Посилання на коментар Поділитися на інших сайтах More sharing options...
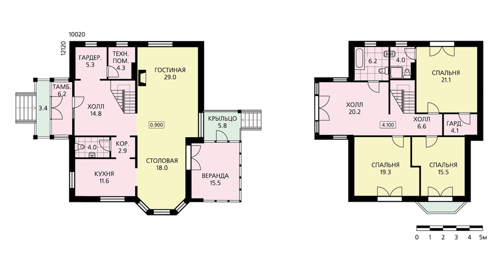
Тася Опубліковано: 16 лютого 2009 Автор Поділитись Опубліковано: 16 лютого 2009 Поищите другой проект. Представленный ну очень далек от требований. Определилась с проектом, смотрите+ к нему добавить кое-что из предыдущего- над входом в дом- балкон застекленный. И веранду ( задний план) застекленную к дому присоединить. Поменять местами на 1эт. котельную с санузлом и присоеденить в гостинной к комнате гардеробную. На 2-этаже в большой ( 23 кв) тоже гардеробную сделать. Что скажете? Посилання на коментар Поділитися на інших сайтах More sharing options...
Тася Опубліковано: 16 лютого 2009 Автор Поділитись Опубліковано: 16 лютого 2009 Чтобы зимой сидеть на балконе, балкон должен отапливаться . Иначе сидеть будет холодно. Тогда, наверное, надо будет и через балкон пустить трубу отопления. Посилання на коментар Поділитися на інших сайтах More sharing options...
Мария Кле Опубліковано: 17 лютого 2009 Поділитись Опубліковано: 17 лютого 2009 бюджетный вариант дома на 4 чел - это 150 метров максимум (без гаража) а у вас 200 с лишним.. вчера убирала второй этаж площадью 60 метров (еще есть комната 28 - закрытая) вспоминала свою жадность нехорошими словами.. Посилання на коментар Поділитися на інших сайтах More sharing options...
Тася Опубліковано: 17 лютого 2009 Автор Поділитись Опубліковано: 17 лютого 2009 бюджетный вариант дома на 4 чел - это 150 метров максимум (без гаража) а у вас 200 с лишним.. вчера убирала второй этаж площадью 60 метров (еще есть комната 28 - закрытая) вспоминала свою жадность нехорошими словами.. Да, если 4 человека будет всегда, тогда можно и меньше. А если прийдеться родителей забрать. Или потом мои дети найдут себе мужей и будут с нами жить ( пусть даже какое-то время) поэтому экономим на фасадах, цоколе и крыше, а внутри побольше жилых помещений. А про уборку даже думать страшно:sad: Посилання на коментар Поділитися на інших сайтах More sharing options...
Мария Кле Опубліковано: 17 лютого 2009 Поділитись Опубліковано: 17 лютого 2009 Да, если 4 человека будет всегда, тогда можно и меньше. А если прийдеться родителей забрать. Или потом мои дети найдут себе мужей и будут с нами жить ( пусть даже какое-то время) поэтому экономим на фасадах, цоколе и крыше, а внутри побольше жилых помещений. А про уборку даже думать страшно:sad: у вас пять спален грубо и кабинет. у вас такая работа, что есть потребность в кабинете? вам реально - 2 детские метров по 12, одна спальня вам - 16 метров с головой. + родителям 1 комната метров 14. остальное общая гостинная с кухней. гости бывают редко. а родителей вы пока не забрали не стройте столько на перспективу - поверьте. мы когда проект выбирали - жадничали.. хорошо что на 174 метра нажадничали с гаражом.. и мне наш дом кажется огромным.. Посилання на коментар Поділитися на інших сайтах More sharing options...
Olena Опубліковано: 17 лютого 2009 Поділитись Опубліковано: 17 лютого 2009 В прихожую 3,4 метра лестница может не поместиться. Проверьте размеры. Мария права, дом получился явно не бюджетным, хотя смотря какой бюджет. Кстати, а где гараж ? Отдельно будет ? Посилання на коментар Поділитися на інших сайтах More sharing options...
Тася Опубліковано: 18 лютого 2009 Автор Поділитись Опубліковано: 18 лютого 2009 В прихожую 3,4 метра лестница может не поместиться. Проверьте размеры. Мария права, дом получился явно не бюджетным, хотя смотря какой бюджет. Кстати, а где гараж ? Отдельно будет ? Гараж отдельно. Насчет 3.4 м в прихожей - я уже тоже думала, что маловато. Наверное, надо уменьшить комнату на метр + если поменять местами туалет и котельную, то наверное, для котельной 2.2 ( кстати а сколько надо для котельной?) тоже маловато, значит надо и это место увеличить. А насчет того, что комнаты большие- так, что тут сказать, сейчас живем в 12м, жуть хочу пространства) Если бы этот проект был бы такой же, но комнаты 15-18 м. делали бы такой. А менять весь проект?! Начиталась форумчан - глупо. Посилання на коментар Поділитися на інших сайтах More sharing options...
Olena Опубліковано: 18 лютого 2009 Поділитись Опубліковано: 18 лютого 2009 Тася, сейчас мало потому что вы живете в комнате, а в доме в спальню только ночевать приходить будете. А остальное время или во дворе или в гостинной или на кухне. Посилання на коментар Поділитися на інших сайтах More sharing options...
Рекомендовані повідомлення
Створіть акаунт або увійдіть у нього для коментування
Ви маєте бути користувачем, щоб залишити коментар
Створити акаунт
Зареєструйтеся для отримання акаунта. Це просто!
Зареєструвати акаунтУвійти
Вже зареєстровані? Увійдіть тут.
Увійти зараз