irina1969 Опубліковано: 10 листопада 2013 Поділитись Опубліковано: 10 листопада 2013 хмм... стула может и не хватить... стул-стремянку можно (ссылка устарела) или просто стремянку www.ikea.com/ru/ru/catalog/products/30178879/ Посилання на коментар Поділитися на інших сайтах More sharing options...
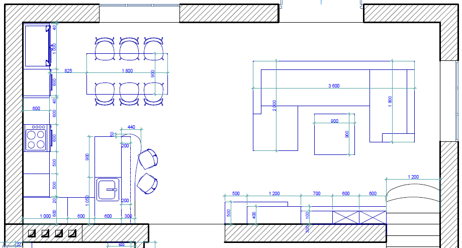
alexob Опубліковано: 10 листопада 2013 Автор Поділитись Опубліковано: 10 листопада 2013 после красивыхкартин появилось 2 вопроса - ванная будет только в детском санузле ?..в хозяйском не планируете ? или там что-то есть в душевой кабинке ? Верно, ванная будет только в детском санузле. Мы так сделали специально. Я лично реально в ванной купался уже не помню когда все под душем. Супруга чаще конечно. Но если нада будет в ванной, то можно и у детей комнату "позычить" :D не кажется ли вам, что барная стойка ( стулья) и рядом обеденный стол будут мешать друг другу ? я сейчас мучаюсь по проекту были и барная стойка и стол, пока решила избавиться от барных стульев, выпить чашку кофе можно и стОя все ИМХО ну у нас кухня в виде полуострова, так вот чтобы не пустовала обратная сторона этого полуострова, то вот решение - поставить пару стульев и обыграть столешню в виде барной стойки. А почему вы говорите будет мешать друг другу? пысы...какое расстояние между стойкой и обеденным столом ? примеряли-перемеряли, имитировали - вроде все будет нормально и комфортно Вот здесь на плане можно приблизительно прикинуть размеры (как минимум между стойкой и столом 80 см) 4 Посилання на коментар Поділитися на інших сайтах More sharing options...
irina1969 Опубліковано: 10 листопада 2013 Поділитись Опубліковано: 10 листопада 2013 просто мне показалось, что расстояние между столом м стойуой маленькое, и еще неудобно мб в каком плане, сидящие за барной стойкой будут сидет в проходе ,как по мне не есть гут мб это я сама себя уговариваю, что убрала сулья барные:D правильно Посилання на коментар Поділитися на інших сайтах More sharing options...
Luko Опубліковано: 10 листопада 2013 Поділитись Опубліковано: 10 листопада 2013 Вот здесь на плане можно приблизительно прикинуть размеры по факту у Вас, скорее всего, стол будет придвинут к окну, чтобы освободить проход между барной стойкой и к холодильнику но это совсем не плохо... Посилання на коментар Поділитися на інших сайтах More sharing options...
alexob Опубліковано: 10 листопада 2013 Автор Поділитись Опубліковано: 10 листопада 2013 Слейте пожалуйста в лс координаты фирмы которая продала Вам фитинги без монтажа пожалуйста, вот здесь, может еще кому-то пригодится 3 Посилання на коментар Поділитися на інших сайтах More sharing options...
irina1969 Опубліковано: 10 листопада 2013 Поділитись Опубліковано: 10 листопада 2013 и еще пока не забыла:D почему не сделали холодильник заподлицо с андресолью ?..там планируется какой-то декор поставить ? просто место гуляет и пыль скапливается Посилання на коментар Поділитися на інших сайтах More sharing options...
alexob Опубліковано: 10 листопада 2013 Автор Поділитись Опубліковано: 10 листопада 2013 почему не сделали холодильник заподлицо с андресолью ? что вы имеете ввиду "заподлицо" ? имеется ввиду по высоте подогнать по максимуму ближе? Может и подгоним, надо будет тогда точно знать модель холодильника и если захочем сменить, то уже теоретически могут быть проблемы. Посилання на коментар Поділитися на інших сайтах More sharing options...
mebli-land Опубліковано: 10 листопада 2013 Поділитись Опубліковано: 10 листопада 2013 Над холодильником должно оставаться свободное пространство для вентиляции, хотя бы 10см. 1 Посилання на коментар Поділитися на інших сайтах More sharing options...
irina1969 Опубліковано: 10 листопада 2013 Поділитись Опубліковано: 10 листопада 2013 Над холодильником должно оставаться свободное пространство для вентиляции, хотя бы 10см. это понятно, но там явно больше..дело вкуса хозяина Посилання на коментар Поділитися на інших сайтах More sharing options...
alexob Опубліковано: 10 листопада 2013 Автор Поділитись Опубліковано: 10 листопада 2013 это понятно, но там явно больше..дело вкуса хозяина это я пустил "смуту в ряды" выложил две последние фотки кухни из предпоследнего варианты, а там расстояние действительно больше. Реально будет как вот здесь а вот раскладка размеров, там как раз 11 см зазор 2 Посилання на коментар Поділитися на інших сайтах More sharing options...
VW2010 Опубліковано: 10 листопада 2013 Поділитись Опубліковано: 10 листопада 2013 Приветствую. Может, пока не поздно,добавить ещё одну розетку для уборки в автомобиле? Кстати, а сам пылесос уже присмотрели? Посилання на коментар Поділитися на інших сайтах More sharing options...
irina1969 Опубліковано: 10 листопада 2013 Поділитись Опубліковано: 10 листопада 2013 теперь моя душа спокойна Посилання на коментар Поділитися на інших сайтах More sharing options...
alexob Опубліковано: 10 листопада 2013 Автор Поділитись Опубліковано: 10 листопада 2013 Приветствую. Может, пока не поздно,добавить ещё одну розетку для уборки в автомобиле? думал об этом, и задавал вопрос когда ездил к ним. Спрашивал, а есть ли у них наружные розетки, сказали что нет, и что если поставить обычную, то уплотнительные резинки не будут долго жить и упадет герметичность, а соответственно и тяга А так бы бы поставил Кстати, а сам пылесос уже присмотрели? та пока если честно нет Посилання на коментар Поділитися на інших сайтах More sharing options...
vodinoy Опубліковано: 15 листопада 2013 Поділитись Опубліковано: 15 листопада 2013 Ну и дизайн гостиной-кухни а вот кухня поближе (но тут потолок немного другой, без балок) а сколько стоит сделать диз для дома, если не секрет(можно в личку) и кто вам эту красоту сделал (хочу себе тоже диз заказать) Посилання на коментар Поділитися на інших сайтах More sharing options...
Koskos Опубліковано: 16 листопада 2013 Поділитись Опубліковано: 16 листопада 2013 так всегда веселит рассматривать эти нежизненные - фантазийные - картинки дизайнеров на которых они лепят заказчику его будущее - светлое будущее... Хотя, с одной стороны, эти малюнки должны подействовать отрезвляюще на застройщика, имхо. И он, возможно, посчитав бюджет на реализацию задуманного дизайнеров внутри комнат, наконец-то поверит в расхожую фразу бывалых, что строительство коробки дома с крышей - это всего-навсего 15-20 проц от общей сметы домовладения... ТС - вы оху...те от стоимости реализации намалеванного у вас на картинках! В гостинной - опять же имхо - глаза, пардон за резкость, вылезут из орбит от такой близости дивана к экрану. ну вы же не будете там ставить 32ю диагональ, верно? 46-52 будет Барная стойка - глупость для такого маленького помещения. это вы фильмов про ньюйоркские квартиры насмотрелись - там все после работы пьют мартини с маслинкой на своих полубарных стойках и общаются неспешно...а у вас жена будет затиснута в узкой кухне из-за нее и не сможет нормально готовить для 2-х маленьких детей 2 Посилання на коментар Поділитися на інших сайтах More sharing options...
Zeland Опубліковано: 16 листопада 2013 Поділитись Опубліковано: 16 листопада 2013 Красота! Я восхищен дизайном) Посилання на коментар Поділитися на інших сайтах More sharing options...
vadimv Опубліковано: 16 листопада 2013 Поділитись Опубліковано: 16 листопада 2013 глаза, пардон за резкость, вылезут из орбит от такой близости дивана к экрану. ну вы же не будете там ставить 32ю диагональ, верно? 46-52 будетВ инструкциях к таким телекам пишут, что идеальным расстоянием до экрана является высота (не диагональ!) экрана, умноженная на 4. Посилання на коментар Поділитися на інших сайтах More sharing options...
Koskos Опубліковано: 16 листопада 2013 Поділитись Опубліковано: 16 листопада 2013 Красота! Я восхищен дизайном) Банально...типичный пример того, как визуализация делалась по фантазиям застройщика, имхо. Если ТС покажет эти картинки на профильной дизайнерской ветке, то профи его там засмеют. Белый с венге - позавчерашний день, глупые балки на потолке из стиля кантри, которые никоим образом не клеятся к стилю модерн...в общем стилистический прилизанный винигрет с блестками для ошарашенного обывателя из стандартной квартиры. Сорри за резкость суждений Добавлено через 1 минуту В инструкциях к таким телекам пишут, что идеальным расстоянием до экрана является высота (не диагональ!) экрана, умноженная на 4. возможно. у меня 52 и расстояние в 4 м до него...так иногда тяжело смотреть, особенно если идет быстрый экшн на экране. 5 Посилання на коментар Поділитися на інших сайтах More sharing options...
Zeland Опубліковано: 16 листопада 2013 Поділитись Опубліковано: 16 листопада 2013 На счет балок может быть Вы правы но в остальном не вижу ничего устаревшего..мне нравится Посилання на коментар Поділитися на інших сайтах More sharing options...
архітектор Опубліковано: 16 листопада 2013 Поділитись Опубліковано: 16 листопада 2013 в общем стилистический прилизанный винигрет с блестками для ошарашенного обывателя из стандартной квартиры. Полностью согласен, это винегрет чистой воды, причем его реализация в таком виде, как на картинке, я думаю намного превысит вложения в коробку. Уж эффективнее было бы тепловой насос поставить за такой бюджет. Эффект вау быстро пройдет, но хоть экономия на теплоснабжении бы осталась, а так - ни экономии, одни расходы на уборку и содержание в чистом виде этих интерьеров. Добавлено через 2 минуты Хотя, с одной стороны, эти малюнки должны подействовать отрезвляюще на застройщика, имхо. И он, возможно, посчитав бюджет на реализацию задуманного дизайнеров внутри комнат, наконец-то поверит в расхожую фразу бывалых, что строительство коробки дома с крышей - это всего-навсего 15-20 проц от общей сметы домовладения... Я думаю, одни санузлы обойдутся в 150 000-200 000 грн, чтобы вывести их из сегоняшнего состояния и довести до того, что на картинках. Это материалы и работа. Причем доля материалов будет процентов 70. Добавлено через 10 минут Красота! Я восхищен дизайном Как жаль, что так мало специалистов могут писать честно то, что думают и то, что есть объективной реальностью. Чем восхищаться? Отражениями и светопреломлениями? Дизайн, к сожалению, у нас пока очень плохо развит, из-за этого дизайном называют непонятно что, решающее непонятно какие задачи. Задачей номер раз для нормального специалиста должно быть доведение своего проекта до конца и получение хороших рекомендаций от заказчика. Для того, чтобы решить эту задачу надо хорошо ориентироваться в стоимости комплексного решения задачи. Пусть м2 плитки стоит 250 грн, но это же совсем не означает, что умножив цену на площадь стен получим стоимость отделки санузла, как на картинке. Потому что в цену должен входить весь комплекс, а не просто упакованные в коробки плитки. В данном случае тот, кто назвал себя дизайнером, явно не обсуждал с заказчиком реальную стоимость реализации. Сама задача дизайнеру, по моему мнению, должна ставиться так - "а ты сделаешь то, что нарисовал?" "за оговоренный бюджет, в оговоренном качестве, учтя все сопутсвующие проблемы?" Если ответ утвердительный, то дизайнер должен получить материальное вознаграждение соответствующее его профессионализму, страхующее его возможные риски. А так получается, что цена на визуализации не составляет и 3% от цены визуализированного. Не дай Бог что-то не состыкуется, отвечать будет просто нечем. Да в принципе, в данном случае, вопрос ответственности просто не ставился, как мне кажется. Добавлено через 6 минут Дизайнер-профи хочет хороших денег за такую адскую работу в 3dmax. У нас в основном берутся за такую работу девочки-студентки, которые сами не то что в доме не жили, даже ремонт себе в комнате не делали. Аналогично если бы купить какую-то дорогую тачку, типа Феррари с низкой посадкой, и поехать по раздолбаному асфальту в село где-нибудь в отдаленных лесах Черниговщины на плановый ТО. Меня еще удивил выход из лестницы со второго этажа прямо между диваном и телевизором. И камин, очаг которого упирается в торец дивана. 1 Посилання на коментар Поділитися на інших сайтах More sharing options...
alexob Опубліковано: 16 листопада 2013 Автор Поділитись Опубліковано: 16 листопада 2013 топик-стартер нервно курит в сторонке Люблю обоснованную критику. Спасибо Koskos, архитектор. Kirill_Dnepr Никогда не покупал ничего в Эпицентре - очень дорогой магазин. Добавлено через 9 минут Не пугайте раньше времени ТС, можно же помечтать немного, нельзя так резко - раз и на землю. Посчитает сколько стоит и все сам себе бысто в Эпицентре задизайнерит. поверьте, считал-пересчитывал. Знаю цену. Я скрупулезный человек. Даже знаю где купить все из того, что видите на картинке ! Эпицентр последнее место, где буду покупать - и это чисто из-за цены ! Вопрос же "вкусицы" и "безвкусицы" это как про фломастеры 2 Посилання на коментар Поділитися на інших сайтах More sharing options...
alexob Опубліковано: 16 листопада 2013 Автор Поділитись Опубліковано: 16 листопада 2013 когда какая-то ерундовина нужна поздно вечером на утро ну так это другой вопрос , ерунда - это совсем иное. Я имел ввиду дорогие покупки. Из ерундовых я там рукавицы строительные, сверло и т.п. покупал - ноу проблем, полезный магазин 2 Посилання на коментар Поділитися на інших сайтах More sharing options...
Реалист Опубліковано: 16 листопада 2013 Поділитись Опубліковано: 16 листопада 2013 ... И еще с возвратом не было ни разу вопросов - если платил наличкой, сразу деньги отдают в руки... По карточке тоже нет вопросов. Только нада оба чека и пару дней пока деньги на карточку вернуться. Посилання на коментар Поділитися на інших сайтах More sharing options...
Hopira Опубліковано: 16 листопада 2013 Поділитись Опубліковано: 16 листопада 2013 alexob, Как то "наляписто" все немного в дизайне получилось Оно и понятно - места мало и Вы пытаетесь его использовать по максимуму. Но диван можно и поменьше поставить, все же просторнее будет. Сори, имхо. Посилання на коментар Поділитися на інших сайтах More sharing options...
Zeland Опубліковано: 16 листопада 2013 Поділитись Опубліковано: 16 листопада 2013 Как жаль, что так мало специалистов могут писать честно то, что думают и то, что есть объективной реальностью. Чем восхищаться? Отражениями и светопреломлениями? Да я как-бы не профессионал в дизайне интерьера)) но преставление имею..да может что-то надо и усовершенствовать но в общем мне понравилось))..как говорят " на вкус и цвет товарищей нет")) Посилання на коментар Поділитися на інших сайтах More sharing options...
Рекомендовані повідомлення
Створіть акаунт або увійдіть у нього для коментування
Ви маєте бути користувачем, щоб залишити коментар
Створити акаунт
Зареєструйтеся для отримання акаунта. Це просто!
Зареєструвати акаунтУвійти
Вже зареєстровані? Увійдіть тут.
Увійти зараз