Ger@ Опубліковано: 15 грудня 2013 Поділитись Опубліковано: 15 грудня 2013 Ну с богом! Рано или поздно надо начинать, первые шаги сделаны, проект куплен, и пока зима определяюсь с материалами, может поменять чего, да и в принципе сейчас вопросов больше чем ответов . Проект Аргон куплен у компании ТМВ, простой, квадратный, вот собственно и его картинки. www.tmv.com.ua/proekty-domov-Argon?flip=1 4 Посилання на коментар Поділитися на інших сайтах More sharing options...
Ger@ Опубліковано: 15 грудня 2013 Автор Поділитись Опубліковано: 15 грудня 2013 Как мне когда-то говорил мой учитель "все простое - ГЕНИАЛЬНО!" поэтому был выбран проект пряпоугольной (правильной) формы. Понравился фасал самого дома, вернее сама задумка дизайнера, искал именно полноценный 2-х этажный вариант, планировка первого и второго этажей как на меня очень удачная. Немного перепланировал второй этаж, а именно добавил двери во втором санузле который между двумя детскими комнатами, две девочки - у них должен быть свой санузел. И добавил крышу над тирассой вместо просто досок (сорри не знаю как они правильно называются) которые были изначально видно на фото вида с зади. Одним словом на даном этапе мне все ОЧЕНЬ нравится. Посилання на коментар Поділитися на інших сайтах More sharing options...
Oleg8510 Опубліковано: 15 грудня 2013 Поділитись Опубліковано: 15 грудня 2013 Поздравляю проект хороший,но требует доработки как мне кажется.Четыре комина для такого дома будет многовато-можно обединить кое где,при том на кухне возле плиты вентиляции нет... Посилання на коментар Поділитися на інших сайтах More sharing options...
Natalita Опубліковано: 15 грудня 2013 Поділитись Опубліковано: 15 грудня 2013 Понравился Ваш проект,тоже выбрали проект этой фирмы www.tmv.com.ua/proekty-domov-Aplauz,правда не покупали у них а работали с архитектором.Удачи в дальнейшем! 1 Посилання на коментар Поділитися на інших сайтах More sharing options...
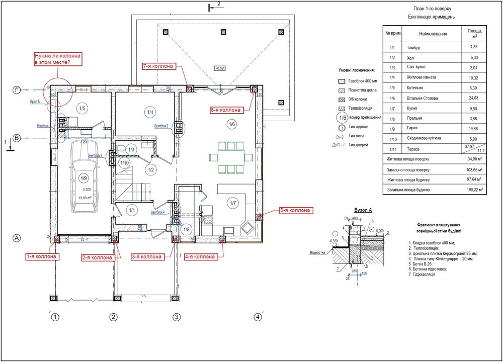
Ger@ Опубліковано: 15 грудня 2013 Автор Поділитись Опубліковано: 15 грудня 2013 (змінено) Стройка для меня это что-то новое, глаза разбегаются, что где когда как:D Вопросы с которыми я сейчас столкунулся: 1) материалы внешних стен и их будующая облицовка. Блин мне так понравилась дизайнерская задумка фасада самого дома что не хочу от нее отходить. Но полистав страници этого форума я вдруг для себя открыл что стены должны дышать. Сори совсем забыл указать, по проекту материал внешних стен - газоблок 400 мм. я так смотрю в сторону плотности Д400. И вот прежде чем купить этот самый ГБ хочу для себя понять, чем же его в дальнейшем (или сразу) облицевать. На сколько я понял Клинкерной плиткой типа Klinkergruppe - 20 мм газоблок олицовывать не желательно, или я что-то пропустил? Возможна ли реализация фасада как на картинке, и какой в этом случае должен быть пирог? Проектное решение в прикрепленных иллюстрациях внизу, но мне кажется что это немножко не то. Помогите плиз определиться с пирогом стены потому как это на прямую влияет на толщину фундамента (если облицововать кирпичем) ньюансы с кладкой самого облицовочного кирпича (я так понял лучше это делать одновременно с кладкой газоблока) оставляя воздушную прослойку. Но облицовочный кирпич это в последнюю очередь, если не на что правильно уложить клинкерную плитку. Но определиться надо сейчас, ну или до заливки фундамента. 2) материал внутренних стен лучше делать из кирпича или газоблока? По проекту газоблок 250 по несущей стене и 120 по перегородкам. и только в котельной и в санузлах кирпичные стены. 3) Монолит или жб перекрытия? По проекту монолит, везде. Я хочу между первым и вторым - монолит а между вторым и чердаком - дерево. Мои други отговарвают мну от монолита, я в раздумии одним словом, и все еще и потому что есть в одном углу кухни красивое окно которое разделяет угол стены первого этажа, мне это очень нравится НО! на сколько это безопасно? по проекту там предусмотренны колонны, в другом реализованом проекте подсмотрел решение - но они стопудово с монолитным перекрытием поскольку тогда и жесткость будет отличная. И если делать монолитное перекрытие то армопояс ненужен, я правильно понимаю? Змінено 15 грудня 2013 користувачем Ger@ Посилання на коментар Поділитися на інших сайтах More sharing options...
Ger@ Опубліковано: 15 грудня 2013 Автор Поділитись Опубліковано: 15 грудня 2013 Поздравляю проект хороший,но требует доработки как мне кажется.Четыре комина для такого дома будет многовато-можно обединить кое где,при том на кухне возле плиты вентиляции нет... Спасибо. На кухне возле плиты вентиляция есть, через прачечную, ну и это - плиту перенесли 1/8 - скорее всеже прачечная чем кладовая. 1/7 - кухня. А объеденить, я даже в недопонимании где? в гостинной камин, там нечего объеденять, вентканал с кухни тире прачечной - он-же и для санузла на втором этаже, вентканал из котельной проходит через гардеробную, вентканал санузла первого этажа - через детский санузел на втором этаже, как его объеденить с вентканалом в котельной и на сколько это правильно? Посилання на коментар Поділитися на інших сайтах More sharing options...
Natalita Опубліковано: 15 грудня 2013 Поділитись Опубліковано: 15 грудня 2013 монолит выходит намного дороже чем панели,здесь на форуме есть много тем по поводу цены,а угловые окна возможны только при монолитном перекрытии Посилання на коментар Поділитися на інших сайтах More sharing options...
Ger@ Опубліковано: 15 грудня 2013 Автор Поділитись Опубліковано: 15 грудня 2013 Вопросы с которыми я сейчас столкунулся: 3) Монолит или жб перекрытия? ...... 3.1) по проекту 7 коллон на первом этаже, в основном все возле большых проемов, нужна ли восьмая коллона в раене котельни? я к тому что ГБ даст усадку и не будет ли в раене котельни трещин? Может есть смысл установить 8-ю коллонну в котельне?, поскольку планируется монолитное перекрытие и в целом конструкция получится более жеще, или я уже преувеличиваю........ Само монолитное перекрытие обычно делается пустотелым или все-таки монолитным полностьтью заполненным? я к тому что на одном из сайтов наткнулся на фото перекрытия одного дома так там были вставленны между арматурой некие тубусы, на сколько это эффективно и практично? С одной стороны - уменьшение веса всего дома и меньшый расход бетона, а с другой стороны - на сколько это практично? Посилання на коментар Поділитися на інших сайтах More sharing options...
Ger@ Опубліковано: 15 грудня 2013 Автор Поділитись Опубліковано: 15 грудня 2013 монолит выходит намного дороже чем панели,здесь на форуме есть много тем по поводу цены,а угловые окна возможны только при монолитном перекрытии Да, я с Вами полностью согласен, в том что дороже, и листал страницы форума, но так и не понял на сколько дороже, хотя-бы в % соотношении. Посилання на коментар Поділитися на інших сайтах More sharing options...
loader Опубліковано: 15 грудня 2013 Поділитись Опубліковано: 15 грудня 2013 а угловые окна возможны только при монолитном перекрытиине только. тут на форуме есть Яспис где угловое окно и панельные перекрытия. конечно ТС поспешил купить проект, т.к. подобные вопросы и адаптация под пожелания/локальные возможности - это работа конструктора. т.е. сейчас прийдется либо следовать тем решениям что в проекте, либо искать альтернативные - вероятно стоит найти специалиста, который по основным моментам подскажет, либо самому основательно вникать - зима только началась ЗЫ. проект интересный, удачи в стройке. Добавлено через 18 минут Да, я с Вами полностью согласен, в том что дороже, и листал страницы форума, но так и не понял на сколько дороже, хотя-бы в % соотношении.Мне плиты на 130м.кв (26шт.) вышли 25к материал+ доставка/разгрузка, 1500 - работа по монтажу, 1500 - кран итого 28к. Монолит считал: Бетон - 20м3 = 18000, арматура - 6000. Работа(конкретной бригады) = 450грн/м3 = 9000, Кран = 2000 + Аренда опалубки - хз сколько, но думаю тыщи 3-4 не меньше. Итого - 39к примерно. Итого разница в 11к + технологически панели = 1день, монолит = неделя-две. Примеры расценок тут на форуме есть - посмотрите-посчитайте, думаю можно достаточно точно понять. 3 Посилання на коментар Поділитися на інших сайтах More sharing options...
Шаркер Опубліковано: 15 грудня 2013 Поділитись Опубліковано: 15 грудня 2013 Монолит неделя - две, а опалубка должна стоять месяц. Нам месяц аренды стоил 5500 грн. 115 кв.м. А еще есть статья расходов - доставка опалубки и ее разгрузка, а потом погрузка)) ИМХО если строить стены из газобетона, то облицевать кирпичом с вентзазором. Если облицевать плиткой, то смысл газобетона теряется. Под плитку лучше строить из кирпича или керам. блоков. 1 Посилання на коментар Поділитися на інших сайтах More sharing options...
MACTEP JIOMACTEP Опубліковано: 16 грудня 2013 Поділитись Опубліковано: 16 грудня 2013 3.1) по проекту 7 коллон на первом этаже, в основном все возле большых проемов, нужна ли восьмая коллона в раене котельни? я к тому что ГБ даст усадку и не будет ли в раене котельни трещин? Может есть смысл установить 8-ю коллонну в котельне?, поскольку планируется монолитное перекрытие и в целом конструкция получится более жеще, или я уже преувеличиваю........ Обычно колонны размещают в углах сооружения, на пересечениях стен и по краям больших проемов. В данном проекте все колонны смещены от осей, что однозначно приведет к возникновению усилия кручения в колоннах и балках. Не то, чтоб это было большой проблемой, но арматуры потребуется больше, и диаметр ее будет тоже больше - это все ваши деньги. А почему вы решили, что монолитное перекрытие жесткое? Оно вполне провиснет на 10-25 мм - это норма. Монолитное перекрытие - это самый неудачный вариант перекрытия - дорогое и тяжелое, уж лучше часторебристое - с пустотами. Само монолитное перекрытие обычно делается пустотелым или все-таки монолитным полностьтью заполненным? я к тому что на одном из сайтов наткнулся на фото перекрытия одного дома так там были вставленны между арматурой некие тубусы, на сколько это эффективно и практично? С одной стороны - уменьшение веса всего дома и меньшый расход бетона, а с другой стороны - на сколько это практично? Посмотрите на плиты перекрытий. Посмотрите на размер пустот. Посмотрите сколько там арматуры. И ведь нагрузку держит до 800 кг на м2. 1 Посилання на коментар Поділитися на інших сайтах More sharing options...
Ger@ Опубліковано: 16 грудня 2013 Автор Поділитись Опубліковано: 16 грудня 2013 Ребята, а кто что скажет по поводу такого решения? - Убрать угловое окно. - вместо него новое окно повторяющееся и симметрично окну на втором этаже. Я так подумал, что согласно размещению дома на участке угловое окно смотрит в забор, и от него будет толку - 0! а головной боли оно создает да и в цене всей реализации оно мне кажется будет Ого-го-го! И колонны 4 и 5 скорее всего делать не надо будет)) Кто что скажет по этому поводу! Посилання на коментар Поділитися на інших сайтах More sharing options...
Ger@ Опубліковано: 16 грудня 2013 Автор Поділитись Опубліковано: 16 грудня 2013 уж лучше часторебристое - с пустотами. Созвонился с терива, посмотрим что они предложат. Посилання на коментар Поділитися на інших сайтах More sharing options...
blacktigra Опубліковано: 16 грудня 2013 Поділитись Опубліковано: 16 грудня 2013 Ger@, флуд по поводу планировок еще уместен? Посилання на коментар Поділитися на інших сайтах More sharing options...
Ger@ Опубліковано: 16 грудня 2013 Автор Поділитись Опубліковано: 16 грудня 2013 Ger@, флуд по поводу планировок еще уместен? На данном этапе, на стадии изучения вопроса глобально - все уместно, потом будет поздно. Посилання на коментар Поділитися на інших сайтах More sharing options...
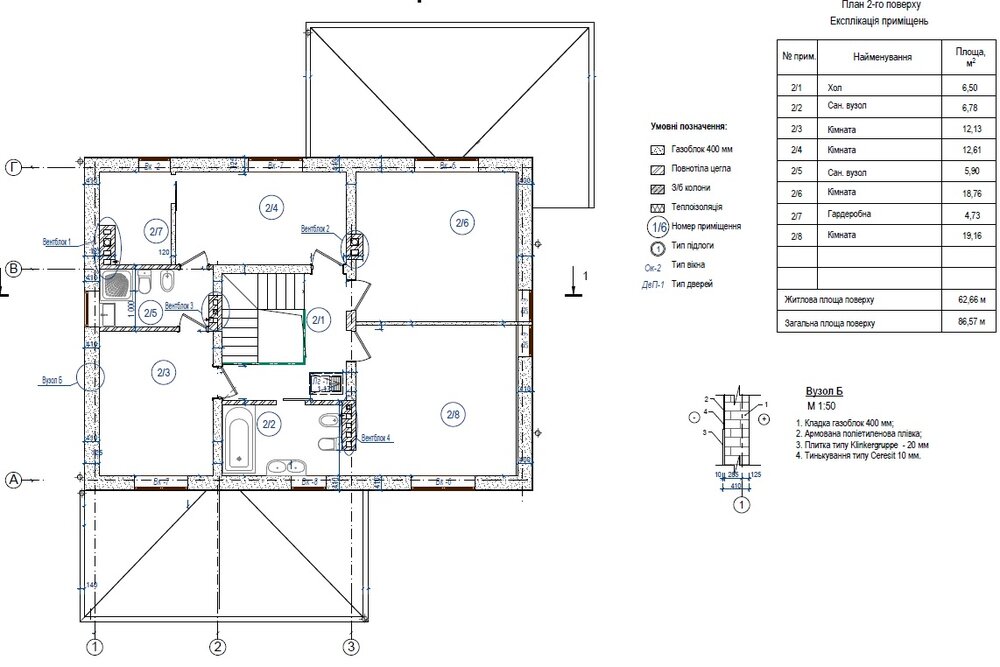
blacktigra Опубліковано: 16 грудня 2013 Поділитись Опубліковано: 16 грудня 2013 Перечитал еще раз, пару моментов вы уже сами поменяли. Не нашел место для гардеробной и шкафа для верхней одежды на первом этаже. Прихожая как-бы есть, но ее как-бы нет. Разве что в тамбуре возле наружной стены ставить. Котельная в конце гаража. Если там будет стоять машина то с учетом зеркал ширина для прохода остается примерно 50-60 см. С коробкой или чем-то габаритным в руках придется протискиваться. Или парковаться задом. По планировкам не совсем понятно как будете к канализации сантехприборы подключать на втором этаже. Такое ощущение будто сантехнику расставляли без привязки к местам размещения вент-блоков. Под вентблок в котельной придется отдельный фундамент предусматривать или выступ в ленте. Может проще сделать его в наружной стене утеплив дополнительно снаружи? 1 Посилання на коментар Поділитися на інших сайтах More sharing options...
Drosselbeere Опубліковано: 17 грудня 2013 Поділитись Опубліковано: 17 грудня 2013 Ребята, а кто что скажет по поводу такого решения? - Убрать угловое окно. - вместо него новое окно повторяющееся и симметрично окну на втором этаже.если вам нравится фасад без углового окна, так в чем проблема, убирайте. И колонны 4 и 5 скорее всего делать не надо будет))я бы еще выровнял бы фасад на первом этаже, там где тамбур, и тогда не делали бы колоны 1-3, а 7 и 8 под вопросом тоже, есть ли в них необходимость Добавлено через 1 минуту Созвонился с терива, посмотрим что они предложат.а пустотки уже прикинули? Посилання на коментар Поділитися на інших сайтах More sharing options...
Ger@ Опубліковано: 17 грудня 2013 Автор Поділитись Опубліковано: 17 грудня 2013 если вам нравится фасад без углового окна, так в чем проблема, убирайте. Мне нравится угловое оно! но если для его реализации цена вопроса более 10-20 К грн. (а это монолит, колонны) то думаю есть смысл угомониться. я бы еще выровнял бы фасад на первом этаже, там где тамбур Учитывая действительно весомые замечания от blacktigra, (не мог уснуть все мысли перли) именно эта идея и пришла в голову, не успел отписаться. Скорее всего увеличу тамбур за счет виравнивания фасада на первом этаже (убрать нишу). Тогда в третьей колоне нету необходимости, 1-ю и вторую скорее всего надо будет оставить, проем большой. на этом эще и сэкономлю немного. а пустотки уже прикинули? ??? Пустотки имеете в виду блоки терива? Так это-же жду от них комплексного предложения. Добавлено через 17 минут Под вентблок в котельной придется отдельный фундамент предусматривать или выступ в ленте. Может проще сделать его в наружной стене утеплив дополнительно снаружи? Я если чесно то думал об том что-бы засунуть его в наружную стену, встал вопрос разных материалов, разной усадки, соединения ГБ с кирпичем, и практичность всей этой задумки, подсмотрел на другом сайте. см. миниатюры. А фундамент под вентканал в котельней предусмотрен в ленте фундамента. Посилання на коментар Поділитися на інших сайтах More sharing options...
Ger@ Опубліковано: 17 грудня 2013 Автор Поділитись Опубліковано: 17 грудня 2013 Я если чесно то думал об том что-бы засунуть его в наружную стену, встал вопрос разных материалов, разной усадки, соединения ГБ с кирпичем, и практичность всей этой задумки, подсмотрел на другом сайте. см. миниатюры. Еще раз глянул на фото, и вопрос? а как-же армапояс? будет разрыв если вентканал монтировать в наружную стену! Посилання на коментар Поділитися на інших сайтах More sharing options...
MACTEP JIOMACTEP Опубліковано: 17 грудня 2013 Поділитись Опубліковано: 17 грудня 2013 а пустотки уже прикинули? Можно подумать, что ПКшки можно просто прикинуть, и вместо монолита разложить. Посилання на коментар Поділитися на інших сайтах More sharing options...
Drosselbeere Опубліковано: 17 грудня 2013 Поділитись Опубліковано: 17 грудня 2013 ??? Пустоткисборные пустотные плиты перекрытия Мне нравится угловое оно! но если для его реализации цена вопроса более 10-20 К грн.на одном объекте делали колону в уровень с окнами, тогда оставался эффект углового окна Посилання на коментар Поділитися на інших сайтах More sharing options...
Ger@ Опубліковано: 17 грудня 2013 Автор Поділитись Опубліковано: 17 грудня 2013 Не нашел место для гардеробной и шкафа для верхней одежды на первом этаже. Прихожая как-бы есть, но ее как-бы нет. Разве что в тамбуре возле наружной стены ставить. Гаддероб действительно трабл! знал об этом изначально и было принято оставить гардероб только детям. я мы уж наверное по старинке - шкафкупе. Тамбур действительно надо увеличить, писал выше. Котельная в конце гаража. Если там будет стоять машина то с учетом зеркал ширина для прохода остается примерно 50-60 см. С коробкой или чем-то габаритным в руках придется протискиваться. Или парковаться задом. Пока в раздумии, действительно прикинул 56 см! надо прикинуть на ровной местности прорисовать, и обдумать. По планировкам не совсем понятно как будете к канализации сантехприборы подключать на втором этаже. Такое ощущение будто сантехнику расставляли без привязки к местам размещения вент-блоков. Таки скорее всего Вы правы, щас обдумываю этот момент. хотя проект полный, с водоснабжением, отоплением, канализацией, надо разбираться! А Вообще ОГРОМНОЕ спасибо за Вашы замечания, они действительно для меня оказались ценными и полезными. Посилання на коментар Поділитися на інших сайтах More sharing options...
Ger@ Опубліковано: 17 грудня 2013 Автор Поділитись Опубліковано: 17 грудня 2013 С холлом вроде разобрался, вроде и место появилось Посилання на коментар Поділитися на інших сайтах More sharing options...
Ger@ Опубліковано: 17 грудня 2013 Автор Поділитись Опубліковано: 17 грудня 2013 Окно в кухне перерисовано. Как на меня то вроде так будет и бюджетнее и практичнее. ПС. если че не так нарисовано - не пинайте, потому как питаюсь перерисовать из тех файлов которые были в пдфе от архитекторов, благо они сохранили слои, и перевожу все это добро в корел, а дальше дело техники. Посилання на коментар Поділитися на інших сайтах More sharing options...
Рекомендовані повідомлення
Створіть акаунт або увійдіть у нього для коментування
Ви маєте бути користувачем, щоб залишити коментар
Створити акаунт
Зареєструйтеся для отримання акаунта. Це просто!
Зареєструвати акаунтУвійти
Вже зареєстровані? Увійдіть тут.
Увійти зараз