eam Опубліковано: 14 березня 2017 Поділитись Опубліковано: 14 березня 2017 наверное, рассмотрели фасады - что и как там? Да, фасады рассмотрел. У них на всех строениях одинаковые материалы используют но в разной комбинации. На маленьких домиках целиком - это дерево, типа планкена, но не такое широкое, выкрашеное в разные цвета и расположеное вертикально. Такое же дерево используется и на корпусах, но только в отделке колонн, подшивы и "фронтонов". Потом еще добавляют медь, ржавый металл и пр... Ну и сфоткал сваи, которые, скорее всего, используются в качестве фундамента для этих маленьких домиков (быстро, просто и никаких бетонных работ). Сейчас немного отдалюсь от темы, но понравилась идея отделки цоколя на больших корпусах - использование габионов толщиной где-то сантиметров 15. ЗЫ. А вообще своя стройка таки искажает восприятие окружающего мира, т.к. вместо спа и меню ресторана я больше смотрел на дизайн/выбор материалов/технические решения у домов и того же ресторана :D 8 Посилання на коментар Поділитися на інших сайтах More sharing options...
gid_8462 Опубліковано: 17 березня 2017 Поділитись Опубліковано: 17 березня 2017 Это двухэтажный домик простой финский парень построил своими руками. Говорит что на материалы потрачено 10,5 килобаксов, но я не верю. Основа его идеи в том, что до определенного размера дома не требуют никаких разрешений. Этим он и решил воспользоваться. Кто-то знает наверняка (со ссылкой на нормативный акт) что у нас можно строить без разрешения, кроме пасочек в песочнице? Дія статті 376 "Самочинне будівництво" глави 27 розділу 1 Цивільного кодексу України не поширюється на випадки розміщення на земельній ділянці об'єктів, які не пов'язуються із землею фундаментами і не визначаються законодавством нерухомістю (науково-практичний коментар до Цивільного кодексу України). Дякую за цікаву підбірку з цікавої теми. Щодо наших законів, то трейлер-дім не буде вважатися самочинним будівництвом. Доречі, повне заводське виготовлення. 1 Посилання на коментар Поділитися на інших сайтах More sharing options...
Ігор Опубліковано: 18 березня 2017 Поділитись Опубліковано: 18 березня 2017 В час глобального потепління: На жаль це вже нереально... Посилання на коментар Поділитися на інших сайтах More sharing options...
bambino Опубліковано: 18 березня 2017 Поділитись Опубліковано: 18 березня 2017 Щодо наших законів, то трейлер-дім не буде вважатися самочинним будівництвом. Доречі, повне заводське виготовлення. Трейлер все же узковат. А вот два трейлера, соединенные по длинной стороне - уже ничего. Посилання на коментар Поділитися на інших сайтах More sharing options...
Николай78 Опубліковано: 23 березня 2017 Автор Поділитись Опубліковано: 23 березня 2017 Норвегия. Для экономии пространства подъём на чердак организован по лестнице двухярусной кровати в одной из спален. Общая площадь дома 45 м2. 6 Посилання на коментар Поділитися на інших сайтах More sharing options...
Николай78 Опубліковано: 23 березня 2017 Автор Поділитись Опубліковано: 23 березня 2017 Маленькие домики. Топ 10. Февраль 2017. Подробнее тут: vk.com/wall-4981983_14369 2 Посилання на коментар Поділитися на інших сайтах More sharing options...
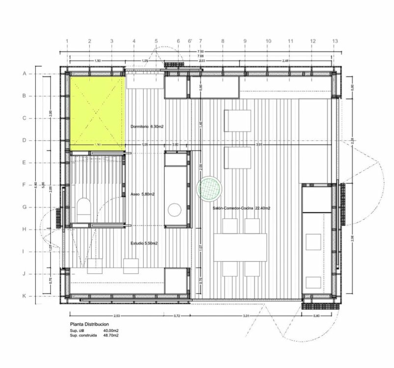
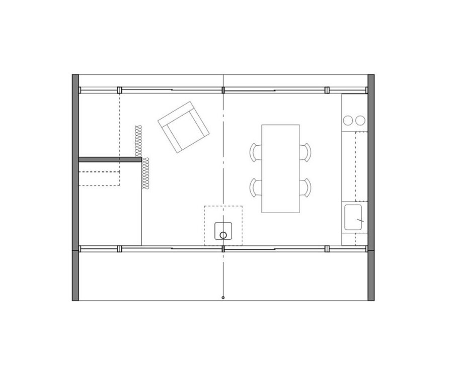
Igorias Опубліковано: 25 березня 2017 Поділитись Опубліковано: 25 березня 2017 Рендер и план. А есть детали по этому проекту? Может название? Посилання на коментар Поділитися на інших сайтах More sharing options...
Николай78 Опубліковано: 24 квітня 2017 Автор Поділитись Опубліковано: 24 квітня 2017 Маленькие домики. Топ 10. Март 2017. Подробнее тут: vk.com/wall-4981983_15078 2 Посилання на коментар Поділитися на інших сайтах More sharing options...
Николай78 Опубліковано: 15 травня 2017 Автор Поділитись Опубліковано: 15 травня 2017 Маленькие домики. Топ 10. Апрель 2017. Подробнее тут: vk.com/wall-4981983_15776 3 Посилання на коментар Поділитися на інших сайтах More sharing options...
Николай78 Опубліковано: 19 червня 2017 Автор Поділитись Опубліковано: 19 червня 2017 37 квадратных метров. 2 Посилання на коментар Поділитися на інших сайтах More sharing options...
Николай78 Опубліковано: 19 червня 2017 Автор Поділитись Опубліковано: 19 червня 2017 Лесная хижина 4 Посилання на коментар Поділитися на інших сайтах More sharing options...
Николай78 Опубліковано: 21 червня 2017 Автор Поділитись Опубліковано: 21 червня 2017 10 символов. 4 Посилання на коментар Поділитися на інших сайтах More sharing options...
Консильери Опубліковано: 21 червня 2017 Поділитись Опубліковано: 21 червня 2017 о, нашли Вечно забываю спросить - на кровле Kerabit 7 с трехгранной рейкой? Посилання на коментар Поділитися на інших сайтах More sharing options...
kruchenik Опубліковано: 21 червня 2017 Поділитись Опубліковано: 21 червня 2017 самое интересное как дерево стыкуется с кровлей... так чтобы дереву не мешать, и на голову не капало. Посилання на коментар Поділитися на інших сайтах More sharing options...
Татьяна5 Опубліковано: 21 червня 2017 Поділитись Опубліковано: 21 червня 2017 Вечно забываю спросить - на кровле Kerabit 7 с трехгранной рейкой? Нет, фальц Прушински Но трехгранную рейку тоже делали как то 1 Посилання на коментар Поділитися на інших сайтах More sharing options...
ДайтеДва Опубліковано: 22 червня 2017 Поділитись Опубліковано: 22 червня 2017 Лесная хижина Хижина... Це ж треба. Никогда б не назвал это строение ни хижиной, ни даже избушкой. На курьих ножках. ) Посилання на коментар Поділитися на інших сайтах More sharing options...
Николай78 Опубліковано: 22 червня 2017 Автор Поділитись Опубліковано: 22 червня 2017 Дом не такой уж и маленький (120 м) но очень лаконичный. 3 Посилання на коментар Поділитися на інших сайтах More sharing options...
Николай78 Опубліковано: 22 червня 2017 Автор Поділитись Опубліковано: 22 червня 2017 Дом из контейнеров. Посилання на коментар Поділитися на інших сайтах More sharing options...
Николай78 Опубліковано: 22 червня 2017 Автор Поділитись Опубліковано: 22 червня 2017 Хижина... Це ж треба. Никогда б не назвал это строение ни хижиной, ни даже избушкой. На курьих ножках. ) Сложно, знаете ли, натужно придумывать 10 символов каждый раз - архаичное обязательное требование форума к величине комментария. Картинки без комментария не приделываются. Посилання на коментар Поділитися на інших сайтах More sharing options...
Николай78 Опубліковано: 23 червня 2017 Автор Поділитись Опубліковано: 23 червня 2017 10 символов 1 Посилання на коментар Поділитися на інших сайтах More sharing options...
Николай78 Опубліковано: 23 червня 2017 Автор Поділитись Опубліковано: 23 червня 2017 Дом на холме. 2 Посилання на коментар Поділитися на інших сайтах More sharing options...
Николай78 Опубліковано: 3 липня 2017 Автор Поділитись Опубліковано: 3 липня 2017 10 символов 1 Посилання на коментар Поділитися на інших сайтах More sharing options...
Николай78 Опубліковано: 3 липня 2017 Автор Поділитись Опубліковано: 3 липня 2017 Радикальные методы экономии пространства. 4 Посилання на коментар Поділитися на інших сайтах More sharing options...
Николай78 Опубліковано: 4 липня 2017 Автор Поділитись Опубліковано: 4 липня 2017 10 символов. 4 Посилання на коментар Поділитися на інших сайтах More sharing options...
J.B. Опубліковано: 5 липня 2017 Поділитись Опубліковано: 5 липня 2017 В час глобального потепління: На жаль це вже нереально... Для відома форумчан, цей водоспад знаходиться в Україні, село Маліївці, того тижня тим був. Гугл в допомогу, там ще є цікавинки. 3 Посилання на коментар Поділитися на інших сайтах More sharing options...
Рекомендовані повідомлення
Створіть акаунт або увійдіть у нього для коментування
Ви маєте бути користувачем, щоб залишити коментар
Створити акаунт
Зареєструйтеся для отримання акаунта. Це просто!
Зареєструвати акаунтУвійти
Вже зареєстровані? Увійдіть тут.
Увійти зараз