Alex30 Опубліковано: 22 квітня 2009 Поділитись Опубліковано: 22 квітня 2009 Добрый день, уважаемые специалисты!! Хочу попросить Вас порекомендовать тип септика или что-то в этом роде. Прошу учитывать такой параметр, как цена! Скажем так: до 20 тыщ наших тугриков. Реально? Грунт - супесь и песок. Кол-во людей - максимум 3. Спасибо!) Схемку прилагаю. Хотел бы слышать о схематическом и конструктивном решении. СПАСИБО И дополнительно: скажите свое "ЗЯ" или "НИЗЗЯЯ" по поводу установок гринрок? www.greenrock.com.ua. Тока хоть не примите за рекламу. Мне как-то индиффирентно на данный момент что ставить, так как даже не знаю что ставить! Посилання на коментар Поділитися на інших сайтах More sharing options...
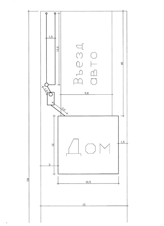
InSAn Опубліковано: 22 квітня 2009 Поділитись Опубліковано: 22 квітня 2009 Рисунок слишком маленький, чтобы о чем-то судить Посилання на коментар Поділитися на інших сайтах More sharing options...
Alex30 Опубліковано: 22 квітня 2009 Автор Поділитись Опубліковано: 22 квітня 2009 Рисунок слишком маленький, чтобы о чем-то судить Вот так подойдет? Уж прастите: чертежник с меня хреновый Посилання на коментар Поділитися на інших сайтах More sharing options...
Slava Опубліковано: 26 квітня 2009 Поділитись Опубліковано: 26 квітня 2009 Есть вариант на 20 тыщ грн. нормальных очистныхСмета септик аэротенк.doc Посилання на коментар Поділитися на інших сайтах More sharing options...
Alex30 Опубліковано: 27 квітня 2009 Автор Поділитись Опубліковано: 27 квітня 2009 Есть вариант на 20 тыщ грн. нормальных очистных Спасибо за отклик, но уже с первого взгляда у меня появился вопрос и претензия: реклама - это хорошо, но....: - со схемы, которую нарыл в тырнете поле для дренажа должно быть 15-20 м(как Вы помните у меня длинна от начала участка до края дома 18 метров)... А куда же мы всунем аэротэнк и септик? Да плюс дренажный колодец? - может все таки взгляните на схему участка и продумаете что-то более реальное (взяв размеры во внимание)? - или все таки я чего-то не понял? - за смету отдельное гран мерси... Цена - подходит Посилання на коментар Поділитися на інших сайтах More sharing options...
Korni Опубліковано: 27 квітня 2009 Поділитись Опубліковано: 27 квітня 2009 По чертежу вашему ничего не видно. Посмотрите (ссылка устарела) - может чем поможет.... У нас (ссылка устарела) 4,25 соток в городе, живёт три человека - (ссылка устарела) Ставил (ссылка устарела) Уже четвёртый буду брать (для друзей) 1 Посилання на коментар Поділитися на інших сайтах More sharing options...
Tavruxa Опубліковано: 27 квітня 2009 Поділитись Опубліковано: 27 квітня 2009 Ставил (ссылка устарела) Уже четвёртый буду брать (для друзей) Несложно ли будет Вам прокоментировать Вашу схему.., а то в альбоме несовсем понятно.... Я понял так: Септик - дренажный колодец (площадь?) - дренажная труба(длинна?) Аэротенка не увидел..... Как часто приходится откачивать септик? Посилання на коментар Поділитися на інших сайтах More sharing options...
Alex30 Опубліковано: 27 квітня 2009 Автор Поділитись Опубліковано: 27 квітня 2009 Несложно ли будет Вам прокоментировать Вашу схему.., а то в альбоме несовсем понятно.... Я понял так: Септик - дренажный колодец (площадь?) - дренажная труба(длинна?) Аэротенка не увидел..... Как часто приходится откачивать септик? Это не ко мне Это к kornю:D Посилання на коментар Поділитися на інших сайтах More sharing options...
Korni Опубліковано: 27 квітня 2009 Поділитись Опубліковано: 27 квітня 2009 Несложно ли будет Вам прокоментировать Вашу схему.., а то в альбоме несовсем понятно.... Я понял так: Септик - дренажный колодец (площадь?) - дренажная труба(длинна?) Аэротенка не увидел..... Как часто приходится откачивать септик? Я установил такой септик в 2006 году. В этом году собираюсь откачать ил. Ещё не откачивал Полезная информация с разных сайтов: (ссылка устарела) (ссылка устарела) (ссылка устарела) (ссылка устарела) (ссылка устарела) (ссылка устарела) 4 Посилання на коментар Поділитися на інших сайтах More sharing options...
Alex30 Опубліковано: 28 квітня 2009 Автор Поділитись Опубліковано: 28 квітня 2009 Я установил такой септик в 2006 году. В этом году собираюсь откачать ил. Ещё не откачивал Полезная информация с разных сайтов: (ссылка устарела) (ссылка устарела) (ссылка устарела) (ссылка устарела) (ссылка устарела) (ссылка устарела) ОГРОМНОЕ МЕРСИ за данный рисунок... Наконец-то я увидел ЧТО такое септик в природе))))) Но у меня есть несколько вопросов: - будет ли (есть ли) у вас дренажное поле - и выдерживаете ли вы длинну (20 м) этого дренажного поля? - есть какие-то соображения по поводу установки одного септика или технология предусматривает септик и другую бочку (чесно забыл как называеццо) Спасибо! Посилання на коментар Поділитися на інших сайтах More sharing options...
Korni Опубліковано: 28 квітня 2009 Поділитись Опубліковано: 28 квітня 2009 ОГРОМНОЕ МЕРСИ за данный рисунок... Наконец-то я увидел ЧТО такое септик в природе))))) Но у меня есть несколько вопросов: - будет ли (есть ли) у вас дренажное поле - и выдерживаете ли вы длинну (20 м) этого дренажного поля? - есть какие-то соображения по поводу установки одного септика или технология предусматривает септик и другую бочку (чесно забыл как называеццо) Спасибо! Вы, когда цитируете, рисунки удаляйте - дренажное поле у меня есть - длину не выдерживаю - у меня только септик. В принципе - процессы доочистки осуществляются или в "другой бочке" (куда, кстати, надо электрику подводить-насос), ИЛИ в дренажном поле. Это довольно подробно описано в статьях, ссылки на которые я вам дал. НАДО потратить время, согласен. Посилання на коментар Поділитися на інших сайтах More sharing options...
andrweld Опубліковано: 30 квітня 2009 Поділитись Опубліковано: 30 квітня 2009 Добрый день, уважаемые специалисты!! Хочу попросить Вас порекомендовать тип септика или что-то в этом роде. Прошу учитывать такой параметр, как цена! Скажем так: до 20 тыщ наших тугриков. Реально? Грунт - супесь и песок. Кол-во людей - максимум 3. Спасибо!) Схемку прилагаю. Хотел бы слышать о схематическом и конструктивном решении. СПАСИБО И дополнительно: скажите свое "ЗЯ" или "НИЗЗЯЯ" по поводу установок гринрок? www.greenrock.com.ua. Тока хоть не примите за рекламу. Мне как-то индиффирентно на данный момент что ставить, так как даже не знаю что ставить! Септик на 2 м3 предназначен для 4чел. по 150л/сутки на 1 чел. Дренаж расчитывается 12п.м. на 1 чел. - грунты супесь, суглинок, 8п.м.-песок. т.е. 3x8=24п.м. - 2ветки по 12п.м. Обеспечена выкачка септика 1 раз в 2-3года(оптимально). Если грунтовые воды близко, то септик якориться к ФБС-блокам. Септик очищает на 65%, доостка происходит в дренажном поле. При фильтрации через слой песка 1м - вода технически чистая. Монтаж очень прост, поэтому если есть строители на участке, то можете установить септик сами- это очень легко делается по инструкции по монтажу, расположенной на www.septik.com.ua/article/115/septiki.html. Септик Аэробной Доочистки(САД) можно применить для уменьшения дренажа в 3 раза, но цена сметы увеличиться вдвое. Также системы с САД применяются когда уровень грунтовых вод ближе 1м, большие объемы отвода сточных вод из дома. Будут вопросы, пишите. С уважением, Андрей ООО"Эколайн". 3 Посилання на коментар Поділитися на інших сайтах More sharing options...
Slava Опубліковано: 1 травня 2009 Поділитись Опубліковано: 1 травня 2009 Спасибо за отклик, но уже с первого взгляда у меня появился вопрос и претензия: реклама - это хорошо, но....: - со схемы, которую нарыл в тырнете поле для дренажа должно быть 15-20 м(как Вы помните у меня длинна от начала участка до края дома 18 метров)... А куда же мы всунем аэротэнк и септик? Да плюс дренажный колодец? - может все таки взгляните на схему участка и продумаете что-то более реальное (взяв размеры во внимание)? - или все таки я чего-то не понял? - за смету отдельное гран мерси... Цена - подходит Можно установить септик-аэротенк ( 5 м длина ) и две ветки трубы по 10 м - всего 15 м 1 Посилання на коментар Поділитися на інших сайтах More sharing options...
Alex30 Опубліковано: 1 травня 2009 Автор Поділитись Опубліковано: 1 травня 2009 Септик на 2 м3 предназначен для 4чел. по 150л/сутки на 1 чел. Дренаж расчитывается 12п.м. на 1 чел. - грунты супесь, суглинок, 8п.м.-песок. т.е. 3x8=24п.м. - 2ветки по 12п.м. Обеспечена выкачка септика 1 раз в 2-3года(оптимально). Если грунтовые воды близко, то септик якориться к ФБС-блокам. Септик очищает на 65%, доостка происходит в дренажном поле. При фильтрации через слой песка 1м - вода технически чистая. Монтаж очень прост, поэтому если есть строители на участке, то можете установить септик сами- это очень легко делается по инструкции по монтажу, расположенной на www.septik.com.ua/article/115/septiki.html. Септик Аэробной Доочистки(САД) можно применить для уменьшения дренажа в 3 раза, но цена сметы увеличиться вдвое. Также системы с САД применяются когда уровень грунтовых вод ближе 1м, большие объемы отвода сточных вод из дома. Будут вопросы, пишите. С уважением, Андрей ООО"Эколайн". Спасибо Андрей за исчерпывающий ответ и разьяснения!!! У меня к Вам вопрос: будетели Вы выставляться на Аква-Терме (или это не Вашего направления выставка)? Хотел все таки подъехать и некоторые моменты уточнить для себя...;) Посилання на коментар Поділитися на інших сайтах More sharing options...
andrweld Опубліковано: 1 травня 2009 Поділитись Опубліковано: 1 травня 2009 Спасибо Андрей за исчерпывающий ответ и разьяснения!!! У меня к Вам вопрос: будетели Вы выставляться на Аква-Терме (или это не Вашего направления выставка)? Хотел все таки подъехать и некоторые моменты уточнить для себя...;) Мы выставляемся на всех значимых строительных выставках на протяжение многих лет. Не исключение и Акватерм. Об этом имеется информация на нашем сайте. Обращайтесь. Будем рады помочь Вам. 1 Посилання на коментар Поділитися на інших сайтах More sharing options...
BrotherSam Опубліковано: 11 червня 2010 Поділитись Опубліковано: 11 червня 2010 Я установил такой септик в 2006 году. В этом году собираюсь откачать ил. Ещё не откачивал Полезная информация с разных сайтов: (ссылка устарела) (ссылка устарела) (ссылка устарела) (ссылка устарела) (ссылка устарела) Мега мерси за подробное руководство. Есть два вопроса и просьба: 1. Здесь дренажные трубы это фактически обычная канализационная труба покоцанная болгаркой. Так действительно можно делать? 2. здесь дренажное поле очень близко расположено к фундаменту забора. Забор не "плывет"? Как нужно устроить дренажное поле, чтобы над ним сделать пешеходную дорожку? 3. Ну и просьба - зацените мою схемку, может что-то получится оптимизировать или переделать. У меня уже есть временный колодец из двух метровых колец. Делал его для того, чтобы отопление запустить и руки помыть можно было, не более. Первое что видится - использовать его как смотровой колодец или можно придумать другое применение для метровых колец? Посилання на коментар Поділитися на інших сайтах More sharing options...
Korni Опубліковано: 11 червня 2010 Поділитись Опубліковано: 11 червня 2010 .... это фактически обычная канализационная труба покоцанная болгаркой....... Канализационная труба - это лучший вариант.... разрезами вниз, естественно. .....Забор не "плывет"? Как нужно устроить дренажное поле, чтобы над ним сделать пешеходную дорожку?...... Не плывёт (ссылка на изображение устарела) .....Как нужно устроить дренажное поле, чтобы над ним сделать пешеходную дорожку?...... Думаю, использование дренажных тоннелей - правильный способ (ссылка на изображение устарела) Посилання на коментар Поділитися на інших сайтах More sharing options...
Korni Опубліковано: 11 червня 2010 Поділитись Опубліковано: 11 червня 2010 .....Первое что видится - использовать его как смотровой колодец ..... Я бы использовал как смотровой колодец. Собственно, у себя так и сделал - получился "коммуникационный узел" : 1 Посилання на коментар Поділитися на інших сайтах More sharing options...
Romb Опубліковано: 25 липня 2013 Поділитись Опубліковано: 25 липня 2013 1.Откачка осадка 1 раз в 3 месяца – обслуживание системы – 8 000грн. за 5лет QUOTE Вы себя с выгребной ямой сравниваете? Добавлено через 1 минуту 1.Замена ремонтного комплекта 1 раз в год – не менее 1500грн (чаще предлагают цену дороже). в год, итого 7500 Что имеете ввиду под ремонтным комплектом? Добавлено через 2 минуты Автономная канализация FAST не требует консервации,если Вы уезжаете надолго систему можно просто отключить от электричества. Ваши бактерии живут без кислорода? Тогда Вам в нобелевский комитет. 1 Посилання на коментар Поділитися на інших сайтах More sharing options...
Игорь&Ира Опубліковано: 25 липня 2013 Поділитись Опубліковано: 25 липня 2013 Ваши бактерии живут без кислорода? Тогда Вам в нобелевский комитет. Анаэробы. Дайте адрес комитета. Посилання на коментар Поділитися на інших сайтах More sharing options...
Romb Опубліковано: 25 липня 2013 Поділитись Опубліковано: 25 липня 2013 Система FAST не требует сервисного обслуживания! Perpetuum mobile !!!! Добавлено через 6 минут Анаэробы. Дайте адрес комитета. Учите мат. часть системы. "3 - нагнетательный вентилятор подающий воздух для эффективной циркуляции сточных вод в системе; 4 - модуль Фаст. Обычная ЛОС. + САД. К сожалению ничего ноу-хавного. Посилання на коментар Поділитися на інших сайтах More sharing options...
valeriy123 Опубліковано: 25 липня 2013 Поділитись Опубліковано: 25 липня 2013 Обычная ЛОС. К сожалению ничего ноу-хавного.Да, в этой штуке больше вопросов чем ответов. И первым вопросом - а для чего нужна. По септикам лучше почитать А.Ратникова, или сходить к нему ветку в форуме и задать вопросы. А такие штуковины предназначены для доочистки и просветления сброса, законодательство некоторых стран требует. В данном конкретном случае, изделие только каламутит ил септика, принося больше вреда чем пользы. (Ну чисто мое мнение). Посилання на коментар Поділитися на інших сайтах More sharing options...
Romb Опубліковано: 25 липня 2013 Поділитись Опубліковано: 25 липня 2013 Одна из многих на рынке. Не хуже-не лучше. Не найдется человека, который бы смог сравнить исходя из опыта пользования. А принцип один. Загрузки разные для бактерий. Кто чего придумал. Но суть одна, большая площадь жилья для бактерий и энергозависимость. Вопрос только в цене. 1 Посилання на коментар Поділитися на інших сайтах More sharing options...
valeriy123 Опубліковано: 25 липня 2013 Поділитись Опубліковано: 25 липня 2013 Не хуже-не лучше.Немного не согласен. Это предлагают установить в существующую используемую выгребную яму. Как это можно сделать не говорят. Ну в общем ересь какая то. Может просто не знают - для чего это. Посилання на коментар Поділитися на інших сайтах More sharing options...
Эко Жизнь Опубліковано: 25 липня 2013 Поділитись Опубліковано: 25 липня 2013 Это предлагают установить в существующую используемую выгребную яму. Как это можно сделать не говорят. Ну в общем ересь какая то. Может просто не знают - для чего это. Рассказываете какая У ВАС Яма - Мы подсказываем как туда поставить очищающий блок. 2 Посилання на коментар Поділитися на інших сайтах More sharing options...
Рекомендовані повідомлення
Створіть акаунт або увійдіть у нього для коментування
Ви маєте бути користувачем, щоб залишити коментар
Створити акаунт
Зареєструйтеся для отримання акаунта. Це просто!
Зареєструвати акаунтУвійти
Вже зареєстровані? Увійдіть тут.
Увійти зараз