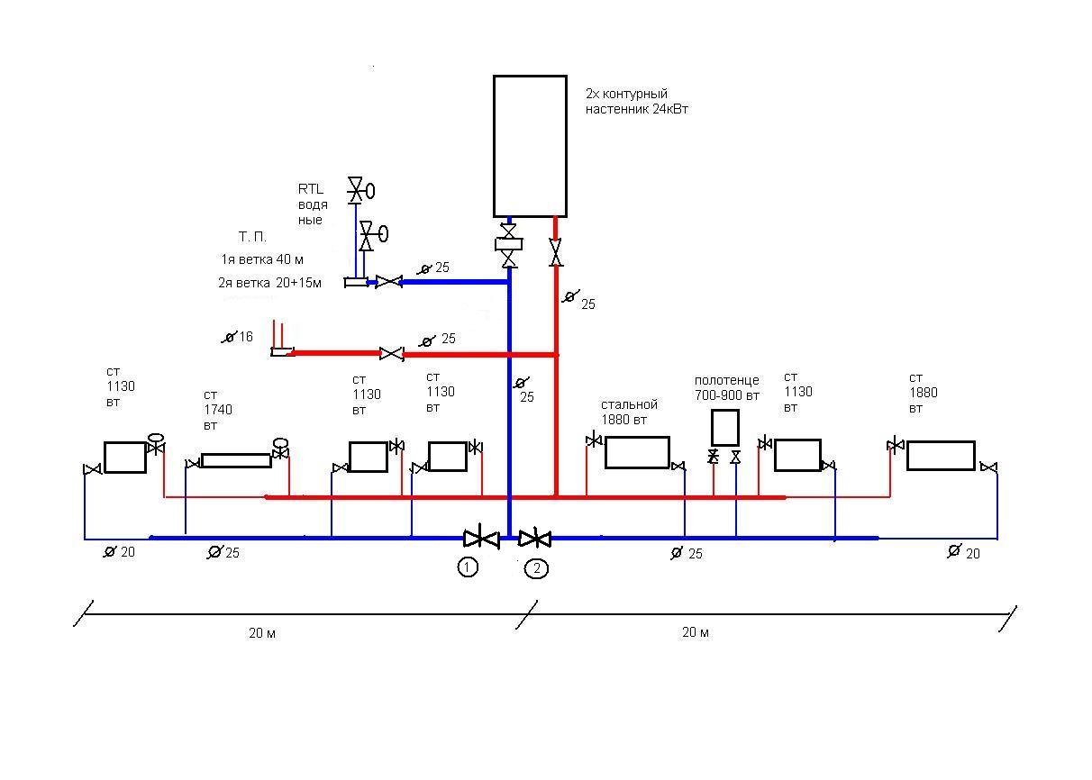
yriy1 Опубліковано: 20 травня 2014 Поділитись Опубліковано: 20 травня 2014 Всем доброго здоровья! Нарисовал схему СО для дома (100м2) Разводка СО двухтрубка. Вентили 1; 2; 3 регулировочные. Котелок двухконтурный 24кВт Нужна консультация разбирающихся товарищей возникло ряд вопросов: 1. Можно ли так подключить Т.П. ? 2.Подводы к радиаторам д.20 нормально? 3. Переход с д.25 на д.20 перед последним радиатором ? 4.А может перенести рег. вентили и термоголовки на самих радиаторах с подачи на обратку ? Всем спасибо! Посилання на коментар Поділитися на інших сайтах More sharing options...
naupv Опубліковано: 20 травня 2014 Поділитись Опубліковано: 20 травня 2014 ряд вопросов Вентили не обязательны. Регулировка (балансировка) выполняется отсекающими вентилями на радиаторах. 1.Можно, но не нужно. Чем управлять будете ТП когда обратка будет 50грд? 2.Я так понял это ППР? тогда нормально. 3.А как представляете? Идти к радиатору 25? У предпоследнего радиатора тройник 25х20х20. 4.Зачем? Есть схемы отопления, которые придуманы годами и работают на ура. Зачем что то новое выдумывать, а потом просить помощи почему не работает? 1 Посилання на коментар Поділитися на інших сайтах More sharing options...
SON Опубліковано: 20 травня 2014 Поділитись Опубліковано: 20 травня 2014 Подключение ТП измените, так плохо. Или ставьте РТЛ-ки или узел подмеса. 1 Посилання на коментар Поділитися на інших сайтах More sharing options...
yriy1 Опубліковано: 20 травня 2014 Автор Поділитись Опубліковано: 20 травня 2014 3.А как представляете? Идти к радиатору 25? У предпоследнего радиатора тройник 25х20х20. не пойму к последнему радиатору в ветке идти 20й или 25й Посилання на коментар Поділитися на інших сайтах More sharing options...
naupv Опубліковано: 20 травня 2014 Поділитись Опубліковано: 20 травня 2014 не пойму к последнему радиатору в ветке идти 20й или 25й Как Вы себе представляете подключение радиатора 25 трубой? Представляете себе тот набалдашник МРН у крана? Посилання на коментар Поділитися на інших сайтах More sharing options...
yriy1 Опубліковано: 20 травня 2014 Автор Поділитись Опубліковано: 20 травня 2014 Как Вы себе представляете подключение радиатора 25 трубой? Представляете себе тот набалдашник МРН у крана? к радиаторам подвод 20й однозначно я о магистрали. О вентилях на радиаторе на подаче где то слышал если прикручивать то может теплоноситель издавать шум ? Посилання на коментар Поділитися на інших сайтах More sharing options...
yriy1 Опубліковано: 20 травня 2014 Автор Поділитись Опубліковано: 20 травня 2014 Подключение ТП измените, так плохо. Или ставьте РТЛ-ки или узел подмеса. Спасибо за отзыв схему Т.П. изменил. А ещё замечания есть? Посилання на коментар Поділитися на інших сайтах More sharing options...
naupv Опубліковано: 20 травня 2014 Поділитись Опубліковано: 20 травня 2014 О вентилях на радиаторе на подаче где то слышал если прикручивать то может теплоноситель издавать шум ? Без вентиля и радиатор не снимешь. Посилання на коментар Поділитися на інших сайтах More sharing options...
SON Опубліковано: 20 травня 2014 Поділитись Опубліковано: 20 травня 2014 схему Т.П. изменил. Контура ТП по 15 и 20 метров можно соединить последовательно, одну РТЛ-ку сэкономите. К коллекторам ТП 25 трубой. Краны 1 и 2 исключите, система балансируется краниками на обратке радиаторов. Посилання на коментар Поділитися на інших сайтах More sharing options...
yriy1 Опубліковано: 21 травня 2014 Автор Поділитись Опубліковано: 21 травня 2014 Контура ТП по 15 и 20 метров можно соединить последовательно, одну РТЛ-ку сэкономите. К коллекторам ТП 25 трубой. Краны 1 и 2 исключите, система балансируется краниками на обратке радиаторов. Спасибо вношу изменения. Советуют поставить дополнительную группу безопасности на котёл -думаю лишнее в котле всё есть. А на гребёнку Т.П. ставить воздухоотводчик автомат или нет ? Посилання на коментар Поділитися на інших сайтах More sharing options...
Interso Опубліковано: 21 травня 2014 Поділитись Опубліковано: 21 травня 2014 Спасибо вношу изменения. Советуют поставить дополнительную группу безопасности на котёл -думаю лишнее в котле всё есть. А на гребёнку Т.П. ставить воздухоотводчик автомат или нет ? Да воздушники автоматы ставить обязательно. Краны на левое и правое крыло желательно вернуть,их ставят не для балансировки а для того чтобы можно было произвести ремонт без слива теплоносителя из всей системы. Посилання на коментар Поділитися на інших сайтах More sharing options...
yriy1 Опубліковано: 21 травня 2014 Автор Поділитись Опубліковано: 21 травня 2014 Да воздушники автоматы ставить обязательно. Краны на левое и правое крыло желательно вернуть,их ставят не для балансировки а для того чтобы можно было произвести ремонт без слива теплоносителя из всей системы. Раз вернуть возвращаем только на обр. поставлю регулируемые. А есть ли еще замечания и как с трубой хочу экопластик не знаю штаби плюс или базальт плюс Посилання на коментар Поділитися на інших сайтах More sharing options...
Interso Опубліковано: 21 травня 2014 Поділитись Опубліковано: 21 травня 2014 Раз вернуть возвращаем только на обр. поставлю регулируемые.Представьте себе такую ситуацию что вам нада заменить кран радиатора на подаче,либо труба лопнула или пробили или нада что-то изменить с разводкой труб,тогда что получается, вся система останавливается только из за того что вы непоставили два крана на подачу. А есть ли еще замечания и как с трубой хочу экопластик не знаю штаби плюс или базальт плюс Трубу нада ставить только армированную алюминием. Посилання на коментар Поділитися на інших сайтах More sharing options...
yriy1 Опубліковано: 21 травня 2014 Автор Поділитись Опубліковано: 21 травня 2014 Представьте себе такую ситуацию что вам нада заменить кран радиатора на подаче. На подаче котла перекрою там от этого крана до разветвления 0.9 метра С алюминием это штаби плюс а чем базальт плох? А можна поставить один RTL на Т.П. за гребёнкой обратки? Посилання на коментар Поділитися на інших сайтах More sharing options...
Interso Опубліковано: 21 травня 2014 Поділитись Опубліковано: 21 травня 2014 а чем базальт плох? Степенью удлиннения. А можна поставить один RTL на Т.П. за гребёнкой обратки? Можно.Только в этом случае у вас теряется независимость регулировки температуры контуров. Посилання на коментар Поділитися на інших сайтах More sharing options...
yriy1 Опубліковано: 21 травня 2014 Автор Поділитись Опубліковано: 21 травня 2014 Степенью удлиннения. Спасибо. Это наверное из практического опыта. Производитель даёт одинаковое удлинение на алюминий и базальт Посилання на коментар Поділитися на інших сайтах More sharing options...
Interso Опубліковано: 21 травня 2014 Поділитись Опубліковано: 21 травня 2014 Спасибо. Это наверное из практического опыта. Производитель даёт одинаковое удлинение на алюминий и базальт Такого просто напросто по природе не может быть, я как-то смотрел тех.характеристики и они не слишком отличаются стекловолокно и базальт а разница между алюминием сплошным не перфорированным очень большая. Посилання на коментар Поділитися на інших сайтах More sharing options...
4587derek Опубліковано: 21 травня 2014 Поділитись Опубліковано: 21 травня 2014 зачем там 25 труба на 20 метров длинны? там фитинги как рука в диаметре. рассмотрите вариант медь 15 мм, тем более что в котле внутри радиатор обвязан 18мм медью. У меня 60м2 веранда, 5 радиаторов, вся магистраль медь 15мм, уже 12 лет работает. Посилання на коментар Поділитися на інших сайтах More sharing options...
Dima75230 Опубліковано: 21 травня 2014 Поділитись Опубліковано: 21 травня 2014 Спасибо. Это наверное из практического опыта. Производитель даёт одинаковое удлинение на алюминий и базальт У них сейчас для отопления появилась новая труба - ТЕРМ плюс. Отличие от файбер базальт - наличие кислородного барьера. Но что-то не видно её в продаже. Посилання на коментар Поділитися на інших сайтах More sharing options...
yriy1 Опубліковано: 21 травня 2014 Автор Поділитись Опубліковано: 21 травня 2014 зачем там 25 труба на 20 метров длинны? там как рука в диаметре. рассмотрите вариант медь 15 мм, тем более что в котле внутри радиатор обвязан 18мм медью. У меня 60м2 веранда, 5 радиаторов, вся магистраль медь 15мм, уже 12 лет работает. Медь вроде сейчас по цене золота а спаять еще плюс за работу немалый. А ппр и сам могу спаять. Хотя посмотрев это задумываюсь про сталь www.stroimdom.com.ua/forum/showthread.php?t=145800 Посилання на коментар Поділитися на інших сайтах More sharing options...
4587derek Опубліковано: 22 травня 2014 Поділитись Опубліковано: 22 травня 2014 медь паять проще чем ППР, косяков меньше. Посилання на коментар Поділитися на інших сайтах More sharing options...
Interso Опубліковано: 22 травня 2014 Поділитись Опубліковано: 22 травня 2014 медь паять проще чем ППР, косяков меньше. В каждом деле есть свои нюансы,если к делу относится серьёзно и с любовью то везде будет качественно и красиво. 1 Посилання на коментар Поділитися на інших сайтах More sharing options...
yriy1 Опубліковано: 22 травня 2014 Автор Поділитись Опубліковано: 22 травня 2014 предлагают арматуру словарм как она? Посилання на коментар Поділитися на інших сайтах More sharing options...
yriy1 Опубліковано: 23 травня 2014 Автор Поділитись Опубліковано: 23 травня 2014 У них сейчас для отопления появилась новая труба - ТЕРМ плюс. Отличие от файбер базальт - наличие кислородного барьера. Но что-то не видно её в продаже. вот здесь все диллеры в продаже любая труба и ТЕРМ плюс ekoplastik.ua/hde-kupyt/ Добавлено через 3 минуты Сегодня пришли два монтажника СО и говорят радиаторная система это прошлый век в новых домах радиаторами никто не обогревается. Как Вам это заявление? 1 Посилання на коментар Поділитися на інших сайтах More sharing options...
Сергей 31 Опубліковано: 23 травня 2014 Поділитись Опубліковано: 23 травня 2014 Сегодня пришли два монтажника СО и говорят радиаторная система это прошлый век в новых домах радиаторами никто не обогревается. Как Вам это заявление? А Вы их сюда к нам пригласите. На форуме любая дурь видна моментально. Посилання на коментар Поділитися на інших сайтах More sharing options...
Рекомендовані повідомлення
Створіть акаунт або увійдіть у нього для коментування
Ви маєте бути користувачем, щоб залишити коментар
Створити акаунт
Зареєструйтеся для отримання акаунта. Це просто!
Зареєструвати акаунтУвійти
Вже зареєстровані? Увійдіть тут.
Увійти зараз