URA-YURA Опубліковано: 7 липня 2016 Автор Поділитись Опубліковано: 7 липня 2016 День добрый, Уважаемые! Кратко опишу итоги последних недель. Завершили кладочные работы по коробке на 98% (газоблок, кирпич). Не доложили сотни 2 кирпича в простенках и фронтоны. Кирпич ложили на известково-цементный раствор. Залили армопояс на отметке верха +2.700. Расчитался за работу с рабочими. Доволен и бригадой и их работой. Хлопцы уехали на побывку. Как говорят "дела говорят лучше слов", поэтому опишу одно "дело" моей бригады: 1. Спрашивают разрешения: "Хозяин, разрешите отлучиться в субботу на проводы?" 2. Думаю: "Проводы - это мечта любого мужика, кроме провожаемого ;) ;( сам бы желал там быть ;). Не отпущу - какая работа из-под палки и без вдохновения?" Говорю: "Давайте хлопцы, но чтобы к отбою были на объекте!!!" 3. К отбою хлопцы на объекте!!! Вдумайтесь в сей факт ;) 4. В воскресенье мои "западенцы" работали весь день. 5. Спрашиваю выконроба - что случилось? ;) Он говорит - просто они решили отработать за субботу. No comments ;) 14 Посилання на коментар Поділитися на інших сайтах More sharing options...
Шерлок Холмсенко Опубліковано: 7 липня 2016 Поділитись Опубліковано: 7 липня 2016 Кирпич ложили на известково-цементный раствор. Поделитесь, пожалуйста, пропорцией раствора. 1 Посилання на коментар Поділитися на інших сайтах More sharing options...
URA-YURA Опубліковано: 8 липня 2016 Автор Поділитись Опубліковано: 8 липня 2016 Поделитесь, пожалуйста, пропорцией раствора. Добрый день, Шерлок Холмсенко, делали 2 типа раствора: а) теплый известково-цементно-перлитовый на ПЦ-400 пропорцией 1:1,6:2,5:1,24:0,6 (цемент : перлит : песок : вода : известковое тесто) чтобы выйти на кладочный раствор М50 - 75 для одноэтажных зданий. Известковое тесто брал в мешках 25 кг. на анжио. На каждую бетономешалку добавлял 30 мл. воздухо-вовлекающей добавки сика микс плюс (раньше об этом писал). б) простой известково-цементный раствор делали на ПЦ-400 пропорцией 1:0,5:5,5 (цемент : известковое тесто : песок) чтобы выйти на кладочный раствор М50 - 75. Пропорция - это важно, но вторично. Первично - это кто делает раствор на бетономешалке ;) 5 Посилання на коментар Поділитися на інших сайтах More sharing options...
qawsed12qawse Опубліковано: 8 липня 2016 Поділитись Опубліковано: 8 липня 2016 Добрый вечер. А зачем 2 типа растворов? В смысле перлит с его 500% водопоглощением ? Или вы его гидрофобизировали в процессе замеса? Посилання на коментар Поділитися на інших сайтах More sharing options...
URA-YURA Опубліковано: 10 липня 2016 Автор Поділитись Опубліковано: 10 липня 2016 Добрый день, Уважаемые. 2 недели назад наш старший сын ездил в христианский лагерь-поход в Закарпатье в составе компании 18 подростков и 5 взрослых. В число этих 5 входили и мы с женой. Поезд, плацкарт, станция Ясыня (не доезжая до Рахова), советская машина с ВЫСОКИМ клиренсом и полным приводом и уазик поднимают нас на Драгобрат и ... ливень... слава Богу, это закончилось, разбили палатки, развели костер, поели и пошло-поехало. В двух словах: людей не видно, есть лишь небо, есть горы, леса и кустарники (как в идеально ухоженном ботаническом саду), свежий, глубокий и влажный, а в 15 минутах горный ручей - из него пили воду... Елки (правильнее сказать смереки - жуть какие красивые и огромные). Иногда рядом проходили череды и отары. Детей водили в походы сертифицированные экскурсоводы из числа наших 5 взрослых. Иногда удавалось купить молоко и сыр. На обратном пути купили меда. Это было супер. Питались все вместе. 6 дней на семью из 5 человек с питанием и дорогой до 3000 гривен. Хочется еще раз сюда приехать и привезти надад литров 15 горного меда. Один из взрослых (она) живет с мужем в Гнедыне как-то однажды после обеда сказала: "...пойду выкопаю пару елок... но небольшие - чтобы принялись..." Я с сыном пристали и сделали так же - с землей выкопали пару смерек и хвойных кустарников, а затем высадили и продолжаем усердно поливать. вот так (там) мы и жили нам встретился барашек Шон покорители горы Близница июльский снег в горах ночная феерия елочка после высадки кустарник на участке Вот такие у нас вышли походы и елки ;) слава Богу! 11 Посилання на коментар Поділитися на інших сайтах More sharing options...
Mikloshill Опубліковано: 10 липня 2016 Поділитись Опубліковано: 10 липня 2016 Молодцы что находите время на отдых. А там уже и Ужгород недалеко... 1 Посилання на коментар Поділитися на інших сайтах More sharing options...
-electron- Опубліковано: 11 липня 2016 Поділитись Опубліковано: 11 липня 2016 На оленячу фермуне їздили? Це майже поруч в Хусті. Ферма варта відвідин. Особливо годівля оленів з рук. Вони прикольно кланяються коли сухарі просять. І в Синевір до ведмедиків. 2 Посилання на коментар Поділитися на інших сайтах More sharing options...
URA-YURA Опубліковано: 11 липня 2016 Автор Поділитись Опубліковано: 11 липня 2016 На оленячу фермуне їздили? Це майже поруч в Хусті. Ферма варта відвідин. Особливо годівля оленів з рук. Вони прикольно кланяються коли сухарі просять. І в Синевір до ведмедиків. Никак нет ;) На обратном пути мы были обвешаны рюкзаками и это был самый жаркий день в истории Украины... Не о том думали тогда - попить бы да остыть Посилання на коментар Поділитися на інших сайтах More sharing options...
URA-YURA Опубліковано: 15 липня 2016 Автор Поділитись Опубліковано: 15 липня 2016 День добрый Вчера перекрылся плитами перекрытия, сразу забросили на ПК газоблок, клей и кирпич для коменов. Сегодня чеканить, анкерить итд. Планировал брать лес в лестничестве - не выходит - пильщики в отпуск идут - каже вождь: "Юра, не візьму заказ, вибачай, шоб не підвести, або вже після відпустки - але тобі не підійде." Поэтому вчера заказал лес на пилораме. По общению с пилорамами чувствуется неумолимость сезона крыш ;) кто раньше - тому и дешевле лес обойдется. Но тут нужен баланс - с пилорамы сразу его на антисептирование и через день-два поднимать на крышу ;) А сухой вылежавшийся может повести. 2 Посилання на коментар Поділитися на інших сайтах More sharing options...
StNick Опубліковано: 15 липня 2016 Поділитись Опубліковано: 15 липня 2016 с пилорамы сразу его на антисептирование и через день-два поднимать на крышу ;) А сухой вылежавшийся может повести. Как это плланируете делать? 2 Посилання на коментар Поділитися на інших сайтах More sharing options...
S1LENCE Опубліковано: 15 липня 2016 Поділитись Опубліковано: 15 липня 2016 Але з іншої сторони - краще робити антисептування сухому лісу, щоб хімія впитувалася в дерево. А коли дерево насичене вологою, то куди там хімії ще поміститись 1 Посилання на коментар Поділитися на інших сайтах More sharing options...
URA-YURA Опубліковано: 15 липня 2016 Автор Поділитись Опубліковано: 15 липня 2016 (змінено) Как это плланируете делать? Приняли на участке, окунаем в траншею с гладиатором, вынимаем, складируем Главное чтобы без коры лес был, биозащита итд это уже потом Змінено 15 липня 2016 користувачем URA-YURA Посилання на коментар Поділитися на інших сайтах More sharing options...
URA-YURA Опубліковано: 29 липня 2016 Автор Поділитись Опубліковано: 29 липня 2016 Вечер добрый, ура - встречаем вечер пятницы!!! ;) Вкратце опишу сделанную работу за последнее время: 1. Замонолитили примерно 20 м2 перекрытия в дополнение к плитам перекрытий (возле коменов и проема на чердак - в плитах перекрытий дырок не делали). 2. Залили 2 утепленные бетонные балки со шпильками для крепления мауэрлатов. 3. Выложили 1 большой комен с вентиляционными каналами из полнотелого кирпича. 4. Приступили к кладке 2 меньших коменов. 5. Запустил разработку чертежа узла отопительного прибора (камина). 6. Заказал лес, завез, проантисептировал, заскладировал. Сушится. 7. Приступил к обвязке в земле контура труб теплового насоса. 8. Вырыли траншеи (оставшуюся часть) для прокладки канализации. 9. Отправил среднего сына на 1 неделю в христианский лагерь. 10. Забрал "исцеленную" машину с СТО. 11. Купил жене букет цветов просто так - ей очень понравилось ;) А впереди еще суббота - ого-го!!! хороших Вам выходных в труде и отдыхе! ;) 10 Посилання на коментар Поділитися на інших сайтах More sharing options...
URA-YURA Опубліковано: 1 серпня 2016 Автор Поділитись Опубліковано: 1 серпня 2016 День добрый, уважаемые! Все же хлопотное дело - строительство дома. Люди, которые сами сконструировали, закупили, построили, отделали и заселились - это ТИТАНЫ и фанаты свой мечты. Говорю это как тот, кто еще на этапе коробки и приступает к крыше - все равно устаешь от стройки нормально. Подготовка к крышным работам проведена и сегодня зашла бригада крышников. Бог им и мне в помощь! Пристрелки начал вести месяца 2 назад, слушал отзывы, рекомендации и свое сердце-интуицию. Потом были переговоры, сметы итд. Подписали сегодня договор, приложение (чертежи), ударили по рукам и пошли хлопцы обустраивать себе жилище. как то так ;) !!! 7 Посилання на коментар Поділитися на інших сайтах More sharing options...
URA-YURA Опубліковано: 2 серпня 2016 Автор Поділитись Опубліковано: 2 серпня 2016 Добрый день Посоветуйте, пожалуйста, какой выбрать лако-красочный материал для подшивы свеса по кобылкам и для кобылок, ветровой и лобовой доски. Лобовую и ветровую доску хочу накрыть металлом. Цвет кобылок - темно-коричневый (РАЛ 8017) матовый Цвет подшивы свеса - натуральная сосна матовый с уважением 1 Посилання на коментар Поділитися на інших сайтах More sharing options...
Nikolay Опубліковано: 2 серпня 2016 Поділитись Опубліковано: 2 серпня 2016 Добрый день Посоветуйте, пожалуйста, какой выбрать лако-красочный материал для подшивы свеса по кобылкам и для кобылок, ветровой и лобовой доски. Лобовую и ветровую доску хочу накрыть металлом. Цвет кобылок - темно-коричневый (РАЛ 8017) матовый Цвет подшивы свеса - натуральная сосна матовый с уважением Helios BORI TEX toplasur UV protection - защита от воды и ультрафиолета. К 8017 максимально приближены орех и палисандр 2 Посилання на коментар Поділитися на інших сайтах More sharing options...
irina1969 Опубліковано: 2 серпня 2016 Поділитись Опубліковано: 2 серпня 2016 Добрый день Посоветуйте, пожалуйста, какой выбрать лако-красочный материал для подшивы свеса по кобылкам и для кобылок, ветровой и лобовой доски. Лобовую и ветровую доску хочу накрыть металлом. Цвет кобылок - темно-коричневый (РАЛ 8017) матовый Цвет подшивы свеса - натуральная сосна матовый с уважением да многое можно посоветовать присмотритесь к HK-LASUR REMMERS, вот тех описание remmers.net.ua/uploads/catalog/0b7e8c18153028d3b7931d9356933d19.pdf 1 Посилання на коментар Поділитися на інших сайтах More sharing options...
Тюня Опубліковано: 7 серпня 2016 Поділитись Опубліковано: 7 серпня 2016 какой выбрать лако-красочный материал для подшивы свеса по кобылкам и для кобылок, ветровой и лобовой доски. себе подбирала тон специально, Тикурилла, брала в магазинчике у Антона по рекомендации Татьяны 5 и Николая Крышника, зиму пережил хорошо, идеально подошел под 8017 мы добавляли черный в стандартный цвет, чтобы сделать его темнее Результат с Тикуриллой мне понравился Потом пришлось покупать краски для двора - делала грядки, вот тут получилась масса неожиданностей Например палисандр от Пинотекса оказался страшно пошло коричневым 2 Посилання на коментар Поділитися на інших сайтах More sharing options...
URA-YURA Опубліковано: 9 серпня 2016 Автор Поділитись Опубліковано: 9 серпня 2016 (змінено) Здравствуйте, уважаемые! Небезызвестный мне и Вам мой друг по стройке сегодня мне сказал: "Юра, покажи готовий будинок ;)" - и мы с ним поняли друг друга и заулыбались, весело барабаня по клавиатуре. Уже неделю как у меня работают крышники. Работают завзято. Спрашиваю бригадира - а выходной? (они по воскресеньям работают тоже). А он: "...нееет, мы работаем, пока не закончим!" Отакие хлопцы мне достались. Работают справно и гарно. Тягают лежни, мауэрлаты, стропилины и прочую деревину руцями на перекрытие. В бригаде 3 человека. Живут тут же в доме - дом теплый и прохладный, а месяц август еще теплый - можно и без окон спиралями отмахиваться от комара. Бригаду нашел по рекомендации комплектующей крыши организации. В кастинге учавствовало 3 бригады, рекомендованные проверенными источниками. А строители мои "общего плана" вчера закончили делать перекрытия и фронтоны. Перекрытия укрыли сверху выравнивающей стяжкой (правылом по арматуре), затем промазали битумный праймером технониколь, и напаяли сверху биполь технониколевский паяльной лампой. Все, теперь хлопцы крышники могут смело укладывать лежни. Далее будем утеплять кирпичные комены и заказывать накрывки для коменов и дымаря. Вчера начали обрабатывать струганную древесину свесов и подшивы. По итогу многих миркований, общения со многими торгующими организациями, заглядывания в большое количество пар "добрых и приглашающих довериться" глаз, рассмотрения большого количества советов от многих уважаемых форумчан (ок) я определился на "своем" ЛКМ для крыши. Хотелось и функционально, и качественно, и без переплат за "бренд" и экспортную составляющую - а это затянет все 50% от розничной цены. Типа чтобы "сердито и за адекватные деньги". Для обработки неструганого леса использовали один из семейства Стражей. Думаю все будет хорошо с лесом. И всегам жукам-червячкам это придется не по вкусу - у самого тянуло живот плюс вялость была лишь после часов 6 часов работы с этим зельем. Концентрацию давали могучую. Кобылки 50*150 были первоначально обработаны стражем. Проложенные брусочками они полежали повялились на солнышке недели 2 и далее мы их обстругали и вчера покрыли Дюфа База на водной основе. То же самое сделали и с сушеной шипованой доской пола 1 сорта для подшивы свеса, то же самое с ветровой и лобовой доской. Далее планируем обрабатывать наружный струганный лес Дюфа Вуд Протектом в 3 слоя и шкурить наждачкой внизу. А затем подымать и собирать уже по месту. Планирую сегодня быть на объекте - хочу сфотографировать и что-то показать. С уважением П.С. Кажется леса заказал достаточно. Посещают мысли сделать навес для машины из остатков ;) Змінено 9 серпня 2016 користувачем URA-YURA 6 Посилання на коментар Поділитися на інших сайтах More sharing options...
URA-YURA Опубліковано: 10 серпня 2016 Автор Поділитись Опубліковано: 10 серпня 2016 (змінено) Вчера привозил на стройку разумеющего человека для проверки качества работ по крыше. В целом все хорошо. Но порекомендовал обработать лес еще раз. Перебдеть. Поэтому я вчера сразу заказал адского зелья от заинтересованных поесть лес. Хай буде. На пятницу обещали привезти. Сразу вспомнились страшилки с форума, как люди с излучателями и прочими приборами пытаются изгнать ядущих лес. Змінено 10 серпня 2016 користувачем URA-YURA 1 Посилання на коментар Поділитися на інших сайтах More sharing options...
S1LENCE Опубліковано: 10 серпня 2016 Поділитись Опубліковано: 10 серпня 2016 Хай буде. У меня тиждень назад сусід всю покрівлю (але таке відчуття, що і стіни, і все навколо будинку) хімією обробив через шашеля... Дійсно краще хай буде 1 Посилання на коментар Поділитися на інших сайтах More sharing options...
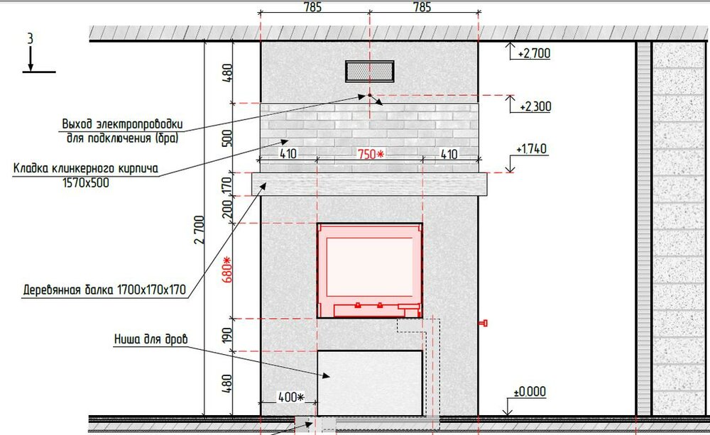
URA-YURA Опубліковано: 10 серпня 2016 Автор Поділитись Опубліковано: 10 серпня 2016 (змінено) День добрый, уважаемые! Хочу и могу поделиться о своих подготовительных работах по строительству камина - возможно кому-то это будет полезно. Вопрос подразумевает выбор топки и ее интеграцию в жилище. Свою топку как артикул я выбирал последние 3 года. Критерии были такие: эффективное конвекционное отопление, положительные отзывы реальных незаинтересованных пользователей, надежность и беспроблемность в эксплуатации. Идея "чугунной мощи" мной не овладела ;) Как обычно - смотрел много интернет. Ездил по салонам, получал коммерческие предложения. В общем, в декабре прошлого 2015 года я выбрал топку, которую посчитал для себя лучшей в своем классе - Fondis V80L. Топка есть с турбиной и есть без. Меня интересует турбина (для конвекционного обогрева 2 удаленных спален). Мощности кассеты хватает с запасом 25%. Потом я инициировал встречу проектанта (Галина Андреева) и поставщиком топки (Укркамин), чтобы корректно запроектировать место под топку до проведения общестроительных работ. Архитектор запроектировал конструкцию так, что труба дымохода идет прямо (без углов) и не "пробивает" плиту перекрытия. После этого я, последовав рекомендации уважаемых в каминном бизнесе людей, вышел на дизайнера (Павел Придатко), который и помог сделать чертеж камина. Еще один момент - я не хотел в камине использовать минвату и подобные современные искуственные материалы, но кирпич, который сможет выступить в качестве теплового изолятора / аккумулятора и конструкционного материала. Это может быть 2 (3) типа кирпича. Когда я ездил в село Мамрин за клинкерным кирпичем, в строймаге мне подвернулся и шамотный огнеупорный ПВ-5, который купил по 3,80. Вроде бы все. Ниже Вашему вниманию сами чертежи. Надеюсь этим постом был полезен. Змінено 10 серпня 2016 користувачем URA-YURA 6 Посилання на коментар Поділитися на інших сайтах More sharing options...
trik Опубліковано: 10 серпня 2016 Поділитись Опубліковано: 10 серпня 2016 Вчера привозил на стройку разумеющего человека для проверки качества работ по крыше. В целом все хорошо. Но порекомендовал обработать лес еще раз. Перебдеть. Поэтому я вчера сразу заказал адского зелья от заинтересованных поесть лес. Хай буде. На пятницу обещали привезти. Сразу вспомнились страшилки с форума, как люди с излучателями и прочими приборами пытаются изгнать ядущих лес. [ATTACH]521852[/ATTACH] Чем изгонять планируете? 1 Посилання на коментар Поділитися на інших сайтах More sharing options...
URA-YURA Опубліковано: 10 серпня 2016 Автор Поділитись Опубліковано: 10 серпня 2016 Чем изгонять планируете? Изгонять некого ;) Перебдеть планирую этим Посилання на коментар Поділитися на інших сайтах More sharing options...
StNick Опубліковано: 10 серпня 2016 Поділитись Опубліковано: 10 серпня 2016 Изгонять некого ;) Перебдеть планирую этим [ATTACH]521870[/ATTACH] а как насчет гладиатора? Посилання на коментар Поділитися на інших сайтах More sharing options...
Рекомендовані повідомлення
Створіть акаунт або увійдіть у нього для коментування
Ви маєте бути користувачем, щоб залишити коментар
Створити акаунт
Зареєструйтеся для отримання акаунта. Це просто!
Зареєструвати акаунтУвійти
Вже зареєстровані? Увійдіть тут.
Увійти зараз