tansss Опубліковано: 10 лютого 2015 Поділитись Опубліковано: 10 лютого 2015 нет 100 % гарантированной техкарты по его оштукатуриванию Есть!!!!!!!!! с снаружи и внутри!!!!!!!!! Погуглите карты Ютонга..... там всё-всё прописано! Да! не дёшево! Но то что надо мне для работы общестроя и наружной отделки я подработал... улучшил.... удешевил раз в пять.... както так (фото) Внутрянкой не занимаюсь.... потому вам и карты в руки.... Посилання на коментар Поділитися на інших сайтах More sharing options...
архітектор Опубліковано: 10 лютого 2015 Поділитись Опубліковано: 10 лютого 2015 В том то и прикол,что ГБ материал новый и нет 100 % гарантированной техкарты по его оштукатуриванию Та какой новый? Я давно беру техкарты Церезит, там есть специальная штукатурка для газобетона. СТ24. В сочетании с сеткой и правильно построеным домом никаких проблем быть не может. И нет, как показала практика нанесения с 2009 года. (ссылка устарела) (ссылка на изображение устарела) Посилання на коментар Поділитися на інших сайтах More sharing options...
Propeller Опубліковано: 10 лютого 2015 Поділитись Опубліковано: 10 лютого 2015 1. В начале 2000-х строил себе офис. Тогда прораб предложил пеноблок. Помню : привезли ПБ еще парИл. Прораб этим еще хвастался. Типа : свежак. Тогда ПБ для меня было что-то новое. Поверил. Было это осенью. Следующим летом - 4 вертикальные трещины на длинных стенах. Одна четко по середине и вторая, делящая на четверть. И под двумя окнами. Стандарт усадки бетона. Трещины сквозные. Потом мы их проинъектировали. Заполнили эластичным полиуретаном. Слава Богу с этого живем. После этого воспринимаю бетон только как железобетон. Во все остальные виды бетона пока не верю. 2. Теперь относительно высасывания воды газобетоном из свежей штукатурки, с последующей её усадкой и страшками. Раз в год намекаю на СД, что есть грунт-гидробарьер, который придумали именно для очень впитывающих поверхностей.Чтобы оставить оставить в штукатурке воду как можно на дольше. Но народ здесь все никак на него не ведется.:D www.ekco.com.ua/uploads/site_structure/pdf/0757/48.pdf Посилання на коментар Поділитися на інших сайтах More sharing options...
архітектор Опубліковано: 10 лютого 2015 Поділитись Опубліковано: 10 лютого 2015 1. В начале 2000-х строил себе офис. Тогда прораб предложил пеноблок Это тот офис, что на Корчеватом? Заводы по производству автоклавного газобетона отрылись в Украине гораздо позже. А в 2000м, скорее всего, после 90-х во всю клепали гаражный пеноблок. Это когда нет оборудования в цеху на пару десятков миллионов долларов и контроль производства начиная от карьера и заканчивая лабораторными испытаниями готового продукта, а гараж, или даже просто навес и ручная бетономешалка. Получается такой грязно-серый, кривой и в трещинах самопальный блок. Производственное оборудование может стоить пару тысяч грн. Естесвенно, качества ноль. А теперь посмотрите что такое мощный, современный завод по производству газобетона. Есть разница? Посилання на коментар Поділитися на інших сайтах More sharing options...
архітектор Опубліковано: 10 лютого 2015 Поділитись Опубліковано: 10 лютого 2015 Доброй ночи спецы! Вопрос какой ширины лучше делать стены d400 500 или d300 375 Лучше делать проект. Потому что есть стены назначать без расчета их прочности, то потом будете тему открывать, что трещины везде. Смотря как нагрузить стены перекрытиями, смотря где будут несущие стены. Если дом 10х10 метров и внутри ни одной несущей стены, крыша стоит без монолитного пояса, то ни один вариант стен не выдежит. Посилання на коментар Поділитися на інших сайтах More sharing options...
Propeller Опубліковано: 10 лютого 2015 Поділитись Опубліковано: 10 лютого 2015 Это тот офис, что на Корчеватом? Нет. На Корчеватом простенько - силикатный кирпич. Дело было на Подоле. Есть там улица Нижнеюрковская ... Я просто описал свои фобии. Не более того.;) Возможно (я даже почти уверен), что ГБ достаточно стабильный продукт. Если бы когда-то и строил себе дом, то строил бы его или из керамического кирпича (не знаю какой пирог у кирпичных хрущовок, но как показал опыт моих друзей - очень тепло) или из утепленного бетона (есть вариант стены с ЭППС в теле стены.Своего рода термодом наоборот). На фото. Посилання на коментар Поділитися на інших сайтах More sharing options...
архітектор Опубліковано: 10 лютого 2015 Поділитись Опубліковано: 10 лютого 2015 Я имел ввиду что будет теплее? Полметровой толщины стена это из Вашего вопроса Д400 500. Такой блок есть у Аэрок. Незнаю, правда, насколько часто и много они его делают. Раньше такой толщины было не нужно, потому что до 2012 года действовал другой норматив по теплосопротивлению. Теперь можно покупать стены толще, но следует понимать, что это в среднем, 20-25% тех поверхностей, которые должны быть теплыми. Важно остальные 75% дотянуть до того же коэфициента и не наломать дров при технологии проектирования и строительства. А то стоит бахнуть монолитный пояс на всю ширину стены без утепления и выигрыш по стенам нивелируется. Стена из Д300 толщ. 375 будет "холоднее", если очень примитивной терминологией объяснять. Но в пределах нормы. Опять таки при условии соблюдения технологий и рекомендаций, а не народных методов и целебных растираний въетнамской "звездочкой". Добавлено через 2 минуты Я просто описал свои фобии С фобиями надо бороться не путем дауншифтинга к кирпичу, а путем изучения. Вы бы тоже не продавали Гипердесмо, если бы не изучали его технологию. Все бы писали - берите чудодейственный рубероид РКП, советский, на битум жидкий. Полно хрущевок так стоят и ничего. Но нет жеж, Вы не предлагаете рубероид РКП. Что это - фобия или желание заработать на застройщиках? Поскольку я имею опыт использования Гипердесмо три года, то склонен верить, что Вы продаете качественный продукт, превосходящий рубероид. В том числе по простоте нанесения и эстетическому виду. Хотя, я думаю, при очень большом желании и если забить на красоту, а строго соблюдать советскую технологию, то можно и рубероидом обойтись? Не так ли? Добавлено через 7 минут (не знаю какой пирог у кирпичных хрущовок, но как показал опыт моих друзей - очень тепло) Там не тепло, там просто нет теплового счетчика. Горячие батареи греют улицу. Вентиляция плохо работает, плюс соседи вокруг тоже греют. В тепловизоре хрущевки "светятся" - настолько стены пропускают тепло. Но его дают и дают снова. Кому надо это центральное отопление реконструировать и переводить на оплату по реальной цене спаленого газа? 1 Посилання на коментар Поділитися на інших сайтах More sharing options...
tansss Опубліковано: 10 лютого 2015 Поділитись Опубліковано: 10 лютого 2015 Д400 500мм R=5.0 Д300 375мм R=4.7 Эти 0,3 разницы - не стоят тех переплат и по объёму и по весу и по ширине фундамента... ИМХО Посилання на коментар Поділитися на інших сайтах More sharing options...
Dandik Опубліковано: 11 лютого 2015 Поділитись Опубліковано: 11 лютого 2015 Если бы треснула плита, то трещина появилась бы и в подвале. Мы это первым делом осмотрели. Да и представить, что фундамент "раскололся" во всех местах, где есть выступы, как-то уж очень фантастично выглядит... Я чего-то не пойму... вы просто так построили цокольный этаж? У вас не было ни проекта, ни малейшего представления из какого материала будут стены? Я почему-то считал, что уже давно прошли те времена, когда люди строятся без проекта, причем ОБЯЗАТЕЛЬНО содержащего конструктивный расчет и перечень всех материалов (из чего что строить), да еще и с привязкой на местности (геология, геодезия и т.п...)... Стройте из того материала, который в проекте. Если нет проекта, то закажите его и... см.выше...;) Сергей, ЗАБИТЬ не в моих правилах, вы же должны знать как никто...:D Именно "такой" паутины и именно в таких характерных местах ни разу не нашел нигде, хотя прочитал уже с сотню подобных историй (вы же знаете мой подход...) Хочу ПОНЯТЬ ПРИЧИНУ. А потом уже решать - ЗАБИТЬ или СПАСАТЬ... Трещины появились не ранее, чем год назад - в прошлом году красили стены и никаких трещин не было. Не было их и в последующие пол-года. Очень может быть, что они активно начали появляться после запуска отопления (в октябре-ноябре)... Это был первый отопительный сезон после наружного утепления... Еще немного инфы о трещинах. Во вложенных файлах места расположения трещин. Места ВСЕ характерные - на изломе эркера. Причем почти во всех!!! Пока нет только в трех таких местах, в том числе и в том, которое было заделано более года назад... ЧЕРТ ЗНАЕТ ЧТО!!! Собираю "плодотворные дебютные идеи" для анализа... Своего рода "мозговой штурм". ПОДКЛЮЧАЙТЕСЬ!!! Искренне надеюсь, что я ошибаюсь) Первое, что пришло в голову в 2:30) Исходные данные 1. Трещины у Вас только по углах дома. 2. Некоторые трещины в углах на 1-м и 2-м этажах совпадают друг над другом. 3. У Вас залита фундаментная плита. Немного скучной теории. Выложу пару картинок. Это плита перекрытия частного дома, опирается по контуру на стены. Первая картинка показывает изополя напряжений вдоль оси Х от нагрузок на плиту. Вторая картинка показывает изополя напряжений вдоль оси У от нагрузок на плиту. Третья картинка показывает изополя напряжений по ХУ от нагрузок на плиту. Так вот к чему, эти все картинки. Если смотреть на 3-ю картинку, то можно увидеть, что на углах нагрузка от совместных усилий по оси Х и оси У максимальная. Что все это означает? Это значит, что в этих местах арматуры по расчету будет больше чем в других. В моем случае, увеличение армирования на углах в верхней зоне плиты. Я не утверждаю, а только предполагаю, что в вашем случае наличие трещин в углах дома может быть связанно с тем, что в проекте фундаментной плиты могла быть ошибка. В последствии на углах из за концентрации напряжений, происходит неравномерная усадка. Р.S. Это просто версия с инженерной точки зрения, так что не принимайте за истину, вполне вероятно что мое предположение ошибочное. 1 Посилання на коментар Поділитися на інших сайтах More sharing options...
Igor_M Опубліковано: 11 лютого 2015 Автор Поділитись Опубліковано: 11 лютого 2015 Вы все еще считаете, что газобетон лучше кирпича? Продолжаю считать таким же образом...;) Дело в том, что я не смог получить тот газоблок, который хотел. Когда покупал, то СПЕЦИАЛЬНО заставил поставщика подписать договор. В нем конкретно указал - плотность D400 и прочность В2. Этот производитель выпускал в то время такие блоки. НО... привезли блок прочности В1,5. Я устроил скандал, но блок пришлось выгружать, поскольку перевозчик, как вы понимаете, ни при чем... В результате разборок с поставщиком и с производителем выяснилось, что блок прочности В2 таки выпускается, но... только по специальному заказу для сейсмоактивных зон... Поставщик об этом не знал. Он точно так же как и я, руководствовался сертификатами и характеристиками, выложенными на сайте производителя... В итоге я затребовал протокол лабораторных испытаний на эту партию газоблока, где указана прочность фактическая как В2,0 при этом есть точные показания - 2,32 МПа, что достаточно близко к М25... На том и порешили, хотя если бы я знал ЗАРАНЕЕ, что привезут именно такой блок, то я бы его НЕ ЗАКАХЫВАЛ БЫ. Я искал бы с как можно большей прочностью... даже готов был бы пожертвовать плотностью в сторону увеличения до 500 вместо 400. Еще раз повторюсь - если выбрать ПРАВИЛЬНЫЙ материал для данной конкретной конструкции дома, то он и окажется самым оптимальным вариантом. Т.е. тут все индивидуально. Для СЕБЯ определил, что для моего дома оптимальным является газоблок! Если перечитаете мою тему, то поймете, почему... Зная Вас потому и пишу. Вот моя трещина, после ремонта 8 лет прошло. А про мой дом так вообще ужас: весь трещит по швам с 1957 года. Игорь, но хоть раз в жизни, хоть на че-то забейте!!! Сергей, у меня на квартире сейчас (после 15 лет) трещин столько, что и считать не хочется. Когда мне бабушки-маляры шпаклевали потолок, то я по два раза заставлял их расчищать швы и заделывать по новой, поскольку через неделю там появлялись трещины. В-общем, они заделывали швы столько раз, сколько понадобилось для того, чтоб в течение двух недель не появлялись трещины. И вот такой момент настал и я с ними рассчитался...и начал переезд... Это сейчас я такой умный и сетку на доме клал не только на швы гипсокартона, на ВСПЛОШНУЮ... и не ту "серпянку", а армировал потолки фасадной сеткой плотностью 145 г/м2. Это потому, что подшивка ГКЛ крыши прямо к стропилам, которые ходят ходуном... За два года - ни одной трещинки (ттт). Теперь вернемся к квартире (15 лет назад). В итоге на потолке на стыках листов отчетливо видны "бугры", но трещин очень мало... И я не заморачиваюсь с этим, поскольку смотреть на все это некогда... НО... на доме совсем другая история - там потрещало еще ДО глобального заселения. Поэтому считаю категорически необходимым заделать все сейчас, поскольку потом никто ничего делать не будет. На старой квартире как не доклеили обои на потолке в коридоре и не заделал дыру на одной из дверей ... то так через 10 лет и съехали оттуда... Как только перееду окончательно, то забью обязательно!!! ОБЕЩАЮ!!!... ...даже в стихах получилось... 1 Посилання на коментар Поділитися на інших сайтах More sharing options...
Igor_M Опубліковано: 11 лютого 2015 Автор Поділитись Опубліковано: 11 лютого 2015 Искренне надеюсь, что я ошибаюсь) Первое, что пришло в голову в 2:30) Исходные данные 1. Трещины у Вас только по углах дома. 2. Некоторые трещины в углах на 1-м и 2-м этажах совпадают друг над другом. 3. У Вас залита фундаментная плита. Немного скучной теории. Что все это означает? Это значит, что в этих местах арматуры по расчету будет больше чем в других. В моем случае, увеличение армирования на углах в верхней зоне плиты. Я не утверждаю, а только предполагаю, что в вашем случае наличие трещин в углах дома может быть связанно с тем, что в проекте фундаментной плиты могла быть ошибка. В последствии на углах из за концентрации напряжений, происходит неравномерная усадка. Р.S. Это просто версия с инженерной точки зрения, так что не принимайте за истину, вполне вероятно что мое предположение ошибочное. Во-первых, спасибо вам за конструктивный подход. Честно говоря, на старте я не вникал ни в какие конструктивные особенности... это уже потом начал совать свой нос во все подряд и пытался разобраться что к чему... правда, не уверен, что это у меня получилось... В смысле не получилось "разобраться", а не "совать нос"...:D Теперь о плите. Не могу найти весь конструктив, но вот нашел фрагмент (в аттаче). Там получается, что по краю давали дополнительную арматуру СНИЗУ плиты... не помню уже почему... Вот есть еще пару ссылок на фотографии: www.stroimdom.com.ua/forum/attachment.php?attachmentid=26113&d=1252359772 www.stroimdom.com.ua/forum/attachment.php?attachmentid=26106&d=1252358379 www.stroimdom.com.ua/forum/attachment.php?attachmentid=26257&d=1252447535 Ну и как мог описывал процесс у себя в теме: www.stroimdom.com.ua/forum/showthread.php?t=21751&page=6 Добавлено через 16 минут Блин у меня по проекту газоблок! Может армировать 8-ой каждый ряд? или вообще пересчитать стены на другой материал? Прочитайте мой пост чуть выше про газобетон...;) Да что ж вы слушаете? Разве не понятно, что если бы ТС хотел решить проблему, он бы ее давно решил. Тема давно ушла от обсуждения фактов к обсуждению слухов и домыслов. Если у Вас нормальный проект (в смысле сделан надежным, трезвомыслящим проектировщиком, с расчетом фундамента, перекрытий и крыши, с геологическим исследованием грунтов) и если Вы будете строиться по технологии, то проблем у Вас не будет. Не верите - я сам давно живу в доме из газобетона, который сам же и спроектировал. Не там никаких трещин. И в других домах, которые я делал тоже давно все в порядке. Посмотрите ссылки у меня в подписи под сообщением. Здесь же смешано все в кучу. Проблемы с фундаментом, проблемы с отсутствием комплексного контроля, проблемы с технологией, проблемы с народной медициной и припарками, когда дом делается не как один общий организм, а как проходной двор, где полно народу работает, но в итоге никто ни за что не отвечает. Не разделяю вашего оптимизма по поводу "если бы ТС хотел решить проблему, он бы ее давно решил"... То, что я "пропал из эфира" на несколько дней означает лишь то, что у меня не было возможности писать... и такое допущение вы могли бы сделать ТОЖЕ... Сегодня вот все перечитываю и потихоньку пишу... Завтра возможно уже будут фото "вскрытия" с полей и стало быть больше информации для работы "коллективного разума". По крайней мере надеюсь... пока... Посилання на коментар Поділитися на інших сайтах More sharing options...
tansss Опубліковано: 11 лютого 2015 Поділитись Опубліковано: 11 лютого 2015 Если вы действительно хотите разобраться в происходящем то последуйте своему же призыву - подключайтесь!!! (включайтесь) Деформация фундаментной плиты если приводит к трещинам то они имеют переменную ширину и расширяются к верху.... причём они должны пересечь все пояса, плюс видны с обеих сторон! Ежель вы решили по любому перештукатуривать..... воспользуйтесь моим советом... сделайте послойную шлифовку алмазной коронкой до ГБ и всё сразу станет ясно!;) Добавлено через 12 минут Скажите, когда армировали кладку... в этих местах углы загибали или стыковали? Посилання на коментар Поділитися на інших сайтах More sharing options...
архітектор Опубліковано: 11 лютого 2015 Поділитись Опубліковано: 11 лютого 2015 Завтра возможно уже будут фото "вскрытия" с полей и стало быть больше информации для работы "коллективного разума". Не верю в эффективную работу коллективного разума. Ну вообще. Это как рассматривать анализы пациента и ставить диагноз на форуме с домохозяйками. Врачи меня поймут, что нет хуже способа завести себя в тупик, чем самостоятельно начать изучать биологию, фармакологию и еще делать из этого правильные выводы. Ясно, что у нас территория особенная и тут не работают правила из более цивилизованного мира, но все же. Я единственное, что не пойму - так это реальной Вашей задачи. Тема получилась как "вброс", в результате которого у кой-кого начали проявляться рецидивы "выброса". Типа "О ужас, газобетон плохой материал, докажите, что он не трескается!", "хрущевки из кирпича лучше, чем новые дома из газобетона", "вся штукатурка трескается, надо шить на стены гипсокартон", "любая штукатурка треснет, если на стену не набить арматурную сетку и не обштукатурить торкретированием, толщиной от 5 см", "давайте положим двадцатую арматуру по три в каждый ряд", "давайте откажемся от этого говняного газобетона раз и навсегда", "построил дом из газобетона - жди трещин если не в первый, то во второй год обязательно". Предлагаю также те вариант, который не прозвучал пока, но с которыи я встречался в практике общения с людьми после прочтения похожих тем: "а давайте все стены из газобетона изнутри дома обложим кирпичем, а кирпич поштукатурим". Причем под эту фобию пришлось делать фундамент и включать в проект такое безобразие. А что делать? Паника вещь беспощадная. Реально от такой темы больше вреда для всей стройиндустрии в Украине, для репутации специалистов, груп стройматериалов. Домыслы, которые пошли в тексте темы, подрывают любые аксиомы, данные расчетов, норм, технических карт, испытаний и лабораторных исследований, земной гравитации, теоремы Пифагора и т.д. Пользы, для отдельно взятого Вашего дома, нет за 4 страницы текстов. А если вдруг кто-то выкроит свое ценное время, чтобы почитать что там на форумах пишут, а тут такое? Та нормального человека уже не откачаешь. Я бы на Вашем месте осторожно писал о подобных проблемах, да и то параллельно производя реальные, не виртуальные попытки разобраться и решить. А в конце было бы хорошо увидеть отчет - вот, произвели обследование, выявили проблему, сделали действия для ее решения. Все. А дальше можно давать волю всем желающим, пусть пишут что хотят. 4 Посилання на коментар Поділитися на інших сайтах More sharing options...
sashanik Опубліковано: 11 лютого 2015 Поділитись Опубліковано: 11 лютого 2015 У меня такойже блок( каховка только В 2,0),штукатурка гипсовая ротбанд. армировка каждый 4-й ряд, под окнами и т. д., и тоже трещины по углам на первом этаже. Четыри года дом перезимовал без отпления (подерживал +5-7 С) два года с них с внутр. штукатуркой, трещин не было. Стоило только включить отопление, как потрещало все что только можно, буквально за месяц: газоблок по углам, стяжка мастерка с сеткой, фиброй, пластификатором адиум.... самое интересное что даже ступеньки на монолитной лестнице где арматуры почти сколько, сколько бетона в ней. Кстати, летом этих трещин на газоблоке не видно, разве что под микроскопом. Ради интереса, я росковырял шукатурку до газоблока и увидел тоже трещину в самом газоблоке, но с наружи стены ее нет. Трещина зимой есть- летом нет, Внутри есть-снаружи нет... Прям загадка природы.... Посилання на коментар Поділитися на інших сайтах More sharing options...
архітектор Опубліковано: 11 лютого 2015 Поділитись Опубліковано: 11 лютого 2015 У меня такойже блок( каховка только В 2,0),штукатурка гипсовая ротбанд. армировка каждый 4-й ряд, под окнами и т. д., и тоже трещины по углам на первом этаже. Четыри года дом перезимовал без отпления (подерживал +5-7 С) два года с них с внутр. штукатуркой, трещин не было. Не надо сравнивать мокрое с синим. Для того, чтобы сказать, что дома или решения похожи, надо чтобы грунт под домом, земля, на которой он стоит - была одинакова в обоих случаях. Может же такое быть, что одни дом стоит на болоте, на торфяном поле с уровнем грунтовых вод, по пару месяцев в году поднимающийся выше уровня фундамента, а второй дом на песчаном грунте, где до ближайшей подземной воды не меньше 15 м? А может такое быть, что один участок стоит над обрывом, который осыпается, из глины, которая сжимается, а второй под склоном горки, с которой стекает вода во время дождя под фундамент? А может быть такое, что на один дом делали нормальный проект, а на другой проекта вообще небыло? А может быть такое, что тот дом, что с проектом, строили фактически без проекта, а проектом подстилали стол, когда селедку ложили? А может быть такое, что ключевые решения по несущим конструкциям дома были приняты неправильно и еще хуже выполнены в натуре? А может быть такое, что во время строительства дома был огромный поток советчиков и исполнителей, каждый из которых брал деньги, вымазывал какашкой всех предшественников, давал "ценные советы" из "большого опыта" и применял собственные "ноу-хау" - как больше удивить заказчика ценой, типа качеством, и как можно больше при этом заработать? Посилання на коментар Поділитися на інших сайтах More sharing options...
Igor_M Опубліковано: 11 лютого 2015 Автор Поділитись Опубліковано: 11 лютого 2015 Не верю в эффективную работу коллективного разума. Ну вообще. Это как рассматривать анализы пациента и ставить диагноз на форуме с домохозяйками. Врачи меня поймут, что нет хуже способа завести себя в тупик, чем самостоятельно начать изучать биологию, фармакологию и еще делать из этого правильные выводы. Ясно, что у нас территория особенная и тут не работают правила из более цивилизованного мира, но все же. Я единственное, что не пойму - так это реальной Вашей задачи. Тема получилась как "вброс", в результате которого у кой-кого начали проявляться рецидивы "выброса". Типа "О ужас, газобетон плохой материал, докажите, что он не трескается!", "хрущевки из кирпича лучше, чем новые дома из газобетона", "вся штукатурка трескается, надо шить на стены гипсокартон", "любая штукатурка треснет, если на стену не набить арматурную сетку и не обштукатурить торкретированием, толщиной от 5 см", "давайте положим двадцатую арматуру по три в каждый ряд", "давайте откажемся от этого говняного газобетона раз и навсегда", "построил дом из газобетона - жди трещин если не в первый, то во второй год обязательно". Предлагаю также те вариант, который не прозвучал пока, но с которыи я встречался в практике общения с людьми после прочтения похожих тем: "а давайте все стены из газобетона изнутри дома обложим кирпичем, а кирпич поштукатурим". Причем под эту фобию пришлось делать фундамент и включать в проект такое безобразие. А что делать? Паника вещь беспощадная. Реально от такой темы больше вреда для всей стройиндустрии в Украине, для репутации специалистов, груп стройматериалов. Домыслы, которые пошли в тексте темы, подрывают любые аксиомы, данные расчетов, норм, технических карт, испытаний и лабораторных исследований, земной гравитации, теоремы Пифагора и т.д. Пользы, для отдельно взятого Вашего дома, нет за 4 страницы текстов. А если вдруг кто-то выкроит свое ценное время, чтобы почитать что там на форумах пишут, а тут такое? Та нормального человека уже не откачаешь. Я бы на Вашем месте осторожно писал о подобных проблемах, да и то параллельно производя реальные, не виртуальные попытки разобраться и решить. А в конце было бы хорошо увидеть отчет - вот, произвели обследование, выявили проблему, сделали действия для ее решения. Все. А дальше можно давать волю всем желающим, пусть пишут что хотят. ... вас писать такие посты, как этот... Да и предыдущие тоже... Я пытался дипломатично дать вам понять, что то, что вы пишете.... как бы это помягче... не совсем приемлемо... Я давно читаю ваши посты с некоторым изумлением и привык уже к вашей манере общения, поэтому ничуть не удивлен в этот раз... Если не можете (или не хотите) чем-то помочь (хотя бы приободрить на худой конец), то лучше не пишите... спасибо за понимание... А отчеты я ВСЕГДА пишу в отличие от множества других авторов, которые что-то затевают, а потом пропадают. И многих из них я спрашивал частным образом - почему не выложили конечный результат... Знаете какой самый популярный ответ? "Так потом меня специалисты затюкают, раскритикуют в пух и прах и заставят все поломать!!!":o При этом ДО ТОГО эти же специалисты упорно молчали и писали многозначительные посты ни о чем... 4 Посилання на коментар Поділитися на інших сайтах More sharing options...
архітектор Опубліковано: 11 лютого 2015 Поділитись Опубліковано: 11 лютого 2015 Если не можете (или не хотите) чем-то помочь (хотя бы приободрить на худой конец), то лучше не пишите... Как любой пользователь имею право писать, то, что думаю. Не нарушая правила форума. Я свое мнение сказал - плохо, когда есть много тем-вбросов. Они притягивают кучу проблем из ниоткуда. Смешивают это в сознании неспециалистов и в результате оседают фобиями. Фобии, в свою очередь, мешают решать проблемы по сути. Вы говорите - приободрить? Бодритесь. Но это не поможет решить проблему. А может быть, что и проблема надуманная, и по фото создается ложное впечатление о ее масштабах или о направлении - где искать быстрый и правильный ответ. ПС: Вы же работаете? Тоесть делаете свою профессиональную работу в определенной сложной среде. Как бы Вы отнеслись к тому, что пользователь Вашей работы, не понимающий сути этой работы, выложил бы субъективные симптомы на каком-нибуть популярном форуме? Какая бы была Ваша реакция на посты в теме от людей, которых Вы вообще не знаете, не представляете где они, что они, зачем они? И обсуждалась бы Ваша работа, в которой Вы съели собаку и на дом заработали? Какая Ваша реакция? Игнорировать? Возмущаться? Негодовать? Пытаться объяснять сложное техническое, простым языком, понятным домохозяйке? Посилання на коментар Поділитися на інших сайтах More sharing options...
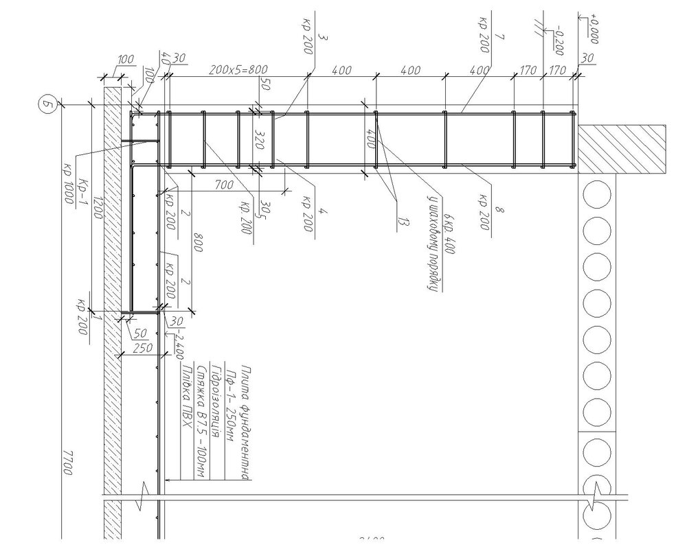
Dandik Опубліковано: 11 лютого 2015 Поділитись Опубліковано: 11 лютого 2015 Не могу найти весь конструктив, но вот нашел фрагмент (в аттаче). Там получается, что по краю давали дополнительную арматуру СНИЗУ плиты... не помню уже почему... Нижняя арматура по краю предотвращает продавливание плиты от воздействия нагрузок стен дома. Усилия от грунта на плиту направлены вверх, чтобы их погасить нужна верхняя арматура по всей плите. Пример. Фрагмент армирования стены подвала С армированием у вас там все в порядке. Странно, что трещины только по углах на 1-м и на 2-м этаже Посилання на коментар Поділитися на інших сайтах More sharing options...
Igor_M Опубліковано: 11 лютого 2015 Автор Поділитись Опубліковано: 11 лютого 2015 У меня такойже блок( каховка только В 2,0),штукатурка гипсовая ротбанд. армировка каждый 4-й ряд, под окнами и т. д., и тоже трещины по углам на первом этаже. Четыри года дом перезимовал без отпления (подерживал +5-7 С) два года с них с внутр. штукатуркой, трещин не было. Стоило только включить отопление, как потрещало все что только можно, буквально за месяц: газоблок по углам, стяжка мастерка с сеткой, фиброй, пластификатором адиум.... самое интересное что даже ступеньки на монолитной лестнице где арматуры почти сколько, сколько бетона в ней. Кстати, летом этих трещин на газоблоке не видно, разве что под микроскопом. Ради интереса, я росковырял шукатурку до газоблока и увидел тоже трещину в самом газоблоке, но с наружи стены ее нет. Трещина зимой есть- летом нет, Внутри есть-снаружи нет... Прям загадка природы.... У меня тоже дом оштукатуренный изнутри и не утепленный снаружи стоял год (т.е. перезимовал). Собственно из-за этого считаю и уголки оцинкованные поржавели (правда только на 1-м этаже). И первую трещину обнаружил как раз весной после первого отопительного сезона... ОДНА-ЕДИНСТВЕННАЯ!!! Я уже писал, что тогда с архитектором под микроскопом все осматривали... А вот весь прошлый сезон топил и ничего... вроде... И тут в этом году пошло-поехало... НО... ни стяжки, ни бетонная лестница вроде не потрескались. Завтра возьму микроскоп и поеду исследовать...:D Уже расковыряли семь таких проблемных мест. ТРЕЩИНЫ ИДУТ И В ГАЗОБЛОК!!! Причем в некоторых местах даже не по вертикальному шву перевязки, а рядом с ними... И начинаются трещины в 40-50см от пола и заканчиваются в 40-50см от потолка... полная фигня... Если вы действительно хотите разобраться в происходящем то последуйте своему же призыву - подключайтесь!!! (включайтесь) Деформация фундаментной плиты если приводит к трещинам то они имеют переменную ширину и расширяются к верху.... причём они должны пересечь все пояса, плюс видны с обеих сторон! Ежель вы решили по любому перештукатуривать..... воспользуйтесь моим советом... сделайте послойную шлифовку алмазной коронкой до ГБ и всё сразу станет ясно!;) Добавлено через 12 минут Скажите, когда армировали кладку... в этих местах углы загибали или стыковали? Действительно хочу разобраться перед тем как ЗАБИТЬ. Судя по всему приду к этой мысли тем быстрее, чем больше трещин будет появляться... Вчера приехал на дом, а работник "расшил" еще один шов в неотмеченном мной месте. Я там приклеил полоску скотча малярного и на нем ставил отметки при тестировании лазерного нивелира, а он подумал, что это я еще одну метку поставил (все остальные обозначал именно малярной лентой)... НО... потом он мне показал эту трещину и я ее увидел. Это уже не совсем то характерное место, которые я раньше описал, но близко... Для тех, кто не читал мою "повесть" о строительстве, то скажу - строилось все по проекту, проект с конструктивным расчетом и с привязкой на местности (геология и геодезия предварительно сделаны и есть отчет с печатями по этим исследованиям). Проект тоже с печатями, все оформлено и в "архитектуре" и в прочих инстанциях, которые требуется пройти. Есть и строительный паспорт... и уведомление о начале работ... В-общем есть все... кроме счастья...:D И работы все по техкартам выполнялись... стало быть и армировали так, как надо (под/над окнами/дверями не потрещало как у многих), арматуру сгибали на гибочном станке и связывали, а потом укладывали в подготовленные фрезером штробы цельным контуром... Немного об этом вот в посте - www.stroimdom.com.ua/forum/showpost.php?p=354733&postcount=652. Вот еще в аттаче две характерные фотки, не попавшие почему-то в отчет... Завтра постараюсь сфоткать места "вскрытия". Мы не шлифовали, поскольку тогда хуже штукатурка будет прилипать назад... Но трещины видно невооруженным глазом - по обе стороны от трещин блок откололся на разную глубину. Если на фотках будет плохо видно, то я "дорисую" на компе, чтоб видно было их след... Посилання на коментар Поділитися на інших сайтах More sharing options...
tansss Опубліковано: 11 лютого 2015 Поділитись Опубліковано: 11 лютого 2015 Шлифоните, не бойтесь.... адгезия только лучше. а то эксперимент не чистый Посилання на коментар Поділитися на інших сайтах More sharing options...
архітектор Опубліковано: 11 лютого 2015 Поділитись Опубліковано: 11 лютого 2015 И работы все по техкартам выполнялись... А как и чем штукатурилось? Какая температура в доме была в это время? Добавлено через 21 минуту Четыри года дом перезимовал без отпления (подерживал +5-7 С) два года с них с внутр. штукатуркой, трещин не было. Стоило только включить отопление, как потрещало все что только можно, буквально за месяц: газоблок по углам, стяжка мастерка с сеткой, фиброй, пластификатором адиум.... самое интересное что даже ступеньки на монолитной лестнице где арматуры почти сколько, сколько бетона в ней. У меня тоже дом оштукатуренный изнутри и не утепленный снаружи стоял год (т.е. перезимовал). Тоесть температурно-влажностый режим в доме не был эксплуатационным? Посилання на коментар Поділитися на інших сайтах More sharing options...
Igor_M Опубліковано: 11 лютого 2015 Автор Поділитись Опубліковано: 11 лютого 2015 А как и чем штукатурилось? Какая температура в доме была в это время? Тоесть температурно-влажностый режим в доме не был эксплуатационным? Штукатурилось машинной штукатуркой МП-75. В тот период как раз был жуткий дефицит и ни один из поставщиков вообще не обещал ничего привезти... в том числе и исполнитель. Пришлось самому подключаться и "через завсклад, через товаровед":D добывать самому... Пока тянулся процесс, время шло... Начали 7-го сентября 2011 года. Подробный отчет - начиная отсюда www.stroimdom.com.ua/forum/showthread.php?p=1261511&highlight=%F8%F2%F3%EA%E0%F2%F3%F0%EA%E0#post1261511. Во время выполнения работ режим был нормальный. Наружная температура не опускалась ни разу ниже +10 градусов... и практически в том году до декабря была такая погода... К БОЛЬШОМУ сожалению все эти рекламные разговоры по поводу того, что гипсовая штукатурка сохнет быстро (чуть ли не неделю), не подтвердились на практике... Сохло ЧЕРТОВСКИ ДОЛГО... И думаю, что до наступления морозов так и не "схватилось" как следует... ХОТЯ я регулярно и зимой наведывался и не было ощущения, что штукатурка замерзала - ни тебе льда, ни инея на стенах... По весне ничего нигде не отвалилось... Посилання на коментар Поділитися на інших сайтах More sharing options...
архітектор Опубліковано: 11 лютого 2015 Поділитись Опубліковано: 11 лютого 2015 Штукатурилось машинной штукатуркой МП-75. Когда я пишу про дома, за которыми следил от и до, и там нет трещин, то там нигде не применялась машинная штукатурка. Штукатурили вручную, комната за комнатой, везде применялась сетка для штукатурки. Есть случаи, когда штукатурили цементно-известковой штукатуркой (из-за того, что дом из керамических блоков, а перегородки из газобетона), но восновном, "Мастер" изо-про - гипсовая штукатурка для ручного нанесения, или Изогипс ELITgips (на газобетонные стены). Единственный раз, когда частично были трещины в штукатурке на кирпичной стене произошли из-за того, что туда использовали остатки штукатурки (чтобы не выбрасывать) и из-за нарушения температурно-влажностного режима - сушили ветродуйкой. Сверху прихватило, внутри было сырое. Причем трещинки появились не сразу, а через полгода. В Вашем случае как раз скорее всего проблема в кнауфовской машинной штукатурке, в способе нанесения. Там ведь в штукатурной станции надо выставлять режим замешивания смеси, пропорции воды и порошка. А еще если и порошок по блату доставался, то могло быть что и перележал где-то в повышенной влажности. Посилання на коментар Поділитися на інших сайтах More sharing options...
tansss Опубліковано: 11 лютого 2015 Поділитись Опубліковано: 11 лютого 2015 Кхэ-кхэ... если чего не правильно заметил поправьте! Если позволите выскажу простым языком своё мнение по поводу конструкции и возможных "нюансов" Итак.... -пояс над первым этажом залит только по наружным стенам -по кирпичным несущим пояса нет -перевязки кладки ессстесссно нет т.е. панели одной стороной уложены на пояс другой - на кирпич... возможны различные просадки и соответственно относительные деформации. ПЛЮС это усугубляется тем что панели не закреплены анкерами пояса, не "покрещены" и не облиты так как сделано на цоколе. -кладка первых рядов блоков - на рулонную ГИ. Что получается .... на отличном жёстком фундаменте установлена не жёсткая коробка с перекрытием первого этажа... а сверху такая же не жёсткая коробка второго.... тоже может привести к относительным деформациям.... 1 Посилання на коментар Поділитися на інших сайтах More sharing options...
архітектор Опубліковано: 12 лютого 2015 Поділитись Опубліковано: 12 лютого 2015 Что получается .... Сильно мудренно. Чисто теоретически есть программы, которые могут очень точно смоделировать и испытать виртуальную модель дома Игоря М. И, скорее всего, ничего крамольного они не покажут. Есть запас прочности. Но программы не учитывают то, о чем тут не пишут прямо. По-сути такой дом можно назвать долгостроем, возводимым хозспособом. А это уже не есть тем случаем, на который написаны нормы и техкарты. По-писаному есть проект, есть инвестор, застройщик. Для того, чтобы строительный бизнес был окупаемым, дом должен быть начат и построен в сжатые сроки. Насколько эти сроки могут быть сжатыми, описывают техкарты по режиму сушки, набиранию прочности для каждого отдельного элемента. Это примерно 2 года от стадии - заросший бурьяном участок, до сдачи в эксплуатацию. Но дом задуман большим, а финансирование идет медленно, плюс, как я говорил, этим не занимается профессиональный подрядчик. По-этому выскакивают мелкие проблемы, которые неверно трактуются. Если брать еще одну ветку, где человек разместил фото трещин в доме из шлакоблока - так там трещины всем трещинам трещины. Чуть ли не руку можно просунуть. А у Игоря нужен микроскоп, плюс он обещает в фотошопе дорисовать, если плохо видно. 1 Посилання на коментар Поділитися на інших сайтах More sharing options...
Рекомендовані повідомлення
Створіть акаунт або увійдіть у нього для коментування
Ви маєте бути користувачем, щоб залишити коментар
Створити акаунт
Зареєструйтеся для отримання акаунта. Це просто!
Зареєструвати акаунтУвійти
Вже зареєстровані? Увійдіть тут.
Увійти зараз