Willi Опубліковано: 25 червня 2015 Поділитись Опубліковано: 25 червня 2015 Добрий день, важко визначитись із перекриттям першого поверху (другий - мансардний поверх) Якщо заливати монолітну плиту, яке армування потрібно для перекриття такого будинку? Розрахункове навантаження 400кг/м2 товщина плити 15см (чи це буде достатньо?) Спасибі Посилання на коментар Поділитися на інших сайтах More sharing options...
t-projekt Опубліковано: 29 червня 2015 Автор Поділитись Опубліковано: 29 червня 2015 Достаточно массивной это как.Стена погреба будет в кирпич.И если делать подпорную из бетона то как стыковать ее с кирпичной погреба.Просто выпустить из кирпичной кладки арматуру и лить бетон.Спасибо. На мой взгляд нужно лить из бетона Добавлено через 2 минуты Добрий день, важко визначитись із перекриттям першого поверху (другий - мансардний поверх) Якщо заливати монолітну плиту, яке армування потрібно для перекриття такого будинку? Розрахункове навантаження 400кг/м2 товщина плити 15см (чи це буде достатньо?) Спасибі Две сетки d12 хватит с головой, но если все тчательно просчитать, то думаю, можно 8-й и 10-й обойтись. Шаг 200х200 мм 2 Посилання на коментар Поділитися на інших сайтах More sharing options...
JamGreen Опубліковано: 29 червня 2015 Поділитись Опубліковано: 29 червня 2015 Здравствуйте. Есть такой фундамент. Серый контур - существует. Розовым - планируются несущие стены под армопояс второго этажа. Перестенки по этажу планируются из 10см газобетона, высота 3,2м. Хочу сделать так: 1. Залить монолитную плиту с нахлестом на фундамент, заодно выровнять контур под стены из газоблока. 2. Заложить теплый пол в эту плиту, использовать ее как чистовую стяжку. 3. В качестве несъемной нижней опалубки использовать подсыпку строймусором. 4. Утеплить открытую часть цоколя и отмостку, пол не утеплять. Помогите пожалуйста с расчетом такой плиты, чтобы сравнить с вариантом плит ПК. Посилання на коментар Поділитися на інших сайтах More sharing options...
t-projekt Опубліковано: 30 червня 2015 Автор Поділитись Опубліковано: 30 червня 2015 Здравствуйте. Есть такой фундамент. Серый контур - существует. Розовым - планируются несущие стены под армопояс второго этажа. Перестенки по этажу планируются из 10см газобетона, высота 3,2м. Хочу сделать так: 1. Залить монолитную плиту с нахлестом на фундамент, заодно выровнять контур под стены из газоблока. 2. Заложить теплый пол в эту плиту, использовать ее как чистовую стяжку. 3. В качестве несъемной нижней опалубки использовать подсыпку строймусором. 4. Утеплить открытую часть цоколя и отмостку, пол не утеплять. Помогите пожалуйста с расчетом такой плиты, чтобы сравнить с вариантом плит ПК. Не выводите плиту на ленту фундамента. Делайте через деф. шов. Если высоты ленты не хватает или ее нужно выровнять долейте отдельно ленту или выложите цоколь кирпичем. В таком случае армирование в плите будет минимальное можно две сетки (верх и низ d8мм шаг 200х200) Толщина плиты 100мм. Это будет дешевле чем сборные плиты. 1 Посилання на коментар Поділитися на інших сайтах More sharing options...
JamGreen Опубліковано: 30 червня 2015 Поділитись Опубліковано: 30 червня 2015 Большое спасибо, все записал. Единственный вопрос. Если не опирать на ленту, то придется делать подсыпку как следует? То есть делать не плиту, а стяжку по грунту? Или я запутался? И нужно ли как-то армировать места где предполагаются перегородки? Посилання на коментар Поділитися на інших сайтах More sharing options...
Ragazor Опубліковано: 2 липня 2015 Поділитись Опубліковано: 2 липня 2015 Имеется такое утепление фундамента. ЭППС армирован сеткой. Вопрос. Можно ли как-то расчитать хоть примерно, выдержит ли констукция плитку? Очень не хочется дюбелить утеплитель. Посилання на коментар Поділитися на інших сайтах More sharing options...
serg_09 Опубліковано: 2 липня 2015 Поділитись Опубліковано: 2 липня 2015 Спасибо,Дмитрий.Я понимаю что из бетона лучше будет,но нет возможности самому залить такую высокую стену,если бы можно было лить частями,то да.Если все-таки делать из кирпича то в два кирпича -достаточно? Посилання на коментар Поділитися на інших сайтах More sharing options...
jara Опубліковано: 5 липня 2015 Поділитись Опубліковано: 5 липня 2015 В планах фундамент з блоків ФБС.Чи існує необхідність стягувати блоки ФБС на кутах арматурую чи катанкою?Дякую. Посилання на коментар Поділитися на інших сайтах More sharing options...
Polll Опубліковано: 9 липня 2015 Поділитись Опубліковано: 9 липня 2015 Доброго дня, Дмитро. Роблю бетонні сходи. Ширина 1000мм, висота 3170мм. З поворотними сходинками. Під поворотними сходинками стовпчик 400х400мм. Маю багато арматури 8-ки, яку б хотів використати. Чи можна нею заармувати сходи? Якщо так, тоді який дати крок між арматурами? Посилання на коментар Поділитися на інших сайтах More sharing options...
t-projekt Опубліковано: 10 липня 2015 Автор Поділитись Опубліковано: 10 липня 2015 Большое спасибо, все записал. Единственный вопрос. Если не опирать на ленту, то придется делать подсыпку как следует? То есть делать не плиту, а стяжку по грунту? Или я запутался? И нужно ли как-то армировать места где предполагаются перегородки? То армитрование, которое я указал в полной мере справится с нагрузкой от перегородок - т.е. доп. армирования не требуется. Да подсыпку надо делать качественно с уплотнением. Добавлено через 2 минуты Доброго дня, Дмитро. Роблю бетонні сходи. Ширина 1000мм, висота 3170мм. З поворотними сходинками. Під поворотними сходинками стовпчик 400х400мм. Маю багато арматури 8-ки, яку б хотів використати. Чи можна нею заармувати сходи? Якщо так, тоді який дати крок між арматурами? Не до конца понятна схема. Ступени опираются на столб и на верхний и нижний уровни? По внешнему контуру операния нет? Добавлено через 2 минуты В планах фундамент з блоків ФБС.Чи існує необхідність стягувати блоки ФБС на кутах арматурую чи катанкою?Дякую. Блоки между собой связываются монолитной подошвой внизу и монолитным поясом поверху. Но все еще зависит от того, под что Вы планируете фундамент. Добавлено через 4 минуты Имеется такое утепление фундамента. ЭППС армирован сеткой. Вопрос. Можно ли как-то расчитать хоть примерно, выдержит ли констукция плитку? Очень не хочется дюбелить утеплитель. Вам нужно смотреть характеристики клея и раствора на что это все наклеено. И смотря еще что за плитка (гранитная облицовка или керамика и т.д.). 2 Посилання на коментар Поділитися на інших сайтах More sharing options...
Polll Опубліковано: 10 липня 2015 Поділитись Опубліковано: 10 липня 2015 Не до конца понятна схема. Ступени опираются на столб и на верхний и нижний уровни? По внешнему контуру операния нет? На схемі місця опирання позначив оранжевим. Посилання на коментар Поділитися на інших сайтах More sharing options...
Kael Опубліковано: 14 липня 2015 Поділитись Опубліковано: 14 липня 2015 Дмитрий, добрый день! Подскажите пож-та как рационально спланировать постройки на участке. Участок 8 соток, планируется постройка 2х этажного дома 10x10 или 10x12, с цоколем и гаражом на 2 авто(гараж будет находится пристроем сбоку, так как одна из машин очень низкая и в цоколь не заедет), а так же баня, ну и небольшая зона отдыха. Дом все таки решили строить из газобетона с внутренней отделкой под дерево. Хотели из дерева, но так как он будет долго оседать и нужно будет утеплять его утеплителями, а все утеплители пропитаны всякой химией, дом становится не экологичным. Зимы холодные, доходит до -40 Посилання на коментар Поділитися на інших сайтах More sharing options...
jara Опубліковано: 16 липня 2015 Поділитись Опубліковано: 16 липня 2015 Блоки между собой связываются монолитной подошвой внизу и монолитным поясом поверху. Но все еще зависит от того, под что Вы планируете фундамент.Фундамент під цокольне приміщення.По проекту так і є лента і армопояс зверху.Між ними 3 ряди блоків. Ще в нас виникла проблема,по можливості прокоментуйте.Дякую. www.stroimdom.com.ua/forum/showthread.php?t=183379 Посилання на коментар Поділитися на інших сайтах More sharing options...
t-projekt Опубліковано: 17 липня 2015 Автор Поділитись Опубліковано: 17 липня 2015 Доброго дня, Дмитро. Роблю бетонні сходи. Ширина 1000мм, висота 3170мм. З поворотними сходинками. Під поворотними сходинками стовпчик 400х400мм. Маю багато арматури 8-ки, яку б хотів використати. Чи можна нею заармувати сходи? Якщо так, тоді який дати крок між арматурами? Давайте 100мм в две сетки (верх и низ) и будет достаточно. Добавлено через 2 минуты Дмитрий, добрый день! Подскажите пож-та как рационально спланировать постройки на участке. Участок 8 соток, планируется постройка 2х этажного дома 10x10 или 10x12, с цоколем и гаражом на 2 авто(гараж будет находится пристроем сбоку, так как одна из машин очень низкая и в цоколь не заедет), а так же баня, ну и небольшая зона отдыха. Дом все таки решили строить из газобетона с внутренней отделкой под дерево. Хотели из дерева, но так как он будет долго оседать и нужно будет утеплять его утеплителями, а все утеплители пропитаны всякой химией, дом становится не экологичным. Зимы холодные, доходит до -40 Дайте план участка, с указанием сторон света, соседей и дороги (въезда) ну и другие нюансы (инженерные коммуникации и т.д. если есть что-то на участке) Посилання на коментар Поділитися на інших сайтах More sharing options...
bogdansmc Опубліковано: 18 липня 2015 Поділитись Опубліковано: 18 липня 2015 Здравствуйте Стоим перед вопросом размещения строений/насаждений на участке. Создал для этого тему: www.stroimdom.com.ua/forum/showthread.php?t=183514 Можете помочь? По дому - планируется что-то типа польского z10, но скорее всего будем переделывать (или заказывать индивидуальный). По гаражу - планируется в будущем (когда полностью закончим дом и переедем), то есть пока будет на его месте газон. Хотелось бы деревьев плодовых немного, а также декоративных каких-то + много газона Буду благодарен за любые подсказки, так как планируем с весны начинать стройку, а до этого времени еще есть миллион вопросов/задач Посилання на коментар Поділитися на інших сайтах More sharing options...
Yevgenfree Опубліковано: 20 липня 2015 Поділитись Опубліковано: 20 липня 2015 Уважаемый Дмитрий! Есть такой проект dom4m.com.ua/proekt-dvuhetagnogo-doma-s-dopolnitelnymi-spalnjami/ но хочется с цокольным этажом и отдельным приямком для входа, а также уровнять стену первого и цокольного этажа со стеной на втором этаже ( ну чтобы была прямая стена). Имея готовый проект с сайта, сложно ли сделать расчеты и допроектировать согласно вышеперечисленного. На фирме говорят что это индивидуальный проект и требуют 120грн/м2. Есть ли возможность уменьшить стоимость ? С Уважением Евгений. Посилання на коментар Поділитися на інших сайтах More sharing options...
t-projekt Опубліковано: 24 липня 2015 Автор Поділитись Опубліковано: 24 липня 2015 Уважаемый Дмитрий! Есть такой проект dom4m.com.ua/proekt-dvuhetagnogo-doma-s-dopolnitelnymi-spalnjami/ но хочется с цокольным этажом и отдельным приямком для входа, а также уровнять стену первого и цокольного этажа со стеной на втором этаже ( ну чтобы была прямая стена). Имея готовый проект с сайта, сложно ли сделать расчеты и допроектировать согласно вышеперечисленного. На фирме говорят что это индивидуальный проект и требуют 120грн/м2. Есть ли возможность уменьшить стоимость ? С Уважением Евгений. Да есть варианты. Но коммерческие вопросы прошу задавать в личке, либо, по контактам на моей страничке. В ветках форума обсуждения коммерческих вопросов плохо воспринимаются администрацией сайта. Посилання на коментар Поділитися на інших сайтах More sharing options...
Oksimama Опубліковано: 29 липня 2015 Поділитись Опубліковано: 29 липня 2015 (ссылка устарела) Добавлено через 7 минут (ссылка устарела) Добрый день, это ссылка на понравившийся проект, есть по нему ряд вопросов. 1. Переместить кухонную зону таким образом чтобы она было более скрыта от глаз. 2. Вместо гаража сделать жилую зону. (площадь участка позволяет построить отдельно стоящий гараж 25 соток) Интересно ваше мнение по поводу проекта, обратите внимание на стеклянную крышу. мы думаем сделать ее не в одной плоскости, а приподнять над уровнем по типу купола(только квадратной формы). Как это отразиться на потерях тепла? Что вы думаете по поводу фундамента. у нас насыпной грунт на участке ( суглинок) есть ли смысл ставить сваи? или достаточно будет сделать фундамент по типу стакан? Жду отзывы, Ваше мнение важно!!! 1 Посилання на коментар Поділитися на інших сайтах More sharing options...
t-projekt Опубліковано: 29 липня 2015 Автор Поділитись Опубліковано: 29 липня 2015 (ссылка устарела) Добавлено через 7 минут (ссылка устарела) Добрый день, это ссылка на понравившийся проект, есть по нему ряд вопросов. 1. Переместить кухонную зону таким образом чтобы она было более скрыта от глаз. 2. Вместо гаража сделать жилую зону. (площадь участка позволяет построить отдельно стоящий гараж 25 соток) Интересно ваше мнение по поводу проекта, обратите внимание на стеклянную крышу. мы думаем сделать ее не в одной плоскости, а приподнять над уровнем по типу купола(только квадратной формы). Как это отразиться на потерях тепла? Что вы думаете по поводу фундамента. у нас насыпной грунт на участке ( суглинок) есть ли смысл ставить сваи? или достаточно будет сделать фундамент по типу стакан? Жду отзывы, Ваше мнение важно!!! Кухонную зону можно перенести в отдельное помещение, либо сделать дополнительные перестенки. Это все можно организовать за счет переделки зоны гаража и реорганизовать расположение топочной кухни и жилой комнаты. Стеклянная крыша это не энергосберегающие мероприятие поэтому следует готовиться к повышенным тепло потерям. Какой фундамент свайный или нет - это вопрос геологии. Ваших данных не достаточно для ответа на этот вопрос даже ориентировочно. Посилання на коментар Поділитися на інших сайтах More sharing options...
Dmitry Grishchenko Опубліковано: 29 липня 2015 Поділитись Опубліковано: 29 липня 2015 Дмитрий, добрый день! Оцените, пожалуйста, корректность конструктивных решений фундаментов. Спасибо. (ссылка устарела) (ссылка устарела) (ссылка устарела) (ссылка устарела) (ссылка устарела) (ссылка устарела) (ссылка устарела) (ссылка устарела) (ссылка устарела) (ссылка устарела) (ссылка устарела) Посилання на коментар Поділитися на інших сайтах More sharing options...
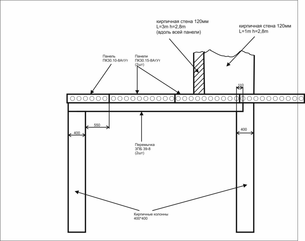
simon21 Опубліковано: 2 серпня 2015 Поділитись Опубліковано: 2 серпня 2015 Здравствуйте Дмитрий. Нужна консультация следующего характера. В доме в месте установки лестницы на кирпичных колоннах 400*400 установлены перемычки 3ПБ-39-8, на которые опираются плиты перекрытия ПК30.15-8АтУт полностью, ПК30.15-8АтУт и ПК30.10-8АтУт - частично. Опасение вызывает тот факт, что в проекте предусматривалось три перемычки под опору панелей, а в процессе строительства, при укладке плит, задействованы были только две перемычки. (Колонны выставлены согласно проекта, возможно длина плит была на 10см короче, либо просчет в проекте). Не задействованную перемычку демонтировали, тем самым расширив лестницу с 90см до 1м. На тот момент строители уверяли, что она абсолютно не нужна, только дополнительная нагрузка на колонны. Дом простоял семь лет и сейчас начаты работы по укладке стяжки. В связи с этим и возник вопрос - достаточно ли двух перемычек для увеличивающейся нагрузки ЦП стяжки (средний слой 60мм), или необходимо установить (для надежности) третью балку (двутавр например) с другой стороны под панелями. На одной из плит на втором этаже выстроены перестенки 120мм. Прилагаю фото и схематический чертеж (панели перекрытия в разрезе) для представления картины. Посилання на коментар Поділитися на інших сайтах More sharing options...
Dandik Опубліковано: 2 серпня 2015 Поділитись Опубліковано: 2 серпня 2015 Здравствуйте Дмитрий. Нужна консультация следующего характера. В доме в месте установки лестницы на кирпичных колоннах 400*400 установлены перемычки 3ПБ-39-8, на которые опираются плиты перекрытия ПК30.15-8АтУт полностью, ПК30.15-8АтУт и ПК30.10-8АтУт - частично. Опасение вызывает тот факт, что в проекте предусматривалось три перемычки под опору панелей, а в процессе строительства, при укладке плит, задействованы были только две перемычки. (Колонны выставлены согласно проекта, возможно длина плит была на 10см короче, либо просчет в проекте). Не задействованную перемычку демонтировали, тем самым расширив лестницу с 90см до 1м. На тот момент строители уверяли, что она абсолютно не нужна, только дополнительная нагрузка на колонны. Дом простоял семь лет и сейчас начаты работы по укладке стяжки. В связи с этим и возник вопрос - достаточно ли двух перемычек для увеличивающейся нагрузки ЦП стяжки (средний слой 60мм), или необходимо установить (для надежности) третью балку (двутавр например) с другой стороны под панелями. На одной из плит на втором этаже выстроены перестенки 120мм. Прилагаю фото и схематический чертеж (панели перекрытия в разрезе) для представления картины. [ATTACH]453138[/ATTACH] [ATTACH]453139[/ATTACH] [ATTACH]453140[/ATTACH] [ATTACH]453141[/ATTACH] Проходил мимо, решил ответить на Ваш вопрос. Немного размышлений для начала. Ваша плита длиной 3м выдерживает максимальную нагрузку 800 кг на м2 исходя из маркировки. Усилие в месте опирания плиты будет Q=800*3*0.5= 1200 кг на м.п. Отсюда минимальная несущая способность перемычки 1200 кг на м.п. У вас две перемычки с несущей способностью по 800 кг, вместе 1600кг. При идеализации данного случая, что обе одинаково воспринимают нагрузку от плиты, то у каждой остается по 200 кг на м.п. запаса несущей способности. На фото я вижу, что плита частично заходит на 2-ю перемычку и полностью лежит на 1-й. Если явных трещин на первой перемычке нет после семи лет, то возможно усиление и не требуется. Также плиты у Вас частично опираются по краю, что уменьшает нагрузку на перемычки. 1 Посилання на коментар Поділитися на інших сайтах More sharing options...
t-projekt Опубліковано: 3 серпня 2015 Автор Поділитись Опубліковано: 3 серпня 2015 Дмитрий, добрый день! Оцените, пожалуйста, корректность конструктивных решений фундаментов. Спасибо. (ссылка устарела) (ссылка устарела) (ссылка устарела) (ссылка устарела) (ссылка устарела) (ссылка устарела) (ссылка устарела) (ссылка устарела) (ссылка устарела) (ссылка устарела) (ссылка устарела) В общем все нормально. Особых проблем не увидел с поверхностной оценки. Грунты хорошие под подошвой - надеюсь глубже такие же. Общие решения по фундаментам понятны и логичны. Добавлено через 14 минут Здравствуйте Дмитрий. Нужна консультация следующего характера. В доме в месте установки лестницы на кирпичных колоннах 400*400 установлены перемычки 3ПБ-39-8, на которые опираются плиты перекрытия ПК30.15-8АтУт полностью, ПК30.15-8АтУт и ПК30.10-8АтУт - частично. Опасение вызывает тот факт, что в проекте предусматривалось три перемычки под опору панелей, а в процессе строительства, при укладке плит, задействованы были только две перемычки. (Колонны выставлены согласно проекта, возможно длина плит была на 10см короче, либо просчет в проекте). Не задействованную перемычку демонтировали, тем самым расширив лестницу с 90см до 1м. На тот момент строители уверяли, что она абсолютно не нужна, только дополнительная нагрузка на колонны. Дом простоял семь лет и сейчас начаты работы по укладке стяжки. В связи с этим и возник вопрос - достаточно ли двух перемычек для увеличивающейся нагрузки ЦП стяжки (средний слой 60мм), или необходимо установить (для надежности) третью балку (двутавр например) с другой стороны под панелями. На одной из плит на втором этаже выстроены перестенки 120мм. Прилагаю фото и схематический чертеж (панели перекрытия в разрезе) для представления картины. [ATTACH]453138[/ATTACH] [ATTACH]453139[/ATTACH] [ATTACH]453140[/ATTACH] [ATTACH]453141[/ATTACH] Решение с этими перемычками неверное. Нагрузки на перемычку у Вас на пределе. В данном конструктиве все нагрузки эффективно воспринимает только одна перемычка (две перемычки здесь не работают совместно.), так как эффективная ширина опирания плит перекрытия до 120мм. 1 Посилання на коментар Поділитися на інших сайтах More sharing options...
simon21 Опубліковано: 3 серпня 2015 Поділитись Опубліковано: 3 серпня 2015 Решение с этими перемычками неверное. Нагрузки на перемычку у Вас на пределе. В данном конструктиве все нагрузки эффективно воспринимает только одна перемычка (две перемычки здесь не работают совместно.), так как эффективная ширина опирания плит перекрытия до 120мм. Выходит, данные перемычки нельзя было вообще использовать? Посоветуйте, что можно предпринять в данной ситуации. Посилання на коментар Поділитися на інших сайтах More sharing options...
t-projekt Опубліковано: 3 серпня 2015 Автор Поділитись Опубліковано: 3 серпня 2015 (змінено) Выходит, данные перемычки нельзя было вообще использовать? Посоветуйте, что можно предпринять в данной ситуации. Учитывая, то, что у Вас стоят стены на перекрытии, я бы рекомендовал перестраховаться. Простой вариант- стянуть перемычки между собой, чтоб они работали совместно, как одна балка. Стянуть можно шпильками повышенной прочности с шагом 0,6-0,7м через металлические распределительные пластины. Диаметр шпилек 12мм. Толщина пластин 10мм 100х100мм. Шпильки устанавливать в разбежку по высоте сечения балок. Змінено 3 серпня 2015 користувачем t-projekt Посилання на коментар Поділитися на інших сайтах More sharing options...
Рекомендовані повідомлення
Створіть акаунт або увійдіть у нього для коментування
Ви маєте бути користувачем, щоб залишити коментар
Створити акаунт
Зареєструйтеся для отримання акаунта. Це просто!
Зареєструвати акаунтУвійти
Вже зареєстровані? Увійдіть тут.
Увійти зараз