VladRed Опубліковано: 1 вересня 2021 Поділитись Опубліковано: 1 вересня 2021 Щебень есть, да и плитка уже есть, мой вопрос скорее продиктован боязнью сделать глупость и потом переделывать) Есть тонкости в этой сфере... Некоторые рекомендуют на мембрану уложить пупырчатую мембрану потом тонкий иглопробивной геотекстиль чтобы создать пространство для быстрого дренирования, а на него уже щебень и плитку. У меня сейчас толстый плотный геотекстиль, который сам по себе напитывается водой и всегда влажный... Так вот, не приведет ли это к появлению под плиткой "параллельной цивилизации" в виде флоры и фауны. Посилання на коментар Поділитися на інших сайтах More sharing options...
Propeller Опубліковано: 1 вересня 2021 Поділитись Опубліковано: 1 вересня 2021 (змінено) 6 часов назад, VladRed сказал: Щебень есть, да и плитка уже есть, мой вопрос скорее продиктован боязнью сделать глупость и потом переделывать) Есть тонкости в этой сфере... Некоторые рекомендуют на мембрану уложить пупырчатую мембрану потом тонкий иглопробивной геотекстиль чтобы создать пространство для быстрого дренирования, а на него уже щебень и плитку. 1. Иглопробивной, а тем более тонкий не будет держать форму и просто повторит рельеф шипованной. Пространство создаст только плотный термоскрепленный ГТ, желательно припаянный к верхушкам шипов. 2. Как фильтр (геотекстиль) может ускорить течение воды? Фильтр - это всегда гидравлической тормоз. Тем более фильтр, который через несколько месяцев засориться пылью, песком, глиной, которые заносит ветер. Хотел бы послушать аргументы советчиков. У меня сейчас толстый плотный геотекстиль, который сам по себе напитывается водой и всегда влажный... Так вот, не приведет ли это к появлению под плиткой "параллельной цивилизации" в виде флоры и фауны. У Вас простая задача : защитить ПВХ от проколов. Для этого на ней должно лежать что-то, что будет распределять точечные нагрузки по плоскости. Уложите на ПВХ ГТ на него шипованную толщиной 0,6 мм (вроде самая толстая) и сверху грузите щебень. В щебне все равно кто-то будет жить. Это планета Земля. Приходится мириться. Змінено 1 вересня 2021 користувачем Propeller 1 Посилання на коментар Поділитися на інших сайтах More sharing options...
PROFITEC Опубліковано: 2 вересня 2021 Поділитись Опубліковано: 2 вересня 2021 На стандартных опорах, которые идут под плитку или террасную доску, которая может устанавливаться на пвх мембрану в том числе, дополнительно можно поставить корректор угла наклона, а судя по изображениям они не предусмотрены для такого типа, из-за этого разуклон нужно будет делать основанием!? ИМХО можно сделать слой щебня им сделать нужный разуклон, на щебень положить геотекстиль и сверху смонтировать такого типа опоры с плиткой, чтобы меньше было смещений. Посилання на коментар Поділитися на інших сайтах More sharing options...
PROFITEC Опубліковано: 2 вересня 2021 Поділитись Опубліковано: 2 вересня 2021 Не совсем корректный пример, но я делал место под столик в саду: утрамбовывал грунт, постелил геотекстиль высокой плотности Тайпар и засыпал мраморной крошкой. Уже лет шесть нет никакого смещения грунта и хорошая фильтрация воды, которая уходит в грунт. 1 Посилання на коментар Поділитися на інших сайтах More sharing options...
Propeller Опубліковано: 2 вересня 2021 Поділитись Опубліковано: 2 вересня 2021 1 час назад, PROFITEC сказал: На стандартных опорах, которые идут под плитку или террасную доску, которая может устанавливаться на пвх мембрану в том числе, дополнительно можно поставить корректор угла наклона, а судя по изображениям они не предусмотрены для такого типа, из-за этого разуклон нужно будет делать основанием!? ИМХО можно сделать слой щебня им сделать нужный разуклон, на щебень положить геотекстиль и сверху смонтировать такого типа опоры с плиткой, чтобы меньше было смещений. Щебень водопрозрачный. У него нет поверхности, по которой может течь вода в какую либо сторону в горизонтальной плоскости. По щебню вода всегда течет вниз. Поэтому на инверсионках щебень как раз и выполняет функцию горизонта. Ну а геотекстиль станет поверхностью разуклонки только если он полность засрется грязью. Поэтому смысла настила ГТ на щебень тоже нет. 1 Посилання на коментар Поділитися на інших сайтах More sharing options...
PROFITEC Опубліковано: 2 вересня 2021 Поділитись Опубліковано: 2 вересня 2021 6 часов назад, Propeller сказал: Щебень водопрозрачный. У него нет поверхности, по которой может течь вода в какую либо сторону в горизонтальной плоскости. По щебню вода всегда течет вниз. Поэтому на инверсионках щебень как раз и выполняет функцию горизонта. Ну а геотекстиль станет поверхностью разуклонки только если он полность засрется грязью. Поэтому смысла настила ГТ на щебень тоже нет. ИМХО: Геотекстиль не так сильно будет давать щебню локально продавливаться в местах установки опор. 1 Посилання на коментар Поділитися на інших сайтах More sharing options...
FOX.kissfm Опубліковано: 29 березня 2023 Поділитись Опубліковано: 29 березня 2023 (змінено) Есть желание сделать на гараже эксплуатируемую кровлю. Вот такой пирог думаю реализовать. Поправьте если что не так. Змінено 29 березня 2023 користувачем FOX.kissfm Посилання на коментар Поділитися на інших сайтах More sharing options...
Propeller Опубліковано: 31 березня 2023 Поділитись Опубліковано: 31 березня 2023 (змінено) 1. 2 слоя рубероида внизу ненужны. Если у вас протечет ПВХ, то все, что будет под ПВХ и над рубероидом станет болотом. Вы это не заметите до тех пор пока не потечет рубероид. В принципе и так можно жить. Но, кровля станет со временем тяжелее и внутри нее начнется жизнь. 2. геотестиль - это тряпочка. Не представляю какую защиту от механических поврежденией он может обеспечить. 3. шипованную мембрану с геотекстилем (верхний дренажный слой) можно просто заменить шиованной мембраной и сэкономить деньги на ненужных понтах. Процентов 90 воды у вас будет отводиться с поверхности ФЭМ к воронкам. Остаток спокойно протечет в слое гранотсева или испариться. Формировать зазор между шипованной и слоем гранотсева штука бесполезная. 4. Вы себе еще придумали и инверсионную кровлю. Если у вас потечет гидра, то чтобы её залатать вам нужно будет снимать все, что над ПВХ. Змінено 31 березня 2023 користувачем Propeller Посилання на коментар Поділитися на інших сайтах More sharing options...
Propeller Опубліковано: 1 квітня 2023 Поділитись Опубліковано: 1 квітня 2023 (змінено) Альтернатива внизу. Классическая, не инверсионная кровля. 1. ФЭМ 2. Гранитный отсев или шебень 2-5 (есть такой в продаже) 3. Шипованная мембрана, уложенная шипами вверх можно брать плотность (или если сказать понтовитей, с грамматурой) 400 гр на 1 м кв. 4. Геотекстиль плотностью 100 - 200 г на м кв (чтобы обеспечивать скольжение п.3 по п.5) 5. ПВХ 6. Геотекстиль плотностью 100 - 200 г на м кв (обязательный разделительный слой между ПВХ и ЭППС. Они не дружат химически) 7. ЭППС по нормам энергосбережения толщина слоя около 180 мм. Дальше на усмотрение хозяина. 8. Стяжка.....в принципе не нужна. Смысл? Разве что, чтобы было к чему заанкерить ПВХ.... 9. Керамзитовая разуклонка (как хочет хозяин) 10. Плита перекрытия Змінено 1 квітня 2023 користувачем Propeller 1 Посилання на коментар Поділитися на інших сайтах More sharing options...
FOX.kissfm Опубліковано: 2 квітня 2023 Поділитись Опубліковано: 2 квітня 2023 (змінено) В 31.03.2023 в 13:14, Propeller сказал: 1. 2 слоя рубероида внизу ненужны. Если у вас протечет ПВХ, то все, что будет под ПВХ и над рубероидом станет болотом. Вы это не заметите до тех пор пока не потечет рубероид. В принципе и так можно жить. Но, кровля станет со временем тяжелее и внутри нее начнется жизнь. 2. геотестиль - это тряпочка. Не представляю какую защиту от механических поврежденией он может обеспечить. 3. шипованную мембрану с геотекстилем (верхний дренажный слой) можно просто заменить шиованной мембраной и сэкономить деньги на ненужных понтах. Процентов 90 воды у вас будет отводиться с поверхности ФЭМ к воронкам. Остаток спокойно протечет в слое гранотсева или испариться. Формировать зазор между шипованной и слоем гранотсева штука бесполезная. 4. Вы себе еще придумали и инверсионную кровлю. Если у вас потечет гидра, то чтобы её залатать вам нужно будет снимать все, что над ПВХ. Добрый вечер. Спасибо за ваш ответ. пойду по вашим пунктам. 1.В этом году планирую построить гараж, но не уверен что вывезу по бюджету сразу сделать эксплуатируемую кровлю. Поэтому идея была сразу перекрыть наплавляемой. А в след году делать остальные слои. 2.В целом да, но иглопробивной около 3-4мм толщиной, то есть довольно толстая тряпочка, и я подумал что она должна защитить от повреждений... нет? 3.Думал что слой геотекстиля даст хороший зазор для оттока воды. лучше чем если будет лежать прямо на мембране. но ваше замечание в целом резонно. 4.Инверисионную решил, потому что начитался о ее преимуществах, что пвх защищено максимально от механических воздействий. Что касается рисков протечек, и вообще нормального функционирования крыши, придумал такие решения: 1.избавился в проекте от всех отверстий в плите, то есть никаких труб, каналов вентиляции, электрики и всего прочего - плита максимально монолитна.(все нужные коммуникации вывел сбоку) 2.В том числе не делаю никаких воронок в середине. Так как размер крыши 5х7,5м, то решил что уклон в одну сторону не будет создавать дискомфорта при нахождении на крыше. Перепад выходит 14см. 3.Парапеты делаю почти в ровень с финишной отделкой, что бы минимально препятсвовать сдуванию снега. 4. В торце того парапета, где будет слив хочу сделать "окна" для вентиляции слоев, что бы избавиться от потенциального бассейна под плиткой. Что думаете по поводу моих изысканий? ) Змінено 2 квітня 2023 користувачем FOX.kissfm Посилання на коментар Поділитися на інших сайтах More sharing options...
FOX.kissfm Опубліковано: 2 квітня 2023 Поділитись Опубліковано: 2 квітня 2023 В 01.04.2023 в 12:05, Propeller сказал: 1. ФЭМ 2. Гранитный отсев или шебень 2-5 (есть такой в продаже) 3. Шипованная мембрана, уложенная шипами вверх можно брать плотность (или если сказать понтовитей, с грамматурой) 400 гр на 1 м кв. 4. Геотекстиль плотностью 100 - 200 г на м кв (чтобы обеспечивать скольжение п.3 по п.5) 5. ПВХ 6. Геотекстиль плотностью 100 - 200 г на м кв (обязательный разделительный слой между ПВХ и ЭППС. Они не дружат химически) 7. ЭППС по нормам энергосбережения толщина слоя около 180 мм. Дальше на усмотрение хозяина. 8. Стяжка.....в принципе не нужна. Смысл? Разве что, чтобы было к чему заанкерить ПВХ.... 9. Керамзитовая разуклонка (как хочет хозяин) 10. Плита перекрытия 6. понял, даже не думал о таком, спасибо учту. 7. ого.....это новый ДБН? буду думать, для гаража же это не столь критично? 8. Стяжку я задумывал как твердое основание. что бы можно было нормально на керамзит положить ЭППС, что б он не плавал как на волнах. 9.Чем еще дешевым и легким можете посоветовать разуклонку сделать? Посилання на коментар Поділитися на інших сайтах More sharing options...
Propeller Опубліковано: 2 квітня 2023 Поділитись Опубліковано: 2 квітня 2023 После вашего уточнения по этапам строительства понял зачем рубероид внизу. Если у вас будет односкатная кровля (поддерживаю), то може есть смысл уклон сразу сформировать плитами перекрытия? Вам будет достаточно уклона в 1%. Не думаю, что эстетика интерьера гаража пострадает. Я немного могу немого порисовать вашу кровлю. Размеры гаража 3х6? Оргаждение "ажурное" (металлические перила)? Вход на кровлю наружная лестница? п 7. не новый. Эта норма уже года 4 бродит по Украине. Но это даже не требование, а рассчитанная рекомендация. Посилання на коментар Поділитися на інших сайтах More sharing options...
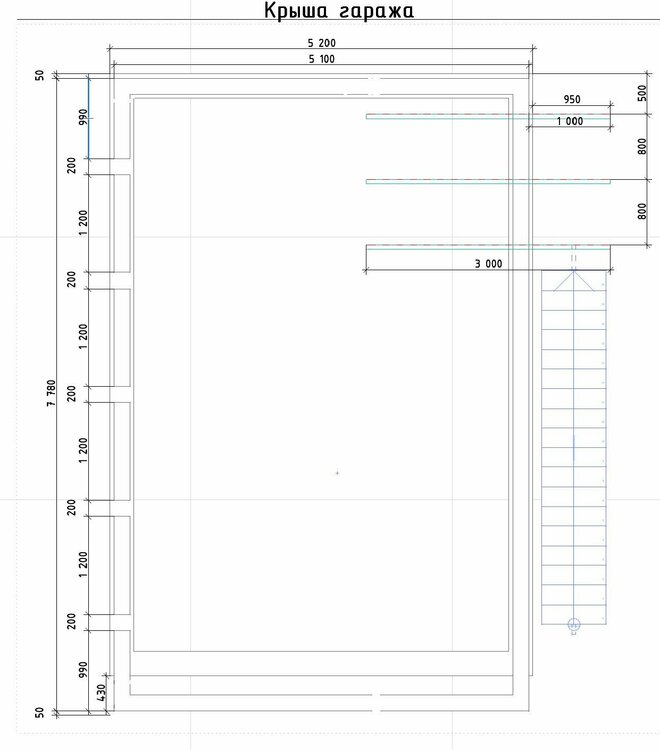
FOX.kissfm Опубліковано: 2 квітня 2023 Поділитись Опубліковано: 2 квітня 2023 59 минут назад, Propeller сказал: Если у вас будет односкатная кровля (поддерживаю), то може есть смысл уклон сразу сформировать плитами перекрытия? Вам будет достаточно уклона в 1%. Не думаю, что эстетика интерьера гаража пострадает. Я немного могу немого порисовать вашу кровлю. Размеры гаража 3х6? Оргаждение "ажурное" (металлические перила)? Вход на кровлю наружная лестница? п 7. не новый. Эта норма уже года 4 бродит по Украине. Но это даже не требование, а рассчитанная рекомендация. перекрытие будет монолит, поэтому думаю что проще все таки залить ровно. Да конечно. Размеры если по стенам то 5200х7400. Ограждение - да, вход на кровлю - да, тоже металлическая по плану. Посилання на коментар Поділитися на інших сайтах More sharing options...
Propeller Опубліковано: 3 квітня 2023 Поділитись Опубліковано: 3 квітня 2023 Пока буду рисовать задам вам еще "основополагающий" вопрос. А зачем вам на гараже площадка? Посилання на коментар Поділитися на інших сайтах More sharing options...
FOX.kissfm Опубліковано: 3 квітня 2023 Поділитись Опубліковано: 3 квітня 2023 (змінено) 20 минут назад, Propeller сказал: Пока буду рисовать задам вам еще "основополагающий" вопрос. А зачем вам на гараже площадка? Учаток совсем небольшой, поэтому пытаюсь выиграть площадь. а там по планам что то типа солярия, жена любит позагорать )) Змінено 3 квітня 2023 користувачем FOX.kissfm Посилання на коментар Поділитися на інших сайтах More sharing options...
Propeller Опубліковано: 3 квітня 2023 Поділитись Опубліковано: 3 квітня 2023 (змінено) 17 минут назад, FOX.kissfm сказал: Учаток совсем небольшой, поэтому пытаюсь выиграть площадь. а там по планам что то типа солярия, жена любит позагорать )) Тогда подводите наверх воду для душа. Просто думал, если BBQ, то с наружной лестницей и без навеса - это не сработает. Уже на форуме обсуждали. Кстати, еслу уж солярий, то может сделать зеленку? А то летом под солнцем придется принимать меры, чтобы жена не ходила по ФЭМовской сковородке. Змінено 3 квітня 2023 користувачем Propeller Посилання на коментар Поділитися на інших сайтах More sharing options...
FOX.kissfm Опубліковано: 3 квітня 2023 Поділитись Опубліковано: 3 квітня 2023 3 часа назад, Propeller сказал: Тогда подводите наверх воду для душа. Кстати да, совсем не подумал об этом. А на счет зеленки - то максимум иксуственную, в нашем климате все зеленка на крыше в "сушонку" превратиться ) Посилання на коментар Поділитися на інших сайтах More sharing options...
Propeller Опубліковано: 3 квітня 2023 Поділитись Опубліковано: 3 квітня 2023 43 минуты назад, FOX.kissfm сказал: Кстати да, совсем не подумал об этом. А на счет зеленки - то максимум иксуственную, в нашем климате все зеленка на крыше в "сушонку" превратиться ) Для того, чтобы не было сушонки применяется шипованная мембрана с высотой нипа не 8 мм, а 20 мм. И кладется шипами вниз. То есть, сверху вниз : трава, грунт, геотекстиль, шипованная 20 мм, геотекстиль, ПВХ ну и т.д. Получаете море чашечек с водой. Сразу : это не по ДБН. 1 Посилання на коментар Поділитися на інших сайтах More sharing options...
Propeller Опубліковано: 3 квітня 2023 Поділитись Опубліковано: 3 квітня 2023 Если уклон 1 % будет сделан вдоль большей стороны, то будет достаточно сделать парапет высотой 400 мм (газоблок поставить на бок). Если он будет оштукатурен, то 420 мм. Толщина керамзита в нижней точке около парапетных воронок = 60 мм, в верхней (противоположная сторона кровли) 130 мм, стяжка = 50 мм, ЭППС = 100 мм, щебень = 60 мм, ФЭМ = 60 мм. На рис.11 вид издалека. На рис. 12. около парапетной воронки. Я не работал и не работаю с ПВХ, поэтому их сливные воронки не знаю. Отверстие в парапете должно отводить воду в ФЭМ и объема под ФЭМ, над ПВХ гидрой. Посилання на коментар Поділитися на інших сайтах More sharing options...
Zak Опубліковано: 1 серпня 2023 Поділитись Опубліковано: 1 серпня 2023 Хочу спробувати ПВХ мембрану поверх поліуретанової мастики. У нас на форумі хтось займається ПВХ кровлями? Основні претензії до існуючої кровлі: - Поява тріщінок в місцях тріщин стяжки та примиканнь парапету. По площині ці процеси наче устаканились, основні тріщини я розшив, заповнив герметиком та армував скловолокном. А на примиканнях то тут, то там тріщінки постійно з'являються. - В місцях де уклон не ідеальний і застоюється вода, дах покрився чорним нальотом котрий практично не відмивається. - Сам матеріал з часом розпадається. В общем якщо помити дах тряпкою, то тряпка фарбується в сірий колір. Теж саме якщо провести пальцем після дощу, палець буде сірий, в колір матеріалу. Коли робився дах, дещо неправильно були зроблені водостоки (див фото), чи можна щось придумати з ПВХ щоб їх повністю не переробляти, бо фасад вже готов? Дах робив сам, тому не виключаю що проблеми через мої помилки, а не через проблеми з матеріалом, і професійна бригада переробить так що цих проблем більше не буде. Но тим не менш хочу спробувати ПВХ. Посилання на коментар Поділитися на інших сайтах More sharing options...
Технология Строительства Опубліковано: 2 серпня 2023 Поділитись Опубліковано: 2 серпня 2023 23 часа назад, Zak сказал: У нас на форумі хтось займається ПВХ кровлями? Воронку парапетну туди не вставити для ПВХ мембрани, потрібно розбивати перфоратором і вставлять; ПВХ мембрана повинна заходити на весь парапет, перекривати його із зовнішньої сторони робиться ПВХ капельник, або такі накривки. Фасад з утепленням мабуть? ПВХ мембрана монтується до утеплювача, для того, щоб зробити якісне примикання на внутрішніх стінах, треба знімати утеплювач, або монтувати вузл кутиками із напиленням ПВХ мембрани, а далі, або нове покриття, або залишиться так на все життя. З часом ПВХ мембрана також стане брудна, щоб не мити покрівлю і захистити мембрану від ультрафіолету настиляється поверх мембрани ПВХ геотестиль, і далі декоративні камінчики (не білого кольору) =). 1 Посилання на коментар Поділитися на інших сайтах More sharing options...
FOX.kissfm Опубліковано: 2 серпня 2023 Поділитись Опубліковано: 2 серпня 2023 (змінено) В 03.04.2023 в 19:27, Propeller сказал: Если уклон 1 % будет сделан вдоль большей стороны, то будет достаточно сделать парапет высотой 400 мм (газоблок поставить на бок). Если он будет оштукатурен, то 420 мм. Толщина керамзита в нижней точке около парапетных воронок = 60 мм, в верхней (противоположная сторона кровли) 130 мм, стяжка = 50 мм, ЭППС = 100 мм, щебень = 60 мм, ФЭМ = 60 мм. На рис.11 вид издалека. На рис. 12. около парапетной воронки. Я не работал и не работаю с ПВХ, поэтому их сливные воронки не знаю. Отверстие в парапете должно отводить воду в ФЭМ и объема под ФЭМ, над ПВХ гидрой. Наконец то добрался до форума и вашего совета, спасибо. Стройка полным ходом, и не до форумов было ) подобрались к перекрытию и будем скоро делать парапет. Решил я в последний момент поменять направление уклона и сделать его вдоль короткой стороны. Это связано и с рельефом участка и с тем что в таком варианте он будет не таким дискомфортным, как если бы делался вдоль длинной стороны. Высота парапета будет 40см, как вы говорили. Хотел еще пару советов от вас. Я думал делать пробелы в парапете на всю высоту пирога, а не только до ПВХ - что бы вентилировалось весь подкровельный пирог. Что вы дымаете по этому поводу? но тут еще один вопрос - чем отсечь материалы пирога от высыпания наружу? Нержавеющая сетка? не сведет ли это на нет утепление плиты? надо ли делать какие то отверстия в противоположном парапете для того что бы воздух проходил на сквозь? Какой ширины оптимально делать промежутки в парапете? у меня по плану 20 см, минус 5см с двух сторон ЭППС остается 10см.... но я думаю не много ли это? и как часто их делать? Змінено 2 серпня 2023 користувачем FOX.kissfm Посилання на коментар Поділитися на інших сайтах More sharing options...
Propeller Опубліковано: 3 серпня 2023 Поділитись Опубліковано: 3 серпня 2023 Я думал делать пробелы в парапете на всю высоту пирога, а не только до ПВХ - что бы вентилировалось весь подкровельный пирог. Что вы дымаете по этому поводу? То есть, если смотреть в амбразуру парапета, ко можно будет увидеть разрез всего кровельного пирога? Ну...это новаторство. Вентиляции не получится, так как у вас с другой стороны все герметично. Нет сквозняка. Да и нафиг он там. Если, честно я уже устал здесь всех успокаивать с "пар поднимется через плиту перкрытия". Последний раз писал в одной из тем этой ветки. Это фобия поклонников скатных кровель с минераловатным утепелением, которая передается в эфире. но тут еще один вопрос - чем отсечь материалы пирога от высыпания наружу? Нержавеющая сетка? не комментирую. не сведет ли это на нет утепление плиты? не комментирую. надо ли делать какие то отверстия в противоположном парапете для того что бы воздух проходил на сквозь? не комментирую Я не комменгтирую новаторство, основанное на фобии, которая необоснована и решение проблем, связанное с этой фобией может привести только к ухудшению изделия под названием односкатная плоская кровля. Какой ширины оптимально делать промежутки в парапете? у меня по плану 20 см, минус 5см с двух сторон ЭППС остается 10см.... но я думаю не много ли это? и как часто их делать? Даже на кровле в 100 м кв достаточно 1 парепетной воронки сечением 100х100 мм. Но обычно делают 2 (по правилам должна быть запасная). 3 Посилання на коментар Поділитися на інших сайтах More sharing options...
Zak Опубліковано: 4 серпня 2023 Поділитись Опубліковано: 4 серпня 2023 (змінено) В 02.08.2023 в 10:37, Технология Строительства сказал: Фасад з утепленням мабуть? ПВХ мембрана монтується до утеплювача, для того, щоб зробити якісне примикання на внутрішніх стінах, треба знімати утеплювач, або монтувати вузл кутиками із напиленням ПВХ мембрани, а далі, або нове покриття, або залишиться так на все життя. Фасад не утеплений. По газоблоку нанесена штукатурка баранець. Розглядаю варіант як на фото: верхній край мембрани закріплений металевим профілем, десь посередині висоти парапета. Чи можливо так зробити в моєму випадку без переробки фасаду? Змінено 4 серпня 2023 користувачем Zak Посилання на коментар Поділитися на інших сайтах More sharing options...
Технология Строительства Опубліковано: 4 серпня 2023 Поділитись Опубліковано: 4 серпня 2023 11 часов назад, Zak сказал: Розглядаю варіант як на фото: верхній край мембрани закріплений металевим профілем, десь посередині висоти парапета. Чи можливо так зробити в моєму випадку без переробки фасаду? Герметик поліуретановий може не приклеїтися до декоративної штукатурки, на торці буде герметик, може варіант додати туди кутик з напилом ПВХ, і він зайде в стіну (прорізати штробу), так буде краще, ніж просто прижимна планка. Посилання на коментар Поділитися на інших сайтах More sharing options...
Рекомендовані повідомлення
Створіть акаунт або увійдіть у нього для коментування
Ви маєте бути користувачем, щоб залишити коментар
Створити акаунт
Зареєструйтеся для отримання акаунта. Це просто!
Зареєструвати акаунтУвійти
Вже зареєстровані? Увійдіть тут.
Увійти зараз