slava_kharkov Опубліковано: 24 вересня 2015 Поділитись Опубліковано: 24 вересня 2015 Собираюсь крыть крышу по весне. Изображение с размерами прикрепляю. Стропила буду сращивать шпильками. Мансарда - жилая, висячие стропила. Прошу критики по моим следующим решениям 1. Рамер стропил 50*150 2. Частота стропил - каждые 100 см 3. Вертикальтые стоевые там где от пола до кровли 1,5 метра. На каждую стропилину. 4. Мауэрлат 150*70. Заранее благодарен! Посилання на коментар Поділитися на інших сайтах More sharing options...
Технология Строительства Опубліковано: 24 вересня 2015 Поділитись Опубліковано: 24 вересня 2015 Прошу критики по моим следующим решениям 1. Рамер стропил 50*150 2. Частота стропил - каждые 100 см 3. Вертикальтые стоевые там где от пола до кровли 1,5 метра. На каждую стропилину. 4. Мауэрлат 150*70. Мауэрлат можно взять 100х100 мм; Стропила можно взять 200х50 мм и утепления сделать толщиной 200 мм; Затяжки не забудьте поставить 1 Посилання на коментар Поділитися на інших сайтах More sharing options...
slava_kharkov Опубліковано: 24 вересня 2015 Автор Поділитись Опубліковано: 24 вересня 2015 Мауэрлат можно взять 100х100 мм; Стропила можно взять 200х50 мм и утепления сделать толщиной 200 мм; Затяжки не забудьте поставить 150мм утеплителя для жилой мансарды мало? Не знаю что такое затяжки, подскажите пожалуйста. Посилання на коментар Поділитися на інших сайтах More sharing options...
Технология Строительства Опубліковано: 24 вересня 2015 Поділитись Опубліковано: 24 вересня 2015 150мм утеплителя для жилой мансарды мало? 150 мм достаточно будет для мансарды, у меня вообще на даче 100 мм, просто люди сейчас хотят сделать крышу, которая как можно меньше теряла тепла, из-за цен на отопления. Что бы стропила не разъехались ставят горизонтальные затяжки. Посилання на коментар Поділитися на інших сайтах More sharing options...
Yurii_ Опубліковано: 25 вересня 2015 Поділитись Опубліковано: 25 вересня 2015 (змінено) Крыша у меня похожая. Я стропила ставил через 60 см, утеплялся 200 мм руллонной ваты, руллоны резали напополам и раскатывали по скату с нахлестами между слоями. Длина ваты в руллоне 7,5 метра была Змінено 25 вересня 2015 користувачем Yurii_ Посилання на коментар Поділитися на інших сайтах More sharing options...
Ник777 Опубліковано: 25 вересня 2015 Поділитись Опубліковано: 25 вересня 2015 Ну почему в нашей стране все разбираются в политике медицине и строительстве. При этом президент кондитер, медицина до последнего гроша в кармане, а про строительство обще не понятно зачем люди в институтах учатся (сопромат там всякий). Чего проще-спросил на форуме , тебе таки еже ответили. Тяп ляп дом готов. А потом сопли размазываете- треснуло, дует ,холодно,отвалилось,пахнет. Посилання на коментар Поділитися на інших сайтах More sharing options...
slava_kharkov Опубліковано: 25 вересня 2015 Автор Поділитись Опубліковано: 25 вересня 2015 Ну почему в нашей стране все разбираются в политике медицине и строительстве. При этом президент кондитер, медицина до последнего гроша в кармане, а про строительство обще не понятно зачем люди в институтах учатся (сопромат там всякий). Чего проще-спросил на форуме , тебе таки еже ответили. Тяп ляп дом готов. А потом сопли размазываете- треснуло, дует ,холодно,отвалилось,пахнет. Можно долго обсуждать причнно-следственные связи подобных явлений, но предпологаю что вопрос Ваш - риторический. Уверен, при правильном подходе, и ровных руках дом постороенный нестроителем для себя зачастую получше дома построенного строителем не для себя. Благодаря этому форуму и отзывчивым людям - все получается хорошо. Может, конечно, некоторых строителей расстраивает то что люди многие работы выполняют сами, предварительно почерпнув знания из сети. Но из того что я на сегодняшний день построил себе сам - могу смело заявить что ничего сложного мне не встретилось. 2 Посилання на коментар Поділитися на інших сайтах More sharing options...
sheff Опубліковано: 25 вересня 2015 Поділитись Опубліковано: 25 вересня 2015 Стропила конечно лучше через 58-59 (60) поставить. утеплитель кроится практически без отхода , да и 200 мм все таки лучше чем 150. А если металл на крыше, то чем больше тем лучше. Посилання на коментар Поділитися на інших сайтах More sharing options...
Ник777 Опубліковано: 25 вересня 2015 Поділитись Опубліковано: 25 вересня 2015 А если металл на крыше, то чем больше тем лучше. Во-во, 700на800 клееный!!!! Посилання на коментар Поділитися на інших сайтах More sharing options...
Hordi Опубліковано: 25 вересня 2015 Поділитись Опубліковано: 25 вересня 2015 150 мм достаточно будет для мансарды Все-же 150мм маловато, нужно 200 либо более. Посилання на коментар Поділитися на інших сайтах More sharing options...
sheff Опубліковано: 25 вересня 2015 Поділитись Опубліковано: 25 вересня 2015 А если металл на крыше, то чем больше тем лучше. Во-во, 700на800 клееный!!!! вообщето речь идет об утеплители Посилання на коментар Поділитися на інших сайтах More sharing options...
Ник777 Опубліковано: 25 вересня 2015 Поділитись Опубліковано: 25 вересня 2015 вообщето речь идет об утеплители Вообще речь идет о жилой мансарде. Кровлю надо рассчитывать согласно снеговым нагрузкам региона. Использовать надо дифузионную мембрану а не гидробарьеры. утеплитель не должен касаться мембраны . правильная укладка в местах стыков с стенами. плетенка чтобы утеплитель не сползал.двойной каркас для гипса стен и потолка. и это все при условии что ваши рабочии смогут правильно уложить металлочерепицу, особенно в местах примыканий. В общем хорошая кровля это серьезно!!! Делать работу должна фирма с доками и договором, чтобы можно было потом спросить за хр... работу и испорченный материал. П.С. Первый обман на строительстве кровли начинается с обработки лесоматериалов. В идеале собранная стропильная часть разбирается и сутки вымачивается в противогрибковых и противопожарных растворах. Вам в лучшем случае помажут кисточкой а места запилов останутся не обработанными. Посилання на коментар Поділитися на інших сайтах More sharing options...
sheff Опубліковано: 25 вересня 2015 Поділитись Опубліковано: 25 вересня 2015 ТС не указал материал кровли, это было предположение. Всё остальное верно, но одно но, разве в случае использования супердифузионной мембраны утеплитель не может касаться её.... без зазоров? А по поводу обработки леса есть много тем в которых подобные дискуссии уже имели место, так что я пас :D. Посилання на коментар Поділитися на інших сайтах More sharing options...
Ник777 Опубліковано: 25 вересня 2015 Поділитись Опубліковано: 25 вересня 2015 в случае использования супердифузионной мембраны утеплитель не может касаться её.... без зазоров? Дело в том что практика показывает что при монтаже утеплителя точки соприкосновения все равно будут.Мембрана это допускает а с гидробарьером это беда-малейшее касание и утеплитель намокает со всеми вытекающими последствиями. Поэтому наличие зазора а значит вентиляции необходимо. Посилання на коментар Поділитися на інших сайтах More sharing options...
atco Опубліковано: 26 вересня 2015 Поділитись Опубліковано: 26 вересня 2015 150 мм достаточно будет для мансарды, у меня вообще на даче 100 мм, просто люди сейчас хотят сделать крышу, которая как можно меньше теряла тепла, из-за цен на отопления. Что бы стропила не разъехались ставят горизонтальные затяжки. У Вас может быть хоть 50 мм утеплителя или вообще не быть... Вопрос только в том,сколько бабла будет улетать через него.... Посилання на коментар Поділитися на інших сайтах More sharing options...
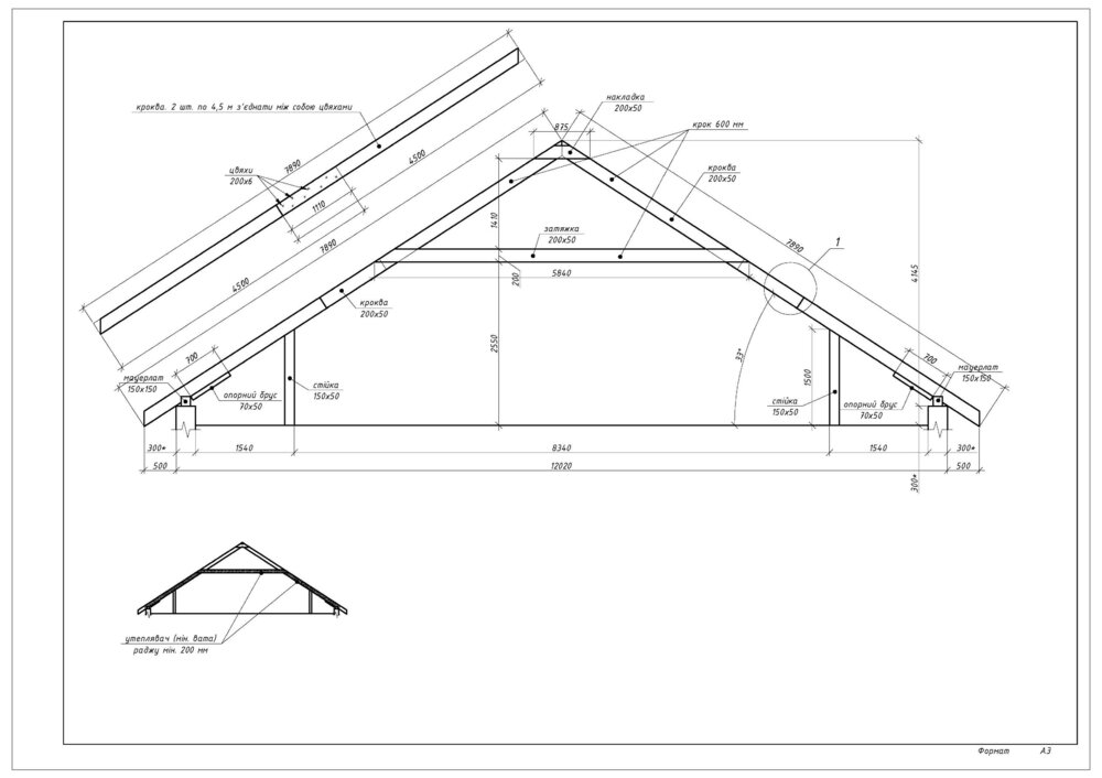
Andre 2015 Опубліковано: 2 жовтня 2015 Поділитись Опубліковано: 2 жовтня 2015 Всі з'єднання дерев'яних елементів раджу робити цвяхами, скобами. Гайки на шпильці треба буде підтягувати через деякий час. Дерево на покрівлю буде скоріш "сире" при висиханні зменшиться в об'ємі, прослабне затяжка гайок. Якщо будуєтесь в Харкові, то у вас снігу 138 кг/м.кв. Крокви з кроком 600 мм. Утеплювача мін. 200 мм.Snow1.docDecor1.doc 1 Посилання на коментар Поділитися на інших сайтах More sharing options...
Технология Строительства Опубліковано: 2 жовтня 2015 Поділитись Опубліковано: 2 жовтня 2015 У Вас может быть хоть 50 мм утеплителя или вообще не быть... Вопрос только в том,сколько бабла будет улетать через него.... Вы сами поняли, что Вы написали? Все-же 150мм маловато, нужно 200 либо более. Читайте мое первое сообщения, а потом пишите. Мауэрлат можно взять 100х100 мм; Стропила можно взять 200х50 мм и утепления сделать толщиной 200 мм; Затяжки не забудьте поставить Посилання на коментар Поділитися на інших сайтах More sharing options...
atco Опубліковано: 2 жовтня 2015 Поділитись Опубліковано: 2 жовтня 2015 Вы сами поняли, что Вы написали? Читайте мое первое сообщения, а потом пишите. Очень внимательно читал...потом еще и пост номер 4 прочитал...где вами написано,что 150 мм для мансарды хватит...и что у Вас вообще 100 мм... Посилання на коментар Поділитися на інших сайтах More sharing options...
Serbes Опубліковано: 3 жовтня 2015 Поділитись Опубліковано: 3 жовтня 2015 Всі з'єднання дерев'яних елементів раджу робити цвяхами, скобами. Гайки на шпильці треба буде підтягувати через деякий час. Дерево на покрівлю буде скоріш "сире" при висиханні зменшиться в об'ємі, прослабне затяжка гайок. Якщо будуєтесь в Харкові, то у вас снігу 138 кг/м.кв. Крокви з кроком 600 мм. Утеплювача мін. 200 мм. Противоречивый пост... Согласно программе Декор у вас схема наслонной стропильной системы со стойками и затяжками (к слову затяжка при несложных расчетах находится на высоте 1.02м. от уровня пола чердачного этажа - клиент будет рад этому решению), а на картинке-же у вас треугольная арка с приподнятой затяжкой и стойками, которые при нагрузке, по-моему мнению, будут просто валиться к центру здания. Утеплитель... По теплотехническим расчетам для Харьковской области утеплителя с плотностью от 25-45кг/м.куб. должно быть минимум 150мм. для металлической крыши. Больше 200мм. деньги на ветер. По-поводу резьбового соединения спорное утверждение, но это лично ваше дело чем соединять. Посилання на коментар Поділитися на інших сайтах More sharing options...
OlegArh Опубліковано: 3 жовтня 2015 Поділитись Опубліковано: 3 жовтня 2015 По теплотехническим расчетам для Харьковской области утеплителя должно быть минимум 150мм... Больше 200мм. деньги на ветер. А ничего, что скандинавы уже нормируют 510 мм. P.S. Я, пока что, меньше 300 не закладываю в проектах. Посилання на коментар Поділитися на інших сайтах More sharing options...
Serbes Опубліковано: 3 жовтня 2015 Поділитись Опубліковано: 3 жовтня 2015 (змінено) А ничего, что скандинавы уже нормируют 510 мм. Да у нас как-бы и климат разный. Ничего? P.S. Я, пока что, меньше 300 не закладываю в проектах. Ну, возможно, вы проектируете "пассивные" дома, хотя при нынешних ценах на газ, вероятно, это и для обычного дома оправдано. Все зависит от наличия лишних $ у клиента (Днепр - богатый город, а мы - периферия нищая), тогда можно и к скандинавам прислушаться. Я высказал свое мнение - ваше право с ним не согласиться. Змінено 3 жовтня 2015 користувачем Serbes Посилання на коментар Поділитися на інших сайтах More sharing options...
atco Опубліковано: 3 жовтня 2015 Поділитись Опубліковано: 3 жовтня 2015 Да у нас как-бы и климат разный. Ничего? Ну, возможно, вы проектируете "пассивные" дома, хотя при нынешних ценах на газ, вероятно, это и для обычного дома оправдано. Все зависит от наличия лишних $ у клиента (Днепр - богатый город, а мы - периферия нищая), тогда можно и к скандинавам прислушаться. Я высказал свое мнение - ваше право с ним не согласиться. Все вроде и правильно...опять же люди в основном хотят быстрее заехать в дом,соответственно свести к минимуму затраты.... Сам себе хочу 300 мм(одноэтажника,холодный чердак) Все же упирается в экономическую целесообразность того,или ииного капиталовложения Если ,например, с 250 мм утеплителя дом будет терять, опять же к примеру, 1000 кВт/час за отопительный сезон...а с 300 мм - 900 квт ...то 100 кВт разницы в год окупятся нескоро... Вообще нужен рассчет в каждом отдельном случае....но самый самый минимум...имхо...250 мм... Посилання на коментар Поділитися на інших сайтах More sharing options...
slava_kharkov Опубліковано: 5 жовтня 2015 Автор Поділитись Опубліковано: 5 жовтня 2015 Спасибо за высказанные тут мнения, друзья - форумчане. Внимательно читаю все посты и обдумываю. В дальнейшем основываясь на полученных знаниях подготовлю проэкт стропильной системы и выставлю на ваш суд. Посилання на коментар Поділитися на інших сайтах More sharing options...
Andre 2015 Опубліковано: 5 жовтня 2015 Поділитись Опубліковано: 5 жовтня 2015 Згоден з вами Serbes, що розрахункова модель має відмінності від бажаємої покрівлі. В декорі є 3 стандартні схеми для розрахунку покрівель, побудовані так щоб затяжка працювала на розтяг. Якщо підняти затяжку вище стійок вона буде працювати на стиск, що є не зовсім правильно але не заборонено. Перерахував крокви і затяжку в СКАДІ(постановка). Дивіться диформовану схему покрівлі (там видно куди будуть валиться стійки). По зусиллям різниця між ДЕКОРОМ та СКАД тільки в затяжкі, переріз затяжки 200х50 достатьньо. Наперед, розрахункову довжину крокви та затяжки можна зменшувати так як вони розкріплені між собою з площини згинання обрешіткою. З приводу різьбового з'єднання. Був об'єкт де дерев'яні балки кріпилися шпиликами, затягували гайки так що шайби вдавлювались в дерево чарез місяця 2 гайки крутяться рукой, маємо в результаті балки продіті шпильками.Кроква1.docзатяжка1.docанімація переміщень.rar Посилання на коментар Поділитися на інших сайтах More sharing options...
Рекомендовані повідомлення
Створіть акаунт або увійдіть у нього для коментування
Ви маєте бути користувачем, щоб залишити коментар
Створити акаунт
Зареєструйтеся для отримання акаунта. Це просто!
Зареєструвати акаунтУвійти
Вже зареєстровані? Увійдіть тут.
Увійти зараз