olga32 Опубліковано: 30 травня 2016 Поділитись Опубліковано: 30 травня 2016 Поначалу не собиралась вести свою тему о нашей второй стройке – веток о строительстве на форуме много, мы не применяем никаких новых материалов, ничего нового я не напишу… Начинаю ветку чисто из эгоистичных соображений – есть необходимость в советах более опытных застройщиков и специалистов, а особенно тех, кто переехал в неоконченный дом, знаю тут таких много ))) Есть планы заселиться так быстро, как это будет возможно, чтобы быстрее съехать со съемной квартиры. Возможно, буду полезной тем, кто ищет на этом форуме варианты подключения электричества в Орышках в обход «Чумацького шляха». Встречала такие темы и вопросы, но пока процедура не окончена, рано говорить о результате и конечной сумме нашего пути. Как только получу свои заветные кВт, распишу все подробно, вдруг пригодится кому… Длинное вступление… Добавлено через 1 минуту После нашего переезда из Мариуполя прошел год, когда появилось навязчивое желание обзавестись своим жильем. Подтолкнул к этому наш переезд из съемного дома в съемную же квартиру. Это просто ужас, как мы «обросли» вещами всего лишь за 1 год . Поэтому муж объявил – следующий переезд только в свое жилье! И начались поиски участка. Дом мы снимали в Гатном, очень нравилось и само село, и его расположение… не нравилась только цена земли. Все лето мы искали участок здесь, другие села особо не рассматривали. Но то, что стоило приемлимо – было или на отшибе, или участок с уклоном, или в низине и затапливался. С сентября мы решили расширить круг поисков, и совершенно случайно (местность-то знали плохо) заехали в массив Орышки. Безусловно, там не такое обжитое место, как Гатное, но и не поле. Устроила цена, даже с учетом стоимости коммуникаций, и для себя решили, что жд пути за лесополосой в 300 метрах от участка не проблема. Кто-то не согласится, но это было наше обдуманное решение. Добавлено через 44 секунды В конце сентября 2015г участок был куплен и следующие полгода мы готовились к строительству – проект, стройпаспорт, коммуникации и т.д. 6 Посилання на коментар Поділитися на інших сайтах More sharing options...
olga32 Опубліковано: 30 травня 2016 Автор Поділитись Опубліковано: 30 травня 2016 Фото участка в марте Посилання на коментар Поділитися на інших сайтах More sharing options...
olga32 Опубліковано: 30 травня 2016 Автор Поділитись Опубліковано: 30 травня 2016 С коммуникациями оказалось не так все просто. Владелец сетей , некое «ГО Чумацький шлях», по телефону рассказывал красиво, назвал сумму и «будет все, как вы хотите». Что именно мы хотим озвучила сразу, еще до покупки участка – 16 кВт электроэнергии и прямой договор с Киевоблэнерго, т.к. хотим получить «тариф на електроопалення». Ответ был «не вопрос, вообще даю по 7,5 кВт, но платите больше и берите столько кВт, сколько нужно»… После сделки все не мог определиться на сколько больше надо платить, называл каждый раз разную сумму… Когда же вопрос с ценой обговорили окончательно, я приехала к нему в офис и тут он меня добил окончательно – пока он может дать только 7,5 кВт как всем, и те неофициально, т.к. он добивается в РЭСе увеличения мощности транса, и свободные мощности как бы есть, но их как бы нет. Короче, господин Чичиков 21-го столетия. Только гоголевский скупал мертвые души, а этот им кВт продает. На мой вопрос - а как же прямой договор с облэнерго, был ответ – а никак, будете мне платить по счетчику. Т.е. про тариф електроопалення можно было забыть. На мое обещание подумать, господин ухмыльнулся и сказал что других вариантов нет. Уходя, я сказала что всегда есть вариант засадить участок картошкой, ей электричество не надо. И начала искать «другие варианты». Выход был один – стандартное подключение 10/10 + свой маленький транс на 25 ква. Более подробно расскажу, когда все будет сделано. А пока стройка идет, благодаря соседу, от которого и берем электричество. 3 Посилання на коментар Поділитися на інших сайтах More sharing options...
olga32 Опубліковано: 30 травня 2016 Автор Поділитись Опубліковано: 30 травня 2016 Итак, дом будет двухэтажным. Фундамент – плита с ребрами. Стены блок 2нф 380 мм+ 100 мм ваты + штукатурка, плитка, дерево (см.картинку). Крыша – робен пьмонт, цвет тобаго. Перекрытие – монолит. 4 Посилання на коментар Поділитися на інших сайтах More sharing options...
olga32 Опубліковано: 30 травня 2016 Автор Поділитись Опубліковано: 30 травня 2016 Первый дом мы строили по типовому проекту, чуть переделанному «под нас». Второй решили строить по индивидуальному. Сделав геологию, выяснили что грунты просадочные (лессовидная супесь). Правда этот слой всего 2метра (дальше песок, грунтовые воды на 7 метрах не встречены) и просадочным становится только при намокании. Первый вердикт архитектора ввел в состояние столбняка, который сменился тихой истерикой – 8!ми-метровые сваи… 50 шт… Я понимаю что подход «всі так роблять» неправильный, но когда весь массив стоит на мелкозаглубленной ленте, а тебе предлагают не просто чуть поглубже сделать, а на 8 метров пробурить, начинаешь искать обходные пути. После обзвона бурильщиков и почти единогласного ответа – 8 метров в песке только с обсадной трубой, иначе будет обсыпаться , было желание вообще все бросить. Цена такого бурения гораздо выше обычного… Мысли все бросить сменялись другими – отдать фундамент на просчет другому конструктору, когда архитектор предложил альтернативный вариант – плиту с ребрами жесткости с частичной выборкой грунта. До сих пор считаю, что наш фундамент слишком «перестраховочный»… Но сделали все в соответствии с проектом. Итого 18 машин по 30 тонн речного песка вместо выбранного грунта с послойной утрамбовкой + 11 таких же машин в качестве обратной засыпки. 7 Посилання на коментар Поділитися на інших сайтах More sharing options...
olga32 Опубліковано: 30 травня 2016 Автор Поділитись Опубліковано: 30 травня 2016 Написала много Продолжу завтра 2 Посилання на коментар Поділитися на інших сайтах More sharing options...
Тюня Опубліковано: 30 травня 2016 Поділитись Опубліковано: 30 травня 2016 Владелец сетей , некое «ГО Чумацький шлях» Не уверена, что в тему, но был у нас клиент - АЗС на Одесской трассе в районе Глевахи, тоже назывался "Чумацкий шлях" Олег звали, если мне память не изменяет Если это предприятие имеет к нему отношение, то я бы посоветовала с ним не связываться Посилання на коментар Поділитися на інших сайтах More sharing options...
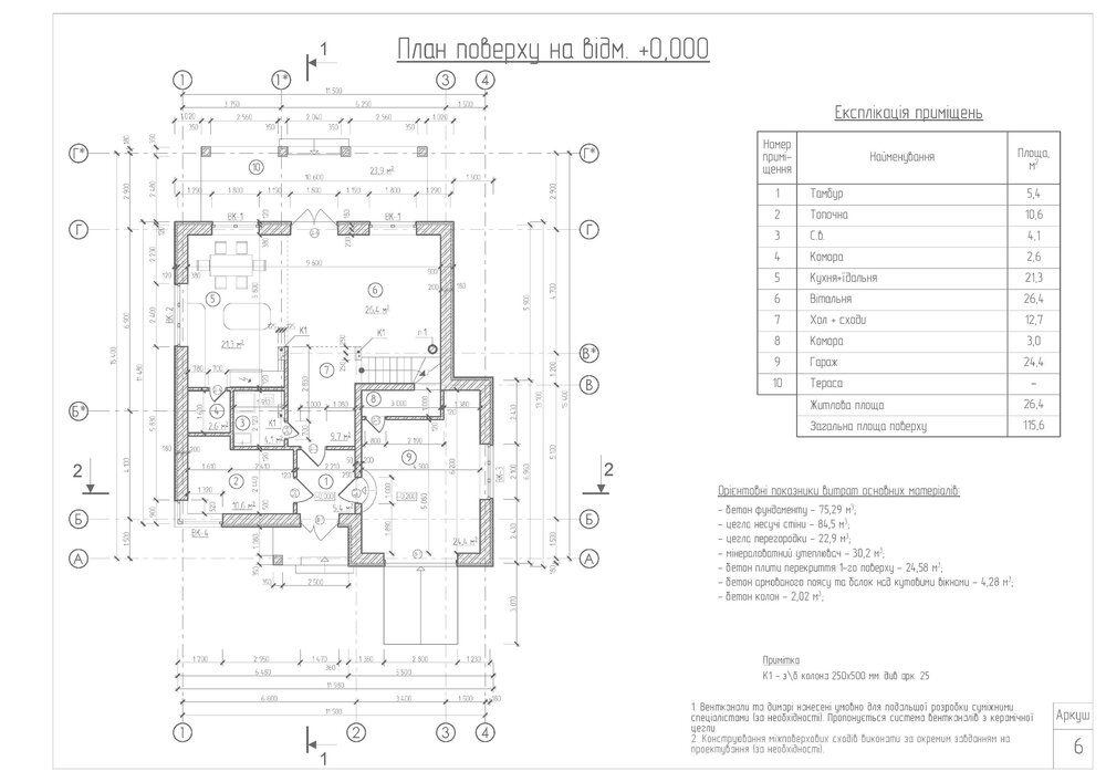
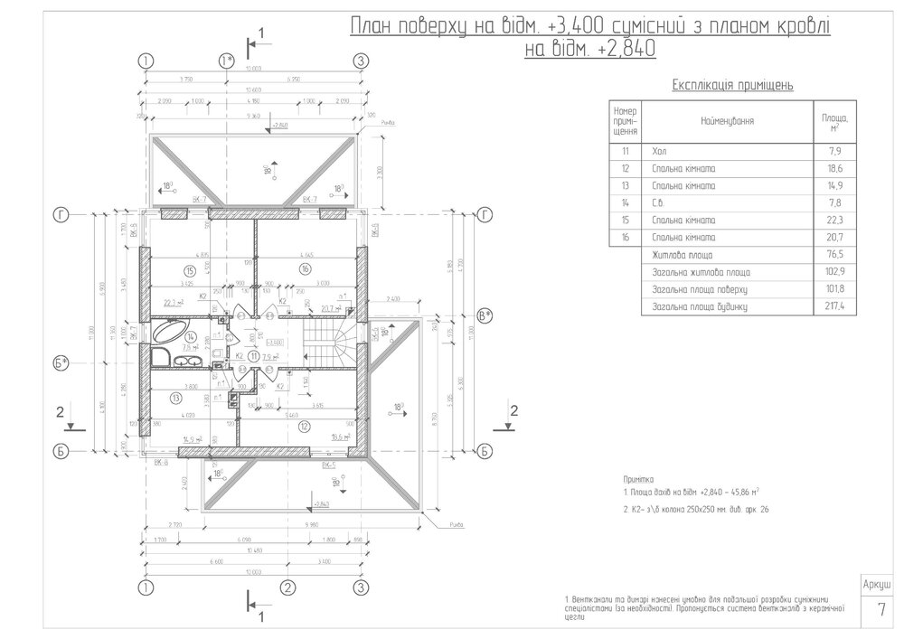
Игорь&Ира Опубліковано: 31 травня 2016 Поділитись Опубліковано: 31 травня 2016 Итак, дом будет двухэтажным. Фундамент – плита с ребрами. Стены блок 2нф 380 мм+ 100 мм ваты + штукатурка, плитка, дерево (см.картинку). Крыша – робен пьмонт, цвет тобаго. Перекрытие – монолит. Pls, ссылку на проект или поэтажные планы. Посилання на коментар Поділитися на інших сайтах More sharing options...
olga32 Опубліковано: 31 травня 2016 Автор Поділитись Опубліковано: 31 травня 2016 Pls, ссылку на проект или поэтажные планы. Совсем забыла! Красивые картинки выложила, а по существу ничего Исправляю : 2 Посилання на коментар Поділитися на інших сайтах More sharing options...
olga32 Опубліковано: 31 травня 2016 Автор Поділитись Опубліковано: 31 травня 2016 Олег звали, если мне память не изменяет Не знаю связаны ли они между собой, но председателя зовут Иван Николаевич. Мы с ним уже и не связываемся, нам не подходят его условия... Так что стандартное подключение уже оплачено, решается вопрос с трансом... Посилання на коментар Поділитися на інших сайтах More sharing options...
Тюня Опубліковано: 31 травня 2016 Поділитись Опубліковано: 31 травня 2016 Не знаю связаны ли они между собой Я тоже не знаю, но по стили и по названию Чумацкий шлях и плюс-минус по одному району подозреваю, что возможно и связаны Олег - хозяин, конечно он лично с людьми может и не общаться Посилання на коментар Поділитися на інших сайтах More sharing options...
olga32 Опубліковано: 31 травня 2016 Автор Поділитись Опубліковано: 31 травня 2016 Немного продолжу по стройке : Вместо того, чтобы ставить опалубку и потом ее хоронить под бетоном (внутренние стороны и внутренние ленты) + менее качественная трамбовка песка (чтоб опалубка не рухнула), по предложению прораба, мы утрамбовали «пасочку», в которой потом прокопали ленты ребер. Поначалу казалось, что где-то меня кидают – сначала плачу за трамбовку, потом за то, чтоб это же откопать… но при просчете всех вариантов вынуждена была признать, что этот наиболее рациональный. По предложению мастеров плиты эппс поставили сразу в опалубку, чтоб на выходе получить утепленную плиту, которую потом просто затянули клеем. 6 Посилання на коментар Поділитися на інших сайтах More sharing options...
olga32 Опубліковано: 31 травня 2016 Автор Поділитись Опубліковано: 31 травня 2016 Я тоже не знаю, но по стили и по названию Чумацкий шлях и плюс-минус по одному району подозреваю, что возможно и связаны Олег - хозяин, конечно он лично с людьми может и не общаться Все может быть, владелец сетей "Громадське об'єднання Чумацький шлях", ничего не мешает иметь еще бизнес с таким же названием... Посилання на коментар Поділитися на інших сайтах More sharing options...
olga32 Опубліковано: 31 травня 2016 Автор Поділитись Опубліковано: 31 травня 2016 Заливали с помощью насоса... 3 Посилання на коментар Поділитися на інших сайтах More sharing options...
olga32 Опубліковано: 31 травня 2016 Автор Поділитись Опубліковано: 31 травня 2016 Кирпич завозили в ужасный ливень. Киев и область в этот день затопило. Кран несколько раз умудрился застрять, но справились Посилання на коментар Поділитися на інших сайтах More sharing options...
olga32 Опубліковано: 31 травня 2016 Автор Поділитись Опубліковано: 31 травня 2016 Дальше все по плану – возводим стены в полтора блока… Бригада работает быстро, но зарядили дожди, начали отставать от плана – должны были подойти к крыше в первых числах июня. 2 Посилання на коментар Поділитися на інших сайтах More sharing options...
olga32 Опубліковано: 31 травня 2016 Автор Поділитись Опубліковано: 31 травня 2016 Дальше была заливка перекрытия, колонн и лестницы. фото сделаю позже, забываю фотоаппарат взять с собой И тут первая большая ошибка. В первом доме лестницу нам заливал мастер, который занимается только лестницами, ничем другим… Он же их и рассчитывает. Лестница была сложная – две группы забежных ступеней. Получилось очень круто ( она там на виду в большом холле) и удобно. Изначально в этом доме планировали искать такого же узкого специалиста, но послушав прораба, что у ребят опыт большой, оставили на лестницу тех же бетонщиков. Это я теперь понимаю – одно дело лить плиту, другое лестницу (( В этом проекте лестница «спрятана», особо требований к идеальному исполнению не было. Вопрос был один – рассчитать смогут ступени??? Особенно забежные??? Прораб заверил – конечно. В результате открыла тему… www.stroimdom.com.ua/forum/showthread.php?t=198620 ... Никто не ответил, может тут помогут, т.к. проблема еще не решена. Сначала было желание снести ее и заставить переделать за свой счет. Сейчас, когда опалубка снята, побегав по ней, понимаю, что все ступени удобны, кроме 4 которые подписала. Возможно, можно отделаться малой кровью. Посилання на коментар Поділитися на інших сайтах More sharing options...
Тюня Опубліковано: 31 травня 2016 Поділитись Опубліковано: 31 травня 2016 Может исправить, а не снести Дорогое удовольствие и малоприятное У меня есть замечательный спец по лестницам, если уж решитесь на крайние меры Тоже с форума 1 Посилання на коментар Поділитися на інших сайтах More sharing options...
olga32 Опубліковано: 1 червня 2016 Автор Поділитись Опубліковано: 1 червня 2016 У меня есть замечательный спец по лестницам, если уж решитесь на крайние меры Спасибо! Обращусь, если исполнители не смогут ничего сделать. В любом случае, исправление за их счет будет... Посилання на коментар Поділитися на інших сайтах More sharing options...
olga32 Опубліковано: 6 червня 2016 Автор Поділитись Опубліковано: 6 червня 2016 Добавляю фото плиты перекрытия и колонн. После всех этих ливней первый этаж превратился в озерцо. Немного подсыхает и новые дожди К сожалению, пока не накроем крышу, лучше не будет , перекрытие не спасает - вся вода водопадом падает на лестницу... Переживаю не плохо ли это для фундаментной плиты? 2 Посилання на коментар Поділитися на інших сайтах More sharing options...
olga32 Опубліковано: 6 червня 2016 Автор Поділитись Опубліковано: 6 червня 2016 Лестницу исправили. Вчера залили ступеньку, но еще не фотографировала ее. Пока фото подрезанной ступени и армирование той, которую доливаем. Теперь и удобно, и красиво Добавляю еще фото лестницы из гаража. По задумке, чтоб не занимать много места лестницей в гостиной, верхняя ее часть проходит в гараже. Посилання на коментар Поділитися на інших сайтах More sharing options...
olga32 Опубліковано: 6 червня 2016 Автор Поділитись Опубліковано: 6 червня 2016 На сегодняшний день внешний вид нашего дома вот такой...Фото фасада не очень , переделаю 4 Посилання на коментар Поділитися на інших сайтах More sharing options...
olga32 Опубліковано: 6 червня 2016 Автор Поділитись Опубліковано: 6 червня 2016 С историей закончила , теперь начнутся вопросы Пора приступать к забору. Фасад пока не закрываем, только три стороны. Немного поднимаем участок ну не можем мы без этого, чтоб он был выше дороги. Задняя сторона участка поднимается на 40 см, впереди меньше, около 20 см. Забор понравился у Таьяны5 в Рябинках - бетонные столбики, бетонная нижняя секция, дальше добираем деревом. Можно ли использовать эту нижнюю секцию в качестве ограничителя для грунта? Т.е. фундамент заливаем только под столбики, а насыпной грунт удерживается этим забором... Выдержит? Посилання на коментар Поділитися на інших сайтах More sharing options...
Vikctor Опубліковано: 6 червня 2016 Поділитись Опубліковано: 6 червня 2016 Переживаю не плохо ли это для фундаментной плиты? Шутите? Это идеально для всех монолитных участков дома. Посилання на коментар Поділитися на інших сайтах More sharing options...
olga32 Опубліковано: 7 червня 2016 Автор Поділитись Опубліковано: 7 червня 2016 Шутите? Это идеально для всех монолитных участков дома. Да я понимаю, что поливают бетон и все такое... Но бассейн у нас уже недели 3 , думала ему же и просыхать когда-то надо.... Но, если так только лучше, пусть будет Посилання на коментар Поділитися на інших сайтах More sharing options...
Рекомендовані повідомлення
Створіть акаунт або увійдіть у нього для коментування
Ви маєте бути користувачем, щоб залишити коментар
Створити акаунт
Зареєструйтеся для отримання акаунта. Це просто!
Зареєструвати акаунтУвійти
Вже зареєстровані? Увійдіть тут.
Увійти зараз