1mechtatel Опубліковано: 21 листопада 2016 Поділитись Опубліковано: 21 листопада 2016 Добрый день уважаемые форумчане! Прошу покритиковать проект реконструкции моего дома. Хотел я дом в американском стиле, но из-за дороговизны фиброцементного сайдинга и отсутствия на нашем рынке декоративных элементом Mid-Ameriсa, пришлось пойти на компромиссы и пришел я вот к этому. Проект готовился исходя из уже существующих дома и хозяйственных построек. Прошу высказать замечания для недопущения необратимых ошибок при строительстве. Заранее благодарен. Посилання на коментар Поділитися на інших сайтах More sharing options...
seyvalter Опубліковано: 21 листопада 2016 Поділитись Опубліковано: 21 листопада 2016 тераси над приміщеннями - зло. буде затікати - що не робіть. Посилання на коментар Поділитися на інших сайтах More sharing options...
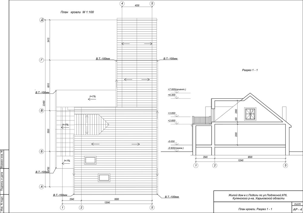
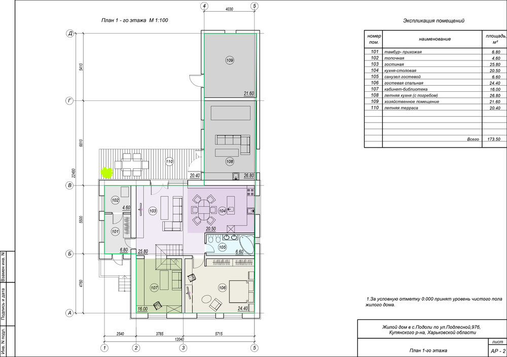
Технология Строительства Опубліковано: 21 листопада 2016 Поділитись Опубліковано: 21 листопада 2016 Прошу покритиковать проект реконструкции моего дома. 1. Топочная не по ГОСТУ 2. Лестница просто мега удобная; 3 3 спальни при площади больше 200 м2; 4. Чердаки, летние кухни, погреба. Дом для ядерной войны. И хоз помещения 5. Скворешник никакой; 6. Терраса будет течь; 7. Вентиляция отсутствует в проекте; Посилання на коментар Поділитися на інших сайтах More sharing options...
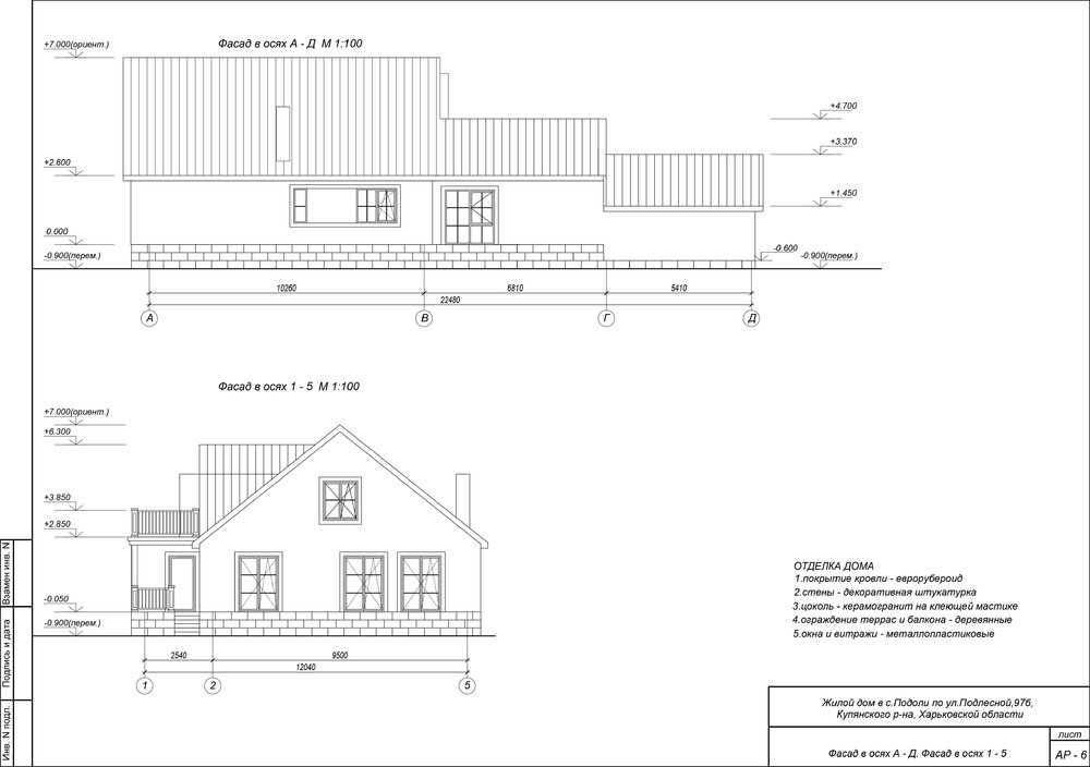
Andrei constructor Опубліковано: 21 листопада 2016 Поділитись Опубліковано: 21 листопада 2016 Прошу высказать замечания Очень мрачно сделан дом. Белые акцентs не спасают. Мишек оставить)))) В гостевом санузле 2 унитаза?))) или второй прибор - биде Добавлено через 3 минуты 6. Терраса будет течь; это как сделать Посилання на коментар Поділитися на інших сайтах More sharing options...
1mechtatel Опубліковано: 22 листопада 2016 Автор Поділитись Опубліковано: 22 листопада 2016 Очень мрачно сделан дом. Белые акцентs не спасают. Мишек оставить)))) В гостевом санузле 2 унитаза?))) или второй прибор - биде Добавлено через 3 минуты это как сделать унитаз и писуар. Это для меня важно) Посилання на коментар Поділитися на інших сайтах More sharing options...
1mechtatel Опубліковано: 22 листопада 2016 Автор Поділитись Опубліковано: 22 листопада 2016 Собственно говоря, многие моменты продиктованы существующими постройками. Вот из чего будем лепить... Посилання на коментар Поділитися на інших сайтах More sharing options...
seyvalter Опубліковано: 22 листопада 2016 Поділитись Опубліковано: 22 листопада 2016 Добавлено через 3 минуты это как сделать а як не роби - всерівно буде. по стовбах огородження буде проходити і текти по стіні. Посилання на коментар Поділитися на інших сайтах More sharing options...
Andrei constructor Опубліковано: 22 листопада 2016 Поділитись Опубліковано: 22 листопада 2016 и писуар согласен, нормальная тема только он выглядит иначе на плане Посилання на коментар Поділитися на інших сайтах More sharing options...
1mechtatel Опубліковано: 22 листопада 2016 Автор Поділитись Опубліковано: 22 листопада 2016 Есть еще вариант такой цветовой схемы Посилання на коментар Поділитися на інших сайтах More sharing options...
apxitektop.s Опубліковано: 22 листопада 2016 Поділитись Опубліковано: 22 листопада 2016 Добрый день уважаемые форумчане! Прошу покритиковать проект реконструкции моего дома. Хотел я дом в американском стиле, но из-за дороговизны фиброцементного сайдинга и отсутствия на нашем рынке декоративных элементом Mid-Ameriсa, пришлось пойти на компромиссы и пришел я вот к этому. Проект готовился исходя из уже существующих дома и хозяйственных построек. Прошу высказать замечания для недопущения необратимых ошибок при строительстве. Заранее благодарен. по реконструкции, видно что вы работаете с конструктором или архитектором, если отписали уже сюда, то выходит вы понимаете, что внешне варианты вам не сильно нравятся и вы в поиске исполнителя ? Ведь на все вопросы, равно как вы и писали выше "замечания для недопущения необратимых ошибок при строительстве" - как раз и служит тот человек, который и делал проект или ваше сотрудничество закончилось на каком то этапе? По критике ), конечно фасады аляповаты, нет единого и целого объема, все серо и мрачно, даже учитывая что это реконструкция, все серо и дешево, но есть позитивный момент, оно выглядит получше чем построено сейчас, но смысла вкладывать деньги в реконструкцию нет, если вам это не нравится, мне к примеру,выглядит - никак, ни один из вариантов Посилання на коментар Поділитися на інших сайтах More sharing options...
Andrei constructor Опубліковано: 22 листопада 2016 Поділитись Опубліковано: 22 листопада 2016 Второй вариант уже лучше, только кровлю подобрать другой расцветки. Посилання на коментар Поділитися на інших сайтах More sharing options...
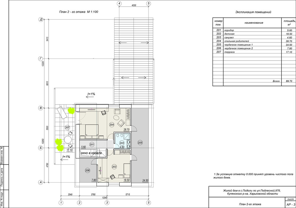
1mechtatel Опубліковано: 22 листопада 2016 Автор Поділитись Опубліковано: 22 листопада 2016 Цветовые варианты не окончательны. Все будет зависить от выбранной кровли и цокольной отделки. Следующий этап - это рабочий проект. Что скажите о внутренней планировке? На что обратить внимание? Посилання на коментар Поділитися на інших сайтах More sharing options...
Andrei constructor Опубліковано: 22 листопада 2016 Поділитись Опубліковано: 22 листопада 2016 Что скажите о внутренней планировке? Мне нравится планировочное решение дома Добавлено через 1 минуту На что обратить внимание? Ширину террасы сделать больше. Предусмотреть удобный вход в погреб (по лестнице) Посилання на коментар Поділитися на інших сайтах More sharing options...
ARCH INNOVATION Опубліковано: 22 листопада 2016 Поділитись Опубліковано: 22 листопада 2016 Есть еще вариант такой цветовой схемы Фасад бедновато выглядит, ну а там на любителя. Посилання на коментар Поділитися на інших сайтах More sharing options...
1mechtatel Опубліковано: 22 листопада 2016 Автор Поділитись Опубліковано: 22 листопада 2016 Мне нравится планировочное решение дома Добавлено через 1 минуту Ширину террасы сделать больше. Предусмотреть удобный вход в погреб (по лестнице) ширина 2.5 метра маловата будет? вход в погреб и сам погреб уже существуют. Добавлено через 1 минуту Фасад бедновато выглядит, ну а там на любителя. по фасаду тоже есть вопросы. чем посоветуете разбавить? Посилання на коментар Поділитися на інших сайтах More sharing options...
ARCH INNOVATION Опубліковано: 22 листопада 2016 Поділитись Опубліковано: 22 листопада 2016 по фасаду тоже есть вопросы. чем посоветуете разбавить? деревом и камнем. Посилання на коментар Поділитися на інших сайтах More sharing options...
Andrei constructor Опубліковано: 22 листопада 2016 Поділитись Опубліковано: 22 листопада 2016 ширина 2.5 метра маловата будет? минимум 3 м (терраса 1-го этажа) Добавлено через 1 минуту вход в погреб и сам погреб уже существуют. как там организован вход Посилання на коментар Поділитися на інших сайтах More sharing options...
1mechtatel Опубліковано: 22 листопада 2016 Автор Поділитись Опубліковано: 22 листопада 2016 минимум 3 м (терраса 1-го этажа) Добавлено через 1 минуту как там организован вход через летнюю кухню Посилання на коментар Поділитися на інших сайтах More sharing options...
blacktigra Опубліковано: 23 листопада 2016 Поділитись Опубліковано: 23 листопада 2016 А мне нравится. И "скворешник", и цветовая гамма. Но ведь это дело вкуса каждого. Человек ведь написал что фиброцеметный сайдинг для него не подходит по цене, а тут уже советы - дешива, нипабагатому. К лестнице у меня тоже есть вопросы, крутовата он получается при высоте между уровнями в 3 метра, 13-14 ступенями и 3 забежными площадками. Я бы сделал дверь из гостиной в летнюю кухню, чтобы зимой погребом пользоваться. Непонятно расположение вентшахт. На планах они не показаны, а на визуализации они в каких-то непонятных местах. Есть сомнения что водосточку получится сделать так, как показано на визуализации. Ну или это будет недешевое решение. Если у вас нет вида на водоем или красивый луг то будете ли вы так часто ей пользоваться? Или сидеть с чашечкой кофа, и смотреть как сосед моет машину? Толщина перекрытия над тамбуром и топочной маловата, скорее всего не учтено утепление. 1. Топочная не по ГОСТУ Интересно, в каком ГОСТе указаны требования к топочным? Посилання на коментар Поділитися на інших сайтах More sharing options...
apxitektop.s Опубліковано: 23 листопада 2016 Поділитись Опубліковано: 23 листопада 2016 Интересно, в каком ГОСТе указаны требования к топочным? ДБН В.2.5-20-2001 Газоснабжение Если кратко, то выдержки из них я когда то тут накидал Ну и ответ по топочной для автора темы : по тому помещению, которое выбрали для топочной - не вижу проблем, ведь оно "выделенное" и с окном, окно, а оно должно быть из топочной на улицу, то-есть природное освещение — по расчету остекления 0,03м2 на 1м3 помещения. По квадратуре - нет ограничения, но есть "правила размещения котла и его расстояния до стены, окна и до счетчика газа, но в нормативах четко указана прявязка помещения топочной к кубатуре котла : для котлов мощностью до 30кВт — 7,5м3 (а там до 30 квт) высота от — 2,5м но не менее; Добавлено через 13 минут хотел бы добавить свои 5 копеек по поводу лестницы, и ее размещения, размещена она не вполне логично, ну и конечно без площадки и с забежными ступеньками это настоящий "геморой", если использовать эту лестницу по назначению, я бы сделал - нормальную, с площадкой. Хозяину темы, все же советую найти )) друзей, у которых есть такая лестница на второй этаж и в течении дня, раз 20-30 походить по ней туда - сюда Посилання на коментар Поділитися на інших сайтах More sharing options...
1mechtatel Опубліковано: 23 листопада 2016 Автор Поділитись Опубліковано: 23 листопада 2016 По вопросу лестницы: на сегодняшний момент еще идет разработка конструкции, т.к. на сегодняшний день существует по факту только маленький проем под нее. Думаем как закрутить. Посилання на коментар Поділитися на інших сайтах More sharing options...
loader Опубліковано: 23 листопада 2016 Поділитись Опубліковано: 23 листопада 2016 Мне нравится планировочное решение дома Добавлено через 1 минуту Ширину террасы сделать больше. Предусмотреть удобный вход в погреб (по лестнице) +1 Вцелом понравилось Лесницу нужно проверить и есть вопрос по с.у. первого этажа (выход в гостинную), но сходу не понял как можно изменить лучше. по терассам - вопрос такого плана - терасс много а мангала/уличного комплекса не видно. конечно м.б. он вам и не нужен, но если планируете - то тоже нужно сразу вписывать. 1 Посилання на коментар Поділитися на інших сайтах More sharing options...
blacktigra Опубліковано: 23 листопада 2016 Поділитись Опубліковано: 23 листопада 2016 ДБН В.2.5-20-2001 Газоснабжение Если кратко, то выдержки из них я когда то тут накидал Про ДБН я в курсе. Я про ГОСТ спрашивал. Посилання на коментар Поділитися на інших сайтах More sharing options...
apxitektop.s Опубліковано: 23 листопада 2016 Поділитись Опубліковано: 23 листопада 2016 Про ДБН я в курсе. Я про ГОСТ спрашивал. причем тут ГОСТ, уточните... А человек выше говоря ГОСТ - думаю имел ввиду ДБН Посилання на коментар Поділитися на інших сайтах More sharing options...
blacktigra Опубліковано: 23 листопада 2016 Поділитись Опубліковано: 23 листопада 2016 причем тут ГОСТ, уточните... А человек выше говоря ГОСТ - думаю имел ввиду ДБН Вопрос вообще-то был не к вам, но раз вы ответили то может знаете, как человек с ником "Технология строительства" может путать ГОСТ и ДБН? Посилання на коментар Поділитися на інших сайтах More sharing options...
Рекомендовані повідомлення
Створіть акаунт або увійдіть у нього для коментування
Ви маєте бути користувачем, щоб залишити коментар
Створити акаунт
Зареєструйтеся для отримання акаунта. Це просто!
Зареєструвати акаунтУвійти
Вже зареєстровані? Увійдіть тут.
Увійти зараз