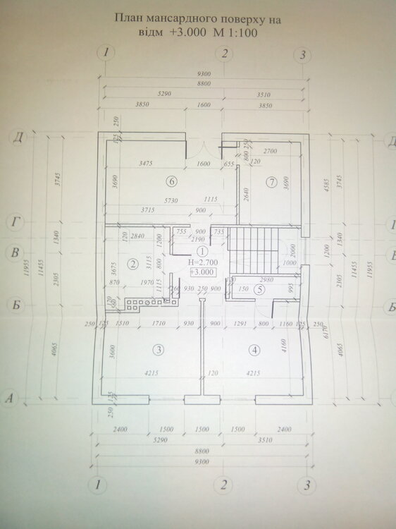
donpedro Опубліковано: 15 грудня 2016 Поділитись Опубліковано: 15 грудня 2016 Якщо точніше, то стропилку мені робив проектант, але не все ясно по вузлах, а саме вузол проходу\ обходу прогонами коминів. Та й взагалі по всій стропилці чи він правильно все прорахував. По стінах\перекриттях знаходив його помилки, те в чому розібрався. А от в стропилці щось не все розумію і тому не можу його вивірити. Гляньте будь-ласка. Стропилка я так розумію безроспірна. Забив дані в калькулятор (є скрін). Виходить серйозний запас, але це при абсолютній жорсткості додаткових (середніх і конькового) прогонів. У мене ж середні в реалі вийдуть з прольотом 4.2м , 3.7м , 3м. А коньковий взагалі згідно проекту тільки на фронтонах лежить, прольот ~12м. Тобто треба під нього ставити опори\розкоси. Крок незрозуміло який . Прогони перекриття мансарди 150х150 тобто місця для утеплення мало. Може на ці прогони ще покласти додаткові затяжки (пущені між стропилами) ? Коротше кажучи багато питань... P.S. Стіни ГБ D400 375х200х600. Посилання на коментар Поділитися на інших сайтах More sharing options...
OlegArh Опубліковано: 15 грудня 2016 Поділитись Опубліковано: 15 грудня 2016 Парочка замечаний: 1. Разный шаг стропил от 730 до 895 мм., и это при том, что в основном, ширина утеплителя 600 мм. Есть и по 1000 мм, но резать столько ваты. 2. Пор сои "Б" левый прогон проходит прямо по вентканалам. 3. Непонятная толщина внутренних стен мансарды, на которые опираются прогоны стропил, и более важно - на что опираются сами стены мансарды? Не могут же они стоять просто на плитах перекрытия. 4. Ото, шо обозначено "М-1" - это не мауэрлаты а дополнительные прогоны (мауэрлаты лежат на стенах), а такие прогоны 150х150, и при таких пролетах (3700 и 4000) прогибаются под собственным весом, не говоря уже о том что бы держать стропила. Посилання на коментар Поділитися на інших сайтах More sharing options...
donpedro Опубліковано: 15 грудня 2016 Автор Поділитись Опубліковано: 15 грудня 2016 Парочка замечаний: 1. Разный шаг стропил от 730 до 895 мм., и это при том, что в основном, ширина утеплителя 600 мм. Есть и по 1000 мм, но резать столько ваты. 2. Пор сои "Б" левый прогон проходит прямо по вентканалам. 3. Непонятная толщина внутренних стен мансарды, на которые опираются прогоны стропил, и более важно - на что опираются сами стены мансарды? Не могут же они стоять просто на плитах перекрытия. 4. Ото, шо обозначено "М-1" - это не мауэрлаты а дополнительные прогоны (мауэрлаты лежат на стенах), а такие прогоны 150х150, и при таких пролетах (3700 и 4000) прогибаются под собственным весом, не говоря уже о том что бы держать стропила. 1. Це що різати утеплювач необхідно буде не проблема. Вата не пропаде. 2. Якраз і незнаю як цей вузол обіграти. Може в когось будуть хороші ідеї ? 3. По проекту товщина стін в пів цегли, але ці дві чи три стіни планую тягнути з 200мм Д400 ГБ. Мансардний поверх ще не мурував. Планую з весни. Верхня по кресленню поперечна стіна буде лежати на балці яка в свою чургу окрім стін срирається на дві ЗБ колони 400х400мм. Нижня по кресленню стіна частково це комини з переходом на ГБ 200мм і справді лежати буде тільки на плиті ПК, інших варіантів немає . Повздовжня стіна на яку частково може лягати центральний прогон перекриття теж стоятиме на плитах ПК але поперек плит. Фото поверхів з проекту прикріпляю. 4. Прольоти 4300, 3700 і 3000. Також сумніваюсь в вірності тому і питаю. Звідси, як можна зробити щоб все було по правильному? Посилання на коментар Поділитися на інших сайтах More sharing options...
OlegArh Опубліковано: 26 грудня 2016 Поділитись Опубліковано: 26 грудня 2016 Шота не густо с рекомендациями. На вопросы по проекту должен отвечать его проектировщик. Посилання на коментар Поділитися на інших сайтах More sharing options...
blacktigra Опубліковано: 27 грудня 2016 Поділитись Опубліковано: 27 грудня 2016 В оригинальном проекте прогонов скорее всего нет. Наверняка там мощняцкий армопояс, который воспринимает усилие от распора. Вот фотка реализации похожего проекта с Z500. В месте пересечения прогонами вент-каналов можно сделать закладную из швеллера, и положить прогон на нее. Посилання на коментар Поділитися на інших сайтах More sharing options...
donpedro Опубліковано: 3 січня 2017 Автор Поділитись Опубліковано: 3 січня 2017 Шота не густо с рекомендациями. На вопросы по проекту должен отвечать его проектировщик. Ніби зголосився щось підказати Drosselbeere, але щось пізніше пропав . Мій проектувальник "заліг на дно", але коли раніше його питав чи правильно стропилка прорахована бо виглядає якось дивно сказав що все правильно. Отож просто хочу його перепровірити. По вузлу комина він тоді також сказав що майстри його зроблять але як саме не уточнив нажаль. В оригинальном проекте прогонов скорее всего нет. Наверняка там мощняцкий армопояс, который воспринимает усилие от распора. Вот фотка реализации похожего проекта с Z500. В оригінальному прогони якраз є. Там фактично перекриття все організоване прогонами (див. фото у першому пості). На рахунок прохідного наскрізного швеллера я думав, але по перше треба прикинути його розміри (товщина х ширина х висота і необхідний виступ), та й не впевнений чи з протипожежними нормами це вірне рішення. По Вашій фотці проекту Z500 видно що немає прогону (проміжного). Взагалі думав може краще зробити по аналогії автору теми - Строю в Белогородке на Свiтанковiй У нього довжини стропил приблизно як мої біля 6м. Хоча товщина у нього більша - 80х200 проти моїх 50х200 і крок у нього біля 600мм , а у мене в середньому 860мм. Тут і виникає питання чи то у нього надто міцна чи у мене надто слаба. Регіони не особливо відрізняються (Київ - Львів). Ідея перекриття прогонами як в оригінальному проекті мені щось зовсім не подобається, думаю краще зробити по затяжках як у вищезгаданого автора. Хоча може я помиляюсь ? Посилання на коментар Поділитися на інших сайтах More sharing options...
blacktigra Опубліковано: 3 січня 2017 Поділитись Опубліковано: 3 січня 2017 В оригінальному прогони якраз є. Там фактично перекриття все організоване прогонами (див. фото у першому пості). Под оригинальным проектом я имел ввиду проект Sezamek от бюро Archetyp. archetyp.pl/projekt/sezamek/ На их визуализации прогонов нет, но есть коньковая балка и затяжки. У вас другая планировка, опереть коньковую балку почти не на что. Посилання на коментар Поділитися на інших сайтах More sharing options...
OlegArh Опубліковано: 3 січня 2017 Поділитись Опубліковано: 3 січня 2017 Мій проектувальник "заліг на дно", але коли раніше його питав чи правильно стропилка прорахована бо виглядає якось дивно сказав що все правильно. Отож просто хочу його перепровірити. По вузлу комина він тоді також сказав що майстри його зроблять але як саме не уточнив нажаль.Стропилка пророхована, когда к ней нет вопросов, даже у дилетантов, а в данном случае, этого совсем не так. Нажаль, но крепить какие-либо закладные, швелера и пр., к шахтам дымоходов и вентканалов, непозволительно - стропилка всегда хоть немного, но "гуляет" - в результате, просто развалит шахту. 2 Посилання на коментар Поділитися на інших сайтах More sharing options...
donpedro Опубліковано: 3 січня 2017 Автор Поділитись Опубліковано: 3 січня 2017 Под оригинальным проектом я имел ввиду проект Sezamek от бюро Archetyp. archetyp.pl/projekt/sezamek/ На их визуализации прогонов нет, но есть коньковая балка и затяжки. У вас другая планировка, опереть коньковую балку почти не на что. Перепрошую ,бо незрозумів що Ви говорите за оригінальний Сезамек. Мені проект підганяла під мене наша українська фірмочка, стропилку відповідно її ж також мені проектували. Так, планування ми поміняли бо нам потрібно тільки три спальні а не чотири. Ну і Drosselbeere написав в ПМ і на пошту з його баченням стропилки. За що йому дуже вдячний! Отож каже що без середнього прогону можна обійтись. Тільки мауерлат і конькова балка як точки опирання стропил. А затяжки додатково підвісити на бабку(и). Навіть з кроком стропил 860мм проходить по навантаженню. Хоча краще крок зменшити до 640мм щоб нерізати утеплювач. У такому випадку й відпаде необхідність в вузлі проходження комину прогоном. Посилання на коментар Поділитися на інших сайтах More sharing options...
bondur Опубліковано: 7 лютого 2017 Поділитись Опубліковано: 7 лютого 2017 С позволения спрошу в этой теме. Пока не хочу открывать отдельную тему с кучей вопросов по моей крыше. Наблосал пилотный проект. Подскажите, такое вообще можно делать, стропила 50х200 7,5 метров, угол 38 градусов, ширина дома по армопоясу 10,4м. Можно ли делать 2скатную крышу с мансардой как на картинках, покрытие метпллочерепица? Посилання на коментар Поділитися на інших сайтах More sharing options...
bondur Опубліковано: 8 лютого 2017 Поділитись Опубліковано: 8 лютого 2017 Неужели никто не подскажет? Стоит ли дальше двигаться в этом направлении или надо смотреть на другой вариант стропилки, например с центральными стояками.. Меня только смущает длина стропил.. Хотя будут и стоики, и затяжка, да и треугольник с углами по 40 градусов. Посилання на коментар Поділитися на інших сайтах More sharing options...
blacktigra Опубліковано: 9 лютого 2017 Поділитись Опубліковано: 9 лютого 2017 Неужели никто не подскажет? Стоит ли дальше двигаться в этом направлении или надо смотреть на другой вариант стропилки, например с центральными стояками.. Меня только смущает длина стропил.. Хотя будут и стоики, и затяжка, да и треугольник с углами по 40 градусов. У меня примерно такая же схема. Только стоек меньше и стропила лежат на прогонах. Стропила можно сращивать, чтобы не искать лес по 7,5 метра. Тогда свесы можно сделать больше. 1 Посилання на коментар Поділитися на інших сайтах More sharing options...
RusLi Опубліковано: 28 червня 2017 Поділитись Опубліковано: 28 червня 2017 (змінено) Хорошая тема. Присоединюсь к теме. Мансарда меж стен шириной 8700мм. Наружные стены ГБ300. Можно ли сделать двускатную безопорную крышу на таком пролете? По вычитаному, мол больше 8м без подпора крыть нельзя. Тем более что армопояс прерывается на окна Строители рисуют крест на пузе что можно, но не им тут жить Змінено 28 червня 2017 користувачем RusLi Посилання на коментар Поділитися на інших сайтах More sharing options...
wertexan Опубліковано: 28 червня 2017 Поділитись Опубліковано: 28 червня 2017 А что мешает сделать наслонную систему? Есть же внутренняя стенка. Посилання на коментар Поділитися на інших сайтах More sharing options...
snitsar Опубліковано: 28 червня 2017 Поділитись Опубліковано: 28 червня 2017 Можно ли сделать двускатную безопорную крышу на таком пролете? Дуже мало вихідних данних. 1. Висота стіни мансарди. 2. Кут нахилу даху. 3. Покрівельний матеріал. 4.Розміри і крок крокв. 5.Місце будівництва. На основі цього можна зробити висновок витримає чи ні. Також можна деякі параметри розрахувати щоб витримало. Те що можна зробити, то це факт, але не просто. 1 Посилання на коментар Поділитися на інших сайтах More sharing options...
RusLi Опубліковано: 30 червня 2017 Поділитись Опубліковано: 30 червня 2017 Дуже мало вихідних данних. 1. Висота стіни мансарди. 2. Кут нахилу даху. 3. Покрівельний матеріал. 4.Розміри і крок крокв. 5.Місце будівництва. На основі цього можна зробити висновок витримає чи ні. Також можна деякі параметри розрахувати щоб витримало. Те що можна зробити, то це факт, але не просто. 1. 1.6м 2. 35* 3. металлочерепица 4. собственно под задачи и будет подбиратся 5. с. Тарасовка (Боярка) Я хотел оставить на 2м этаже свободную планировку, пока не дойдут руки до работ на 2м этаже. Сделать 1й и жить. Пока семья не такая большая ) Но как я понял, все же проще как минимум среднюю стену возвести? Проще - дешевле в итоге? Посилання на коментар Поділитися на інших сайтах More sharing options...
wertexan Опубліковано: 30 червня 2017 Поділитись Опубліковано: 30 червня 2017 Я хотел оставить на 2м этаже свободную планировку, пока не дойдут руки до работ на 2м этаже. Сделать 1й и жить. Пока семья не такая большая ) Но как я понял, все же проще как минимум среднюю стену возвести? Проще - дешевле в итоге? Хотя бы стойку поставить. Навскидку должно хватить дерева 150х150мм. Будет действительно проще, дешевле и прочнее. 1 Посилання на коментар Поділитися на інших сайтах More sharing options...
snitsar Опубліковано: 30 червня 2017 Поділитись Опубліковано: 30 червня 2017 все же проще как минимум среднюю стену возвести? Проще - дешевле в итоге? Думаю, краще все таки зі стіною по середині зробити. На рахунок дешевше, важко сказати, оскільки тут затрати на додаткове кріплення і дерево проти більш товстої стіни. Але у виконанні більш простий варіант зі стіною по середині. Якщо наважитесь робити без проміжних опор, то останнього разу я робив так як зображено на картинці. Прольот трохи менший, але навантаження - цементнопіщана черепиця. 1 Посилання на коментар Поділитися на інших сайтах More sharing options...
Рекомендовані повідомлення
Створіть акаунт або увійдіть у нього для коментування
Ви маєте бути користувачем, щоб залишити коментар
Створити акаунт
Зареєструйтеся для отримання акаунта. Це просто!
Зареєструвати акаунтУвійти
Вже зареєстровані? Увійдіть тут.
Увійти зараз