slobvetal Опубліковано: 30 березня 2017 Поділитись Опубліковано: 30 березня 2017 много и долго читаю форум и наконец у меня есть вой участок, в неплохом районе (пригород Харькова 3 км от окружной, заезд с асфальта, есть возможность подключится к центральной канализации в селе !!!!! - 20м., южный склон) как бы все неплохо. НО, как только начал планировать сразу нет определенности. Решил первым делом посадить сад, - уже посадил. Дальше стал вопрос с бытовкой. В связи с тем что пока даже нет плана основного дома, а бытовки (нормальные) стоят немало, и я с семей не против проводить выходные на участке, и у меня большая семья много родственников и друзей, - РЕШИЛ построить маленький домик, который на время стройки будет строительным домиком, в котором семья может провести выходные а по завершению стройки станет гостевым домом. Характеристики: размеры домика - 5,70 х 6,90, одноэтажный. План сканирую и скину позже. Как Вам такое решение. Посилання на коментар Поділитися на інших сайтах More sharing options...
Игорь&Ира Опубліковано: 30 березня 2017 Поділитись Опубліковано: 30 березня 2017 РЕШИЛ построить маленький домик, который на время стройки будет строительным домиком, в котором семья может провести выходные а по завершению стройки станет гостевым домом. Характеристики: размеры домика - 5,70 х 6,90, одноэтажный. План сканирую и скину позже. Как Вам такое решение. Размеры участка, план дома, состав семьи - будет разговор. Посилання на коментар Поділитися на інших сайтах More sharing options...
vadimv Опубліковано: 31 березня 2017 Поділитись Опубліковано: 31 березня 2017 Как Вам такое решение.Это решение уже озвучивал форумчанин mastervovik, можете с ним пообщаться насчет аргументации. 1 Посилання на коментар Поділитися на інших сайтах More sharing options...
Andrei constructor Опубліковано: 31 березня 2017 Поділитись Опубліковано: 31 березня 2017 Как Вам такое решение. Если нет финансовой возможности сразу строить дом больших размеров, то это правильное решение. Но я бы посоветовал сделать немного иначе. Есть возможность запроектировать дом с поэтапной реализацией. Например, вначале возводите 30...35 м2 и начинаете эксплуатировать потом в соответствии с проектом добавляете следующую часть и т.д. до нужных размеров. Проект такого дома должен учитывать сразу все этапы возведения. Также вы один раз получаете на весь дом строительный паспорт с указанием там этапов строительства и также получаете одно разрешение в ГАСКе на начало строительства. Также такой способ вам сэкономит приличный бюджет и избавит ваш участок от лишних строений. 3 Посилання на коментар Поділитися на інших сайтах More sharing options...
Игорь&Ира Опубліковано: 31 березня 2017 Поділитись Опубліковано: 31 березня 2017 Есть возможность запроектировать дом с поэтапной реализацией. Например, вначале возводите 30...35 м2 и начинаете эксплуатировать потом в соответствии с проектом добавляете следующую часть и т.д. до нужных размеров. А можно реальные примеры такого подхода? Посилання на коментар Поділитися на інших сайтах More sharing options...
Drosselbeere Опубліковано: 31 березня 2017 Поділитись Опубліковано: 31 березня 2017 А можно реальные примеры такого подхода? ИМХО это как ремонт в квартире по комнатам до бесконечности, который не возможно закончить, а только приостановить... У ТС не стоит вопрос финансов, больше нет понимание своего дом, вот и хочет потренироваться и эксплуатировать участок сейчас. Вот тут как раз норм решение модульных домов, бытовок.... и тд Посилання на коментар Поділитися на інших сайтах More sharing options...
Игорь&Ира Опубліковано: 31 березня 2017 Поділитись Опубліковано: 31 березня 2017 ИМХО это как ремонт в квартире по комнатам до бесконечности, который не возможно закончить, а только приостановить... Неудачное сравнение, так как было предложение строит дом чуть ли не по-комнатно: Например, вначале возводите 30...35 м2 и начинаете эксплуатировать потом в соответствии с проектом добавляете следующую часть и т.д. до нужных размеров. Посилання на коментар Поділитися на інших сайтах More sharing options...
Romb Опубліковано: 31 березня 2017 Поділитись Опубліковано: 31 березня 2017 и у меня большая семья много родственников и друзей, - РЕШИЛ построить маленький домик, который на время стройки будет строительным домиком, в котором семья может провести выходные а по завершению стройки станет гостевым домом. Характеристики: размеры домика - 5,70 х 6,90, одноэтажный. План сканирую и скину позже. Как Вам такое решение. Это называется стройка на всю оставшуюся жизнь. Или все остановится на гостевом. Для гостей в основном доме предусматривается 1-2 комнатушки. Финансирование на каком уровне? Подкожные запасы есть? Посилання на коментар Поділитися на інших сайтах More sharing options...
dmitriylaser Опубліковано: 31 березня 2017 Поділитись Опубліковано: 31 березня 2017 ТС если для потренироваться и на перспективу -постройте лучше гараж-хозблок( гараж+ 1-2 комнатки, поначалу можно использовать как строит. домик +склад материалов. Ворота изначально можно и не ставить но перемычку заложить.) 1 Посилання на коментар Поділитися на інших сайтах More sharing options...
Andrei constructor Опубліковано: 31 березня 2017 Поділитись Опубліковано: 31 березня 2017 А можно реальные примеры такого подхода? Делали такой маленький домик "Малыш". Это для примера. Часто бывает наоборот, что меньший объем строится вначале, а больший пристраивается вторым этапом. 1 Посилання на коментар Поділитися на інших сайтах More sharing options...
Andrei constructor Опубліковано: 31 березня 2017 Поділитись Опубліковано: 31 березня 2017 Есть такое популярное на западе планировочное решение, которое называется "dogtrot". Если его выбрать то можно легко возводить загородный дом в два этапа, который под одной крышей будет объединять основной и гостевой домики. gidproekt.com/modulnyj-dom-dlya-otdyxa-v-danii-v-stile-dogtrot.html Посилання на коментар Поділитися на інших сайтах More sharing options...
Romb Опубліковано: 3 квітня 2017 Поділитись Опубліковано: 3 квітня 2017 Делали такой маленький домик "Малыш". Это для примера. Часто бывает наоборот, что меньший объем строится вначале, а больший пристраивается вторым этапом. Ну не знаю. Временно - постоянных мероприятий по отделению недостроя от потомстроя прилично. Утепление-крыша-окна и т.д. Коробку-крышу осилить, а внутрянку растягивать сколько хочешь. Имхо. Посилання на коментар Поділитися на інших сайтах More sharing options...
slobvetal Опубліковано: 3 квітня 2017 Автор Поділитись Опубліковано: 3 квітня 2017 Это называется стройка на всю оставшуюся жизнь. Или все остановится на гостевом. Для гостей в основном доме предусматривается 1-2 комнатушки. Финансирование на каком уровне? Подкожные запасы есть? Есть, недвижимость другом городе (Каменце-Подольском, Хмельницкой области) которую сейчас выставил на продажу. Дом на участке планирую строить однозначно. Добавлено через 9 минут На выходных, посадил сад 43 деревца (яблони, груши, черешни, вишни). Сейчас занимаюсь вопросом електрофикации участка. Может у кого-то есть опыт подключения: всего оформлено 39 земельных участков, целевое назначение - садоводчество, находятся на границе с населенным пунктом, с двух сторон выделенного масива проходят линии электропередач 10квт. На окончательном этапе (очень надеюсь.... скоро - 1 год), детальный (генеральный) план, делаем на все 39 участков. Добавлено через 6 минут Размеры участка, план дома, состав семьи - будет разговор. размеры участка: ширина - 30, длина 40; состав семьи - 4 человека; план дома еще в стадии планирования. Разговор идет о строительном домике, который потом трансформируются в гостевой домик с деревянной Массандрой 1 Посилання на коментар Поділитися на інших сайтах More sharing options...
Игорь&Ира Опубліковано: 3 квітня 2017 Поділитись Опубліковано: 3 квітня 2017 размеры участка: ширина - 30, длина 40 На 12 сотках 43 деревца и 2 дома? Посилання на коментар Поділитися на інших сайтах More sharing options...
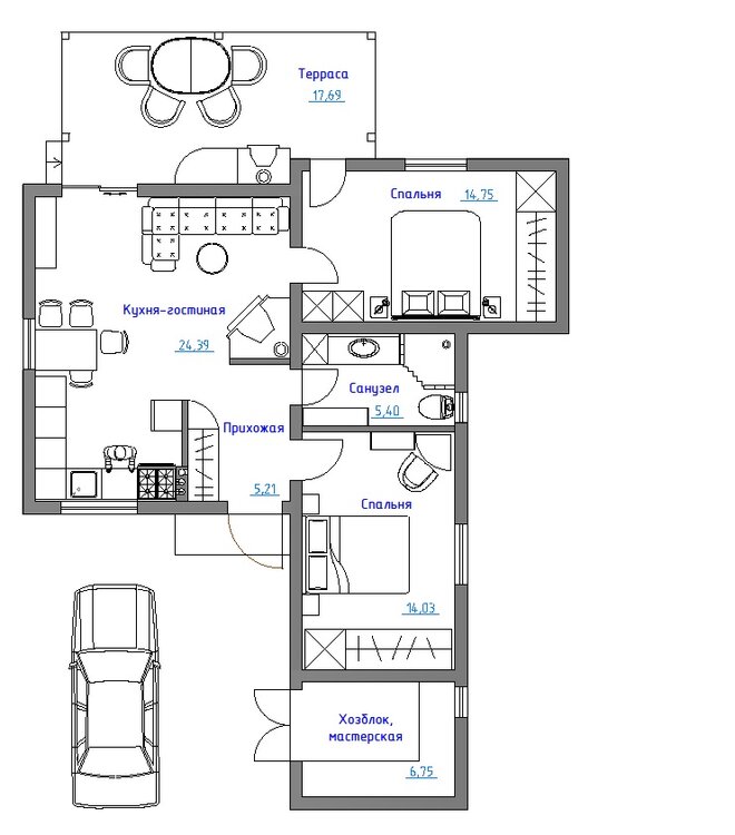
slobvetal Опубліковано: 3 квітня 2017 Автор Поділитись Опубліковано: 3 квітня 2017 (змінено) примерный план Змінено 3 квітня 2017 користувачем slobvetal Посилання на коментар Поділитися на інших сайтах More sharing options...
slobvetal Опубліковано: 3 квітня 2017 Автор Поділитись Опубліковано: 3 квітня 2017 На 12 сотках 43 деревца и 2 дома? часть деревьев (два ряда) вдоль участка, посажены за его пределами (+8 метров), приятный бонус)))) исключительно для сада! 1 Посилання на коментар Поділитися на інших сайтах More sharing options...
slobvetal Опубліковано: 3 квітня 2017 Автор Поділитись Опубліковано: 3 квітня 2017 завтра сделаю фотографии участка Посилання на коментар Поділитися на інших сайтах More sharing options...
Andrei constructor Опубліковано: 3 квітня 2017 Поділитись Опубліковано: 3 квітня 2017 Коробку-крышу осилить, а внутрянку растягивать сколько хочешь. Имхо. А жить когда нормально? Добавлено через 2 минуты Временно - постоянных мероприятий по отделению недостроя от потомстроя прилично. обычно нет никаких мероприятий. В проекте учитываю просто этапность. Построил быстро - живи. Получилось собрать бюджет на следующий этап - строй и продолжай нормально жить в первой части. Посилання на коментар Поділитися на інших сайтах More sharing options...
Romb Опубліковано: 4 квітня 2017 Поділитись Опубліковано: 4 квітня 2017 А жить когда нормально? Добавлено через 2 минуты обычно нет никаких мероприятий. В проекте учитываю просто этапность. . Это как то оторвано от реалий. И как ваш вариант предполагает шикарную жизнь? Поясняю по мероприятиям. По вашему проекту построили первый этап. Это одна-две комнатки. Имеем внутренние стены. Как зимой ? Утеплять по времянке? Имеев дверь в будущее. Зашивать утеплять по времянке? Имеем как то крышу над частью дома? Фронтоны временно зашить, перекрытие как то утеплить ? Или вообще вся крыша времянка. Затем собрали деньгу и начинаем все разбирать . И опять фундамент-стены ...Жить когда нормально? В моем варианте это готовая коробка с крышей. Все. А дальше реализуем ваш первый этап, но только по внутрянке. И все уже не под дождем. И теплее. И материалы есть где положить потихоньку. Вот так и жить если нет силенок. Посилання на коментар Поділитися на інших сайтах More sharing options...
vadimv Опубліковано: 4 квітня 2017 Поділитись Опубліковано: 4 квітня 2017 примерный план [ATTACH]559215[/ATTACH]Дети однополые? Будут жить в одной комнате? Посилання на коментар Поділитися на інших сайтах More sharing options...
slobvetal Опубліковано: 4 квітня 2017 Автор Поділитись Опубліковано: 4 квітня 2017 Посоветуйте, согласно вышеизложенного плана, какой фундамент ставить, ели домик будет одноэтажный, стены газоблок 60х30х20 прегородки будут из газоблока 10, стоит ли ли делать под них (комнатные перегородки) фудамет, или хватит бетонного пола. неудевляйтесь пожалуйста вопросам, просто идея этого домика - это получить практический опыт перед строительством основного дома. Посилання на коментар Поділитися на інших сайтах More sharing options...
Игорь&Ира Опубліковано: 4 квітня 2017 Поділитись Опубліковано: 4 квітня 2017 Дети однополые? Будут жить в одной комнате? До 9 лет разрешено. А там новый дом. Посилання на коментар Поділитися на інших сайтах More sharing options...
vasso Опубліковано: 4 квітня 2017 Поділитись Опубліковано: 4 квітня 2017 Считаю, что начинать стройку с гостевого дома неправильно, купите бытовку за 10-20 т. и начинайте строительство основного дома, бытовку потом продадите Посилання на коментар Поділитися на інших сайтах More sharing options...
sigma_shig Опубліковано: 6 квітня 2017 Поділитись Опубліковано: 6 квітня 2017 Сейчас смотрю на свою стройку и однозначно высказываюсь против и начала с гостевого дома и против поэтапного строительства. Разве что совсем прижмет. Стройка это постоянный мусор. Это постоянно вытоптаный участок. Это песок/щебень/кирпич/доски сложеные везде, где только можно. Жить среди этого? Крайне некомфортно. Понятное дело, если жить больше негде, то можно и так. Я бы начинал с покупки бытовки и строительства дома. Да, если финансы поджимают, то выгнал бы коробку, а внутрянку делал постепенно. Посилання на коментар Поділитися на інших сайтах More sharing options...
slobvetal Опубліковано: 7 квітня 2017 Автор Поділитись Опубліковано: 7 квітня 2017 Решил делать забор с бетонных столбиков 2,4м. (8х9см.) и сетки рабицы. Общая длина забора 154м. Установка столбов - глубина ямы - 70см. потом бетонирование. Еще есть вариант покупки советских виноградных столбов 10х10см. - 2,4м. Что посоветуете Еще вопрос по шагу - 2,5 метра или 3 метра???? Посилання на коментар Поділитися на інших сайтах More sharing options...
Рекомендовані повідомлення
Створіть акаунт або увійдіть у нього для коментування
Ви маєте бути користувачем, щоб залишити коментар
Створити акаунт
Зареєструйтеся для отримання акаунта. Це просто!
Зареєструвати акаунтУвійти
Вже зареєстровані? Увійдіть тут.
Увійти зараз