Hankey Опубліковано: 4 жовтня 2017 Поділитись Опубліковано: 4 жовтня 2017 Всем доброго дня. Возник такой вопрос. Сейчас пытаюсь определиться с топкой - понравилась Hark Radiante 1150 H, но есть один ньюанс - у топки диаметр подключения дымохода 250, а у меня бымоход 200 (Шидель - подключение под 45 градусов высота дымохода 9 метров от пола в доме, подключение дымохода на высоте 2,5м от пола). Продавец утверждает что при такой высоте дымохода - заужение возможно - но почти везде и все пишут что дымоход заужать ни в коем случае нельзя. Может кто-то посоветует топку похожу на эту (интересует стекло минимум 1000 * 500) или разъеснит - возможно ли в данном случае заужение дымохода. Заранее благодарю за помощь. Посилання на коментар Поділитися на інших сайтах More sharing options...
Gonchik Опубліковано: 4 жовтня 2017 Поділитись Опубліковано: 4 жовтня 2017 (змінено) Всем доброго дня. Возник такой вопрос. Сейчас пытаюсь определиться с топкой - понравилась Hark Radiante 1150 H, но есть один ньюанс - у топки диаметр подключения дымохода 250, а у меня бымоход 200 (Шидель - подключение под 45 градусов высота дымохода 9 метров от пола в доме, подключение дымохода на высоте 2,5м от пола). Продавец утверждает что при такой высоте дымохода - заужение возможно - но почти везде и все пишут что дымоход заужать ни в коем случае нельзя. Может кто-то посоветует топку похожу на эту (интересует стекло минимум 1000 * 500) или разъеснит - возможно ли в данном случае заужение дымохода. Заранее благодарю за помощь. kaminoff.kiev.ua/p109690213-kaminnaya-topka-austroflamm.html 180 мм. Имхо намного лучше того харка. Змінено 4 жовтня 2017 користувачем Gonchik Посилання на коментар Поділитися на інших сайтах More sharing options...
Hankey Опубліковано: 4 жовтня 2017 Автор Поділитись Опубліковано: 4 жовтня 2017 Может быть и лучше - не спорю - но на такой бюджет я точно не расчитывал (2500 евро на топку это потолок), да и не нравится мне стекло у этого варианта 350мм по высоте - маловато. Посилання на коментар Поділитися на інших сайтах More sharing options...
normal Опубліковано: 4 жовтня 2017 Поділитись Опубліковано: 4 жовтня 2017 Так а Вы цену на Hark Radiante 1150 H точно перед этим правильно рассмотрели? Посилання на коментар Поділитися на інших сайтах More sharing options...
Hankey Опубліковано: 4 жовтня 2017 Автор Поділитись Опубліковано: 4 жовтня 2017 Да, мне предлагают не газовую ECO+ - например эта: www.olx.ua/obyavlenie/kaminnye-topki-hark-1150-h-eco-germaniya-30-kvt-IDtkSKC.html#c2f4a84b9a а вот такую: www.olx.ua/obyavlenie/kaminnaya-topka-hark-1150-h-30-kvt-IDtk9xm.html#c2f4a84b9a Посилання на коментар Поділитися на інших сайтах More sharing options...
normal Опубліковано: 4 жовтня 2017 Поділитись Опубліковано: 4 жовтня 2017 Мне кажется, в номинальной мощности должно работать нормально, до шиделя вести по дыму черными трубами 250 (может получится и радиатор впихнуть), затем переходник на керамику Darco WKC 250/200-CZ 2-S (там выйдет одно локальное сужение с 250 на 180, а за ним уже будет 200), т.е. приоткрытая гильотина и радиатор якобы должны давать два метра разгона, чтобы при растопке не бросало дымом, но это ИМХО Посилання на коментар Поділитися на інших сайтах More sharing options...
SON Опубліковано: 4 жовтня 2017 Поділитись Опубліковано: 4 жовтня 2017 у топки диаметр подключения дымохода 250, а у меня бымоход 200 (Шидель - подключение под 45 градусов высота дымохода 9 метров Мощность топки дайте и температуру выхлопа. Посилання на коментар Поділитися на інших сайтах More sharing options...
normal Опубліковано: 4 жовтня 2017 Поділитись Опубліковано: 4 жовтня 2017 Пишут: Номинальная мощность, кВатт - 11,0, температура выхлопа 326 °C Максимальная мощность, кВатт - 30,0, температуру не пишут Посилання на коментар Поділитися на інших сайтах More sharing options...
SON Опубліковано: 4 жовтня 2017 Поділитись Опубліковано: 4 жовтня 2017 Пишут: Номинальная мощность, кВатт - 11,0, температура выхлопа 326 °C Максимальная мощность, кВатт - 30,0, температуру не пишут Такой люфт по мощности конечно очень сомнительно. Попробую по порядку. В разе 11 кВт-ной топки 6-7 метровая труба Ф200 мм прокатит в любом случае. При 30 кВт на 200 мм трубу гореть при закрытой дверке она будет , но при открытии дверки (дров подкинуть/покурить в топку) есть большая вероятность получить дым в хату. 1 Посилання на коментар Поділитися на інших сайтах More sharing options...
Каминофф Опубліковано: 5 жовтня 2017 Поділитись Опубліковано: 5 жовтня 2017 Всем доброго дня. Возник такой вопрос. Сейчас пытаюсь определиться с топкой - понравилась Hark Radiante 1150 H, но есть один ньюанс - у топки диаметр подключения дымохода 250, а у меня бымоход 200 (Шидель - подключение под 45 градусов высота дымохода 9 метров от пола в доме, подключение дымохода на высоте 2,5м от пола). Продавец утверждает что при такой высоте дымохода - заужение возможно - но почти везде и все пишут что дымоход заужать ни в коем случае нельзя. Может кто-то посоветует топку похожу на эту (интересует стекло минимум 1000 * 500) или разъеснит - возможно ли в данном случае заужение дымохода. Заранее благодарю за помощь. Вообще все зависит от продавца и производителя. Из практики если дымоход выше 7 метров при нормальных условия топка с диаметром 250мм нормально работает при дымоходе 200мм. Но многое еще зависит от конструктива самой топки. К примеру, у итальянцев Edilkamin, Piazzetta, MCZ просто конструктив в большинстве своем такой, что "дыра в небо", и потому там с этим проще. К примеру, рекомендованный Вам Austroflamm при таких габаритах с 180мм патрубком топки может поддымливать при открывании двери и при Вашем 200мм дымоходе (хотя это больше касается 97*74) из-за конструктива дымовых зубьев и объема камеры горения, особенно при розжиге. Многие производители в инструкциях и каталогах прописывают либо общие требования к дымоходу с учетом высоты минимум и максимум какое возможно расширение или сужение дымохода, а некоторые, как M-Design, на каждую модель и серию прописывают требования к дымоходу. Если Вы рассчитываете на бюджет до 2500 евро в таком размере могу предложить Вам рассмотреть Romotop Heat 110*50*01 c диаметром 200мм, адекватной ценой (2200) и более реальной киловатностью и хорошим КПД: kaminoff.com.ua/?view=product&goods_id=1061 Можете подъехать и посмотреть в живую. Есть еще остатки недорогой серии Classic бельгийской M-Design, тоже метровая топка с диаметром 250мм, но производитель разрешает сужение на 200мм свыше 6м: kaminoff.com.ua/?view=product&goods_id=889 Варианты есть.... Посилання на коментар Поділитися на інших сайтах More sharing options...
Hankey Опубліковано: 5 жовтня 2017 Автор Поділитись Опубліковано: 5 жовтня 2017 Вообще все зависит от продавца и производителя. Из практики если дымоход выше 7 метров при нормальных условия топка с диаметром 250мм нормально работает при дымоходе 200мм. Но многое еще зависит от конструктива самой топки. К примеру, у итальянцев Edilkamin, Piazzetta, MCZ просто конструктив в большинстве своем такой, что "дыра в небо", и потому там с этим проще. К примеру, рекомендованный Вам Austroflamm при таких габаритах с 180мм патрубком топки может поддымливать при открывании двери и при Вашем 200мм дымоходе (хотя это больше касается 97*74) из-за конструктива дымовых зубьев и объема камеры горения, особенно при розжиге. Многие производители в инструкциях и каталогах прописывают либо общие требования к дымоходу с учетом высоты минимум и максимум какое возможно расширение или сужение дымохода, а некоторые, как M-Design, на каждую модель и серию прописывают требования к дымоходу. Если Вы рассчитываете на бюджет до 2500 евро в таком размере могу предложить Вам рассмотреть Romotop Heat 110*50*01 c диаметром 200мм, адекватной ценой (2200) и более реальной киловатностью и хорошим КПД: kaminoff.com.ua/?view=product&goods_id=1061 Можете подъехать и посмотреть в живую. Есть еще остатки недорогой серии Classic бельгийской M-Design, тоже метровая топка с диаметром 250мм, но производитель разрешает сужение на 200мм свыше 6м: kaminoff.com.ua/?view=product&goods_id=889 Варианты есть.... Спасибо за ответ. Адресс посмотрел - обязательно подъеду. Вариант с Romotop - очень интересный. Посилання на коментар Поділитися на інших сайтах More sharing options...
reslato Опубліковано: 10 жовтня 2017 Поділитись Опубліковано: 10 жовтня 2017 великі топки класно дивляться, коли не горять) за таку суму краще взяти Аустрофлам 75*57, буде дешевше, ефектніше і ефективніше з Вашим димоходом, чи Хокстер в тому ж розмірі. метрові топки прийдеться сильно кочегарити, щоб скло не коптилось, в результаті розмір видимого вогню буде ідентичним, що в метрового Харк, що в Аустрофламу поменше чи Хокстеру 1 Посилання на коментар Поділитися на інших сайтах More sharing options...
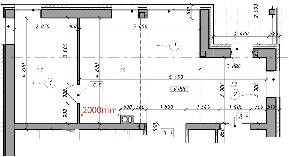
Hankey Опубліковано: 20 жовтня 2017 Автор Поділитись Опубліковано: 20 жовтня 2017 Тогда такой еще вопрос. Был один установщик и при просмотре сразу сказал что необходимо ставить топку только с подъемной дверцей. У меня вопрос - это развод на деньги или место установки (во вложении ниша 2м) действительно предполагает топку только с таким механизмом? Посилання на коментар Поділитися на інших сайтах More sharing options...
normal Опубліковано: 20 жовтня 2017 Поділитись Опубліковано: 20 жовтня 2017 А метровые топки бывают с боковой дверкой? Видимо она там весь проход закроет, у меня 74 см дверка и уже как-то не очень удобно открывать\закрывать, а просто поставить любую там нет проблем Посилання на коментар Поділитися на інших сайтах More sharing options...
Каминофф Опубліковано: 20 жовтня 2017 Поділитись Опубліковано: 20 жовтня 2017 Тогда такой еще вопрос. Был один установщик и при просмотре сразу сказал что необходимо ставить топку только с подъемной дверцей. У меня вопрос - это развод на деньги или место установки (во вложении ниша 2м) действительно предполагает топку только с таким механизмом? Гильетина или нет решать Вам - к месту отношения не имеет. Просто рекомендация возможно прозвучала исходя из размера топки желаемого Вами. Я бы тоже метровую топку не рекомендовал с боковым открытием и не только потому что это неудобно в плане размаха двери, но и потому что вероятность провисания двери велика. Добавлено через 3 минуты А метровые топки бывают с боковой дверкой? Видимо она там весь проход закроет, у меня 74 см дверка и уже как-то не очень удобно открывать\закрывать, а просто поставить любую там нет проблем Бывают, но не у всех производителей. Austroflamm все топки свыше 75 см шириной делает с механизмом подъема, а есть модели Fondis, M-Design, Edilkamin, Nordica и другие что производят топки 1000мм с боковым открыванием двери. У многих есть опция перевешивания двери, чтобы открывались в другую сторону. Посилання на коментар Поділитися на інших сайтах More sharing options...
Hankey Опубліковано: 20 жовтня 2017 Автор Поділитись Опубліковано: 20 жовтня 2017 Да собственно вопрос возник потому - что закралось сомнение по поводу широкой топки. Скажем так - широкое и высокое стекло - стоит ОЧЕНЬ дорого, а вот если сравнивать широкое и низкое - то мне как-то больше импонирует все таки больше квадратное в таком случае, вот и думаю - может действительно посмотреть в сторону Austroflamm 75x57, но не с подъемным механизмом, а с открыванием в сторону. Да и цена на эту топку вроде приемлимая. Вот и задумался. Посилання на коментар Поділитися на інших сайтах More sharing options...
Sheridan Опубліковано: 20 жовтня 2017 Поділитись Опубліковано: 20 жовтня 2017 Да собственно вопрос возник потому - что закралось сомнение по поводу широкой топки. Скажем так - широкое и высокое стекло - стоит ОЧЕНЬ дорого, а вот если сравнивать широкое и низкое - то мне как-то больше импонирует все таки больше квадратное в таком случае, вот и думаю - может действительно посмотреть в сторону Austroflamm 75x57, но не с подъемным механизмом, а с открыванием в сторону. Да и цена на эту топку вроде приемлимая. Вот и задумался. Дуже цікава зміна. А можете назвати 10 відмінностей між Austroflamm 75х57 та Kratki Nadia 13? А також, чому змінили гільйотину на бокове? Посилання на коментар Поділитися на інших сайтах More sharing options...
reslato Опубліковано: 22 жовтня 2017 Поділитись Опубліковано: 22 жовтня 2017 та при чому тут зараз різниця між Аустрофлам і Краткі, нащо знову ці перемусолені в десятках тем дискусії. поки що йде вибір по розміру топки і димоходу підходящому. в менших топках гільйотина не так потрібна і це суттєво дешевше, велику топку без гільйотини брати не варто. якщо плануєте реально користуватись каміном і насолоджуватись, то з Вашим димоходом краще дійсно меншу топку Посилання на коментар Поділитися на інших сайтах More sharing options...
Sheridan Опубліковано: 22 жовтня 2017 Поділитись Опубліковано: 22 жовтня 2017 та при чому тут зараз різниця між Аустрофлам і Краткі, нащо знову ці перемусолені в десятках тем дискусії. поки що йде вибір по розміру топки і димоходу підходящому. в менших топках гільйотина не так потрібна і це суттєво дешевше, велику топку без гільйотини брати не варто. якщо плануєте реально користуватись каміном і насолоджуватись, то з Вашим димоходом краще дійсно меншу топку Я не хотів здатись неумісним. Просто помітив, що людину ще лихорадить: Hark, Austroflamm, Romotop. Так, ніби пофіг що брати, головне, щоб натягтись баблом на топку, а далі трава не рости. Нікого не нагадує? Буде неприємно, якщо і Hanky втрапить у таку ж халепу, як і Ви, reslato. Важливо, щоб людина напевне знала, що проект увінчається успіхом. Хоча байдуже, Hanky, наспраді Austroflamm хороший вибір, а якщо візьмете ще й у Камінофф зі встановленням, то і бюджет сплануєте, і якість результату буде відмінною. Посилання на коментар Поділитися на інших сайтах More sharing options...
reslato Опубліковано: 22 жовтня 2017 Поділитись Опубліковано: 22 жовтня 2017 Я не хотів здатись неумісним. Просто помітив, що людину ще лихорадить: Hark, Austroflamm, Romotop. Так, ніби пофіг що брати, головне, щоб натягтись баблом на топку, а далі трава не рости. Нікого не нагадує? Буде неприємно, якщо і Hanky втрапить у таку ж халепу, як і Ви, reslato. Важливо, щоб людина напевне знала, що проект увінчається успіхом. про яку халепу Ви говорите?? мене пре тема камінів, і я отримав класний досвід і класний камін, скоро і результат протестуємо в зимових умовах і подивимось наскільки критичним є шамот наш. а тут людина вибирає розмір димоходу і скла, розмова про якість поки навіть не йде, є бюджет запланований на топку і я зі свого досвіду раджу, тому що на першому етапі мені теж дуже подобались широкоформатні топки, коли вник зрозумів, що з ними є нюанси. а, якщо Ви хочете порадити Краткі замість Аустрофлам, то так і скажіть, для чого ребуси людям задавати Посилання на коментар Поділитися на інших сайтах More sharing options...
Hankey Опубліковано: 23 жовтня 2017 Автор Поділитись Опубліковано: 23 жовтня 2017 Скажем так, я действительно изначально хотел широкоформатную топку, но побывав в салоне у Каминофф, мне понравилась модель Romotop 88.66.01 - и внешне и ценой (изначально планировал 110.50.01). И вроде качество тоже понравилось, но смущает отсутствие отзывов про топки данного производителя (более того, некоторые продавцы топок откровенно гонят на данные топки), поэтому решил посмотреть топки у других - более именитых производителей. Просто действительно - не хочется купить топку и потом с ней мучаться. На данный момент, всетаки больше склоняюсь именно к этой топке - 88.66.01. Добавлено через 9 минут Кстати, меня действительно лихорадит от выбора, который есть сейчас на рынке, и т.к. в топках я вообще не бум-бум - вот и решил спросить совета здесь, у знающих людей. Посилання на коментар Поділитися на інших сайтах More sharing options...
kammeo Опубліковано: 23 жовтня 2017 Поділитись Опубліковано: 23 жовтня 2017 смущает отсутствие отзывов про топки данного производителя (более того, некоторые продавцы топок откровенно гонят на данные топки), поэтому решил посмотреть топки у других - более именитых производителей. "Гонят" только те, кто предлагает KRATKI, HITZE, PIAZZETTA,CAMINETTI ))) Иначе польско-албанско-итальянский ширпотреб продать не получится!! Если в сравнении с этими производителями, то Romotop на порядок лучше. и не имеет рекламаций на каждую вторую топку, как поляки и итальянцы. При этом не дотягивает до качества немцев. Поэтому и уступает в цене последним практически в два раза. топка 88.66.01 более интересна и в эстетике (соотношение сторон 4:3) и в эксплуатации. 110 выбирают или дизайнеры или заказчики с "гигантоманией", не понимая, что в каминах много (большой размер), не означает хорошо (удобны в эксплуатации). В эксплуатации топки с размерами больше метра - одни неприятности, ведь необходимо по сути топить или метровыми дровами! или разжигать подряд три костра. Единственный минус топки 88.66.01 - это нет доводчика двери и со временем придется менять нижний шнур для сохранения герметичности. 1 Посилання на коментар Поділитися на інших сайтах More sharing options...
Каминофф Опубліковано: 23 жовтня 2017 Поділитись Опубліковано: 23 жовтня 2017 Скажем так, СЏ действительно изначально хотел широкоформатную топку, РЅРѕ побывав РІ салоне Сѓ Каминофф, РјРЅРµ понравилась модель Romotop 88.66.01 - Рё внешне Рё ценой (изначально планировал 110.50.01). Р? РІСЂРѕРґРµ качество тоже понравилось, РЅРѕ смущает отсутствие отзывов РїСЂРѕ топки данного производителя (более того, некоторые продавцы топок откровенно РіРѕРЅСЏС‚ РЅР° данные топки), поэтому решил посмотреть топки Сѓ РґСЂСѓРіРёС… - более именитых производителей. Просто действительно - РЅРµ хочется купить топку Рё потом СЃ ней мучаться. РќР° данный момент, всетаки больше склоняюсь именно Рє этой топке - 88.66.01. Добавлено через 9 РјРёРЅСѓС‚ Кстати, меня действительно лихорадит РѕС‚ выбора, который есть сейчас РЅР° рынке, Рё С‚.Рє. РІ топках СЏ вообще РЅРµ Р±СѓРј-Р±СѓРј - РІРѕС‚ Рё решил спросить совета здесь, Сѓ знающих людей. Очень приятно, что Р’С‹ выбрали время побывать Сѓ нас РІ салоне. Надеюсь Вам смогли корректно рассказать РїСЂРѕ продукцию. Если Сѓ Вас остались РІРѕРїСЂРѕСЃС‹ - напишите РІ личных сообщениях Рё СЏ постараюсь Вам помочь Рё корректно объяснить...почему РІ личных? РЅРµ хочу развивать РґРёСЃРєСѓСЃСЃРёСЋ....РѕРЅР° РїРѕСЂРѕР№ вызывает еще большую лихорадку Сѓ покупателей. Касательно того, что отзывов нет, то РѕРЅРё Р±СѓРґСѓС‚, РЅРѕ чуть РїРѕР·Р¶Рµ.....модельный СЂСЏРґ именно топок Сѓ Romotop расширился РЅРµ так давно. РњС‹ РїРѕРєР° что установили только 2 модели 88*66 Рё РјРЅРѕРіРѕ РґСЂСѓРіРёС… моделей. РўРѕ что РїСЂРѕ него нелестно отзываются конкуренты - это вполне понятно. Рђ РїСЂРѕ Харк Рё РґСЂСѓРіРёРµ бренды как РѕРЅРё отзывались? Выслушивая негатив РІ сторону того или РґСЂСѓРіРѕРіРѕ бренда смотрите какими брендами занимается продавец Рё фильтруйте....тем более если продавец РЅРµ сравнивает конкретные РїРѕС…РѕР¶РёРµ модели Рё называет Вам реальные характеристики или преимущества, Р° РіРѕРІРѕСЂРёС‚ РІ общем РѕР±Рѕ всем Рё РЅРё Рѕ чем....то это просто конкурентная Р±РѕСЂСЊР±Р°, РЅРµ имеющая ничего общего СЃ тем, чтобы помочь Вам СЃ выбором. Р*омотоп РїСЂРѕРёР·РІРѕРґРёС‚ очень РјРЅРѕРіРѕ печей Рё топок для РґСЂСѓРіРёС… европейских брендов, то есть покупая немецкую или датскую печь - Р’С‹ приобретаете тот Р¶Рµ Р*омотоп, РЅРѕ сразу Р¶Рµ стильный, РґРѕСЂРѕРіРѕР№ Рё никем РЅРµ критикуемый! РџРѕ сути Вашего РІРѕРїСЂРѕСЃР°, то действительно главное, чтобы Р’С‹ определились (РЅРµ РёСЃС…РѕРґСЏ РёР· цены, РЅРµ глядя РЅР° нее РІРѕРІСЃРµ) что для Вас важно/хотелось Р±С‹: 1) форма (прямоугольник ближе Рє квадрату или таки вытянутый РіРѕСЂРёР·РѕРЅС‚); 2) размеры, то есть РЅР° какую ширину РјРёРЅРёРјСѓРј Рё максимум Р’С‹ согласны. Для этого рекомендую Вам приехать РЅР° объект СЃ РєСѓСЃРєРѕРј картона или пенопласта или еще чего Рё изобразить себе тот или РґСЂСѓРіРѕР№ формат стекла камина Рё отойти РІ сторону СЃ разных углов посмотреть РЅР° СЃРІРѕРµ творение ; 3) согласны ли Р’С‹ РЅР° Р±РѕРєРѕРІРѕРµ открывание двери или принципиально подъем....РІ любом бренде Р’С‹ переплачиваете Р·Р° механизм подъема приличные деньги Рё это реально цена Р·Р° удобство использования Рё РІСЃРµ. Для РєРѕРіРѕ-то это важно, для РєРѕРіРѕ-то нет. Если Р’С‹ ответите РЅР° эти три РІРѕРїСЂРѕСЃР°, то СЏ СЃРјРѕРіСѓ Вам предложить разные варианты даже РёР· тех брендов, что РјС‹ РЅРµ занимаемся Рё аргументировать какая модель чем отличается. Добавлено через 2 минуты Очень приятно, что Вы выбрали время побывать у нас в салоне. Надеюсь Вам смогли корректно рассказать про продукцию. Если у Вас остались вопросы - напишите в личных сообщениях и я постараюсь Вам помочь и корректно объяснить...почему в личных? не хочу развивать дискуссию....она порой вызывает еще большую лихорадку у покупателей. Касательно того, что отзывов нет, то они будут, но чуть позже.....модельный ряд именно топок у Romotop расширился не так давно. Мы пока что установили только 2 модели 88*66 и много других моделей. То что про него нелестно отзываются конкуренты - это вполне понятно. А про Харк и другие бренды как они отзывались? Выслушивая негатив в сторону того или другого бренда смотрите какими брендами занимается продавец и фильтруйте....тем более если продавец не сравнивает конкретные похожие модели и называет Вам реальные характеристики или преимущества, а говорит в общем обо всем и ни о чем....то это просто конкурентная борьба, не имеющая ничего общего с тем, чтобы помочь Вам с выбором. Ромотоп производит очень много печей и топок для других европейских брендов, то есть покупая немецкую или датскую печь - Вы приобретаете тот же Ромотоп, но сразу же стильный, дорогой и никем не критикуемый! По сути Вашего вопроса, то действительно главное, чтобы Вы определились (не исходя из цены, не глядя на нее вовсе) что для Вас важно/хотелось бы: 1) форма (прямоугольник ближе к квадрату или таки вытянутый горизонт); 2) размеры, то есть на какую ширину минимум и максимум Вы согласны. Для этого рекомендую Вам приехать на объект с куском картона или пенопласта или еще чего и изобразить себе тот или другой формат стекла камина и отойти в сторону с разных углов посмотреть на свое творение ; 3) согласны ли Вы на боковое открывание двери или принципиально подъем....в любом бренде Вы переплачиваете за механизм подъема приличные деньги и это реально цена за удобство использования и все. Для кого-то это важно, для кого-то нет. Если Вы ответите на эти три вопроса, то я смогу Вам предложить разные варианты даже из тех брендов, что мы не занимаемся и аргументировать какая модель чем отличается. Добавлено через 36 секунд Не понимаю, что за иероглифы, потому продублировал. 3 Посилання на коментар Поділитися на інших сайтах More sharing options...
T-Kiev Опубліковано: 24 жовтня 2017 Поділитись Опубліковано: 24 жовтня 2017 Скажем так, я действительно изначально хотел широкоформатную топку, но побывав в салоне у Каминофф, мне понравилась модель Romotop 88.66.01 - и внешне и ценой (изначально планировал 110.50.01). И вроде качество тоже понравилось, но смущает отсутствие отзывов про топки данного производителя (более того, некоторые продавцы топок откровенно гонят на данные топки), поэтому решил посмотреть топки у других - более именитых производителей. Просто действительно - не хочется купить топку и потом с ней мучаться. На данный момент, всетаки больше склоняюсь именно к этой топке - 88.66.01. Добавлено через 9 минут Кстати, меня действительно лихорадит от выбора, который есть сейчас на рынке, и т.к. в топках я вообще не бум-бум - вот и решил спросить совета здесь, у знающих людей. не хочется вас запутывать с выбором, но все же есть еще вариант с небольшим разрывом в цене по достойному внимания производителю Spartherm Varia Ash-4S-2 Посилання на коментар Поділитися на інших сайтах More sharing options...
VladShef Опубліковано: 31 жовтня 2017 Поділитись Опубліковано: 31 жовтня 2017 Да собственно вопрос возник потому - что закралось сомнение по поводу широкой топки. Скажем так - широкое и высокое стекло - стоит ОЧЕНЬ дорого, а вот если сравнивать широкое и низкое - то мне как-то больше импонирует все таки больше квадратное в таком случае, вот и думаю - может действительно посмотреть в сторону Austroflamm 75x57, но не с подъемным механизмом, а с открыванием в сторону. Да и цена на эту топку вроде приемлимая. Вот и задумался. А другие варианты брендов Вы не рассматриваете? Посмотрите еще фирму Kobok. Она словацкая, и у них есть похожие модели, на те, которые Вы выбираете. Там и гильотина, и с левосторонним открыванием. В общем разные. Посилання на коментар Поділитися на інших сайтах More sharing options...
Рекомендовані повідомлення
Створіть акаунт або увійдіть у нього для коментування
Ви маєте бути користувачем, щоб залишити коментар
Створити акаунт
Зареєструйтеся для отримання акаунта. Це просто!
Зареєструвати акаунтУвійти
Вже зареєстровані? Увійдіть тут.
Увійти зараз