2778 Опубліковано: 16 лютого 2020 Поділитись Опубліковано: 16 лютого 2020 Планируем стройку этой весной. По ряду не зависящих от меня причин пришлось переделывать эскиз планировки моего будущего дома. Решил выложить пока не заказан проект, интересно мнение форумчан... Посилання на коментар Поділитися на інших сайтах More sharing options...
2778 Опубліковано: 16 лютого 2020 Автор Поділитись Опубліковано: 16 лютого 2020 За основу взят вот этот эскиз каркасника Посилання на коментар Поділитися на інших сайтах More sharing options...
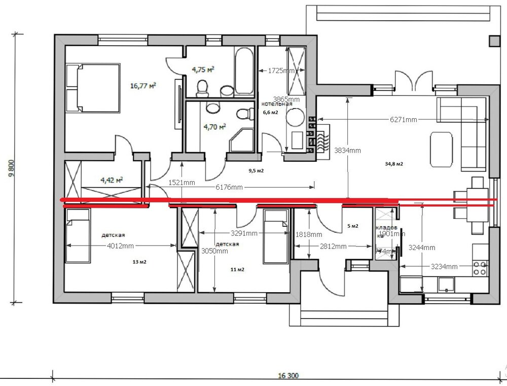
2778 Опубліковано: 16 лютого 2020 Автор Поділитись Опубліковано: 16 лютого 2020 Вот тут более точные размеры. Крыша 25 градусов, вальмовая (по материалу скорее всего битумка) Стены ГБ 375 или 400 без утепления Вопросы которые не дают покоя: - большие пролеты в кухне-гостиной (можно ли их перекрыть деревом, или заказать фермы и не парится по этому поводу)? - длинная гостиная больше 6 метров как в ней грамотно разметить диван /телевизор/ камин/ обеденный стол? . - большой пролет на террасе (не хочется городить мощную балку, которая потом будет большим мостиком холода) Посилання на коментар Поділитися на інших сайтах More sharing options...
ДОКС Опубліковано: 17 лютого 2020 Поділитись Опубліковано: 17 лютого 2020 Вот тут более точные размеры. Крыша 25 градусов, вальмовая (по материалу скорее всего битумка) Стены ГБ 375 или 400 без утепления Вопросы которые не дают покоя: - большие пролеты в кухне-гостиной (можно ли их перекрыть деревом, или заказать фермы и не парится по этому поводу)? - длинная гостиная больше 6 метров как в ней грамотно разметить диван /телевизор/ камин/ обеденный стол? . - большой пролет на террасе (не хочется городить мощную балку, которая потом будет большим мостиком холода) 1. "большие пролети в кухне-гостиной" дійсно можна вирішити за рахунок ферм. 2. намагайтесь придати вітальні саме форму "квадрата" 3. не хочеться - не городіть 1 Посилання на коментар Поділитися на інших сайтах More sharing options...
2778 Опубліковано: 17 лютого 2020 Автор Поділитись Опубліковано: 17 лютого 2020 1. "большие пролети в кухне-гостиной" дійсно можна вирішити за рахунок ферм. 2. намагайтесь придати вітальні саме форму "квадрата" 3. не хочеться - не городіть я наоборот уходил от квадрата, мне кажется Гобразная форма более интерсна Посилання на коментар Поділитися на інших сайтах More sharing options...
newbee2020 Опубліковано: 17 лютого 2020 Поділитись Опубліковано: 17 лютого 2020 близкая мне концепция. подскажите, широкий фасад специально подбирали под участок? вот у меня ширина 27квм, искал форму ближе к квадрату. z24 не рассматривали? Посилання на коментар Поділитися на інших сайтах More sharing options...
vadimv Опубліковано: 17 лютого 2020 Поділитись Опубліковано: 17 лютого 2020 - большие пролеты в кухне-гостиной (можно ли их перекрыть деревом, или заказать фермы и не парится по этому поводу)?Почему бы просто не сделать несущей другую стену по центру? 1 Посилання на коментар Поділитися на інших сайтах More sharing options...
2778 Опубліковано: 17 лютого 2020 Автор Поділитись Опубліковано: 17 лютого 2020 близкая мне концепция. подскажите, широкий фасад специально подбирали под участок? вот у меня ширина 27квм, искал форму ближе к квадрату. z24 не рассматривали? Получилось что участок выбирали под эскиз))) z24 не рассматривали, нам принципиален санузел и гардероб в мастерспальне из z проектов очень похож на z307 1 Посилання на коментар Поділитися на інших сайтах More sharing options...
2778 Опубліковано: 17 лютого 2020 Автор Поділитись Опубліковано: 17 лютого 2020 Почему бы просто не сделать несущей другую стену по центру? Я так и сделал когда чертил в sketchup, просто не совсем понимаю нормально ли получится в том месте где несущая обрывается в кухне Посилання на коментар Поділитися на інших сайтах More sharing options...
vadimv Опубліковано: 17 лютого 2020 Поділитись Опубліковано: 17 лютого 2020 Я так и сделал когда чертил в sketchup, просто не совсем понимаю нормально ли получится в том месте где несущая обрывается в кухнеА зачем она "обрывается"? Делаете через этот 3-метровый пролет армированную балку или швеллер - и у вас сплошная несущая стена. Плюс замкнутый армпояс сверху. 2 Посилання на коментар Поділитися на інших сайтах More sharing options...
Gitan Опубліковано: 17 лютого 2020 Поділитись Опубліковано: 17 лютого 2020 Дверь в Детской 11м лучше открывать в коридор. Ванну переставьте в общий санузел. Дети наверняка захотят принять ванну, а вам и душа достаточно. Посилання на коментар Поділитися на інших сайтах More sharing options...
URA-YURA Опубліковано: 17 лютого 2020 Поділитись Опубліковано: 17 лютого 2020 посмотрите мою тему возможно поможет Посилання на коментар Поділитися на інших сайтах More sharing options...
Юдин Денис Опубліковано: 18 лютого 2020 Поділитись Опубліковано: 18 лютого 2020 Планируем стройку этой весной. По ряду не зависящих от меня причин пришлось переделывать эскиз планировки моего будущего дома. Решил выложить пока не заказан проект, интересно мнение форумчан... Помещения дневной зоны, там где семья больше всего проводит времени (гостиная, столовая) лучше располагать на солнечную сторону (юг, юго-запад), так мы экономим электричество (позже включаем свет) и тепло, помещения обогревается натуральным способом (от солнца). Также в планировке смущает длинный темный коридор, без окон. При пролетах более 3,5-4 м., деревянные балки могут со временем провиснуть от нагрузок кровли (снеговая, ветровая), а монолитные ж\б перекрытия лучше использовать при пролетах не более 6м. Также следует учесть что внутренние несущие стены должны иметь замкнутый контур Посилання на коментар Поділитися на інших сайтах More sharing options...
2778 Опубліковано: 18 лютого 2020 Автор Поділитись Опубліковано: 18 лютого 2020 Помещения дневной зоны, там где семья больше всего проводит времени (гостиная, столовая) лучше располагать на солнечную сторону (юг, юго-запад), так мы экономим электричество (позже включаем свет) и тепло, помещения обогревается натуральным способом (от солнца). Также в планировке смущает длинный темный коридор, без окон. При пролетах более 3,5-4 м., деревянные балки могут со временем провиснуть от нагрузок кровли (снеговая, ветровая), а монолитные ж\б перекрытия лучше использовать при пролетах не более 6м. Также следует учесть что внутренние несущие стены должны иметь замкнутый контур кухня гостиная в нашем варианте юго восток, летом будет прохладней по поводу балок все больше склоняюсь к фермам коридор самому не сильно нравится, но без него не выходит то что я хочу... Посилання на коментар Поділитися на інших сайтах More sharing options...
Музей Опубліковано: 18 лютого 2020 Поділитись Опубліковано: 18 лютого 2020 На первый взгляд, планировка понравилась. Но, "пожив" в этом доме появилось очень много замечаний. Крошечные окна в детских комнатах, детские неодинаковые, а комната 11м2 это очень тесно. Если больше одного ребенка, надо разделять ванную и туалетную комнаты. Камин будет обогревать котельную. Где постирочная? В котельной? Если да, то размещать ее в центре дома, не самое лучшее решение. Терраса узкая. Даже самый маленький дождь будет заливать мебель. В результате, вся гостиная будет завалена подушками, матрацами и прочей мокнущей утварью с террасы. Хорошо бы увидеть размещение дома на участке в комплексе с другими объектами ( в том числе соседскими) и отступами. Посилання на коментар Поділитися на інших сайтах More sharing options...
2778 Опубліковано: 19 лютого 2020 Автор Поділитись Опубліковано: 19 лютого 2020 (змінено) На первый взгляд, планировка понравилась. Но, "пожив" в этом доме появилось очень много замечаний. Крошечные окна в детских комнатах, детские неодинаковые, а комната 11м2 это очень тесно. Если больше одного ребенка, надо разделять ванную и туалетную комнаты. Камин будет обогревать котельную. Где постирочная? В котельной? Если да, то размещать ее в центре дома, не самое лучшее решение. Терраса узкая. Даже самый маленький дождь будет заливать мебель. В результате, вся гостиная будет завалена подушками, матрацами и прочей мокнущей утварью с террасы. Хорошо бы увидеть размещение дома на участке в комплексе с другими объектами ( в том числе соседскими) и отступами. Детские выровнял уже давно 13,4 и 13,8 (смотрите цветной эскиз) По террасе согласен с вами, планирую увеличить там свес кровли думаю метрового будет достаточно Котельная там по двум причинам - хотел детские на юг - хотел собрать все мокрые точки в одном месте (есть даже мысли кухню приставить к стене котельной) по размещению на участке (я отступил по 4 м от северного и западного забора) соседей пока нет с западной стороны планирую навес и хоз помещение в самом углу Змінено 19 лютого 2020 користувачем 2778 Посилання на коментар Поділитися на інших сайтах More sharing options...
ПГС-Проект Опубліковано: 19 лютого 2020 Поділитись Опубліковано: 19 лютого 2020 Делаете через этот 3-метровый пролет армированную балку или швелле Швеллером иногда разрывают армопояс, балка будет лучше. Посилання на коментар Поділитися на інших сайтах More sharing options...
Рекомендовані повідомлення
Створіть акаунт або увійдіть у нього для коментування
Ви маєте бути користувачем, щоб залишити коментар
Створити акаунт
Зареєструйтеся для отримання акаунта. Це просто!
Зареєструвати акаунтУвійти
Вже зареєстровані? Увійдіть тут.
Увійти зараз