Vladimir_1981 Опубліковано: 3 травня 2020 Поділитись Опубліковано: 3 травня 2020 Можно попробовать в два этажа 8х8х2=128 кв.м.: 8х8 маловато будет,имхо, возникнут вопросы с лестницей Посилання на коментар Поділитися на інших сайтах More sharing options...
manhattan Опубліковано: 3 травня 2020 Поділитись Опубліковано: 3 травня 2020 А почему не вытянуть дом с запада на восток? Посилання на коментар Поділитися на інших сайтах More sharing options...
vadimv Опубліковано: 4 травня 2020 Поділитись Опубліковано: 4 травня 2020 8х8 маловато будет,имхо, возникнут вопросы с лестницейНу, была поставлена задача пошить из одной овчины 10 шапок - вышел вот такое результат. Да, лестница будет узкой и крутой, мебель таскать будет напряжно. Да и кухня-гостиная 3х6 больше похожа на "залу" в хрущобе. Короче, я пока не представляю себе одноэтажника на 115 кв.м без длинного темного коридора. Либо придется жертвовать зонированием по крайней мере двух спален, которые будут примыкать к гостиной. Посилання на коментар Поділитися на інших сайтах More sharing options...
vadimv Опубліковано: 4 травня 2020 Поділитись Опубліковано: 4 травня 2020 А почему не вытянуть дом с запада на восток?Кстати, раз уж предполагается "Гараж на два автомобиля", почему бы туда не вынести котельную и кладовки с санузлами и гардеробными? И рассматривать все в комплексе. 1 Посилання на коментар Поділитися на інших сайтах More sharing options...
Ковал Опубліковано: 4 травня 2020 Автор Поділитись Опубліковано: 4 травня 2020 Добрый день, я тут провел работу над ошибками и поправил, что смог. Что получилось Во-первых, я переосмыслил совет сделать вход в котельную с улицы. Раньше я считал, что в этом нет смысла, но также планировал сделать в наружной стене перемычку, часть стены под которой может быть разобрана. Дело в том, что ак. емкость достаточно большая штука… на стадии строительства дома она будет установлена на фундамент и останется жить в этой котельной, но вдруг чего, её потом хрен вынесешь из дома. Если же сделать доступ в котельную с улицы, то можно сделать дверь, проемом 1,2 м. и рядом окно, раз уж без него никак. Также я подумал, а что если сделать вход в котельную (который из дома) через ванную комнату, в конце концов не так часто им нужно будет пользоваться, я так думаю… откровенно сейчас размышляю стоит ли его туда вообще лепить, кто живет в доме, подскажите, как часто вы посещаете котельную… В итоге всех этих раздумий и манипуляций котельная выросла в длину на 40 см., что очень кстати… правда пришлось пожертвовать местом под шкаф в прихожей… за счет него также увеличилась и гардеробная Во-вторых, т.к. у меня появилась возможность двигать стенку главной спальни, я получил в ней некий тамбур, откуда будет осуществляться вход в наш с женой санузел + там будет стоять трюмо (нарисовано возле входа в санузел), чтобы жене было где прихорашиваться… В-третьих, у меня уменьшилась длина коридора, хотя он так и остался темным В-четвертых, теперь у меня появилось место в гардеробной для глажки… теперь в гардеробную можно не только войти, но и погладить белье (я там нарисовал гладильную доску ) В-пятых, я перенес дверь в гостиную и увеличил гостевой санузел… теперь он получил хоть и несколько кастрированный, но всё же душ (будет шланг без поддона, со сливом в полу) Вот как-то так… Вопросы, которые не дают покоя: 1. стоит ли городить дополнительный проход в котельную? Если его не делать, то поверну мебель в ванной и передвину дверь дальше от двери главной спальни, меня это реально напрягает… они очень близко… и если оставлять, то дверь в ванную однозначно нужно делать раздвижную, что несколько гембельно 2. я могу откусить от детских спален по 0,3 м.кв., чтобы увеличить ширину коридора на 10 см. Стоит ли? 3. выход на террасу, нужен ли там микротамбур (двойная дверь)? 4. Душ возле гостевой (родительской) комнаты, нужен или ну его нах? 5. я нарисовал на террасе хотелку в виде кухонной стенки (плиту на две конфорки, раб зона и мойка.) В несезон предполагаю, что всё это просто закроется ролетой. Это живая идея или какая-то фигня? В общем, критикуйте дальше, плиз З.Ы. По вопросам, которые были заданы… извините, если что-то упущу… то, что нарисовали в соседней ветке мне не нравится… начиная с узкого коридора и отсутствия четкого зонирования (спальная и гостевая зоны) + совмещенный главный санузел и отсутствие гостевого санузла. По поводу разделения по поколениям… вот я и пытаюсь так разделить поколения (дети и родители в спальной зоне, бабушка и дедушка в гостевой… благо там есть возможность закрыть дверь понимаю, что не самое комфортное расположение, но в такой квадратуре сильно не разгонишься, это факт… Гараж - я скупердяй, какой там гараж… это навес ))) Посилання на коментар Поділитися на інших сайтах More sharing options...
Narval Опубліковано: 4 травня 2020 Поділитись Опубліковано: 4 травня 2020 1. Уберите дверь в спальне (лев. Нижний), она там не нужна, и избавитесь от тамбура, зашли в стальню - есть дверь в ванную и хватит (аля номер в отеле) 2. Подумайте поменять местами топочную и ваш санузел (лев нижний). Вход в топочную с терассы, вторая дверь на кухню. 3. Дверь из топочной в санузел - как по мне какой то ужас (но это имхо) Дверь 1.2 метра нужно делать входную, что б мебель заносить. В топочной тоже можете 1.2 м а можете и через окно емкость вытащить. И вот мы уже подобрались к 140м Посилання на коментар Поділитися на інших сайтах More sharing options...
Ковал Опубліковано: 4 травня 2020 Автор Поділитись Опубліковано: 4 травня 2020 1. Уберите дверь в спальне (лев. Нижний), она там не нужна, и избавитесь от тамбура, зашли в стальню - есть дверь в ванную и хватит (аля номер в отеле) 2. Подумайте поменять местами топочную и ваш санузел (лев нижний). Вход в топочную с терассы, вторая дверь на кухню. шо ж Вы все мои пасочки поломать пытаетесь )))... этот санузел гостевой... он для того, что бы гости в спальную зону не шастали 3. Дверь из топочной в санузел - как по мне какой то ужас (но это имхо) да вот и у меня такое-же ощущение... И вот мы уже подобрались к 140м не-не-не... боремся... не сдаемся ))) Посилання на коментар Поділитися на інших сайтах More sharing options...
Ковал Опубліковано: 4 травня 2020 Автор Поділитись Опубліковано: 4 травня 2020 да вот и у меня такое-же ощущение... хотя... может поставить туда двери скрытого монтажа... х.з. Посилання на коментар Поділитися на інших сайтах More sharing options...
lug Опубліковано: 4 травня 2020 Поділитись Опубліковано: 4 травня 2020 1. стоит ли городить дополнительный проход в котельную? Стоит. Рабочий вход - с улицы, контрольный - из дома. 3. выход на террасу, нужен ли там микротамбур (двойная дверь)? Не нужен. Считайте этот проем оконным, или балконным... Летом - открыто, зимой - закрыто. Не предполагается зимой шастать туда-сюда через этот проход, напуская холод. Значит, и тамбур не нужен. 5. я нарисовал на террасе хотелку в виде кухонной стенки (плиту на две конфорки, раб зона и мойка.) В несезон предполагаю, что всё это просто закроется ролетой. Это живая идея или какая-то фигня? То фигня. Для бюджетного дома - излишество. К тому же, у вас рядом - кухня. Растеиваться, раскладываться с сезонными плошками рядом с готовой кухней никто не будет. Мойка со сливом на зиму - то еще извращение. Вообще ни разу не видела ни у кого, чтобы это хоть как-то использовалось в обычной семье с работающими родителями. А терраса - вещь полезная. Навесик для защиты от дождя и солнца, диванчики-скамейки, столики - и достаточно. Попробовала избавиться от темного коридора. Идея в том, чтобы прилепить санузлы к спальням. Коридор как бы остался, но он стал частью гостиной, проходной зоной на её территории. Для гостиной, как общей зоны, вполне допустимо несколько входов-выходов. Кухню покрутите сами. Может немного по другому расположить гостиную и кухню. 2 Посилання на коментар Поділитися на інших сайтах More sharing options...
Ковал Опубліковано: 4 травня 2020 Автор Поділитись Опубліковано: 4 травня 2020 Ха! Интересная задумка... завтра поразбираюсь на свежую голову... дякую Посилання на коментар Поділитися на інших сайтах More sharing options...
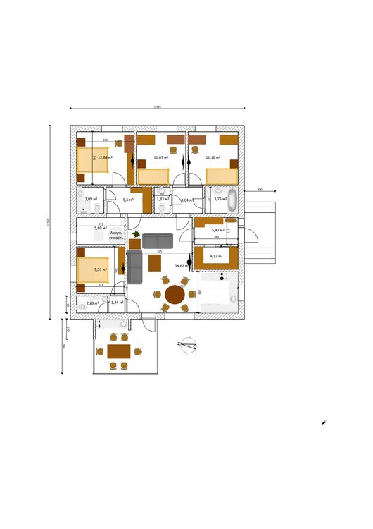
Ковал Опубліковано: 5 травня 2020 Автор Поділитись Опубліковано: 5 травня 2020 Приветствую тебя, уважаемый коллективный разум Выкладываю результаты переделки с учетом концепции, заданной lug (спасибо ей большое). Что получилось - теперь дом стал... пам-пара-рам... меньше на 4 м.кв. ... но, что сумно ... остался в тех же осях... т.е. 4 метра скушали стены... если быть точным, то дом на первом эскизе весил 116,16 м.кв., после переделки стал 112,3 м.кв. Таким образом можно сделать вывод, что в доме прибавилось 4 м.кв. стен, а это, откровенно говоря, не радует Также добавилась одна дверь (было 15, стало 16) и самое неприятное, точки, требующие снабжения гор. и хол водой разъехались в разные стороны и теперь находятся в значительном отдалении от котельной... особенно хреново в этом плане получилось с кухней... ну и ещё одна грусть - детские комнаты похудели на 1 м.кв. каждая Из хорошего. Теперь нет длинного узкого темного коридора, а зонирование осталось. Увеличилась площадь и главное длина котельной... не на много, но всё равно приятно. Зона главной спальни теперь превратилась в отдельный блок и мне это нравится... единственное, что немного напрягает, так это дверь в котельную из этого блока, но т.к. кроме меня врядли кто-то туда будет ходить, то и фиг с ней. Увеличилась гостиная на более чем 3 м.кв., также совсем мало, но всё же увеличилась гостевая (родительская) комната. Ну, и на закуску - гардеробная комната также увеличилась на 1 м.кв. В общем, прошу вас... смотрите... критикуйте... советуйте... Посилання на коментар Поділитися на інших сайтах More sharing options...
vadimv Опубліковано: 5 травня 2020 Поділитись Опубліковано: 5 травня 2020 В общем, прошу вас... смотрите... критикуйте... советуйте...Слегка смущает: - диван на проходе - вход в спальню и котельную через гардероб - открывание двери в сторону кровати - северное окно в изголовье кровати в гостевой Посилання на коментар Поділитися на інших сайтах More sharing options...
lug Опубліковано: 5 травня 2020 Поділитись Опубліковано: 5 травня 2020 т.е. 4 метра скушали стены.. Я обратила внимание, что какие-то слишком толстые перегородки у вас на эскизе. Из чего планируете стены? Имеет смысл все эти ненесущие разгородки-перегородки сделать из гипсокартона - просто, дешево и сердито. И не занимают столько места. В моих перепланировках тесных хрущевок часто делаю стены вообще 55мм для экономии пространства. Ну, может, кроме стен непосредственно между спальнями. Их можно сделать в полкирпича, или в полшлакоблока, и т.п., опять же - для антишума Слегка смущает: - диван на проходе Мне кажется, на картинке непропорционально огромная обеденная зона. В реальности стол со стульями с двух сторон вряд ли занимает 2,6м. В любом случае, её можно сделать компактнее. А значит, отодвинуть диваны с прохода - открывание двери в сторону кровати Это неправильно, конечно, оббегать дверь вокруг... Уж лучше открывать на шкафы, или вообще - в гардеробную. А в этом конкретном санузле - дверь внутрь - вполне возможно. - вход с спальню и котельную через гардероб Хорошая шумоизоляция не повредит Добавлено через 7 минут ну и ещё одна грусть - детские комнаты похудели на 1 м.кв. каждая Как-то вы слишком размахнулись с санузлами - 4 су изрядных размеров - как-то занадто для бюджетного дома. И на коммуникации смотрю с самого начала - совсем грусть... Эти санузлы и заморочки с водой\канашей добавят такую изрядную сумму к стоимости, что, может оказаться дешевле сделать дом покрупнее? 1 Посилання на коментар Поділитися на інших сайтах More sharing options...
Narval Опубліковано: 6 травня 2020 Поділитись Опубліковано: 6 травня 2020 Выбросьте круглый стол 2 Посилання на коментар Поділитися на інших сайтах More sharing options...
Spiraea Опубліковано: 6 травня 2020 Поділитись Опубліковано: 6 травня 2020 Пару слов из практического опыта проживания не в одном доме. 1. В ванных комнатах нет окон. Это не только свет, но и незаморочная вентиляция имхо. 2. Ванная в вашей спальне в этом доме - излишество 3.В гостевом санузле нужно место под душем в таком объёме, чтобы там можно было поставить пластиковый стульчик, и никаких поддонов. Когда с вами будут жить пожилые родители, поймёте , как это удобно. 3 Посилання на коментар Поділитися на інших сайтах More sharing options...
Ковал Опубліковано: 6 травня 2020 Автор Поділитись Опубліковано: 6 травня 2020 Я обратила внимание, что какие-то слишком толстые перегородки у вас на эскизе. Из чего планируете стены? Имеет смысл все эти ненесущие разгородки-перегородки сделать из гипсокартона - просто, дешево и сердито. И не занимают столько места. В моих перепланировках тесных хрущевок часто делаю стены вообще 55мм для экономии пространства. Ну, может, кроме стен непосредственно между спальнями. Их можно сделать в полкирпича, или в полшлакоблока, и т.п., опять же - для антишума межкомнатные перегородки кирпич 125 + отделка, одна несущая, тоже кирпич 250 + отделка. Наружные стены - газоблок 400 + отделка (не указана) Мне кажется, на картинке непропорционально огромная обеденная зона. В реальности стол со стульями с двух сторон вряд ли занимает 2,6м. В любом случае, её можно сделать компактнее. А значит, отодвинуть диваны с прохода немного поправил планировку... что касается стола, стульев и расстояний (всё в реальных размерах)... конечно такая расстановка будет во время присутствия в гостиной за столом шести человек... за столом люди не только сидят, им нужно ещё место для того, что бы встать, а значит стулья должны иметь место для отодвигания. Как-то вы слишком размахнулись с санузлами - 4 су изрядных размеров - как-то занадто для бюджетного дома. И на коммуникации смотрю с самого начала - совсем грусть... Эти санузлы и заморочки с водой\канашей добавят такую изрядную сумму к стоимости, что, может оказаться дешевле сделать дом покрупнее? ну, вопрос в том, кто на чем согласен экономить... и санузлы и их кол-во сделаны из моего понимания удобного использования дома... если увеличить площадь дома, разве их станет меньше? Выбросьте круглый стол выбросил 1. В ванных комнатах нет окон. Это не только свет, но и незаморочная вентиляция имхо. да, сделал... думал об этом... но скажите, плиз, под ними батарея должна быть или можно обойтись без неё? Именно это меня и останавливало 2. Ванная в вашей спальне в этом доме - излишество да, я же писал... это моя блаж 3.В гостевом санузле нужно место под душем в таком объёме, чтобы там можно было поставить пластиковый стульчик, и никаких поддонов. Когда с вами будут жить пожилые родители, поймёте , как это удобно. я выше писал, что там нет поддона... просто у меня конструктор не позволяет нарисовать его без поддона... а стульчик, наверное, правильная штука... дякую Посилання на коментар Поділитися на інших сайтах More sharing options...
Ковал Опубліковано: 6 травня 2020 Автор Поділитись Опубліковано: 6 травня 2020 Слегка смущает: - диван на проходе поправил, как смог Слегка смущает: - вход в спальню и котельную через гардероб есть только вариант входа через улицу, другого ничего не придумал Слегка смущает: - открывание двери в сторону кровати исправил Слегка смущает: - северное окно в изголовье кровати в гостевой наверное да, но поменяю обратно... я просто хотел оставить чуть больше места для прохода между кроватью и шкафом 1 Посилання на коментар Поділитися на інших сайтах More sharing options...
AndyAntonov Опубліковано: 6 травня 2020 Поділитись Опубліковано: 6 травня 2020 Слегка смущает: По современным строительным нормам комната менее 10кв.м. жилой не считается. Гостевая меньше. Все остальные балансируют на грани. Двуспальная кровать по центру девятиметровой комнаты — это ахтунг. Там нереально тесно будет. Перемещаться только боком. Эти санузлы и заморочки с водой\канашей добавят такую изрядную сумму к стоимости, что, может оказаться дешевле сделать дом покрупнее? Таки-да. Тащить воду и каналью в пять совершенно разных мест в доме. Посилання на коментар Поділитися на інших сайтах More sharing options...
vadimv Опубліковано: 6 травня 2020 Поділитись Опубліковано: 6 травня 2020 (змінено) скажите, плиз, под ними батарея должна быть или можно обойтись без неё?У меня в ванной "форточка" 50х50, под нею полотенцесушитель. Полет норм. Двуспальная кровать по центру девятиметровой комнаты — это ахтунг. Там нереально тесно будет. Перемещаться только боком.В гостинице "Ворохта" у нас была двуспальная кровать в номере 2,5х3 - отето был ахтунг. Реально только боком. 9 м уже лучше, если кровать минимальных размеров, под матрац 1,6х2. Змінено 6 травня 2020 користувачем vadimv Посилання на коментар Поділитися на інших сайтах More sharing options...
Ковал Опубліковано: 6 травня 2020 Автор Поділитись Опубліковано: 6 травня 2020 Разобрался с кроватью, как обещал )) По поводу полотенцесушителей под окнами в санузле... тут такое дело, что у меня туда их прилепить не получится... потому как обеспечить там циркуляцию воздуха я х.з. Посилання на коментар Поділитися на інших сайтах More sharing options...
Spiraea Опубліковано: 6 травня 2020 Поділитись Опубліковано: 6 травня 2020 но скажите, плиз, под ними батарея должна быть или можно обойтись без неё? Именно это меня и останавливало У нас нет батарей под окном . Тёплый пол + полотенцесушитель в любом доступном месте . В небольшом санузле в мансарде без окна , но с душем - только полотенцесушитель, он же ещё как некоторый декор )) от потолка до пола... я выше писал, что там нет поддона... просто у меня конструктор не позволяет нарисовать его без поддона... а стульчик, наверное, правильная штука... дякую Старики начинают жить с нами ожидаемо , но всегда внезапно. Четыре года назад пришлось срочно забирать к себе маму - перелом шейки бедра. Она чуть может передвигаться и в таком душе ( со сливом в полу, на стульчике) мы её моем каждые четыре-пять дней. Как это сделать в ванной или душевой кабине - не представляю.... Так что, если есть в перспективе такой вариант, лучше кое что продумать заранее. Я ещё где то читала ( в буржуйских журналах) : ванную нужно планировать так, чтобы туда могла заехать инвалидная коляска и не делать защёлок на двери внутри. То есть поменьше порогов. 2 Посилання на коментар Поділитися на інших сайтах More sharing options...
Ковал Опубліковано: 6 травня 2020 Автор Поділитись Опубліковано: 6 травня 2020 Мда... вот вроде все более-менее сложилось, но разброс санузлов по дому это просто капец... Посилання на коментар Поділитися на інших сайтах More sharing options...
lug Опубліковано: 6 травня 2020 Поділитись Опубліковано: 6 травня 2020 Нууу, по планировке тяжелых траблов не вижу, если вас всё устраивает. Санузел с окном - оно, конечно, повеселее, чем без окна. Но... Некритично, с этим можно смириться. Как-то живут миллионы людей в квартирах без окон в санузлах. межкомнатные перегородки кирпич 125 + отделка, одна несущая, тоже кирпич 250 + отделка Такая масса перегородок из кирпича отнимает много площади, и требует очень много труда и материалов на штукатурку. Сделайте в полкирпича 2 перегородки по 3,4м между спальнями, и ту стену, которая отделяет гостевую зону от гостиной. Центральную стену - в кирпич. Остальные закутки - тотально гипсокартон. - Это сэкономит вам изрядно места, - вы сразу получаете идеальную стену под плитку, или под тонкую шпаклевку. - это - намного дешевле и быстрее, чем работа каменщиков, и квадратные километры штукатурки мелких сложных помещений. Осталось придумать, как бороться с водой, канализацией и вентиляцией Ванну я бы развернула так, чтобы от входа перед глазами был умывальник со всеми красотами, а не бок ванной 1 Посилання на коментар Поділитися на інших сайтах More sharing options...
Ковал Опубліковано: 6 травня 2020 Автор Поділитись Опубліковано: 6 травня 2020 Осталось придумать, как бороться с водой, канализацией и вентиляцией та я уже голову сломал Посилання на коментар Поділитися на інших сайтах More sharing options...
lug Опубліковано: 6 травня 2020 Поділитись Опубліковано: 6 травня 2020 та я уже голову сломал Поперек дома - 2 трассы вода\канаша конкретно под землей, ниже всего пола. Разводка по помещениям - в полу. Где-то я такое видела в американских стройках С вентиляцией - проще, если дом одноэтажный. Но тоже - масса труб будет по чердаку. 1 Посилання на коментар Поділитися на інших сайтах More sharing options...
Рекомендовані повідомлення
Створіть акаунт або увійдіть у нього для коментування
Ви маєте бути користувачем, щоб залишити коментар
Створити акаунт
Зареєструйтеся для отримання акаунта. Це просто!
Зареєструвати акаунтУвійти
Вже зареєстровані? Увійдіть тут.
Увійти зараз