ts3 Опубліковано: 12 липня 2020 Поділитись Опубліковано: 12 липня 2020 В виду своей работы я всегда предполагал, что буду жить за городом, в своем доме. Но так получилось, что в 2016м году родственник попросил "пожить в его доме и покормить рыбок в озере" на время его заграничного отпуска И как же громко разбились мои иллюзии, когда за 2 недели ровно один вечер удалось вернуться раньше, полюбоваться газонами, клумбами с цветами, пением птиц и одно утро проснуться раньше и успеть выпеть чашечку ароматного кофе на террасе. И я понял, что за городом жить я все же очень хочу, но "на огородик и вот это вот все" времени пока не хватает Тогда-то и была куплена квартира на самом верхнем этаже теперь уже нашего комплекса с окнами в пол и видом на верхушки сосен. О том, как начинался и продвигается сейчас ремонт я и буду писать в этой теме. Пока что выкладываю план квартиры и ее фотографии в первозданном состоянии от застройщика. Погнали!) 1 Посилання на коментар Поділитися на інших сайтах More sharing options...
irina1969 Опубліковано: 12 липня 2020 Поділитись Опубліковано: 12 липня 2020 Удачи а где это территориально ? 1 Посилання на коментар Поділитися на інших сайтах More sharing options...
ts3 Опубліковано: 12 липня 2020 Автор Поділитись Опубліковано: 12 липня 2020 Удачи а где это территориально ? Гостомель Поскольку инвестировал я в строящийся дом, то список критериев будущего жилья был сформулирован следующим образом: Разрешительная документация на строительство Тех условия на подключение к основным коммуникациям (газ, электричество, водоснабжение, канализация) Материал и утепление стен Личный каприз отопленца - свой личный газовый котел, диаметры стояка водоснабжения, ввода в квартиру, материал труб (не люблю ППР, который в жилье такого типа применяют повсеместно) На момент покупки наш жилой комплекс продавался, как "бизнес-класс", но позже был понижен в ранге до уровня "комфорт". В связи с этим отменилось полное ограждение территории, но много "плюшек" осталось: - парк 9 Га - газоны с автоматическим поливом - трасса в две полосы до Киева - почти во всех домах 1е этажи - коммерческие. Уже сейчас работают салоны красоты, стоматология, кафе - поликлиника, бассейн, торговый центр уже несколько лет на уровне 1го этажа, но мы верим)) - стена из керамоблока и утепление 150 минватой, стеклопакеты с аргоном. Мой верхний этаж утеплен по перекрытию минватой 300 + чердачное пространство. Свои скважины, станция по обезжелезиванию воды, стояк водопровода из нержавеющей стали, в квартиру заходит труба из сшитого полиэтилена(!), газовый котел. Мусор отвозят на сортировочную станцию... - видеонаблюдение, охрана - ну и внутренний двор: без возможности заезда авто, планируется закрытым для посторонних посетителей, расстояние до противоположного дома 60м, сосны)) - у меня на этаже 6 квартир - ну и супер бонус - самый адекватный застройщик из всех, про которых я когда-либо слышал. Вот когда с головой все делается.. Это тоже очень важно. В общем, много звезд сошлось и было принято решение ввязываться. Дальше буду писать уже про саму стройку)) 2 Посилання на коментар Поділитися на інших сайтах More sharing options...
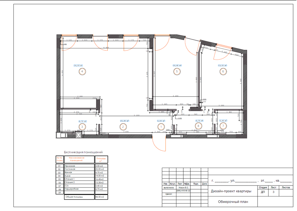
ts3 Опубліковано: 14 липня 2020 Автор Поділитись Опубліковано: 14 липня 2020 Кажется, еще в универе нас учили, что стоимость внесения каких либо изменений многократно возрастает по мере реализации проекта. Это означает, что стены, нарисованные на бумаге, двигать гораздо быстрее и дешевле, чем уже построенные кирпичные. Поэтому следующим шагом стала разработка дизайн проекта. Ха-ха, кто бы знал, что это так не просто)) Желание согласовать внутреннюю стилистику с внешним миром (домами комплекса в природных расцветках, сосновыми деревьями) продиктовало природные цвета и фактуры - дерево, цемент, металл + акцентный черный.. Огромное небо и широчайший, на тот момент, горизонт призывал сохранить максимум открытого, свободного пространства и внутри.. Минимум открытых полок Но больше, как технарь с прямым, как двери, мышлением, я ничего не мог сформулировать дизайнеру. И начались мучения, о которых вспоминать не хочется. Но благодаря им я выяснил, что в идеальном мире дизайн проект должны разрабатывать сразу несколько специалистов: собственно, дизайнер. Он художник, он так видит архитектор! человек, который знает, что такое эргономика, организация пространства, технологию выполнения строительных работ и даже нормативы что куда можно двигать, а за что может быть "ай-яй-яй" К сожалению, у нас очень большое количество дизайнеров, которые вынужденно берут на себя и архитектурную часть. Имхо, это отдельная профессия, которой специалисты учатся годами, а то и десятилетиями... В общем, когда дизайнер практически дошла до состояния депрессии и проф выгорания, нас спас мой друг архитектор. Я в одном письме разложил по полочкам все разработанные варианты, для каждого описал, что нравится, что не нравится, а в ответ получил идеальную, на мой взгляд, планировку. Ван шот - ван хэд Делюсь с вами: Посилання на коментар Поділитися на інших сайтах More sharing options...
vadimv Опубліковано: 14 липня 2020 Поділитись Опубліковано: 14 липня 2020 получил идеальную, на мой взгляд, планировкуКуча шкафов в кабинете и полное отсутствие в спальне? Очень оригинально. Лично я бы поделил шкаф на две половины, поровну. 1 Посилання на коментар Поділитися на інших сайтах More sharing options...
ts3 Опубліковано: 14 липня 2020 Автор Поділитись Опубліковано: 14 липня 2020 Куча шкафов в кабинете и полное отсутствие в спальне? Очень оригинально. Лично я бы поделил шкаф на две половины, поровну. Это хорошая идея) Но лично я не нахожу удобным платяные шкафы в спальне: -я встаю раньше, тихо закрываю за собой дверь и утренний туалет/зарядка/кофе/завтрак/одеваюсь - в отдельном пространстве, не мешая досматривать утренние сны своей женщине. Тоже самое и vice versa п.с. Средняя комната - детская. Планировка вообще не продумывалась, потому что еще нет детей) 1 Посилання на коментар Поділитися на інших сайтах More sharing options...
ts3 Опубліковано: 30 липня 2020 Автор Поділитись Опубліковано: 30 липня 2020 Очень странно, но у нас нельзя использовать лифт для подъема строительных материалов. Поэтому хотя бы стяжку очень нужно было сделать силами застройщика, чтобы не платить за ручной подъем 2-3 тонн на 9й этаж. Оперативно был сделан расчет тепловых потерь, проект отопления, водопровода, канализации. Все просто: везде теплый пол навесные унитазы стандартные наружные смесители с межосевым расстоянием 150 для ванны и душевой полотенцесушитель - электрический очень жаль, но общий дымоход не позволял установить конденсационный котел на входе холодной воды в квартиру - разрыв для установки по мере необходимости всякого разного (система фильтрации, редуктор давления, клапан антипотопа) по линии горячей воды после газового 2х контурного котла также предусмотрена возможность установки бойлера горячей воды - для сглаживания недостатков проточного способа нагрева ГВ Я сотни раз оплачивал счета за комплектующие для систем отопления, водопровода, канализации наших клиентов, но покупать их для своего будущего дома и привозить на свой объект, честно говоря, особое ощущение Оборудование и ЭППС были доставлены, и завертелось все: прорезался воздух плоскостями лазерного уровня, затарахтели перфораторы, закипела работа))) Выкладываю несколько фотографий: 4 Посилання на коментар Поділитися на інших сайтах More sharing options...
Vitalik Xm Опубліковано: 30 липня 2020 Поділитись Опубліковано: 30 липня 2020 Відразу поцікавтесь, чи можливо оформити тариф на електроопалення, Посилання на коментар Поділитися на інших сайтах More sharing options...
san6ka Опубліковано: 30 липня 2020 Поділитись Опубліковано: 30 липня 2020 В общем, когда дизайнер практически дошла до состояния депрессии и проф выгорания, нас спас мой друг архитектор. Я в одном письме разложил по полочкам все разработанные варианты, для каждого описал, что нравится, что не нравится, а в ответ получил идеальную, на мой взгляд, планировку. Эм...а что именно дизайнер не смогла осилить в данном варианте? Имхо, вроде ожидаемое расположение мебели исходя из планировки квартиры. Может стоит дизайнера поменять? P.S. Имхо, зря отказались от дома Я вот лежу во дворе в гамаке и балдея пишу Вам сообщение И да комары надоедают, но вернутся обратно к соседям и без своего хотя бы крохотного участка уже не согласилась бы Какая принципиальная разница возвращаться в квартиру или дом за городом? 1 Посилання на коментар Поділитися на інших сайтах More sharing options...
мастерок Опубліковано: 30 липня 2020 Поділитись Опубліковано: 30 липня 2020 Очень странно, но у нас нельзя использовать лифт для подъема строительных материалов. Поэтому хотя бы стяжку очень нужно было сделать силами застройщика, чтобы не платить за ручной подъем 2-3 тонн на 9й этаж. Оперативно был сделан расчет тепловых потерь, проект отопления, водопровода, канализации. Все просто: везде теплый пол навесные унитазы стандартные наружные смесители с межосевым расстоянием 150 для ванны и душевой полотенцесушитель - электрический очень жаль, но общий дымоход не позволял установить конденсационный котел на входе холодной воды в квартиру - разрыв для установки по мере необходимости всякого разного (система фильтрации, редуктор давления, клапан антипотопа) по линии горячей воды после газового 2х контурного котла также предусмотрена возможность установки бойлера горячей воды - для сглаживания недостатков проточного способа нагрева ГВ Я сотни раз оплачивал счета за комплектующие для систем отопления, водопровода, канализации наших клиентов, но покупать их для своего будущего дома и привозить на свой объект, честно говоря, особое ощущение Оборудование и ЭППС были доставлены, и завертелось все: прорезался воздух плоскостями лазерного уровня, затарахтели перфораторы, закипела работа))) Выкладываю несколько фотографий: Классные фотки! Судя по ним у Вас будем слой стяжки минимум 120 мм,не многовато?Также сильно интересно какое планируется финишное покрытие,бо если что то другое кроме ламината,то я на фото вижу потенциально проблемные узлы. Ну и просто деньги на ветер плёночка с квадратиками,ни один из форумских сантехников таким не страдает,интересно было бы посмотреть фото утеплителя до укладки пленки. Посилання на коментар Поділитися на інших сайтах More sharing options...
ts3 Опубліковано: 31 липня 2020 Автор Поділитись Опубліковано: 31 липня 2020 (змінено) Відразу поцікавтесь, чи можливо оформити тариф на електроопалення, Очень сильно сомневаюсь, ведь из электрических нагревательных приборов - только полотенцесушитель Добавлено через 10 минут Эм...а что именно дизайнер не смогла осилить в данном варианте? Имхо, вроде ожидаемое расположение мебели исходя из планировки квартиры. Может стоит дизайнера поменять? P.S. Имхо, зря отказались от дома Я вот лежу во дворе в гамаке и балдея пишу Вам сообщение И да комары надоедают, но вернутся обратно к соседям и без своего хотя бы крохотного участка уже не согласилась бы Какая принципиальная разница возвращаться в квартиру или дом за городом? Наверное, это и есть критерий хорошо сделанной работы - когда кажется, что так было всегда, а по другому и быть не может)) Например, в санузел рядом с спальней пытались впихнуть унитаз, умывальник, ванну. Было 3 варианта, но все какие-то.. Франкенштейны. А когда между ванной и спальней сместили перестенок на 15см - сразу все стало, как влитое П.С. Радуюсь, что Вам классно в Вашем доме! Возможно, это следующая ступень эволюции))) Добавлено через 36 минут Классные фотки! Судя по ним у Вас будем слой стяжки минимум 120 мм,не многовато?Также сильно интересно какое планируется финишное покрытие,бо если что то другое кроме ламината,то я на фото вижу потенциально проблемные узлы. Ну и просто деньги на ветер плёночка с квадратиками,ни один из форумских сантехников таким не страдает,интересно было бы посмотреть фото утеплителя до укладки пленки. Василий, спасибо за высокую оценку фотонавыков))) Стяжка 65, а канализационную трубу 110 перекроет поднятый пол душ.кабины. Это не так красиво, но в углу - вентканал.. Утеплитель ЭППС 30мм Финишное покрытие - везде плитка, кроме спален. По проблемным местам - была договоренность, как и с Вами на Ваших объектах, что все проблемы исправляет исполнитель. Но Ваше мнение - было бы интересно прочитать! П.С. Ну и про пленочку посмеялся от души)) Я и есть тот самый форумный сантехник, который использует.. и мы пленку применяем с вполне практичной целью "форумный сантехник не использует" - это ведь не твердый аргумент, ну.. Змінено 31 липня 2020 користувачем ts3 1 Посилання на коментар Поділитися на інших сайтах More sharing options...
normal Опубліковано: 31 липня 2020 Поділитись Опубліковано: 31 липня 2020 очень жаль, но общий дымоход не позволял установить конденсационный котел Почему именно? Дымоход это на фото в санузле (выход под потолком труба в трубе)? по линии горячей воды после газового 2х контурного котла также предусмотрена возможность установки бойлера горячей воды - для сглаживания недостатков проточного способа нагрева ГВ А какие недостатки от двухконтурника? Я выводы под бойлер тоже оставил, но чисто для резерва (если газ вдруг отключат) Посилання на коментар Поділитися на інших сайтах More sharing options...
san6ka Опубліковано: 31 липня 2020 Поділитись Опубліковано: 31 липня 2020 Наверное, это и есть критерий хорошо сделанной работы - когда кажется, что так было всегда, а по другому и быть не может)) Например, в санузел рядом с спальней пытались впихнуть унитаз, умывальник, ванну. Было 3 варианта, но все какие-то.. Франкенштейны. А когда между ванной и спальней сместили перестенок на 15см - сразу все стало, как влитое П.С. Радуюсь, что Вам классно в Вашем доме! Возможно, это следующая ступень эволюции))) Мне всегда интересно по плану дома представить как бы я расставила мебель, а потом сравнить насколько это совпадает с вариантом который придумал автор Иногда я нахожу крайне интересные расхождения с моим представлением, более удобное или правильное использование пространства и могу позаимствовать идею В Вашем случае, растановка почти совпала с тем как я это видела, вот и удивилась почему дизайнер так страдала (конечно, я не изучала детально размеры) Ну и подвинуть простенок это читерство со стороны архитектора, надо было дизайнеру тоже дать такую возможность, а не доводить девушку до суицида Насчет дома, каждому свое, у меня есть друзья, которые ни за что не переедут в дом за город, только квартира и по возможности ближе к центру, их позиция мне в общем-то понятна (хоть и у меня приоритеты другие) - время на дорогу, инфраструктура, время реагирования всяких спецслужб и т.п. Но если уже выбрались за город, то в чем кайф квартиры, а не хотя бы таунхауса? Но справедливости ради, в квартирах мне нравятся варианты со своей террасой, имхо, как компромиссный вариант это самое то, вроде такого Жаль, у нас это обычно какие-то супер-люкс-мега-дорогие варианты, а вот во всяких там Европах встречается не редко. 1 Посилання на коментар Поділитися на інших сайтах More sharing options...
ts3 Опубліковано: 1 серпня 2020 Автор Поділитись Опубліковано: 1 серпня 2020 Почему именно? Дымоход это на фото в санузле (выход под потолком труба в трубе)? А какие недостатки от двухконтурника? Я выводы под бойлер тоже оставил, но чисто для резерва (если газ вдруг отключат) Да, дымоход будет проходить от котла на кухне под потолком санузла именно в этот выход. Нельзя потому что материал внутренней трубы дымохода у конденс.котлов - полипропилен, а общ.дымоход сделали из стали. Я понимаю, что если сильно хочется, то можно, и сам мог бы обосновать почему, но это, ИМХО, неэтично) Недостатки проточного способа нагрева не критичны, с ними тоже люди живут, но: - ограниченная производительность по горячей воде - когда изменяется расход горячей воды - котлу необходимо перенастроить мощность горелки. Переходной процесс в любом случае растянут во времени, на протяжении которого происходят колебания температуры горячей воды. Больше всего это ощущается в дУше. - для меня лично недостатком еще является и нижний порог производительности: часто нужен не сильный напор из крана, а в котле расходомер не всегда улавливает расход, близкий к нижнему порогу. Еще и горелка включается на минимальную мощность, быстро перегревает ограниченный объем воды, который находится в теплообменнике, и выключается.. Вода в кране при этом - то горячая, то холодная.. Считаю, что Вы правильно сделали, что перестраховались бойлером. Кстати, я поставил последовательно, а Вы? Добавлено через 17 минут Ну и подвинуть простенок это читерство со стороны архитектора, надо было дизайнеру тоже дать такую возможность, а не доводить девушку до суицида Но справедливости ради, в квартирах мне нравятся варианты со своей террасой, имхо, как компромиссный вариант это самое то, вроде такого Жаль, у нас это обычно какие-то супер-люкс-мега-дорогие варианты, а вот во всяких там Европах встречается не редко. Классная разминка для мозгов))) Честное слово, мне искренне жаль было смотреть на ее мучения) В ее оправдание могу сказать, что мы с нуля искали варианты, а архитектор получил сразу три варианта с плюсами и минусами каждого из них, отсек все лишнее и получилось, что получилось. Еще и нашел нужные слова, чтобы отговорить меня от острова: "угловая кухня лучше раскрывает пространство". В квартире с террасой я жил в Липинке - было шикарно! В нашем комплексе тоже есть с террасой, но и в домах и в квартирах - я фанат одноэтажных планировок. Ничего не приглянулось) Посилання на коментар Поділитися на інших сайтах More sharing options...
san6ka Опубліковано: 1 серпня 2020 Поділитись Опубліковано: 1 серпня 2020 Честное слово, мне искренне жаль было смотреть на ее мучения) В ее оправдание могу сказать, что мы с нуля искали варианты, а архитектор получил сразу три варианта с плюсами и минусами каждого из них, отсек все лишнее и получилось, что получилось. Еще и нашел нужные слова, чтобы отговорить меня от острова: "угловая кухня лучше раскрывает пространство". Посмотрела внимательно на Вашу кухню, чет я не представляю куда там можно поставить остров. Если вместо полноценного обеденного стола, то я рада что архитектор смог Вас отговорить, обедать и ужинать за барными стульями то еще удовольствие Можно, наверное, укоротить длинную сторону кухни, добавить остров и обеденный стол поставить у окна, имхо, смотрелось бы тоже неплохо, но тут надо грамотно распланировать пространство на кухне. Кстати, сейчас у Вас посудомойка стоит за мойкой, с точки зрения коммуникаций оч удобно, но с точки зрения пользования не совсем. Стандартный сценарий использования это смыть остатки еды и поставить тарелку в ПММ, Вам для этого нужно будет отойти от мойки и открыть ПММ, это будет оч неудобно. В идеале, ПММ размещается следующим шкафом за мойком справа или слева, как кому удобнее. Можно хотя бы сдвинуть ПММ ближе к плите чтобы у мойки можно было стоять при открытой ПММ (все-равно придётся поворачиваться каждый раз чтобы поставить тарелку) или поставить ее под котлом, может там есть место? Это важно на этом этапе, потому что под такую конфигурацию Вы заложите коммуникации и потом что-то поменять будет непросто (знаю, вот недавно совсем проходила ) 1 Посилання на коментар Поділитися на інших сайтах More sharing options...
normal Опубліковано: 1 серпня 2020 Поділитись Опубліковано: 1 серпня 2020 (змінено) - ограниченная производительность по горячей воде Это как? Я наоборот думал бойлер вылил 100л и приплыли, а от котла хоть сутками стой под тропическим душем... когда изменяется расход горячей воды - котлу необходимо перенастроить мощность горелки. Переходной процесс в любом случае растянут во времени, на протяжении которого происходят колебания температуры горячей воды. Больше всего это ощущается в дУше. А зачем менять в душе расход? Я сразу как настроил смеситель потом не трогаю... Вода в кране при этом - то горячая, то холодная.. Хм, у меня в квартире допотопный парапетник проскуров, не замечал такой проблемы, то ли там теплообменник теплоемкий и нет колебаний, не думал, что современный настенник может быть хуже... Добавлено через 7 минут Считаю, что Вы правильно сделали, что перестраховались бойлером. Кстати, я поставил последовательно, а Вы? Хз параллельно чему, моя схема на картинке, оставил выводы над стиралкой, сразу за душевой перегородкой, ну и последовательно? (как раз сейчас) оставляю резервные выводы для электрокотла, тариф уже подключили вроде, но в целом прикинул, то выходит: на ближайшие 2-5 лет вообще не выгодно мне покупать ни электрокотел, ни бойлер - во первых они не окупятся, во вторых электрикой надо топить только ночью (будет перепад температур), а бойлер ограничен объемом воды - ещё и комфорт теряется Змінено 1 серпня 2020 користувачем normal Посилання на коментар Поділитися на інших сайтах More sharing options...
ts3 Опубліковано: 1 серпня 2020 Автор Поділитись Опубліковано: 1 серпня 2020 Можно, наверное, укоротить длинную сторону кухни, добавить остров и обеденный стол поставить у окна, имхо, смотрелось бы тоже неплохо, но тут надо грамотно распланировать пространство на кухне. Если честно, я прям удивлен - Вы будто на расстоянии мысли читаете)) Именно так и предлагалось в схеме от застройщика)) П.С. спасибо за советы по ПМ, планы переигрались и сейчас она планируется как раз под котлом))) П.П.С. проблем с ее перемещением не должно быть - она же гибкими шлангами по цоколю подключается Добавлено через 6 минут Хз параллельно чему, моя схема на картинке, Про производительность: Вам будет интереснее просто открыть инструкцию именно на Ваш котел и найти параметр "максимальная производительность горячей воды". Сравните цифру с расходом через душ/смес умывальника/смес мойки и все поймете. У Вас параллельно, а у меня - последовательно, поскольку мы преследовали разные цели)) 1 Посилання на коментар Поділитися на інших сайтах More sharing options...
san6ka Опубліковано: 1 серпня 2020 Поділитись Опубліковано: 1 серпня 2020 Если честно, я прям удивлен - Вы будто на расстоянии мысли читаете)) Именно так и предлагалось в схеме от застройщика)) П.С. спасибо за советы по ПМ, планы переигрались и сейчас она планируется как раз под котлом))) П.П.С. проблем с ее перемещением не должно быть - она же гибкими шлангами по цоколю подключается Чудно, рада что Вы перенесли посудомойку, это был самый 'стремный' момент в планировке кухни, остальное, имхо, как раз расположено эргономично Проблем с перемещением на данном этапе вообще никаких - ПММ была и будет рядом со шкафом с водой и канализацией, а вот розетку чуть что тоже планируйте в соседнем шкафу, мебельщики слегка упороты и их позиция что за ПММ не должно быть никаких коммуникаций (даже розетки для той же ПММ). Ну а по планировке, я когда проектировала свою кухню, изучила 100501 вариант расположения гарнитура, поэтому собрался какой-то минимальный набор знаний Посилання на коментар Поділитися на інших сайтах More sharing options...
Energon Опубліковано: 2 серпня 2020 Поділитись Опубліковано: 2 серпня 2020 Очень странно, но у нас нельзя использовать лифт для подъема строительных материалов. Поэтому хотя бы стяжку очень нужно было сделать силами застройщика, чтобы не платить за ручной подъем 2-3 тонн на 9й этаж. Оперативно был сделан расчет тепловых потерь, проект отопления, водопровода, канализации. Все просто: везде теплый пол навесные унитазы стандартные наружные смесители с межосевым расстоянием 150 для ванны и душевой полотенцесушитель - электрический очень жаль, но общий дымоход не позволял установить конденсационный котел на входе холодной воды в квартиру - разрыв для установки по мере необходимости всякого разного (система фильтрации, редуктор давления, клапан антипотопа) по линии горячей воды после газового 2х контурного котла также предусмотрена возможность установки бойлера горячей воды - для сглаживания недостатков проточного способа нагрева ГВ Я сотни раз оплачивал счета за комплектующие для систем отопления, водопровода, канализации наших клиентов, но покупать их для своего будущего дома и привозить на свой объект, честно говоря, особое ощущение Оборудование и ЭППС были доставлены, и завертелось все: прорезался воздух плоскостями лазерного уровня, затарахтели перфораторы, закипела работа))) Выкладываю несколько фотографий: Показуйте фото електрики, такої ж гарної як і сантехніки, тоді вже Посилання на коментар Поділитися на інших сайтах More sharing options...
san6ka Опубліковано: 2 серпня 2020 Поділитись Опубліковано: 2 серпня 2020 И кстати чет вспомнила, а где Вы будете сушить вещи? Может добавите сушильную машину над стиралкой (они отлично устанавливаются друг на друга)? Конечно, бытовой химии придется ужаться или переехать, зато не надо будет возле Ваших красивых панорамных окон ставить сушки для белья Посилання на коментар Поділитися на інших сайтах More sharing options...
ts3 Опубліковано: 31 серпня 2020 Автор Поділитись Опубліковано: 31 серпня 2020 И кстати чет вспомнила, а где Вы будете сушить вещи? Вещи планирую сушить в стиральной с функцией сушки.. возможно, если до бойлера дело не дойдет - сушка будет отдельной, над стиралкой) Посилання на коментар Поділитися на інших сайтах More sharing options...
san6ka Опубліковано: 1 вересня 2020 Поділитись Опубліковано: 1 вересня 2020 Вещи планирую сушить в стиральной с функцией сушки.. возможно, если до бойлера дело не дойдет - сушка будет отдельной, над стиралкой) Если пользовались ранее и все устраивает, то ок, если не пользовались - то будете неприятно удивлены что стиралки сушат лишь половину того что стирают. Вот это все перекладывание вещей очень неудобно, лучше сразу брать сушильную машину. 2 Посилання на коментар Поділитися на інших сайтах More sharing options...
irina1969 Опубліковано: 1 вересня 2020 Поділитись Опубліковано: 1 вересня 2020 Если пользовались ранее и все устраивает, то ок, если не пользовались - то будете неприятно удивлены что стиралки сушат лишь половину того что стирают. Вот это все перекладывание вещей очень неудобно, лучше сразу брать сушильную машину. во не соглашусь про неудобство у меня машина 2 в 1, из недорогого сегмента...сушит отлично, только нужно не полениться прочитать инструкцию и выбрать нужную программу...да,полная загрузка 8 кг, сушка 5 НО я никогда не закладываю 8, т.к это напихать полный барабан и ногами его утрамбовать закладываться 5 и сушиться 5 2 Посилання на коментар Поділитися на інших сайтах More sharing options...
ts3 Опубліковано: 1 вересня 2020 Автор Поділитись Опубліковано: 1 вересня 2020 В этом посте напишу про три этапа: заливку стяжки, перенос стены на 15см, фреономагистрали. Самые большие трудозатраты в заливке стяжки, в моем случае, - надуть серьезные щеки у застройщика, когда завозил аванс) Конечно, я три раза напомнил про пластификатор. Конечно, я проговорил про ответственность в случае кривого пола, трещин или такого обстоятельства, как "бухтыть". Но слава Богу, все прошло хорошо. Стену рушить было не тяжело. Тяжело - поднимать паллету газоблока на 9й этаж без лифта. Ну и сносить в мешках вторую половину обломков старой стены. Пишу "вторую", потому что первую половину строители сбросили вниз из окна на лестничной площадке Узнал я об этом из телефонного звонка. И был удивлен не меньше, чем председатель жека, который звонил, - прямо перед тем, как уезжать, я акцентировал внимание, что ничего сбрасывать нельзя - будем сносить. С фреономагистралями для кондиционеров и отводом конденсата пришлось немного повозиться: 1). у нас нельзя делать отвод конденсата на улицу (и я этому очень рад!) 2). застройщик устанавливать наружные блоки на фасад запрещает, а куда их устанавливать - не подумали сразу В итоге, крутил места расположения внутренних блоков, чтобы отводить конденсат самотеком. Не люблю все эти насосы. А по месту установки наружных блоков ждали, пока архитектурное бюро выдаст ответ, который я называю "3 Тольки": НБ на балконе только на северную сторону, только в решетки, которые можно купить только у застройщика)) П.С. Если кто-то будет читать эту тему на этом же этапе - очень важно фотографировать все скрытые работы, а с трубки отвода конденсата я еще и привязки снял - там потом крепить к стене шкафы кухни. 1 Посилання на коментар Поділитися на інших сайтах More sharing options...
san6ka Опубліковано: 1 вересня 2020 Поділитись Опубліковано: 1 вересня 2020 во не соглашусь про неудобство у меня машина 2 в 1, из недорогого сегмента...сушит отлично, только нужно не полениться прочитать инструкцию и выбрать нужную программу...да,полная загрузка 8 кг, сушка 5 НО я никогда не закладываю 8, т.к это напихать полный барабан и ногами его утрамбовать закладываться 5 и сушиться 5 Про 8/5 не слышала, пользовалась 6/3 тот еще гемор, поэтому решила в доме только отдельная сушилка. Ну и да я ленивая, если стирать то все сразу, за день пару загрузок на 6-7 кг - пока вторая очередь стирается, первая сушится В этом посте напишу про три этапа: заливку стяжки, перенос стены на 15см, фреономагистрали. Поздравляю с новым этапом 2 Посилання на коментар Поділитися на інших сайтах More sharing options...
Рекомендовані повідомлення
Створіть акаунт або увійдіть у нього для коментування
Ви маєте бути користувачем, щоб залишити коментар
Створити акаунт
Зареєструйтеся для отримання акаунта. Це просто!
Зареєструвати акаунтУвійти
Вже зареєстровані? Увійдіть тут.
Увійти зараз