vadimv Опубліковано: 19 лютого 2021 Поділитись Опубліковано: 19 лютого 2021 постирочная это еще плюс одна мокрая зонаПлюс дополнительный источник света в темном коридоре. 1 Посилання на коментар Поділитися на інших сайтах More sharing options...
Narval Опубліковано: 20 лютого 2021 Поділитись Опубліковано: 20 лютого 2021 Коллеги, выскажитесь еще плз делали бы вы отдельную постирочную или оставили стирку+сушку в ванной. Да, понимаю, что постирочная это еще плюс одна мокрая зона, то тут аргумент такой, что у нас стирка+сушка каждый день, т.е, над ванной все время будет сушка белья. С другой стороны постричная это еще один источник звука и сырости, т.е надо вкладываться в обустройство. У меня сушилка и стиралка в ванной (раздельные) Мне так удобно, грязное белье в корзину, потом из корзины в стиралку, из стиралки в сушилку- не надо никуда носить. 1 Посилання на коментар Поділитися на інших сайтах More sharing options...
anabioz Опубліковано: 20 лютого 2021 Поділитись Опубліковано: 20 лютого 2021 Коллеги, выскажитесь еще плз делали бы вы отдельную постирочную или оставили стирку+сушку в ванной. Да, понимаю, что постирочная это еще плюс одна мокрая зона, то тут аргумент такой, что у нас стирка+сушка каждый день, т.е, над ванной все время будет сушка белья. С другой стороны постричная это еще один источник звука и сырости, т.е надо вкладываться в обустройство. Украдите у шкафов 60 см, тогда под окном станет гладидильная доска. И, возможно захочется сушить на улице, может вместо окна сделать дверь. Слева, при входе в постирочную (нижняя часть), три отделения для: белого, черного, цветного белья. Сверху - чистое постельное, скатерти, полотенца и т.д. 1 Посилання на коментар Поділитися на інших сайтах More sharing options...
tansss Опубліковано: 20 лютого 2021 Поділитись Опубліковано: 20 лютого 2021 тогда под окном станет гладидильная доска. . А если сделать её откидной с креплением в стене то можно и туда влез еще один горшок - вообще супер 1 Посилання на коментар Поділитися на інших сайтах More sharing options...
vadimv Опубліковано: 20 лютого 2021 Поділитись Опубліковано: 20 лютого 2021 . А если сделать её откидной с креплением в стене то можно иГоршок лучше не ставить в помещении с чистым бельем. 2 Посилання на коментар Поділитися на інших сайтах More sharing options...
Татьяна5 Опубліковано: 20 лютого 2021 Поділитись Опубліковано: 20 лютого 2021 Горшок лучше не ставить в помещении с чистым бельем. Почему? Посилання на коментар Поділитися на інших сайтах More sharing options...
vadimv Опубліковано: 20 лютого 2021 Поділитись Опубліковано: 20 лютого 2021 Почему?В опубликованном в журнале Applied Microbiology в 1975 году исследовании говорится, что частицы туалетного шлейфа выявлены на всех близлежащих поверхностях и вещах, в том числе полотенцах, косметических средствах и даже зубных щётках. 2 Посилання на коментар Поділитися на інших сайтах More sharing options...
Татьяна5 Опубліковано: 20 лютого 2021 Поділитись Опубліковано: 20 лютого 2021 В опубликованном в журнале Applied Microbiology в 1975 году исследовании говорится, что частицы туалетного шлейфа выявлены на всех близлежащих поверхностях и вещах, в том числе полотенцах, косметических средствах и даже зубных щётках. А если убирать? Если бы это было бы так, они б уже запретили совместный су 1 Посилання на коментар Поділитися на інших сайтах More sharing options...
SergeyGM Опубліковано: 20 лютого 2021 Автор Поділитись Опубліковано: 20 лютого 2021 Украдите у шкафов 60 см, тогда под окном станет гладидильная доска. И, возможно захочется сушить на улице, может вместо окна сделать дверь. Слева, при входе в постирочную (нижняя часть), три отделения для: белого, черного, цветного белья. Сверху - чистое постельное, скатерти, полотенца и т.д. Спасибо, очень кстати, а то про доску и корзины для белья вообще забыл. На улицу была мысль сделать выход, но думаю обойдусь окном. Посилання на коментар Поділитися на інших сайтах More sharing options...
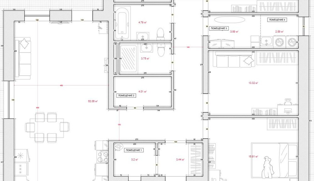
SergeyGM Опубліковано: 23 лютого 2021 Автор Поділитись Опубліковано: 23 лютого 2021 Коллеги, как думаете, оптимально ли будет: Помещение 1 - котельная Помещение 2 - Кладовая Помещение 3 - гардероб (маленький) Помещение 4 - постирочная или может Помещение 1 - Кладовая Помещение 2 - гардероб Помещение 3 - постирочная Помещение 4 - котельная Посилання на коментар Поділитися на інших сайтах More sharing options...
SergeyGM Опубліковано: 27 березня 2021 Автор Поділитись Опубліковано: 27 березня 2021 Коллеги, спасибо вам огромное за ваши отклики и рекомендации. Отдельный респект @tansss @Drosselbeere @Татьяна5 за конструктивные замечания и предложения. Многие из них были учтены в этом финальном варианте. Остались еще спорные моменты по привязке и открытию дверей, но на ход работ они пока не влияют. 3 Посилання на коментар Поділитися на інших сайтах More sharing options...
Рекомендовані повідомлення
Створіть акаунт або увійдіть у нього для коментування
Ви маєте бути користувачем, щоб залишити коментар
Створити акаунт
Зареєструйтеся для отримання акаунта. Це просто!
Зареєструвати акаунтУвійти
Вже зареєстровані? Увійдіть тут.
Увійти зараз