Vstar Опубліковано: 15 листопада 2023 Поділитись Опубліковано: 15 листопада 2023 28 хвилин тому, Drosselbeere сказав: без участі кваліфікованого фахівця в цьому і проблема, наслідки, жертви Посилання на коментар Поділитися на інших сайтах More sharing options...
Drosselbeere Опубліковано: 15 листопада 2023 Поділитись Опубліковано: 15 листопада 2023 5 хвилин тому, DimaF сказав: Ну да, а потом что то случается и начинается вой: спасите поможите, злочинна влада не турбуется про громадян... тому і я писав що потрібен проект сертифікованого виконавця з усіма ви допами аля декларація, авторський тех нагляд. до речі лозунг "злочинна влада", так більший безлад в будівництві був за часи кучми... про часи януковича взагалі мовчу, коли тупо заносили в окремий кабінет і отримували любий дозвіл, так що не нагнітайте ) Посилання на коментар Поділитися на інших сайтах More sharing options...
Drosselbeere Опубліковано: 15 листопада 2023 Поділитись Опубліковано: 15 листопада 2023 9 хвилин тому, Vstar сказав: в цьому і проблема, наслідки, жертви покажіть хоть один зафіксований випадок руйнування будинку, чи частини будинка, де пробитий проєм в панелі Посилання на коментар Поділитися на інших сайтах More sharing options...
Vstar Опубліковано: 15 листопада 2023 Поділитись Опубліковано: 15 листопада 2023 58 хвилин тому, Drosselbeere сказав: покажіть хоть один зафіксований випадок руйнування будинку, чи частини будинка, де пробитий проєм в панелі Ми бачили зруйновані панельні будинки і не один. Поняття детонація всім знайомо... , і один із факторів руйнування послаблення з'їднувальних вузлів, не правомірне втручання в капітальні конструкції та ін.. Посилання на коментар Поділитися на інших сайтах More sharing options...
i.may Опубліковано: 15 листопада 2023 Поділитись Опубліковано: 15 листопада 2023 39 хвилин тому, Vstar сказав: не правомірне втручання в капітальні конструкції А хто радив "неправомірне"? Тільки по узгодженому проєкту! 1 Посилання на коментар Поділитися на інших сайтах More sharing options...
Vstar Опубліковано: 15 листопада 2023 Поділитись Опубліковано: 15 листопада 2023 Тільки що, i.may сказав: Тільки по узгодженому проєкту! Не отримаєте узгодженого проекту в панелькі і ніхто не зареєструє перепланування Посилання на коментар Поділитися на інших сайтах More sharing options...
i.may Опубліковано: 15 листопада 2023 Поділитись Опубліковано: 15 листопада 2023 8 хвилин тому, Vstar сказав: Не отримаєте узгодженого проекту в панелькі і ніхто не зареєструє перепланування Специ не такі категоричні Отвір в стіні панельного будинку більш важко оформити, але це можливо. Посилання на коментар Поділитися на інших сайтах More sharing options...
vadimv Опубліковано: 15 листопада 2023 Поділитись Опубліковано: 15 листопада 2023 4 години тому, R V сказав: яким чином можно вирішити питання Продати непотрібне і купити те, що вам потрібно. 1 Посилання на коментар Поділитися на інших сайтах More sharing options...
Vstar Опубліковано: 15 листопада 2023 Поділитись Опубліковано: 15 листопада 2023 (змінено) 48 хвилин тому, i.may сказав: Специ не такі категоричні Отвір в стіні панельного будинку більш важко оформити, але це можливо. Та знайти можна будь що в просторах інету. Чому категорично кажу. Є рішеня, щодо виконання прорізу шириною до 1м (каркас, обойма) але це все зупинялось на дозвільному моменті. Я кажу за Вінницю І власник буде надіятись, витрачати кошти та час і дійде висновку: 18 хвилин тому, vadimv сказав: Продати непотрібне і купити те, що вам потрібно. Змінено 15 листопада 2023 користувачем Vstar 1 Посилання на коментар Поділитися на інших сайтах More sharing options...
i.may Опубліковано: 15 листопада 2023 Поділитись Опубліковано: 15 листопада 2023 19 хвилин тому, Vstar сказав: Я кажу за Вінницю А у Львові колись головний архітектор казав - можна. Причому на 2/9 з кухні на лоджію. Не робив, бо там ще закладна і об'єм робіт значний... Посилання на коментар Поділитися на інших сайтах More sharing options...
Vstar Опубліковано: 15 листопада 2023 Поділитись Опубліковано: 15 листопада 2023 14 хвилин тому, i.may сказав: головний архітектор казав - можна. Він так і працює головним архітектором міста? Сумніваюсь, скоріше за все ще той хабарник. Посилання на коментар Поділитися на інших сайтах More sharing options...
i.may Опубліковано: 15 листопада 2023 Поділитись Опубліковано: 15 листопада 2023 25 хвилин тому, Vstar сказав: Він так і працює головним архітектором міста? Сумніваюсь, скоріше за все ще той хабарник. По собі судите? 😉 По сабжу - у кожному конкретному випадку має конструктор рахувати - тоді і буде зрозуміло чи пройде узгодженя, чи ні... Посилання на коментар Поділитися на інших сайтах More sharing options...
Vstar Опубліковано: 15 листопада 2023 Поділитись Опубліковано: 15 листопада 2023 8 хвилин тому, i.may сказав: По собі судите? 😉 Розчарую, я з "іншої пісочниці ", Ви помилково побачили в мені свої якості, не потрібно смайликом підморгувати. Посилання на коментар Поділитися на інших сайтах More sharing options...
R V Опубліковано: 15 листопада 2023 Автор Поділитись Опубліковано: 15 листопада 2023 (змінено) Я так зрозумів конкретики немає, можливо прорахувати дані яку закладну треба для підсилення, або фахівця який би занявся прорахунком Змінено 15 листопада 2023 користувачем R V Посилання на коментар Поділитися на інших сайтах More sharing options...
Drosselbeere Опубліковано: 15 листопада 2023 Поділитись Опубліковано: 15 листопада 2023 8 годин тому, Drosselbeere сказав: розрахунок як токовий вам не допоможе. по суті потрібно зробити проект на влаштування проєму, відкрити повідомлення, виконати пробивку(прорізку проєму). попереджаю всю стінку знести не зможете, проем наприклад 1,5-2 м оптімал ІМХО, но при ширмні кухні 2 м, то проеєм максимум 0,9-1 м зробити можно Ось вам конкретика. Просто розрахунки нічого не дадуть Посилання на коментар Поділитися на інших сайтах More sharing options...
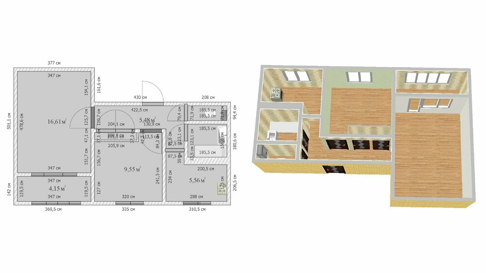
R V Опубліковано: 15 листопада 2023 Автор Поділитись Опубліковано: 15 листопада 2023 4 часа назад, Drosselbeere сказал: Ось вам конкретика. Просто розрахунки нічого не дадуть дякую за пораду я розумію що повністю зносити не можна я хочу зробити отвір типу дверей але треба стіну підсилити я правильно зрозумів? ось більш праавельний проект в фалі Квартира реальний пр..pdf Посилання на коментар Поділитися на інших сайтах More sharing options...
R V Опубліковано: 15 листопада 2023 Автор Поділитись Опубліковано: 15 листопада 2023 Только что, R V сказал: дякую за пораду я розумію що повністю зносити не можна я хочу зробити отвір типу дверей але треба стіну підсилити я правильно зрозумів? ось більш праавельний проект в фалі Квартира реальний пр..pdf 961 \u043a\u0411 · 0 загрузок Посилання на коментар Поділитися на інших сайтах More sharing options...
i.may Опубліковано: 16 листопада 2023 Поділитись Опубліковано: 16 листопада 2023 18 годин тому, R V сказав: фахівця який би занявся прорахунком Він має іще й узгодити, якщо візьметься - інакше змісту немає. Шукати треба в своїй локації. Посилання на коментар Поділитися на інших сайтах More sharing options...
i.may Опубліковано: 16 листопада 2023 Поділитись Опубліковано: 16 листопада 2023 22 години тому, Vstar сказав: я з "іншої пісочниці " І в ній усе і про усіх відомо, еге ж... Посилання на коментар Поділитися на інших сайтах More sharing options...
ketrin-n Опубліковано: 6 грудня 2023 Поділитись Опубліковано: 6 грудня 2023 можна, якщо знати як. мало хто звертає увагу, але вікна це теж проєми у несучих стінах ))) Посилання на коментар Поділитися на інших сайтах More sharing options...
Рекомендовані повідомлення
Створіть акаунт або увійдіть у нього для коментування
Ви маєте бути користувачем, щоб залишити коментар
Створити акаунт
Зареєструйтеся для отримання акаунта. Це просто!
Зареєструвати акаунтУвійти
Вже зареєстровані? Увійдіть тут.
Увійти зараз