Kimura Опубліковано: 15 січня 2010 Автор Поділитись Опубліковано: 15 січня 2010 Так-так-- Вот нашел еще пару фотографий для сопоставления. ТРУДОВ Праведных... Вы уже видели разводку электрики на первом этаже от "свободного дизайнера" Лилианны Плохотнюк, которые выдвигаются за номинацию "проект года" в разделе -за что взяты деньги ? И так можно сравнить : первый снимок - "суперпроект" по освещению от супердезигнера Лилианны Плохотнюк Второй снимок - "реальный проект по освещению" делался мной лично + обратите внимание на батарею розеток в зале под надписью internet Третий снимок - - даже есть фото правдо старенькое - без штукатурки. Та самая батарея розеток (даже помню по ходу добавил 4 штуки электрических). Найдите разницу как говорится в трех рисунках.. Это прояснило ситуацию ? Агу! Дезигнер ! Отведь! Четвертый снимок. Два поста Выше - я говорил о том что все метил краской сам -- мой почерк, краска из баллончика - вот еще до штукатурки фото подвала- - попала такая надпись - -сейчас там стоит блок из 18 автоматов, АВР, релле времени и уще груды того что Serg-Solar публиковал в отчете. Белым метил места вывода проводов и слаботочек, если планировались пульты и щитки - -писал ПУЛЬТ, ЩИТОК, СИГНАЛИЗАЦИЯ и и.т.д А пятый снимок- - как выглядит в реальности (место пульта - там где щиток под гордым текстом АВР - -фото из отчета SergSolar) ТО что получилось А шестой снимок - Там где я планировал кухню Рисовал все сам - -на этом и сыграла супердезигнер Лилианна Плохотнюк - сравнения по кухням я давал ранее... Комментарии ? Вопросы? Предложения? Посилання на коментар Поділитися на інших сайтах More sharing options...
Kimura Опубліковано: 15 січня 2010 Автор Поділитись Опубліковано: 15 січня 2010 Я писала уже о своем неудачном опыте найма дизайнера. Но Ваш алгоритм взаимоотношений мне совсем не понятен. За полгода Вы не получили от барышни НИ ОДНОГО ДО КОНЦА ВЫПОЛНЕННОГО ЭТАПА ДИЗАЙНЕРСКИХ РАБОТ и все равно продолжали платить. Надо заметить, что у неё очень симпатичные притягательные глаза, выходит за них и платили. А уж задним числом, только сегодня, в одностороннем порядке начать оценивать хоть какую-то её работу в деньгах, изучая расценки и эскизы других форумчан, это вообще ни в какие рамки не налазит А Вы думаете что все аферисты похожи лицом на Валуева или имеют печать даунизма на лице? Как правило нет. Надежда Вы правы. Первую давал я. А вот со второй суммой - дезигнер выманил уже не у меня , а у моей супруги, я отказывался давать деньги без закрытия вопросов по первой сумме. Как раз (случайно наверное так получилось?!) в то время когда я был в командировке. Супруга была не в курсе моей линии, поджимали сроки по плитке, дезигнер наплела, навешала лапши... Но та к хотелось верить что человек что-то может. Первую тысячу - даже скажу больше авансом дал ,каюсь! ..основываясь на рекомендациях. Пытался выразить свое уважение и показать уровень доверия к человеку которого нанимаю. Считал что деньги решают вопрос с плодотворностью. У меня такое ощущение что дежавю происходит. Вон Корни появилась. И в первых постах была. И надежда. Повторяться не будем. Тем более на сколько я понимаю защитные скрижали от дезюгнера подошли к концу. Дальше ей писать не о чем. Я могу предоставить свой вариант договора. Специалисты оценят - -на сколько я превысил или не досчитал лимиты за работы и правильно ли он составлен. Логичен ли мой документ. А так же я пришлю тот циничный документ который я получил в ответ от дезюгнера. С издевательскими ответами. Потом можем перейти к порядочности в объяснениях, которые писала данная особа в милиции оперативнику.Как говорится - о том что было реально и что написала эта дамочка. У меня еще много тем которые могут быть интересны. Интересно ли Вам? Люди ! Посилання на коментар Поділитися на інших сайтах More sharing options...
Olga_Flower Опубліковано: 16 січня 2010 Поділитись Опубліковано: 16 січня 2010 Склоняюсь к мнению, что в данной ситуации прав Кимура. Если уплачено 2000 долларов за тот предоставленный совершенно смешной объем работ, это кидалово. Со скрипом могу согласиться, что 1000 отработана, хотя за всего лишь оформление фасадов (картинок с таким стилем в инете море и работу дизайнера сложно назвать высокооплачиваемым креативом) это супердорогая цена. Остальное действительно сделано не было. Решетки откровенно позорные. Вопрос только по визуализации кухонь в 3D. Это делала дизайнер Плохотнюк или конторы по изготовлению кухонь? Если дизайнер, хотелось бы увидеть рабочие скриншоты открытого в программе файла кухонь. Поскольку сама по себе 3D визуализация без имеющихся заранее заготовок вещь довольно трудоемкая и это как-то хоть немного оправдает уплаченные деньги. Хотя у меня большие сомнения, что это ее работа... Она даже те вещи, которые намного проще и качественнее делаются в компе, выполняла от руки... Посилання на коментар Поділитися на інших сайтах More sharing options...
LilianaKlim Опубліковано: 16 січня 2010 Поділитись Опубліковано: 16 січня 2010 Просмотрев сообщения Кимуры на других ветках, можно сделать вывод, что человек неглупый - УМНЫЙ. Тогда объясните, Кимура даёт предоплату 1000 дол. и спустя 4 месяца даёт еще 1000 дол. Если мной не были сделаны оговоренные работы, тогда за что такие оплаты?! А вот со второй суммой - дезигнер выманил уже не у меня , а у моей супруги, я отказывался давать деньги без закрытия вопросов по первой сумме. Как раз (случайно наверное так получилось?!) в то время когда я был в командировке. Супруга была не в курсе моей линии, поджимали сроки по плитке, дезигнер наплела, навешала лапши... Если произошло такое, что Вы здесь написали, то мы с вами еще 2 месяца встречались на объекте и не только! 2. Разрушение и перенос водоподводов на кухне, в 2-х ванных - получается по 75 долларов точка с повторной штукатуркой, пайкой, муровкой и размуровкой +материалы. 75*3 =225$ Все знают, что внутренние работы по дому начинаются с электрики и водо-канализационных работ. Эти работы были проведены на объекте в течении первых месяцев сотрудничества. Спустя окончания этих работ еще больше 4 месяцев я была на объекте с Мельниченко или с его прорабом, или с его женой - Алиной. Работы по дому не замораживались. Возникает вопрос! Почему же "бока" - переделки вылазить начали после того, как я ушла?!! Четвертый снимок. Два поста Выше - я говорил о том что все метил краской сам -- мой почерк, краска из баллончика - вот еще до штукатурки фото подвала- - попала такая надпись - -сейчас там стоит блок из 18 автоматов, АВР, релле времени и уще груды того что Serg-Solar публиковал в отчете. Белым метил места вывода проводов и слаботочек, если планировались пульты и щитки - -писал ПУЛЬТ, ЩИТОК, СИГНАЛИЗАЦИЯ и и.т.д Я и не писала, что электрика в подвале моя заслуга! Из особых воспоминаний - -на первом и последнем обсуждении зонирования - было поставлено требования передвинуть кровать во взрослой спальной головой к окну - а не так как в чертежах О.К*с*нской - на вопрос почему - единственная и убийственная своей тупость фраза -"что бы дети не увидели Вас голыми когда вдруг завалят без стука в комнату..." - серъезный довод - серъезное зонирование. Вы забыли дописать для красочности, чтобы завершить картину "бездарности", что я еще говорила, что нужно заложить все окна и углы закруглить, а чтобы совсем хорошо было лучше всё снести! Посилання на коментар Поділитися на інших сайтах More sharing options...
LilianaKlim Опубліковано: 16 січня 2010 Поділитись Опубліковано: 16 січня 2010 (змінено) Вопрос только по визуализации кухонь в 3D. Это делала дизайнер Плохотнюк или конторы по изготовлению кухонь? Если дизайнер, хотелось бы увидеть рабочие скриншоты открытого в программе файла кухонь. Поскольку сама по себе 3D визуализация без имеющихся заранее заготовок вещь довольно трудоемкая и это как-то хоть немного оправдает уплаченные деньги. Хотя у меня большие сомнения, что это ее работа... Она даже те вещи, которые намного проще и качественнее делаются в компе, выполняла от руки... Как говорил мой Учитель, не самое важное в работе дизайнера уметь красиво создавать 3D в компе, ГЛАВНОЕ суметь на листке бумаги ручкой или карандашом или пером изобразить саму идею и воплотить! Змінено 16 січня 2010 користувачем LilianaKlim Посилання на коментар Поділитися на інших сайтах More sharing options...
Kimura Опубліковано: 16 січня 2010 Автор Поділитись Опубліковано: 16 січня 2010 Просмотрев сообщения Кимуры на других ветках, можно сделать вывод, что человек неглупый - УМНЫЙ. Тогда объясните, Кимура даёт предоплату 1000 дол. и спустя 4 месяца даёт еще 1000 дол. Если мной не были сделаны оговоренные работы, тогда за что такие оплаты?! Если произошло такое, что Вы здесь написали, то мы с вами еще 2 месяца встречались на объекте и не только! Все знают, что внутренние работы по дому начинаются с электрики и водо-канализационных работ. Эти работы были проведены на объекте в течении первых месяцев сотрудничества. Спустя окончания этих работ еще больше 4 месяцев я была на объекте с Мельниченко или с его прорабом, или с его женой - Алиной. Работы по дому не замораживались. Возникает вопрос! Почему же "бока" - переделки вылазить начали после того, как я ушла?!! Я и не писала, что электрика в подвале моя заслуга! Вы забыли дописать для красочности, чтобы завершить картину "бездарности", что я еще говорила, что нужно заложить все окна и углы закруглить, а чтобы совсем хорошо было лучше всё снести! Один мусор , а не ответы. Похоже добавить по-существу больше нечего... Посилання на коментар Поділитися на інших сайтах More sharing options...
Kimura Опубліковано: 16 січня 2010 Автор Поділитись Опубліковано: 16 січня 2010 Как говорил мой Учитель, не самое важное в работе дизайнера уметь красиво создавать 3D в компе, ГЛАВНОЕ суметь на листке бумаги ручкой или карандашом или пером изобразить саму идею и воплотить! Еще можно рисовать пальцем, народ написал что кирпичем можно, палочкой на песке,солнечным зайчиком на стене. Это не имеет отношения к общепринятым правилам и требованиям , которые представляет дизайнер. Позвольте полюбопытствовать -кто Ваш Учитель? Это он Вас учил воровать и кидать клиентов ? Какое У него образование? А какое у Вас? (собственно я -то знаю - а общественности может быть интересно). Вы украли деньги. Не выполнили работу. Подставили, вероятно неплохого человека, который Вас рекомендовал. По Вашим ответам каждый сможет сделать выводы про Вашу компетентность и грамотность. Найдите совет мой в последнем письме - займитесь чем-то другим - заказчики разные, кто-то может и наказать посеръезней чем размещение в ЧС. Копия письма отправлена модератору - "Абсолютно не привязанное к теме ветки сообщение. К делу имеют отношения только первые три снимка , которые уже публиковались (один - так точно)- -все остальное - -неизвестно что и отношение ни ко мне ни к моей жалобе ни к моему объекту не имеет . Следовательно требую убрать! А написателю письма объяснить что засирать ветку неидентифицированным мусором - это нарушение правил форума. Не так ли ?" Посилання на коментар Поділитися на інших сайтах More sharing options...
Olga_Flower Опубліковано: 16 січня 2010 Поділитись Опубліковано: 16 січня 2010 Как говорил мой Учитель, не самое важное в работе дизайнера уметь красиво создавать 3D в компе, ГЛАВНОЕ суметь на листке бумаги ручкой или карандашом или пером изобразить саму идею и воплотить! Я имела в виду показ скриншота открытого РАБОЧЕГО файла, в который можно вносить правки, а не отрендеренного готового изображения. Хотелось бы убедиться в наличии у Вас исходного файла кухни. А что касается слов Вашего учителя - теперь совершенно точно понятно, что Вы не имеете соответствующего образования. Преподаватели в КНУБА (бывший КИСИ) животики бы надорвали, услышав этот бред от "дизайнера интерьеров". (говорю со всей ответственностью, у меня дочь там учится на архитектора, и дизайн интерьеров им тоже задавали делать неоднократно) Наброски - это только первый шаг. Да, он важен. Но по трудоемкости это самая легкая часть работы. Самая сложная часть - тщательное продумывание всех мелочей и предоставление всего комплекса разработанной идеи в виде чертежей и 2D или 3D изображений, во всех деталях и ракурсах отображающих проект. Причем, так, чтобы у исполнителей практически не возникало после этого к Вам как к дизайнеру вопросов. Как раз этой трудоемкой части работ у Вас практически не видно. Да и наброски делаются на коленке за 15 мин. ничего креативного у Вас на них нет. Обычные шаблонные решения. 3 Посилання на коментар Поділитися на інших сайтах More sharing options...
Olga_Flower Опубліковано: 16 січня 2010 Поділитись Опубліковано: 16 січня 2010 LilianaKlim, у меня только один вопрос к Вам остался: почему Вы не возвращаете деньги? 1 Посилання на коментар Поділитися на інших сайтах More sharing options...
homeauto.com.ua Опубліковано: 16 січня 2010 Поділитись Опубліковано: 16 січня 2010 LilianaKlim, у меня только один вопрос к Вам остался: почему Вы не возвращаете деньги? А она их украла или все-таки заработала? Кимула ведь обращался в милицию, там должны были ответить на этот вопрос. Посилання на коментар Поділитися на інших сайтах More sharing options...
Olga_Flower Опубліковано: 16 січня 2010 Поділитись Опубліковано: 16 січня 2010 А она их украла или все-таки заработала? Кимула ведь обращался в милицию, там должны были ответить на этот вопрос. Вообще-то по правилам любых дизайнерских услуг, если клиент не утвердил выполненный объем работ и остался недоволен, дизайнер имеет право оставить себе только предоплату (1000). Вторую часть суммы, которую, к слову, нельзя было брать у жены заказчика (договор был не с ней) необходимо вернуть, поскольку оговоренный объем работ не выполнен, вся внутрянка не отработана. 12 Посилання на коментар Поділитися на інших сайтах More sharing options...
IesuiT Опубліковано: 16 січня 2010 Поділитись Опубліковано: 16 січня 2010 Не надо от модератора ТРЕБОВАТЬ того, чего он делать не обязан. Для модератора вы все пользователи с одинаковыми правами. Лилиана имеет право предоставить все доказательства, чтоб оправдать себя, раз ей предъявлены обвинения. ВЫ можете опровергнуть ее доводы, но чтоб удалить ее фото модератору по большому счету нужно поехать на ВАШ объект и сверить его интерьер со снимками Лилианы, потребовать у нее объяснений. Иначе модератора назовут предвзятым. Я понятно объясняю? Посилання на коментар Поділитися на інших сайтах More sharing options...
Надежда Опубліковано: 16 січня 2010 Поділитись Опубліковано: 16 січня 2010 А она их украла или все-таки заработала? Кимула ведь обращался в милицию, там должны были ответить на этот вопрос. Деньги, взятые из рук заказчика и его жены никак не могут быть квалифицированы украденными. Если дело дошло до милиции, то вылезут и другие неприятные моменты - расчеты в валюте. Дизайнер имеет право заниматься предпринимательской деятельностью, руководствуясь действующим законодотательством. Если Кимура докажет, что она, будучи СПД, взяла доллары, то по итогу заплатит приличный штраф (больше чем взяла) Если взяла деньги, не будучи СПД, то будет нести уголовную ответственность за незаконную деятельность. Посилання на коментар Поділитися на інших сайтах More sharing options...
homeauto.com.ua Опубліковано: 16 січня 2010 Поділитись Опубліковано: 16 січня 2010 Если Кимура докажет, что она, будучи СПД, взяла доллары... Мне кажется что при этом Кимула пострадает не меньше. Ведь это он расплачивался валютой, а не она. Вообще-то по правилам любых дизайнерских услуг, если клиент не утвердил выполненный объем работ и остался недоволен, дизайнер имеет право оставить себе только предоплату (1000). В этой ветке я вижу как минимум два мнения, причем диаметрально противоположных. Вы поддерживаете позицию, что дизайнер не выполнила оплаченный объем работ. Другие, что выполнила. Есть спор, который должен быть разрешен или полюбовно или, скорее всего, в третейском порядке. Есть еще вариант, что Кимула успокоится и оставит все как есть. Это тоже вариант. ЗЫ. В дальнейшем нагнетании страстей не вижу никакого смысла. От этого не выиграет ни одна из сторон. IMHO. Посилання на коментар Поділитися на інших сайтах More sharing options...
Olga_Flower Опубліковано: 16 січня 2010 Поділитись Опубліковано: 16 січня 2010 (змінено) LilianaKlim, тут очень кстати пришла в гости моя дочь, учащаяся всего лишь 2-го курса КНУБА (КИСИ). Я ей показала Ваши наброски расстановки мебели и другие работы по внутреннему оформлению, выложенные здесь, которые Вы предлагали своему заказчику. Вердикт дочери - Вы не знаете даже азов, необходимых для профессиональной работы: Больше всего бросается в глаза незнание антропометрии (пропорции человека и размеры его рабочего пространства), с учетом которой должна делаться расстановка мебели и ее размеры. Также даже на Ваших каракулях видны серьезные пробелы в знаниях законов и норм освещения помещений, знании законов композиции. В самих набросках нет конкретики. Такого вида зарисовки в КИСИ не показываются даже преподавателю. Это уровень домашних набросков перед тем, как приступить к клаузуре (это серия небольших рисунков, более детально отработанных, чем наброски, с раскладкой по цветовой гамме + планы). Клаузура является первым этапом художественных работ перед началом работы над проектом. После выбора какого-то из вариантов клаузуры, его доработки, делается эскиз проекта (черновой вариант проекта, на котором исправляются все ошибки, дорабатываются замечания заказчика) плюс чертежи к нему. Только после этого делается чистовой вариант, который утверждается клиентом и оплачивается. Подчеркиваю, эта схема не включает в себя никаких компьютерных обработок. Это классическая ручная работа. Впрочем, компьютерные работы отличаются только тем, что черновой файл постепенно дорабатывается до чистового. А так все то же самое. Про представление своей работы дизайнером клиенту в нормально оформленном виде у Вас вообще говорить не приходится. Для меня после этих комментариев стало совершенно очвидно, что объем работ по интерьеру Вы вообще не имели право брать в качестве профессионала, разве что любителя-аматора. Что Вы заканчивали? Курсы по дизайну интерьера, наверное? Змінено 16 січня 2010 користувачем Olga_Flower 11 Посилання на коментар Поділитися на інших сайтах More sharing options...
Lipton Опубліковано: 17 січня 2010 Поділитись Опубліковано: 17 січня 2010 Деньги, взятые из рук заказчика и его жены никак не могут быть квалифицированы украденными. Если дело дошло до милиции, то вылезут и другие неприятные моменты - расчеты в валюте. Дизайнер имеет право заниматься предпринимательской деятельностью, руководствуясь действующим законодотательством. Если Кимура докажет, что она, будучи СПД, взяла доллары, то по итогу заплатит приличный штраф (больше чем взяла) Если взяла деньги, не будучи СПД, то будет нести уголовную ответственность за незаконную деятельность. Вкладчики МММ или Элиты Центр тоже добровольно деньги отдавали, классификация-АФЁРА, уголовная статья ! Посилання на коментар Поділитися на інших сайтах More sharing options...
Fly Wind Опубліковано: 17 січня 2010 Поділитись Опубліковано: 17 січня 2010 я выступаю обычно или в роли заказчика (ремонт делаю в квартире у себя) или в роли подрядчика (мебель и тп). так вот, не вдаваясь в подробности разборок в теме, хочу сказать следующее: Во 1 - общаться надо конструктивно и в рамках приличий. Выливаемые потоки грязи (извините по другому не назвать) чести не делают никому. Во 2 - работы должны делаться по договору, в котором четко оговорено техзадание, цена договора и обьем работ, входящий в нее, сроки и ответственность сторон. я даже когда делаю мебель друзьям, отправляю их в офис договор составлять. в индивидуальном заказе, дизайне да и вообще в человеческих отношениях зачастую возникает проблема с взаимопониманием, да и ошибки бывают у всех. так зачем долго спорить в случае каких-либо проблем, если есть бумага, где все написано черным по белому и стоят 2 подписи? В 3 - все оплаты оформляются платежным документом. это может быть чек, квитанция, расписка наконец. В 4 - в договоре оговаривается, в каком виде работа должна быть сдана и как это документировать. в мебели например: мы должны сделать замер по проекту, повторно подписать эскиз у заказчика в случае изменений, изготовить, собрать, доставить, смонтировать мебель. после этого заказчик должен ее принять путем подписания актов приема - передачи. акт подписан - работа сделана, акт не подписан - не сделана. тогда заказчик составляет рекламацию и мы устраняем недоделки. И в 5 - доплата по договору делается исключительно ПОСЛЕ подписания акта приема-передачи. и никак иначе. вчера мне позвонил заказчик, которому мы делаем шкаф-купе, тоже кстати форумчанин, и сказал что все ок, все стало и ему все нравится, но ребята при заносе ударили профиль одной двери. он готов рассчитаться и все подписать, а в понедельник они приедут заменят. я ему сказал, что в понедельник они приедут с профилем, заменят, подпишут акт и он отдаст доплату, а сейчас в этом нет необходимости. Пс - и вообще с позиции исполнителя изначально нужно руководствоваться принципом "Заказчик всегда прав". И стараться уладить конфликтные ситуации полюбовно. Хотя это конечно не означает, что не нужно отстаивать свои интересы. 10 Посилання на коментар Поділитися на інших сайтах More sharing options...
К.О.Д. Опубліковано: 17 січня 2010 Поділитись Опубліковано: 17 січня 2010 , хочу сказать следующее: Во 1 - . Во 2 - В 3 - . В 4 - . Пс - и вообще с позиции исполнителя изначально нужно руководствоваться принципом "Заказчик всегда прав". И стараться уладить конфликтные ситуации полюбовно. Хотя это конечно не означает, что не нужно отстаивать свои интересы. Подписываюсь под описанной схемой. Об этом хотел сам написать. Все верно! Так поступают профессионалы. Ограждая и себя и заказчика от недоразумений на всех этапах (включая много времени спустя). А так вся эта история похожа на то, что человек получив образование воспитателя детсада или медсестры решил, что можно зарабатывать на жизнь чем то более денежным - например, почему бы не стать дизайнером и трясти богатеньких Буратин-застройщиков как грушу. 1 Посилання на коментар Поділитися на інших сайтах More sharing options...
Kimura Опубліковано: 17 січня 2010 Автор Поділитись Опубліковано: 17 січня 2010 (змінено) Не надо от модератора ТРЕБОВАТЬ того, чего он делать не обязан. Для модератора вы все пользователи с одинаковыми правами. Лилиана имеет право предоставить все доказательства, чтоб оправдать себя, раз ей предъявлены обвинения. ВЫ можете опровергнуть ее доводы, но чтоб удалить ее фото модератору по большому счету нужно поехать на ВАШ объект и сверить его интерьер со снимками Лилианы, потребовать у нее объяснений. Иначе модератора назовут предвзятым. Я понятно объясняю? Уважаемый Iesuit,я с глубоким уважением и корректностью хочу поставить Вам вопросы относительно Вашей позиции на счет того что дезюгнер стал на ветке публиковать "левые" фотографии , которые не имеют отношение ни ко мне ни к моему объекту: 1. У Вас есть доказательства , что указанные на фотографиях работы на другом объекте сделаны указанным дезигнером?(где свидетели? Строители, прорабы, заказчик - своих я могу предоставить в любой момент) 2. Вы знакомы с заказчиком владельцем объекта и знаете состояние дел, расценки, фронт работ и пр.пр.пр.?(пусть появиться!!!! А я -- вот он тут!!!) 3. Вы видели договора, по которым работает на этом или других объектах особа, "творчество" которой является предметом обсуждения?(покажите подписанные!!! Свои варианты я укажу позднее с перепиской с данной особой тоже - время еще не пришло.) 4. В данной ветке обсуждается мой вопрос или как ? Или философское обсуждение уровня вселенского масштаба может или нет указанный дезигнер держать в руках карандаш ? (Вы хотите посмотреть на меня и на мой объект ? -нет проблем! пишите свои контакты в ПМ - я Вас завезу к себе на дом, берите распечатки дезюгнера - и Все козыря Вам в руки, через месяц Вы сможете пообщаться и с прорабом, и с моей женой и с SergSolar и с водопроводчиком и с первым дизайнером и с текущим - нет проблем!Сейчас на объекте не те люди которы е могут ответить на глобальные вопросы) После ответов хотя бы на один вопрос утвердительно - наверное я решу что я не прав. Ведь идя по Вашей логике - я готов утверждать следующее - что на первой приложенной фотографии это есть собор из города Хацапетовки, на второй - Венера Крыжопольская которая лепилась с моей соседки с верхнего этажа, а эти четверо парней с третьей фотки - -отличные ребята , которых я сегодня видел на пункте голосования в комиссии. И первое и второе и третье утверждение Вы не сможете опровергнуть -соответственно то что я сказал про эти фото - правда, но оно не имеет к теме топика никакого отношения. Просто фотки и просто флуд. Поэтому пожалуйста -ну не путайте праведное с грешным. Именно идя по пути того что ,дезюгнер где-то , что-то сделала (основываясь на ветке рекомендателя), поглядев 2-3 фотографии, не проверив их и доверяя замысловатым движениям рук в воздухе и сотрясанию атмосферы заявлениями "какая я супер дизюгнер!!!! Я все могу!!!!" я и попал в ситуацию, которая здесь и обсуждается. Поэтому при всем уважении к Вам как к модератору, сейчас Вы заняли позицию предвзятую, допускаете появление "левых" материалов, которые не имеют накакого отношения к топику. И я бы просил Вас еще раз - вычистить ветку которую я создал здесь от посторонних вложений. Ветка по-логике форума имеет отношения только к моему объекту и присутствие на ней непроверенных фактов , которые не имеют ни ко мне, ни к моему объекту ,ни к моему сообщению вообще - грубо нарушают правила форума -и это похоже на анархию .Тем более что все что Я показал тут - не может быть оспорено особой дезюгнера как ложь - ибо на каждый выпад я предоставляю равновесные и весомые факты, привязанные и к теме и к выпадамм в мой адрес. Все что предоставлено моим оппонентом - является либо очередным фактом низкого уровня дезигнера и косвенно или прямо подтверждают мое повествование либ почему то не имеют отношение к теме разговора.. Т.Е. Я ПРОШУ УБРАТЬ ФОТОГРАФИИ КАКИХ-ТО ЧУЖИХ ИНТЕРЬЕРОВ, КОТОРЫЕ МОГУТ ВНЕСТИ В ВЕТКУ ВПЕЧАТЛЕНИЕ ТОГО ,ЧТО ДЕЗЮГНЕР ДЕЛАЛ ЭТИ РАБОТЫ У МЕНЯ!!!! К МОЕМУ ОБЪЕКТУ ЭТО НЕ ИМЕЕТ НИКАКОГО ОТНОШЕНИЯ! Змінено 17 січня 2010 користувачем Kimura Посилання на коментар Поділитися на інших сайтах More sharing options...
Kimura Опубліковано: 17 січня 2010 Автор Поділитись Опубліковано: 17 січня 2010 (змінено) А она их украла или все-таки заработала? Кимула ведь обращался в милицию, там должны были ответить на этот вопрос. К сожалению данная афера пока (слово ПОКА - ключевое) не может быть ассоциирована с уголовным преступлением - наши законы не имеют логики и не защищают пострадавшихтак как в нормальных странах . Раз уголовной составляющей пока нету (нужно пару потерпевших с аналогичными фактами) -дело в том объеме который предоставил я - не закрыли, но переправили в хозяйственный суд, но из-за выборов - работа с юристом в суде пока приостановлена. Дело принципа довести вопрос до логического конца. И я буду его доводить до логического конца. Змінено 17 січня 2010 користувачем Kimura Посилання на коментар Поділитися на інших сайтах More sharing options...
BrotherSam Опубліковано: 18 січня 2010 Поділитись Опубліковано: 18 січня 2010 А она их украла или все-таки заработала? Кимула ведь обращался в милицию, там должны были ответить на этот вопрос. Мне кажется, что ожидания от данной темы уже намного превысили возможности. Такое впечатление, что публика собирается смотреть расстрел, причем не важно кого, но он должен быть А в теме идет суд присяжных, который обязан вынести решение. Уже сказано более чем достаточно с трех сторон и дальше идет словесная перестрелка. В любом споре всегда будут как минимум два мнения и не стоит пытаться "положить на лопатки оппонента". Но в ЧС писатели делятся своим негативным опытом работы с кем то. А читатели, прочитав, принимают решение, хотели бы они работать с таким заказчиком или исполнителем или нет. Посилання на коментар Поділитися на інших сайтах More sharing options...
M+A Опубліковано: 18 січня 2010 Поділитись Опубліковано: 18 січня 2010 75% что ето Вы и не надо филонить я с понедельника буду готовить растения на отправку зайду и посмотрю а фото выложу. И как? Посмотрели. Олег, я вас не знаю. Также не знаю слепой Вы или нет. А вот то, что Вы не запоминаете лица, это факт. Абсолютно разные женщины. Я был у Кулибина. Видел его жену. Схожи они темными волосами. И что? Евгения Тимошенко похожа на них. Она, тоже жена Кулибина? Посилання на коментар Поділитися на інших сайтах More sharing options...
IesuiT Опубліковано: 18 січня 2010 Поділитись Опубліковано: 18 січня 2010 Уважаемый Iesuit,я с глубоким уважением и корректностью хочу поставить Вам вопросы относительно Вашей позиции.... Нет, ну это праздник жизни какой-то. ОК, попытаюсь еще раз обозначить свою позицию, как модератора. Теперь уже аллегорией. Я сейчас зайду через прокси-сервер, создам новый персонаж и напишу в ЧС темку типа "Кимура - кидает своих работников" Скажу, что я потомственный водопроводчик в третьем колене, за свой счет поставил господину Кимуре золотые толчки, медные умывальники и дубовые биде, за это не получил ни гроша, меня господин Кимура кормит завтраками уже год. Не связывайте5сь с таким заказчиком. Да, забыл, попрошу модераторов и Администратора закрыть ветку, так как я уже все сказал и добавить нечего. А если господин Кимура успеет таки ответить, предоставит фото своего водопроводчика, фото своих толчков и раковин, отличных от написанного - ПОТРЕБУЮ удалить этот поклеп из МОЕЙ ветки. Что в этом случае нужно сделать модераторам? Модератор не должен принимать ничьей стороны. Я не знаю ни ВАС, ни Кулибина, ни Лилианны (хотя есть в ее лице что-то знакомое - где-то точно видел=) лично. И я никому верить на слово не обязан. Пусть каждый прочитавший ветку делает выводы самостоятельно. 14 Посилання на коментар Поділитися на інших сайтах More sharing options...
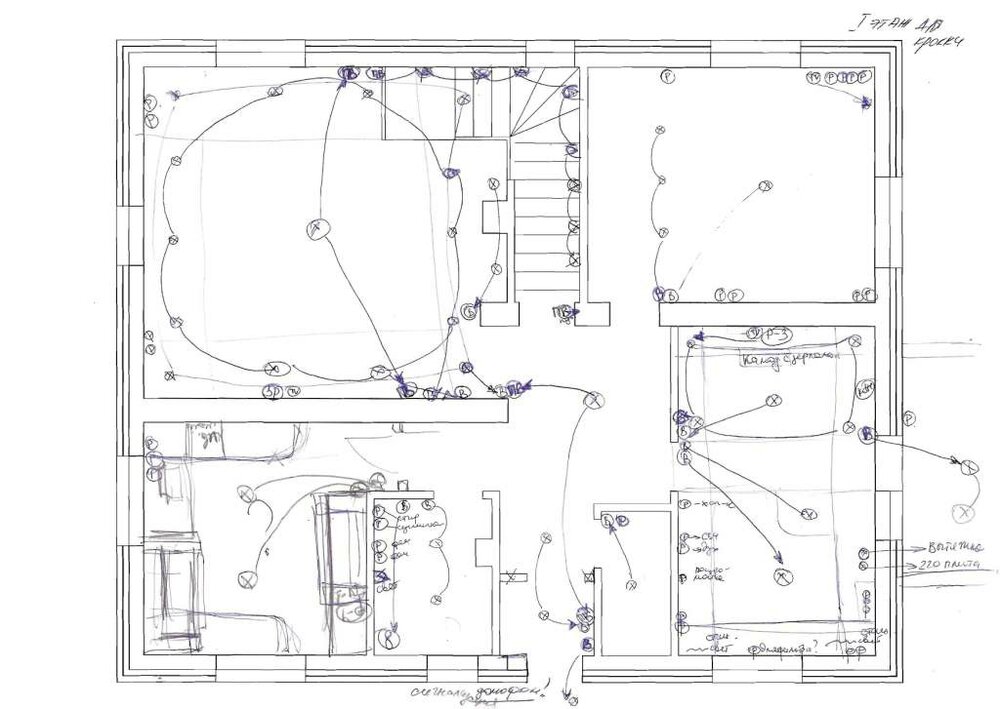
архітектор Опубліковано: 19 січня 2010 Поділитись Опубліковано: 19 січня 2010 Не могу не признать, что и в этой ветке действует медиапринцип - для привлечения внимания читателя нужна острота действия, накал страстей, интрига, скандал. Чем больше грязи льется, тем больше людей это читают и комментируют. Я не думал здесь ничего писать, все равно конфликтующим помочь не могу, и масла в огонь лить, не разобравшись в причинах, не хочу. Но свое мнение скажу - у "заказчика" - очень невыигрышная манера подачи информации с точки зрения трезвой оценки обстановки. Много эмоций, они бьют через край. Если вы хотите доказать что-то надо подходить с холодной головой. (я и сам себя заставляю делать это в конфликтных ситуациях). Из-за Ваших эмоций, Вас все меньше людей поддерживает. Почитать о скандале - да, внимание привлечет, но конструктива не будет, если Вам он, конечно нужен. У "дизайнера" - явный прокол по содержательности и последовательности ответов на выпады и обвинения, и видимый непрофессионализм в предоставленых работах, независимо от того, имеют они отношение к объекту заказчика или не имеют. Работы (эскизы, или эскизы эскизов) не собраны в логической или хронометрической последовательности, не оформлены в альбом. Поданы в виде отдельных черновиков. Технические решения на них сомнительны, план электрики не соответсвует стандартам оформления проектной документации. Отношение к бумагам (назвать это проектной документацией сложно) у "дизайнера", весьма своеобразное. Бумага, в вашем ("дизайнера"), случае могла бы стать основой для защиты или конструктивной критики, а фактически с бумагами прокол. Оценить характер устных консультаций "дизайнера" - "заказчику" пока не представляется возможным. 10 Посилання на коментар Поділитися на інших сайтах More sharing options...
arca Опубліковано: 27 січня 2010 Поділитись Опубліковано: 27 січня 2010 Позвольте спросить, а какое у дизайнера образование? Я мягко говоря в шоке. Люди вы хоть просите дипломы предоставлять. Чертежики, которые вы показали даже на фор-эскизы не годяться. Olga_Flower права - как закончившая Киси очень очень давно могу сказать, что даже на тройку не могли бы расчитывать эти чертежи. Простите визуализации в конце концов можно заказывать если не умеете делать сами, но вот культуры черчения у вас ноль, кто Вас учил и где? Как придешь за таким дизайнером на объект приходиться все переделывать. Люди от себя добавлю - не дорого 1000 долларов за фасады. У меня фасад с визулизацией так же как и всех знакомых архитекторов с комплектом чертежей стои 2000. Я знаю людей которые берут дороже. Посилання на коментар Поділитися на інших сайтах More sharing options...
Рекомендовані повідомлення