BrotherSam Опубліковано: 3 жовтня 2011 Поділитись Опубліковано: 3 жовтня 2011 Получилась достаточно неприятная история с поставкой дерева для кровли. Был сведетелем пятничных разборок с Владимиром Петровичем. Настолько хамского и пофигистского отношения со стороны поставщика я давно не встречал. Тезисно: "Вы хотели чтобы мы за 1500грн в срок делали?" "У вас проблемы из-за нашего поставщика, мы не причём" "У вас на завтра заказана бригада и кран на разгрузку? Это Ваши проблемы, нас не касаются, отменяйте всё, хотите я сам позвоню. Мы вообще в июне на 10% меньше прибыли получили" "Хотите продолжить разговор, приезжайте в офис, будем ругаться" "Мы не контролируем отгрузку сырья, поэтому не виноваты, что вместо 6м пришел 4,5м кругляк" "За 3000грн аванса мы просто сделаем, в срок только после 100% предоплаты. Почему не сказали сразу? А что не понятно, что за 1500грн в срок никто не сделает" Пипец. 2 Посилання на коментар Поділитися на інших сайтах More sharing options...
Ceazar Опубліковано: 3 жовтня 2011 Автор Поділитись Опубліковано: 3 жовтня 2011 Подсмотрел у Инсана (если не ошибаюсь) идею по утилизации уламков/опилков ГБ-блоков, и себе решил сделать так же... Так избавились практически от всего, пришедшего в негодность, строительного материала в строительных целях... Далее приступил к укладке первого ряда на втором этаже... что могу сказать, дело очень медленное (я уж позабыть успел как укладывал-выставлял первые блоки на своей стройке), в данном случае пользовался двумя растворами: клеевым и густым цементно-песчаным без применения пластификатора... но зато потом приятно продолжать следующие ряды, пользуясь качественно сделанным первым! Не забыл и про совете Игоря_М, клея наносил ровно столько сколько нужно было и чтоб он не вытекал из межблочных швов. В итоге стена получается настолько белая что аж светится 1 Посилання на коментар Поділитися на інших сайтах More sharing options...
Igor_M Опубліковано: 3 жовтня 2011 Поділитись Опубліковано: 3 жовтня 2011 Подсмотрел у Инсана (если не ошибаюсь) идею по утилизации уламков/опилков ГБ-блоков, и себе решил сделать так же... Так избавились практически от всего, пришедшего в негодность, строительного материала в строительных целях... Вот блин, классноая идея!!! А я все кирпичом заложил... а боя газобетонного до сих пор около 2м3 валяется... Только надо бы понимать, что это заполнение между панелью и ЭППС не просто так - нужно обеспечить достаточную НЕСУЩУЮ способность этого слоя. Поскольку следующий ряд газобетона будет ложиться на внешний "торчок" в 10см, потом эппс (5см?) и потом 25 см НАДЕЖНОЙ ОПОРЫ... Т.е. если заходит еще на плиту перекрытия, то все ОК, а если нет (по бокам плит перекрытия), то... ЗЫ Эх, хорошо у вас уровень с панелями совпал... а мне пришлось помучиться изрядно... Посилання на коментар Поділитися на інших сайтах More sharing options...
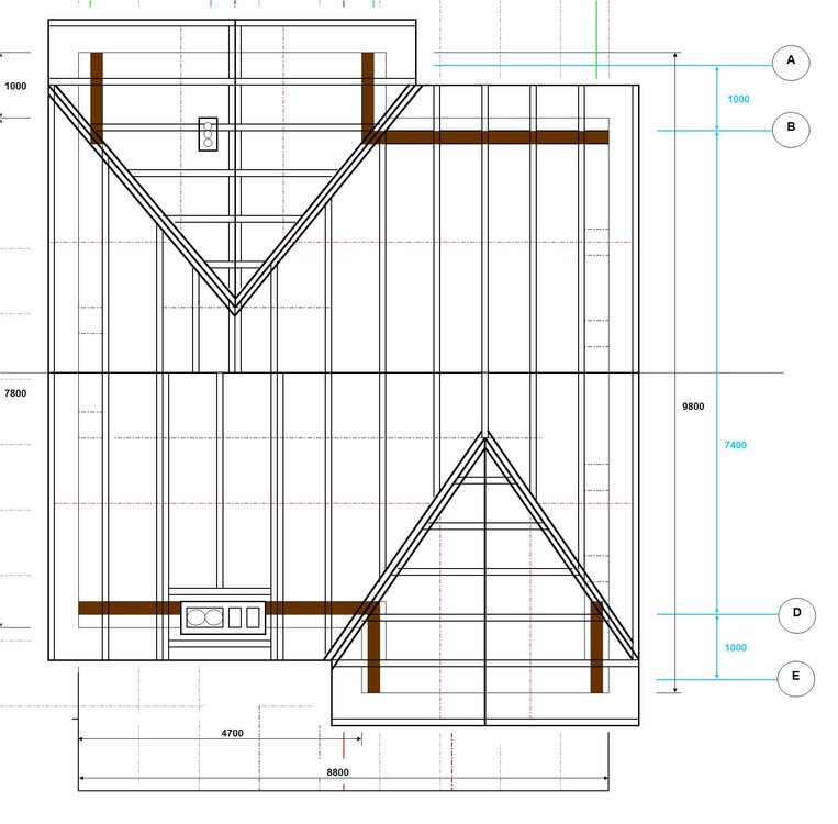
Ceazar Опубліковано: 11 жовтня 2011 Автор Поділитись Опубліковано: 11 жовтня 2011 (змінено) Ввиду сложности реализации фронтонов в прошлой моей идее по кровле было принято решение в сторону более простой реализации, а соответственно и более надежной. Коньковый прогон повернул на 90 градусов, поднял атиковую стену на 1,8м (высота стены без учета мауэрлата). Что имеем в итоге: больший объем воздуха на втором этаже; большая полезная площадь- за счет большей высоты стен под крышей; нормальный вход в туалет на втором этаже; меньше окон - по одному окну в каждом помещении второго этажа; из недостатков - мене презентабельный фасад и некая предстоящая сложность с дымоходом (т.к. он теперь располагается поперек ската крыши). Именно под этот вариант кровли и было заказано дерево. П.С. Забыл добавить, что и планировка второго этажа претерпела очередных изменений... надеюсь последних :D Змінено 11 жовтня 2011 користувачем Ceazar дополнение Посилання на коментар Поділитися на інших сайтах More sharing options...
Ceazar Опубліковано: 11 жовтня 2011 Автор Поділитись Опубліковано: 11 жовтня 2011 За выходные немного подросли стены второго этажа... дошли до уровня оконных проемов, при этом не забыв уложить арматуру под подоконные блоки. Докупил еще железа для монолитного участка на втором этаже (20-й швеллер, и арматура Ф16 и Ф10), но сделать его не получилось - подвела погода. Вследствие все воскресенье работал в родительском доме - оббивал перфоратором штукатурку со стен... готовил очередную комнату к очередному ремонту (для моей сестры и мамы Ремонт - это состояние души :D). 2 Посилання на коментар Поділитися на інших сайтах More sharing options...
Ceazar Опубліковано: 17 жовтня 2011 Автор Поділитись Опубліковано: 17 жовтня 2011 Еще один ответственный этап работ по второму этажу завершен. Практически по всему периметру (на всех готовых стенах) на высоте пятого ряда блоков в штробы заложили арматуру. Далее день потратили на изготовление и установку щита (поднять его вдвоем оказалось не очень легко), бурение плиты для закладки в отверстия арматуры (Ф16), установка и сварка 10-го уголка с 20-м швеллером, и устройство второй сетки из тонкой арматуры (Ф10). На следующих выходных хотелось бы залить это все... и продолжать возведение стен. Посилання на коментар Поділитися на інших сайтах More sharing options...
Игореха Опубліковано: 17 жовтня 2011 Поділитись Опубліковано: 17 жовтня 2011 Еще один ответственный этап работ по второму этажу завершен. Практически по всему периметру (на всех готовых стенах) на высоте пятого ряда блоков в штробы заложили арматуру. Далее день потратили на изготовление и установку щита (поднять его вдвоем оказалось не очень легко), бурение плиты для закладки в отверстия арматуры (Ф16), установка и сварка 10-го уголка с 20-м швеллером, и устройство второй сетки из тонкой арматуры (Ф10). На следующих выходных хотелось бы залить это все... и продолжать возведение стен. Все красиво! Красиво на столько, что можно попытаться камин из кирпича поставить на ту плиту, что вы собираетесь заливать. Правда боюсь что ПКшки не выдержат взрослого камина:D А если серьезно... то зачем верхняя сетка нужна была из 10ки? Да и 16 арматура в нижней сетке это великая роскошь. Хуже не будет конечно, но не бюджетно ;) Ну а заливать там, думаю на 3-4 часа работы. На глаз - около 0,6 куба бетона. Правда если бетономешалка маленькая, тогда больше телоджвижений надо сделать Посилання на коментар Поділитися на інших сайтах More sharing options...
Ceazar Опубліковано: 17 жовтня 2011 Автор Поділитись Опубліковано: 17 жовтня 2011 Все красиво! Красиво на столько, что можно попытаться камин из кирпича поставить на ту плиту, что вы собираетесь заливать. Правда боюсь что ПКшки не выдержат взрослого камина:D А если серьезно... то зачем верхняя сетка нужна была из 10ки? Да и 16 арматура в нижней сетке это великая роскошь. Хуже не будет конечно, но не бюджетно ;) Ну а заливать там, думаю на 3-4 часа работы. На глаз - около 0,6 куба бетона. Правда если бетономешалка маленькая, тогда больше телоджвижений надо сделать На том месте будет гардероб, в аккурат на месте монолитного участка. Решил взять Ф16, как говорит мой отец: "Шоб навіки". Экономия вышла бы не существенная, возьми я арматуру тоньшего сечения, или откажись от верхней сетки... А вот если бы отказаться от уголка то экономия по металлу - примерно в половину . Да и хотелось как лучше и надежнее... для себя ведь делаю... Возможно, в будущем захочется к.либо кардинальных изменений в дизайне помещения, может в планировке... да и хочется просто, быть уверенным в своем творении, в его надежности... будь то перемычка, стена, окно etc. Посилання на коментар Поділитися на інших сайтах More sharing options...
Игореха Опубліковано: 17 жовтня 2011 Поділитись Опубліковано: 17 жовтня 2011 На том месте будет гардероб, в аккурат на месте монолитного участка. Решил взять Ф16, как говорит мой отец: "Шоб навіки". Экономия вышла бы не существенная, возьми я арматуру тоньшего сечения, или откажись от верхней сетки... А вот если бы отказаться от уголка то экономия по металлу - примерно в половину . Да и хотелось как лучше и надежнее... для себя ведь делаю... Возможно, в будущем захочется к.либо кардинальных изменений в дизайне помещения, может в планировке... да и хочется просто, быть уверенным в своем творении, в его надежности... будь то перемычка, стена, окно etc. Ну по поводу 16 я примерно так и понял. Но вот по поводу верхней сетки - нет. Вы же поддомкрачивать эту плиту не будете. Она на изгиб работать никогда и не будет ;) Если 16 дороже 12 почти в 2 раза, и ее немного, но плита будет мощнее, тут вопросов нету. Но верхняя сетка, пусть даже и стоит всего гривен 200, но толку от нее почти ровно ноль Посилання на коментар Поділитися на інших сайтах More sharing options...
Игореха Опубліковано: 25 жовтня 2011 Поділитись Опубліковано: 25 жовтня 2011 Как продвигаются дела? Что-то вы двавно не писали Посилання на коментар Поділитися на інших сайтах More sharing options...
Ceazar Опубліковано: 26 жовтня 2011 Автор Поділитись Опубліковано: 26 жовтня 2011 Как продвигаются дела? Что-то вы двавно не писали Дела продвигаются очень медленно, сейчас работаю исключительно по выходным... Темнеет рано, и, если блоки класть под прожекторное освещение - получается халтура, поскольку пузырек уровня плохо виден. Из проделанного - залили монолитный участок лестничного проема (0,6 м3), подняли полторы стены на уровень армпояса под мауэрлат (1,6м)... Ну и еще сделал ревизию закупленному дереву (сложил брус 50х50 отдельно, сделал больший зазор между брусом 200х200, и сверху крест на крест сложил брус 25х50), поскольку обнаружил что оно начало синеть. Надо как-то выкроить время и обработать антисептиком. Посилання на коментар Поділитися на інших сайтах More sharing options...
Игореха Опубліковано: 26 жовтня 2011 Поділитись Опубліковано: 26 жовтня 2011 Дела продвигаются очень медленно, сейчас работаю исключительно по выходным... Темнеет рано, и, если блоки класть под прожекторное освещение - получается халтура, поскольку пузырек уровня плохо виден. Из проделанного - залили монолитный участок лестничного проема (0,6 м3), подняли полторы стены на уровень армпояса под мауэрлат (1,6м)... Ну и еще сделал ревизию закупленному дереву (сложил брус 50х50 отдельно, сделал больший зазор между брусом 200х200, и сверху крест на крест сложил брус 25х50), поскольку обнаружил что оно начало синеть. Надо как-то выкроить время и обработать антисептиком. В принципе для работы по выходным без бригады - отлично! Но я так понимаю, что вы в этом году остаетесь без крыши? Коробку придется консервировать гораздо "веселее" чем фундамент.... Посилання на коментар Поділитися на інших сайтах More sharing options...
Ceazar Опубліковано: 30 жовтня 2011 Автор Поділитись Опубліковано: 30 жовтня 2011 В принципе для работы по выходным без бригады - отлично! Но я так понимаю, что вы в этом году остаетесь без крыши? Коробку придется консервировать гораздо "веселее" чем фундамент.... Да я и сам понимаю что с такими темпами не успею накрыться... ничего... переживем зиму и продолжим... По поводу консервации тоже не особо переживаю: у меня с прошлого года лежит рекламный транспарант (как новый), вот им то и укрою дом сверху; плюс еще, возможно, окошки пленкой обобью. А веселее будет, потому как тент тяжелый и разматывать его поверх дома будет проблематично (вдвоем). Посилання на коментар Поділитися на інших сайтах More sharing options...
Ceazar Опубліковано: 30 жовтня 2011 Автор Поділитись Опубліковано: 30 жовтня 2011 (змінено) Вот я и окончил возводить внешние стены своего домика, осталось только сделать армпояс, да фронтоны. На стройке случился прикол: батя, скорее всего то-ли под впечатлением "НашейРашы", то-ли от "Ну погоди" вошел в кураж и заложил окно (работал среди недели) опомнился когда уже клей схватился :D. Ничего не поделаешь, взял я пилу в руки и давай орудовать. Исправив косяк принялся разбивать опалубку лестничного проема. Грохоту наделал (щит падал на пол первого этажа), что аж сразу все родственники сбежались посмотреть что случилось. Еще нанесли разметку под простенки на втором этаже, даже успели заложить несколько кирпичиков. Змінено 30 жовтня 2011 користувачем Ceazar Работа над ошибками ))) 2 Посилання на коментар Поділитися на інших сайтах More sharing options...
Игореха Опубліковано: 31 жовтня 2011 Поділитись Опубліковано: 31 жовтня 2011 Ну если сейчас чуть поднапрячься, то в принципе не так и много по кладке осталось. Правда и высота уже побольше, может и успеете. Мы сейчас примерно на одном этапе Сегодня мои начинают кладку под фронтоны и самих фронтонов, правда будет еще один армопояс. Посилання на коментар Поділитися на інших сайтах More sharing options...
Ceazar Опубліковано: 31 жовтня 2011 Автор Поділитись Опубліковано: 31 жовтня 2011 Ну если сейчас чуть поднапрячься, то в принципе не так и много по кладке осталось. Правда и высота уже побольше, может и успеете. Мы сейчас примерно на одном этапе Сегодня мои начинают кладку под фронтоны и самих фронтонов, правда будет еще один армопояс. Тут вся загвоздка в дымоходе: армпояс нельзя заливать пока не будет дымоход выведен на нужную высоту, его надо увязать со стенами тем же способом как и в случае с армпоясом первого этажа. Это сделать нужно обязательно т.к. дальше стен возле дымохода не будет. Посилання на коментар Поділитися на інших сайтах More sharing options...
uspex Опубліковано: 31 жовтня 2011 Поділитись Опубліковано: 31 жовтня 2011 Получилась достаточно неприятная история с поставкой дерева для кровли. Свой выбор остановил на ZanozЕ, т.к. уже приходилось с ними работать... в прошлый раз нареканий вообще никаких не было... да и они одни из немногих мною найденых мбрались изготовить брус 200х200 6м. А двутавровые деревянные балки из каркасного строительства не рассматривали как альтернативу брусу 200х200? Посилання на коментар Поділитися на інших сайтах More sharing options...
Ceazar Опубліковано: 1 листопада 2011 Автор Поділитись Опубліковано: 1 листопада 2011 А двутавровые деревянные балки из каркасного строительства не рассматривали как альтернативу брусу 200х200? Брус 200х200 будет использоваться в качестве мауэрлата. Использовать двутавровые балки в этом случае неправильно (ИМХО). Посилання на коментар Поділитися на інших сайтах More sharing options...
КОРН Опубліковано: 1 листопада 2011 Поділитись Опубліковано: 1 листопада 2011 А на кой, простите, 200х200 для мауэрлата? Вполне достаточно будет 100х200 или 100х150. Я у многих видел вообще 50х200. Какой смысл в 200х200? Посилання на коментар Поділитися на інших сайтах More sharing options...
Татьяна5 Опубліковано: 1 листопада 2011 Поділитись Опубліковано: 1 листопада 2011 А на кой, простите, 200х200 для мауэрлата? Вполне достаточно будет 100х200 или 100х150. Я у многих видел вообще 50х200. Какой смысл в 200х200? не повторяйте мою ошибку в моей даче в Липовом Скитке, не надо 200х200, у такого сечения сумасшедшая сила кручения балки, она сама себя от шпилек отрывает 1 Посилання на коментар Поділитися на інших сайтах More sharing options...
Ceazar Опубліковано: 1 листопада 2011 Автор Поділитись Опубліковано: 1 листопада 2011 А на кой, простите, 200х200 для мауэрлата? Вполне достаточно будет 100х200 или 100х150. Я у многих видел вообще 50х200. Какой смысл в 200х200? Нууу... 50х200 это уже не мауэрлат, а доска-подложка - применяется в крышах с висячими стропилами когда ригель (затяжка) выполняет роль перекрытия первого этажа и стягивает противоположные края стропильных ног. У себя решил использовать 200х200 по нескольким соображениям, а именно: высота блоков стандартная - 20см, значит проще работать с такой высотой (из плюсов - армпояс мощнее, тяжелее)... если делать армпояс не 20 см, а 10 следовательно использовать мауэрлат 100х200 не верю в то что толщины армпояса в 10 см будет достаточно чтоб в него всадить анкера и связать их со стропилами вязальной проволокой, а анкерить газобетон в данном случае считаю менее надежным делом. А так все просто: все по 20:) не повторяйте мою ошибку в моей даче в Липовом Скитке, не надо 200х200, у такого сечения сумасшедшая сила кручения балки, она сама себя от шпилек отрывает В виду того что строюсь своими силами по собстенноручно разработанным чертежам, приходиться разбираться во всех тонкостях строительного ремесла. Точно так же и с крышей. Попытался, было я выставить на рассмотрение "нашим" кровельщикам-конструкторам свою стропилку, но в ответ не услышал ни единого мнения (может зуб на меня имеется, не знаю)... Посему, главным консультантом по кровле был назначен мой дед (плотник по профессии), который за свою жизнь построил не одну крышу (на родительском доме в том числе. Дом стоит уже 30 лет). То что брус такой высоты может сорвать со шпилек давлением от стропил я не сомневаюсь, посему принял решение комбинирования разных факторов: -применение кровли с наслонными стропилами с жосткой связью в коньковом прогоне - это снижает распорную силу, давящую на стены; -применение ригельных связей ниже 1/2 от общей длинны стропильной ноги, посему моя наслонная крыша медленно стремится к кровле с висячими стропилами - опять-таки, минимизируер распор на стены; -дополнительная мера снижения силы распора - применение подпор, на которые кроквы будут ложится своими ригелями. Я думаю этих мер должно хватить чтоб распорную силу превратить в давящую перпендикулярно вниз. Пока читал умные книги, думал свихнусь :D... чего только стоит эксцентриситет сосредоточенной нагрузки поперечного сечения балки, или Ссхв. ... :D Посилання на коментар Поділитися на інших сайтах More sharing options...
BrotherSam Опубліковано: 1 листопада 2011 Поділитись Опубліковано: 1 листопада 2011 Что-то мне не нравятся подпоры, вмонтированные в фронтоны Посилання на коментар Поділитися на інших сайтах More sharing options...
Игореха Опубліковано: 1 листопада 2011 Поділитись Опубліковано: 1 листопада 2011 -применение кровли с наслонными стропилами с жосткой связью в коньковом прогоне - это снижает распорную силу, давящую на стены; -применение ригельных связей ниже 1/2 от общей длинны стропильной ноги, посему моя наслонная крыша медленно стремится к кровле с висячими стропилами - опять-таки, минимизируер распор на стены; -дополнительная мера снижения силы распора - применение подпор, на которые кроквы будут ложится своими ригелями. Я думаю этих мер должно хватить чтоб распорную силу превратить в давящую перпендикулярно вниз. Пока читал умные книги, думал свихнусь :D... чего только стоит эксцентриситет сосредоточенной нагрузки поперечного сечения балки, или Ссхв. ... :D Аналогично. Моск уже кипит от теории:D Но что-то вы немного напутали с терминами ;) Висячие стропила как раз и дают распор на мауэрлат/стены. А наслонные как раз его и не дают. Там действуют в основном вертикальные силы. Наслонные стропила шарнирно фиксируются в коньковом прогоне, а висячие фиксируются на мауэрлате запилом. Может у вас комбинированная схема? Как опираются стропила на мауэрлат? Посилання на коментар Поділитися на інших сайтах More sharing options...
Игореха Опубліковано: 1 листопада 2011 Поділитись Опубліковано: 1 листопада 2011 Что-то мне не нравятся подпоры, вмонтированные в фронтоны Аналогично... Тем более газоблок. Я вот сам сейчас мучаюсь вопросом, как уйти от жестких связей и контактов стропилки с фронтонами, хоть у меня и кирпич. Не нравится мне этот узел. Стремно мне за мои фронтоны, на которые будут воздействовать колоссальные силы. Посилання на коментар Поділитися на інших сайтах More sharing options...
КОРН Опубліковано: 1 листопада 2011 Поділитись Опубліковано: 1 листопада 2011 НДа, действительно напутали! Причем все! Во-первых, какой угол крыши? Какой уклон? Какой пролет? Во-вторых, какое сечение армопояса? Какое перекрытие? В-третьих, какие нафиг силы распора при таком армопоясе, перекрытии, уклоне, пролете? Я темку читал, не отсылайте изучать матчасть. Повторите кратко, плз! И дайте ссылку на ваш вопрос в профильном разделе. Давайте разберемся! Посилання на коментар Поділитися на інших сайтах More sharing options...
Рекомендовані повідомлення
Створіть акаунт або увійдіть у нього для коментування
Ви маєте бути користувачем, щоб залишити коментар
Створити акаунт
Зареєструйтеся для отримання акаунта. Це просто!
Зареєструвати акаунтУвійти
Вже зареєстровані? Увійдіть тут.
Увійти зараз